Agência imobiliária - AMI: 12387
Comprar
Arrendar
3 Quartos
3 WCs
Área bruta : 168 m²
Magnífico Apartamento T3, última unidade com este posicionamento privilegiado, num Condomínio Extraordinário - Colina do Outeiro Área Total de Construção 168m2 Área Útil 126m2 1 Suíte com roupeiro casa de banho completa com banheira e varanda 2 Quartos com roupeiro e varanda 1 Casa de Banho com poliban 1 WC Social 3 Varandas com total 36m2, tendo uma das varandas a configuração em 'L' com área de 30m2, veja planta anexada. 2 Lugares de estacionamento coberto com tomada eléctrica para carregamento de viaturas eléctricas. 1 Arrecadação Acabamentos de excelência com recurso a materiais de elevada qualidade. Situado em Magnífico Condomínio Privado na Primeira Linha da Baía do Seixal, onde todos os apartamentos podem desfrutar para Sempre de uma maravilhosa vista para a Baía. Junto ao empreendimento vai encontrar parques, jardins e muitas áreas verdes, além do Passeio Ribeirinho do Seixal, com um corredor de ciclovia e corrida com 3,7 km. Encontra também uma extraordinária oferta gastronómica, proporcionada por um vasto leque de restaurantes que vão desde a tradicional cozinha portuguesa à moderna cozinha nacional e internacional. A combinação perfeita entre a qualidade, modernidade e bem-estar. Constituído por 53 apartamentos de tipologias T2 a T4, todos com divisões amplas, cozinha totalmente equipada e ar condicionado, todos os apartamentos oferecem ainda terraços ou varandas, totalmente pensadas para desfrutar da magnífica vista sobre a Baía do Seixal. As superfícies vidradas e as espaçosas varandas, garantem também um ambiente elegante e repleto de luz natural. Neste condomínio, será ainda possível desfrutar de outras comodidades, tais como 2 lugares de estacionamento para automóvel e bicicleta, arrecadação, ginásio, parque infantil, campo de jogos, jardins e piscina comum é a escolha perfeita para quem procura uma vida tranquila, com toda a segurança, conforto, qualidade em proximidade com a natureza e a poucos minutos de Lisboa. A 5 minutos de carro dos barcos da Transtejo que fazem a ligação em 17 minutos a Lisboa, a 5 minutos de carro do Rio Sul Shopping e da estação de comboios Fertagus. A 15 minutos de carro do Golf da Aroeira e das Praias da Fonte da Telha. Venha falar connosco. Oportunidades Únicas para Pessoas Únicas
AMI: 12387
Ref. Externa: ACR - 345 GER
Id: 1596964
Inicie sessão para guardar este imóvel e aceder à sua lista de favoritos em qualquer dispositivo.
3 Quartos
3 WCs
Área bruta : 168 m²
Magnífico Apartamento T3, última unidade com este posicionamento privilegiado, num Condomínio Extraordinário - Colina do Outeiro Área Total de Construção 168m2 Área Útil 126m2 1 Suíte com roupeiro casa de banho completa com banheira e varanda 2 Quartos com roupeiro e varanda 1 Casa de Banho com poliban 1 WC Social 3 Varandas com total 36m2, tendo uma das varandas a configuração em 'L' com área de 30m2, veja planta anexada. 2 Lugares de estacionamento coberto com tomada eléctrica para carregamento de viaturas eléctricas. 1 Arrecadação Acabamentos de excelência com recurso a materiais de elevada qualidade. Situado em Magnífico Condomínio Privado na Primeira Linha da Baía do Seixal, onde todos os apartamentos podem desfrutar para Sempre de uma maravilhosa vista para a Baía. Junto ao empreendimento vai encontrar parques, jardins e muitas áreas verdes, além do Passeio Ribeirinho do Seixal, com um corredor de ciclovia e corrida com 3,7 km. Encontra também uma extraordinária oferta gastronómica, proporcionada por um vasto leque de restaurantes que vão desde a tradicional cozinha portuguesa à moderna cozinha nacional e internacional. A combinação perfeita entre a qualidade, modernidade e bem-estar. Constituído por 53 apartamentos de tipologias T2 a T4, todos com divisões amplas, cozinha totalmente equipada e ar condicionado, todos os apartamentos oferecem ainda terraços ou varandas, totalmente pensadas para desfrutar da magnífica vista sobre a Baía do Seixal. As superfícies vidradas e as espaçosas varandas, garantem também um ambiente elegante e repleto de luz natural. Neste condomínio, será ainda possível desfrutar de outras comodidades, tais como 2 lugares de estacionamento para automóvel e bicicleta, arrecadação, ginásio, parque infantil, campo de jogos, jardins e piscina comum é a escolha perfeita para quem procura uma vida tranquila, com toda a segurança, conforto, qualidade em proximidade com a natureza e a poucos minutos de Lisboa. A 5 minutos de carro dos barcos da Transtejo que fazem a ligação em 17 minutos a Lisboa, a 5 minutos de carro do Rio Sul Shopping e da estação de comboios Fertagus. A 15 minutos de carro do Golf da Aroeira e das Praias da Fonte da Telha. Venha falar connosco. Oportunidades Únicas para Pessoas Únicas
AMI: 12387
Ref. Externa: ACR - 344 GER
Id: 1559717
Inicie sessão para guardar este imóvel e aceder à sua lista de favoritos em qualquer dispositivo.
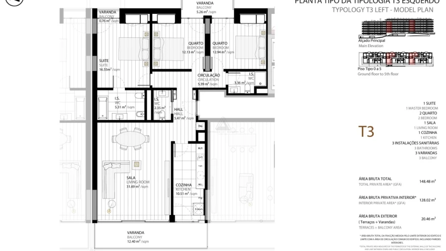
3 Quartos
3 WCs
Área bruta : 148 m²
Magnífico Apartamento T3 Área Total de Construção 148m2 Área Útil 126m2 1 Suíte com roupeiro casa de banho completa com banheira e varanda 2 Quartos com roupeiro e varanda 1 Casa de Banho com poliban 1 WC Social 3 Varandas com total 18m2 veja planta anexada. 2 Lugares de estacionamento coberto 1 Arrecadação Acabamentos de excelência com recurso a materiais de elevada qualidade. Situado em Magnífico Condomínio Privado na Primeira Linha da Baía do Seixal, onde todos os apartamentos podem desfrutar para Sempre de uma maravilhosa vista para a Baía. Junto ao empreendimento vai encontrar parques, jardins e muitas áreas verdes, além do Passeio Ribeirinho do Seixal, com um corredor de ciclovia e corrida com 3,7 km. Encontra também uma extraordinária oferta gastronómica, proporcionada por um vasto leque de restaurantes que vão desde a tradicional cozinha portuguesa à moderna cozinha nacional e internacional. A combinação perfeita entre a qualidade, modernidade e bem-estar. Constituído por 53 apartamentos de tipologias T2 a T4, todos com divisões amplas, cozinha totalmente equipada e ar condicionado, todos os apartamentos oferecem ainda terraços ou varandas, totalmente pensadas para desfrutar da magnífica vista sobre a Baía do Seixal. As superfícies vidradas e as espaçosas varandas, garantem também um ambiente elegante e repleto de luz natural. Neste condomínio, será ainda possível desfrutar de outras comodidades, tais como 2 lugares de estacionamento para automóvel e bicicleta, arrecadação, ginásio, parque infantil, campo de jogos, jardins e piscina comum é a escolha perfeita para quem procura uma vida tranquila, com toda a segurança, conforto, qualidade em proximidade com a natureza e a poucos minutos de Lisboa. A 5 minutos de carro dos barcos da Transtejo que fazem a ligação em 17 minutos a Lisboa, a 5 minutos de carro do Rio Sul Shopping e da estação de comboios Fertagus. A 15 minutos de carro do Golf da Aroeira e das Praias da Fonte da Telha. Venha falar connosco. Oportunidades Únicas para Pessoas Únicas
AMI: 12387
Ref. Externa: ACR - 343 GER
Id: 1529585
Inicie sessão para guardar este imóvel e aceder à sua lista de favoritos em qualquer dispositivo.
2 Quartos
2 WCs
Área bruta : 92 m²
Excelente apartamento T2 em construção com Área Bruta Privativa de 80,65m2, situado no Piso , com Vista Mar, exposição solar sul e poente, com posicionamento único no bloco A do Condomínio Privado 'Vale das Amendoeiras' em Sesimbra. O Condomínio Privado 'Vale das Amendoeiras', é um extraordinário condomínio, que conjuga Luxo, Privacidade, Conforto e Charme, com a Beleza e Charme de uma Vila situada à beira-mar; Sesimbra. Desfrute do conforto e bem-estar que a elegância e qualidade deste apartamento lhe proporcionam, ao mesmo tempo que pode utilizar os magníficos espaços comuns, piscinas, SPA com sauna e jacuzzi, ginásio e jardins com vista para o oceano. O 'Vale das Amendoeiras' é composto por 71 apartamentos com tipologias T0, T1, T2, T3 e T4, com extraordinárias varandas ou terraços e com estacionamentos exclusivos, localizado a 5 minutos a pé da Praia do Ouro. A Maravilhosa Vila de Sesimbra, proporciona-lhe emocionantes experiências gastronómicas e paisagísticas, temperadas com todas as experiências que uma localização à beira-mar pode oferecer. Este apartamento, tem 2 quartos com roupeiros, sendo um deles suíte, para além da casa de banho da suíte, tem ainda 1 casa de banho serviço, com lavatório duplo e poliban. Os equipamentos a instalar no apartamento são da marca Bosch. Acabamentos com materiais de elevada qualidade da marca Porcelanosa. Tem uma varanda exclusiva com 20,88m2 A suíte tem acesso directo à varanda Estacionamento dedicado e exclusivo composto por 2 BOX individuais com tomada eléctrica para carregamento de viaturas eléctricas. Adquira este magnífico apartamento e crie memórias e momentos inesquecíveis. Contacte-nos. Oportunidades Únicas, para Pessoas Únicas.
AMI: 12387
Ref. Externa: ACR - 342 GER
Id: 1508909
Inicie sessão para guardar este imóvel e aceder à sua lista de favoritos em qualquer dispositivo.
3 Quartos
3 WCs
Área bruta : 148 m²
Magnífico Apartamento T3 Área Total de Construção 148m2 Área Útil 126m2 1 Suíte com roupeiro casa de banho completa com banheira e varanda 2 Quartos com roupeiro e varanda 1 Casa de Banho com poliban 1 WC Social 3 Varandas com total 18m2 veja planta anexada. 2 Lugares de estacionamento coberto 1 Arrecadação Acabamentos de excelência com recurso a materiais de elevada qualidade. Situado em Magnífico Condomínio Privado na Primeira Linha da Baía do Seixal, onde todos os apartamentos podem desfrutar para Sempre de uma maravilhosa vista para a Baía. Junto ao empreendimento vai encontrar parques, jardins e muitas áreas verdes, além do Passeio Ribeirinho do Seixal, com um corredor de ciclovia e corrida com 3,7 km. Encontra também uma extraordinária oferta gastronómica, proporcionada por um vasto leque de restaurantes que vão desde a tradicional cozinha portuguesa à moderna cozinha nacional e internacional. A combinação perfeita entre a qualidade, modernidade e bem-estar. Constituído por 53 apartamentos de tipologias T2 a T4, todos com divisões amplas, cozinha totalmente equipada e ar condicionado, todos os apartamentos oferecem ainda terraços ou varandas, totalmente pensadas para desfrutar da magnífica vista sobre a Baía do Seixal. As superfícies vidradas e as espaçosas varandas, garantem também um ambiente elegante e repleto de luz natural. Neste condomínio, será ainda possível desfrutar de outras comodidades, tais como 2 lugares de estacionamento para automóvel e bicicleta, arrecadação, ginásio, parque infantil, campo de jogos, jardins e piscina comum é a escolha perfeita para quem procura uma vida tranquila, com toda a segurança, conforto, qualidade em proximidade com a natureza e a poucos minutos de Lisboa. A 5 minutos de carro dos barcos da Transtejo que fazem a ligação em 17 minutos a Lisboa, a 5 minutos de carro do Rio Sul Shopping e da estação de comboios Fertagus. A 15 minutos de carro do Golf da Aroeira e das Praias da Fonte da Telha. Venha falar connosco. Oportunidades Únicas para Pessoas Únicas
AMI: 12387
Ref. Externa: ACR - 341 GER
Id: 1482007
Inicie sessão para guardar este imóvel e aceder à sua lista de favoritos em qualquer dispositivo.
2 Quartos
2 WCs
Área bruta : 92 m²
Excelente apartamento T2 em construção com Área Bruta Privativa de 80,65m2, situado no Piso , com Vista Mar, exposição solar sul e poente, com posicionamento único no bloco A do Condomínio Privado 'Vale das Amendoeiras' em Sesimbra. O Condomínio Privado 'Vale das Amendoeiras', é um extraordinário condomínio, que conjuga Luxo, Privacidade, Conforto e Charme, com a Beleza e Charme de uma Vila situada à beira-mar; Sesimbra. Desfrute do conforto e bem-estar que a elegância e qualidade deste apartamento lhe proporcionam, ao mesmo tempo que pode utilizar os magníficos espaços comuns, piscinas, SPA com sauna e jacuzzi, ginásio e jardins com vista para o oceano. O 'Vale das Amendoeiras' é composto por 71 apartamentos com tipologias T0, T1, T2, T3 e T4, com extraordinárias varandas ou terraços e com estacionamentos exclusivos, localizado a 5 minutos a pé da Praia do Ouro. A Maravilhosa Vila de Sesimbra, proporciona-lhe emocionantes experiências gastronómicas e paisagísticas, temperadas com todas as experiências que uma localização à beira-mar pode oferecer. Este apartamento, tem 2 quartos com roupeiros, sendo um deles suíte, para além da casa de banho da suíte, tem ainda 1 casa de banho serviço, com lavatório duplo e poliban. Os equipamentos a instalar no apartamento são da marca Bosch. Acabamentos com materiais de elevada qualidade da marca Porcelanosa. Tem uma varanda exclusiva com 20,88m2 A suíte tem acesso directo à varanda Estacionamento dedicado e exclusivo composto por 2 BOX individuais com tomada eléctrica para carregamento de viaturas eléctricas. Adquira este magnífico apartamento e crie memórias e momentos inesquecíveis. Contacte-nos. Oportunidades Únicas, para Pessoas Únicas.
AMI: 12387
Ref. Externa: ACR - 340 GER
Id: 1392194
Inicie sessão para guardar este imóvel e aceder à sua lista de favoritos em qualquer dispositivo.
3 Quartos
3 WCs
Área bruta : 168 m²
Magnífico Apartamento T3, excelente posicionamento no condomínio privado Área Total de Construção 168m2 Área Útil 126m2 1 Suíte com roupeiro casa de banho completa com banheira e varanda 2 Quartos com roupeiro e varanda 1 Casa de Banho com poliban 1 WC Social 3 Varandas com total 36m2, tendo uma das varandas a configuração em 'L' com área de 30m2, veja planta anexada. 2 Lugares de estacionamento coberto 1 Arrecadação Acabamentos de excelência com recurso a materiais de elevada qualidade. Situado em Magnífico Condomínio Privado na Primeira Linha da Baía do Seixal, onde todos os apartamentos podem desfrutar para Sempre de uma maravilhosa vista para a Baía. Junto ao empreendimento vai encontrar parques, jardins e muitas áreas verdes, além do Passeio Ribeirinho do Seixal, com um corredor de ciclovia e corrida com 3,7 km. Encontra também uma extraordinária oferta gastronómica, proporcionada por um vasto leque de restaurantes que vão desde a tradicional cozinha portuguesa à moderna cozinha nacional e internacional. A combinação perfeita entre a qualidade, modernidade e bem-estar. Constituído por 53 apartamentos de tipologias T2 a T4, todos com divisões amplas, cozinha totalmente equipada e ar condicionado, todos os apartamentos oferecem ainda terraços ou varandas, totalmente pensadas para desfrutar da magnífica vista sobre a Baía do Seixal. As superfícies vidradas e as espaçosas varandas, garantem também um ambiente elegante e repleto de luz natural. Neste condomínio, será ainda possível desfrutar de outras comodidades, tais como 2 lugares de estacionamento para automóvel e bicicleta, arrecadação, ginásio, parque infantil, campo de jogos, jardins e piscina comum é a escolha perfeita para quem procura uma vida tranquila, com toda a segurança, conforto, qualidade em proximidade com a natureza e a poucos minutos de Lisboa. A 5 minutos de carro dos barcos da Transtejo que fazem a ligação em 17 minutos a Lisboa, a 5 minutos de carro do Rio Sul Shopping e da estação de comboios Fertagus. A 15 minutos de carro do Golf da Aroeira e das Praias da Fonte da Telha. Venha falar connosco. Oportunidades Únicas para Pessoas Únicas
AMI: 12387
Ref. Externa: ACR - 331 GER
Id: 1342434
Inicie sessão para guardar este imóvel e aceder à sua lista de favoritos em qualquer dispositivo.
Área bruta : 545 m²
Fabuloso Espaço com 530m2, especialmente destinado empresas dos ramos tecnológico, investigação, formação, call center ou coworking, em Condomínio Fechado, com portaria e segurança no horário pós-laboral e ao fim-de-semana. com boas acessibilidades e boas infraestruturas de apoio. Muita luz natural Em 2 pisos No piso 0 com 130m2 úteis, em open space com 2 wc e lavatório central No piso 1, com 400m2 úteis, em open space , sendo possível aumentar a área do primeiro piso em 130m2, com a colocação de um mezanino. Arrendado no estado em que se encontra Não se encontra um espaço com esta qualidade e características para arrendar num raio de 50 Km. A 10 minutos da A33 A 15 minutos da A2, a 25 minutos da Ponte 25 de Abril, a 20 minutos da Ponte Vasco da Gama e Autoestrada para Espanha, a 30 minutos do Aeroporto de Lisboa. Instale a sua empresa numa infraestrutura que decididamente contribuirá para o sucesso do seu negócio. Bastante espaço para estacionar Infraestruturas completas de água, eletricidade, iluminação, incêndio e telecomunicações Espaço com muita luz natural. Agende a sua visita.
AMI: 12387
Ref. Externa: ACR - 339GER
Id: 1295128
Inicie sessão para guardar este imóvel e aceder à sua lista de favoritos em qualquer dispositivo.
3 Quartos
3 WCs
Área bruta : 168 m²
Magnífico Apartamento T3, excelente posicionamento no condomínio privado Área Total de Construção 168m2 Área Útil 126m2 1 Suíte com roupeiro casa de banho completa com banheira e varanda 2 Quartos com roupeiro e varanda 1 Casa de Banho com poliban 1 WC Social 3 Varandas com total 36m2, tendo uma das varandas a configuração em 'L' com área de 30m2, veja planta anexada. 2 Lugares de estacionamento coberto 1 Arrecadação Acabamentos de excelência com recurso a materiais de elevada qualidade. Situado em Magnífico Condomínio Privado na Primeira Linha da Baía do Seixal, onde todos os apartamentos podem desfrutar para Sempre de uma maravilhosa vista para a Baía. Junto ao empreendimento vai encontrar parques, jardins e muitas áreas verdes, além do Passeio Ribeirinho do Seixal, com um corredor de ciclovia e corrida com 3,7 km. Encontra também uma extraordinária oferta gastronómica, proporcionada por um vasto leque de restaurantes que vão desde a tradicional cozinha portuguesa à moderna cozinha nacional e internacional. A combinação perfeita entre a qualidade, modernidade e bem-estar. Constituído por 53 apartamentos de tipologias T2 a T4, todos com divisões amplas, cozinha totalmente equipada e ar condicionado, todos os apartamentos oferecem ainda terraços ou varandas, totalmente pensadas para desfrutar da magnífica vista sobre a Baía do Seixal. As superfícies vidradas e as espaçosas varandas, garantem também um ambiente elegante e repleto de luz natural. Neste condomínio, será ainda possível desfrutar de outras comodidades, tais como 2 lugares de estacionamento para automóvel e bicicleta, arrecadação, ginásio, parque infantil, campo de jogos, jardins e piscina comum é a escolha perfeita para quem procura uma vida tranquila, com toda a segurança, conforto, qualidade em proximidade com a natureza e a poucos minutos de Lisboa. A 5 minutos de carro dos barcos da Transtejo que fazem a ligação em 17 minutos a Lisboa, a 5 minutos de carro do Rio Sul Shopping e da estação de comboios Fertagus. A 15 minutos de carro do Golf da Aroeira e das Praias da Fonte da Telha. Venha falar connosco. Oportunidades Únicas para Pessoas Únicas
AMI: 12387
Ref. Externa: ACR - 339GER
Id: 1281081
Inicie sessão para guardar este imóvel e aceder à sua lista de favoritos em qualquer dispositivo.
3 Quartos
3 WCs
Área bruta : 148 m²
Magnífico Apartamento T3 Área Total de Construção 148m2 Área Útil 126m2 1 Suíte com roupeiro casa de banho completa com banheira e varanda 2 Quartos com roupeiro e varanda 1 Casa de Banho com poliban 1 WC Social 3 Varandas com total 18m2 veja planta anexada. 2 Lugares de estacionamento coberto 1 Arrecadação Acabamentos de excelência com recurso a materiais de elevada qualidade. Situado em Magnífico Condomínio Privado na Primeira Linha da Baía do Seixal, onde todos os apartamentos podem desfrutar para Sempre de uma maravilhosa vista para a Baía. Junto ao empreendimento vai encontrar parques, jardins e muitas áreas verdes, além do Passeio Ribeirinho do Seixal, com um corredor de ciclovia e corrida com 3,7 km. Encontra também uma extraordinária oferta gastronómica, proporcionada por um vasto leque de restaurantes que vão desde a tradicional cozinha portuguesa à moderna cozinha nacional e internacional. A combinação perfeita entre a qualidade, modernidade e bem-estar. Constituído por 53 apartamentos de tipologias T2 a T4, todos com divisões amplas, cozinha totalmente equipada e ar condicionado, todos os apartamentos oferecem ainda terraços ou varandas, totalmente pensadas para desfrutar da magnífica vista sobre a Baía do Seixal. As superfícies vidradas e as espaçosas varandas, garantem também um ambiente elegante e repleto de luz natural. Neste condomínio, será ainda possível desfrutar de outras comodidades, tais como 2 lugares de estacionamento para automóvel e bicicleta, arrecadação, ginásio, parque infantil, campo de jogos, jardins e piscina comum é a escolha perfeita para quem procura uma vida tranquila, com toda a segurança, conforto, qualidade em proximidade com a natureza e a poucos minutos de Lisboa. A 5 minutos de carro dos barcos da Transtejo que fazem a ligação em 17 minutos a Lisboa, a 5 minutos de carro do Rio Sul Shopping e da estação de comboios Fertagus. A 15 minutos de carro do Golf da Aroeira e das Praias da Fonte da Telha. Venha falar connosco. Oportunidades Únicas para Pessoas Únicas
AMI: 12387
Ref. Externa: ACR - 263 GER
Id: 1066999
Inicie sessão para guardar este imóvel e aceder à sua lista de favoritos em qualquer dispositivo.
3 Quartos
3 WCs
Área bruta : 168 m²
Magnífico Apartamento T3, última unidade com este posicionamento privilegiado, num Condomínio Extraordinário - Colina do Outeiro Área Total de Construção 168m2 Área Útil 126m2 1 Suíte com roupeiro casa de banho completa com banheira e varanda 2 Quartos com roupeiro e varanda 1 Casa de Banho com poliban 1 WC Social 3 Varandas com total 36m2, tendo uma das varandas a configuração em 'L' com área de 30m2, veja planta anexada. 2 Lugares de estacionamento coberto com tomada eléctrica para carregamento de viaturas eléctricas. 1 Arrecadação Acabamentos de excelência com recurso a materiais de elevada qualidade. Situado em Magnífico Condomínio Privado na Primeira Linha da Baía do Seixal, onde todos os apartamentos podem desfrutar para Sempre de uma maravilhosa vista para a Baía. Junto ao empreendimento vai encontrar parques, jardins e muitas áreas verdes, além do Passeio Ribeirinho do Seixal, com um corredor de ciclovia e corrida com 3,7 km. Encontra também uma extraordinária oferta gastronómica, proporcionada por um vasto leque de restaurantes que vão desde a tradicional cozinha portuguesa à moderna cozinha nacional e internacional. A combinação perfeita entre a qualidade, modernidade e bem-estar. Constituído por 53 apartamentos de tipologias T2 a T4, todos com divisões amplas, cozinha totalmente equipada e ar condicionado, todos os apartamentos oferecem ainda terraços ou varandas, totalmente pensadas para desfrutar da magnífica vista sobre a Baía do Seixal. As superfícies vidradas e as espaçosas varandas, garantem também um ambiente elegante e repleto de luz natural. Neste condomínio, será ainda possível desfrutar de outras comodidades, tais como 2 lugares de estacionamento para automóvel e bicicleta, arrecadação, ginásio, parque infantil, campo de jogos, jardins e piscina comum é a escolha perfeita para quem procura uma vida tranquila, com toda a segurança, conforto, qualidade em proximidade com a natureza e a poucos minutos de Lisboa. A 5 minutos de carro dos barcos da Transtejo que fazem a ligação em 17 minutos a Lisboa, a 5 minutos de carro do Rio Sul Shopping e da estação de comboios Fertagus. A 15 minutos de carro do Golf da Aroeira e das Praias da Fonte da Telha. Venha falar connosco. Oportunidades Únicas para Pessoas Únicas
AMI: 12387
Ref. Externa: ACR - 261 GER
Id: 848265
Inicie sessão para guardar este imóvel e aceder à sua lista de favoritos em qualquer dispositivo.
3 Quartos
3 WCs
Área bruta : 168 m²
Magnífico Apartamento T3, excelente posicionamento no condomínio privado Área Total de Construção 168m2 Área Útil 126m2 1 Suíte com roupeiro casa de banho completa com banheira e varanda 2 Quartos com roupeiro e varanda 1 Casa de Banho com poliban 1 WC Social 3 Varandas com total 36m2, tendo uma das varandas a configuração em 'L' com área de 30m2, veja planta anexada. 2 Lugares de estacionamento coberto 1 Arrecadação Acabamentos de excelência com recurso a materiais de elevada qualidade. Situado em Magnífico Condomínio Privado na Primeira Linha da Baía do Seixal, onde todos os apartamentos podem desfrutar para Sempre de uma maravilhosa vista para a Baía. Junto ao empreendimento vai encontrar parques, jardins e muitas áreas verdes, além do Passeio Ribeirinho do Seixal, com um corredor de ciclovia e corrida com 3,7 km. Encontra também uma extraordinária oferta gastronómica, proporcionada por um vasto leque de restaurantes que vão desde a tradicional cozinha portuguesa à moderna cozinha nacional e internacional. A combinação perfeita entre a qualidade, modernidade e bem-estar. Constituído por 53 apartamentos de tipologias T2 a T4, todos com divisões amplas, cozinha totalmente equipada e ar condicionado, todos os apartamentos oferecem ainda terraços ou varandas, totalmente pensadas para desfrutar da magnífica vista sobre a Baía do Seixal. As superfícies vidradas e as espaçosas varandas, garantem também um ambiente elegante e repleto de luz natural. Neste condomínio, será ainda possível desfrutar de outras comodidades, tais como 2 lugares de estacionamento para automóvel e bicicleta, arrecadação, ginásio, parque infantil, campo de jogos, jardins e piscina comum é a escolha perfeita para quem procura uma vida tranquila, com toda a segurança, conforto, qualidade em proximidade com a natureza e a poucos minutos de Lisboa. A 5 minutos de carro dos barcos da Transtejo que fazem a ligação em 17 minutos a Lisboa, a 5 minutos de carro do Rio Sul Shopping e da estação de comboios Fertagus. A 15 minutos de carro do Golf da Aroeira e das Praias da Fonte da Telha. Venha falar connosco. Oportunidades Únicas para Pessoas Únicas
AMI: 12387
Ref. Externa: ACR - 327 GER
Id: 831890
Inicie sessão para guardar este imóvel e aceder à sua lista de favoritos em qualquer dispositivo.
3 Quartos
3 WCs
Área bruta : 148 m²
Magnífico Apartamento T3 Área Total de Construção 148m2 Área Útil 126m2 1 Suíte com roupeiro casa de banho completa com banheira e varanda 2 Quartos com roupeiro e varanda 1 Casa de Banho com poliban 1 WC Social 3 Varandas com total 18m2 veja planta anexada. 2 Lugares de estacionamento coberto 1 Arrecadação Acabamentos de excelência com recurso a materiais de elevada qualidade. Situado em Magnífico Condomínio Privado na Primeira Linha da Baía do Seixal, onde todos os apartamentos podem desfrutar para Sempre de uma maravilhosa vista para a Baía. Junto ao empreendimento vai encontrar parques, jardins e muitas áreas verdes, além do Passeio Ribeirinho do Seixal, com um corredor de ciclovia e corrida com 3,7 km. Encontra também uma extraordinária oferta gastronómica, proporcionada por um vasto leque de restaurantes que vão desde a tradicional cozinha portuguesa à moderna cozinha nacional e internacional. A combinação perfeita entre a qualidade, modernidade e bem-estar. Constituído por 53 apartamentos de tipologias T2 a T4, todos com divisões amplas, cozinha totalmente equipada e ar condicionado, todos os apartamentos oferecem ainda terraços ou varandas, totalmente pensadas para desfrutar da magnífica vista sobre a Baía do Seixal. As superfícies vidradas e as espaçosas varandas, garantem também um ambiente elegante e repleto de luz natural. Neste condomínio, será ainda possível desfrutar de outras comodidades, tais como 2 lugares de estacionamento para automóvel e bicicleta, arrecadação, ginásio, parque infantil, campo de jogos, jardins e piscina comum é a escolha perfeita para quem procura uma vida tranquila, com toda a segurança, conforto, qualidade em proximidade com a natureza e a poucos minutos de Lisboa. A 5 minutos de carro dos barcos da Transtejo que fazem a ligação em 17 minutos a Lisboa, a 5 minutos de carro do Rio Sul Shopping e da estação de comboios Fertagus. A 15 minutos de carro do Golf da Aroeira e das Praias da Fonte da Telha. Venha falar connosco. Oportunidades Únicas para Pessoas Únicas
AMI: 12387
Ref. Externa: ACR - 623 GER
Id: 830788
Inicie sessão para guardar este imóvel e aceder à sua lista de favoritos em qualquer dispositivo.
3 Quartos
3 WCs
Área bruta : 148 m²
Magnífico Apartamento T3 Área Total de Construção 148m2 Área Útil 126m2 1 Suíte com roupeiro casa de banho completa com banheira e varanda 2 Quartos com roupeiro e varanda 1 Casa de Banho com poliban 1 WC Social 3 Varandas com total 18m2 veja planta anexada. 2 Lugares de estacionamento coberto 1 Arrecadação Acabamentos de excelência com recurso a materiais de elevada qualidade. Situado em Magnífico Condomínio Privado na Primeira Linha da Baía do Seixal, onde todos os apartamentos podem desfrutar para Sempre de uma maravilhosa vista para a Baía. Junto ao empreendimento vai encontrar parques, jardins e muitas áreas verdes, além do Passeio Ribeirinho do Seixal, com um corredor de ciclovia e corrida com 3,7 km. Encontra também uma extraordinária oferta gastronómica, proporcionada por um vasto leque de restaurantes que vão desde a tradicional cozinha portuguesa à moderna cozinha nacional e internacional. A combinação perfeita entre a qualidade, modernidade e bem-estar. Constituído por 53 apartamentos de tipologias T2 a T4, todos com divisões amplas, cozinha totalmente equipada e ar condicionado, todos os apartamentos oferecem ainda terraços ou varandas, totalmente pensadas para desfrutar da magnífica vista sobre a Baía do Seixal. As superfícies vidradas e as espaçosas varandas, garantem também um ambiente elegante e repleto de luz natural. Neste condomínio, será ainda possível desfrutar de outras comodidades, tais como 2 lugares de estacionamento para automóvel e bicicleta, arrecadação, ginásio, parque infantil, campo de jogos, jardins e piscina comum é a escolha perfeita para quem procura uma vida tranquila, com toda a segurança, conforto, qualidade em proximidade com a natureza e a poucos minutos de Lisboa. A 5 minutos de carro dos barcos da Transtejo que fazem a ligação em 17 minutos a Lisboa, a 5 minutos de carro do Rio Sul Shopping e da estação de comboios Fertagus. A 15 minutos de carro do Golf da Aroeira e das Praias da Fonte da Telha. Venha falar connosco. Oportunidades Únicas para Pessoas Únicas
AMI: 12387
Ref. Externa: ACR - 329 GER
Id: 830773
Inicie sessão para guardar este imóvel e aceder à sua lista de favoritos em qualquer dispositivo.
3 Quartos
3 WCs
Área bruta : 197 m²
Magnífico Apartamento T3 R/C COM TERRAÇO EXCLUSIVO DE 71m2 Área Total de Construção 197m2 Área Útil 126m2 1 Suíte com roupeiro casa de banho completa com banheira e varanda 2 Quartos com roupeiro e varanda 1 Casa de Banho com poliban 1 WC Social 3 Varandas com total 18m2 veja planta anexada. 2 Lugares de estacionamento coberto 1 Arrecadação Acabamentos de excelência com recurso a materiais de elevada qualidade. Situado em Magnífico Condomínio Privado na Primeira Linha da Baía do Seixal, onde todos os apartamentos podem desfrutar para Sempre de uma maravilhosa vista para a Baía. Junto ao empreendimento vai encontrar parques, jardins e muitas áreas verdes, além do Passeio Ribeirinho do Seixal, com um corredor de ciclovia e corrida com 3,7 km. Encontra também uma extraordinária oferta gastronómica, proporcionada por um vasto leque de restaurantes que vão desde a tradicional cozinha portuguesa à moderna cozinha nacional e internacional. A combinação perfeita entre a qualidade, modernidade e bem-estar. Constituído por 53 apartamentos de tipologias T2 a T4, todos com divisões amplas, cozinha totalmente equipada e ar condicionado, todos os apartamentos oferecem ainda terraços ou varandas, totalmente pensadas para desfrutar da magnífica vista sobre a Baía do Seixal. As superfícies vidradas e as espaçosas varandas, garantem também um ambiente elegante e repleto de luz natural. Neste condomínio, será ainda possível desfrutar de outras comodidades, tais como 2 lugares de estacionamento para automóvel e bicicleta, arrecadação, ginásio, parque infantil, campo de jogos, jardins e piscina comum é a escolha perfeita para quem procura uma vida tranquila, com toda a segurança, conforto, qualidade em proximidade com a natureza e a poucos minutos de Lisboa. A 5 minutos de carro dos barcos da Transtejo que fazem a ligação em 17 minutos a Lisboa, a 5 minutos de carro do Rio Sul Shopping e da estação de comboios Fertagus. A 15 minutos de carro do Golf da Aroeira e das Praias da Fonte da Telha. Venha falar connosco. Oportunidades Únicas para Pessoas Únicas
AMI: 12387
Ref. Externa: ACR - 330 GER
Id: 830767
Inicie sessão para guardar este imóvel e aceder à sua lista de favoritos em qualquer dispositivo.
3 Quartos
3 WCs
Área bruta : 148 m²
Magnífico Apartamento T3 Área Total de Construção 148m2 Área Útil 126m2 1 Suíte com roupeiro casa de banho completa com banheira e varanda 2 Quartos com roupeiro e varanda 1 Casa de Banho com poliban 1 WC Social 3 Varandas com total 18m2 veja planta anexada. 2 Lugares de estacionamento coberto 1 Arrecadação Acabamentos de excelência com recurso a materiais de elevada qualidade. Situado em Magnífico Condomínio Privado na Primeira Linha da Baía do Seixal, onde todos os apartamentos podem desfrutar para Sempre de uma maravilhosa vista para a Baía. Junto ao empreendimento vai encontrar parques, jardins e muitas áreas verdes, além do Passeio Ribeirinho do Seixal, com um corredor de ciclovia e corrida com 3,7 km. Encontra também uma extraordinária oferta gastronómica, proporcionada por um vasto leque de restaurantes que vão desde a tradicional cozinha portuguesa à moderna cozinha nacional e internacional. A combinação perfeita entre a qualidade, modernidade e bem-estar. Constituído por 53 apartamentos de tipologias T2 a T4, todos com divisões amplas, cozinha totalmente equipada e ar condicionado, todos os apartamentos oferecem ainda terraços ou varandas, totalmente pensadas para desfrutar da magnífica vista sobre a Baía do Seixal. As superfícies vidradas e as espaçosas varandas, garantem também um ambiente elegante e repleto de luz natural. Neste condomínio, será ainda possível desfrutar de outras comodidades, tais como 2 lugares de estacionamento para automóvel e bicicleta, arrecadação, ginásio, parque infantil, campo de jogos, jardins e piscina comum é a escolha perfeita para quem procura uma vida tranquila, com toda a segurança, conforto, qualidade em proximidade com a natureza e a poucos minutos de Lisboa. A 5 minutos de carro dos barcos da Transtejo que fazem a ligação em 17 minutos a Lisboa, a 5 minutos de carro do Rio Sul Shopping e da estação de comboios Fertagus. A 15 minutos de carro do Golf da Aroeira e das Praias da Fonte da Telha. Venha falar connosco. Oportunidades Únicas para Pessoas Únicas
AMI: 12387
Ref. Externa: ACR - 321 GER
Id: 829780
Inicie sessão para guardar este imóvel e aceder à sua lista de favoritos em qualquer dispositivo.
2 Quartos
2 WCs
Área bruta : 92 m²
Excelente apartamento T2 em construção, situado no Piso 0, com duas frentes vista mar, exposição solar sul e poente, com posicionamento único no bloco A do Condomínio Privado 'Vale das Amendoeiras' em Sesimbra. O Condomínio Privado 'Vale das Amendoeiras', é um extraordinário condomínio, que conjuga Luxo, Privacidade, Conforto e Charme, com a Beleza e Charme de uma Vila situada à beira-mar; Sesimbra. Desfrute do conforto e bem-estar que a elegância e qualidade deste apartamento lhe proporcionam, ao mesmo tempo que pode utilizar os magníficos espaços comuns, piscinas, SPA com sauna e jacuzzi, ginásio e jardins com vista para o oceano. O 'Vale das Amendoeiras' é composto por 71 apartamentos com tipologias T0, T1, T2, T3 e T4, com extraordinárias varandas ou terraços e com estacionamentos exclusivos, localizado a 5 minutos a pé da Praia do Ouro. A Maravilhosa Vila de Sesimbra, proporciona-lhe emocionantes experiências gastronómicas e paisagísticas, temperadas com todas as experiências que uma localização à beira-mar pode oferecer. Este apartamento, tem 2 quartos com roupeiros, sendo um deles suíte, para além da casa de banho da suíte, tem ainda 1 casa de banho serviço, com lavatório duplo e poliban. Os equipamentos a instalar no apartamento são da marca Bosch. Acabamentos com materiais de elevada qualidade da marca Porcelanosa. Tem uma varanda exclusiva com 29,12m2 Estacionamento dedicado e exclusivo composto por 2 box individuais com tomada eléctrica para carregamento de viaturas eléctricas. Adquira este magnífico apartamento e crie memórias e momentos inesquecíveis. Contacte-nos. Oportunidades Únicas, para Pessoas Únicas.
AMI: 12387
Ref. Externa: ACR - 306 GER
Id: 785390
Inicie sessão para guardar este imóvel e aceder à sua lista de favoritos em qualquer dispositivo.
2 Quartos
2 WCs
Área bruta : 92 m²
Excelente apartamento T2 em construção, situado no Piso 1, com duas frentes vista mar, exposição solar sul e poente, com posicionamento único no bloco A do Condomínio Privado 'Vale das Amendoeiras' em Sesimbra. O Condomínio Privado 'Vale das Amendoeiras', é um extraordinário condomínio, que conjuga Luxo, Privacidade, Conforto e Charme, com a Beleza e Charme de uma Vila situada à beira-mar; Sesimbra. Desfrute do conforto e bem-estar que a elegância e qualidade deste apartamento lhe proporcionam, ao mesmo tempo que pode utilizar os magníficos espaços comuns, piscinas, SPA com sauna e jacuzzi, ginásio e jardins com vista para o oceano. O 'Vale das Amendoeiras' é composto por 71 apartamentos com tipologias T0, T1, T2, T3 e T4, com extraordinárias varandas ou terraços e com estacionamentos exclusivos, localizado a 5 minutos a pé da Praia do Ouro. A Maravilhosa Vila de Sesimbra, proporciona-lhe emocionantes experiências gastronómicas e paisagísticas, temperadas com todas as experiências que uma localização à beira-mar pode oferecer. Este apartamento, tem 2 quartos com roupeiros, sendo um deles suíte, para além da casa de banho da suíte, tem ainda 1 casa de banho serviço, com lavatório duplo e poliban. Os equipamentos a instalar no apartamento são da marca Bosch. Acabamentos com materiais de elevada qualidade da marca Porcelanosa. Tem uma varanda exclusiva com 29,12m2 Estacionamento dedicado e exclusivo composto por 2 box individuais com tomada eléctrica para carregamento de viaturas eléctricas. Adquira este magnífico apartamento e crie memórias e momentos inesquecíveis. Contacte-nos. Oportunidades Únicas, para Pessoas Únicas.
AMI: 12387
Ref. Externa: ACR - 304 GER
Id: 712334
Inicie sessão para guardar este imóvel e aceder à sua lista de favoritos em qualquer dispositivo.
1 Quartos
1 WCs
Área bruta : 62 m²
Excelente apartamento T1 Vista Mar, em construção, situado no Piso 4º no bloco A do Condomínio Privado 'Vale das Amendoeiras' em Sesimbra. O Condomínio Privado 'Vale das Amendoeiras', localizado a 500 metros da praia, é um extraordinário condomínio, que conjuga Luxo, Privacidade, Conforto e Charme, com a Beleza e Charme de uma Vila situada à beira-mar; Sesimbra. Desfrute do conforto e bem-estar que a elegância e qualidade deste apartamento lhe proporcionam, ao mesmo tempo que pode utilizar os magníficos espaços comuns, piscinas, SPA com sauna e jacuzzi, ginásio e jardins com vista para o oceano. O 'Vale das Amendoeiras' é composto por 71 apartamentos com tipologias T0, T1, T2, T3 e T4, com extraordinárias varandas ou terraços e com estacionamentos exclusivos, localizado a 5 minutos a pé da Praia do Ouro. A Maravilhosa Vila de Sesimbra, proporciona-lhe emocionantes experiências gastronómicas e paisagísticas, temperadas com todas as experiências que uma localização à beira-mar pode oferecer. Este apartamento, tem 1 quarto com roupeiro ; Casa de banho com excelente base de duche e 2 lavatórios Os equipamentos a instalar no apartamento são da marca Bosch. Acabamentos com materiais de elevada qualidade da marca Porcelanosa. Tem uma varanda exclusiva com 11,47m2 Estacionamento dedicado e exclusivo em garagem fechada (box) com tomada eléctrica para carregamento de viaturas eléctricas. Adquira este magnífico apartamento e crie memórias e momentos inesquecíveis. Contacte-nos. Oportunidades Únicas, para Pessoas Únicas.
AMI: 12387
Ref. Externa: ACR - 309 GER
Id: 712327
Inicie sessão para guardar este imóvel e aceder à sua lista de favoritos em qualquer dispositivo.
2 Quartos
2 WCs
Área bruta : 92 m²
Excelente apartamento T2 em construção, situado no Piso 0, com duas frentes vista mar, exposição solar sul e poente, com posicionamento único no bloco A do Condomínio Privado 'Vale das Amendoeiras' em Sesimbra. O Condomínio Privado 'Vale das Amendoeiras', é um extraordinário condomínio, que conjuga Luxo, Privacidade, Conforto e Charme, com a Beleza e Charme de uma Vila situada à beira-mar; Sesimbra. Desfrute do conforto e bem-estar que a elegância e qualidade deste apartamento lhe proporcionam, ao mesmo tempo que pode utilizar os magníficos espaços comuns, piscinas, SPA com sauna e jacuzzi, ginásio e jardins com vista para o oceano. O 'Vale das Amendoeiras' é composto por 71 apartamentos com tipologias T0, T1, T2, T3 e T4, com extraordinárias varandas ou terraços e com estacionamentos exclusivos, localizado a 5 minutos a pé da Praia do Ouro. A Maravilhosa Vila de Sesimbra, proporciona-lhe emocionantes experiências gastronómicas e paisagísticas, temperadas com todas as experiências que uma localização à beira-mar pode oferecer. Este apartamento, tem 2 quartos com roupeiros, sendo um deles suíte, para além da casa de banho da suíte, tem ainda 1 casa de banho serviço, com lavatório duplo e poliban. Os equipamentos a instalar no apartamento são da marca Bosch. Acabamentos com materiais de elevada qualidade da marca Porcelanosa. Tem uma varanda exclusiva com 29,12m2 Estacionamento dedicado e exclusivo composto por 2 box individuais com tomada eléctrica para carregamento de viaturas eléctricas. Adquira este magnífico apartamento e crie memórias e momentos inesquecíveis. Contacte-nos. Oportunidades Únicas, para Pessoas Únicas.
AMI: 12387
Ref. Externa: ACR - 303 GER
Id: 712324
Inicie sessão para guardar este imóvel e aceder à sua lista de favoritos em qualquer dispositivo.
Inicie sessão para ocultar este imóvel das suas pesquisas e manter a sua lista de resultados organizada.
ACRÓPOLE DE LUZ - REAL ESTATE
Agência imobiliária - AMI: 12387
Compre créditos para poder destacar os seus imóveis! Desta forma eles são os primeiros a aparecer nas pesquisas e têm uma maior chance de serem vistos pelos utilizadores.
© Copyright 2023 | CASACERTA. All rights reserved
Guardar favoritos
Este imóvel foi guardados nos seus favoritos com sucesso.
Para poder guardar pesquisa deverá ter a sua sessão iniciada.
Caso não tenha uma conta, deverá criar uma.
A sua pesquisa foi guardada com sucesso!
Este site utiliza cookies. Ao navegar no site estará a consentir a sua utilização.
Para mais informações sobre os cookies pode consultar a
política de privacidade.