Consultor imobiliário em AM Mediadores - AMI: 16614
Comprar
Arrendar
Área útil : 85 m²
Sempre por si! Garagem box fechada com 85 m², ideal para quem procura um espaço amplo, seguro e versátil. Características principais: Capacidade para 4 viaturas ou mais Casa de banho privativa Espaço adequado para estacionamento, arrumos ou uso profissional Fácil acesso Localizada numa zona prática e de bons acessos, esta garagem é uma excelente solução para uso próprio ou apoio a atividade profissional. Não perca esta oportunidade! Agende já a sua visita. * Todas as informações carecem de confirmação junto da AM Mediadores.
AMI: 16614
Ref. Externa: AM3616
Id: 1587615
Inicie sessão para guardar este imóvel e aceder à sua lista de favoritos em qualquer dispositivo.
2 Quartos
2 WCs
Área bruta : 110 m²
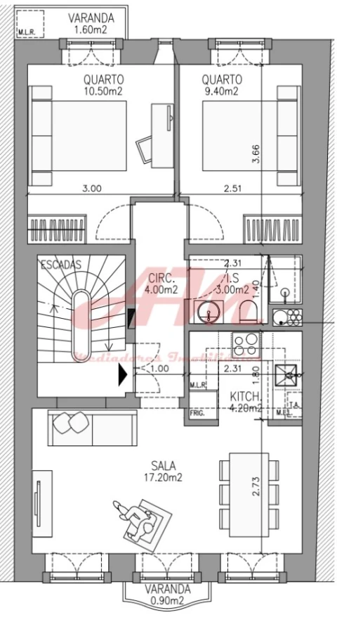
Sempre por Si! Apartamento T2 com dois lugares de estacionamento e arrecadação. - Hall com 2.95 m² - Sala com 28.40 m² com varanda - Cozinha com 12 m² totalmente equipada com varanda - Corredor com 4.20 m² - Quarto com 13 m² com roupeiro e varanda - Casa de banho com 5 m² - Suite com closet com 18.60 m², casa de banho com 4.60 m² - Caixilharia em alumínio com corte térmico e vidros duplos - Estores elétricos telecomandados - Móveis da cozinha com frente em termolaminado a alta pressão HPL, iluminação LED encastrada e bancada em mármore de Estremoz raiado cinza - Pavimentos flutuantes da sala e quartos Wood Go - Oak Light Gris, cor cinza claro da marca Wicanders - Equipamento sanitário Roca modelo Meridien e torneiras monocomando Roca modelo L20 - Porta de segurança de entrada no apartamento da marca Dierre Sparta 5C - PX51 - Aquecimento de água através de bomba de calor de alta eficiência, marca Vaillant modelo AroStor, com depósito em aço inoxidável - Equipamento de ar condicionado multi-split em todos os quartos e sala - Sistema de deteção, desenfumagem e extinção de incêndios através de sprinklers nas caves - Dois elevadores - Duas frentes - Varandas (frente + traseira) com uma área total de 18 m² Agende uma visita hoje mesmo e mergulhe na vida que merece! *Informações não vinculativas, sujeitas a confirmação junto da AM Mediadores Imobiliários. Detalhes do Imóvel
AMI: 16614
Ref. Externa: AM3614
Id: 1561367
Inicie sessão para guardar este imóvel e aceder à sua lista de favoritos em qualquer dispositivo.
499.900 €
3 Quartos
2 WCs
Área útil : 89 m²
Sempre por Si! Apartamento inserido em bairro familiar e residencial, numa zona central com fácil acesso a transportes, comércio e serviços. Nas proximidades encontra o Centro Comercial Colombo, Hospital da Luz, Estádio da Luz e Metro do Colégio Militar. Com uma excelente distribuição de espaços, o imóvel dispõe de: -Hall de entrada (5 m²); -Sala e cozinha em open-space (29 m²) com varanda aberta; -Cozinha totalmente equipada (forno, placa, exaustor, micro-ondas, máquina de lavar loiça e roupa encastradas, termo-acumulador e combinado); -Wc completo (3 m²) com louças suspensas; -Três quartos amplos, dois com roupeiro e um em suite (20 m²), um deles com varanda aberta. Acabamentos modernos: caixilharia em PVC com vidros duplos, tetos falsos com luzes LED, estores elétricos, porta blindada e pré-instalação de ar condicionado. O edifício dispõe de dois elevadores e rampa de acesso para pessoas com mobilidade reduzida. Apartamento com duas frentes, luminoso e pronto a habitar, ideal para quem procura conforto e localização privilegiada em Lisboa. Agende já a sua visita e venha conhecer o seu futuro lar! *Todas as informações sujeitas a confirmação junto da AM Mediadores.
AMI: 16614
Ref. Externa: AM3606
Id: 1556524
Inicie sessão para guardar este imóvel e aceder à sua lista de favoritos em qualquer dispositivo.
299.000 €
2 Quartos
1 WCs
Área bruta : 80 m²
Sempre por Si! Apartamento T2 com 2 frentes solares, acessibilidade exterior e excelente localização - Tapada das Mercês Este apartamento T2 destaca-se pela sua luminosidade, graças à orientação Norte/Este, e pela vista privilegiada do 9.º andar, num prédio com elevador e acesso exterior adaptado para pessoas com mobilidade reduzida. Características do Imóvel Área bruta: 80 m² Área útil: 70 m² Tipologia: T2 Ano de construção: 1995 Certificado energético: C Estado: Segunda mão, em bom estado de conservação Andar: 9.º com elevador Divisões e Acabamentos Hall com despensa Sala: 17,90 m², com pavimento cerâmico e boa luminosidade Cozinha: 8,20 m², equipada com móveis novos, placa, forno e exaustor Quarto 1: 10,90 m², com roupeiro embutido Quarto 2: 10,90 m² Pavimento flutuante nos quartos Casa de banho completa, com sanitários novos Prédio com 2 elevadores Acesso exterior adaptado a pessoas com mobilidade reduzida Transportes & Acessos Estação de Comboios das Mercês a 5 minutos a pé (Linha de Sintra) Acessos rodoviários a 5 minutos, facilitando deslocações rápidas para vários pontos da região Zona servida por vários transportes públicos Comércio, Serviços e Equipamentos Grandes superfícies comerciais próximas: Mercadona, Minipreço, Continente Restauração variada, comércio tradicional e mercado municipal Serviços essenciais nas proximidades: Finanças Cartórios / Notários Bancos Unidade de Saúde da Tapada das Mercês Escolas e outros equipamentos públicos a poucos minutos Agende já a sua visita e venha conhecer o seu futuro lar! *Todas as informações sujeitas a confirmação junto da AM Mediadores.
AMI: 16614
Ref. Externa: AM3613
Id: 1527394
Inicie sessão para guardar este imóvel e aceder à sua lista de favoritos em qualquer dispositivo.
345.000 €
3 Quartos
2 WCs
Área bruta : 102 m²
Sempre por Si! Apresentamos este excelente apartamento T3 totalmente remodelado, situado na prestigiada Quinta do Bispo, em Portimão. Com uma área total de 101,50 m², este imóvel distingue-se pela funcionalidade, conforto e ótima exposição solar, beneficiando de duas frentes luminosas. O apartamento é composto por: Sala ampla com ar condicionado e acesso direto à varanda. Cozinha totalmente equipada com placa vitrocerâmica, forno, exaustor e bancada em granito, contando ainda com despensa. Dois WC's: WC principal com lavatório moderno e base de duche com resguardo. WC social com lavatório e área adicional de arrumos. Três quartos, todos com roupeiros embutidos e acesso à varanda; um deles possui marquise. Duas varandas que servem praticamente todas as divisões, garantindo luminosidade e circulação de ar. Características adicionais: Janelas em PVC com oscilo-batentes Estores elétricos Pavimento flutuante na sala, quartos e hall Edifício em excelente estado de conservação, com dois elevadores Este é o apartamento ideal para quem procura viver numa zona tranquila, com bons acessos e proximidade a serviços, comércio e escolas. Agende a sua Visita Nota: Qualquer informação apresentada carece de confirmação.
AMI: 16614
Ref. Externa: AM3612
Id: 1527392
Inicie sessão para guardar este imóvel e aceder à sua lista de favoritos em qualquer dispositivo.
479.900 €
3 Quartos
2 WCs
Área útil : 89 m²
Sempre por si!... Descubra este magnífico T3 situado num bairro residencial e familiar, com uma envolvente em constante valorização! Com novos espaços de comércio, design, restauração e serviços, este é o local ideal para viver com tranquilidade sem abdicar da comodidade. Características do Imóvel: -Hall de entrada com 5m² -Cozinha e Sala em open-space com 30m², * totalmente equipada: forno, placa, exaustor, micro-ondas, máquina de lavar loiça e roupa (ambas encastradas), termo-acumulador e combinado encastrado. *Móveis brancos e ladrilho decorativo -3 Quartos com roupeiros integrados -Quarto 1: 12m² -Quarto 2: 16m² -Quarto 3 (Suíte): 20m² -WC completo com loiças suspensas Acabamentos e Extras: -Caixilharia lacada a branco com vidros duplos e oscilo-batentes -Estores elétricos -Tetos falsos com luzes LED embutidas em todas as divisões -Pré-instalação de ar condicionado -Porta blindada -Duas frentes de exposição solar -Janelas em PVC Nota: O prédio irá beneficiar de obras de remodelação após a venda da casa da porteira. Agende já a sua visita e venha conhecer o seu futuro lar! *Todas as informações sujeitas a confirmação junto da AM Mediadores.
AMI: 16614
Ref. Externa: AM3592
Id: 1507475
Inicie sessão para guardar este imóvel e aceder à sua lista de favoritos em qualquer dispositivo.
395.000 €
2 Quartos
1 WCs
Área útil : 56 m²
Sempre por Si! Excelente opção para quem procura uma casa para recuperar a seu gosto, localizado a dois passos do Centro Comercial Colombo! Apartamento num rés-do-chão em prédio bem cuidado, rodeado de jardim e árvores para passear. Em de recuperação total. A localização é excelente. No centro da zona urbana, do comércio local, escolas, farmácia. piscinas. A escassos minutos a pé do C. C. Colombo, do Hospital da Luz e Colégio Militar. Entre em contacto connosco para esclarecimento de dúvidas e agendar a sua visita. Venha conhecer! Aguardamos por si! Categoria Energética: c
AMI: 16614
Ref. Externa: AM3611
Id: 1482496
Inicie sessão para guardar este imóvel e aceder à sua lista de favoritos em qualquer dispositivo.
529.900 €
3 Quartos
2 WCs
Área bruta : 10 m²
Sempre por Si! ***FOTOS MODELOS*** Este apartamento T3 situa-se numa zona residencial tranquila e familiar, com acesso a novos espaços comerciais e de serviços, mantendo a proximidade do comércio tradicional, lojas de design, cafés e restaurantes. A localização é um dos grandes destaques: central, com excelentes acessos rodoviários e transportes públicos à porta, ideal para quem procura mobilidade e qualidade de vida. Está perto de: -Acessos às autoestradas -Estação de comboios -Centro de saúde -Pastelaria Califa -CC Fonte Nova e CC Colombo -Hospital da Luz Características do imóvel: Cozinha + sala em open space com 30m² -Acesso direto a uma varanda aberta com 10m² -Cozinha totalmente equipada com: Móveis em branco e parede revestida a ladrilho decorativo, forno, placa, exaustor, micro-ondas,Máquina de lavar louça e roupa (encastradas),combinado e termo-acumulador (encastrados) -3 Quartos amplos: -Dois com 15m² e roupeiro embutido -Um em suite com 20m² e roupeiro -Casa de banho completa com loiças suspensas -Caixilharia em PVC lacada a branco, com vidros duplos e janelas oscilo-batentes -Teto falso com iluminação LED embutida em todas as divisões -Estores elétricos -Pré-instalação de ar condicionado -Porta blindada -2 elevadores Duas frentes, proporcionando ótima exposição solar Este é o imóvel ideal para quem valoriza conforto, funcionalidade e localização privilegiada, num bairro com forte componente residencial e boas acessibilidades. Pronto a habitar! *Todas as informações são não vinculativas e carecem de confirmação junto da AM Mediadores. ** As fotos apresentadas fazem parte de uma maquete virtual
AMI: 16614
Ref. Externa: AM3590
Id: 1463659
Inicie sessão para guardar este imóvel e aceder à sua lista de favoritos em qualquer dispositivo.
599.900 €
3 Quartos
2 WCs
Área bruta : 4 m²
Sempre por Si!! ****FOTOS MODELOS**** Situado numa zona familiar e residencial de Benfica, este apartamento oferece o equilíbrio perfeito entre conforto, modernidade e localização privilegiada. O bairro conta com novos pontos de comércio e serviços, lojas tradicionais, cafés, restaurantes e equipamentos sociais, proporcionando uma excelente qualidade de vida. Com fáceis acessos às principais vias e transportes públicos, encontra-se a poucos minutos da Avenida principal de Benfica, Centro Comercial Fonte Nova, Centro Comercial Colombo, Hospital da Luz e Estádio da Luz. Características Principais: - Cozinha + Sala (43 m²) em conceito aberto, com acesso a varanda aberta - Cozinha totalmente equipada com: forno, placa, exaustor, micro-ondas, máquina de lavar loiça e roupa encastradas, termoacumulador e combinado encastrado - Móveis em branco e parede revestida a ladrilho - 3 Quartos amplos, todos com roupeiro embutido: - Quarto 1: 15 m² + varanda aberta - Quarto 2: 15 m² - Suite: 20 m² + WC privativo - WC social completo (3 m²) com loiças suspensas Detalhes Técnicos e Acabamentos: Caixilharia lacada a branco com vidros duplos e oscilo-batentes em todas as divisões Teto falso com iluminação LED embutida em WCs, cozinha, sala, hall e quartos Pré-instalação de ar condicionado Duas frentes (excelente exposição solar) Porta blindada de segurança Estores elétricos Janelas em PVC Prédio com 2 elevadores Localização Premium | Benfica - Lisboa Perfeito para famílias que valorizam a proximidade de escolas, comércio, serviços e espaços verdes, mantendo a tranquilidade de uma zona residencial consolidada. Agende já a sua visita e venha conhecer o seu futuro lar! *Todas as informações sujeitas a confirmação junto da AM Mediadores.
AMI: 16614
Ref. Externa: AM3607
Id: 1463660
Inicie sessão para guardar este imóvel e aceder à sua lista de favoritos em qualquer dispositivo.
295.000 €
1 Quartos
Área útil : 64 m²
Sempre por Si! ***Fotos Modelos*** Este apartamento T1+2, atualmente em fase de remodelação total, foi concebido a pensar na funcionalidade e no conforto do dia a dia. A intervenção inclui a substituição integral da canalização e da rede elétrica, garantindo qualidade e eficiência em todos os detalhes. A distribuição inteligente dos espaços privilegia a luminosidade e a convivência, destacando-se a ampla sala e cozinha em conceito open space, ideal para reunir família e amigos num ambiente moderno e acolhedor. A cozinha, totalmente equipada com eletrodomésticos novos, combina praticidade e elegância. O apartamento dispõe de três quartos, versáteis e confortáveis, prontos para se adaptarem às mais diversas necessidades da sua família. O grande destaque desta propriedade é o logradouro privado um espaço exterior raro e valioso, perfeito para desfrutar de momentos de lazer, fazer refeições ao ar livre, cultivar um jardim ou simplesmente relaxar. Localizado na Venteira, uma zona residencial consolidada da Amadora, o imóvel beneficia de uma localização estratégica: numa praceta calma, mas a poucos minutos de supermercados, farmácia, escolas, restaurantes e do Hospital da Luz. Conta ainda com excelentes acessos a transportes públicos e fáceis ligações a Lisboa e arredores. A proximidade de parques, zonas verdes e espaços desportivos acrescenta ainda mais qualidade de vida. Em suma, este apartamento é a oportunidade perfeita para quem procura um imóvel moderno, com espaços generosos, um logradouro privado e uma localização que combina tranquilidade e conveniência. Agende já a sua visita e venha conhecer o seu futuro lar! *Todas as informações sujeitas a confirmação junto da AM Mediadores.
AMI: 16614
Ref. Externa: AM3603
Id: 1454712
Inicie sessão para guardar este imóvel e aceder à sua lista de favoritos em qualquer dispositivo.
3 Quartos
2 WCs
Área útil : 84 m²
Sempre por Si! *** Fotos Modelo *** Em fase de final de remodelação Apresentamos este agradável apartamento T3, situado numa zona tranquila e central da Amadora, ideal para famílias que valorizam conforto e fácil acesso a Lisboa. O imóvel destaca-se pela excelente luminosidade natural, divisões amplas e uma disposição funcional que maximiza cada espaço, proporcionando um ambiente acolhedor e harmonioso. Composição: Sala ampla e confortável, perfeita para momentos de convívio em família; Cozinha funcional, com boa capacidade de arrumação e espaço para refeições; Três quartos espaçosos, todos com janelas e ótima exposição solar; Casa de banho completa com banheira; Varanda com vista aberta; Arrecadação privada e lugar de estacionamento. Localização privilegiada: Próximo de transportes públicos (comboio e autocarros); A poucos minutos de escolas, supermercados, comércio e serviços; Acesso rápido à IC19 e à Segunda Circular, garantindo ligação fácil a Lisboa e arredores. Uma excelente oportunidade para quem procura um apartamento com boas áreas, muita luz natural e localização estratégica. Agende já a sua visita e venha descobrir o seu próximo lar! Nota: Todas as informações carecem de confirmação junto da imobiliária.
AMI: 16614
Ref. Externa: AM3605
Id: 1454709
Inicie sessão para guardar este imóvel e aceder à sua lista de favoritos em qualquer dispositivo.
3 Quartos
1 WCs
Área útil : 83 m²
Sempre por Si! ***Fotos Modelos*** Apresentamos este acolhedor apartamento T3, situado numa zona calma e de fácil acesso, próximo de comércio, serviços e transportes públicos, ideal para quem procura conforto e conveniência no dia a dia. O imóvel é composto por: Sala e cozinha com acesso a uma varanda fechada em marquise, perfeita para momentos de lazer ou para criar uma zona de lavandaria; Três quartos amplos e luminosos, com boa exposição solar; Uma casa de banho completa; Arrecadação no rés-do-chão, oferecendo espaço extra de arrumação. O edifício não dispõe de elevador, mas beneficia de facilidade de estacionamento nas imediações. Com classificação energética D, este apartamento é uma excelente oportunidade tanto para habitação própria como para investimento. Marque já a sua visita e não perca esta oportunidade.
AMI: 16614
Ref. Externa: AM3602
Id: 1454707
Inicie sessão para guardar este imóvel e aceder à sua lista de favoritos em qualquer dispositivo.
3 Quartos
2 WCs
Área útil : 80 m²
Sempre por Si! ***FOTOS MODELOS*** Apartamento t3 à venda em Centro de Queluz, com terraço, remodelado. Fantástico apartamento T3, totalmente remodelado com acabamentos modernos e de qualidade, situado em zona central de Queluz, com fácil acesso a comércio, transportes e serviços. O imóvel encontra-se no RC de um prédio sem elevador, ideal para quem procura tranquilidade e uma excelente relação qualidade/preço. - Sala ampla e luminosa - Cozinha equipada com placa, forno e exaustor - 3 quartos espaçosos, incluindo uma suíte com casa de banho privativa -2 casas de banho modernas (ambas com base de duche) *Pavimento flutuante novo e caixilharia com vidros duplos *Canalizações e eletricidade totalmente renovadas *Excelente exposição solar *Categoria Energética: D A poucos minutos do comboio. Proximidade a escolas, supermercados, farmácias e ótimos acessos Obs: as fotos são de outros imóveis do mesmo proprietário, apenas para dar uma ideia dos acabamentos utilizados. Nota: Todas as informações estão sujeitas a confirmação junto da AM Mediadores.
AMI: 16614
Ref. Externa: AM3604
Id: 1454706
Inicie sessão para guardar este imóvel e aceder à sua lista de favoritos em qualquer dispositivo.
2 Quartos
1 WCs
Área bruta : 7 m²
Sempre por si!... Andar de Moradia com Varanda em Ferreira do Alentejo Localizado no coração de Ferreira do Alentejo, este andar de moradia oferece a combinação perfeita entre tranquilidade e conveniência. Situado numa zona central, com excelentes acessos a supermercados, correios, clínicas, bancos e outros serviços essenciais. Divisões: 2 quartos 1 sala acolhedora 1 cozinha funcional 1 casa de banho Varanda com boa exposição solar Ideal para quem procura viver no centro da vila com todas as comodidades por perto. Oportunidade imperdível! Agende já a sua visita e venha conhecer o seu futuro lar! *Todas as informações sujeitas a confirmação junto da AM Mediadores
AMI: 16614
Ref. Externa: AM3601
Id: 1433400
Inicie sessão para guardar este imóvel e aceder à sua lista de favoritos em qualquer dispositivo.
Área útil : 10000 m²
Sempre por Si! Terreno Rústico com 1ha - Cercal e Lamas, Cadaval Terreno rústico com uma área total de 10.000 m², localizado no concelho do Cadaval, freguesia de Cercal e Lamas, inserido numa zona de forte componente natural e agrícola, com bom acesso rodoviário e excelente exposição solar. A propriedade apresenta uma ocupação florestal com eucaliptos e sobreiros em crescimento, com potencial para exploração de recursos naturais ou futura valorização, mediante análise de viabilidade junto da Câmara Municipal do Cadaval. Situado entre duas localidades de dimensão considerável, o terreno beneficia de uma posição estratégica, com acesso direto por estrada e proximidade a infraestruturas locais. A zona é tranquila, ideal para quem procura um espaço para projeto agrícola, florestal ou mesmo de lazer em ambiente rural. Poderá ainda ser considerada a instalação de soluções alternativas como casas modulares, projetos de turismo rural ou permacultura, mediante enquadramento legal. Características principais: Área total: 10.000 m² (1 hectare) Povoado com eucaliptos e sobreiros Acesso direto por estrada Excelente exposição solar Zona de campo, com tranquilidade e privacidade Potencial de valorização futura Preço: 50.000€ Para mais informações ou agendamento de visita, entre em contacto connosco.
AMI: 16614
Ref. Externa: AM3582
Id: 1433398
Inicie sessão para guardar este imóvel e aceder à sua lista de favoritos em qualquer dispositivo.
289.000 €
Área útil : 63 m²
Sempre por Si! ***FOTOS MODELOS*** T1+2 com Logradouro Privativo, espaço, luz e conforto na Amadora Este imóvel é a escolha ideal para quem procura o conforto de uma casa com espaço exterior e a conveniência de viver numa zona central da Amadora. Totalmente remodelado. Apesar de estar ao nível de cave, surpreende pela ótima luminosidade natural e sensação de espaço, bem pensado e acabamentos que valorizam cada divisão. Características principais: Três quartos funcionais, ideais para famílias. Sala ampla com ligação fluida à zona de refeições e à cozinha Cozinha moderna, totalmente equipada com eletrodomésticos embutidos Casa de banho com acabamentos contemporâneos Zona de lavandaria e marquise com múltiplas possibilidades de uso Logradouro privativo e resguardado, perfeito para convívios, crianças, animais de estimação ou simplesmente para desfrutar de tranquilidade em casa. Obra integral recente: canalizações, eletricidade, caixilharia, pavimentos e isolamento Localizado numa rua calma da freguesia de Mina de Água. O imóvel oferece acesso fácil à IC19, transportes públicos, escolas, comércio e serviços. Um bairro consolidado e valorizado, ideal tanto para viver como para investir.
AMI: 16614
Ref. Externa: AM3600
Id: 1433399
Inicie sessão para guardar este imóvel e aceder à sua lista de favoritos em qualquer dispositivo.
389.000 €
2 Quartos
2 WCs
Área útil : 110 m²
Sempre por Si! Apresentamos este excelente apartamento T2, inserido em prédio recente, que combina modernidade, conforto e uma localização prática. O imóvel é composto por: -Corredor -Cozinha totalmente equipada integrada em open-space com a sala, proporcionando amplitude e luminosidade com varanda; -Casa de banho completa de apoio; -Quarto com roupeiro e varanda -Suíte com dois roupeiros , casa de banho privativa; -2 varandas, ideais para momentos de lazer; Ar condicionado para maior conforto em todas as estações; Roupeiros embutidos, que garantem arrumação prática e organizada; Inserido em prédio com 2 elevadores para maior comodidade. Estacionamento para dois carros e arrecadação. Com uma área generosa de 110 m², este apartamento destaca-se pela qualidade dos acabamentos, pelo espaço bem distribuído e pela luminosidade natural. Perfeito para quem procura conforto e modernidade, pronto a habitar. Nota: Toda a informação apresentada carece de confirmação junto dos interessados.
AMI: 16614
Ref. Externa: AM3597
Id: 1348354
Inicie sessão para guardar este imóvel e aceder à sua lista de favoritos em qualquer dispositivo.
Área útil : 73 m²
Sempre por Si! ***Fotos Modelos**** Descubra este luminoso e moderno T3, localizado numa das zonas mais centrais e autênticas de Lisboa. Situado num bairro familiar e residencial, com uma crescente oferta de comércio tradicional, lojas de design, cafés e restaurantes, este imóvel combina o conforto da vida moderna com o charme da cidade histórica. Características do Imóvel: - Cozinha equipada (10m²) com design moderno: -Móveis brancos e ladrilho decorativo,totalmente equipada: forno, placa, exaustor, micro-ondas, máquina de lavar loiça e roupa (encastradas), combinado e termo-acumulador. - Sala ampla (20m²) com excelente luminosidade - 3 Quartos confortáveis: -Quarto 1: 12m² com roupeiro embutido -Quarto 2 (Suíte): 18m² com closet -Quarto 3: 13m² com roupeiro embutido - Casa de banho completa (4m²) com loiças suspensas e acabamentos modernos Detalhes Técnicos e Acabamentos: -Caixilharia PVC lacada a branco, com vidros duplos e sistema oscilo-batente -Estores elétricos em todas as assoalhadas -Teto falso com iluminação LED embutida em toda a casa -Pré-instalação de ar condicionado -Porta blindada de alta segurança -Duas frentes excelente exposição solar -Prédio sem elevador (1º andar) -Escadas interiores do prédio serão renovadas e pintadas Localização & Envolvente: -A dois passos do Mercado de Sapadores e de zonas turísticas -Ótimos acessos a transportes públicos, principais vias e serviços -Vários equipamentos sociais e escolares nas proximidades Uma oportunidade única de viver com qualidade, espaço exterior e centralidade numa das zonas mais procuradas de Lisboa. Agende já a sua visita! venha conhecer o seu futuro lar! *Todas as informações sujeitas a confirmação junto da AM Mediadore
AMI: 16614
Ref. Externa: AM3593
Id: 1345917
Inicie sessão para guardar este imóvel e aceder à sua lista de favoritos em qualquer dispositivo.
170.000 €
Área bruta : 150 m²
Sempre por Si! Esta é a oportunidade perfeita localizada na principal Avenida da Urbanização Alto da Mira, para quem deseja iniciar ou expandir o seu negócio num local de excelência adquirindo uma HAMBURGUERIA / CAFÉ / RESTAURANTE em pleno funcionamento, com LICENÇA DE JOGOS DA SANTA CASA. Aproveite esta oportunidade única e torne-se o próximo proprietário de um estabelecimento de sucesso. Têm ótimos acessos e facilidade de estacionamento nas proximidades, este estabelecimento é uma verdadeira jóia no mundo da restauração. O valor do imóvel PARA VENDA é de 170.000,00€ e é VENDIDO juntamente com O TRESPASSE no de 80.000,00€ Detalhes do TRESPASSE: - Cozinha completamente equipada - Balcão apoio aos jogos da Santa Casa - Balcão de atendimento - Balcão frigorífico - Sala com mesas de refeição - Três casas de banho - Um vestiário - Uma despensa - Terraço - Esplanada - Box para dois carros Uma História de Sucesso de Mais de 20 Anos: Este estabelecimento tem uma história rica, servindo a comunidade há mais de duas décadas. É um local de referência na zona e conquistou a confiança dos seus clientes ao longo dos anos. Com um conceito contemporâneo, este espaço pode ser facilmente ajustado ao gosto e visão do futuro proprietário. Um Negócio Completo: Este imóvel inclui tudo o que é necessário para continuar a operação com sucesso. O valor do imóvel em si PARA VENDA DA LOJA é de 170.000,00€ e é VENDIDO juntamente com O TRESPASSE PELO VALOR DE o 80.000,00€. TAMBÉM PODE SER ALUGUER DO IMÓVEL COM O TRESPASSE NO VALOR DE 1,300.00€ POR MÊS. Isso engloba todo o recheio, desde balcões a mobiliário, eletrodomésticos, A LICENÇA DE JOGOS DA SANTA CASA. É uma oportunidade única para começar a gerir o seu negócio imediatamente, sem a necessidade de investimentos significativos. Instalações Completas e Licenças em Ordem: Este estabelecimento possui uma cozinha totalmente equipada com extração de fumos e todas as licenças necessárias. Com uma capacidade de 32 lugares no interior e uma esplanada que acomoda até 20 pessoas, este espaço oferece versatilidade e a capacidade de atender uma clientela diversificada. Agende uma visita hoje mesmo e comece a sua jornada empresarial no mundo da restauração. Características
AMI: 16614
Ref. Externa: AM3512
Id: 1330811
Inicie sessão para guardar este imóvel e aceder à sua lista de favoritos em qualquer dispositivo.
3 Quartos
3 WCs
Área útil : 347 m²
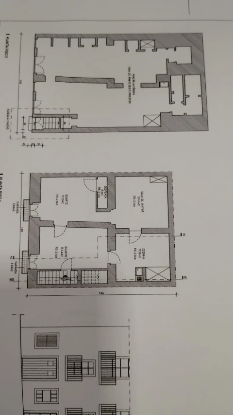
Sempre por Si! O IMÓVEL NÃO POSSUI LICENÇA DE UTILIZAÇÃO (LU) - Escritura a realizar nos termos do Art. 19º do Decreto-Lei nº 10/2024 (SIMPLEX); Descubra esta magnífica quinta localizada na charmosa freguesia da Terrugem, em Sintra, inserida num terreno com 1.651 m² e com uma moradia V3 de construção moderna, piscina aquecida, espaços exteriores amplos e funcionalidades de conforto e lazer pensadas ao detalhe. A venda inclui ainda um lote de terreno rústico com 840 m², contíguo à propriedade, ideal para expansão ou aproveitamento agrícola. Rés-do-chão: Sala e cozinha em conceito open-space com 48,70 m², equipada; Lavandaria equipada com 3,92 m²; Sala de estar com recuperador de calor (17,75 m²); Suite com 18,70 m², closet e WC completo (base de duche + aquecedor de toalhas); 2 Quartos com roupeiros embutidos (9,03 m² e 9,15 m²); WC completo com 10,74 m² (banheira de hidra-massagem + cabine de hidro-massagem + lavatório duplo); 1.º Andar: Sala ampla com 57,20 m², closet e terraço fechado em marquise (20,02 m²); WC de apoio com 6,50 m² (banheira e cabine de hidromassagem, aquecedor de toalhas). Exterior: Piscina de transbordo com jacuzzi e água aquecida; Jardim com rega automática programada; Biblioteca com WC no telheiro (21,70 m²); Sala de arrumos (36,80 m²); Garagem com capacidade para 2 carros + sala (69,40 m²); Arrumos/Canil (7,19 m²); Cozinha de apoio à piscina (19,55 m²); WC com Sauna (12,88 m²); Casa das máquinas (4 m²); Furo de água; Portões automáticos e calçada portuguesa nas zonas de circulação. Equipamentos e Conforto: Aquecimento elétrico individual; Estores elétricos com controlo por telefone; Sistema de vídeo-vigilância; Zona tranquila, ideal para habitação permanente, turismo rural ou investimento. Não perca esta oportunidade de adquirir um perfeito imóvel. Agende já a sua visita! Nota: Todas as informações estão sujeitas a confirmação junto da AM Mediadores Nota Importante: O IMÓVEL NÃO POSSUI LICENÇA DE UTILIZAÇÃO (LU) - Escritura a realizar nos termos do Art. 19º do Decreto-Lei nº 10/2024 (SIMPLEX);
AMI: 16614
Ref. Externa: AM3579
Id: 1248368
Inicie sessão para guardar este imóvel e aceder à sua lista de favoritos em qualquer dispositivo.
Inicie sessão para ocultar este imóvel das suas pesquisas e manter a sua lista de resultados organizada.
Alto da Mira Mediadores
Consultor imobiliário em AM Mediadores - AMI: 16614
Compre créditos para poder destacar os seus imóveis! Desta forma eles são os primeiros a aparecer nas pesquisas e têm uma maior chance de serem vistos pelos utilizadores.
Guardar favoritos
Este imóvel foi guardados nos seus favoritos com sucesso.
Para poder guardar pesquisa deverá ter a sua sessão iniciada.
Caso não tenha uma conta, deverá criar uma.
A sua pesquisa foi guardada com sucesso!
© Copyright 2023 | CASACERTA. All rights reserved
Este site utiliza cookies. Ao navegar no site estará a consentir a sua utilização.
Para mais informações sobre os cookies pode consultar a
política de privacidade.