Consultor imobiliário em ANI-Home Negócios Imobiliários - AMI: 21984
Comprar
Arrendar
3 Quartos
3 WCs
Área bruta : 137 m²
Apartamento T3 novo com 137 m², localizado no novo Edifício Hintze Ribeiro, na zona histórica de Leça da Palmeira, a cerca de 400 metros do mar. O imóvel distingue-se pela qualidade de construção, conforto e excelente luminosidade. Dispõe de cozinha totalmente equipada com eletrodomésticos Siemens, três casas de banho, uma suíte e uma varanda virada a sul. Inclui ainda lugar de garagem para dois carros. Situado numa zona central, com comércio, serviços e restauração nas proximidades, a curta distância da marginal e das praias, e com bons acessos às principais vias, oferecendo facilidade de deslocação para qualquer ponto da cidade ou região.
AMI: 21984
Ref. Externa: 003022026RM
Id: 1627077
Inicie sessão para guardar este imóvel e aceder à sua lista de favoritos em qualquer dispositivo.
2 Quartos
2 WCs
Área bruta : 120 m²
Apartamento T2+1 recentemente renovado, localizado na zona histórica de Leça da Palmeira, a cerca de quatrocentos metros da praia. O imóvel é composto por sala e cozinha em open space, com cozinha totalmente equipada e ar condicionado. Dispõe de dois quartos, sendo um deles suíte, mais um espaço adicional com possibilidade de utilização como escritório ou quarto interior, e conta ainda com dois wc´s completos. O apartamento apresenta uma boa organização de áreas e acabamentos atuais. Encontra-se próximo de comércio, serviços, restauração e transportes, sendo uma opção adequada tanto para habitação própria como para investimento.
AMI: 21984
Ref. Externa: 001022020RM
Id: 1606662
Inicie sessão para guardar este imóvel e aceder à sua lista de favoritos em qualquer dispositivo.
1.550.000 €
5 WCs
Área bruta : 571 m²
Escritório com 570 m², localizado na Zona Industrial do Porto, uma das áreas empresariais mais dinâmicas da cidade. Totalmente remodelado, este espaço oferece todas as condições para instalar a sua empresa com conforto, modernidade e eficiência. A renovação incluiu a substituição completa da parte elétrica, canalizações e caixilharias, garantindo segurança, funcionalidade e eficiência energética. O imóvel conta ainda com sistema de ar condicionado em todas as áreas, proporcionando um ambiente de trabalho confortável durante todo o ano. Com cinco casas de banho, o escritório adapta-se perfeitamente a equipas numerosas ou a uma divisão por departamentos. A disposição do espaço é ampla e versátil, com boa entrada de luz natural e excelente exposição solar, ideal para diferentes configurações de trabalho. A localização é outro ponto forte: inserido na Zona Industrial do Porto, oferece bons acessos às principais vias rodoviárias, transportes públicos e serviços de apoio, tornando esta uma opção estratégica para empresas que valorizam mobilidade e visibilidade. Se procura um espaço pronto a utilizar, com ótimas condições e inserido numa zona de referência, esta é a oportunidade ideal.
AMI: 21984
Ref. Externa: 002072025RM
Id: 1293620
Inicie sessão para guardar este imóvel e aceder à sua lista de favoritos em qualquer dispositivo.
2 WCs
Área bruta : 115 m²
Apartamento T1 Duplex I Quinta De Cravel I Vila Nova de Gaia Viva com Conforto no Meio da Natureza Imagine viver num moderno T1 duplex, totalmente remodelado e mobilado, com vistas panorâmicas sobre Vila Nova de Gaia e o Porto, inserido numa reserva natural privada. Sim, é possível e está ao seu alcance. Com 115 m² de área bruta e 82 m² úteis, este imóvel oferece um ambiente acolhedor, luminoso e perfeitamente distribuído. A sala ampla convida ao convívio e liga-se a uma agradável varanda com vista deslumbrante. A cozinha kitchenette, totalmente equipada, está pronta para o seu dia a dia. A zona superior reserva uma suíte espaçosa, garantindo toda a privacidade, complementada por um WC de serviço no piso inferior. A excelente orientação solar (Nascente) assegura luz natural durante todo o dia. O conforto é reforçado com ar condicionado em todas as divisões. Situado num condomínio fechado de prestígio, o apartamento inclui lugar de garagem, arrecadação e segurança. Os moradores têm ainda acesso exclusivo ao Cravel Park — mais de 6 hectares de trilhos, natureza, e miradouros com paisagens inesquecíveis. A localização é um dos grandes trunfos: a poucos minutos do centro de Gaia, com acesso rápido à estação de metro de Santo Ovídio, este é um imóvel que combina tranquilidade, natureza e proximidade urbana.
AMI: 21984
Ref. Externa: 004072025AS
Id: 1288784
Inicie sessão para guardar este imóvel e aceder à sua lista de favoritos em qualquer dispositivo.
3 Quartos
2 WCs
Área bruta : 148 m²
Descubra a oportunidade de viver a poucos passos do mar neste sofisticado apartamento T3, localizado numa das áreas mais encantadoras de Leça da Palmeira. Com uma generosa área útil, este imóvel oferece uma combinação perfeita de conforto e estilo de vida, ideal para quem busca um lar num ambiente vibrante e cheio de vida. Principais Características: - Localização Privilegiada: Situado nas proximidades do mar, o apartamento está inserido numa zona repleta de restaurantes, cafés, bares e diversos serviços, proporcionando conveniência e um estilo de vida dinâmico. - Espaços Bem Distribuídos: O layout moderno e funcional inclui uma sala e cozinha em openspace, criando um ambiente amplo e acolhedor, perfeito para entreter familiares e amigos. - Conforto e Privacidade: Com dois quartos confortáveis que compartilham uma casa de banho completa, além de uma suíte espaçosa com WC privativo, este apartamento atende a todas as necessidades de conforto e privacidade. - Acabamentos de Alta Qualidade: Os materiais e acabamentos utilizados são de extrema qualidade, garantindo durabilidade e um toque de sofisticação em todos os ambientes. - Varanda Generosa: Uma imponente varanda de 20 m² proporciona um espaço maravilhoso para relaxar, desfrutar de momentos ao ar livre ou receber convidados, aproveitando ao máximo o clima ameno da região. - Conveniência Adicional: O apartamento conta ainda com um lugar de garagem e espaço de arrumos, oferecendo total comodidade no dia a dia. Este apartamento T3 em Leça da Palmeira representa uma excelente oportunidade para quem procura um lar que combina conforto, qualidade e uma localização invejável. Não perca a chance de viver em um espaço que reflete o melhor da vida costeira! Entre em contato para mais informações e para agendar uma visita. A sua nova casa à beira-mar espera por si!
AMI: 21984
Ref. Externa: 003072025AS
Id: 1287298
Inicie sessão para guardar este imóvel e aceder à sua lista de favoritos em qualquer dispositivo.
3 Quartos
3 WCs
Área bruta : 181 m²
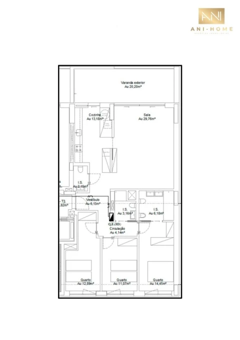
Apartamento T3 Novo com 181 m² e Varanda de 20 m² – Ocean Terrace, Leça da Palmeira Apresentamos este magnífico apartamento T3 com 181 m² de área bruta, inserido no prestigiado condomínio fechado Ocean Terrace, em Leça da Palmeira. O imóvel é novo, nunca foi habitado, e destaca-se pelas áreas generosas, acabamentos de qualidade e localização privilegiada junto ao mar. Com exposição solar nascente/poente, este apartamento oferece excelente luz natural e uma varanda de 20 m², perfeita para momentos de lazer, refeições ao ar livre ou simplesmente para relaxar. Distribuição e características: Sala ampla e luminosa com acesso direto à varanda Cozinha moderna, totalmente equipada 3 quartos, incluindo uma suíte com roupeiros embutidos 3 casas de banho: duas completas e uma de serviço Ar condicionado em todas as divisões Caixilharia com isolamento térmico e acústico Complementos: Dois lugares de estacionamento em garagem comum Arrumos privados O Ocean Terrace é um condomínio de referência na região, conhecido pelo seu ambiente seguro, moderno e tranquilo. Situado a poucos minutos das praias de Leça da Palmeira, com bons acessos à A28, e perto de escolas, supermercados, comércio e restaurantes. Este apartamento é ideal para quem procura um imóvel novo, espaçoso e com acabamentos premium, numa das zonas mais valorizadas da área metropolitana do Porto.
AMI: 21984
Ref. Externa: AS001072025
Id: 1272083
Inicie sessão para guardar este imóvel e aceder à sua lista de favoritos em qualquer dispositivo.
2 WCs
Área bruta : 86 m²
Excelente oportunidade de adquirir um restaurante em pleno funcionamento, situado numa das zonas mais procuradas de Leça da Palmeira, a poucos metros da praia. A localização é privilegiada, com ampla oferta de estacionamento e elevado tráfego pedonal e automóvel. Em atividade contínua desde 2017 sob a mesma gerência, este restaurante apresenta um conceito diferenciado e altamente rentável, com boas margens de lucro. O negócio é entregue totalmente equipado e mobilado, pronto a operar, incluindo ainda a carteira de clientes fidelizados, bem como a possibilidade de transferência dos contactos, redes sociais e canais de comunicação digital, todos com excelentes avaliações. Com capacidade para 40 lugares sentados, o espaço é acolhedor, funcional e ideal para quem procura um projeto sólido e com retorno imediato do investimento. Uma excelente oportunidade para empreendedores que pretendam iniciar ou expandir a sua presença no setor da restauração.
AMI: 21984
Ref. Externa: RM 003062025
Id: 1257064
Inicie sessão para guardar este imóvel e aceder à sua lista de favoritos em qualquer dispositivo.
4 Quartos
4 WCs
Área bruta : 468 m²
Moradia de 3 frentes, localizada numa das zonas mais prestigiadas de Leça da Palmeira, a apenas 300 metros da praia. Distribuída por 4 pisos – cave, rés do chão, 1.º andar e sótão – esta moradia oferece áreas amplas e uma excelente organização dos espaços. Composta por 4 quartos, dois dos quais suite, e um escritório no rés do chão, que pode ser utilizado como sala de trabalho, quarto de apoio ou espaço polivalente. A moradia conta ainda com múltiplas divisões com luz natural, que proporcionam ambientes confortáveis e versáteis. Está inserida numa zona residencial tranquila, com bons acessos, próxima de comércio local, escolas, serviços, zonas verdes e da icónica marginal de Leça da Palmeira. A localização premium, aliada ao potencial da casa, fazem desta moradia uma excelente oportunidade para quem procura espaço, privacidade e proximidade ao mar. Contacte-nos para agendar a sua visita.
AMI: 21984
Ref. Externa: RM02062025
Id: 1243068
Inicie sessão para guardar este imóvel e aceder à sua lista de favoritos em qualquer dispositivo.
220.000 €
Área de terreno : 4436 m²
Apresentamos este magnífico terreno com 4436 m², localizado numa das zonas mais emblemáticas do Gerês – Rio Caldo. Com viabilidade para construção de uma moradia térrea de 4 frentes, este espaço oferece o cenário perfeito para quem procura tranquilidade, natureza e qualidade de vida. Desfrute de vistas desafogadas sobre o rio, a serra e a envolvente natural, num ambiente único onde a beleza do Gerês se revela em todo o seu esplendor. A poucos passos da Marina do Rio Caldo, onde poderá usufruir de passeios de barco, mota de água e várias atividades de desportos náuticos. Nas imediações encontra ainda restaurantes típicos, esplanadas acolhedoras e praias fluviais. A sua localização é verdadeiramente estratégica, encontra-se a cerca de 20 minutos do centro de Vieira do Minho, 40 minutos de Braga e aproximadamente 60 minutos da cidade do Porto, garantindo fácil acesso tanto a centros urbanos como a serviços essenciais. Trata-se de uma excelente oportunidade para habitação própria, casa de férias ou investimento no setor turístico, numa das regiões de maior procura e valorização do norte de Portugal.
AMI: 21984
Ref. Externa: RM 01062025
Id: 1243069
Inicie sessão para guardar este imóvel e aceder à sua lista de favoritos em qualquer dispositivo.
4 Quartos
1 WCs
Área bruta : 609 m²
Oportunidade única em Vilar do Pinheiro! Moradia unifamiliar em estado de ruína, inserida num terreno com 609 m², com projeto de reabilitação em fase de aprovação na Câmara Municipal, ideal para quem pretende construir com rapidez e visão estratégica. - Localização privilegiada: Zona calma e residencial Bons acessos e proximidade ao Porto, a Vila do Conde, a Mindelo e à zona costeira Comércios, serviços e transportes nas imediações - Características: Terreno com 609 m² Construção existente em ruína Projeto de reabilitação em aprovação — ganho de tempo e redução de incertezas Potencial para moradia contemporânea ou reinterpretação do estilo original - Ideal para: Quem procura um projeto com menos burocracia Investidores focados em reabilitação e revenda Construção de moradia própria personalizada com base num projeto já delineado
AMI: 21984
Ref. Externa: AS 02/06/25
Id: 1224469
Inicie sessão para guardar este imóvel e aceder à sua lista de favoritos em qualquer dispositivo.
3 Quartos
2 WCs
Área bruta : 125 m²
Moradia no Centro Histórico de Leça da Palmeira – Oportunidade com Rentabilidade Apresentamos esta moradia de dois pisos, situada no coração do centro histórico de Leça da Palmeira – uma das zonas mais carismáticas e procuradas da região. Esta localização privilegiada combina o charme tradicional com a proximidade a todo o tipo de comodidades, incluindo restaurantes, comércio local, praias e acessos rápidos ao Porto e ao aeroporto. A propriedade representa uma excelente opção para quem procura habitação própria numa zona central e autêntica, com qualidade de vida e forte ligação à identidade local. Além disso, trata-se também de uma oportunidade atrativa para investidores, oferecendo grande potencial de valorização. A moradia pode ser remodelada com o objetivo de revenda, aproveitando a crescente procura por imóveis reabilitados nesta zona histórica. Com dois pisos bem distribuídos e uma estrutura com potencial, o imóvel permite uma intervenção personalizada, adaptando-se a diferentes finalidades. Se procura viver no centro histórico de Leça da Palmeira ou investir com visão estratégica, esta é uma oportunidade a considerar.
AMI: 21984
Ref. Externa: RM/03/05/2025
Id: 1218455
Inicie sessão para guardar este imóvel e aceder à sua lista de favoritos em qualquer dispositivo.
2 Quartos
1 WCs
Área bruta : 73 m²
Excelente Oportunidade de Investimento – Loja com PiP Aprovado para Conversão em Apartamento na Praia de Leça da Palmeira Apresentamos uma oportunidade única na Praia de Leça da Palmeira, uma loja de 72 m² em ótimo estado de conservação, localizada numa das zonas mais valorizadas da região, pronta para ser transformada de acordo com as suas necessidades com um layout funcional e flexível, permitindo a conversão em um acolhedor apartamento T1 ou T2, ideal para quem procura uma residência própria ou para investidores que buscam arrendar na área, com a documentação em ordem e sem entraves burocráticos, garantindo total segurança jurídica para a transformação, além de estar inserida num condomínio calmo, rodeado de comércio local, serviços e instituições de ensino, oferecendo praticidade no dia a dia, com ótimos acessos às principais vias de comunicação e excelente mobilidade para outras áreas do Grande Porto, tudo isso a apenas passos da praia e das zonas verdes que proporcionam um estilo de vida saudável e equilibrado, muito procurado por moradores e turistas, sendo, portanto, uma oportunidade única para quem busca um imóvel com grande potencial, seja para viver ou para investir, numa das regiões mais cobiçadas da costa do Grande Porto, não perca a chance de transformar esse espaço num lar acolhedor ou numa fonte de rendimento, entre em contato para mais informações e agendar uma visita.
AMI: 21984
Ref. Externa: RM03/05/2025
Id: 1209035
Inicie sessão para guardar este imóvel e aceder à sua lista de favoritos em qualquer dispositivo.
4 Quartos
4 WCs
Área bruta : 345 m²
Moradia Exclusiva T4 em Condomínio Fechado com Piscina, Próxima à Praia Descubra esta magnífica moradia de quatro quartos, dois deles em suite, inserida num prestigiado condomínio fechado com piscina, ideal para quem procura conforto, segurança e qualidade de vida junto ao mar. Com duas frentes, nascente e poente, oferece uma excelente exposição solar ao longo de todo o dia. Desenvolve-se em três pisos, cave, rc e primeiro andar, proporcionando uma organização prática e equilibrada dos espaços. A cave destaca-se pela abundante luz natural e pelo acesso direto a um terraço privativo com 30 metros quadrados, ideal para criar uma zona de lazer adicional. No exterior, pode ainda desfrutar de um jardim privativo com 65 metros quadrados, perfeito para relaxar em família ou entre amigos. O condomínio oferece uma ampla piscina comum, rodeada por zonas verdes, onde poderá aproveitar os dias mais quentes com total tranquilidade e segurança. A moradia encontra-se em excelente estado de conservação, pronta a habitar, e dispõe de uma espaçosa garagem com capacidade para três carros. Situada em zona tranquila e próxima à praia, é a escolha ideal para quem valoriza um estilo de vida moderno, confortável e exclusivo.
AMI: 21984
Ref. Externa: RM/04/05/2025
Id: 1209036
Inicie sessão para guardar este imóvel e aceder à sua lista de favoritos em qualquer dispositivo.
2 Quartos
2 WCs
Área bruta : 115 m²
Descobre o teu novo refúgio junto à Praia de Leça! Este encantador apartamento de tipologia T2+1, situado junto ao mar, oferece uma combinação perfeita de conforto e modernidade. Com uma área bruta de 115 m², este imóvel novo e nunca habitado destaca-se pela sua construção de qualidade e design contemporâneo. A sala com cozinha em open space proporcionam um ambiente acolhedor e funcional. Dispõe ainda de dois W/C e armários embutidos para maior comodidade. O apartamento está equipado com piso radiante e aquecimento de aguas sanitárias por bomba de calor, garantindo o máximo conforto durante todo o ano. Localizado no ultimo piso de um edifício moderno com elevador, este imóvel é ideal para quem procura praticidade e acessibilidade. A classificação energética A sublinha o compromisso com a eficiência e sustentabilidade. Não percas a oportunidade de viver num espaço que combina elegância e proximidade ao mar.
AMI: 21984
Ref. Externa: 001022025AS
Id: 1160738
Inicie sessão para guardar este imóvel e aceder à sua lista de favoritos em qualquer dispositivo.
Inicie sessão para ocultar este imóvel das suas pesquisas e manter a sua lista de resultados organizada.
ANI-Home Negócios Imobiliários
Consultor imobiliário em ANI-Home Negócios Imobiliários - AMI: 21984
Compre créditos para poder destacar os seus imóveis! Desta forma eles são os primeiros a aparecer nas pesquisas e têm uma maior chance de serem vistos pelos utilizadores.
© Copyright 2023 | CASACERTA. All rights reserved
Guardar favoritos
Este imóvel foi guardados nos seus favoritos com sucesso.
Para poder guardar pesquisa deverá ter a sua sessão iniciada.
Caso não tenha uma conta, deverá criar uma.
A sua pesquisa foi guardada com sucesso!
Este site utiliza cookies. Ao navegar no site estará a consentir a sua utilização.
Para mais informações sobre os cookies pode consultar a
política de privacidade.