Consultor imobiliário em IAD Holding - AMI: 11220
Comprar
Arrendar
3 Quartos
2 WCs
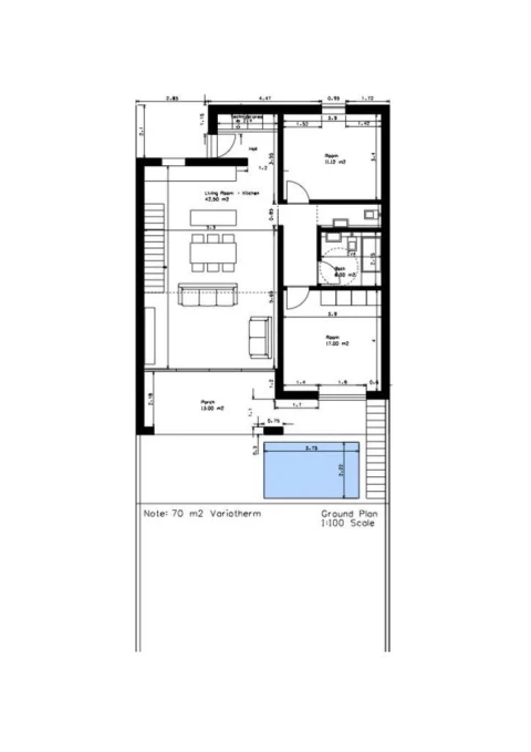
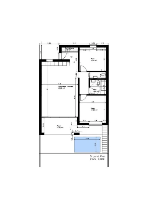
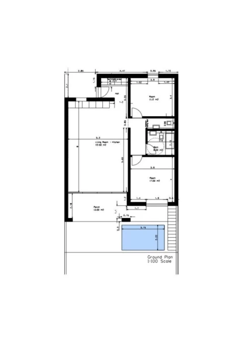
Área útil : 120 m²
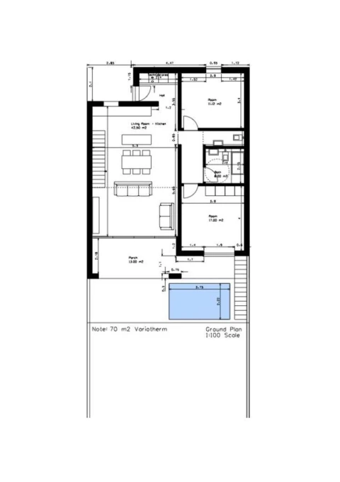
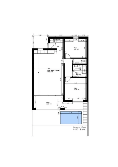
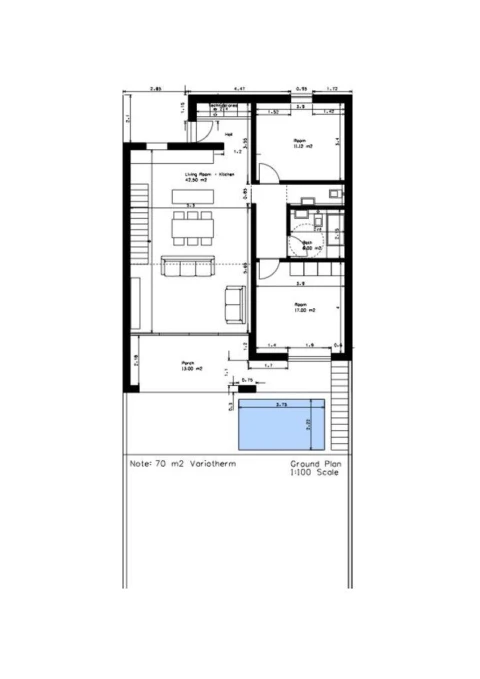
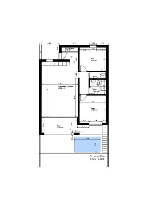
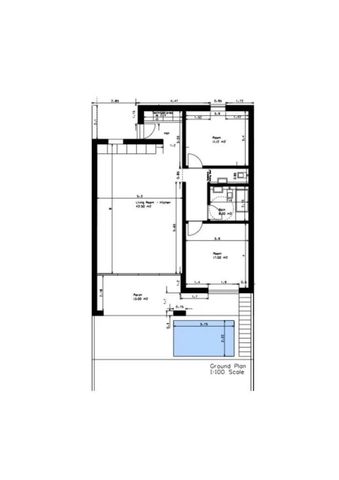
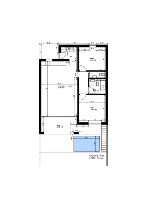
onte Canelas: Uma Casa Moderna e Personalizável no Algarve A Sua Villa dos Sonhos Numa Localização Privilegiada Descubra uma oportunidade única para ter a sua casa numa das zonas mais desejadas do Algarve. Monte Canelas oferece o equilíbrio perfeito entre tranquilidade e acessibilidade, localizado numa urbanização moderna e pacífica, a apenas 15 minutos das praias mais deslumbrantes da região. Opções de Compra Flexíveis •Terreno + Projeto Aprovado: €200.000 •Bungalow T3 Chave na Mão: €495.000 Principais Características da Propriedade •Localização privilegiada, numa comunidade bem estabelecida, com fácil acesso a Portimão e Lagos. •Pronto para construir, com projeto aprovado e um parceiro de construção de confiança, garantindo um processo eficiente e dentro do prazo. •Design moderno de um só piso, proporcionando um layout espaçoso e funcional, ideal para quem procura conforto e praticidade. •Construção de alta qualidade, com materiais respiráveis e energeticamente eficientes, garantindo melhor isolamento, resistência ao mofo e durabilidade a longo prazo. •Espaço exterior privativo com jardim e piscina, perfeito para momentos de lazer e convívio. •Possibilidade de personalização, permitindo escolher acabamentos e detalhes para adaptar a casa ao seu gosto. •Sustentável e confortável, equipada com ar condicionado, bomba de calor e uma abordagem ecológica à construção. Se procura uma casa chave na mão ou um terreno pronto para construir com um projeto aprovado, Monte Canelas representa uma excelente oportunidade para adquirir uma villa moderna no coração do Algarve. Entre em contacto connosco para mais informações ou para agendar uma visita. #ref: 135656
AMI: 11220
Ref. Externa: 135656
Id: 1033906
Inicie sessão para guardar este imóvel e aceder à sua lista de favoritos em qualquer dispositivo.
200.000 €
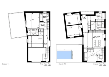
Área útil : 255 m²
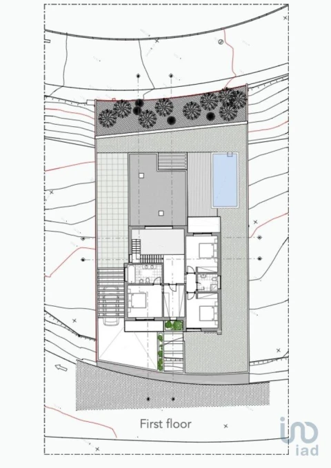
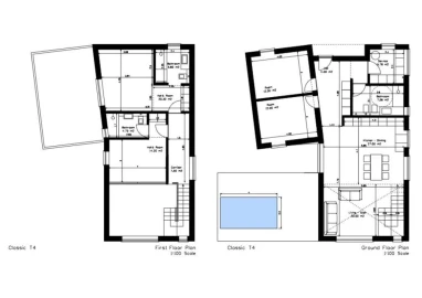
Monte Canelas: Uma Villa Exclusiva e Personalizada no Algarve Um Tesouro em Estilo de Vida Premium Descubra o luxo com esta oportunidade única no Algarve, localizada em uma tranquila urbanização moderna entre as vibrantes cidades de Portimão e Lagos. A apenas 15 minutos de belas praias, esta villa oferece um estilo de vida prestigioso, além de privacidade e serenidade em um amplo terreno de 517 m² com uma área de construção de 255 m² pronta para se tornar a casa dos seus sonhos. Opções de Compra: •Apenas Terreno e Projeto Aprovado: €200.000 •Villa Completa, Com Construção Concluída: €790.000 Destaques da Propriedade: I. Excelência de Localização: Localizada em um bairro tranquilo com acesso rápido a todas as comodidades e belas praias. II. Pronta para Construção: Um projeto aprovado com construtor pronto para iniciar garante um processo de construção tranquilo e entrega no prazo. III. Design e Acabamentos: Esta villa personalizada inclui quatro elegantes quartos e três luxuosas casas de banho com duchas, tudo desenhado para proporcionar um ambiente de vida moderno e confortável. IV. Materiais de Construção Avançados: Construída com excelente isolamento e materiais respiráveis anti-mofo, esta casa garante maior conforto e saúde. V. Elegância ao Ar Livre: Uma piscina privada e jardins paisagísticos oferecem um refúgio sereno para relaxar e entreter. VI. Opções de Personalização: Escolha entre várias opções de personalização para tornar esta casa verdadeiramente sua. VII. Comodidades Modernas: A villa inclui uma cozinha totalmente equipada, ar-condicionado e uma bomba de calor ecológica. VIII. Oportunidade Exclusiva: Uma oportunidade única para adquirir uma propriedade de luxo e sob medida em uma localização privilegiada no Algarve. IX. Pronta para sua Visão: Com planos aprovados, você está a poucos passos de realizar sua visão de uma casa personalizada e sofisticada. Características: •Cozinha e sala de estar em conceito aberto •4+1 quartos •3 casas de banho com duchas e piso aquecido •Carport para estacionamento privado •Cozinha equipada •Janelas com vidro duplo •Portas de correr amplas para o jardim •Bomba de calor para aquecimento e arrefecimento •Ar-condicionado •Jardim com paisagismo e parede vertical •Piscina •Lavandaria •2 varandas Descubra o ápice do luxo no Algarve com o Monte Canelas. Mais que uma casa, este é um estilo de vida. Entre em contato conosco hoje para saber mais sobre as opções de compra e comece sua jornada para adquirir esta villa exclusiva. #ref: 129521
AMI: 11220
Ref. Externa: 129521
Id: 915633
Inicie sessão para guardar este imóvel e aceder à sua lista de favoritos em qualquer dispositivo.
2 Quartos
2 WCs
Área útil : 105 m²
#ref: 128261
AMI: 11220
Ref. Externa: 128261
Id: 893271
Inicie sessão para guardar este imóvel e aceder à sua lista de favoritos em qualquer dispositivo.
2 Quartos
1 WCs
Área útil : 105 m²
#ref: 128259
AMI: 11220
Ref. Externa: 128259
Id: 893260
Inicie sessão para guardar este imóvel e aceder à sua lista de favoritos em qualquer dispositivo.
4 Quartos
Área útil : 185 m²
#ref: 128188
AMI: 11220
Ref. Externa: 128188
Id: 893255
Inicie sessão para guardar este imóvel e aceder à sua lista de favoritos em qualquer dispositivo.
2 Quartos
1 WCs
Área útil : 105 m²
#ref: 128258
AMI: 11220
Ref. Externa: 128258
Id: 893245
Inicie sessão para guardar este imóvel e aceder à sua lista de favoritos em qualquer dispositivo.
2 Quartos
1 WCs
Área útil : 105 m²
#ref: 128256
AMI: 11220
Ref. Externa: 128256
Id: 893228
Inicie sessão para guardar este imóvel e aceder à sua lista de favoritos em qualquer dispositivo.
2 Quartos
1 WCs
Área útil : 105 m²
#ref: 128257
AMI: 11220
Ref. Externa: 128257
Id: 893222
Inicie sessão para guardar este imóvel e aceder à sua lista de favoritos em qualquer dispositivo.
2 Quartos
2 WCs
Área útil : 105 m²
#ref: 128260
AMI: 11220
Ref. Externa: 128260
Id: 893221
Inicie sessão para guardar este imóvel e aceder à sua lista de favoritos em qualquer dispositivo.
4 Quartos
2 WCs
Área útil : 185 m²
#ref: 128191
AMI: 11220
Ref. Externa: 128191
Id: 893205
Inicie sessão para guardar este imóvel e aceder à sua lista de favoritos em qualquer dispositivo.
2 Quartos
1 WCs
Área útil : 105 m²
#ref: 128263
AMI: 11220
Ref. Externa: 128263
Id: 893147
Inicie sessão para guardar este imóvel e aceder à sua lista de favoritos em qualquer dispositivo.
2 Quartos
1 WCs
Área útil : 105 m²
#ref: 128265
AMI: 11220
Ref. Externa: 128265
Id: 893145
Inicie sessão para guardar este imóvel e aceder à sua lista de favoritos em qualquer dispositivo.
4 Quartos
2 WCs
Área útil : 185 m²
#ref: 128194
AMI: 11220
Ref. Externa: 128194
Id: 888189
Inicie sessão para guardar este imóvel e aceder à sua lista de favoritos em qualquer dispositivo.
2 Quartos
1 WCs
Área útil : 105 m²
#ref: 124440
AMI: 11220
Ref. Externa: 124440
Id: 817440
Inicie sessão para guardar este imóvel e aceder à sua lista de favoritos em qualquer dispositivo.
4 Quartos
Área útil : 185 m²
#ref: 124515
AMI: 11220
Ref. Externa: 124515
Id: 817401
Inicie sessão para guardar este imóvel e aceder à sua lista de favoritos em qualquer dispositivo.
Inicie sessão para ocultar este imóvel das suas pesquisas e manter a sua lista de resultados organizada.
Bastiaan Dubbeld
Consultor imobiliário em IAD Holding - AMI: 11220
Compre créditos para poder destacar os seus imóveis! Desta forma eles são os primeiros a aparecer nas pesquisas e têm uma maior chance de serem vistos pelos utilizadores.
© Copyright 2023 | CASACERTA. All rights reserved
Guardar favoritos
Este imóvel foi guardados nos seus favoritos com sucesso.
Para poder guardar pesquisa deverá ter a sua sessão iniciada.
Caso não tenha uma conta, deverá criar uma.
A sua pesquisa foi guardada com sucesso!
Este site utiliza cookies. Ao navegar no site estará a consentir a sua utilização.
Para mais informações sobre os cookies pode consultar a
política de privacidade.