Consultor imobiliário em Casa Central - Mediação Imobiliária - AMI: 16230
Comprar
Arrendar
475.000 €
2 Quartos
2 WCs
Área bruta : 90 m²
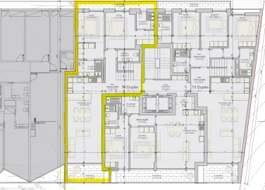
Apartamento T2 no Condomínio Privado “LUNNA”, em Loures - 2ºPiso Frente Inserido em Condomínio de Luxo, num prédio com 7 pisos e 20 apartamentos de tipologia T2 a T5. Destaca-se pelos seus acabamentos com materiais de elevada qualidade e pelas comodidades que oferece, nomeadamente Garagem, Jardim e Ginásio comuns e Rooftop com Piscina aquecida com vista panorâmica, garantindo o conforto e bem-estar aos seus moradores. O Apartamento dispõe de 90,94 m² de área. O Apartamento é distribuído da seguinte forma: - Hall de entrada com 3,30m2; - Sala em open space com a Cozinha, totalmente equipada, com 32,90m2 e acesso a Varanda com 13,57m²; - Hall de acesso aos quartos com 3,42m2; - Suite com casa de banho completa com duche com 16,87m2 com acesso a varanda; - Quarto com 12,90m2 com acesso a varanda; - Casa de Banho completa com duche de apoio ao quarto com 5,51m2; O apartamento dispõe das seguintes características e acabamentos: - Estacionamento na garagem colectiva do prédio; - Ar condicionado; - Armários embutidos em todos os quartos; - Estores térmicos elétricos; - Iluminação LED; - Painéis Solares (águas quentes com termossifão e termoacumulador); - Pré-instalação para painéis fotovoltaicos; - Caixilharia com corte térmico; - Chão flutuante em carvalho. - Carpintarias lacadas a branco; - Cerâmicos Margrés Linha Calacata; - Torneiras Bruma; - Portas de segurança Dierre; - Aspirador robot e Aspirador vertical; - Wallbox para carregamento de veículos elétricos; - Piscina aquecida comum com vista panorâmica no rooftop do edifício; - Ginásio comum com terraço; - Inserido em prédio com dois elevadores; - Classificação Energética: A. O Apartamento dispõe de uma óptima exposição solar. Localiza-se no centro de Loures, numa zona residencial tranquila, a poucos minutos de diversos supermercados, farmácias, bancos, do Hospital Beatriz Ângelo e de diversos tipos de comércio e serviços. Com fácil acesso às principais vias, designadamente à A8, A9, CRIL, IC22, CREL, Ponte Vasco da Gama, a cerca de 10km do Aeroporto e 15 km de Lisboa. Em breve terá também a futura estação de metro de Loures, a poucos minutos de distância. Previsão de Conclusão: ano 2027. Agende a sua visita e venha conhecer este fantástico Apartamento! Fazemos Partilhas com outras Agências Imobiliárias.
AMI: 16230
Ref. Externa: CC-010250236-2Frt
Id: 1821548
Inicie sessão para guardar este imóvel e aceder à sua lista de favoritos em qualquer dispositivo.
560.000 €
3 Quartos
3 WCs
Área bruta : 134 m²
Apartamento T3 no Condomínio Privado “LUNNA”, em Loures 1º Piso Inserido em Condomínio de Luxo, num prédio com 7 pisos e 20 apartamentos de tipologia T2 a T5. Destaca-se pelos seus acabamentos com materiais de elevada qualidade e pelas comodidades que oferece, nomeadamente Garagem, Jardim e Ginásio comuns e Rooftop com Piscina aquecida com vista panorâmica, garantindo o conforto e bem-estar aos seus moradores. O Apartamento dispõe de 134,42 m² de área e está estruturado da seguinte forma: - Hall de entrada com 9,78m2; - Sala em open space com a Cozinha, totalmente equipada, com 43,15m2 e acesso a Varanda com 8,77 m²; - Hall de acesso aos quartos com 9,78m2; - Suite 1 com casa de banho completa com duche com 23,96m2; - Suite 2 com casa de banho completa com duche com 18,02m2; - Quarto com 12,39m2; - Casa de Banho completa com duche de apoio ao quarto com 4,33m2; O apartamento dispõe das seguintes características e acabamentos: - Estacionamento na garagem colectiva do prédio; - Ar condicionado; - Armários embutidos em todos os quartos; - Estores térmicos elétricos; - Iluminação LED; - Painéis Solares (águas quentes com termossifão e termoacumulador); - Pré-instalação para painéis fotovoltaicos; - Caixilharia com corte térmico; - Chão flutuante em carvalho. - Carpintarias lacadas a branco; - Cerâmicos Margrés Linha Calacata; - Torneiras Bruma; - Portas de segurança Dierre; - Aspirador robot e Aspirador vertical; - Wallbox para carregamento de veículos elétricos; - Piscina aquecida comum com vista panorâmica no rooftop do edifício; - Ginásio comum com terraço; - Inserido em prédio com dois elevadores; - Classificação Energética: A. O Apartamento dispõe de uma óptima exposição solar. Localiza-se no centro de Loures, numa zona residencial tranquila, a poucos minutos de diversos supermercados, farmácias, bancos, do Hospital Beatriz Ângelo e de diversos tipos de comércio e serviços. Com fácil acesso às principais vias, designadamente à A8, A9, CRIL, IC22, CREL, Ponte Vasco da Gama, a cerca de 10km do Aeroporto e 15 km de Lisboa. Em breve terá também a futura estação de metro de Loures, a poucos minutos de distância. Previsão de Conclusão: ano 2027. Agende a sua visita e venha conhecer este fantástico Apartamento! Fazemos Partilhas com outras Agências Imobiliárias.
AMI: 16230
Ref. Externa: 010250236-1Esq.
Id: 1798323
Inicie sessão para guardar este imóvel e aceder à sua lista de favoritos em qualquer dispositivo.
530.000 €
3 Quartos
3 WCs
Área bruta : 119 m²
Apartamento T3 no Condomínio Privado “LUNNA”, em Loures 3º Piso Inserido em Condomínio de Luxo, num prédio com 7 pisos e 20 apartamentos de tipologia T2 a T5. Destaca-se pelos seus acabamentos com materiais de elevada qualidade e pelas comodidades que oferece, nomeadamente Garagem, Jardim e Ginásio comuns e Rooftop com Piscina aquecida com vista panorâmica, garantindo o conforto e bem-estar aos seus moradores. O Apartamento dispõe de 119,95 m² de área e está estruturado da seguinte forma: - Hall de entrada com 8,15m2; - Sala em open space com a Cozinha, totalmente equipada, com 37,84m2 e acesso a Varanda com 7,52 m²; - Hall de acesso aos quartos com 4,50m2; - Suite com casa de banho completa com duche com 20,17m2; - Quarto com 12,54m2; - Quarto com 13,02m2; - Casa de Banho completa com duche de apoio aos quartos com 4,00m2; - Varanda com acesso pela Suite e Quartos com 7,56m2 O apartamento dispõe das seguintes características e acabamentos: - Estacionamento na garagem colectiva do prédio; - Ar condicionado; - Armários embutidos em todos os quartos; - Estores térmicos elétricos; - Iluminação LED; - Painéis Solares (águas quentes com termossifão e termoacumulador); - Pré-instalação para painéis fotovoltaicos; - Caixilharia com corte térmico; - Chão flutuante em carvalho. - Carpintarias lacadas a branco; - Cerâmicos Margrés Linha Calacata; - Torneiras Bruma; - Portas de segurança Dierre; - Aspirador robot e Aspirador vertical; - Wallbox para carregamento de veículos elétricos; - Piscina aquecida comum com vista panorâmica no rooftop do edifício; - Ginásio comum com terraço; - Inserido em prédio com dois elevadores; - Classificação Energética: A. O Apartamento dispõe de uma óptima exposição solar. Localiza-se no centro de Loures, numa zona residencial tranquila, a poucos minutos de diversos supermercados, farmácias, bancos, do Hospital Beatriz Ângelo e de diversos tipos de comércio e serviços. Com fácil acesso às principais vias, designadamente à A8, A9, CRIL, IC22, CREL, Ponte Vasco da Gama, a cerca de 10km do Aeroporto e 15 km de Lisboa. Em breve terá também a futura estação de metro de Loures, a poucos minutos de distância. Previsão de Conclusão: ano 2027. Agende a sua visita e venha conhecer este fantástico Apartamento! Fazemos Partilhas com outras Agências Imobiliárias.
AMI: 16230
Ref. Externa: 010250236-3Dto.
Id: 1798322
Inicie sessão para guardar este imóvel e aceder à sua lista de favoritos em qualquer dispositivo.
2 Quartos
1 WCs
Área bruta : 77 m²
Apartamento T2 em Queluz Apresentamos este excelente Apartamento T2, situado numa zona residencial e tranquila, a poucos minutos do centro de Queluz. 2º Andar sem elevador O apartamento tem cerca de 77,86m2 de área bruta de construção, sendo 75,20m2 de área bruta privativa e 2,66m2 de área bruta dependente (arrecadação) e encontra-se estruturado da seguinte forma: - Dois Quartos (um deles com roupeiro embutido); - Casa de banho com banheira; - Sala ampla com lareira em pedra mármore; - Cozinha totalmente equipada com: máquina de lavar loiça, máquina de lavar roupa, frigorífico, forno, fogão e esquentador; - Arrecadação na cave do prédio com cerca de 2,66m2. O Apartamento dispõe de uma óptima exposição solar e encontra-se em muito bom estado de conservação, bem assim como o prédio em que está inserido. Com uma excelente localização, em Queluz, rodeado por todo o tipo de comércio e serviços, escolas e transportes, nomeadamente: - cafés e restaurantes; - farmácia; - lojas; - a cerca de 15 min. a pé da Estação comboios Queluz – Belas; - a 10 min. de carro do Hospital Professor Doutor Fernando Fonseca; - a 9 min. de carro do Parque Urbano Felício Loureiro e do Palácio de Queluz; - a cerca de 15 min. de carro de Lisboa (+-15km); - com fácil acesso às principais vias, designadamente IC19, CR E L (A9), entre outras. Agende a sua visita e venha conhecer este fantástico Apartamento!
AMI: 16230
Ref. Externa: CC-010260249
Id: 1791877
Inicie sessão para guardar este imóvel e aceder à sua lista de favoritos em qualquer dispositivo.
2 Quartos
4 WCs
Área bruta : 170 m²
Moradia Isolada T2+1, em São Domingos de Rana Com Vista Mar e Piscina Inserida num lote de terreno de 227 m², numa zona residencial e tranquila no Zambujal em São Domingos de Rana. A Moradia dispõe de uma excelente exposição solar, estando os quartos e sala virados a Sul. A moradia tem 3 pisos e encontra-se estruturada da seguinte forma: Piso 1: - Sala e Cozinha em Open Space, com duas amplas portas de vidro de acesso ao jardim e piscina - Cozinha completamente equipada - Lavabo Social Piso 2: - 2 Suites com varandas e Vista Mar, armários embutidos e casas de banho com duche Piso -1: - 1 Suite com muita luz natural, closet e casa de banho com duche - Lavandaria - Armário de arrumação Jardim: - Piscina - Zona para refeições com Pérgola e preparado para Barbecue - Estacionamento para 2 carros A Moardia dispõe ainda de: - Ar condicionado em todas as divisões; - Bomba de calor e pré-instalação de painéis solares; - Possibilidade de aproveitamento da cobertura como terraço com vista panorâmica 360º e vista mar, com hipótese de instalação de jacuzzi Esta moradia está muito bem localizada, numa zona residencial tranquila, rodeada de comércio, supermercados, farmácias e diversos serviços: - com fácil acesso à A5 e Marginal; - a 10 min. de carro da Praia de Carcavelos; - a cerca de 15 min. de carro de Lisboa; - próxima de variadas escolas nacionais e internacionais; - próxima da Nova SBE (Carcavelos). Algumas fotografias geradas por AI. Agende já a sua visita e venha conhecer esta fantástica moradia! Fazemos partilhas com outras Agências Imobiliárias.
AMI: 16230
Ref. Externa: CC-010230172-MLT9
Id: 1788958
Inicie sessão para guardar este imóvel e aceder à sua lista de favoritos em qualquer dispositivo.
3 Quartos
3 WCs
Área bruta : 245 m²
Moradia T3 em São Domingos de Rana Inserida num Lote de terreno com 263m2 A Moradia dispõe das seguintes áreas: - Área Bruta de Construção: 245m2 - Área Bruta Privativa: 165m2 - Área Bruta Dependente: 80m2 A Moradia é composta por 3 Pisos e distribuída da seguinte forma: R/C: - Hall de entrada - Sala Comum espaçosa e muito iluminada, com acesso a Marquise - Marquise envidraçada com muita luz natural - Cozinha com porta de acesso ao jardim - Lavabo Social 1º Andar: - 1 Suite com walk-in closet e casa de banho com duche - 2 Quartos amplos, muito iluminados, ambos com armários embutidos e um deles com varanda - Casa de banho completa com banheira Piso -1 - Escritório e Biblioteca com janelas - Lavandaria - Garagem para 1 automóvel - Arrecadação Jardim com canteiros, árvores de fruto e Jacuzzi. A Moradia dispõe das seguintes características/comodidades: - Estores eléctricos; - Aquecimento Central; - Radiador na sala; - Jacuzzi no Jardim; - Painéis solares e painel de aquecimento de águas; - Certificação Energética: A+. A Moradia dispõe de uma excelente Exposição Solar. Tem uma óptima localização, estando situada numa zona residencial, calma e rodeada de zonas verdes, supermercados, restaurantes, farmácias e a cerca de: - 15 min de carro da Praia de Carcavelos; - 20 min de carro do centro de Cascais; - 20 min de carro de Lisboa; - 30 min carro do Aeroporto Lisboa. Agenda a sua visita e venha conhecer esta Fantástica Moradia. Fazemos Partilhas com outras Imobiliárias.
AMI: 16230
Ref. Externa: CC-010260247
Id: 1759095
Inicie sessão para guardar este imóvel e aceder à sua lista de favoritos em qualquer dispositivo.
3.900.000 €
5 Quartos
6 WCs
Área bruta : 908 m²
Moradia Contemporânea T5 + 1 em Cascais - Abuxarda Com uma localização privilegiada, numa zona residencial e tranquila, destaca-se pelo seu design moderno, pelas suas amplas áreas, excelente exposição solar e longos envidraçados que garantem uma abundante luminosidade natural, complementadas pelos seus espaços exteriores contemporâneos com uma fantástica infinity pool, envolvidos por uma agradável moldura verde de árvores e natureza. A zona social da Moradia, virada a poente, tem acesso directo ao seu deck e piscina, prolongando a zona social para o exterior, permitindo relaxar, aproveitar o sol e desfrutar de momentos e de refeições ao ar livre. Inserida num Lote de terreno com 934m2. A Moradia é composta por 3 pisos e estruturada da seguinte forma: Piso Térreo: - Hall entrad a - Sala comum muito ampla e iluminada, com acesso directo ao deck, piscina e zona de barbecue, havendo a possibilidade de criar uma zona lounge e uma zona de refeições no exterior - Cozinha moderna totalmente equipada com eletrodomésticos AEG - Suite com closet e acesso ao deck e piscina - Suite com armários embutidos - Casa de Banho social - Escritório Piso 1: - 2 Suites com acesso a Varanda, com vista panorâmica e armários embutidos Piso -1 - Suite - Lavandaria - Sala ampla multiusos com janela com vista subaquática da piscina - Sala de cinema - Sala preparada para sauna/spa - Zona projectada como garrafeira - Sala de arrumos - Sala técnica - Casa de banho completa - Garagem muito espaçosa com capacidade para 4 carros, com 93 m2, portão elétrico e com portas de vidro de acesso ao jardim Jardim Com espaços verdes, Piscina e deck A moradia dispõe ainda de: - Pré-instalação de elevador, facilitando o acesso a todos os pisos; - Painéis solares; - Ar condicionado por conduta; - Estores eléctricos; - Ventilação Central com máquina de purificação de ar Vmc (S&P); - Iluminação geral em led; - Caixilharia em alumínio com corte térmico e acústico; - Vidros duplos; - Rega automática; - Certificação energética A+. A Moradia tem uma óptima exposição solar, sendo a maior parte das divisões, inclusive a sala, cozinha e duas suites principais viradas a Poente. Tem igualmente uma excelente localização, estando localizado: - a poucos minutos de diversas escolas nacionais e internacionais, restaurantes, cafés, clínicas médicas e hospitais, farmácias, supermercados, todo o tipo de comércio e serviços, praias e jardins; - a 2 min de carro da A5 e A16; - a aprox. 5 min de carro da Marginal, Centro de Cascais, Paredão e Praias da Linha de Cascais; - a menos de 10 min. de carro da Beloura, e das Escolas Carlucci American International School of Lisbon e TASIS Portugal International School - a 5 min carro do Cascaishopping; - a 25 min carro de Lisboa. Agende a sua visita e venha conhecer esta Fantástica Moradia! Fazemos Partilha com outras Imobiliárias.
AMI: 16230
Ref. Externa: 010260245
Id: 1741076
Inicie sessão para guardar este imóvel e aceder à sua lista de favoritos em qualquer dispositivo.
Área bruta : 70 m²
Escritório para arrendar em Cascais, com 3 gabinetes ligados e cerca de 70 m2 Inserido num Centro de Escritórios, num Edifício com 4 Pisos e Elevador. Com uma excelente localização, a apenas 5 min a pé do Centro de Cascais e fácil acesso à Marginal, A5 e A16. Dispõe de uma óptima exposição Solar. Dividido por três gabinetes, sendo o primeiro gabinete virado a poente com três laterais envidraçadas, muito iluminado e estando ligado aos dois outros gabinetes com divisórias de vidro e portas de madeira, permitindo a passagem da luz natural para os três gabinetes. A renda inclui: - Água; - Electricidade; - Internet (1 giga); - Alarme; - Uso das áreas comuns; - Sala de reuniões (2h/semana); - Gestão de correio; - Recepção comum. O Escritório é arrendado sem mobiliário (sob consulta). O Valor da renda é sempre acrescido do IVA à taxa legal. Temos outros espaços para arrendar no mesmo Centro de Escritórios, com outras áreas e valores. Agenda a sua visita e venha conhecer este fantástico Escritório.
AMI: 16230
Ref. Externa: CC-010190039-L3 B1.2.3
Id: 1716165
Inicie sessão para guardar este imóvel e aceder à sua lista de favoritos em qualquer dispositivo.
2.250.000 €
4 Quartos
5 WCs
Área bruta : 585 m²
Apresentamos esta elegante Moradia V4 + 1 situada numa zona privilegiada de Cascais. Integrada num condomínio privado com apenas cinco residências, esta propriedade proporciona privacidade, conforto e qualidade de vida. Dispõe de piso radiante, ar condicionado e painéis solares, garantindo o bem-estar durante todo o ano. Situada num ambiente reservado e numa área residencial calma, a poucos minutos das Praias de Cascais e com rápido acesso às principal vias. Inserida num lote de 510 m², com uma área bruta de aprox. 581 m2, sendo cerca de 340 m² de área bruta privativa, esta Moradia dispõe de amplas áreas e é composta por: Piso principal Ao entrar, é recebido por um hall que conduz a uma ampla zona social, onde a sala comunica diretamente com o exterior através de grandes vãos envidraçados, criando uma perfeita ligação ao jardim e à piscina. A cozinha, totalmente equipada com eletrodomésticos Bosch, aliando design e funcionalidade. Neste piso encontra ainda um lavabo social. Piso superior Dispõe de três suites. A suite principal com closet e varanda privativa. As outras duas suites partilham uma varanda comum. Piso inferior Um espaço versátil que inclui uma suite adicional, uma sala ampla multifuncional, lavabo social, lavandaria e zona de arrumação. A garagem box, com aprox. 68 m², com acesso direto ao interior da casa. Espaço Exterior Dispõe de uma ampla área exterior privativa, com mais de 360 m², que inclui um agradável pátio frontal — ideal para refeições ao ar livre ou para criar uma zona lounge — e diversos espaços verdes com relvado, proporcionando um ambiente harmonioso e convidativo. A piscina complementa o espaço exterior, tornando-o ideal para momentos de lazer. No topo da Moradia, encontra-a um amplo rooftop com quase 140 m² proporciona vista panorâmica a 360º — perfeito para uma zona lounge ou simplesmente para apreciar o pôr do sol. Marque a sua visita e venha conhecer esta Moradia!
AMI: 16230
Ref. Externa: 6906542357
Id: 1628840
Inicie sessão para guardar este imóvel e aceder à sua lista de favoritos em qualquer dispositivo.
4 Quartos
1 WCs
Área bruta : 72 m²
Escritório no Centro de Cascais com Vista Mar Junto à estação de comboios e praias Inserido em prédio de 3 andares 2º Andar: 4 Divisões + 1 arrecadação Com uma área total de 71 m2 1 Casa de Banho completa Chão em Soalho de madeira corrido Todas as divisões têm janelas A precisar de pinturas e reparações Este espaço adapta-se também para: - Escritórios: Advogados, Contabilidade …e Outros - Clinica médica - Consultório - Centro de Estética - Cabeleireiro - Centro de explicações... Zona rodeada de todo o tipo de comércio e serviços. Junto à estação de comboios de Cascais Fácil acesso à Avenida Marginal, A5 e A16 Venha visitar!!
AMI: 16230
Ref. Externa: 010260243
Id: 1610037
Inicie sessão para guardar este imóvel e aceder à sua lista de favoritos em qualquer dispositivo.
3 Quartos
3 WCs
Área bruta : 155 m²
Moradia Independente T3 em São Domingos de Rana Localizada numa zona residencial e tranquila. Dispõe de uma óptima exposição solar. Pensada ao pormenor, esta moradia destaca-se pela excelente qualidade dos seus acabamentos, materiais e isolamento, com os mais recentes padrões de eficiência energética. Está inserida num Lote de terreno com 300m2 e dispõe das seguintes áreas: - Área bruta de construção: 154,60m2 - Área bruta privativa: 150,50 -Área bruta dependente: 4,10m2 A Moradia tem 2 pisos, sendo distribuída da seguinte forma: Piso 0: - Hall entrada - Sala de Estar com acesso a páteo e Jardim - Sala de Jantar com porta para páteo e Jardim, excelente para refeições ao ar livre - Cozinha em open space com a sala de jantar, totalmente equipada com eletrodomésticos Bosh - 1 Lavabo Social Piso 1 - 1 Suite, com varanda e com armários embutidos - 2 Quartos, com armários embutidos e um deles com varanda - 1 Casa de banho completa com duche d apoio aos dois quartos Jardim com relvado (relva sintética) e pérgula de madeira com lugar para 2 automóveis. Dispõe de ligação de água e energia elécrica no jardim, estando preparado para instalação de piscina e zona de barbecue. A moradia dispõe de: - Estores eléctricos; - Armários embutidos em todos os quartos; - Pré-instalação de Ar condicionado em ambos os pisos; - Iluminação geral em led; - Caixilharia em alumínio com corte térmico e acústico; - Vidros duplos; - chão flutuante e madeira carvalho nas escadas; - Classificação Energética A+. Dispõe de uma boa localização, a poucos minutos do comércio local e serviços, restaurantes, cafés, escolas, universidades, clínicas médicas, hospital, farmácias, supermercados e está localizada a cerca de: - 5 min carro da A5 e A16 - 7 min de carro da Clínica Cuf de S. Domingos de Rana - 10 min de Carro da Marginal e da Praia de Carcavelos - 15 min de carro do Hospital de Cascais e do Cascaishooping - 15 min carro de Lisboa. - 20 min de carro do Centro de Cascais e Praias da Linha de Cascais Agende a sua visita e venha conhecer esta Fantástica Moradia! Fazemos Partilha com outras Imobiliárias.
AMI: 16230
Ref. Externa: CC-010250241
Id: 1569331
Inicie sessão para guardar este imóvel e aceder à sua lista de favoritos em qualquer dispositivo.
Área bruta : 36 m²
Escritório para arrendar em Cascais, com 36 m2 Inserido num Centro de Escritórios Temos outros espaços para arrendar no mesmo Centro de Escritórios, com outras áreas e valores Escritórios sem mobiliário Edifício com 4 Pisos com Elevador Todos os pisos têm Casas de Banho e Copa Ar condicionado Sala de reuniões (comum) Boa exposição Solar A renda inclui: Água Luz Internet 1 giga Alarme Uso das áreas comuns Sala de reuniões (algumas horas) Gestão de correio Localizado a 5 mn do Centro de Cascais (a pé) Fácil acesso à Marginal, A5 e A16. O Valor da renda é sempre acrescido do IVA à taxa legal Ref. L1.2 Venha visitar connosco
AMI: 16230
Ref. Externa: CC-010190039-10-A
Id: 1569330
Inicie sessão para guardar este imóvel e aceder à sua lista de favoritos em qualquer dispositivo.
820.000 €
5 Quartos
5 WCs
Área bruta : 205 m²
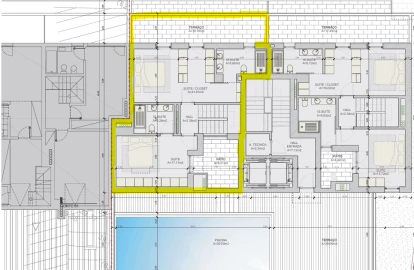
Apartamento T5 (Duplex) no Condomínio Privado “LUNNA”, em Loures 6º Piso Inserido em Condomínio de Luxo, num prédio com 7 pisos e 20 apartamentos de tipologia T2 a T5. Destaca-se pelos seus acabamentos com materiais de elevada qualidade e pelas comodidades que oferece, nomeadamente Garagem, Jardim e Ginásio comuns e Rooftop com Piscina aquecida com vista panorâmica, garantindo o conforto e bem-estar aos seus moradores. O Apartamento é um Duplex, dispõe de cerca de 205 m² de área e está estruturado da seguinte forma: Piso 0 - Hall de entrada com 6,09m2; - Sala em open space com a Cozinha, totalmente equipada, com 43,15m2 e acesso a Varanda com 8,77 m²; - Suite 1 com casa de banho completa com duche com 18,43m2; - Suite 2 com casa de banho completa com duche com 17,65m2; - Quarto com 11,85m2 - Lavabo Social com 4,43 m2 - Varanda com 6,81m2, com acesso pela Suite 2 e pelo Quarto. Piso 1 - Hall com 2,34 m2; - Suite 3 com casa de banho completa com duche com 24,95 m2 e com Closet; - Terraço com 17,45m2, com acesso pela Suite 3; - Suite 4 com casa de banho completa com duche com 18,14m2; - Pátio com 4,42 m2, com acesso pela Suite 4. O apartamento dispõe das seguintes características e acabamentos: - Estacionamento em Box na garagem colectiva do prédio; - Ar condicionado; - Armários embutidos em todos os quartos; - Estores térmicos elétricos; - Iluminação LED; - Painéis Solares (águas quentes com termossifão e termoacumulador); - Pré-instalação para painéis fotovoltaicos; - Caixilharia com corte térmico; - Chão flutuante em carvalho. - Carpintarias lacadas a branco; - Cerâmicos Margrés Linha Calacata; - Torneiras Bruma; - Portas de segurança Dierre; - Aspirador robot e Aspirador vertical; - Wallbox para carregamento de veículos elétricos; - Piscina aquecida comum com vista panorâmica no rooftop do edifício; - Ginásio comum com terraço; - Inserido em prédio com dois elevadores; - Classificação Energética: A. O Apartamento dispõe de uma óptima exposição solar. Localiza-se no centro de Loures, numa zona residencial tranquila, a poucos minutos de diversos supermercados, farmácias, bancos, do Hospital Beatriz Ângelo e de diversos tipos de comércio e serviços. Com fácil acesso às principais vias, designadamente à A8, A9, CRIL, IC22, CREL, Ponte Vasco da Gama, a cerca de 10km do Aeroporto e 15 km de Lisboa. Em breve terá também a futura estação de metro de Loures, a poucos minutos de distância. Previsão de Conclusão: ano 2027. Agende a sua visita e venha conhecer este fantástico Apartamento! Fazemos Partilhas com outras Agências Imobiliárias.
AMI: 16230
Ref. Externa: 010250236-6Esq.
Id: 1471304
Inicie sessão para guardar este imóvel e aceder à sua lista de favoritos em qualquer dispositivo.
4.900.000 €
7 Quartos
7 WCs
Área bruta : 700 m²
Venha conhecer esta icónica Moradia T7 + 2 no Monte Estoril Localizada numa zona privilegiada e de excelência no coração do Monte Estoril. Esta Moradia dispõe de características únicas, que a tornam numa das mais emblemáticas moradias do Monte Estoril e um dos principais bastiões da memória urbana desta localidade. Cheia de “História” e Charme, a Moradia encontra-se rodeada de Torreões e cercada por uma Muralha única como a de um Castelo. Dispõe de um extenso Jardim, com zonas verdes e Piscina exterior. A Moradia está inserida num Terreno com 1.438,45m2 e possui amplas áreas. Dispõe de 700m2 de Área Bruta de Construção, sendo 600m2 de área bruta privativa e 100 m2 de área bruta dependente e encontra-se estruturada da seguinte forma: R/C com: - Hall de Entrada com chão em pedra mármore e uma escadaria em madeira de acesso ao 1º piso; - Lavabo Social; - Sala Comum de Estar e Jantar com um amplo salão com muita luz, lareira, e com portas de acesso directo ao jardim e piscina, e chão em pedra mármore; - Cozinha; - Lavandaria; - Uma Suite, com casa de banho com duche; - Um Quarto; - Anexo /Apartamento T0, contíguo à Moradia, com porta para a piscina, uma sala ampla com muita luminosidade, cozinha e uma casa de banho completa recentemente renovada. 1ºPiso com: - Hall amplo com chão em madeira (soalho corrido), com tecto lindíssimo ricamente trabalhado e com acesso a uma Varanda com vista para o Jardim; - Duas Suites, com Casas de banho completas; - Três Quartos; - Casa de banho completa de apoio aos quartos; - Arrecadação. * Todo o piso do 1º andar é em soalho de madeira corrido Piso -1 (com acesso pelo Jardim) com: - Garagem para cinco automóveis; - Arrecadação/Casa das Máquinas; - WC. - Anexo, nas traseiras da Moradia, ao nível do Piso – 1, com duas divisões, uma WC e saída directa para o Jardim. Jardim em redor da casa com: - Piscina; - Casa de Porteiro; - Zona de estacionamento com piso em calçada. A Moradia é muito luminosa e dispõe de uma óptima Exposição Solar, sendo as divisões principais da casa viradas a Sul/Poente. Localizada numa zona residencial, muito tranquila e a cerca de: - 10 min. a pé do Paredão e das Praias do Monte Estoril e Estoril; - 5 min. de carro da Escola Salesianos do Estoril; - 5 min. a pé da Santo António International School; - 10 min. de carro do Centro de Cascais; - 10 min. da Deutsche Schule Lissabon; - 15 min. de carro da Beloura, das Escolas Carlucci American International School of Lisbon e TASIS Portugal International School; - Com fácil acesso à Marginal, à A5 e A16. Agende a sua Visita e venha conhecer esta Fantástica Moradia! Fazemos Partilhas com outras Imobiliárias.
AMI: 16230
Ref. Externa: CC-010240183II
Id: 1471306
Inicie sessão para guardar este imóvel e aceder à sua lista de favoritos em qualquer dispositivo.
1.750.000 €
4 Quartos
4 WCs
Área bruta : 336 m²
Moradia Independente T4 em Cascais, Abuxarda Com uma óptima localização, inserida numa zona residencial e tranquila. Está inserida num Lote de terreno com 418m2 e dispõe das seguintes áreas: - Área bruta de construção: 335,65m2 - Área bruta privativa: 207,70 -Área bruta dependente: 127,95m2 A Moradia tem 3 pisos e é estrutura da seguinte forma: Piso 0: - Hall entrada - Sala de Estar com acesso a deck, piscina e jardim - Cozinha moderna em open space, totalmente equipada com eletrodomésticos de alta gama e com uma ilha - Jardim de Inverno - 1 Casa de Banho completa com duche - 1 Quarto/Escritório Piso 1 - 3 suites, uma delas com Varanda, Vista desafogada/Vista Mar, com armários embutidos Piso -1 - Garagem com capacidade para 4 carros e portão elétrico - Lavandaria Jardim com espaços verdes Piscina com deck O Lote dispõe de duas entradas independentes, uma pedonal na frente da moradia e outra nas traseiras com portão para entrada de carros e acesso à garagem. A moradia dispõe ainda de: - Estores eléctricos; - Armários embutidos em todos os quartos; - Painéis solares; - Ar condicionado por conduta; - Ventilação Central; - Piso radiante; - Iluminação geral em led; - Caixilharia em alumínio com corte térmico e acústico; - Vidros duplos; - Óptima exposição solar. Dispõe de uma excelente localização, estando rodeado de escolas, restaurantes, cafés, clínicas médicas e hospitais, farmácias, supermercados e localizada a cerca de: - 2 min carro da A5 e A16. - 10 min de carro da Marginal, Centro de Cascais, Paredão e Praias da Linha de Cascais; - 5 min de carro do Colégio Amor de Deus de Cascais; - 10 min. de carro da Beloura, e das Escolas Carlucci American International School of Lisbon e TASIS Portugal International School - 5 min carro do Cascaishopping; - 20 min carro de Lisboa. Agende a sua visita e venha conhecer esta Fantástica Moradia! Fazemos Partilha com outras Imobiliárias.
AMI: 16230
Ref. Externa: 010240207-1
Id: 1468912
Inicie sessão para guardar este imóvel e aceder à sua lista de favoritos em qualquer dispositivo.
785.000 €
4 Quartos
5 WCs
Área bruta : 196 m²
Apartamento T4 (Duplex) no Condomínio Privado “LUNNA”, em Loures 6º Piso Inserido em Condomínio de Luxo, num prédio com 7 pisos e 20 apartamentos de tipologia T2 a T5. Destaca-se pelos seus acabamentos com materiais de elevada qualidade e pelas comodidades que oferece, nomeadamente Garagem, Jardim e Ginásio comuns e Rooftop com Piscina aquecida com vista panorâmica, garantindo o conforto e bem-estar aos seus moradores. O Apartamento é um Duplex, dispõe de 195,77 m² de área e está estruturado da seguinte forma: Piso 0 - Hall de entrada com 10,71m2; - Sala em open space com a Cozinha, totalmente equipada, com 37,84m2 e acesso a Varanda com 7,52 m²; - Suite 1 com casa de banho completa com duche com 20,95m2; - Suite 2 com casa de banho completa com duche com 20,62m2; - Lavabo Social com 3,25 m2 - Varanda com 7,56m2, com acesso pelas duas Suites. Piso 1 - Hall com 2,35 m2; - Suite 3 com casa de banho completa com duche com 27,49 m2 e com Closet; - Terraço com 16,76m2 com acesso pela Suite 3; - Suite 4 com casa de banho completa com duche com 22,37m2; - Pátio com 8,21 m2, com acesso pela Suite 4. O apartamento dispõe das seguintes características e acabamentos: - Estacionamento em Box na garagem colectiva do prédio; - Ar condicionado; - Armários embutidos em todos os quartos; - Estores térmicos elétricos; - Iluminação LED; - Painéis Solares (águas quentes com termossifão e termoacumulador); - Pré-instalação para painéis fotovoltaicos; - Caixilharia com corte térmico; - Chão flutuante em carvalho. - Carpintarias lacadas a branco; - Cerâmicos Margrés Linha Calacata; - Torneiras Bruma; - Portas de segurança Dierre; - Aspirador robot e Aspirador vertical; - Wallbox para carregamento de veículos elétricos; - Piscina aquecida comum com vista panorâmica no rooftop do edifício; - Ginásio comum com terraço; - Inserido em prédio com dois elevadores; - Classificação Energética: A. O Apartamento dispõe de uma óptima exposição solar. Localiza-se no centro de Loures, numa zona residencial tranquila, a poucos minutos de diversos supermercados, farmácias, bancos, do Hospital Beatriz Ângelo e de diversos tipos de comércio e serviços. Com fácil acesso às principais vias, designadamente à A8, A9, CRIL, IC22, CREL, Ponte Vasco da Gama, a cerca de 10km do Aeroporto e 15 km de Lisboa. Em breve terá também a futura estação de metro de Loures, a poucos minutos de distância. Previsão de Conclusão: ano 2027. Agende a sua visita e venha conhecer este fantástico Apartamento! Fazemos Partilhas com outras Agências Imobiliárias.
AMI: 16230
Ref. Externa: 010250236-6Dto.
Id: 1446532
Inicie sessão para guardar este imóvel e aceder à sua lista de favoritos em qualquer dispositivo.
860.000 €
3 Quartos
4 WCs
Área bruta : 220 m²
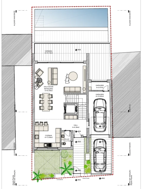
Moradia T3 na Amoreira - Estoril. Com Jardim, Piscina e Garagem A Moradia tem 220m2 de área e está inserida num terreno com 190m2. É composta por 3 pisos e estruturada da seguinte forma: R/C - Sala Comum com 40m2 com acesso directo ao jardim e Piscina; - Cozinha equipada com 11m2 em open space com a sala; - Lavabo Social. 1º Piso - Suite com armário embutido, com 22m2 e casa de banho completa - Dois Quartos com Varanda , com 14m2 cada, e ambos com armários embutidos; - Uma Casa de banho completa de apoio aos dois quartos, com 3,5m2. Piso -1 - Garagem para 2 automóveis; - Lavandaria; - WC. Jardim exterior. Piscina com cascata (5mx4m). Dispõe de uma boa Exposição Solar (Nascente / Poente). A Moradia dispõe ainda das seguintes características / acabamentos: - Ar condicionado; - VMC (Ventilação Mecânica Controlada); - Aspirador robot e Aspirador Vertical; - Painéis Solares (águas quentes com termo-sifão e termoacumulador); - Pré-instalação para Painéis Fotovoltaicos; - Pré-instalação de Alarme; - Wallbox para carregamento de Veículo Elétrico; - Caixilharia com corte térmico; - Estores térmicos e elétricos; - Iluminação LED; - Chão flutuante em carvalho; - Carpintaria lacadas a branco; - Cerâmicos Margrés Linha Calacata; - Torneiras Bruma; - Portas de segurança Dierre. Situada numa zona residencial, muito tranquila, rodeada de espaços verdes e diversos Supermercados, Farmácias, Escolas Portuguesas e Internacionais, Bancos e todo o tipo de comércio e serviços. Encontra-se a menos de 5 min do centro da Amoreira e do centro do Estoril; a 5 min da Marginal, Paredão e Praias da linha do Estoril; a 8 min do centro da Cascais e das Praias de Cascais; a 4 min do Pingo Doce do Estoril Amoreira; a 5 min do Hospital de Cascais e do CascaiShopping; a 5 min da A5 (acesso a Lisboa) e A16 (acesso a Sintra); a 10 min da Quinta Beloura; a 15 min da Vila de Sintra; a 25 min de Lisboa e Aeroporto. Agende a sua visita! Fazemos Partilhas com outras Agências Imobiliárias.
AMI: 16230
Ref. Externa: CC-0102502397
Id: 1442654
Inicie sessão para guardar este imóvel e aceder à sua lista de favoritos em qualquer dispositivo.
997.500 €
5 Quartos
8 WCs
Área bruta : 441 m²
Fantástica Moradia Independente Localizada em zona residencial em Loures Com Piscina e Páteo no exterior Dispõem de uma excelente Exposição Solar, com todas as divisões viradas a Nascente e Poente. A Moradia dispõe das seguintes áreas: - Área Bruta de Construção: 440,75m2 - Área Bruta Privativa: 415,75m2 - Área Bruta Dependente: 25,00m2 - Lote de terreno: 248,10m2 A Moradia é composta por 4 pisos, distribuídos da seguinte forma: Piso 0 - Hall de entrada - Sala de estar e jantar muito espaçosa e luminosa, com acesso a Terraço com vista desafogada e panorâmica; - Lavabo Social: - Cozinha em open space com a sala, totalmente equipada com electrodomésticos da marca Bosch e armários lacados cinza claro. Dispõe de máquina de lavar loiça, frigorífico e congelador, microondas, forno, fogão, exaustor e garrafeira; - Garagem box para um carro, com Carregador Eléctrico e Portão Eléctrico, acesso directo ao hall de entrada e porta para a Lavandaria; - Lavandaria com máquina lavar roupa e caldeira. Piso 1 - Hall - 1 Suite com walk-in closet e casa de banho completa com duche e acesso a uma Varanda com vista desafogada; - 1 Suite com walk-ing closet e casa de banho completa, com duche. Piso -1 - 1 Sala ampla com acesso a Varanda com vista desafogada e panorâmica; - Lavabo social; - Arrecadação; - 1 Suite com walk-in closet e casa de banho completa com duche e acesso a um Terraço; - 1 Suite com walk-ing closet e casa de banho completa; Piso -2 - 1 Sala ampla com acesso a Varanda e Portas de vidro de acesso ao Páteo e Piscina; - Lavabo social; - 1 Suite com walk-in closet e casa de banho completa com duche, e com porta de vidro de acesso ao Páteo e Piscina; - Piscina e Páteo exteriores. A Moradia dispõe de: - Ar Condicionado nas salas e quartos; - Aspiração Central; - Estores Eléctricos; - Elevador para os 4 pisos; - Leds nos armários da cozinha; - Carregador Eléctrico na Garagem; - Portão da Garagem e Portão do Exterior Eléctricos; - Vidros duplos; - Caixilharia em Alumínio com corte térmico; - Closets em todos os quartos. Tem uma óptima Localização, estando situada numa zona tranquila e residencial, rodeada de espaços verdes, apenas a 15 km de Lisboa. Próxima do centro da cidade de Loures e de diversos supermercados, farmácias, bancos, diversos tipos de comércio e serviços. Encontra-se a cerca de 7 min. de carro do Hospital Beatriz Ângelo e com fácil acesso às principais vias, designadamente à A8, CRIL, IC22, CREL, Aeroporto, Ponte Vasco da Gama. Em breve terá também a futura estação de metro de Loures, a poucos minutos de distância. Agende já a sua visita! Fazemos Partilhas com outras Imobiliárias.
AMI: 16230
Ref. Externa: CC-010250219-II
Id: 1332932
Inicie sessão para guardar este imóvel e aceder à sua lista de favoritos em qualquer dispositivo.
4 Quartos
3 WCs
Área bruta : 145 m²
Fantástica Moradia Independente T4+1 Na Alapraia, Estoril Totalmente renovada em 2013 (substituída a canalização, o sistema eléctrico, os esgotos, telhado novo, renovação das casas de banho e cozinha) Inserida num Lote de terreno de 269m2 A Moradia dispõe das seguintes áreas: - Área Bruta de Construção: 145m2 - Área Bruta Privativa: 134m2 - Área Bruta Dependente: 11m2 A Moradia é composta por 3 Pisos e distribuída da seguinte forma: R/C: - Sala Comum - Escritório - Cozinha com porta de acesso ao jardim - Casa de banho completa com duche 1º Andar: - 2 Quartos amplos e com muita luz - 1 Quarto mais pequeno - Casa de banho completa com duche - Terraço com vista desafogada para o jardim e para espaços verdes envolventes Piso -1 (com acesso pela sala, através de escadas em caracol) 1 Quarto/Arrecadação sem luz natural Jardim dispõe de: - Anexo em alvenaria, com casa WC - Pequeno pomar, com laranjeira, limoeiro, romanzeira... - Piscina amovível Poderá facilmente ser transformada em dois apartamentos, porque tem 2 entradas independentes, uma para o R/C e outra para o 1º Andar A moradia dispõe de uma Excelente Exposição Solar. Tem uma Óptima Localização. Situada numa zona residencial, calma e rodeada de zonas verdes, supermercados, restaurantes, farmácias e a cerca de: - 5 min de carro do centro do Estoril - 5 min de carro do Clube ténis do Estoril - 5 min de carro da A5 (acesso Estoril) - 10 min de carro do Paredão e da Praia da Poça - 10 min de carro da Avenida Marginal - 4 min de carro do Supermercado Continente do Estoril - 7 min de carro do Casino Estoril - 10 min de carro do Hospital de Cascais - 20 min de carro de Lisboa Agenda a sua visita e venha conhecer esta Fantástica Moradia. Fazemos Partilhas com outras Imobiliárias.
AMI: 16230
Ref. Externa: 010240205-2
Id: 1257074
Inicie sessão para guardar este imóvel e aceder à sua lista de favoritos em qualquer dispositivo.
550.000 €
2 Quartos
1 WCs
Área bruta : 252 m²
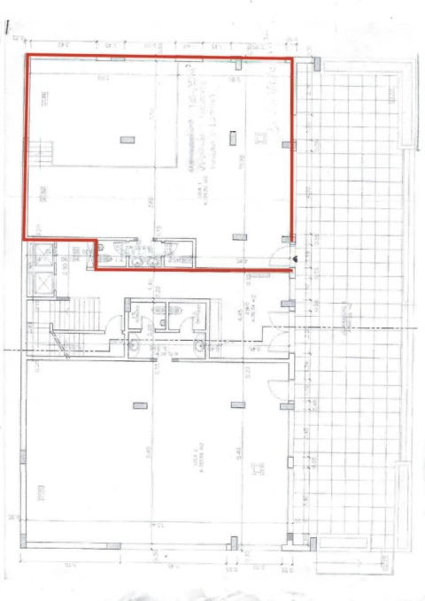
Fantástico Espaço Comercial/Loja no Centro de Lisboa Com Montra para a rua Inserido num prédio novo, construído em 2021. Localizada numa das mais prestigiadas zonas de Lisboa. Sita na Rua Ferreira Lapa, junto à Av. Duque de Loulé e a poucos minutos do Marquês de Pombal. Loja com 238,40 m2 em Open Space e com uma Divisão de 12,90 m2, que pode ser utilizada como escritório, com visibilidade para o open space. O Espaço dispõe ainda de uma WC. Dispõe de Pré-instalação para Ar Condicionado. A configuração do espaço, permite fazer Loja junto à montra e armazém na rectaguarda, Este Espaço Comercial adapta-se para vários tipos de comércio/serviços, nomeadamente e a título de exemplo: - loja; - escritórios (advogados, contabilidade, imobiliárias, etc. ); - espaço coworking; - clínicas médicas e/ou dentárias; - Clínicas veterinárias - consultórios; - cabeleireiros; - centros de estética; - centros de explicações; - escolas de línguas; - ginásios; - supermercados; - entre outros. Esta zona é caracterizada por uma forte componente residencial com um intenso tráfego pedonal, e circulação automóvel. Excelente investimento. Contacte-nos e marque a sua visitar! Aceitamos Partilhas com outras Imobiliárias.
AMI: 16230
Ref. Externa: CC-010220134-2
Id: 1253478
Inicie sessão para guardar este imóvel e aceder à sua lista de favoritos em qualquer dispositivo.
Inicie sessão para ocultar este imóvel das suas pesquisas e manter a sua lista de resultados organizada.
Casa Central - Mediação Imobiliária
Consultor imobiliário em Casa Central - Mediação Imobiliária - AMI: 16230
Compre créditos para poder destacar os seus imóveis! Desta forma eles são os primeiros a aparecer nas pesquisas e têm uma maior chance de serem vistos pelos utilizadores.
© Copyright 2023 | CASACERTA. All rights reserved
Guardar favoritos
Este imóvel foi guardados nos seus favoritos com sucesso.
Para poder guardar pesquisa deverá ter a sua sessão iniciada.
Caso não tenha uma conta, deverá criar uma.
A sua pesquisa foi guardada com sucesso!
Este site utiliza cookies. Ao navegar no site estará a consentir a sua utilização.
Para mais informações sobre os cookies pode consultar a
política de privacidade.