Consultor imobiliário em Casas In Porto - AMI: 12820
Comprar
Arrendar
10 Quartos
Área bruta : 354 m²
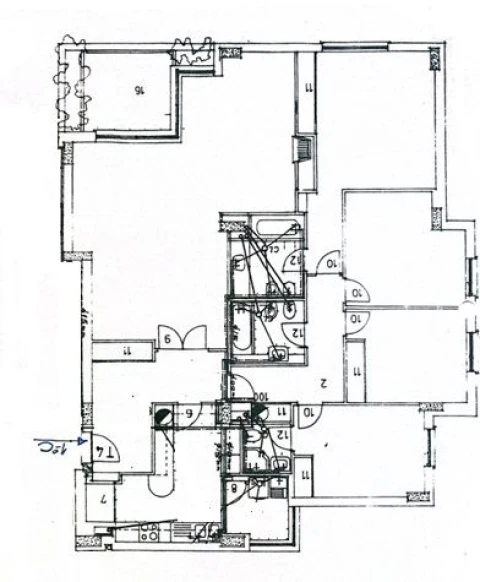
Prédio com Projecto Aprovado no Coração do Porto Excelente oportunidade de aquisição de um prédio em regime de propriedade horizontal, estrategicamente localizado na zona histórica do Porto Numa das localizações mais dinâmicas e trendy da cidade do Porto. Conhecida pelo seu ambiente cosmopolita e pela preservação do traçado arquitectónico tradicional, a zona tem atraído uma nova vaga de comércio criativo, cafés de especialidade e projetos de habitação premium. A sua localização privilegiada oferece excelentes acessos à Baixa, à zona das Antas e à rede de transportes públicos (Metro e Comboio), tornando-a altamente atrativa tanto para o mercado residencial como para o turismo. Principais Características: - Composição: O imóvel é constituído por 4 frações autónomas. - Uso: Destinado a habitação e comércio, oferecendo versatilidade para diferentes projetos de rentabilização. - Estado: Atualmente em estado de ruína, o que representa uma tela em branco ideal para reabilitação integral. - Licenciamento: Conta com licença de construção já averbada (Processo de 2025), facilitando o arranque do projeto de recuperação. CASAS IN PORTO - THE BEST IN CLASS
AMI: 12820
Ref. Externa: Prédio_InPorto_4950
Id: 1759065
Inicie sessão para guardar este imóvel e aceder à sua lista de favoritos em qualquer dispositivo.
2 Quartos
3 WCs
Área bruta : 142 m²
Localizado junto à Ria "A Veneza de Portugal" A escassos metros do Centro da Cidade, o JC – BARROCAS APARTMENTS está próximo dos principais serviços e instituições. Construído e equipado com materiais rigorosamente selecionados, garantia de um investimento com valorização patrimonial. Integrado na cidade com a natureza como pano de fundo, este é um projeto de referência em Aveiro. T2 de Luxo Constituído por: - Hall de entrada - Corredor de circulação - Sala comum e cozinha em open space, com acesso à varanda - Quarto - Suite - Arrumos; - Lugar de garagem - Elevador - Sala de Condomínio - Caixilharias de série minimalista com corte térmico - Vidros com controlo de ganhos solares, com proteção interior em blackout - Pavimentos vinílicos de alto padrão, sem libertação de substâncias voláteis e no estrito cumprimento das normas ambientais europeias - Instalações sanitárias revestidas com materiais compósitos ou grés porcelânico de alta qualidade - Louças sanitárias suspensas da Roca com tampos amortecidos - Torneiras sanitárias e colunas de duche da Ofa - Porta de entrada Anti-Intrusão, Corta-Fogo, com atenuação acústica - Iluminação direta e indireta em Led - Carpintarias lacadas - Armários e roupeiros embutidos - Cozinhas totalmente equipadas com tampos em Dekton - Tela de amortecimento acústico entre pisos - Tetos e paredes, em zonas húmidas, revestidas com Aquapanel EQUIPAMENTOS - Domótica integrada - Ventilação mecânica de instalações sanitárias - Ar Condicionado e Bomba de Calor Daikin - Exaustores Küppersbusch - Pios e Misturadoras Küppersbusch - Placas de Indução Küppersbusch - Micro-ondas Küppersbusch - Forno Küppersbusch - Combinado integrável Küppersbusch - Máquina de Lavar-loiça Küppersbusch - Máquina de Lavar/Secar roupa Teka Küppersbusch CASAS IN PORTO - THE BEST IN CLASS
AMI: 12820
Ref. Externa: Ap_InAveiro_3797
Id: 1751555
Inicie sessão para guardar este imóvel e aceder à sua lista de favoritos em qualquer dispositivo.
3 Quartos
3 WCs
Área bruta : 203 m²
Localizado junto à Ria "A Veneza de Portugal" A escassos metros do Centro da Cidade, o JC – BARROCAS APARTMENTS está próximo dos principais serviços e instituições. Construído e equipado com materiais rigorosamente selecionados, garantia de um investimento com valorização patrimonial. Integrado na cidade com a natureza como pano de fundo, este é um projeto de referência em Aveiro. T3 de Luxo Constituído por: - Hall de entrada - Sala comum e cozinha em open space, com acesso a uma varanda - Lavandaria - Hall de circulação - 1 Suite com acesso a uma varanda - 2 Quartos com acesso a uma varanda - WC completo - WC de serviço - 2 Varandas - Arrumos - 2 garagens fechadas - Elevador - Sala de Condomínio - Caixilharias de série minimalista com corte térmico - Vidros com controlo de ganhos solares, com proteção interior em blackout - Pavimentos vinílicos de alto padrão, sem libertação de substâncias voláteis e no estrito cumprimento das normas ambientais europeias - Instalações sanitárias revestidas com materiais compósitos ou grés porcelânico de alta qualidade - Louças sanitárias suspensas da Roca com tampos amortecidos - Torneiras sanitárias e colunas de duche da Ofa - Porta de entrada Anti-Intrusão, Corta-Fogo, com atenuação acústica - Iluminação direta e indireta em Led - Carpintarias lacadas - Armários e roupeiros embutidos - Cozinhas totalmente equipadas com tampos em Dekton - Tela de amortecimento acústico entre pisos - Tetos e paredes, em zonas húmidas, revestidas com Aquapanel EQUIPAMENTOS - Domótica integrada - Ventilação mecânica de instalações sanitárias - Ar Condicionado e Bomba de Calor Daikin - Exaustores Küppersbusch - Pios e Misturadoras Küppersbusch - Placas de Indução Küppersbusch - Micro-ondas Küppersbusch - Forno Küppersbusch - Combinado integrável Küppersbusch - Máquina de Lavar-loiça Küppersbusch - Máquina de Lavar/Secar roupa Teka Küppersbusch CASAS IN PORTO - THE BEST IN CLASS
AMI: 12820
Ref. Externa: Ap_InAveiro_3855
Id: 1751558
Inicie sessão para guardar este imóvel e aceder à sua lista de favoritos em qualquer dispositivo.
3 Quartos
3 WCs
Área bruta : 199 m²
Localizado junto à Ria "A Veneza de Portugal" A escassos metros do Centro da Cidade, o JC – BARROCAS APARTMENTS está próximo dos principais serviços e instituições. Construído e equipado com materiais rigorosamente selecionados, garantia de um investimento com valorização patrimonial. Integrado na cidade com a natureza como pano de fundo, este é um projeto de referência em Aveiro. T3 de Luxo Constituído por: - Hall de entrada - Sala comum e cozinha em open space, com acesso a uma varanda - Lavandaria - Hall de circulação - 1 Suites com acesso a uma varanda - 2 Quartos com acesso a uma varanda - WC completo - WC de serviço - 2 Varandas - Arrumos - 2 Lugares de garagem - Elevador - Sala de Condomínio - Caixilharias de série minimalista com corte térmico - Vidros com controlo de ganhos solares, com proteção interior em blackout - Pavimentos vinílicos de alto padrão, sem libertação de substâncias voláteis e no estrito cumprimento das normas ambientais europeias - Instalações sanitárias revestidas com materiais compósitos ou grés porcelânico de alta qualidade - Louças sanitárias suspensas da Roca com tampos amortecidos - Torneiras sanitárias e colunas de duche da Ofa - Porta de entrada Anti-Intrusão, Corta-Fogo, com atenuação acústica - Iluminação direta e indireta em Led - Carpintarias lacadas - Armários e roupeiros embutidos - Cozinhas totalmente equipadas com tampos em Dekton - Tela de amortecimento acústico entre pisos - Tetos e paredes, em zonas húmidas, revestidas com Aquapanel EQUIPAMENTOS - Domótica integrada - Ventilação mecânica de instalações sanitárias - Ar Condicionado e Bomba de Calor Daikin - Exaustores Küppersbusch - Pios e Misturadoras Küppersbusch - Placas de Indução Küppersbusch - Micro-ondas Küppersbusch - Forno Küppersbusch - Combinado integrável Küppersbusch - Máquina de Lavar-loiça Küppersbusch - Máquina de Lavar/Secar roupa Teka Küppersbusch CASAS IN PORTO - THE BEST IN CLASS
AMI: 12820
Ref. Externa: Ap_InAveiro_3851
Id: 1751556
Inicie sessão para guardar este imóvel e aceder à sua lista de favoritos em qualquer dispositivo.
3 Quartos
3 WCs
Área bruta : 203 m²
Localizado junto à Ria "A Veneza de Portugal" A escassos metros do Centro da Cidade, o JC – BARROCAS APARTMENTS está próximo dos principais serviços e instituições. Construído e equipado com materiais rigorosamente selecionados, garantia de um investimento com valorização patrimonial. Integrado na cidade com a natureza como pano de fundo, este é um projeto de referência em Aveiro. T3 de Luxo Constituído por: - Hall de entrada - Sala comum e cozinha em open space, com acesso a uma varanda - Lavandaria - Hall de circulação - 1 Suite com acesso a uma varanda - 2 Quartos com acesso a uma varanda - WC completo - WC de serviço - 2 Varandas - Arrumos - 2 garagens fechadas - Elevador - Sala de Condomínio - Caixilharias de série minimalista com corte térmico - Vidros com controlo de ganhos solares, com proteção interior em blackout - Pavimentos vinílicos de alto padrão, sem libertação de substâncias voláteis e no estrito cumprimento das normas ambientais europeias - Instalações sanitárias revestidas com materiais compósitos ou grés porcelânico de alta qualidade - Louças sanitárias suspensas da Roca com tampos amortecidos - Torneiras sanitárias e colunas de duche da Ofa - Porta de entrada Anti-Intrusão, Corta-Fogo, com atenuação acústica - Iluminação direta e indireta em Led - Carpintarias lacadas - Armários e roupeiros embutidos - Cozinhas totalmente equipadas com tampos em Dekton - Tela de amortecimento acústico entre pisos - Tetos e paredes, em zonas húmidas, revestidas com Aquapanel EQUIPAMENTOS - Domótica integrada - Ventilação mecânica de instalações sanitárias - Ar Condicionado e Bomba de Calor Daikin - Exaustores Küppersbusch - Pios e Misturadoras Küppersbusch - Placas de Indução Küppersbusch - Micro-ondas Küppersbusch - Forno Küppersbusch - Combinado integrável Küppersbusch - Máquina de Lavar-loiça Küppersbusch - Máquina de Lavar/Secar roupa Teka Küppersbusch CASAS IN PORTO - THE BEST IN CLASS
AMI: 12820
Ref. Externa: Ap_InAveiro_3853
Id: 1751557
Inicie sessão para guardar este imóvel e aceder à sua lista de favoritos em qualquer dispositivo.
2 Quartos
1 WCs
Área bruta : 67 m²
Excelente T2 - Próximo ao Metro - Aliados Situado no epicentro da vida portuense, este apartamento totalmente renovado surge como uma afirmação de bom gosto e exclusividade. Zona emblemática dos Aliados, o imóvel preserva o charme da arquitetura histórica, integrando-o harmoniosamente com um design contemporâneo e funcional. Uma exposição solar privilegiada que valoriza os acabamentos de luxo e os materiais nobres. - Conceito open space, comunicando de forma fluida com uma cozinha equipada com tecnologia de ponta, o cenário ideal para o convívio cosmopolita. - Quartos concebidos para o silêncio e o bem-estar, garantindo total privacidade em pleno coração da cidade. A localização estratégica oferece acesso imediato a: - Cultura e monumentos icónicos; - Comércio tradicional e marcas de luxo; - Restauração de renome e toda a rede de transportes. Esta é uma oportunidade única para quem privilegia a distinção e deseja habitar num espaço com a alma vibrante da cidade, sem abdicar do conforto de uma habitação moderna de alta gama. CASAS IN PORTO - THE BEST IN CLASS Imóvel com Classe Energética: (*). (*) Devido à recente alteração da legislação sobre certificação energética de edifícios (Decreto-Lei n.º 1182013, de 20 de Agosto) e ao elevado número de processos em curso, o certificado energético deste imóvel já foi solicitado, mas encontra-se em fase de apreciação e desenvolvimento pelas entidades competentes.
AMI: 12820
Ref. Externa: Ap_InPorto_4963
Id: 1748965
Inicie sessão para guardar este imóvel e aceder à sua lista de favoritos em qualquer dispositivo.
3 Quartos
4 WCs
Área bruta : 201 m²
Localizado junto à Ria "A Veneza de Portugal" A escassos metros do Centro da Cidade, o JC – BARROCAS APARTMENTS está próximo dos principais serviços e instituições. Construído e equipado com materiais rigorosamente selecionados, garantia de um investimento com valorização patrimonial. Integrado na cidade com a natureza como pano de fundo, este é um projeto de referência em Aveiro. T3 de Luxo Constituído por: - Hall de entrada - Sala comum e cozinha em open space, com acesso a uma varanda - Hall de circulação - 2 Suites com acesso a uma varanda - 1 Quarto com acesso a uma varanda - WC completo - WC de serviço - 2 Varandas - Arrumos - 2 garagens fechadas - Elevador - Sala de Condomínio - Caixilharias de série minimalista com corte térmico - Vidros com controlo de ganhos solares, com proteção interior em blackout - Pavimentos vinílicos de alto padrão, sem libertação de substâncias voláteis e no estrito cumprimento das normas ambientais europeias - Instalações sanitárias revestidas com materiais compósitos ou grés porcelânico de alta qualidade - Louças sanitárias suspensas da Roca com tampos amortecidos - Torneiras sanitárias e colunas de duche da Ofa - Porta de entrada Anti-Intrusão, Corta-Fogo, com atenuação acústica - Iluminação direta e indireta em Led - Carpintarias lacadas - Armários e roupeiros embutidos - Cozinhas totalmente equipadas com tampos em Dekton - Tela de amortecimento acústico entre pisos - Tetos e paredes, em zonas húmidas, revestidas com Aquapanel EQUIPAMENTOS - Domótica integrada - Ventilação mecânica de instalações sanitárias - Ar Condicionado e Bomba de Calor Daikin - Exaustores Küppersbusch - Pios e Misturadoras Küppersbusch - Placas de Indução Küppersbusch - Micro-ondas Küppersbusch - Forno Küppersbusch - Combinado integrável Küppersbusch - Máquina de Lavar-loiça Küppersbusch - Máquina de Lavar/Secar roupa Teka Küppersbusch CASAS IN PORTO - THE BEST IN CLASS
AMI: 12820
Ref. Externa: Ap_InAveiro_3854
Id: 1746489
Inicie sessão para guardar este imóvel e aceder à sua lista de favoritos em qualquer dispositivo.
220.000 €
Área de terreno : 232 m²
Terreno com Projeto Aprovado | Edifício Multifamiliar em Rio Tinto Excelente oportunidade para aquisição de um terreno urbano com projeto já estruturado para a construção de um edifício de habitação multifamiliar. O projeto, foca-se na otimização de espaço e na rentabilidade, apresentando uma solução moderna e funcional. O projeto prevê a construção de um edifício distribuído por 4 pisos, servidos por um elevador que interliga todos os níveis, desde o estacionamento até ao último andar de habitação: - Piso -1 (Cave): Destinado a garagem e áreas técnicas, com uma área de implantação de 174 m². Inclui casa de máquinas e acessos diretos ao elevador e escadas. - Piso 0 (R/Chão): Composto por duas unidades habitacionais (T0 e T1). Este piso destaca-se pelas generosas áreas exteriores, incluindo um logradouro de 59 m² e um terraço de 48 m². - Piso 1 (1º Andar): Constituído por dois apartamentos de tipologia T1 (T1 e T1). - Piso 2 (2º Andar): Inclui mais duas unidades (T0), uma das fracções beneficia de um terraço privativo de 30 m². O projeto foi planeado para garantir conforto e durabilidade, com especificações de materiais de qualidade: Zonas Exteriores: Pavimentos em cubo de granito, deck de madeira e placagem em pedra Moleanos. Interiores: Quartos e salas com pavimento em madeira e cozinhas totalmente equipadas (previsão para fogão, forno, frigorífico e máquinas). Logística: O terreno prevê a cedência de área para a criação de 4 lugares de estacionamento público à face da rua, valorizando a envolvente do edifício. Localização estratégica, o imóvel beneficia da proximidade a transportes (Comboio e Metro Linha F), serviços e comércio (Parque Nascente), sendo uma zona com elevada procura para arrendamento e habitação jovem. CASAS IN PORTO - THE BEST IN CLASS
AMI: 12820
Ref. Externa: Terreno_Gondomar_4961
Id: 1744374
Inicie sessão para guardar este imóvel e aceder à sua lista de favoritos em qualquer dispositivo.
2 Quartos
1 WCs
Área bruta : 83 m²
T2 Duplex, a 500m da Praia - Matosinhos Sul Situado numa das zonas mais dinâmicas e procuradas de Matosinhos, este imóvel beneficia de uma localização privilegiada, a poucos minutos a pé da Praia de Matosinhos e do Parque da Cidade. A envolvência é rica em comércio local, restauração de referência e excelentes acessos a transportes públicos, incluindo o Metro. O apartamento apresenta uma configuração duplex que privilegia a luz natural: Piso Principal: - Sala comum luminosa, cozinha funcional, - Quarto com roupeiro - WC completo, moderno, com base de duche e toalheiro elétrico.. Piso Superior: - O sótão oferece um segundo quarto privativo, garantindo tranquilidade e isolamento acústico da zona social. Exterior: - Possui uma pequena varanda de apoio no piso principal. - Ar Condicionado. - Estores elétricos; - Janelas oscilobatentes de alta qualidade; - Vídeo Porteiro/Intercomunicador. Uma solução ideal para quem procura o estilo de vida citadino com o conforto de ter o mar como vizinho. CASAS IN PORTO - THE BEST IN CLASS
AMI: 12820
Ref. Externa: Ap_InMatosinhos_4960
Id: 1741047
Inicie sessão para guardar este imóvel e aceder à sua lista de favoritos em qualquer dispositivo.
475.000 €
2 Quartos
2 WCs
Área bruta : 133 m²
T2 Novo com Vista Panorâmica sobre o Quinta do Covelo No coração do Porto, onde o tecido urbano costuma impor limites ao olhar, surge este T2 novo como uma excepção absoluta. Posicionado estrategicamente frente á Quinta do Covelo, o apartamento não oferece apenas uma casa, mas uma moldura viva e permanente sobre a natureza. O design de interiores foi pensado para maximizar a entrada de luz e a sensação de liberdade. A transição entre divisões é fluida, destacando-se a sala que se prolonga visualmente para as copas das árvores do parque, anulando a fronteira entre o interior e o exterior. Destaques do Imóvel: - Sala ampla com ligação visual direta para a varanda principal, proporcionando uma sensação de amplitude e bem-estar. - Cozinha Premium, totalmente equipada com eletrodomésticos Siemens. - Suíte com casa de banho privativa e acesso direto a uma varanda. - Segundo quarto apoiado por uma casa de banho completa e também com acesso independente à sua própria varanda. - Ar condicionado e aquecimento central. - Lugar de garagem e arrumo. - Elevador. Situado numa zona estratégica que combina conveniência e lazer: - Proximidade imediata ao Parque do Covelo. - A poucos minutos da estação de Metro do Marquês e do Pólo Universitário. - Excelentes acessos rodoviários e rodeado por uma rede completa de comércio, serviços e escolas. CASAS IN PORTO - THE BEST IN CLASS
AMI: 12820
Ref. Externa: Ap_InPorto_4959
Id: 1738823
Inicie sessão para guardar este imóvel e aceder à sua lista de favoritos em qualquer dispositivo.
495.000 €
3 Quartos
3 WCs
Área bruta : 237 m²
OPORTO PALACE T3+1 de Luxo com Jardim no Coração do Bonfim, onde o Design encontra a História Situado junto à icónica Igreja do Bonfim, este apartamento exclusivo redefine o conceito de "viver bem" no Porto. Inserido num edifício de ambiente familiar e discreto, esta é uma casa pensada para quem valoriza a elegância intemporal e a serenidade urbana. Destaca-se pela seleção criteriosa de materiais e por uma arquitetura que privilegia a luz natural do Porto. Constituído por: - Sala comum em open space, com uma cozinha de alta gama (equipada com tecnologia Bosch). - Hall de distribuição - Suíte com roupeiros e acabamentos premium. - Quartos com roupeiros embutidos. - O espaço adicional (+1) destaca-se pela sua versatilidade, podendo ser adaptado como um quarto extra, um escritório independente ou uma zona de arrumação. - WC completo com design contemporâneo, de apoio aos 2 quartos. - WC de serviço. - Jardim com uma excelente área e com acesso a todas as divisões. - Caixilharias em alumínio com corte térmico e vidros duplos. - Pré-instalação de blackouts elétricos. - Pré-instalação de ar condicionado em todas as divisões. - Bomba de calor para aquecimento de águas sanitárias. - 2 Lugares de garagem com ponto de carregamento elétrico. - Elevador Edifício cumprindo os mais rigorosos padrões de segurança antissísmica. Zona com comércio, serviços e transportes rodoviários, estações de metro: Campo 24 de Agosto/Campanhã e estação de comboios. O equilíbrio perfeito entre a tranquilidade residencial e o acesso imediato à VCI e ao centro da cidade. Localizado em Área de Reabilitação Urbana (ARU), este imóvel beneficia de Isenção de IMT e IMI, representando uma oportunidade única de investimento ou habitação própria com benefícios fiscais significativos. CASAS IN PORTO - THE BEST IN CLASS
AMI: 12820
Ref. Externa: Ap_InPorto_4958
Id: 1736355
Inicie sessão para guardar este imóvel e aceder à sua lista de favoritos em qualquer dispositivo.
2 Quartos
2 WCs
Área bruta : 135 m²
T2+1 de Luxo - Elegância e Modernidade no Coração do Porto Sofisticado apartamento, inserido num projeto de reconstrução que alia o charme histórico da cidade à funcionalidade da arquitetura moderna. Localizada numa das zonas mais dinâmicas e prestigiadas do Porto, esta fração destaca-se pela sua luminosidade e pelo generoso terraço, ideal para momentos de lazer ao ar livre com total privacidade. Foi cuidadosamente planeado para maximizar o conforto e a amplitude: - Open Space, integrando uma sala espaçosa com uma cozinha moderna, criando o ambiente perfeito para convivência. -Suíte, um refúgio de tranquilidade com acabamentos premium e design contemporâneo. - O quarto "+1" oferece versatilidade para um escritório, zona de leitura ou quarto de apoio. - Varanda. - Terraço privativo que funciona como uma extensão natural da zona de estar. - 2 lugares de estacionamento e arrecadação. O imóvel está dotado de acabamentos de alta gama que garantem uma experiência de luxo quotidiana: - Cozinha totalmente equipada com eletrodomésticos de referência. - Ar condicionado centralizado embutido e caixilharia com corte térmico e vidro duplo. - Aquecimento de águas por bomba de calor e iluminação LED integrada. Situado entre a Boavista e a zona histórica, este imóvel permite usufruir do melhor que o Porto tem para oferecer. A poucos minutos a pé da Estação de Metro, de faculdades, dos principais hospitais e da vibrante movida cultural e gastronómica da cidade. CASAS IN PORTO - THE BEST IN CLASS
AMI: 12820
Ref. Externa: Ap_InPorto_4896
Id: 1721429
Inicie sessão para guardar este imóvel e aceder à sua lista de favoritos em qualquer dispositivo.
260.000 €
2 Quartos
2 WCs
Área bruta : 120 m²
PENA GARDEM RESIDENCE T2 de Luxo Requinte e Conforto em Penafiel Uma oportunidade de viver com luxo, privacidade e todas as comodidades, numa das zonas mais privilegiadas de Penafiel. Inserido num condomínio de excelência, este imóvel é ideal para quem procura um estilo de vida sofisticado e tranquilo, sem abdicar da conveniência e dos acessos rápidos. Pensado para o máximo conforto e bem-estar, este apartamento combina um design moderno com a funcionalidade dos espaços. Composto por: - Hall de Entrada; - Sala e cozinha em open space, um amplo e luminoso espaço comum, com acesso a uma varanda; - Suíte privativa, garantindo o máximo de conforto, com acesso a uma varanda;. - 1 quarto espaçoso, com roupeiro e acesso a uma varanda; - WC completo e elegante, de apoio ao segundo quarto e à zona social; - 2 varandas para momentos de lazer e apreciar de uma vista deslumbrante; - 2 lugares de garagem, segurança e comodidade máxima; - Arrumo, adicional. Características: - Caixilharia em alumínio cm vidros duplos - Estores termolacados eléctricos e sanca interior preparada para cortinados; - Pré-instalação de ar condicionado nos quartos e sala; - Bomba de calor para aquecimento de águas sanitárias; - Vídeo porteiro a cores; - Elevador; - Amplos e bem cuidados jardins, perfeitos para passeios e lazer ao ar livre; - Piscinas adequadas tanto para adultos como para crianças, um verdadeiro oásis nos dias quentes. Com fácil e rápido acesso a diversas vias de circulação, ligando rapidamente ao centro da cidade de Penafiel e às principais autoestradas (A4, A41), facilitando qualquer deslocação. Imediações, com todo o tipo de comércio, escolas de referência, zonas desportivas e todos os serviços. CASAS IN PORTO - THE BEST IN CLASS
AMI: 12820
Ref. Externa: Ap_InPenafiel_ 4956
Id: 1719382
Inicie sessão para guardar este imóvel e aceder à sua lista de favoritos em qualquer dispositivo.
4 Quartos
4 WCs
Área bruta : 285 m²
Matosinhos Residence T4 em Condomínio Privado no Centro de Matosinhos Inserido num condomínio de referência na paisagem urbana de Matosinhos, com formas arrojadas e detalhes elegantes, refletem modernidade e sofisticação, tanto no interior como no exterior. A arquitectura foi desenhada para promover uma vivência de dentro para fora, seja em ambiente familiar no conforto do seu apartamento ou em conversas descontraídas no pátio e jardim. Constituído por: - Hall de entrada; - Sala de estar e sala de jantar, com acesso a um dos pátios; - A cozinha destaca-se pela sua versatilidade e design contemporâneo, centrada numa ilha funcional equipada com placa de confecção; - Hall de circulação dos quartos: - 1 Suíte com roupeiros - com acesso a um dos pátios; - 3 quartos com roupeiros - com acesso a um dos pátios; - 2 WC'S completos de apoio aos 3 quartos; - WC de serviço; - Varanda; - 2 pátios; - Arrumos; - 3 Lugares de garagem. Características principais: - Aquecimento e arrefecimento: sistema multisplits: - Bomba de calor para aquecimento de águas sanitárias; - Caixilharia: em alumínio com corte térmico, incluindo vidros duplos com protecção térmica: - Blackouts: Sanca para possibilitar a sua instalação ou cortinados pelo interior, quartos com blackouts motorizados; - Vídeo porteiro a cores; - Porta de segurança; - Cozinha equipada com: Placa de indução, exaustor de gaveta integrado no móvel superior, forno, microondas, frigorífico combinado e máquina de lavar loiça; - WC 'S: Louças suspensas, lavatório de pousar e toalheiro eléctrico; - Garagem: Sistema de detecção de incêndios e de monóxido de carbono; - Portas corta fogo: nos acessos às caixas de escadas e caves; - Sistema de combate a incêndios nas zonas comuns. - Sistema de CCTV nas zonas comuns, rés do chão e caves; - Sala polivalente: 80m2 e instalação sanitária, para condomínio e outras atividades; - Arranjo Paisagístico: Exterior na zona comum e zonas de estar/lazer do interior do condomínio. Matosinhos é uma cidade de história e tradição com um lifestyle dinâmico e um espirito jovem. CASAS IN PORTO - THE BEST IN CLASS
AMI: 12820
Ref. Externa: Ap_InMatosinhos_4954
Id: 1719383
Inicie sessão para guardar este imóvel e aceder à sua lista de favoritos em qualquer dispositivo.
3 Quartos
3 WCs
Área bruta : 197 m²
T3 de luxo com varandas e lugares de garagem - Centro de Vila Nova de Gaia Edifício de arquitetura moderna, alia a qualidade da sua construção à modernidade, funcionalidade e mobilidade potenciada pela sua centralidade. Constituído: - Hall de entrada; - Sala comum e cozinha em open space com acesso a uma varanda; - Cozinha equipada com: Forno, placa, exaustor, microondas, frigorífico combinado e máquina de lavar loiça; - Hall de distribuição dos quartos; - Suite; - WC completo de apoio aos 2 quartos; - WC de serviço; - Varandas; - Terraço/varanda; - 2 Lugares de garagem; - Ar condicionado; - Bomba de calor para produção de AQS com eficiência energética e gestão horária do aquecimento. - Gás natural; - Elevador; - Sala de condomínio; Localização privilegiada, beneficia da proximidade de uma grande oferta de comércio, serviços, estabelecimentos de ensino, hospitais, de uma rede de transportes eficiente e excelentes acessos a vias rápidas e autoestradas. CASAS IN PORTO - THE BEST IN CLASS
AMI: 12820
Ref. Externa: Ap_InVNGaia_4681
Id: 1717589
Inicie sessão para guardar este imóvel e aceder à sua lista de favoritos em qualquer dispositivo.
300.000 €
1 Quartos
1 WCs
Área bruta : 49 m²
Edifícios Portas do Sol T1 com Terraço Exclusivo: O Refúgio Perfeito junto à Marina da Afurada Este apartamento foi desenhado para quem procura um equilíbrio perfeito entre funcionalidade interior e o prazer de viver ao ar livre. Localizado na margem sul do Douro, este apartamento oferece uma experiência de habitação diferenciada pela sua configuração e luminosidade. O apartamento organiza-se de forma inteligente, garantindo privacidade e fluidez nos movimentos diários: - Hall funcional que faz a transição perfeita entre a entrada e as áreas principais da casa. - Cozinha e a sala de estar fundem-se num espaço amplo e moderno, ideal para receber ou relaxar, com acesso direto ao exterior. - Quarto concebido como um refúgio de tranquilidade, beneficia de uma ligação independente ao terraço, permitindo acordar com luz natural e ventilação direta. - Terraço de Excelência. - Lugar de estacionamento privativo e uma arrecadação na cave do edifício, garantindo toda a arrumação e segurança necessárias. O verdadeiro ponto de distinção desta fração é o seu vasto terraço privativo, que abraça toda a extensão do apartamento. Acessível tanto pela sala como pelo quarto, este espaço funciona como um prolongamento natural da casa, ideal para: - Criar uma zona de lounge ou refeições ao ar livre. - Desfrutar da envolvente paisagística com total privacidade. - Usufruir da brisa do rio Douro num ambiente de conforto e sofisticação. Localização estratégica, permite desfrutar de uma ciclovia de 6 km junto à porta de casa, ligando a habitação à Reserva Natural do Estuário do Rio Douro e às praias, além da proximidade ao Arrábida Shopping e a colégios de referência. CASAS IN PORTO - THE BEST IN CLASS
AMI: 12820
Ref. Externa: Ap_InGaia_4952
Id: 1716156
Inicie sessão para guardar este imóvel e aceder à sua lista de favoritos em qualquer dispositivo.
370.000 €
3 Quartos
1 WCs
Área bruta : 103 m²
Excelente T2+1 Mezzanine próximo ao Pólo Universitário Destaca-se pela sua arquitetura interior dinâmica, onde o pé-direito duplo e o jogo de níveis criam uma experiência de habitação rara no centro da cidade. Piso Principal: O coração deste apartamento é a sua zona social em plano aberto, inundada pela luz natural das janelas monumentais da fachada histórica. - Sala de estar e jantar integrada com uma cozinha de design moderno. - Dois quartos confortáveis com roupeiros embutidos e uma casa de banho completa de apoio. O Mezanino: Versatilidade em Altura O elemento diferenciador desta unidade é o piso superior que se debruça sobre a sala. - Um terceiro quarto ou escritório panorâmico que beneficia da amplitude visual e da luz indireta de todo o apartamento. A ausência de paredes completas (assinalada pela guarda no mezanino) reforça a sensação de liberdade e modernidade deste refúgio urbano. Uma fracção pensada para quem valoriza o estilo, a luz e uma forma de viver menos convencional no coração do Porto. CASAS IN PORTO - THE BEST IN CLASS
AMI: 12820
Ref. Externa: Ap_InPorto_4951
Id: 1714317
Inicie sessão para guardar este imóvel e aceder à sua lista de favoritos em qualquer dispositivo.
265.000 €
1 Quartos
1 WCs
Área bruta : 43 m²
Edifício Belas Artes Apartamento T1 com varanda. Destaca-se pela sua organização funcional e pelo aproveitamento inteligente de cada espaço, oferecendo uma experiência de habitação sofisticada numa das zonas mais dinâmicas do Porto. O imóvel foi projetado com um conceito de planta aberta que maximiza a sensação de amplitude, separando com clareza as zonas social e privada: - Sala de estar e jantar luminosa com ligação direta a uma varanda privativa, ideal para momentos de relaxamento ao ar livre; - Cozinha em conceito aberto (open space), integra-se harmoniosamente na área social, mantendo uma linguagem visual moderna e funcional; - Quarto acolhedor com roupeiros embutidos; - WC completo, garantindo total privacidade e conforto. A qualidade é evidente em todos os detalhes construtivos, garantindo durabilidade e bem-estar: Cozinha de Alta Gama: Totalmente equipada com eletrodomésticos Bosch encastrados, tampos em mármore branco e mobiliário em MDF lacado. Conforto Permanente: Equipado com ar condicionado Mitsubishi, caixilharia de alumínio com corte térmico e vidro duplo para um isolamento térmico e acústico superior. Nobreza nos Detalhes: Soalho multicamada de carvalho aplicado em espinha de peixe, carpintarias lacadas a branco e iluminação embutida em todas as divisões principais. Casas de Banho: Design contemporâneo com louças suspensas e revestimentos cerâmicos de excelência. Inserido num edifício com fachada em azulejo tradicional e reabilitação contemporânea, com identidade Portuense. A curta distância a pé do metro, serviços, colégios e principais acessos à cidade. CASAS IN PORTO - THE BEST IN CLASS Imóvel com Classe Energética: (*). (*) Devido à recente alteração da legislação sobre certificação energética de edifícios (Decreto-Lei n.º 1182013, de 20 de Agosto) e ao elevado número de processos em curso, o certificado energético deste imóvel já foi solicitado, mas encontra-se em fase de apreciação e desenvolvimento pelas entidades competentes.
AMI: 12820
Ref. Externa: Ap_InPorto_4948
Id: 1711972
Inicie sessão para guardar este imóvel e aceder à sua lista de favoritos em qualquer dispositivo.
395.000 €
1 Quartos
2 WCs
Área bruta : 70 m²
Edifício Belas Artes Apartamento T1+2 duplex, águas furtadas Destaca-se pelo seu caráter exclusivo e pela distribuição em dois pisos (duplex), oferecendo uma experiência de habitação sofisticada com a atmosfera acolhedora e a privacidade total que o design em águas furtadas proporciona, oferecendo uma experiência de habitação sofisticada num adas zonas mais dinâmicas do Porto. O imóvel foi projetado com uma distribuição inteligente que maximiza o conforto e a luminosidade, separando com harmonia as áreas sociais e privadas: Distribuído por dois pisos, o imóvel foi projetado para separar com harmonia as áreas sociais e privadas: - Piso Principal: Composto por uma sala de estar luminosa que integra a área de refeições; A cozinha, em conceito open space; - Um quarto bem iluminado; - WC completo; - Zona de arrumo/circulação; - Piso Superior: Acedido por uma escada interior, este nível oferece dois espaços adicionais versáteis, ideais para serem utilizados como quartos extra ou escritório; - WC completo, garantindo privacidade e flexibilidade para uma família ou para quem necessita de um espaço de trabalho remoto. A qualidade é evidente em todos os detalhes construtivos, garantindo durabilidade e bem-estar: Cozinha de Alta Gama: Totalmente equipada com eletrodomésticos Bosch encastrados, tampos em mármore branco e mobiliário em MDF lacado. Conforto Permanente: Equipado com ar condicionado Mitsubishi, caixilharia de alumínio com corte térmico e vidro duplo para um isolamento térmico e acústico superior. Nobreza nos Detalhes: Soalho multicamada de carvalho aplicado em espinha de peixe, carpintarias lacadas a branco e iluminação embutida em todas as divisões principais. Casas de Banho: Design contemporâneo com louças suspensas e revestimentos cerâmicos de excelência. A configuração em duplex nas águas furtadas confere uma identidade única e um charme adicional a este apartamento, permitindo usufruir de uma tipologia ampla e exclusiva no topo do edifício. Inserido num edifício com fachada em azulejo tradicional e reabilitação contemporânea, com identidade Portuense. A curta distância a pé do metro, serviços, colégios e principais acessos à cidade. CASAS IN PORTO - THE BEST IN CLASS Imóvel com Classe Energética: (*). (*) Devido à recente alteração da legislação sobre certificação energética de edifícios (Decreto-Lei n.º 1182013, de 20 de Agosto) e ao elevado número de processos em curso, o certificado energético deste imóvel já foi solicitado, mas encontra-se em fase de apreciação e desenvolvimento pelas entidades competentes.
AMI: 12820
Ref. Externa: Ap_InPorto_4949
Id: 1711973
Inicie sessão para guardar este imóvel e aceder à sua lista de favoritos em qualquer dispositivo.
260.000 €
1 Quartos
1 WCs
Área bruta : 43 m²
Edifício Belas Artes Apartamento T1 com varanda. Destaca-se pela sua organização funcional e pelo aproveitamento inteligente de cada espaço, oferecendo uma experiência de habitação sofisticada numa das zonas mais dinâmicas do Porto. O imóvel foi projetado com um conceito de planta aberta que maximiza a sensação de amplitude, separando com clareza as zonas social e privada: - Sala de estar e jantar luminosa com ligação direta a uma varanda privativa, ideal para momentos de relaxamento ao ar livre; - Cozinha em conceito aberto (open space), integra-se harmoniosamente na área social, mantendo uma linguagem visual moderna e funcional; - Quarto acolhedor com roupeiros embutidos; - WC completo, garantindo total privacidade e conforto. A qualidade é evidente em todos os detalhes construtivos, garantindo durabilidade e bem-estar: Cozinha de Alta Gama: Totalmente equipada com eletrodomésticos Bosch encastrados, tampos em mármore branco e mobiliário em MDF lacado. Conforto Permanente: Equipado com ar condicionado Mitsubishi, caixilharia de alumínio com corte térmico e vidro duplo para um isolamento térmico e acústico superior. Nobreza nos Detalhes: Soalho multicamada de carvalho aplicado em espinha de peixe, carpintarias lacadas a branco e iluminação embutida em todas as divisões principais. Casas de Banho: Design contemporâneo com louças suspensas e revestimentos cerâmicos de excelência. Inserido num edifício com fachada em azulejo tradicional e reabilitação contemporânea, com identidade Portuense. A curta distância a pé do metro, serviços, colégios e principais acessos à cidade. CASAS IN PORTO - THE BEST IN CLASS Imóvel com Classe Energética: (*). (*) Devido à recente alteração da legislação sobre certificação energética de edifícios (Decreto-Lei n.º 1182013, de 20 de Agosto) e ao elevado número de processos em curso, o certificado energético deste imóvel já foi solicitado, mas encontra-se em fase de apreciação e desenvolvimento pelas entidades competentes.
AMI: 12820
Ref. Externa: Ap_InPorto_4947
Id: 1711971
Inicie sessão para guardar este imóvel e aceder à sua lista de favoritos em qualquer dispositivo.
Inicie sessão para ocultar este imóvel das suas pesquisas e manter a sua lista de resultados organizada.
Casas In Porto
Consultor imobiliário em Casas In Porto - AMI: 12820
Compre créditos para poder destacar os seus imóveis! Desta forma eles são os primeiros a aparecer nas pesquisas e têm uma maior chance de serem vistos pelos utilizadores.
© Copyright 2023 | CASACERTA. All rights reserved
Guardar favoritos
Este imóvel foi guardados nos seus favoritos com sucesso.
Para poder guardar pesquisa deverá ter a sua sessão iniciada.
Caso não tenha uma conta, deverá criar uma.
A sua pesquisa foi guardada com sucesso!
Este site utiliza cookies. Ao navegar no site estará a consentir a sua utilização.
Para mais informações sobre os cookies pode consultar a
política de privacidade.