Consultor imobiliário em Centhouse - Mediação de Seguros e Imobiliária, Lda - AMI: 25060
Comprar
Arrendar
4 Quartos
4 WCs
Área bruta : 128 m²
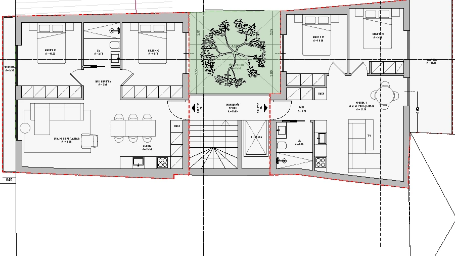
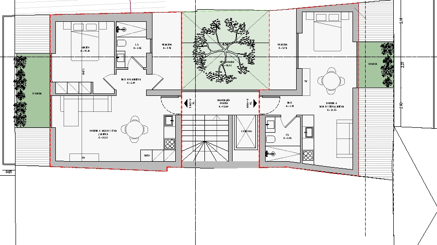
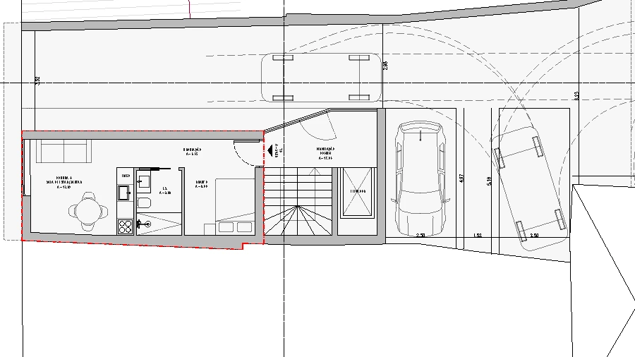
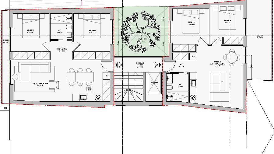
Moradia T4 de Arquitetura Contemporânea com Piscina – Centro de Cantanhede Moradia T4 em fase final de construção, localizada no centro de Cantanhede, pensada para quem valoriza conforto, design moderno e qualidade de vida. Este projeto distingue-se pela arquitetura contemporânea, linhas elegantes e uma combinação harmoniosa de materiais que transmitem sofisticação e conforto. A casa foi concebida para oferecer espaços amplos, luminosidade natural em todas as divisões e uma ligação perfeita entre o interior e a zona exterior. No rés-do-chão, destaca-se a ampla sala com mais de 30 m², ideal para criar diferentes ambientes de convívio, em ligação direta com a cozinha moderna e funcional. Neste piso encontramos ainda um quarto, casa de banho completa, despensa e acesso à zona de garagem e anexos. A área exterior foi desenhada para proporcionar momentos únicos em família e com amigos, com uma agradável zona de deck, churrasqueira e piscina privada — um verdadeiro espaço de lazer e conforto no centro da cidade. No primeiro piso encontram-se três quartos, incluindo uma elegante suíte com closet, além de casa de banho de apoio e hall de distribuição com excelente aproveitamento de espaço. Uma oportunidade única para adquirir uma moradia nova, moderna e pronta a habitar ainda este ano, numa localização central, tranquila e próxima de todos os serviços essenciais. Características em destaque Moradia T4 de arquitetura contemporânea Em fase final de construção Conclusão prevista até ao final do ano Excelentes áreas interiores Sala ampla e luminosa Suíte com closet 4 quartos no total 3 casas de banho Cozinha moderna Garagem e anexos Zona exterior com deck Churrasqueira Piscina privada Localização central em Cantanhede Próxima de comércio, escolas e serviços
AMI: 25060
Ref. Externa: C26006
Id: 1741053
Inicie sessão para guardar este imóvel e aceder à sua lista de favoritos em qualquer dispositivo.
39.000 €
Área de terreno : 1780 m²
Terreno com viabilidade de construção, composto por três artigos, com área total de 1780m2. A sua excelente exposição solar, torna o no local ideal para construir a sua futura moradia. Situado na aprazível localidade de Sete Fontes, pode desfrutar da beleza e tranquilidade do campo com a vantagem de estar a 5m de Cantanhede e a 20m da Mealhada. Agende a sua visita!
AMI: 25060
Ref. Externa: C26004
Id: 1665858
Inicie sessão para guardar este imóvel e aceder à sua lista de favoritos em qualquer dispositivo.
3 Quartos
1 WCs
Área bruta : 78 m²
Moradia T3 com Quintal – 2 Artigos (Urbano + Rústico) – 63.000€ Preço: 63.000€ Moradia de tipologia T3, inserida num lote composto por dois artigos (um urbano e um rústico), localizada a apenas 10 minutos de Cantanhede e da Tocha, com rápido acesso à autoestrada A17. O imóvel distribui-se por rés-do-chão e 1º andar, oferecendo: Sala e cozinha em open-space Lareira Segunda sala junto à entrada WC funcional Cozinha rústica Adega Amplo espaço para arrumos Quintal com poço Árvores de fruto A propriedade necessita de algumas pequenas obras para se tornar totalmente habitável, sendo uma excelente oportunidade para habitação própria, casa de férias ou investimento. Zona tranquila, com bons acessos e proximidade a serviços e praias. Para mais informações ou agendamento de visita, estamos ao dispor.
AMI: 25060
Ref. Externa: C2529
Id: 1637594
Inicie sessão para guardar este imóvel e aceder à sua lista de favoritos em qualquer dispositivo.
198.000 €
3 Quartos
1 WCs
Área bruta : 199 m²
O teu sonho de morar num lugar tranquilo e seguro é aqui. Descobre o encanto de uma moradia independente inserida numa área total de 890 m2 com historia e potencial ilimitado. Embora necessite de alguma recuperação, esta casa dispõe de amplas divisões, com três quartos, casa de banho, cozinha, sala e oferece a oportunidade de criar a tu casa de sonhos onde poderás também usufruir de um amplo quintal com cerca de 15000 m2 ideal para momentos inesquecíveis com família e amigos. Agenda já a tua visita e garante essa oportunidade imperdível.
AMI: 25060
Ref. Externa: C26003
Id: 1595197
Inicie sessão para guardar este imóvel e aceder à sua lista de favoritos em qualquer dispositivo.
1 Quartos
1 WCs
Área bruta : 90 m²
Apresentamos este novo e moderno empreendimento residencial na Mealhada, com início de construção previsto para 2026, ideal para quem procura qualidade de vida, conforto e investimento seguro. O projeto contempla frações de tipologias T1, T2 e T3 com garagem, desde 180.000€, pensadas para responder às exigências do dia a dia moderno, com espaços funcionais, boa exposição solar e acabamentos contemporâneos. ** Localização privilegiada, com bons acessos, proximidade a comércio, serviços e principais vias, tornando este empreendimento perfeito tanto para habitação própria como para investimento. ** Comercialização exclusiva pela imobiliária Centhouse, garantindo acompanhamento profissional em todas as fases do processo. ** Preços desde 180.000€ ** Uma excelente oportunidade para adquirir um imóvel novo numa zona em crescimento e com grande potencial de valorização. Contacte-nos para mais informações e para garantir a sua fração desde a fase inicial!
AMI: 25060
Ref. Externa: M26003
Id: 1593135
Inicie sessão para guardar este imóvel e aceder à sua lista de favoritos em qualquer dispositivo.
375.000 €
6 Quartos
3 WCs
Área bruta : 392 m²
Apresentamos uma moradia T6, onde o interior foi projetado para oferecer conforto e funcionalidade. Ao entrar no imóvel, é possível apreciar espaços generosos e um ambiente acolhedor. A cozinha apresentada é ideal para reuniões familiares ou jantares com amigos. Os seis quartos possuem áreas substanciais e armários embutidos que garantem organização eficiente. No exterior da propriedade encontra-se um jardim que oferece tranquilidade aos seus habitantes. Além disso, a moradia conta ainda com espaço dedicado à convivência familiar, perfeita para atividades lúdicas entre crianças ou encontros sociais na churrasqueira disponível. Situada numa zona tranquila a cerca de 10 Km de Cantanhede, com acesso às principais vias rodoviárias. Venha conhecer esta moradia incrível, será certamente difícil resistir-lhe após visitá-la pessoalmente!
AMI: 25060
Ref. Externa: C26001
Id: 1566814
Inicie sessão para guardar este imóvel e aceder à sua lista de favoritos em qualquer dispositivo.
Área bruta : 264 m²
Espaço Comercial no Centro de Cantanhede – Oportunidade Única! Se procura o local perfeito para o seu negócio, estúdio, ginásio, bar, associação ou centro de eventos, esta é a oportunidade que estava à espera! Situado no coração de Cantanhede, na Rua Dr. António José de Almeida, este espaço destaca-se pela localização privilegiada, amplitude e potencial de adaptação a diferentes tipos de atividade. Características principais: Grande salão principal com palco, ideal para espetáculos, eventos, aulas ou apresentações; 2 casas de banho; Cozinha funcional; Zona de arrumos / apoio; Entrada direta pela rua, com excelente visibilidade. Com 182m² de área privativa, este imóvel oferece todo o espaço que o seu negócio precisa para crescer! Destaques: Localização central, a poucos metros de comércio, cafés e serviços; Espaço versátil e com muita luz natural; Ideal para empreendedores, investidores ou quem procura um local para o seu projeto pessoal. Contacte-nos e venha conhecer este espaço com enorme potencial!
AMI: 25060
Ref. Externa: C2527
Id: 1444579
Inicie sessão para guardar este imóvel e aceder à sua lista de favoritos em qualquer dispositivo.
5 Quartos
Área bruta : 190 m²
Moradia T5 para recuperar em Pocariça, Cantanhede Procura um projeto de reabilitação com grande potencial? Apresentamos esta moradia T5 com 190 m² de área bruta, inserida num terreno de 570 m², situada na Rua do Norte, n.º 4, Pocariça, Cantanhede. O imóvel encontra-se em fase de construção, com estrutura sólida e espaços amplos, oferecendo uma excelente oportunidade para quem pretende personalizar uma casa à sua medida. Características principais: Tipologia T5 Área bruta: 190 m² Terreno: 570 m² Dois pisos Estrutura em betão e tijolo já executada Zona calma e residêncial Excelente exposição solar Possibilidade de criar jardim, garagem e áreas de lazer ? Situada na tranquila localidade de Pocariça, esta moradia beneficia da proximidade à cidade de Cantanhede (a cerca de 5 minutos), onde encontrará todos os serviços essenciais — comércio, escolas, centro de saúde, supermercados e restauração. Tem bons acessos rodoviários, ficando próxima das estradas N234 e A14, que permitem ligação rápida a Coimbra, Figueira da Foz e Aveiro. A zona é conhecida pela tranquilidade e ambiente familiar, ideal para quem procura viver com qualidade de vida, mas mantendo-se perto dos principais centros urbanos. Ideal para: Projeto de reabilitação personalizada Investimento imobiliário com boa valorização Criação de moradia familiar com espaços amplos e exteriores Não perca esta oportunidade! Contacte-nos e venha conhecer o potencial deste imóvel em Pocariça, Cantanhede.
AMI: 25060
Ref. Externa: C2528
Id: 1442632
Inicie sessão para guardar este imóvel e aceder à sua lista de favoritos em qualquer dispositivo.
Lotes de Terreno para Construção de Moradias Isoladas – Vagos (Aveiro) Excelente oportunidade de investimento! Apresentamos 8 lotes de terreno inseridos em loteamento habitacional localizado em Vila Verde, na freguesia de Fonte de Angeão e Covão do Lobo, concelho de Vagos. Cada lote dispõe de uma área de implantação de entre 195 m2 a 250m2, ideal para a construção de moradia unifamiliar isolada, com espaço exterior para jardim, piscina ou zona de lazer. Os preços variam entre 30.000€ a 35.000€. Localização: Rua Principal, Vila Verde 4 – 3840-221 Vagos A poucos minutos do centro de Vagos e com bons acessos às principais vias da região. Zona tranquila, com excelente exposição solar e envolvência habitacional de qualidade. Detalhes: Natureza: Lote Tipologia permitida: Moradia isolada Inserido em loteamento aprovado Se procura tranquilidade, espaço e qualidade de vida, este é o local ideal para construir a sua casa de sonho ou investir num projeto imobiliário de futuro. Contacte-nos para mais informações ou para agendar uma visita ao local!
AMI: 25060
Ref. Externa: C2526
Id: 1424873
Inicie sessão para guardar este imóvel e aceder à sua lista de favoritos em qualquer dispositivo.
5 Quartos
3 WCs
Área bruta : 275 m²
Moradia no Centro de Cantanhede — Espaço, Versatilidade e Localização Privilegiada Apresentamos esta excelente moradia T5 situada no coração da cidade de Cantanhede, a apenas 100 metros da praça principal. Um imóvel com grande potencial, tanto para habitação familiar como para investimento, combinando conforto, espaço e versatilidade. Características principais: Tipologia: T5 Área bruta: 275 m² Casas de banho: 3 Certificado energético: Classe D Preço: 295 000 € (negociável) Estado: Usado Mobilado: Sim Distribuição do imóvel: Rés-do-chão: Licenciado para comércio, com possibilidade de conversão em habitação. Inclui estacionamento para 3 carros, terraço e anexos com 65 m². 1.º andar: Habitação T3 composta por cozinha, sala de estar, sala de jantar, três quartos e duas casas de banho. Sótão: Espaço amplo de 120 m², com pé direito central de 2,3 m, ideal para escritório, estúdio ou área de lazer. Localização: Situada no centro de Cantanhede, próxima de todos os serviços essenciais — escolas, comércio, restauração e transportes. Um local tranquilo e privilegiado para quem procura viver com comodidade e qualidade de vida. Pontos fortes: Localização central e de fácil acesso Grande potencial de valorização Espaço exterior com anexos Versatilidade de uso (comercial e habitacional) Estacionamento privativo para 3 veículos Contacte-nos para agendar a sua visita e descubra todo o potencial desta moradia única no centro de Cantanhede.
AMI: 25060
Ref. Externa: C2525
Id: 1423008
Inicie sessão para guardar este imóvel e aceder à sua lista de favoritos em qualquer dispositivo.
420.000 €
Área útil : 758 m²
Edifício histórico em Ançã — antigo Restaurante Farinha de Milho Apresenta-se para venda este carismático edifício em Ançã, outrora ocupado pelo reconhecido Restaurante Farinha de Milho, um espaço emblemático da região de Cantanhede. O imóvel distingue-se pelo seu carácter histórico e arquitetónico, resultante da recuperação de um antigo moinho, onde a tradição e o conforto moderno se unem de forma harmoniosa. O edifício oferece amplas áreas interiores, distribuídas por várias salas com capacidade para cerca de 90 lugares, cozinha equipada para restauração e uma envolvente única junto à ribeira local, que confere um ambiente natural e tranquilo. No exterior, destaca-se a zona ajardinada e a possibilidade de estacionamento nas imediações. Graças à sua configuração e localização, este espaço apresenta elevado potencial para diversos fins: Continuação da atividade de restauração; Instalação de um projeto de turismo rural ou de charme; Espaço para eventos, galeria, enoturismo ou centro cultural. Localização: Rua Doutor Calisto Poiares, Ançã, Cantanhede Origem: Edifício histórico (antigo moinho) reabilitado Potencial: Restauração, turismo, eventos ou uso habitacional adaptado Ambiente: Zona ribeirinha com grande valor paisagístico Sobre Ançã A vila de Ançã pertence ao concelho de Cantanhede, no distrito de Coimbra, e é amplamente conhecida pelo seu património histórico, pelas fontes e pela famosa “Pedra de Ançã”, usada em monumentos emblemáticos como o Mosteiro da Batalha. Situada a apenas 15 minutos de Coimbra, 10 minutos de Cantanhede e 20 minutos da Figueira da Foz, Ançã oferece uma excelente ligação rodoviária através da EN235 e dos acessos à A14 e A1, permitindo fácil conexão ao litoral e ao interior do país. A sua localização central, aliada à tranquilidade e autenticidade da vila, torna este imóvel uma oportunidade única para quem procura investir num espaço com história, charme e versatilidade. Para visitas por favor entre em contacto connosco. Não perca esta oportunidade!
AMI: 25060
Ref. Externa: C2524
Id: 1421327
Inicie sessão para guardar este imóvel e aceder à sua lista de favoritos em qualquer dispositivo.
140.000 €
Área útil : 53 m²
Prédio à venda em Cantanhede – Projeto aprovado para 4 Apartamentos T1 Preço: 140.000 € Oportunidade única de investimento no coração de Cantanhede! Este prédio, com duas frentes e excelente localização em duas das ruas mais centrais da cidade, já conta com projeto aprovado para a construção de 4 apartamentos T1. Características principais: Prédio com 2 frentes Projeto aprovado para 4 apartamentos T1 Excelente exposição solar Inserido em zona central, próxima de comércio, serviços, restaurantes e transportes Potencial de valorização elevada Ideal para investidores que procuram rentabilidade garantida no mercado de arrendamento ou para revenda futura. Localização privilegiada no centro de Cantanhede Preço: 149.000 € Não perca esta oportunidade de investimento com grande retorno! Contacte-nos já para mais informações e agende a sua visita.
AMI: 25060
Ref. Externa: C2523
Id: 1393210
Inicie sessão para guardar este imóvel e aceder à sua lista de favoritos em qualquer dispositivo.
Área bruta : 74 m²
Moradia para reabilitar ou demolir, situada mesmo no Centro de Cantanhede, com 74 m2, ideal para construir a sua moradia de sonho. A localização é priviligiada, onde podemos encontrar vários serviços nomeadamente Notários, Finanças, Farmácias, Câmara Municipal, Cafés, Restaurantes, entre outros. Cantanhede é o maior concelho do Distrito de Coimbra e localiza-se no centro de um triângulo geográfico de notória importância económica, em cujos vértices se situam, além da sede de distrito, as cidades de Aveiro e Figueira da Foz. Implantado numa zona de clima temperado, com características atlânticas e mediterrânicas, é banhado a Poente pelo Oceano Atlântico e confronta com os municípios de Mira, Vagos e Oliveira do Bairro, a Norte; Figueira da Foz, Montemor-o-Velho e Coimbra, a Sul; e Anadia e Mealhada, a Nascente. Tem uma excelente acessibilidade rodoviária garantida por uma série de vias rápidas, das quais se destacam os nós da auto-estrada A1 (Lisboa-Porto), em Murtede, e da A14 em Ançã, e da A17, em Sanguinheira, bem como a estrada nacional 109 (Aveiro-Figueira da Foz), que atravessa toda a zona Oeste do Concelho. Venha visitar connosco!
AMI: 25060
Ref. Externa: C2521
Id: 1380810
Inicie sessão para guardar este imóvel e aceder à sua lista de favoritos em qualquer dispositivo.
Área de terreno : 280 m²
Terreno localizado no centro de Cantanhede, com projeto pré-aprovado para construção de 9 Apartamentos. Cantanhede é o maior concelho do Distrito de Coimbra e localiza-se no centro de um triângulo geográfico de notória importância económica, em cujos vértices se situam, além da sede de distrito, as cidades de Aveiro e Figueira da Foz. Implantado numa zona de clima temperado, com características atlânticas e mediterrânicas, é banhado a Poente pelo Oceano Atlântico e confronta com os municípios de Mira, Vagos e Oliveira do Bairro, a Norte; Figueira da Foz, Montemor-o-Velho e Coimbra, a Sul; e Anadia e Mealhada, a Nascente. Tem uma excelente acessibilidade rodoviária garantida por uma série de vias rápidas, das quais se destacam os nós da auto-estrada A1 (Lisboa-Porto), em Murtede, e da A14 em Ançã, e da A17, em Sanguinheira, bem como a estrada nacional 109 (Aveiro-Figueira da Foz), que atravessa toda a zona Oeste do Concelho. Venha conhecer, marque já a sua visita!
AMI: 25060
Ref. Externa: C2520
Id: 1372989
Inicie sessão para guardar este imóvel e aceder à sua lista de favoritos em qualquer dispositivo.
395.000 €
7 Quartos
Área bruta : 454 m²
Edifício para Comércio, Habitação ou Investimento em Apartamentos – Portomar, Mira Oportunidade única de investimento em Portomar, Mira! Edifício datado de 1970, muito bem localizado numa zona central e com grande potencial para comércio, habitação ou projeto de reabilitação. Áreas: Área total de implantação: 325 m² Área bruta de construção: 487 m² Área bruta dependente: 163 m² Área bruta privativa: 324 m² Descrição do imóvel: Rés-do-chão: 2 salas destinadas a comércio Cozinha 2 garagens 4 dependências para arrumos 1º Andar: 7 divisões Cozinha Casa de banho Inclui ainda: Artigo rústico com 2.260 m² Terreno urbano com 454,5 m² Potencial de reabilitação e investimento: Possibilidade de realizar obras de reabilitação e valorização do edifício. Existe estudo que prevê a conversão em 24 apartamentos, tornando-o ideal para investidores que procuram um projeto de rentabilização em zona de forte procura. Localização privilegiada, em zona central de Portomar, próxima de serviços, comércio e a poucos minutos das praias do concelho de Mira. Uma excelente oportunidade para quem procura um edifício multifuncional com terrenos adicionais e grande potencial de transformação!
AMI: 25060
Ref. Externa: M2510
Id: 1338176
Inicie sessão para guardar este imóvel e aceder à sua lista de favoritos em qualquer dispositivo.
Área bruta : 443 m²
Espaço Comercial Arrendado com 443 m² no Centro da Mealhada – Excelente Investimento! Localização Premium – Situado em plena zona pedonal no coração da cidade da Mealhada, este espaçoso imóvel comercial oferece 443 m² de área total, ideal para investidores que procuram uma oportunidade sólida em zona de comércio consolidado e com elevada circulação pedonal. Imóvel Arrendado – Vendido na condição atual, com contrato de arrendamento em vigor, garantindo um rendimento imediato. Renda mensal atual: 618,68€ Preço de venda: 195.000€ Características principais: Área total: 443 m² Localização central, em zona de comércio tradicional Inserido em zona pedonal com excelente visibilidade Arrendado a inquilino estável Classe energética: B- Ideal para investidores que procuram uma fonte de rendimento estável e com potencial de valorização no futuro, num dos pontos mais centrais da cidade.
AMI: 25060
Ref. Externa: M2509
Id: 1292036
Inicie sessão para guardar este imóvel e aceder à sua lista de favoritos em qualquer dispositivo.
315.000 €
2 Quartos
3 WCs
Área bruta : 146 m²
Moradia T2 na Praia da Tocha – A 2 Minutos a Pé da Praia! Apresentamos esta encantadora moradia T2 em excelente estado de conservação, ideal para quem procura conforto, funcionalidade e proximidade com o mar. Localizada na bela Praia da Tocha, esta casa está a apenas 2 minutos a pé da zona norte da praia. Distribuição da Moradia: Rés do chão: Sala acolhedora, cozinha funcional e uma casa de banho de serviço; 1.º andar: Dois quartos luminosos servidos por varandas e uma casa de banho completa; Águas furtadas: Pé direito de 2 metros, com mais uma casa de banho, zona de arrumos e um espaço amplo que pode ser facilmente adaptado a sala de lazer, escritório ou zona de descanso, sendo ainda possível ter uma vista parcial sobre o oceano e a zona de praia. Exterior: Jardim privativo com churrasqueira perfeita para convívios ao ar livre; Estacionamento para até três viaturas. Esta moradia combina a tranquilidade de uma zona costeira com a comodidade de espaços bem distribuídos, ideal para residência permanente, férias em família ou investimento para alojamento local. Localização privilegiada: Zona calma e residencial, com acesso direto à praia da Tocha – uma das mais apreciadas do centro litoral português. Não perca esta oportunidade única! Agende já a sua visita e descubra o seu novo refúgio à beira-mar.
AMI: 25060
Ref. Externa: C2518
Id: 1250312
Inicie sessão para guardar este imóvel e aceder à sua lista de favoritos em qualquer dispositivo.
298.000 €
6 Quartos
3 WCs
Área bruta : 814 m²
Moradia + Loja no Centro do Zambujal, Cadima | 814 m² | 6 Quartos | 3 Cozinhas | 3 Casas de Banho | 2 Garagens Apresentamos este fantástico imóvel com enorme potencial, composto por dois artigos: moradia principal e loja, com uma área total de 814 m². Localizado no coração da pacata e acolhedora aldeia do Zambujal, freguesia de Cadima, este imóvel oferece uma excelente oportunidade tanto para habitação própria como para investimento. -Características principais: Área total: 814 m² 2 artigos urbanos: Habitação e Estabelecimento comercial Localização central, com bons acessos e proximidade de serviços Versatilidade de utilização: Ideal para quem pretende viver e desenvolver atividade comercial no mesmo espaço Principais características da moradia: -Divisões amplas e funcionais, distribuídas da seguinte forma: - 6 Quartos: -4 quartos no 1.º andar -2 quartos no rés-do-chão -3 Casas de Banho: 1 casa de banho no 1.º andar // 2 casas de banho no rés-do-chão -3 Cozinhas: 1 cozinha no 1.º andar // 1 cozinha no rés-do-chão // 1 cozinha tradicional de lavrador (ideal para convívios ou cozinha rústica) -2 Garagens com capacidade para cerca de 6 viaturas Espaços amplos com excelente potencial de personalização ou remodelação - Loja/Estabelecimento Comercial: -Entrada independente: Ideal para comércio, serviços, armazém ou oficina Potencial para rentabilização independente da moradia -Casa principal: Estrutura sólida, com divisões amplas e luminosas Possibilidade de remodelação ao gosto do comprador Potêncial para habitação permanente, casa de férias ou alojamento local Localização: Situado em zona tranquila, no centro da aldeia, com uma envolvente rural e agradável. Fácil acesso a Cadima, Cantanhede, e a poucos minutos da A14. Nota: Certificado Energético em execução. Excelente relação preço/m² para quem procura espaço, localização e potencial de valorização! Contacte-nos para mais informações ou agende já a sua visita.
AMI: 25060
Ref. Externa: C2514
Id: 1208046
Inicie sessão para guardar este imóvel e aceder à sua lista de favoritos em qualquer dispositivo.
50.000 €
Área de terreno : 4432 m²
Terreno para Construção | 4432 m² | Pereirões, Tocha Localização privilegiada em Pereirões, Tocha — zona tranquila com bom acesso e envolvência natural. Área total: 4432 m² Área de construção: 1200 m² Frente : 26 metros Profundidade: 50 metros Este terreno oferece uma excelente oportunidade para construção de moradia unifamiliar ou projeto habitacional de pequena escala, com espaço mais do que suficiente para jardim, piscina ou outras infraestruturas de lazer. ✅ Destaques: Terreno plano, com excelente exposição solar Frente com 26 metros, ideal para facilitar acessos e entradas, e profundidade 50 metros. Zona calma, a poucos minutos do centro da Tocha Bons acessos à N335 e EN109 Inserido em zona com infraestruturas básicas já existentes Ideal para quem procura investir num espaço com grande potencial construtivo em ambiente calmo e natural. Para mais informações ou agendar visita, entre em contacto!
AMI: 25060
Ref. Externa: C2513
Id: 1202623
Inicie sessão para guardar este imóvel e aceder à sua lista de favoritos em qualquer dispositivo.
430.000 €
4 Quartos
3 WCs
Área bruta : 300 m²
Esta excelente moradia está situada a apenas 5 minutos da A17 e a 10 minutos da Praia da Tocha, oferecendo um equilíbrio perfeito entre a proximidade da natureza e a acessibilidade a importantes vias de comunicação. Localiza-se a 1 km do centro da Tocha, proporcionando acesso rápido a todos os serviços e comodidades da cidade. A moradia apresenta um design moderno e funcionalidades que garantem conforto e eficiência. A cozinha é completamente equipada com eletrodomésticos embutidos, com acabamento em madeira termo-laminada, criando um ambiente sofisticado e prático. O aquecimento central, com apoio de painéis solares, garante um conforto térmico ideal, sendo complementado por águas sanitárias e um esquentador inteligente. Os alumínios da moradia são de caixilharia dupla, com acabamento em duas cores, interior e exterior, e os estores são elétricos e de alumínio térmico, garantindo eficiência energética e conforto. A sala é equipada com um recuperador de calor que, em conjunto com o sistema de aquecimento central, aquece todas as divisões da casa. Os quartos, espaçosos e bem iluminados, possuem roupeiros embutidos, e os tetos em pladur são revestidos em lã de rocha, oferecendo excelente isolamento acústico e térmico, além de focos embutidos que proporcionam uma iluminação suave e moderna. A casa conta com 3 casas de banho, sendo uma delas com banheira de hidromassagem e outra com coluna de hidromassagem, todas equipadas com móveis em termo laminados de alto brilho. A moradia conta com uma garagem com acesso direto ao interior, com capacidade para duas viaturas, além de um telheiro de apoio. A aspiracão central e o sistema de alarme proporcionam ainda mais conforto e segurança. Os portões automáticos, tanto da rua como da garagem, podem ser controlados por telemóvel, oferecendo praticidade e segurança. O exterior da propriedade é igualmente impressionante, com jardins bem cuidados em toda a sua envolvência. No fundo do quintal, encontra-se um telheiro de apoio com 20x4 metros, ideal para lazer e momentos de convívio. O terreno é composto por várias árvores de fruto e um poço com motor elétrico, garantindo abastecimento de água para a rega automática, que cobre todos os canteiros do jardim. O terreno está completamente vedado com muros, garantindo privacidade e segurança. O primeiro andar da moradia é revestido com piso flutuante em todas as divisões, oferecendo um toque de sofisticação e conforto. A escadaria interna de acesso ao primeiro piso é em madeira, com resguardo em vidro e pilares em inox, proporcionando uma estética moderna e elegante. Uma oportunidade única de adquirir uma moradia de luxo, com acabamentos de alta qualidade, tecnologia de ponta e localização privilegiada. Ideal para quem busca conforto, praticidade e qualidade de vida. Agende já a sua visita e venha conhecer o seu novo lar!
AMI: 25060
Ref. Externa: C2508
Id: 1159359
Inicie sessão para guardar este imóvel e aceder à sua lista de favoritos em qualquer dispositivo.
Inicie sessão para ocultar este imóvel das suas pesquisas e manter a sua lista de resultados organizada.
Centhouse - Mediação de Seguros e Imobiliária, Lda
Consultor imobiliário em Centhouse - Mediação de Seguros e Imobiliária, Lda - AMI: 25060
Compre créditos para poder destacar os seus imóveis! Desta forma eles são os primeiros a aparecer nas pesquisas e têm uma maior chance de serem vistos pelos utilizadores.
© Copyright 2023 | CASACERTA. All rights reserved
Guardar favoritos
Este imóvel foi guardados nos seus favoritos com sucesso.
Para poder guardar pesquisa deverá ter a sua sessão iniciada.
Caso não tenha uma conta, deverá criar uma.
A sua pesquisa foi guardada com sucesso!
Este site utiliza cookies. Ao navegar no site estará a consentir a sua utilização.
Para mais informações sobre os cookies pode consultar a
política de privacidade.