Consultor imobiliário em Cinfães Douro Mediação Imobiliária - AMI: 13374
Comprar
Arrendar
3 Quartos
2 WCs
Área bruta : 126 m²
Excelente apartamento T3, completamente renovado em Águs Santas, junto ao Alto da Maia. Excelente exposição solar; Localizada no 2º piso; Quartos com roupeiros; Sala e cozinha em open space; Cozinha equipada com forno, microondas, exaustor e placa; Uma marquise; 3 Varandas: quartos e Sala; 2 quartos de banho: uma completa com base de duche e outra de apoio áreas comuns da habitaçao; Caixilharia com vidro duplo; Garagem fechada; Fachada do prédio completamente renovada; Prédio sem elevador; Prédio de 3 pisos; Excelente localização, a excassos metros da Rua D. Afonso Henriques, próximo à autoestrada; Junto a comércio local, clinicas, farmácias, escolas, colégios e etc. Entre em contacto e venha conhecer a casa que vai adquirir! CINFÃES DOURO IMOBILIÁRIA Somos a Imobiliária que pretendemos prestar um serviço de Excelência. Quer seja para comprar ou vender um imóvel, trabalharemos consigo de forma personalizada, para garantirmos, juntos, o MELHOR NEGÓCIO. Pretendemos garantir a segurança e o bem-estar dos nossos clientes com a nossa dedicação e acompanhamento contínuo. Através da nossa honestidade, eficiência e transparência iremos ajudá-lo a concretizar os seus negócios. Investimos na formação qualificada para melhor estudar o mercado local e podermos lhe dar as melhores recomendações. Contacte-nos e diga-nos o que procura que nós iremos ajudá-lo/a!
AMI: 13374
Ref. Externa: CD26/001
Id: 1546343
Inicie sessão para guardar este imóvel e aceder à sua lista de favoritos em qualquer dispositivo.
2 Quartos
2 WCs
Área bruta : 110 m²
Este deslumbrante apartamento T2+1 localiza-se no coração de Vila Nova de Gaia, apresentando um interior de conforto. Excelente oportunidade de negócio para alojamento local e com vistas fantásticas para o Douro e cidade do Porto. Ao entrar na habitação, é imediatamente evidenciada a luminosidade natural. A sala de estar destaca-se pelo seu espaço generoso, criando uma atmosfera acolhedora ideal para momentos em família ou entre amigos. A cozinha, em open space, proporcionando funcionalidade. Situado junto a importantes artérias da cidade Gaiense, este apartamento beneficia ainda da proximidade com transportes públicos eficientes e variados serviços locais como supermercados, restaurantes tradicionais e cafés típicos onde se pode apreciar as iguarias regionais num agradável passeio pelas ruas históricas nas redondezas. Além disso، encontra-se perto de escolas reconhecidas e centros culturais، oferecendo assim todas as comodidades essenciais à vida urbana moderna. Por fim, é importante referir a exclusividade deste imóvel: trata-se não apenas dum lugar onde residir ، mas sim duma experiência única própria daquela essência genuína que só a união das duas cidades, Porto e Vila Nova de Gaia possuem. Este lar promete ser mais do que simples paredes; será palco das suas memórias mais queridas enquanto vive rodeado por toda a beleza cultural desta magnífica cidade portuguesa . Contacte-nos CINFÃES DOURO IMOBILIÁRIA Somos a Imobiliária que pretendemos prestar um serviço de Excelência. Quer seja para comprar ou vender um imóvel, trabalharemos consigo de forma personalizada, para garantirmos, juntos, o MELHOR NEGÓCIO. Pretendemos garantir a segurança e o bem-estar dos nossos clientes com a nossa dedicação e acompanhamento contínuo. Através da nossa honestidade, eficiência e transparência iremos ajudá-lo a concretizar os seus negócios. Investimos na formação qualificada para melhor estudar o mercado local e podermos lhe dar as melhores recomendações. Contacte-nos e diga-nos o que procura que nós iremos ajudá-lo/a!
AMI: 13374
Ref. Externa: CD25/019
Id: 1280501
Inicie sessão para guardar este imóvel e aceder à sua lista de favoritos em qualquer dispositivo.
315.000 €
3 Quartos
3 WCs
Área bruta : 126 m²
T3 em Ermesinde, junto à A4, ao Mosteiro de Santa Rita; - Varanda; - 2 Casas de banho; - 1 WC; - 1 Suite; - Sistema com bomba de calor aerotérmica da “MIDEA” ou equivalente para AQS (Águas Quentes Sanitárias); - Sistema de climatização: ar condicionado multi-split da “MIDEA” ou equivalente; - Sistema de Videoporteiro; - Sensores de movimento nas zonas comuns; - Proteção solar dos vãos: estores exteriores elétricos, em PVC térmico (sala e quartos); - Instalação elétrica da garagem preparada para a instalação de tomadas de 230V para carregamento de veículos elétricos, nos termos da legislação em vigor; - Elevadores com capacidade para 8 pessoas (630 kg) - Edifício com 35 apartamentos, cave + R/C + 4 pisos; Excelente localização, junto a colégios, vias principais de acesso, transportes públicos, hipermercados, comércio tradicional e outros serviços; Zona calma e espaços verdes contribuem para uma vida tranquila. Procure-nos para saber detalhes da construção e detalhes sobre a aquisição; - Imagens em 3D; CINFÃES DOURO IMOBILIÁRIA Somos a Imobiliária que pretendemos prestar um serviço de Excelência. Quer seja para comprar ou vender um imóvel, trabalharemos consigo de forma personalizada, para garantirmos, juntos, o MELHOR NEGÓCIO. Pretendemos garantir a segurança e o bem-estar dos nossos clientes com a nossa dedicação e acompanhamento contínuo. Através da nossa honestidade, eficiência e transparência iremos ajudá-lo a concretizar os seus negócios. Investimos na formação qualificada para melhor estudar o mercado local e podermos lhe dar as melhores recomendações. Contacte-nos e diga-nos o que procura que nós iremos ajudá-lo/a!
AMI: 13374
Ref. Externa: CD25/017
Id: 1184712
Inicie sessão para guardar este imóvel e aceder à sua lista de favoritos em qualquer dispositivo.
330.000 €
3 Quartos
3 WCs
Área bruta : 126 m²
T3 em Ermesinde, junto à A4, ao Mosteiro de Santa Rita; - Varanda; - 2 Casas de banho; - 1 WC; - 1 Suite; - Sistema com bomba de calor aerotérmica da “MIDEA” ou equivalente para AQS (Águas Quentes Sanitárias); - Sistema de climatização: ar condicionado multi-split da “MIDEA” ou equivalente; - Sistema de Videoporteiro; - Sensores de movimento nas zonas comuns; - Proteção solar dos vãos: estores exteriores elétricos, em PVC térmico (sala e quartos); - Instalação elétrica da garagem preparada para a instalação de tomadas de 230V para carregamento de veículos elétricos, nos termos da legislação em vigor; - Elevadores com capacidade para 8 pessoas (630 kg) - Edifício com 35 apartamentos, cave + R/C + 4 pisos; Excelente localização, junto a colégios, vias principais de acesso, transportes públicos, hipermercados, comércio tradicional e outros serviços; Zona calma e espaços verdes contribuem para uma vida tranquila. Procure-nos para saber detalhes da construção e detalhes sobre a aquisição; - Imagens em 3D; CINFÃES DOURO IMOBILIÁRIA Somos a Imobiliária que pretendemos prestar um serviço de Excelência. Quer seja para comprar ou vender um imóvel, trabalharemos consigo de forma personalizada, para garantirmos, juntos, o MELHOR NEGÓCIO. Pretendemos garantir a segurança e o bem-estar dos nossos clientes com a nossa dedicação e acompanhamento contínuo. Através da nossa honestidade, eficiência e transparência iremos ajudá-lo a concretizar os seus negócios. Investimos na formação qualificada para melhor estudar o mercado local e podermos lhe dar as melhores recomendações. Contacte-nos e diga-nos o que procura que nós iremos ajudá-lo/a!
AMI: 13374
Ref. Externa: CD25/018
Id: 1184711
Inicie sessão para guardar este imóvel e aceder à sua lista de favoritos em qualquer dispositivo.
325.000 €
3 Quartos
3 WCs
Área bruta : 128 m²
T3 em Ermesinde, junto à A4, ao Mosteiro de Santa Rita; - Com um Terraço de 36,40m2; - 2 Casas de banho; - 1 WC; - 1 Suite; - Sistema com bomba de calor aerotérmica da “MIDEA” ou equivalente para AQS (Águas Quentes Sanitárias); - Sistema de climatização: ar condicionado multi-split da “MIDEA” ou equivalente; - Sistema de Videoporteiro; - Sensores de movimento nas zonas comuns; - Proteção solar dos vãos: estores exteriores elétricos, em PVC térmico (sala e quartos); - Instalação elétrica da garagem preparada para a instalação de tomadas de 230V para carregamento de veículos elétricos, nos termos da legislação em vigor; - Elevadores com capacidade para 8 pessoas (630 kg) - Edifício com 35 apartamentos, cave + R/C + 4 pisos; Excelente localização, junto a colégios, vias principais de acesso, transportes públicos, hipermercados, comércio tradicional e outros serviços; Zona calma e espaços verdes contribuem para uma vida tranquila. Procure-nos para saber detalhes da construção e detalhes sobre a aquisição; - Imagens em 3D; CINFÃES DOURO IMOBILIÁRIA Somos a Imobiliária que pretendemos prestar um serviço de Excelência. Quer seja para comprar ou vender um imóvel, trabalharemos consigo de forma personalizada, para garantirmos, juntos, o MELHOR NEGÓCIO. Pretendemos garantir a segurança e o bem-estar dos nossos clientes com a nossa dedicação e acompanhamento contínuo. Através da nossa honestidade, eficiência e transparência iremos ajudá-lo a concretizar os seus negócios. Investimos na formação qualificada para melhor estudar o mercado local e podermos lhe dar as melhores recomendações. Contacte-nos e diga-nos o que procura que nós iremos ajudá-lo/a!
AMI: 13374
Ref. Externa: CD25/015
Id: 1184710
Inicie sessão para guardar este imóvel e aceder à sua lista de favoritos em qualquer dispositivo.
315.000 €
3 Quartos
3 WCs
Área bruta : 122 m²
T3 em Ermesinde, junto à A4, ao Mosteiro de Santa Rita; - Com um Terraço de 41,20M2; - 2 Casas de banho; - 1 WC; - 1 Suite; - Sistema com bomba de calor aerotérmica da “MIDEA” ou equivalente para AQS (Águas Quentes Sanitárias); - Sistema de climatização: ar condicionado multi-split da “MIDEA” ou equivalente; - Sistema de Videoporteiro; - Sensores de movimento nas zonas comuns; - Proteção solar dos vãos: estores exteriores elétricos, em PVC térmico (sala e quartos); - Instalação elétrica da garagem preparada para a instalação de tomadas de 230V para carregamento de veículos elétricos, nos termos da legislação em vigor; - Elevadores com capacidade para 8 pessoas (630 kg) - Edifício com 35 apartamentos, cave + R/C + 4 pisos; Excelente localização, junto a colégios, vias principais de acesso, transportes públicos, hipermercados, comércio tradicional e outros serviços; Zona calma e espaços verdes contribuem para uma vida tranquila. Procure-nos para saber detalhes da construção e detalhes sobre a aquisição; - Imagens em 3D; CINFÃES DOURO IMOBILIÁRIA Somos a Imobiliária que pretendemos prestar um serviço de Excelência. Quer seja para comprar ou vender um imóvel, trabalharemos consigo de forma personalizada, para garantirmos, juntos, o MELHOR NEGÓCIO. Pretendemos garantir a segurança e o bem-estar dos nossos clientes com a nossa dedicação e acompanhamento contínuo. Através da nossa honestidade, eficiência e transparência iremos ajudá-lo a concretizar os seus negócios. Investimos na formação qualificada para melhor estudar o mercado local e podermos lhe dar as melhores recomendações. Contacte-nos e diga-nos o que procura que nós iremos ajudá-lo/a!
AMI: 13374
Ref. Externa: CD25/016
Id: 1184709
Inicie sessão para guardar este imóvel e aceder à sua lista de favoritos em qualquer dispositivo.
Área bruta : 120 m²
Trespasse de loja - 'Talho' com ou sem cedência de quotas. Excelente localização, na zona de Ramada Alta; Cedofeita / Constituição; Juntos a áreas residenciais, comércio, escolas, hospitais e outros serviços; Próximo às principais vias de acesso e saída da cidade; Junto a Estação de Metro e a 700 metros da Rotunda da Boavista; CINFÃES DOURO IMOBILIÁRIA Somos a Imobiliária que pretendemos prestar um serviço de Excelência. Quer seja para comprar ou vender um imóvel, trabalharemos consigo de forma personalizada, para garantirmos, juntos, o MELHOR NEGÓCIO. Pretendemos garantir a segurança e o bem-estar dos nossos clientes com a nossa dedicação e acompanhamento contínuo. Através da nossa honestidade, eficiência e transparência iremos ajudá-lo a concretizar os seus negócios. Investimos na formação qualificada para melhor estudar o mercado local e podermos lhe dar as melhores recomendações. Contacte-nos e diga-nos o que procura que nós iremos ajudá-lo/a!
AMI: 13374
Ref. Externa: CD25/010
Id: 1162947
Inicie sessão para guardar este imóvel e aceder à sua lista de favoritos em qualquer dispositivo.
630.000 €
5 Quartos
Área bruta : 460 m²
Moradia no centro da Maia, sendo que fica próximo de transportes e dos centros escolares assim como dos equipamentos desportivos. A moradia é constituída por cave, rés-do-chão e andar, ainda tem anexos destinados a garagem, lavandaria arrumos e logradouro A moradia tem 5 quartos dos quais 3 são suítes e ainda tem mais 2wc de serviço A moradia encontra-se em excelente estado CINFÃES DOURO IMOBILIÁRIA Somos a Imobiliária que pretendemos prestar um serviço de Excelência. Quer seja para comprar ou vender um imóvel, trabalharemos consigo de forma personalizada, para garantirmos, juntos, o MELHOR NEGÓCIO. Pretendemos garantir a segurança e o bem-estar dos nossos clientes com a nossa dedicação e acompanhamento contínuo. Através da nossa honestidade, eficiência e transparência iremos ajudá-lo a concretizar os seus negócios. Investimos na formação qualificada para melhor estudar o mercado local e podermos lhe dar as melhores recomendações. Contacte-nos e diga-nos o que procura que nós iremos ajudá-lo/a!
AMI: 13374
Ref. Externa: CD25/009
Id: 1162943
Inicie sessão para guardar este imóvel e aceder à sua lista de favoritos em qualquer dispositivo.
1.000.000 €
Área de terreno : 5572 m²
Este terreno encontra se situado numa das melhores zonas de Nogueira da Maia, sendo que tem projeto aprovado para 8 moradias, sendo que em caso de interesse existe um outro terreno que também pode entrar no negocio de modo a facilitar o projeto. CINFÃES DOURO IMOBILIÁRIA Somos a Imobiliária que pretendemos prestar um serviço de Excelência. Quer seja para comprar ou vender um imóvel, trabalharemos consigo de forma personalizada, para garantirmos, juntos, o MELHOR NEGÓCIO. Pretendemos garantir a segurança e o bem-estar dos nossos clientes com a nossa dedicação e acompanhamento contínuo. Através da nossa honestidade, eficiência e transparência iremos ajudá-lo a concretizar os seus negócios. Investimos na formação qualificada para melhor estudar o mercado local e podermos lhe dar as melhores recomendações. Contacte-nos e diga-nos o que procura que nós iremos ajudá-lo/a! Descrição criada por Inteligência Artificial
AMI: 13374
Ref. Externa: CD25/008
Id: 1162940
Inicie sessão para guardar este imóvel e aceder à sua lista de favoritos em qualquer dispositivo.
Área bruta : 398 m²
Prédio com PIP aprovado e com Licenças pagas; Alteração e ampliação com vista à instalação de habitação coletiva; Compartimentação e redimensionamento interior, estrutura resistente, fachadas e cobertura. Ampliar a edificação existente na lateral (encosto de empena), em profundidade (a tardoz) e em mais um piso (3 pisos, um em semicave e um no aproveitamento do vão da cobertura para fins não habitacionais – s/ pé-direito regulamentar); Localizado junto à Casa da Música; Óptimos acessos à estação de metro e a uma vasta rede de transportes públicos. Tem uma localização de excelência, local agradável e aprazível; A 10 minutos de distância das das praias na zona balnear da cidade do Porto. Vendido com o PIP aprovado, passando a ter 4 pisos e 4 fracções: - 2 x T2 Duplex; - 2 x T1 Duplex; - 4 pisos; Cave, R/C, 1º e águas furtadas; CINFÃES DOURO IMOBILIÁRIA Somos a Imobiliária que pretendemos prestar um serviço de Excelência. Quer seja para comprar ou vender um imóvel, trabalharemos consigo de forma personalizada, para garantirmos, juntos, o MELHOR NEGÓCIO. Pretendemos garantir a segurança e o bem-estar dos nossos clientes com a nossa dedicação e acompanhamento contínuo. Através da nossa honestidade, eficiência e transparência iremos ajudá-lo a concretizar os seus negócios. Investimos na formação qualificada para melhor estudar o mercado local e podermos lhe dar as melhores recomendações. Contacte-nos e diga-nos o que procura que nós iremos ajudá-lo/a!
AMI: 13374
Ref. Externa: CD25/006
Id: 1162934
Inicie sessão para guardar este imóvel e aceder à sua lista de favoritos em qualquer dispositivo.
4 Quartos
3 WCs
Área bruta : 153 m²
Este elegante apartamento T4, situado no coração do Porto, apresenta um interior harmonioso e acolhedor. Localizado numa zona central muito procurada na invicta cidade do Porto, este imóvel beneficia não só da proximidade com transportes públicos eficientes mas também das diversas opções comerciais nas redondezas: cafés típicos portugueses estão apenas a alguns passos assim como restaurantes renomados oferecendo gastronomia local plena de sabores autênticos. Tem lugar de garagem Pretende agendar visita e saber mais detalhe? Entre em contacto. CINFÃES DOURO IMOBILIÁRIA Somos a Imobiliária que pretendemos prestar um serviço de Excelência. Quer seja para comprar ou vender um imóvel, trabalharemos consigo de forma personalizada, para garantirmos, juntos, o MELHOR NEGÓCIO. Pretendemos garantir a segurança e o bem-estar dos nossos clientes com a nossa dedicação e acompanhamento contínuo. Através da nossa honestidade, eficiência e transparência iremos ajudá-lo a concretizar os seus negócios. Investimos na formação qualificada para melhor estudar o mercado local e podermos lhe dar as melhores recomendações. Contacte-nos e diga-nos o que procura que nós iremos ajudá-lo/a!
AMI: 13374
Ref. Externa: CD25/003
Id: 1162923
Inicie sessão para guardar este imóvel e aceder à sua lista de favoritos em qualquer dispositivo.
3 Quartos
Área bruta : 210 m²
MAPA DE ACABAMENTOS - 495 CARACTERISTICAS RELEVANTES Isolamento Térmico (Capoto) e Acústico Portas e Janelas com vidro Duplo Estores de Alumínio Elétricos no Exterior Grandes Vãos Envidraçados Divisórias Interiores em Gesso Projetado Instalação de Bomba de Calor para Aquecimento de Água Tetos Falsos em toda a casa, com exceção do teto da cave Projetores de leds em toda a casa, exceto garagem Luz indireta na Sala e nos quartos Tomadas TV na sala, cozinha e quartos e salão Instalação de Alarme Instalação de Ar Condicionado nos Quartos do Piso 1 e Sala/Cozinha do piso 0 e Pré-instalação no salão do Piso -1 Portas com sistema pivot de altura igual ao pé direito das habitações, em madeira Lacado a Creme Armário Closet na suite Armários Roupeiros Lacados a Creme, com gavetas, prateleiras e varão, nos dois quartos Pavimentos dos Quartos, Sala e Halls em Soalho flutuante AC5 - Carvalho Sistema de Aspiração Central Garagem para 2 Carros com portões Automáticos Porta Corta-fogo da Garagem para o hall interior Escadas Interiores em betão armado revestidas a soalho flutuante AC5 - Carvalho COZINHA Móveis em MDF Hidrofogo Lacado a Creme, com Ilha e equipada com Movel de Prateleiras tipo Despenseiro Balcão em Silestone Eletrodomésticos da marca Bosh (Exaustor, Forno, Micro-ondas, Placa Vitrocerâmica e Máquina Lavar Louça) e Frigorifico Side by Side marca Beko Iluminação e Espaço para Resíduos Recicláveis Pavimento em grés porcelânico já definido, conforme 3D Paredes Pintadas com tinta lavável CASAS DE BANHO Revestimentos em Ladrilho Retificado já definido, conforme 3D Projetores de led embutidos Armários de Lavatório suspensos, Lacados a Creme Louças Sanitárias suspensas Resguardos de Base de Chuveiro Casas de Banho completas nos 3 Quartos Suite equipada com Kit de Duche Casas de Banho dos outros 2 quartos equipadas com Kit de Duche Casa de Banho com Sanita e Lavatório no piso 0 e no piso -1 ZONA EXTERIOR Fachada em Capoto e Allucobond Caixilharia em Alumínio com corte térmico Portas e Janelas com Vidro Duplo e Estores de Alumínio Elétricos Vídeo Porteiro com Ecrã a Cores Valor da moradia com este mapa de Acabamentos é de: 495.000,00€ CINFÃES DOURO IMOBILIÁRIA Somos a Imobiliária que pretendemos prestar um serviço de Excelência. Quer seja para comprar ou vender um imóvel, trabalharemos consigo de forma personalizada, para garantirmos, juntos, o MELHOR NEGÓCIO. Pretendemos garantir a segurança e o bem-estar dos nossos clientes com a nossa dedicação e acompanhamento contínuo. Através da nossa honestidade, eficiência e transparência iremos ajudá-lo a concretizar os seus negócios. Investimos na formação qualificada para melhor estudar o mercado local e podermos lhe dar as melhores recomendações.
AMI: 13374
Ref. Externa: CD 24/47
Id: 1162918
Inicie sessão para guardar este imóvel e aceder à sua lista de favoritos em qualquer dispositivo.
Sob consulta
Área bruta : 0 m²
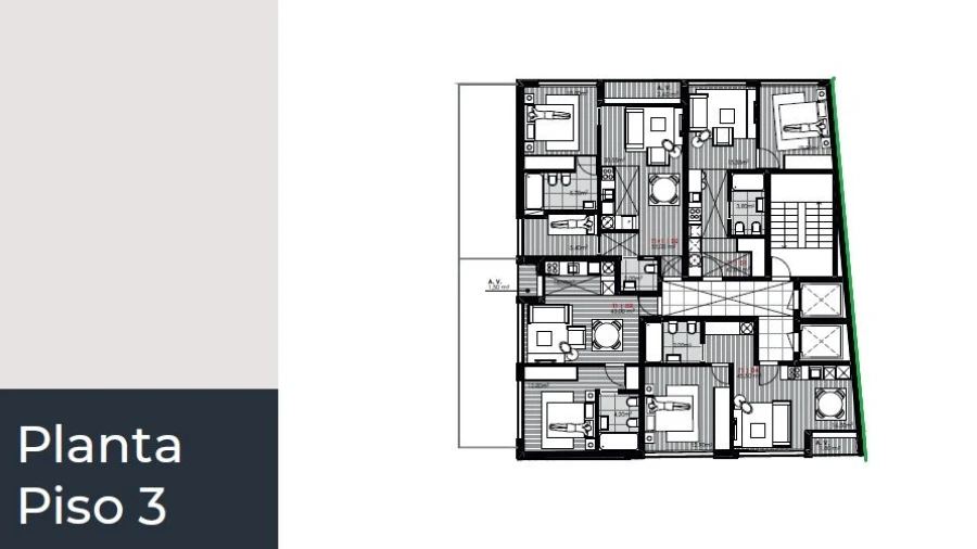
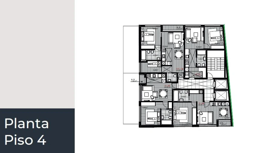
Oportunidade de Investimento Premium no Coração de Lordelo – Paredes Investir em imobiliário continua a ser uma das melhores formas de garantir retorno financeiro e valorização patrimonial. Este empreendimento em LORDELO - Paredes surge como uma oportunidade ímpar, oferecendo um total de 35 apartamentos modernos e 3 espaços comerciais no rés-do-chão, numa localização de grande potencial. Principais Características: Varandas e terraços generosos que se integram harmoniosamente com os interiores; Cozinhas elegantes e altamente funcionais; Abundante luz natural através de amplos envidraçados; Estacionamento privativo para total comodidade; Ambientes em open space, concebidos para proporcionar conforto e flexibilidade no cotidiano. Informações Adicionais: Início das obras: previsto para o final de 2024 Conclusão das obras: estimada para dezembro de 2026 Preços sub consulta pois temos muitas novidades CINFÃES DOURO IMOBILIÁRIA Somos a Imobiliária que pretendemos prestar um serviço de Excelência. Quer seja para comprar ou vender um imóvel, trabalharemos consigo de forma personalizada, para garantirmos, juntos, o MELHOR NEGÓCIO. Pretendemos garantir a segurança e o bem-estar dos nossos clientes com a nossa dedicação e acompanhamento contínuo. Através da nossa honestidade, eficiência e transparência iremos ajudá-lo a concretizar os seus negócios. Investimos na formação qualificada para melhor estudar o mercado local e podermos lhe dar as melhores recomendações.
AMI: 13374
Ref. Externa: CD24/45
Id: 1162915
Inicie sessão para guardar este imóvel e aceder à sua lista de favoritos em qualquer dispositivo.
1 Quartos
Área bruta : 56 m²
É um empreendimento inovador que redefine a vida moderna em Matosinhos com 102 frações distribuídas por 6 pisos. TIPOLOGIAS: T1 T1+1 T2 T3 Lugares de Estacionamento para venda: T1 | 10,000€ - 15,000€ * Projeto Arquitetura Aprovado * início Obra previsto para Setembro / Outubro * Conclusão Obra_28 meses após o início Cada detalhe foi projetado para oferecer conforto e uma experiência de vida sofisticada . Localizado no centro da cidade, combina a conveniência urbana com a tranquilidade de uma localização privilegiada. A poucos minutos de todas as comodidades que Matosinhos tem a oferecer, este é o lugar perfeito para quem procura um estilo de vida ativo e dinâmico. Com um design sublime e soluções arquitetônicas inteligentes, este empreendimento proporciona um investimento que combina estética e funcionalidade. As grandes áreas interiores e as suas generosas varandas oferecem uma conexão harmoniosa com o ambiente externo. Contacte-nos e diga-nos o que procura que nós iremos ajudá-lo/a! CINFÃES DOURO IMOBILIÁRIA Somos a Imobiliária que pretendemos prestar um serviço de Excelência. Quer seja para comprar ou vender um imóvel, trabalharemos consigo de forma personalizada, para garantirmos, juntos, o MELHOR NEGÓCIO. Pretendemos garantir a segurança e o bem-estar dos nossos clientes com a nossa dedicação e acompanhamento contínuo. Através da nossa honestidade, eficiência e transparência iremos ajudá-lo a concretizar os seus negócios. Investimos na formação qualificada para melhor estudar o mercado local e podermos lhe dar as melhores recomendações.
AMI: 13374
Ref. Externa: CD24/044
Id: 1162913
Inicie sessão para guardar este imóvel e aceder à sua lista de favoritos em qualquer dispositivo.
3 Quartos
Área bruta : 191 m²
É um empreendimento inovador que redefine a vida moderna em Matosinhos com 102 frações distribuídas por 6 pisos. TIPOLOGIAS: T1 T1+1 T2 T3 Lugares de Estacionamento para T1 | 10,000€ - 15,000€ * Projeto Arquitetura Aprovado * início Obra previsto para Setembro / Outubro * Conclusão Obra_28 meses após o início Cada detalhe foi projetado para oferecer conforto e uma experiência de vida sofisticada . Localizado no centro da cidade, combina a conveniência urbana com a tranquilidade de uma localização privilegiada. A poucos minutos de todas as comodidades que Matosinhos tem a oferecer, este é o lugar perfeito para quem procura um estilo de vida ativo e dinâmico. Com um design sublime e soluções arquitetônicas inteligentes, este empreendimento proporciona um investimento que combina estética e funcionalidade. As grandes áreas interiores e as suas generosas varandas oferecem uma conexão harmoniosa com o ambiente externo. Contacte-nos e diga-nos o que procura que nós iremos ajudá-lo/a! CINFÃES DOURO IMOBILIÁRIA Somos a Imobiliária que pretendemos prestar um serviço de Excelência. Quer seja para comprar ou vender um imóvel, trabalharemos consigo de forma personalizada, para garantirmos, juntos, o MELHOR NEGÓCIO. Pretendemos garantir a segurança e o bem-estar dos nossos clientes com a nossa dedicação e acompanhamento contínuo. Através da nossa honestidade, eficiência e transparência iremos ajudá-lo a concretizar os seus negócios. Investimos na formação qualificada para melhor estudar o mercado local e podermos lhe dar as melhores recomendações.
AMI: 13374
Ref. Externa: CD24/043
Id: 1162909
Inicie sessão para guardar este imóvel e aceder à sua lista de favoritos em qualquer dispositivo.
790.000 €
4 Quartos
5 WCs
Área bruta : 236 m²
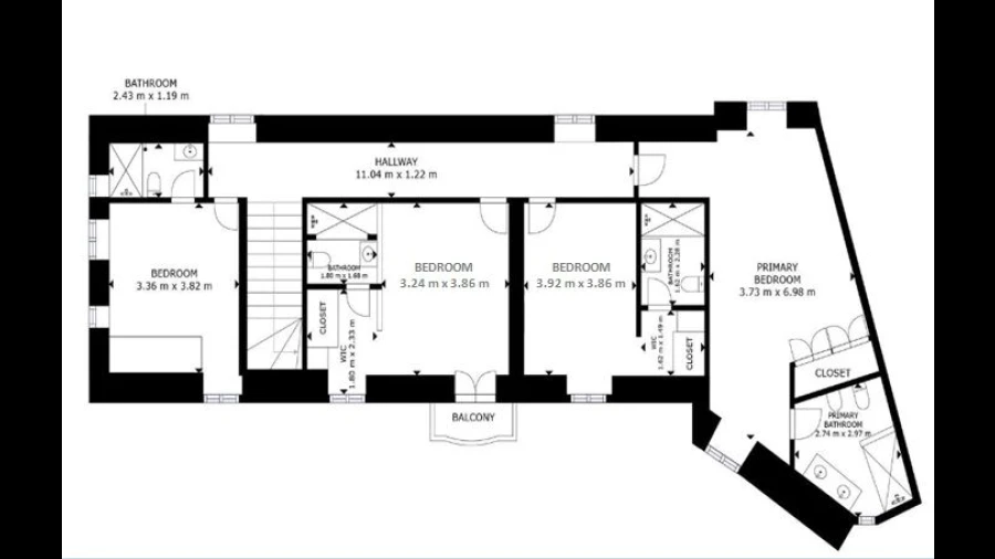
Excelente Moradia T4 Duplex, em condomínio fechado no interior do Parque Oriental e com entrada totalmente independente. Condomínio com 8 edifícios que se espalham organicamente numa espécie de villa italiana. Com vários pátios e jardins comuns, numa zona entre a natureza. Estas casas, que remontam ao séc. 19, foram reconstruidas para voltarem a ser vividas. Esta moradia, a maior do complexo, tem uma área descoberta com 82m² e 2 portões, onde se podem estacionar dois carros. No piso de r/c, a sala com área aproximada de 48m², cozinha com 15m², casa de banho e uma lavandaria/arrumos com acesso pelo exterior. O 1º andar conta com 4 suites. Zona tranquila e com uma paisagem incrível sobre o Parque e o Rio e com excelentes passadiços com percursos pedonais, usufruindo das margens do Rio Tinto. Possui transportes públicos frequentes, a 2 minutos a pé. Junto ao Freixo, VCI e Estrada da Circunvalação. Tem interesse em conhecer a sua casa? Contacte-nos. Obrigada CINFÃES DOURO IMOBILIÁRIA Somos a Imobiliária que pretendemos prestar um serviço de Excelência. Quer seja para comprar ou vender um imóvel, trabalharemos consigo de forma personalizada, para garantirmos, juntos, o MELHOR NEGÓCIO. Pretendemos garantir a segurança e o bem-estar dos nossos clientes com a nossa dedicação e acompanhamento contínuo. Através da nossa honestidade, eficiência e transparência iremos ajudá-lo a concretizar os seus negócios. Investimos na formação qualificada para melhor estudar o mercado local e podermos lhe dar as melhores recomendações. Excellent T4 Duplex House, in a gated community inside Parque Oriental and with a completely independent entrance. Condominium with 8 buildings that spread organically in a kind of Italian villa. With several patios and common gardens, in an area surrounded by nature. These houses, which date back to the 17th century. 19, were rebuilt to be lived again. This house, the largest in the complex, has an open area of 82m² and 2 gates, where you can park two cars. On the ground floor, the living room with an approximate area of 48m², kitchen with 15m², bathroom and a laundry/storage room with access from the outside. The 1st floor has 4 suites. Quiet area with an incredible landscape over the Park and the River and with excellent walkways with pedestrian paths, enjoying the banks of the Rio Tinto. It has frequent public transport, a 2-minute walk away. Next to Freixo, VCI and Estrada da Circunvalação. Are you interested in seeing your home? Contact us. Thanks CINFÃES DOURO IMOBILIÁRIA We are the real estate agency that aims to provide an excellent service. Whether it is to buy or sell a property, we will work with you in a personalized way, to guarantee, together, the BEST DEAL. We intend to guarantee the safety and well-being of our customers with our dedication and continuous monitoring. Through our honesty, efficiency and transparency we will help you achieve your business. We invest in qualified training to better study the local market and be able to give you the best recommendations. Excellente maison duplex T4, dans une communauté fermée à l'intérieur du Parque Oriental et avec une entrée complètement indépendante. Copropriété de 8 bâtiments qui s'étendent organiquement dans une sorte de villa italienne. Avec plusieurs patios et jardins communs, dans une zone en pleine nature. Ces maisons, qui datent du 17ème siècle. 19, ont été reconstruits pour être à nouveau habités. Cette maison, la plus grande du complexe, dispose d'une aire ouverte de 82 m² et de 2 portails, où vous pourrez garer deux voitures. Au rez-de-chaussée, le séjour d'une superficie approximative de 48m², la cuisine de 15m², une salle de bain et une buanderie/débarras avec accès de l'extérieur. Le 1er étage dispose de 4 suites. Quartier calme avec un paysage incroyable sur le parc et la rivière et avec d'excellentes passerelles avec sentiers piétonniers, profitant des rives du Rio Tinto. Il dispose de transports en commun fréquents, à 2 minutes à pied. À côté de Freixo, VCI et Estrada da Circunvalação. Êtes-vous intéressé à voir votre maison? Contactez-nous. Merci CINFÉS DOURO IMOBILIÁRIA Nous sommes l'agence immobilière qui vise à fournir un excellent service. Qu'il s'agisse d'acheter ou de vendre un bien, nous travaillerons avec vous de manière personnalisée, pour garantir, ensemble, la MEILLEURE AFFAIRE. Nous entendons garantir la sécurité et le bien-être de nos clients grâce à notre dévouement et notre surveillance continue. Grâce à notre honnêteté, notre efficacité et notre transparence, nous vous aiderons à réaliser votre entreprise. Nous investissons dans des formations qualifiées pour mieux étudier le marché local et pouvoir vous donner les meilleures recommandations.
AMI: 13374
Ref. Externa: CD24/36
Id: 1162905
Inicie sessão para guardar este imóvel e aceder à sua lista de favoritos em qualquer dispositivo.
750.000 €
2 WCs
Área bruta : 160 m²
-Excelente quinta próximo ao Rio douro com potencial para turismo rural -tem casa para recuperar -tem um armazém com 100m2 -tem agua de mina e dois furos e vários depósitos -tem painéis solares -tem 4ha plantados de cerejas -tem 2ha plantados de castanheiros atualmente há negociações com a C municipal para desenvolver um projeto de turismo
AMI: 13374
Ref. Externa: CD24/028
Id: 1162896
Inicie sessão para guardar este imóvel e aceder à sua lista de favoritos em qualquer dispositivo.
2 Quartos
Área útil : 73 m²
Apartamento T2 no centro de VNG. Este empreendimento localiza-se no centro urbano de Vila Nova de Gaia, a 1 minuto da estação de metro João de Deus (El Corte Inglês). A localização permite aos seus moradores desfrutarem de as conveniências de uma vida urbana - escolas, supermercados, farmácias, e os mais diversos serviços e poucos metros de distância. Os apartamentos de tipologias T0+1, T1, T1+1, T2, com varandas generosas que foram pensadaspara usufruirem ao máximo da sua casa de sonho, neste edifício de linhas modernas com as melhores e mais atuais soluções arquitetónicas e construtivas. Está interessado? Entre em contacto para agendar reunião e apresentarmos este empreendimento, desde valores, mapa de acabamentos, materiais de construção e formas de pagamento. NOTA: As imagens apresentadas são meramente ilustrativas e poderão não representar de forma fiel as medidas exatas do projeto. Poderão surgir algumas alterações à informação agora prestada em virtude dos processos de licenciamento e construtivo.
AMI: 13374
Ref. Externa: CD24/017
Id: 1162869
Inicie sessão para guardar este imóvel e aceder à sua lista de favoritos em qualquer dispositivo.
373.000 €
2 Quartos
Área útil : 96 m²
Apartamento T2+1 com terraço com 19,75 m2 e exposição solar Poente/Sul. O empreendimento com 60 frações distribuídas por 6 pisos, tipologias T0, T1, T1+1, T2 e T2+1 destaca-se pela suas linhas modernas, generosas varandas, terraços, acabamentos de excelência, onde o design e a funcionalidade comunicam de forma harmoniosa. De forma a completar toda a funcionalidade, este empreendimento dispõe também de um campo de Padel e de um Parque infantil privado. Com uma localização única e ideal para quem procura viver num ambiente citadino de fácil acesso a todo o tipo de serviços e comércio, não abdicando de estar próximo de toda a natureza da costa litoral da cidade, proporcionando ainda comodidade no dia-a-dia. Localizado a 2 min. das praias da zona de Vila Nova de Gaia e do Estuário do Rio Douro, o NEW PLAZA dispõe de todas as comodidades a um passo de distância desde Supermercados, Ginásios, Farmácias, Centro de Saúde, Correios e Escolas. É ainda possível disfrutar da Marina da Afurada que se encontra a 1km de distância. Está interessado? Entre em contacto para agendar reunião e apresentarmos este empreendimento, desde valores, mapa de acabamentos, materiais de construção e formas de pagamento. NOTA: As imagens apresentadas são meramente ilustrativas e poderão não representar de forma fiel as medidas exatas do projeto. Poderão surgir algumas alterações à informação agora prestada em virtude dos processos de licenciamento e construtivo. As áreas poderão estar sujeitas a pequenas alterações em função da constituição da propriedade horizontal.
AMI: 13374
Ref. Externa: CD24/016
Id: 1162863
Inicie sessão para guardar este imóvel e aceder à sua lista de favoritos em qualquer dispositivo.
372.000 €
2 Quartos
Área útil : 96 m²
Apartamento T2+1 com terraço com 28,90 m2 e exposição solar Poente/Sul. O empreendimento com 60 frações distribuídas por 6 pisos, tipologias T0, T1, T1+1, T2 e T2+1 destaca-se pela suas linhas modernas, generosas varandas, terraços, acabamentos de excelência, onde o design e a funcionalidade comunicam de forma harmoniosa. De forma a completar toda a funcionalidade, este empreendimento dispõe também de um campo de Padel e de um Parque infantil privado. Com uma localização única e ideal para quem procura viver num ambiente citadino de fácil acesso a todo o tipo de serviços e comércio, não abdicando de estar próximo de toda a natureza da costa litoral da cidade, proporcionando ainda comodidade no dia-a-dia. Localizado a 2 min. das praias da zona de Vila Nova de Gaia e do Estuário do Rio Douro, o NEW PLAZA dispõe de todas as comodidades a um passo de distância desde Supermercados, Ginásios, Farmácias, Centro de Saúde, Correios e Escolas. É ainda possível disfrutar da Marina da Afurada que se encontra a 1km de distância. Está interessado? Entre em contacto para agendar reunião e apresentarmos este empreendimento, desde valores, mapa de acabamentos, materiais de construção e formas de pagamento. NOTA: As imagens apresentadas são meramente ilustrativas e poderão não representar de forma fiel as medidas exatas do projeto. Poderão surgir algumas alterações à informação agora prestada em virtude dos processos de licenciamento e construtivo. As áreas poderão estar sujeitas a pequenas alterações em função da constituição da propriedade horizontal.
AMI: 13374
Ref. Externa: CD24/015
Id: 1162858
Inicie sessão para guardar este imóvel e aceder à sua lista de favoritos em qualquer dispositivo.
Inicie sessão para ocultar este imóvel das suas pesquisas e manter a sua lista de resultados organizada.
Cinfães Douro Mediação Imobiliária
Consultor imobiliário em Cinfães Douro Mediação Imobiliária - AMI: 13374
Compre créditos para poder destacar os seus imóveis! Desta forma eles são os primeiros a aparecer nas pesquisas e têm uma maior chance de serem vistos pelos utilizadores.
Guardar favoritos
Este imóvel foi guardados nos seus favoritos com sucesso.
Para poder guardar pesquisa deverá ter a sua sessão iniciada.
Caso não tenha uma conta, deverá criar uma.
A sua pesquisa foi guardada com sucesso!
© Copyright 2023 | CASACERTA. All rights reserved
Este site utiliza cookies. Ao navegar no site estará a consentir a sua utilização.
Para mais informações sobre os cookies pode consultar a
política de privacidade.