Consultor imobiliário em Comcasa - AMI: 15121
Comprar
Arrendar
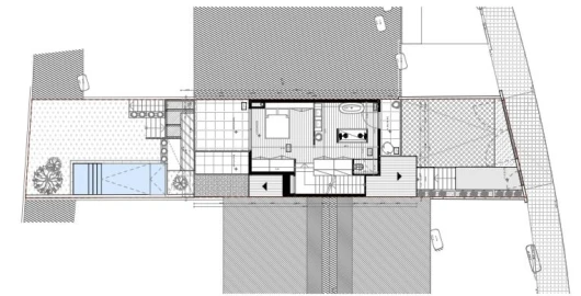
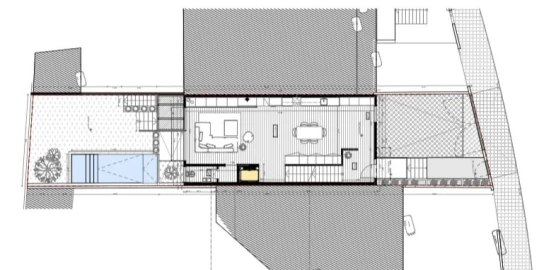
1 WCs
Área bruta : 61 m²
"Quando acha que tudo é igual esta a desistir de encontrar algo melhor." Loja em Leça da Palmeira – Oportunidade Única! Loja para arrendamento – 57m2 área util e 61m2 área bruta. Excelente Localização! Proximo à Ponte Movel e Novo Banco. Se está à procura de um espaço ideal para o seu negócio? Apresentamos uma loja com 57 m² em Leça da Palmeira, perfeita para comércio, serviços ou indústria hoteleira e similares. Zona de grande visibilidade e forte dinamismo mesmo em frente ao balcao do banco Caixa Geral de Depósitos CGD. Área: 57 m², ideal para diversos tipos de negócio (loja, escritório, clínica, estúdio, etc.). Localização Premium: Situada numa área central de Leça da Palmeira, com excelente exposição e fácil acesso. Visibilidade: Fachada com boa visibilidade, perfeita para atrair clientes. Acessibilidade: Próxima a transportes públicos, incluindo metro, garantindo grande fluxo de pessoas. Comodidades na Zona: Rodeada por supermercados, bancos e outros serviços essenciais, numa área consolidada e de grande conveniência. Oportunidade para: Empreendedores que procuram um espaço para lançar ou expandir o seu negócio.Investidores interessados num imóvel comercial com potencial de valorização. Entre em contacto para mais informações, condições da loja e agendamento de visitas! Não perca esta oportunidade de arrendar um espaço com localização estratégica em Leça da Palmeira. Condições de Arrendamento: - Contrato de arrendamento não habitacional (comercial) - Dois meses de renda - Caução - Garantia ou fiança (a analisar) _________________________________________________________________________________________________________ A ComCasa® Imobiliária nasce com a Missão de prestar um serviço de Excelência. O nosso objetivo é criar valor patrimonial e rendimento para o nosso cliente, com base numa equipa profissional (que integra elementos ligados à Gestão Imobiliária, assim como com credenciação na CMVM), respeitando assim os padrões de Ética, Discrição e Integridade A nossa experiência é alicerçada nas melhores ferramentas tecnológicas disponibilizadas pelo mercado, consolidadas na qualidade e fiabilidade nos produtos que mediamos. Nós somos a sua melhor estratégia para a transação do seu Imóvel! Na ComCasa, “a nossa Casa é a sua Casa”
AMI: 15121
Ref. Externa: 1000.A
Id: 1649252
Inicie sessão para guardar este imóvel e aceder à sua lista de favoritos em qualquer dispositivo.
4 Quartos
3 WCs
Área bruta : 179 m²
"Quando acha que tudo é igual esta a desistir de encontrar algo melhor." Apartamento com quarto suite com área de vestir tipo Closet e casa de banho com luz direta, dois quartos um com VARANDA e escritório com possibilidade de utilização como quarto. Uma casa de banho de serviço outra casa de banho completa de apoio aos quartos. Assim temos uma Tipologia equiparada a um apartamento T4. Sala de jantar com varanda e cozinha equipada com grandes dimensões e também uma zona técnica de apoio. Hall de entrada de grandes dimensões com possibilidade de interligação com a sala de jantar. O apartamento dispõe de vistas magnificas sobre a cidade e o mar contemplando também uma característica particular, ou seja duas entradas distintas, uma com ligação ao hall de entrada e sala outra com acesso restrito ao escritório e cozinha. Prédio de referencia na cidade de Matosinhos em excelente estado de conservação e com manutenção geral efetuada com regularidade. Características particulares: - Vistas desafogadas - Duas entradas distintas no imovel - Escritório com wc (ou quarto). - Cozinha com electrodomesticos e zona tecnica. - Sala com varanda - Quarto suite wc com luz directa e Closet - Um dos quartos com varanda - Roupeiros nos quartos e outro no hall dos quartos - Lugar de garagem um carro - Janelas duplas com estores em alumínio térmico - Imóvel perderá ser vendido com elementos decorativos ou mobiliário. Sujeito a negociação de valores. - Áreas comuns do Prédio adaptadas para pessoas com mobilidade reduzida. Valor Patrimonial Tributario (VPT): 124.574,43€ SCE: válido Prestação mensal de condomínio: 72€/mês OBS: Permuta por tipologias inferiores podem ser consideradas como forma de pagamento. Valor do imovel apresentado não inclui recheio, contudo existe possibilidade de venda do mesmo com o mobiliário e decoração que consta nas imagens apresentadas. _____________________________________________________________________________________________________________ A ComCasa® Imobiliária nasce com a Missão de prestar um serviço de Excelência. O nosso objetivo é criar valor patrimonial e rendimento para o nosso cliente, com base numa equipa profissional (que integra elementos ligados à Gestão Imobiliária, assim como com credenciação na CMVM), respeitando assim os padrões de Ética, Discrição e Integridade A nossa experiência é alicerçada nas melhores ferramentas tecnológicas disponibilizadas pelo mercado, consolidadas na qualidade e fiabilidade nos produtos que mediamos. Nós somos a sua melhor estratégia para a transação do seu Imóvel! Na ComCasa, “a nossa Casa é a sua Casa”
AMI: 15121
Ref. Externa: 0224.GOD.2
Id: 1606635
Inicie sessão para guardar este imóvel e aceder à sua lista de favoritos em qualquer dispositivo.
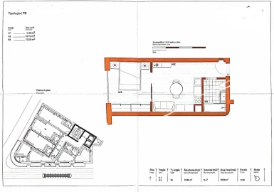
1 Quartos
1 WCs
Área bruta : 55 m²
"Quando acha que tudo é iguas esta a desistir de encontrat algo melhor." Oportunidade de investimento é agora pois temos disponível um T0 com características equiparadas a T1 em empreendimento de grande qualidade arquitetónica e de matérias utilizados. este imovel é magnifico para quem pretende obter rendimentos passivos pois esta localizado em zona estrategica no centro da cidade de Matosinhos. Pano de pagamento sob consulta Características: - próximo a estação de metro - próximo de acesso para saída e entrada em Matosinhos - próximo da praia de Matosinhos (2000m) - apartamento mobilado e equipado - mapa de acabamentos ou caderno de encargos disponível para consulta - prazo de conclusão estimado para 2027 1º trimestre Valor patrimonial tributario (VPT): N/D Prestação mensal de condominio: N/A ________________________________________________________________________________________ A ComCasa® Imobiliária nasce com a Missão de prestar um serviço de Excelência. O nosso objetivo é criar valor patrimonial e rendimento para o nosso cliente, com base numa equipa profissional (que integra elementos ligados à Gestão Imobiliária, assim como com credenciação na CMVM), respeitando assim os padrões de Ética, Discrição e Integridade A nossa experiência é alicerçada nas melhores ferramentas tecnológicas disponibilizadas pelo mercado, consolidadas na qualidade e fiabilidade nos produtos que mediamos. Nós somos a sua melhor estratégia para a transação do seu Imóvel! Na ComCasa, “a nossa Casa é a sua Casa”
AMI: 15121
Ref. Externa: 0224.BIQ6
Id: 1593124
Inicie sessão para guardar este imóvel e aceder à sua lista de favoritos em qualquer dispositivo.
2 Quartos
2 WCs
Área bruta : 120 m²
"Quando acha que tudo é igual esta a desistir de encontrar algo melhor" em processo de angariação... Andar Moradia tipologia T2 ao nivel do r/c com duas casa de banho, uma de apoio aos quartos outra de serviço. Cozinha com eletrodomésticos (usados) escritório com luz direta e sala de estar e jantar. O imóvel tem disponível um pátio com acesso a lavandaria e garagem fechada para um carro. Localiza-se próximo da Igreja de Leça da Palmeira ou seja no centro... Condições de Arrendamento: - Contrato de arrendamento habitacinal - Dois meses de renda - Caução (equivalente a dois meses) - Garantia ou fiança (a analisar) Características/ Particularidades - Imovel arrendado preferencialmente com mobiliário existente. _________________________________________________________________________________________________________ A ComCasa® Imobiliária nasce com a Missão de prestar um serviço de Excelência. O nosso objetivo é criar valor patrimonial e rendimento para o nosso cliente, com base numa equipa profissional (que integra elementos ligados à Gestão Imobiliária, assim como com credenciação na CMVM), respeitando assim os padrões de Ética, Discrição e Integridade A nossa experiência é alicerçada nas melhores ferramentas tecnológicas disponibilizadas pelo mercado, consolidadas na qualidade e fiabilidade nos produtos que mediamos. Nós somos a sua melhor estratégia para a transação do seu Imóvel! Na ComCasa, “a nossa Casa é a sua Casa”
AMI: 15121
Ref. Externa: 0224.TF
Id: 1579242
Inicie sessão para guardar este imóvel e aceder à sua lista de favoritos em qualquer dispositivo.
1 Quartos
1 WCs
Área bruta : 68 m²
"Quando acha que tudo é igual esta a desistir de encontrar algo melhor." Apartamento Tipologia T1 com varanda virada para o jardim do edifício, inclui lugar de garagem e arrumo ideal para investidores que pretendem imóveis com rentabilidade ou para habitação própria, neste ultimo caso caso só depois de terminar o contrato atual. No caso de prender investir neste momento em imóveis para obtenção de rendimentos passivos pode contar com um rendimento anual do 1º ano na ordem dos 12.375,00€. Contrato de arrendamento com garantia e fiança. Tenha em conta que em produtos financeiros (oferecidos por instituições de crédito/ bancos) a sua rentabilidade só provem da remuneração ou taxa oferecida, no património imobiliário para além da taxa de remuneração tem sempre a valorização autónoma do próprio imóvel! Breve descrição; - Imóvel orientado a nascente, tipologia T1 com kitchenet em condomínio fechado com jardins, lugar de garagem e arrumo na cave do edifício. Prédio com elevador. Composto por: - Hall de entrada; - Cozinha equipada com: forno, placa, maquina de lavar e secar roupa, maquina de lavar louça e frigorífico; - Sala com acesso á varanda; - Quarto com grande roupeiro embutido; - Casa de banho com base de chuveiro. O prédio em regime de condomínio fechado está localizado nas proximidade da Igreja Matriz de Lavra, Praia do Funtão (a 1000 metros) assim como acesso a A28 pelo nó de Lavra e transportes Resende carreira 104. Prestação mensal de condomínio: 30,00€ Valor Patrimonial Tributário (VPT): 35.630,94€ IMI: 144,00€/ ano Inicio do contrato a termo certo: 01/09/2025 termo 31/08/2026 ________________________________________________________________________________________________________________________ A ComCasa® Imobiliária nasce com a Missão de prestar um serviço de Excelência. O nosso objetivo é criar valor patrimonial e rendimento para o nosso cliente, com base numa equipa profissional (que integra elementos ligados à Gestão Imobiliária, assim como com credenciação na CMVM), respeitando assim os padrões de Ética, Discrição e Integridade A nossa experiência é alicerçada nas melhores ferramentas tecnológicas disponibilizadas pelo mercado, consolidadas na qualidade e fiabilidade nos produtos que mediamos. Nós somos a sua melhor estratégia para a transação do seu Imóvel! Na ComCasa, “a nossa Casa é a sua Casa”
AMI: 15121
Ref. Externa: 0224.LA
Id: 1540646
Inicie sessão para guardar este imóvel e aceder à sua lista de favoritos em qualquer dispositivo.
590.000 €
3 Quartos
3 WCs
Área bruta : 173 m²
Quando acha que tudo é igual esta a desistir de encontrar algo melhor. Apartamento tipologia T3 com características de T4, dispõe de um quarto suite e roupeiros em madeira em todos os quartos, casa de banho completa e outra de serviço. cozinha com lavandaria, sala com varanda. Na cave um lugar duplo de estacionamento e um arrumo. O imovel necessita de uma remodelação geral Valor patrimonial Tributario (VPT): 156.489,45€ Prestação mensal de condominio: 90,00€ _________________________________________________________________________________ A ComCasa® Imobiliária nasce com a Missão de prestar um serviço de Excelência. O nosso objetivo é criar valor patrimonial e rendimento para o nosso cliente, com base numa equipa profissional (que integra elementos ligados à Gestão Imobiliária, assim como com credenciação na CMVM), respeitando assim os padrões de Ética, Discrição e Integridade A nossa experiência é alicerçada nas melhores ferramentas tecnológicas disponibilizadas pelo mercado, consolidadas na qualidade e fiabilidade nos produtos que mediamos. Nós somos a sua melhor estratégia para a transação do seu Imóvel! Na ComCasa, “a nossa Casa é a sua Casa”
AMI: 15121
Ref. Externa: 0776.7
Id: 1483696
Inicie sessão para guardar este imóvel e aceder à sua lista de favoritos em qualquer dispositivo.
13.000 €
Área bruta : 1200 m²
Quando achas que tudo é igual estas a desistir de encontrar algo melhor. Armazém com afetação industrial e escritórios, possibilidade de afetação para serviços. Composto por área de armazem com pé direito livre de até 6m e telhado com painéis de isolamento do tipo "sanduiche", área administrativa com entrada independente e área para entradas de viaturas de carga (TIR) contempla ainda área descoberta com possibilidade de reconversão em área coberta e wc´s. Proximo à Staples e ao Norte Shopping Estada da Circunvalação no Porto, proximo da estação de metro do Viso e Autocarro linha 505 dos STCP e 601. Quadro de áreas: - área administrativa 200m2 - área de armazem com acesso a camiões TIR; 880m2 - área descoberta 120m2 - pé direito livre na nave 6m Condições de arrendamento: - Contrato arrendamento - Dois meses de renda - Caução ou garantia _______________________________________________________________________________________________________ A ComCasa® Imobiliária nasce com a Missão de prestar um serviço de Excelência. O nosso objetivo é criar valor patrimonial e rendimento para o nosso cliente, com base numa equipa profissional (que integra elementos ligados à Gestão Imobiliária, assim como com credenciação na CMVM), respeitando assim os padrões de Ética, Discrição e Integridade A nossa experiência é alicerçada nas melhores ferramentas tecnológicas disponibilizadas pelo mercado, consolidadas na qualidade e fiabilidade nos produtos que mediamos. Nós somos a sua melhor estratégia para a transação do seu Imóvel! Na ComCasa, “a nossa Casa é a sua Casa”
AMI: 15121
Ref. Externa: 0991
Id: 1468896
Inicie sessão para guardar este imóvel e aceder à sua lista de favoritos em qualquer dispositivo.
125.000 €
3 Quartos
2 WCs
Área bruta : 110 m²
Quando acha que é tudo é igual esta a desistir de encontrar algo melhor. Valor Patrimonial Tributario (VPT): 11.963,96€ SCE: válido _______________________________________________________________________________ A ComCasa® Imobiliária nasce com a Missão de prestar um serviço de Excelência. O nosso objetivo é criar valor patrimonial e rendimento para o nosso cliente, com base numa equipa profissional (que integra elementos ligados à Gestão Imobiliária, assim como com credenciação na CMVM), respeitando assim os padrões de Ética, Discrição e Integridade A nossa experiência é alicerçada nas melhores ferramentas tecnológicas disponibilizadas pelo mercado, consolidadas na qualidade e fiabilidade nos produtos que mediamos. Nós somos a sua melhor estratégia para a transação do seu Imóvel! Na ComCasa, “a nossa Casa é a sua Casa”
AMI: 15121
Ref. Externa: 0224.ANS
Id: 1440708
Inicie sessão para guardar este imóvel e aceder à sua lista de favoritos em qualquer dispositivo.
230.000 €
Área de terreno : 700 m²
"Quando acha que tudo é igual está a desistir de encontrar algo melhor." Descrição: Terreno para construção de moradia unifamiliar com 4 frentes. Características do terreno/ Lote: - Frente: 15m - Fundo 46m - Área de implantação: 140m2 - Caracterização na CPU ou afetação: terreno para construção urbana Localização em Gemunde na Maia próximo ao Shopping Mira Maia e Cruzamento das Guardeiras na Zona Industrial da Maia. Valor Patrimonial tributário (VPT): 85.385,23€ _______________________________________________________________________________________________________________________ A ComCasa® Imobiliária nasce com a Missão de prestar um serviço de Excelência. O nosso objetivo é criar valor patrimonial e rendimento para o nosso cliente, com base numa equipa profissional (que integra elementos ligados à Gestão Imobiliária, assim como com credenciação na CMVM), respeitando assim os padrões de Ética, Discrição e Integridade A nossa experiência é alicerçada nas melhores ferramentas tecnológicas disponibilizadas pelo mercado, consolidadas na qualidade e fiabilidade nos produtos que mediamos. Nós somos a sua melhor estratégia para a transação do seu Imóvel! Na ComCasa, “a nossa Casa é a sua Casa”
AMI: 15121
Ref. Externa: 0224.SC29
Id: 1423001
Inicie sessão para guardar este imóvel e aceder à sua lista de favoritos em qualquer dispositivo.
2 WCs
Área bruta : 185 m²
Pequeno Armazém (industrial) em Leça da Palmeira com possibilidade de utilização em open space. Acesso a viaturas Armazem com 3m de frente. Localizada em Leça da Palmeira próximo da ponte móvel e acesso à A28. Frente: 3m (2,50m interior) Fundo: Pé direito: 3m pé direito livre Armazem - afectação industrial Prestação mensal de condomínio: 18€ Valor patrimonial tributario (VPT): ___________________________________________________________ A ComCasa® Imobiliária nasce com a Missão de prestar um serviço de Excelência. O nosso objetivo é criar valor patrimonial e rendimento para o nosso cliente, com base numa equipa profissional (que integra elementos ligados à Gestão Imobiliária, assim como com credenciação na CMVM), respeitando assim os padrões de Ética, Discrição e Integridade A nossa experiência é alicerçada nas melhores ferramentas tecnológicas disponibilizadas pelo mercado, consolidadas na qualidade e fiabilidade nos produtos que mediamos. Nós somos a sua melhor estratégia para a transação do seu Imóvel! Na ComCasa, “a nossa Casa é a sua Casa”
AMI: 15121
Ref. Externa: 0224.LLECA2AA
Id: 1409836
Inicie sessão para guardar este imóvel e aceder à sua lista de favoritos em qualquer dispositivo.
1 Quartos
1 WCs
Área bruta : 58 m²
"Quando acha que tudo é igual esta a desistir de encontrar algo melhor." Apartamento ideal para habitação própria ou investidores que procuram imoveis para rendimentos passivos, tipologia equiparada a T1 com kitchenette. Dispõe na Cozinha de eletrodomésticos (máquina de lavar e secar roupa, placa, forno, máquina de lavar louça, frigorífico de bancada), estores elétricos, porta de segurança, vidros duplos e chão em madeira. Localizado no centro da cidade de Matosinhos em frente à estação de Metro de Matosinhos/ Câmara na Avenida da República perto do supermercado Continente e Supermercado Mercadona assim como Câmara Municipal de Matosinhos. Bons acessos à A28, A3 e A4 e marginal pela praia de Matosinhos Com lugar de garagem. A prestação mensal de condomínio: 43,00 Valor Patrimonial Tributário: 40.000,00 IMI - 160,00 ______________________________________________________________________________________________ A ComCasa® Imobiliária nasce com a Missão de prestar um serviço de Excelência. O nosso objetivo é criar valor patrimonial e rendimento para o nosso cliente, com base numa equipa profissional (que integra elementos ligados à Gestão Imobiliária, assim como com credenciação na CMVM), respeitando assim os padrões de Ética, Discrição e Integridade A nossa experiência é alicerçada nas melhores ferramentas tecnológicas disponibilizadas pelo mercado, consolidadas na qualidade e fiabilidade nos produtos que mediamos. Nós somos a sua melhor estratégia para a transação do seu Imóvel! Na ComCasa, “a nossa Casa é a sua Casa”
AMI: 15121
Ref. Externa: 0224.B
Id: 1402432
Inicie sessão para guardar este imóvel e aceder à sua lista de favoritos em qualquer dispositivo.
Área bruta : 600 m²
Quando acha que tudo é igual esta a desistir de encontrar algo melhor. Imóvel com características de fácil acessibilidade e visibilidade. Ideal para atividades comercias assim como serviços. Boa localização! - parque de estacionamento publico - gabinetes tecnicos - acesso viaturas - saida de emergencia Valor Patrimonial Tributário (VPT): 383.573,30€ Prestação mensal de condominio: ________________________________________________________________________ A ComCasa® Imobiliária nasce com a Missão de prestar um serviço de Excelência. O nosso objetivo é criar valor patrimonial e rendimento para o nosso cliente, com base numa equipa profissional (que integra elementos ligados à Gestão Imobiliária, assim como com credenciação na CMVM), respeitando assim os padrões de Ética, Discrição e Integridade A nossa experiência é alicerçada nas melhores ferramentas tecnológicas disponibilizadas pelo mercado, consolidadas na qualidade e fiabilidade nos produtos que mediamos. Nós somos a sua melhor estratégia para a transação do seu Imóvel! Na ComCasa, “a nossa Casa é a sua Casa”
AMI: 15121
Ref. Externa: 0776.8
Id: 1387780
Inicie sessão para guardar este imóvel e aceder à sua lista de favoritos em qualquer dispositivo.
3 WCs
Área bruta : 600 m²
"Quando acha que tudo é igual esta a desistir de encontrar algo melhor." Loja ideal para atividades comercias assim como serviços ou atividades ligadas à área da saúde... - parque de estacionamento publico - gabinetes técnicos - acesso viaturas (cargas e descargas) - saída de emergência - ultima afetação do imóvel na área da saúde (possibilidade de licenciamento nessa área de atividade) Condições de arrendamento: - contrato de arrendamento não habitacional (arrendamento comercial) - dois meses de renda - caução equivalente a dois meses - garantia ou fiança _________________________________________________________________________________________________________ A ComCasa® Imobiliária nasce com a Missão de prestar um serviço de Excelência. O nosso objetivo é criar valor patrimonial e rendimento para o nosso cliente, com base numa equipa profissional (que integra elementos ligados à Gestão Imobiliária, assim como com credenciação na CMVM), respeitando assim os padrões de Ética, Discrição e Integridade A nossa experiência é alicerçada nas melhores ferramentas tecnológicas disponibilizadas pelo mercado, consolidadas na qualidade e fiabilidade nos produtos que mediamos. Nós somos a sua melhor estratégia para a transação do seu Imóvel! Na ComCasa, “a nossa Casa é a sua Casa”
AMI: 15121
Ref. Externa: 0776.8A
Id: 1387781
Inicie sessão para guardar este imóvel e aceder à sua lista de favoritos em qualquer dispositivo.
10 Quartos
4 WCs
Área bruta : 644 m²
Quando acha que tudo é igual esta a desistir de encontrar algo melhor. em angariação.. Caracteristicas: - Imóvel tipo Moradia - Área do lote: 484m² - Área Bruta: 644 - 9 Quartos ou Salas - Cozinha tipo Industrial Informação sobre o imóvel: Imóvel com características de casa senhorial de estilo colonial, com uma localização privilegiada inserida no nucleo da Zona Historica da Cidade de Matosinhos, com acesso privilegiado a todo o centro urbano da cidade. A ultima afetação foi na área da Educação como Colégio destinado ao 1º Ciclo, o espaço está reune todas as condicoes, tecnicas e fisicas para actividades equiparadas, ligadas ao ensino ou formação. Oferece também condições para projetos educativos diversos, culturais ou ainda empresariais. O imóvel distingue-se pelo seu traçado ou traça particular com ampla área, boa distribuição de espaços com características para uso como salas, gabinetes ou ainda quartos. Bons espaços exteriores o que lhe permite um conjunto de multiplas utilizaçoes. Valor Patrimonial Tributário (VPT): artigo A 381.677,00€; artigo B 9380,00€ Certificado Energetico: valido _______________________________________________________________________________________ A ComCasa® Imobiliária nasce com a Missão de prestar um serviço de Excelência. O nosso objetivo é criar valor patrimonial e rendimento para o nosso cliente, com base numa equipa profissional (que integra elementos ligados à Gestão Imobiliária, assim como com credenciação na CMVM), respeitando assim os padrões de Ética, Discrição e Integridade A nossa experiência é alicerçada nas melhores ferramentas tecnológicas disponibilizadas pelo mercado, consolidadas na qualidade e fiabilidade nos produtos que mediamos. Nós somos a sua melhor estratégia para a transação do seu Imóvel! Na ComCasa, “a nossa Casa é a sua Casa”
AMI: 15121
Ref. Externa: 0224.SC27
Id: 1380801
Inicie sessão para guardar este imóvel e aceder à sua lista de favoritos em qualquer dispositivo.
3 WCs
Área bruta : 200 m²
Quando acha que tudo é igual esta a desistir de encontrar algo melhor! Imóvel Comercial com Licenciamento Ativo para Restauração e Bar – Porto (Hospital Santo António) Imóvel destinado a atividade comercial na área da hotelaria, com alvará de atividade económica ativo para funcionamento como restaurante e bar. Localizado em zona central da cidade do Porto, nas imediações do Hospital Santo António, beneficia de elevada acessibilidade incluindo estacao de metro (linha Rubi) a acesso pela Ponte da Arrabida a A1. Características técnicas: • Área bruta total: 200 m² • Layout funcional para restauração/bar:• Cozinha equipada • 3 instalações sanitárias • Balcão de atendimento • Sala ampla em open space para eventos ou refeições • Área exterior destinada a saída de emergência • Zona de arrumos localizada na cave • Infraestrutura pronta a operar, com licenciamento em vigor Modalidades de aquisição: • Venda do imóvel com sociedade comercial detentora do alvará, sem passivos • Alternativamente, possibilidade de aquisição apenas do imóvel, sem transferência societária Perfil de comprador ideal: investidores com interesse em ativos operacionais no setor da restauração ou empreendedores que pretendam iniciar atividade própria num espaço já licenciado e funcional. Valor Patrimonial Tributario (VPT): 173.154,52€ Prestação mensal de condominio: 175,00€ _____________________________________________________________________________________________ A ComCasa® Imobiliária nasce com a Missão de prestar um serviço de Excelência. O nosso objetivo é criar valor patrimonial e rendimento para o nosso cliente, com base numa equipa profissional (que integra elementos ligados à Gestão Imobiliária, assim como com credenciação na CMVM), respeitando assim os padrões de Ética, Discrição e Integridade A nossa experiência é alicerçada nas melhores ferramentas tecnológicas disponibilizadas pelo mercado, consolidadas na qualidade e fiabilidade nos produtos que mediamos. Nós somos a sua melhor estratégia para a transação do seu Imóvel! Na ComCasa, “a nossa Casa é a sua Casa”
AMI: 15121
Ref. Externa: 0224.LB
Id: 1367961
Inicie sessão para guardar este imóvel e aceder à sua lista de favoritos em qualquer dispositivo.
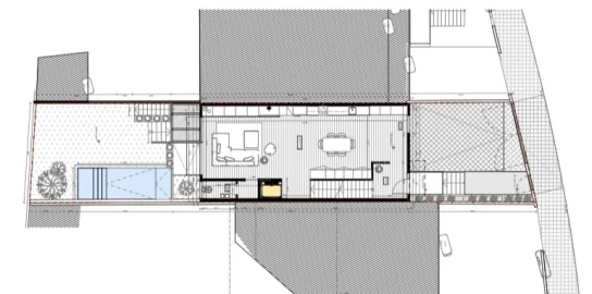
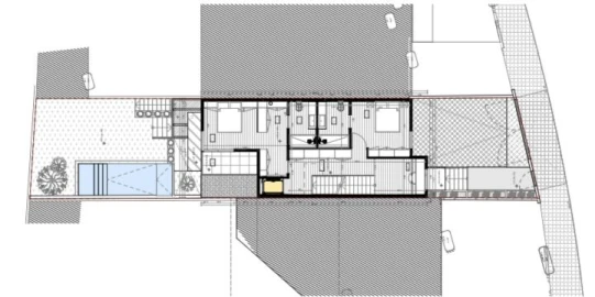
4 Quartos
4 WCs
Área bruta : 245 m²
"Quando achas que tudo igual esta a desistir de encontrar algo melhor." Descrição do imóvel: Moradia de três frentes tipologia V4 com quarto suite junto à praia da Agudela em Lavra A moradia é composta por dois pisos sendo o 1º piso destinado aos quartos, sendo três deles com roupeiros e uso partilhado de casa de banho completa com luz natural e o quarto principal é suite também com luz natural na casa de banho. O piso da entrada é composto por garagem individual para dois carros com acesso direto a área de entrada da moradia ou acesso ao jardim principal. Dispõe de hall de entrada com acesso à cozinha que contempla todos os eletrodomésticos necessários a uma utilização diária e frequente. A sala permite duas valências, de estar e de jantar, dada a sua dimensão generosa com vistas diretas para o jardim principal e para a piscina. Ainda no piso da entradas temos disponível uma casa de banho de serviço. Como zonas técnicas temos os balneários de apoio à piscina assim como zona técnica das maquinas assim como da zona de lavandaria para tratamento de roupas. A moradia tem um sistema de aquecimento central por caldeira mural que se destina ao aquecimento das aguas para banhos assim como para aquecimento da habitação. Localização: A 10 metros da praia da Praia da Agudela, da praia do Quebrada e praia do Marreco mesmo junto ao passadiço que liga toda a orla litoral. O supermercado Aldi assim como o pavilhão Gimnodesportivo CRPF Lavra e a Escola Primaria da Agudela ficam a poucos metros do imóvel, sendo os acesso a autoestrada A28 efetuados pelo nó de Lavra ou então pela marginal até Leça da Palmeira. Benefícios Adicionais: - Piscina exterior - Balneários autónomos - Jardim envolvente à piscina - Garagem dois carros Valor patrimonial Tributário (VPT): 202.645,70€ atualizado ____________________________________________________________________________________________________________ A ComCasa® Imobiliária nasce com a Missão de prestar um serviço de Excelência. O nosso objetivo é criar valor patrimonial e rendimento para o nosso cliente, com base numa equipa profissional (que integra elementos ligados à Gestão Imobiliária, assim como com credenciação na CMVM), respeitando assim os padrões de Ética, Discrição e Integridade A nossa experiência é alicerçada nas melhores ferramentas tecnológicas disponibilizadas pelo mercado, consolidadas na qualidade e fiabilidade nos produtos que mediamos. Nós somos a sua melhor estratégia para a transação do seu Imóvel! Na ComCasa, “a nossa Casa é a sua Casa”
AMI: 15121
Ref. Externa: 0966
Id: 1341896
Inicie sessão para guardar este imóvel e aceder à sua lista de favoritos em qualquer dispositivo.
525.000 €
Área de terreno : 7861 m²
"Quando acha que tudo é igual está a desistir de encontrar algo melhor." Descrição: Terreno para construção com capacidade construtiva. Estudo de PIP para 15 habitacoes com garagem em regime de Propriedade Horizontal. Localização em S. Jacinto, Aveiro proximo ao Centro de Alto Rendimento de Surf CARSURF, estadio de S. Jacinto e Piscinas Municipais assim como Praia de S. Jacinto Valor Patrimonial tributario (VPT): 106.170,00€ e 372.790,00€ _______________________________________________________________________________________________________________________ A ComCasa® Imobiliária nasce com a Missão de prestar um serviço de Excelência. O nosso objetivo é criar valor patrimonial e rendimento para o nosso cliente, com base numa equipa profissional (que integra elementos ligados à Gestão Imobiliária, assim como com credenciação na CMVM), respeitando assim os padrões de Ética, Discrição e Integridade A nossa experiência é alicerçada nas melhores ferramentas tecnológicas disponibilizadas pelo mercado, consolidadas na qualidade e fiabilidade nos produtos que mediamos. Nós somos a sua melhor estratégia para a transação do seu Imóvel! Na ComCasa, “a nossa Casa é a sua Casa”
AMI: 15121
Ref. Externa: B125 0984
Id: 1331730
Inicie sessão para guardar este imóvel e aceder à sua lista de favoritos em qualquer dispositivo.
3 Quartos
3 WCs
Área bruta : 160 m²
Quando acha que tudo é igua esta a desistir de encontrar algo melhor. Localização privilegiada em Vilar de Pinheiro - Vila do Conde A apenas 5 minutos a pé da estação de metro, esta casa oferece ligação direta e cómoda ao centro do Porto, à Maia e ao Aeroporto. Localizada numa zona residencial tranquila, com bons acessos rodoviários e excelente exposição solar, é uma opção estratégica para quem procura habitação com espaço, funcionalidade e rentabilidade. Um imóvel, com varias opções: Propriedade destaca-se pela sua configuração de 4 frentes, adaptando-se tanto a casa familiar ou como um projeto de investimento com uma excelente rentabilidade. Moradia para restauro total: Composto por 3 quartos, sala, cozinha e 3 casas de banho, boas áreas, muita luz, ideal para uma família numerosa ou uso institucional. Garagem fechada para dois carros. Terreno com cerca de 500m² e entradas independentes Esta área pode ser utilizada como zona de lazer com piscina, barbecue, jardim etc.... Valor Patrimonial Tributario (VPT): 45.000,00€ ____________________________________________________________________________________________________________________ A ComCasa® Imobiliária nasce com a Missão de prestar um serviço de Excelência. O nosso objetivo é criar valor patrimonial e rendimento para o nosso cliente, com base numa equipa profissional (que integra elementos ligados à Gestão Imobiliária, assim como com credenciação na CMVM), respeitando assim os padrões de Ética, Discrição e Integridade A nossa experiência é alicerçada nas melhores ferramentas tecnológicas disponibilizadas pelo mercado, consolidadas na qualidade e fiabilidade nos produtos que mediamos. Nós somos a sua melhor estratégia para a transação do seu Imóvel! Na ComCasa, “a nossa Casa é a sua Casa”
AMI: 15121
Ref. Externa: 1003
Id: 1330263
Inicie sessão para guardar este imóvel e aceder à sua lista de favoritos em qualquer dispositivo.
3 Quartos
4 WCs
Área bruta : 210 m²
"Quando acha que tudo é igual esta a desistir de encontrar algo melhor." Localização do imovel; Imóvel localizado em Lavra próximo da Farmácia dos Mares, Escola Básica Dr José Domingues dos Santos e Supermercado Pingo Doce de Lavra. Características: - previsão conclusão Dezembro 2025, mapa de acabamentos disponível para consulta na loja da COMCASA imobiliária de Leça da Palmeira Outras características; - cozinha completamente equipada - ar condicionado - aspiração central - matérias cerâmicos retificados - blackout nas janelas - sistema de regeneração de ar interior - sistema de aquecimento de águas quentes termossifão com painéis solares. Possibilidade de estudo de permuta, de valor inferior, no processo de venda. Consulte-nos! Area do lote: - 236m2 Valor Patrimonial Tributario (VPT): Certificado provisório: classe A integrante ao projeto aprovado na CMM ___________________________________________________________________________________________________________ A ComCasa® Imobiliária nasce com a Missão de prestar um serviço de Excelência. O nosso objetivo é criar valor patrimonial e rendimento para o nosso cliente, com base numa equipa profissional (que integra elementos ligados à Gestão Imobiliária, assim como com credenciação na CMVM), respeitando assim os padrões de Ética, Discrição e Integridade A nossa experiência é alicerçada nas melhores ferramentas tecnológicas disponibilizadas pelo mercado, consolidadas na qualidade e fiabilidade nos produtos que mediamos. Nós somos a sua melhor estratégia para a transação do seu Imóvel! Na ComCasa, “a nossa Casa é a sua Casa”
AMI: 15121
Ref. Externa: 0237.14
Id: 1328796
Inicie sessão para guardar este imóvel e aceder à sua lista de favoritos em qualquer dispositivo.
3 Quartos
4 WCs
Área bruta : 260 m²
"Quando acha que tudo é igual esat a desistir de encontrar algo melhor." Moradia V3 de Luxo em Aldoar – Porto Junto ao Parque da Cidade | Piscina | Elevador | Acabamentos Premium Descubra esta moradia exclusiva de tipologia V3, localizada numa das zonas mais prestigiadas do Porto — Aldoar — Vilarinho - a poucos passos do Parque da Cidade e com fácil acesso às praias de Matosinhos e Foz do Douro, escolas internacionais como o CLIP Oporto International School e principais vias da cidade (avenida da Boavista e Estrada Exterior da Circunvalação), Hospital CUF Porto Com 260m² de área coberta e um jardim privativo de 74m² com piscina exterior de água aquecida, esta propriedade foi pensada para proporcionar conforto, sofisticação e funcionalidade em cada detalhe. - Todos os quartos são suítes, incluindo uma ampla master suite com terraço privativo. - Ginásio privativo para o seu bem-estar diário. - Elevador interno com acesso direto da cave aos quartos, passando pela sala e cozinha para melhor mobilidade e conforto. - Acabamentos de qualidade superior, que elevam o padrão de construção e garantem durabilidade e elegância. A moradia encontra-se em fase de construção, com conclusão prevista para junho de 2026, oferecendo a oportunidade única de adquirir uma casa nova, moderna e adaptada às exigências da vida contemporânea. Ideal para famílias que valorizam espaço, conforto e localização privilegiada, bem como para investidores estrangeiros que procuram um imóvel de alto padrão no coração do Porto. Características de localização: - Vilarinha - Igreja de S. Martinho (Aldoar) - Parque da Cidade - CLIP Oporto International School - Esquadra da Policia de Seguraca Publica Características técnicas: - piscina de água salgada (com sistema de aquecimento de água) - elevador interno - master suite com terraço e Closet Valor Patriminial Tributario (VPT)- ND Pode ser solicitada a apresentação de Carta de Intenções ou Entendimento (LOI) e ou Prova de Fundos (POF) ___________________________________________________________________________________________________________ A ComCasa® Imobiliária nasce com a Missão de prestar um serviço de Excelência. O nosso objetivo é criar valor patrimonial e rendimento para o nosso cliente, com base numa equipa profissional (que integra elementos ligados à Gestão Imobiliária, assim como com credenciação na CMVM), respeitando assim os padrões de Ética, Discrição e Integridade A nossa experiência é alicerçada nas melhores ferramentas tecnológicas disponibilizadas pelo mercado, consolidadas na qualidade e fiabilidade nos produtos que mediamos. Nós somos a sua melhor estratégia para a transação do seu Imóvel! Na ComCasa, “a nossa Casa é a sua Casa”
AMI: 15121
Ref. Externa: 0224.PMA1
Id: 1316260
Inicie sessão para guardar este imóvel e aceder à sua lista de favoritos em qualquer dispositivo.
Inicie sessão para ocultar este imóvel das suas pesquisas e manter a sua lista de resultados organizada.
Comcasa
Consultor imobiliário em Comcasa - AMI: 15121
Compre créditos para poder destacar os seus imóveis! Desta forma eles são os primeiros a aparecer nas pesquisas e têm uma maior chance de serem vistos pelos utilizadores.
Guardar favoritos
Este imóvel foi guardados nos seus favoritos com sucesso.
Para poder guardar pesquisa deverá ter a sua sessão iniciada.
Caso não tenha uma conta, deverá criar uma.
A sua pesquisa foi guardada com sucesso!
© Copyright 2023 | CASACERTA. All rights reserved
Este site utiliza cookies. Ao navegar no site estará a consentir a sua utilização.
Para mais informações sobre os cookies pode consultar a
política de privacidade.