Consultor imobiliário em Douro Project Real Estate - AMI: 26843
Comprar
Arrendar
225.000 €
1 WCs
Área bruta : 39 m²
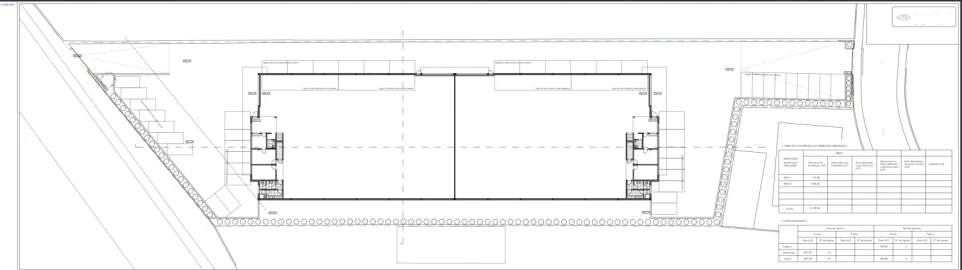
Fração AU- Apartamento T0 - Studio Eis um novo empreendimento residencial que nasce no coração do Porto, composto por 50 frações — entre estúdios e apartamentos T1 e T2 — que se destacam por uma arquitetura contemporânea e por layouts pensados para um público jovem, que valoriza a funcionalidade aliada ao design. Inserido numa zona residencial consolidada e em plena transformação, beneficia da proximidade a comércio local, supermercados e restauração, bem como ao polo universitário e ao Hospital de São João. A sua localização estratégica garante ainda acessos rápidos à Circunvalação, à VCI e à A3. Com projeto assinado pelos arquitetos Pedro Cardoso e Nuno Campos, o edifício distribui-se por seis pisos: quatro destinados a habitação e dois dedicados a estacionamento e arrumos, complementados por um agradável jardim privativo nas traseiras. Todos os apartamentos dispõem de varandas ou terraços, proporcionando uma vivência que conjuga conforto, funcionalidade e estética. Este empreendimento é a escolha ideal para quem procura viver junto ao polo universitário, numa zona bem servida de acessos e transportes, a poucos minutos da Baixa do Porto. Piso 5 1 lugar de garagem Conclusão: Final de 2026 Mapa de acabamentos, planta e informação geral do empreendimento: Secção de Fotografias Peça já a sua visita! Ruth Santos Douro Project Real Estate
AMI: 26843
Ref. Externa: DP051
Id: 1766076
Inicie sessão para guardar este imóvel e aceder à sua lista de favoritos em qualquer dispositivo.
2 Quartos
Área bruta : 135 m²
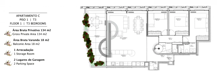
Fração F Apartamento T2+1 com terraço de 32m2. Este Empreendimento é o mais recente projeto a nascer na emblemática Rua de Cedofeita, uma das artérias mais centrais e prestigiadas da Baixa do Porto. Reconhecida pela sua forte componente comercial e cultural, esta zona é envolvida por edifícios de elevado valor histórico e patrimonial, galerias de arte, espaços de restauração e constitui um ponto de passagem obrigatório no roteiro turístico da cidade. Este projeto resulta da construção de um edifício contemporâneo com cinco pisos, que integra um espaço comercial no piso térreo e nove apartamentos. As frações distribuem-se por tipologias T2, T2+1, T2 Duplex e T3 Duplex, destacando-se algumas unidades com jardins privados. Todas as habitações dispõem de arrumo e lugar de estacionamento, sendo um lugar para os T2 e dois lugares para os T3. É uma zona privilegiada e marcada pela presença de condomínios residenciais de elevado valor patrimonial —Próximo do centro cultural e da vibrante vida portuense, mantém, ainda assim, a tranquilidade ideal para o quotidiano. Conta igualmente com excelente acessibilidade, encontrando-se a curta distância da estação de Metro da Lapa e bem servido por transportes públicos. Piso2 2 lugares de estacionamento Conclusão: final de 2026 Mapa de acabamentos, planta e informação geral do empreendimento: Secção de Fotografias Peça já a sua visita! Ruth Santos Douro Project Real Estate
AMI: 26843
Ref. Externa: DP0046
Id: 1766068
Inicie sessão para guardar este imóvel e aceder à sua lista de favoritos em qualquer dispositivo.
1 Quartos
1 WCs
Área bruta : 78 m²
Apartamento T1+1 semi-novo, pronto a escriturar. Equipado e possibilidade de ficar mobilado. Fração F Situado no Centro Histórico do Porto, ao lado da emblemática Estação de São Bento e da elegante Ponte Dom Luís I, é o resultado de um cuidadoso projeto de reabilitação que preserva a arquitetura urbana do século XV. O edifício foi transformado em 16 unidades residenciais de alto padrão, com apartamentos que variam entre 70,85 e 143,85 m², incluindo opções de T1, T1 +1 e T2. A maioria dessas unidades proporciona vistas deslumbrantes sobre a cidade do Porto, um dos destinos mais icônicos de Portugal. A reabilitação do imóvel possui uma estrutura completamente nova, que tem garantia de construção 10 anos e 5 anos para todo o resto do edifício. O edifício tem elevador, e todos os apartamentos estão equipados com AC, caixilhos de vidro duplo, eletrodomésticos Smeg e materiais de alta qualidade. Este projeto de reabilitação não só respeita o design original do edifício, mas também introduz elementos modernos, criando espaços interiores harmoniosos e flexíveis. As unidades residenciais poderão contar com a opção de bloqueio estratégico (lockoff), o que significa que, ao adquirir uma unidade, o proprietário terá acesso a duas frações independentes para utilização. Além disso, haverá uma opção com rendimento garantido e gestão integrada com um retorno garantido de 4% ao ano num contrato de 5 anos, que inclui: Mobília, Condomínio, Eletricidade, Água, Seguro, Licenças e Manutenção. Preços entre 389 000€ e 658 000€. Venha visitar!
AMI: 26843
Ref. Externa: DP014
Id: 1766060
Inicie sessão para guardar este imóvel e aceder à sua lista de favoritos em qualquer dispositivo.
250.000 €
1 WCs
Área bruta : 49 m²
Fração AL - Apartamento T0 - Studio Eis um novo empreendimento residencial que nasce no coração do Porto, composto por 50 frações — entre estúdios e apartamentos T1 e T2 — que se destacam por uma arquitetura contemporânea e por layouts pensados para um público jovem, que valoriza a funcionalidade aliada ao design. Inserido numa zona residencial consolidada e em plena transformação, beneficia da proximidade a comércio local, supermercados e restauração, bem como ao polo universitário e ao Hospital de São João. A sua localização estratégica garante ainda acessos rápidos à Circunvalação, à VCI e à A3. Com projeto assinado pelos arquitetos Pedro Cardoso e Nuno Campos, o edifício distribui-se por seis pisos: quatro destinados a habitação e dois dedicados a estacionamento e arrumos, complementados por um agradável jardim privativo nas traseiras. Todos os apartamentos dispõem de varandas ou terraços, proporcionando uma vivência que conjuga conforto, funcionalidade e estética. Este empreendimento é a escolha ideal para quem procura viver junto ao polo universitário, numa zona bem servida de acessos e transportes, a poucos minutos da Baixa do Porto. Piso 4 1 lugar de garagem Conclusão: Final de 2026 Mapa de acabamentos, planta e informação geral do empreendimento: Secção de Fotografias Peça já a sua visita! Ruth Santos Douro Project Real Estate
AMI: 26843
Ref. Externa: DP050
Id: 1766075
Inicie sessão para guardar este imóvel e aceder à sua lista de favoritos em qualquer dispositivo.
2 Quartos
2 WCs
Área bruta : 112 m²
Apartamento T2 semi-novo, pronto a escriturar. Equipado e possibilidade de ficar mobilado. Fração D Situado no Centro Histórico do Porto, ao lado da emblemática Estação de São Bento e da elegante Ponte Dom Luís I, é o resultado de um cuidadoso projeto de reabilitação que preserva a arquitetura urbana do século XV. O edifício foi transformado em 16 unidades residenciais de alto padrão, com apartamentos que variam entre 70,85 e 143,85 m², incluindo opções de T1, T1 +1 e T2. A maioria dessas unidades proporciona vistas deslumbrantes sobre a cidade do Porto, um dos destinos mais icônicos de Portugal. A reabilitação do imóvel possui uma estrutura completamente nova, que tem garantia de construção 10 anos e 5 anos para todo o resto do edifício. O edifício tem elevador, e todos os apartamentos estão equipados com AC, caixilhos de vidro duplo, eletrodomésticos Smeg e materiais de alta qualidade. Este projeto de reabilitação não só respeita o design original do edifício, mas também introduz elementos modernos, criando espaços interiores harmoniosos e flexíveis. As unidades residenciais poderão contar com a opção de bloqueio estratégico (lockoff), o que significa que, ao adquirir uma unidade, o proprietário terá acesso a duas frações independentes para utilização. Além disso, haverá uma opção com rendimento garantido e gestão integrada com um retorno garantido de 4% ao ano num contrato de 5 anos, que inclui: Mobília, Condomínio, Eletricidade, Água, Seguro, Licenças e Manutenção. Preços entre 389 000€ e 658 000€. Venha visitar! Ruth Santos Douro Project Real Estate
AMI: 26843
Ref. Externa: DP013
Id: 1766058
Inicie sessão para guardar este imóvel e aceder à sua lista de favoritos em qualquer dispositivo.
3 Quartos
3 WCs
Área bruta : 258 m²
Fração B Apartamento T3 Duplex com jardim privativo de 111,9m2. Este Empreendimento é o mais recente projeto a nascer na emblemática Rua de Cedofeita, uma das artérias mais centrais e prestigiadas da Baixa do Porto. Reconhecida pela sua forte componente comercial e cultural, esta zona é envolvida por edifícios de elevado valor histórico e patrimonial, galerias de arte, espaços de restauração e constitui um ponto de passagem obrigatório no roteiro turístico da cidade. Este projeto resulta da construção de um edifício contemporâneo com cinco pisos, que integra um espaço comercial no piso térreo e nove apartamentos. As frações distribuem-se por tipologias T2, T2+1, T2 Duplex e T3 Duplex, destacando-se algumas unidades com jardins privados. Todas as habitações dispõem de arrumo e lugar de estacionamento, sendo um lugar para os T2 e dois lugares para os T3. É uma zona privilegiada e marcada pela presença de condomínios residenciais de elevado valor patrimonial —Próximo do centro cultural e da vibrante vida portuense, mantém, ainda assim, a tranquilidade ideal para o quotidiano. Conta igualmente com excelente acessibilidade, encontrando-se a curta distância da estação de Metro da Lapa e bem servido por transportes públicos. Piso 1+2 2 lugares de estacionamento Conclusão: final de 2026 Mapa de acabamentos, planta e informação geral do empreendimento: Secção de Fotografias Peça já a sua visita! Ruth Santos Douro Project Real Estate
AMI: 26843
Ref. Externa: DP0045
Id: 1766069
Inicie sessão para guardar este imóvel e aceder à sua lista de favoritos em qualquer dispositivo.
3 Quartos
3 WCs
Área bruta : 173 m²
Apartamento T3 com varanda generosa – Junto à Avenida da Boavista e Marechal Gomes da Costa Exclusivo condomínio residencial de arquitetura contemporânea, localizado numa das zonas mais nobres do Porto, a poucos metros da Av. da Boavista e da Av. Marechal Gomes da Costa. Composto por apenas 7 apartamentos (T2, T3 e T4 Duplex) distribuídos por 5 pisos, este empreendimento oferece um ambiente de privacidade, conforto e sofisticação. Os imóveis destacam-se pelas áreas generosas, excelente exposição solar e acabamentos premium, incluindo cozinhas equipadas, caixilharia com corte térmico, bomba de calor e pré-instalação de ar condicionado. Este Apartamento T3 no piso 2 conta com uma varanda de 29m2, proporcionando uma experiência única de exclusividade. Localização privilegiada, próxima do Parque da Cidade, Foz do Douro, colégios de referência, Universidade Católica e com ótimos acessos ao centro da cidade. ✔ Lugares de estacionamento (até 4 na penthouse) ✔ Elevador ✔ Elevado padrão de qualidade ✔ Conclusão prevista: 2º semestre de 2026 Para envio da informação detalhada, por favor contacte. Agende já a sua visita! Ruth Santos Douro Project Real Estate
AMI: 26843
Ref. Externa: DP039
Id: 1766066
Inicie sessão para guardar este imóvel e aceder à sua lista de favoritos em qualquer dispositivo.
3 Quartos
3 WCs
Área bruta : 173 m²
Apartamento T3 com varanda generosa – Junto à Avenida da Boavista e Marechal Gomes da Costa Exclusivo condomínio residencial de arquitetura contemporânea, localizado numa das zonas mais nobres do Porto, a poucos metros da Av. da Boavista e da Av. Marechal Gomes da Costa. Composto por apenas 7 apartamentos (T2, T3 e T4 Duplex) distribuídos por 5 pisos, este empreendimento oferece um ambiente de privacidade, conforto e sofisticação. Os imóveis destacam-se pelas áreas generosas, excelente exposição solar e acabamentos premium, incluindo cozinhas equipadas, caixilharia com corte térmico, bomba de calor e pré-instalação de ar condicionado. Este Apartamento T3 no piso 3 conta com uma varanda de 29m2, proporcionando uma experiência única de exclusividade. Localização privilegiada, próxima do Parque da Cidade, Foz do Douro, colégios de referência, Universidade Católica e com ótimos acessos ao centro da cidade. ✔ Lugares de estacionamento (até 4 na penthouse) ✔ Elevador ✔ Elevado padrão de qualidade ✔ Conclusão prevista: 2º semestre de 2026 Para envio da informação detalhada, por favor contacte. Agende já a sua visita! Ruth Santos Douro Project Real Estate
AMI: 26843
Ref. Externa: DP041
Id: 1766067
Inicie sessão para guardar este imóvel e aceder à sua lista de favoritos em qualquer dispositivo.
Área de terreno : 632 m²
Excelente oportunidade para construir a sua moradia de sonho numa zona residencial tranquila e muito procurada, a poucos minutos da praia. Este lote de 632 m² está inserido num loteamento com todas as infraestruturas já disponíveis, permitindo iniciar a construção de forma rápida e sem complicações. Projeto aprovado para moradia: •Moradia T4 de 3 frentes (E/O/N) •2 suites + escritório •Suite principal com closet •Sala comum ampla com excelente luz natural •Cozinha com copa •Último piso com solário, ideal para desfrutar das vistas envolventes •Acesso direto ao jardim e terraços •Espaço exterior com possibilidade de piscina •Garagem com capacidade para 3 viaturas Infraestruturas do loteamento: •Rede de água •Eletricidade •Saneamento •Telecomunicações Localização e proximidades: •A 3 minutos da Praia de Valadares •Próximo do centro de Valadares •Comércio e serviços nas proximidades: osupermercados ofarmácias orestaurantes oescolas Acessos: •Rápido acesso à A44 •Próximo da Estação de Comboios de Valadares •Ligação fácil à cidade do Porto e arredores Ideal para quem procura qualidade de vida, proximidade ao mar e bons acessos urbanos. Ruth Santos Douro Project Real Estate
AMI: 26843
Ref. Externa: DP033
Id: 1766063
Inicie sessão para guardar este imóvel e aceder à sua lista de favoritos em qualquer dispositivo.
2 Quartos
Área bruta : 117 m²
Fração G Apartamento T2+1 com varanda. Este Empreendimento é o mais recente projeto a nascer na emblemática Rua de Cedofeita, uma das artérias mais centrais e prestigiadas da Baixa do Porto. Reconhecida pela sua forte componente comercial e cultural, esta zona é envolvida por edifícios de elevado valor histórico e patrimonial, galerias de arte, espaços de restauração e constitui um ponto de passagem obrigatório no roteiro turístico da cidade. Este projeto resulta da construção de um edifício contemporâneo com cinco pisos, que integra um espaço comercial no piso térreo e nove apartamentos. As frações distribuem-se por tipologias T2, T2+1, T2 Duplex e T3 Duplex, destacando-se algumas unidades com jardins privados. Todas as habitações dispõem de arrumo e lugar de estacionamento, sendo um lugar para os T2 e dois lugares para os T3. É uma zona privilegiada e marcada pela presença de condomínios residenciais de elevado valor patrimonial —Próximo do centro cultural e da vibrante vida portuense, mantém, ainda assim, a tranquilidade ideal para o quotidiano. Conta igualmente com excelente acessibilidade, encontrando-se a curta distância da estação de Metro da Lapa e bem servido por transportes públicos. Piso 3 Conclusão: final de 2026 Mapa de acabamentos, planta e informação geral do empreendimento: Secção de Fotografias Peça já a sua visita! Ruth Santos Douro Project Real Estate
AMI: 26843
Ref. Externa: DP0047
Id: 1766071
Inicie sessão para guardar este imóvel e aceder à sua lista de favoritos em qualquer dispositivo.
3 Quartos
3 WCs
Área bruta : 150 m²
Fração I Apartamento T3 Duplex. Este Empreendimento é o mais recente projeto a nascer na emblemática Rua de Cedofeita, uma das artérias mais centrais e prestigiadas da Baixa do Porto. Reconhecida pela sua forte componente comercial e cultural, esta zona é envolvida por edifícios de elevado valor histórico e patrimonial, galerias de arte, espaços de restauração e constitui um ponto de passagem obrigatório no roteiro turístico da cidade. Este projeto resulta da construção de um edifício contemporâneo com cinco pisos, que integra um espaço comercial no piso térreo e nove apartamentos. As frações distribuem-se por tipologias T2, T2+1, T2 Duplex e T3 Duplex, destacando-se algumas unidades com jardins privados. Todas as habitações dispõem de arrumo e lugar de estacionamento, sendo um lugar para os T2 e dois lugares para os T3. É uma zona privilegiada e marcada pela presença de condomínios residenciais de elevado valor patrimonial —Próximo do centro cultural e da vibrante vida portuense, mantém, ainda assim, a tranquilidade ideal para o quotidiano. Conta igualmente com excelente acessibilidade, encontrando-se a curta distância da estação de Metro da Lapa e bem servido por transportes públicos. Piso 4/5 2 lugares de estacionamento Conclusão: final de 2026 Mapa de acabamentos, planta e informação geral do empreendimento: Secção de Fotografias Peça já a sua visita! Ruth Santos Douro Project Real Estate
AMI: 26843
Ref. Externa: DP0048
Id: 1766074
Inicie sessão para guardar este imóvel e aceder à sua lista de favoritos em qualquer dispositivo.
1 Quartos
2 WCs
Área bruta : 126 m²
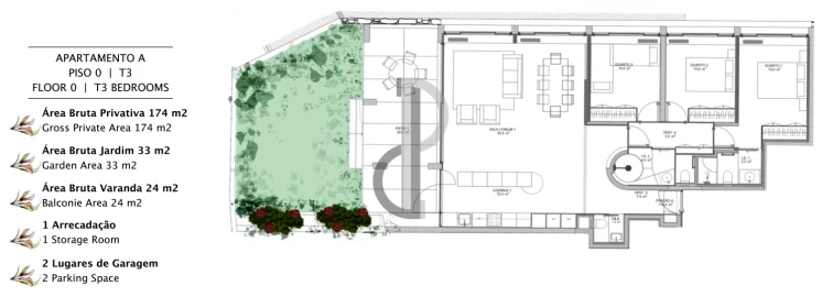
Fração A (Por inexistência de fotografias do imóvel, as apresentadas correspondem à fração B, também disponível no site). Combinando sofisticação e tradição, este empreendimento magnífico resulta da reabilitação de um edifício do século XVIII, preservando elementos arquitetónicos originais. O conjunto integra dois blocos distintos — o palácio restaurado e um edifício moderno — separados por um jardim de uso exclusivo. Este projeto de reabilitação não só respeita o design original do edifício, mas também introduz elementos modernos, criando espaços interiores harmoniosos e flexíveis. Dependendo das frações, as unidades residenciais poderão contar com a opção de bloqueio estratégico (lockoff), o que significa que, ao adquirir uma unidade, o proprietário terá acesso a duas frações independentes para utilização. Situado junto ao Rio Douro, o empreendimento beneficia de uma orientação privilegiada, com a fachada principal virada a poente, garantindo excelente luminosidade natural e panorâmicas únicas sobre o rio e sobre a cidade. Para além das vistas inigualáveis, está situado a poucos minutos (a pé) das principais atrações do Porto e Vila Nova de Gaia, tais como o Centro Histórico do Porto, as famosas caves tradicionais do Vinho do Porto, Cais de Gaia, WOW, Ponte D. Luís, a Serra do Pilar, a Sé Catedral do Porto e o Jardim do Morro. O empreendimento oferece 17 apartamentos, desde T0 a T2, com áreas entre 41 m² e 156 m², todos equipados com ar condicionado e cozinha mobilada, sendo que grande parte das unidades desfruta de vista para o Douro e para o Porto. A envolvente conta ainda com uma vasta oferta de serviços e comércio essencial, bem como estação de Metro a poucos metros de distância. Além disso, dispõe de uma opção com rendimento e gestão integrada com um retorno garantido de 6% ao ano num contrato de 5 anos, que inclui: Mobília, Condomínio, Eletricidade, Água, Seguro, Licenças e Manutenção. (Tabela com os apartamentos disponíveis na galeria de fotos) Preços entre 390 000€ e 588 000€. Venha visitar! Ruth Santos Douro Project Real Estate
AMI: 26843
Ref. Externa: DP009
Id: 1766057
Inicie sessão para guardar este imóvel e aceder à sua lista de favoritos em qualquer dispositivo.
220.000 €
1 WCs
Área bruta : 39 m²
Fração AI - Apartamento T0 - Studio Eis um novo empreendimento residencial que nasce no coração do Porto, composto por 50 frações — entre estúdios e apartamentos T1 e T2 — que se destacam por uma arquitetura contemporânea e por layouts pensados para um público jovem, que valoriza a funcionalidade aliada ao design. Inserido numa zona residencial consolidada e em plena transformação, beneficia da proximidade a comércio local, supermercados e restauração, bem como ao polo universitário e ao Hospital de São João. A sua localização estratégica garante ainda acessos rápidos à Circunvalação, à VCI e à A3. Com projeto assinado pelos arquitetos Pedro Cardoso e Nuno Campos, o edifício distribui-se por seis pisos: quatro destinados a habitação e dois dedicados a estacionamento e arrumos, complementados por um agradável jardim privativo nas traseiras. Todos os apartamentos dispõem de varandas ou terraços, proporcionando uma vivência que conjuga conforto, funcionalidade e estética. Este empreendimento é a escolha ideal para quem procura viver junto ao polo universitário, numa zona bem servida de acessos e transportes, a poucos minutos da Baixa do Porto. Piso 3 1 lugar de garagem Conclusão: Final de 2026 Mapa de acabamentos, planta e informação geral do empreendimento: Secção de Fotografias Peça já a sua visita! Ruth Santos Douro Project Real Estate
AMI: 26843
Ref. Externa: DP049
Id: 1766072
Inicie sessão para guardar este imóvel e aceder à sua lista de favoritos em qualquer dispositivo.
1 Quartos
2 WCs
Área bruta : 117 m²
Fração J Combinando sofisticação e tradição, este empreendimento magnífico resulta da reabilitação de um edifício do século XVIII, preservando elementos arquitetónicos originais. O conjunto integra dois blocos distintos — o palácio restaurado e um edifício moderno — separados por um jardim de uso exclusivo. Este projeto de reabilitação não só respeita o design original do edifício, mas também introduz elementos modernos, criando espaços interiores harmoniosos e flexíveis. Dependendo das frações, as unidades residenciais poderão contar com a opção de bloqueio estratégico (lockoff), o que significa que, ao adquirir uma unidade, o proprietário terá acesso a duas frações independentes para utilização. Situado junto ao Rio Douro, o empreendimento beneficia de uma orientação privilegiada, com a fachada principal virada a poente, garantindo excelente luminosidade natural e panorâmicas únicas sobre o rio e sobre a cidade. Para além das vistas inigualáveis, está situado a poucos minutos (a pé) das principais atrações do Porto e Vila Nova de Gaia, tais como o Centro Histórico do Porto, as famosas caves tradicionais do Vinho do Porto, Cais de Gaia, WOW, Ponte D. Luís, a Serra do Pilar, a Sé Catedral do Porto e o Jardim do Morro. O empreendimento oferece 17 apartamentos, desde T0 a T2, com áreas entre 41 m² e 156 m², todos equipados com ar condicionado e cozinha mobilada, sendo que grande parte das unidades desfruta de vista para o Douro e para o Porto. A envolvente conta ainda com uma vasta oferta de serviços e comércio essencial, bem como estação de Metro a poucos metros de distância. Além disso, dispõe de uma opção com rendimento e gestão integrada com um retorno garantido de 6% ao ano num contrato de 5 anos, que inclui: Mobília, Condomínio, Eletricidade, Água, Seguro, Licenças e Manutenção. (Tabela com os apartamentos disponíveis na galeria de fotos) Preços entre 390 000€ e 588 000€. Venha visitar! Ruth Santos Douro Project Real Estate
AMI: 26843
Ref. Externa: DP011
Id: 1766059
Inicie sessão para guardar este imóvel e aceder à sua lista de favoritos em qualquer dispositivo.
265.000 €
2 Quartos
1 WCs
Área bruta : 65 m²
Apartamento T2 de duas frentes (Norte/Sul), com grande salão, localizado numa zona de excelência da Circunvalação, junto ao cruzamento de Monte dos Burgos, no Porto. A área dispõe de diversos serviços, comércio, zonas de lazer e excelentes acessos a transportes públicos. Composição do imóvel: •Sala com orientação Sul e com vistas desafogadas; •Cozinha totalmente equipada com placa, exaustor, forno, máquina de lavar loiça, micro-ondas e frigorífico; •Lavandaria com tanque e máquina de lavar roupa; •Quarto 1 com grande roupeiro embutido; •Quarto 2 com roupeiro embutido; •Casa de banho completa; •Salão grande com lareira e arrumos (aproveitamento de sótão), com orientação Sul. Características gerais: •Piso: 2º andar; •Prédio sem elevador. Ideal para habitação própria ou para investimento! Peça já a sua visita! Ruth Santos Douro Project Real Estate
AMI: 26843
Ref. Externa: DP43
Id: 1766070
Inicie sessão para guardar este imóvel e aceder à sua lista de favoritos em qualquer dispositivo.
1 Quartos
2 WCs
Área bruta : 84 m²
Fração E Combinando sofisticação e tradição, este empreendimento magnífico resulta da reabilitação de um edifício do século XVIII, preservando elementos arquitetónicos originais. O conjunto integra dois blocos distintos — o palácio restaurado e um edifício moderno — separados por um jardim de uso exclusivo. Este projeto de reabilitação não só respeita o design original do edifício, mas também introduz elementos modernos, criando espaços interiores harmoniosos e flexíveis. Dependendo das frações, as unidades residenciais poderão contar com a opção de bloqueio estratégico (lockoff), o que significa que, ao adquirir uma unidade, o proprietário terá acesso a duas frações independentes para utilização. Situado junto ao Rio Douro, o empreendimento beneficia de uma orientação privilegiada, com a fachada principal virada a poente, garantindo excelente luminosidade natural e panorâmicas únicas sobre o rio e sobre a cidade. Para além das vistas inigualáveis, está situado a poucos minutos (a pé) das principais atrações do Porto e Vila Nova de Gaia, tais como o Centro Histórico do Porto, as famosas caves tradicionais do Vinho do Porto, Cais de Gaia, WOW, Ponte D. Luís, a Serra do Pilar, a Sé Catedral do Porto e o Jardim do Morro. O empreendimento oferece 17 apartamentos, desde T0 a T2, com áreas entre 41 m² e 156 m², todos equipados com ar condicionado e cozinha mobilada, sendo que grande parte das unidades desfruta de vista para o Douro e para o Porto. A envolvente conta ainda com uma vasta oferta de serviços e comércio essencial, bem como estação de Metro a poucos metros de distância. Além disso, dispõe de uma opção com rendimento e gestão integrada com um retorno garantido de 6% ao ano num contrato de 5 anos, que inclui: Mobília, Condomínio, Eletricidade, Água, Seguro, Licenças e Manutenção. (Tabela com os apartamentos disponíveis na galeria de fotos) Preços entre 390 000€ e 588 000€. Venha visitar! Ruth Santos Douro Project Real Estate
AMI: 26843
Ref. Externa: DP008
Id: 1766053
Inicie sessão para guardar este imóvel e aceder à sua lista de favoritos em qualquer dispositivo.
1 Quartos
2 WCs
Área bruta : 145 m²
Fração B Combinando sofisticação e tradição, este empreendimento magnífico resulta da reabilitação de um edifício do século XVIII, preservando elementos arquitetónicos originais. O conjunto integra dois blocos distintos — o palácio restaurado e um edifício moderno — separados por um jardim de uso exclusivo. Este projeto de reabilitação não só respeita o design original do edifício, mas também introduz elementos modernos, criando espaços interiores harmoniosos e flexíveis. Dependendo das frações, as unidades residenciais poderão contar com a opção de bloqueio estratégico (lockoff), o que significa que, ao adquirir uma unidade, o proprietário terá acesso a duas frações independentes para utilização. Situado junto ao Rio Douro, o empreendimento beneficia de uma orientação privilegiada, com a fachada principal virada a poente, garantindo excelente luminosidade natural e panorâmicas únicas sobre o rio e sobre a cidade. Para além das vistas inigualáveis, está situado a poucos minutos (a pé) das principais atrações do Porto e Vila Nova de Gaia, tais como o Centro Histórico do Porto, as famosas caves tradicionais do Vinho do Porto, Cais de Gaia, WOW, Ponte D. Luís, a Serra do Pilar, a Sé Catedral do Porto e o Jardim do Morro. O empreendimento oferece 17 apartamentos, desde T0 a T2, com áreas entre 41 m² e 156 m², todos equipados com ar condicionado e cozinha mobilada, sendo que grande parte das unidades desfruta de vista para o Douro e para o Porto. A envolvente conta ainda com uma vasta oferta de serviços e comércio essencial, bem como estação de Metro a poucos metros de distância. Além disso, dispõe de uma opção com rendimento e gestão integrada com um retorno garantido de 6% ao ano num contrato de 5 anos, que inclui: Mobília, Condomínio, Eletricidade, Água, Seguro, Licenças e Manutenção. (Tabela com os apartamentos disponíveis na galeria de fotos) Preços entre 390 000€ e 588 000€. Venha visitar! Ruth Santos Douro Project Real Estate
AMI: 26843
Ref. Externa: DP010
Id: 1766054
Inicie sessão para guardar este imóvel e aceder à sua lista de favoritos em qualquer dispositivo.
547.750 €
3 Quartos
3 WCs
Área bruta : 124 m²
Fração AP - Piso 4 - Orientação SUL Este fantástico empreendimento combina arquitetura contemporânea com tradição e conforto. Sua fachada em pedra e madeira harmoniza com jardins delicados, criando um ambiente amplo, iluminado e integrado ao exterior. Inspirado nos tradicionais azulejos do Porto, o design da fachada traz dinamismo e efeito tridimensional com luz e sombra. Os apartamentos contam com espaços abertos, pátios interiores e jardins ou terraços privados, promovendo luminosidade e conexão com o exterior. Localizado em Paranhos, uma das melhores zonas residenciais do Porto, o projeto está próximo ao centro, áreas verdes, centros de educação, saúde e entretenimento, além do maior polo universitário da cidade. Estrutura e Fachada Estrutura em betão armado com lajes maciças. Fachada com betão aparente e revestimento cerâmico imitando madeira. Alto isolamento térmico e acústico. Carpintaria Exterior: Alumínio lacado (cor RAL 9007) com vidro duplo de alto isolamento acústico. Interior: Portas lisas brancas com ferragens cromadas. Porta de entrada de segurança. Armários embutidos lacados e interior em melamínico. Rodapés lacados. Revestimentos Paredes: Gesso e tinta plástica (hall, sala, quartos, cozinha). Cerâmica “Love Tiles” em casas de banho. Tetos: Tetos falsos com iluminação e tinta plástica. Calhas para cortinados em sala e quartos. Pavimentos: Vinílico (cozinha, sala, quartos). Cerâmico (casas de banho, varandas, zonas comuns). Escadas em betão com piso técnico. Instalações Sanitárias Louças suspensas da marca Roca (série ONA). Misturadoras Hansgrohe (série Vernis Blend). Móveis com tampo compacto. Climatização e AQS Bomba de calor para águas quentes. Sistema multi-split para climatização. Toalheiros elétricos (exceto WC social). Cozinha Misturadora monocomando. Lava-louça em inox. Móveis em termolaminado mate com tampo compacto. Eletrodomésticos Bosch ou equivalente (máquina, forno, placa, micro-ondas, frigorífico). Instalações Elétricas e Domótica Videoporteiro. Instalações para TV, telefone. Domótica básica (luzes, climatização, estores). Estores “screen” com blackout elétrico. Instalação elétrica na garagem. Fotos 3D gerais do empreendimento Peça já a sua visita e encante-se com este fantástico apartamento!
AMI: 26843
Ref. Externa: DP021
Id: 1766047
Inicie sessão para guardar este imóvel e aceder à sua lista de favoritos em qualquer dispositivo.
524.000 €
3 Quartos
3 WCs
Área bruta : 124 m²
Fração AF - Piso 3 - Orientação SUL Este fantástico empreendimento combina arquitetura contemporânea com tradição e conforto. Sua fachada em pedra e madeira harmoniza com jardins delicados, criando um ambiente amplo, iluminado e integrado ao exterior. Inspirado nos tradicionais azulejos do Porto, o design da fachada traz dinamismo e efeito tridimensional com luz e sombra. Os apartamentos contam com espaços abertos, pátios interiores e jardins ou terraços privados, promovendo luminosidade e conexão com o exterior. Localizado em Paranhos, uma das melhores zonas residenciais do Porto, o projeto está próximo ao centro, áreas verdes, centros de educação, saúde e entretenimento, além do maior polo universitário da cidade. Estrutura e Fachada Estrutura em betão armado com lajes maciças. Fachada com betão aparente e revestimento cerâmico imitando madeira. Alto isolamento térmico e acústico. Carpintaria Exterior: Alumínio lacado (cor RAL 9007) com vidro duplo de alto isolamento acústico. Interior: Portas lisas brancas com ferragens cromadas. Porta de entrada de segurança. Armários embutidos lacados e interior em melamínico. Rodapés lacados. Revestimentos Paredes: Gesso e tinta plástica (hall, sala, quartos, cozinha). Cerâmica “Love Tiles” em casas de banho. Tetos: Tetos falsos com iluminação e tinta plástica. Calhas para cortinados em sala e quartos. Pavimentos: Vinílico (cozinha, sala, quartos). Cerâmico (casas de banho, varandas, zonas comuns). Escadas em betão com piso técnico. Instalações Sanitárias Louças suspensas da marca Roca (série ONA). Misturadoras Hansgrohe (série Vernis Blend). Móveis com tampo compacto. Climatização e AQS Bomba de calor para águas quentes. Sistema multi-split para climatização. Toalheiros elétricos (exceto WC social). Cozinha Misturadora monocomando. Lava-louça em inox. Móveis em termolaminado mate com tampo compacto. Eletrodomésticos Bosch ou equivalente (máquina, forno, placa, micro-ondas, frigorífico). Instalações Elétricas e Domótica Videoporteiro. Instalações para TV, telefone. Domótica básica (luzes, climatização, estores). Estores “screen” com blackout elétrico. Instalação elétrica na garagem. Fotos 3D gerais do empreendimento Encante-se com este fantástico apartamento! Ruth Santos Douro Project Real Estate
AMI: 26843
Ref. Externa: DP022
Id: 1766045
Inicie sessão para guardar este imóvel e aceder à sua lista de favoritos em qualquer dispositivo.
245.000 €
2 Quartos
2 WCs
Área bruta : 64 m²
Fração N - Piso 1 - Norte Localização e ambiente Localizado numa zona verde e tranquila, este moderno apartamento T2 à entrada de Ermesinde oferece o equilíbrio perfeito entre o sossego da natureza e a proximidade à cidade. Um refúgio ideal para quem valoriza qualidade de vida, conforto e bem-estar, sem abdicar da conveniência urbana. Tipologia T2 bem distribuída • 2 quartos, incluindo 1 suíte • 2 casas de banho completas • Sala ampla e luminosa, com excelente aproveitamento de luz natural Principais características • Conceito open space moderno e funcional • Lugar de garagem incluído • Acabamentos e equipamentos de alta qualidade • Cozinha totalmente equipada com: – Máquina de lavar louça – Forno – Placa vitrocerâmica – Micro-ondas – Exaustor – Frigorífico combinado • Isolamento térmico no revestimento exterior • Caixilharia em alumínio com vidro duplo e corte térmico • Porta de alta segurança e roupeiros embutidos Sustentabilidade e tecnologia • Bomba de calor aerotérmica para maior eficiência energética • Videoporteiro e sensores de movimento nas áreas comuns • Estores elétricos em PVC térmico (na sala e nos quartos) • Garagem com pré-instalação para carregamento de veículos elétricos Localização privilegiada Inserido na Área Metropolitana do Porto, o edifício situa-se numa zona em franco crescimento, com excelentes acessos e serviços: • Acesso direto à autoestrada, estação de comboios e rede de autocarros • A apenas 11 minutos do centro do Porto (de comboio) • Num raio de 3 km: – Supermercados – Escolas – Centros de saúde e farmácias – Bancos – Ginásios, piscinas e clubes desportivos – Zonas verdes e de lazer O lugar ideal para viver Para quem procura um estilo de vida tranquilo, funcional e com todas as comodidades por perto, este apartamento é a escolha certa. Cada detalhe foi pensado para oferecer bem-estar, conforto e praticidade no dia a dia. Ruth Santos Douro Project Real Estate
AMI: 26843
Ref. Externa: DP019
Id: 1766052
Inicie sessão para guardar este imóvel e aceder à sua lista de favoritos em qualquer dispositivo.
Inicie sessão para ocultar este imóvel das suas pesquisas e manter a sua lista de resultados organizada.
Douro Project Real Estate
Consultor imobiliário em Douro Project Real Estate - AMI: 26843
Compre créditos para poder destacar os seus imóveis! Desta forma eles são os primeiros a aparecer nas pesquisas e têm uma maior chance de serem vistos pelos utilizadores.
© Copyright 2023 | CASACERTA. All rights reserved
Guardar favoritos
Este imóvel foi guardados nos seus favoritos com sucesso.
Para poder guardar pesquisa deverá ter a sua sessão iniciada.
Caso não tenha uma conta, deverá criar uma.
A sua pesquisa foi guardada com sucesso!
Este site utiliza cookies. Ao navegar no site estará a consentir a sua utilização.
Para mais informações sobre os cookies pode consultar a
política de privacidade.