Consultor imobiliário em Escolha Certa Sociedade de Mediação Imobiliária Lda - AMI: 7959
Comprar
Arrendar
149.000 €
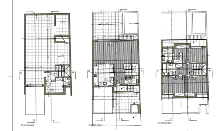
Área de terreno : 240 m²
Construa a Casa dos Seus Sonhos em Pinhal Novo Apresentamos uma oportunidade única para dar vida ao seu projeto de habitação: um excelente Lote Urbano com 240 m², situado em Pinhal Novo — uma área em forte valorização e cada vez mais procurada. Inserido num ambiente moderno e harmonioso, rodeado por moradias recentes de elevada qualidade, este terreno oferece o equilíbrio ideal entre tranquilidade, privacidade e proximidade a tudo o que é essencial. Principais Características: Localização de Excelência Situado numa zona residencial consolidada, com ambiente familiar e construção recente, garantindo qualidade de vida e segurança, além de um elevado potencial de valorização. Viabilidade para construção de Moradia isolada. O lote já contou com um projeto aprovado para cave, rés-do-chão e primeiro andar — uma base sólida para desenvolver uma solução moderna e funcional. Área de Implantação Generosa Perfeito para criar uma moradia espaçosa, com excelente distribuição de áreas interiores e ótima exposição solar. Infraestruturas Completas O terreno beneficia de todas as infraestruturas essenciais já disponíveis: água, eletricidade, saneamento, iluminação pública e fibra ótica. Localização Estratégica A poucos minutos da estação ferroviária de Pinhal Novo, com ligações diretas a Lisboa e Setúbal, e com rápido acesso às autoestradas A12 e A2. Apesar de já ter tido um projeto aprovado, este lote é apresentado como uma verdadeira “folha em branco”, permitindo-lhe desenvolver uma moradia totalmente personalizada, adaptada às suas necessidades e estilo de vida. Um Investimento com Futuro Inserido numa zona em crescimento contínuo, onde as moradias vizinhas são comercializadas por valores superiores, este terreno representa uma excelente oportunidade, quer para habitação própria, quer como investimento com forte potencial de valorização. Ideal para: Famílias que desejam construir a sua casa de raiz Quem valoriza qualidade de vida e localização Investidores à procura de ativos seguros e com valorização consistente Marque já a sua visita. Precisa de ajuda com o seu crédito ? Conte conosco, sem qualquer custo para si! Somos intermediários de credito licenciados pelo Banco de Portugal com a licença Nº 2534, conheça o nosso site de intermediação de credito, (url) e fique a par das novidades e peça-nos uma simulação. Descrição criada por Inteligência Artificial
AMI: 7959
Ref. Externa: LOT_2904
Id: 1806982
Inicie sessão para guardar este imóvel e aceder à sua lista de favoritos em qualquer dispositivo.
2 Quartos
2 WCs
Área bruta : 103 m²
Este encantador apartamento T2 apresenta um interior cuidadosamente projetado, onde o conforto e a modernidade se encontram em perfeita harmonia. Ao entrar no espaço, é possível apreciar uma ampla sala de estar que proporciona luminosidade natural através das generosas janelas. Os móveis da cozinha lacados conferem elegância ao ambiente, enquanto os pavimentos flutuantes acrescentam calor e sofisticação aos espaços comuns. A cozinha está equipada com electrodomésticos pré-instalados de alta qualidade, incluindo placa elétrica, forno e exaustor. Além disso, dispõe de micro-ondas e máquinas para lavar loiça e roupa que garantem funcionalidade diária sem comprometer o design. No exterior do imóvel pode-se encontrar áreas comuns bem cuidadas que promovem momentos agradáveis entre os condóminos; jardins cuidados oferecem um recanto sereno ideal para relaxar ou conviver em tranquilidade após um dia agitado na cidade. As zonas ajardinadas são convidativas à prática desportiva ou simplesmente a passeios tranquilos sob as sombras das árvores frondosas proporcionadas pelos paisagistas da urbanização. Localizado numa zona privilegiada da cidade, este apartamento beneficia não apenas pela sua acessibilidade mas também pelo dinamismo dos arredores. Nas proximidades encontra-se uma vasta oferta comercial com lojas variadas assim como serviços essenciais tais como escolas renomadas,e transportes públicos eficientes facilitando deslocações rápidas tanto dentro quanto fora da urbe.Também nas imediações existem parques urbanos propícios para caminhadas familiares proporcionando contacto direto com a natureza. Por fim, não deixe passar esta oportunidade ímpar! Este imóvel alia praticabilidade moderna ao charme local, dando a oportunidade de viver num lar repleto de estilo.Neste refúgio harmonioso encontrará tudo aquilo que precisa defronte às portas desta residência exclusiva.Liberte-se do stress diário neste seu novo espaço pessoal, fundindo comodidades contemporâneas á essência comunitária característica deste bairro acolhedor.Uma visita poderá transformar este sonho na realidade quotidiana por si desejada! Apartamentos disponíveis a partir de 300.000 euros.
AMI: 7959
Ref. Externa: APA_2902
Id: 1802011
Inicie sessão para guardar este imóvel e aceder à sua lista de favoritos em qualquer dispositivo.
165.000 €
1 WCs
Área bruta : 49 m²
Este apartamento T0+1, situado no rés do chão de um condomínio fechado, revela-se como uma verdadeira joia para quem procura conforto e acessibilidade. Totalmente mobilado com móveis em faia que conferem elegância ao ambiente, o espaço foi cuidadosamente adaptado a pessoas com mobilidade reduzida. O interior é iluminado pela luz natural que entra generosamente através das janelas equipadas com vidro duplo e alumínio de alta qualidade. Além disso, conta ainda com ar condicionado para garantir temperaturas agradáveis durante todo o ano. A cozinha está equipada com os essenciais: exaustor e frigorífico integrados harmoniosamente num design funcional revestido por cerâmica de fácil manutenção. No exterior, este imóvel apresenta áreas comuns bem cuidadas onde se destaca a presença dos jardins floridos que circundam o edifício; locais ideais para momentos relaxantes ou passeios tranquilos junto à natureza envolvente da serra próxima. Os espaços verdes são complementados por caminhos pavimentados em alcatrão adequadamente projetados para proporcionar acesso seguro aos residentes mais jovens até aos menos ágeis nas suas movimentações diárias. Com estacionamento incluído na propriedade e todas as instalações necessárias disponíveis dentro do condomínio – como esgotos eficientes – esta oferta imobiliária une praticidade à tranquilidade. Localizado na periferia da cidade estratégica quanto às comodidades urbanas requeridas pelo dia-a-dia moderno (bancos, clínicas médicas, farmácias), este apartamento beneficia não apenas da proximidade dos serviços públicos fundamentais mas também oferece excelentes opções laboratoriais próximas - escolas diversas desde infantil até ensino básico além de supermercados proeminentes nesse traçado urbano metropolitano radiante entre auto-estrada principal transportando-lhe rapidamente ao coração citadino ou estação ferroviária adjacente inclusiva nos transportes públicos variados disponíveis nesta área residencial tranquila mas conectada. Por fim,a atmosfera única deste lar repousa sobre detalhes subtis cujo encanto assenta precisamente numa perfeita harmonia entre modernização cosmopolita sem sacrificar serenidades naturais.Livre circulação permite assim apreciarmos tanto os raios quentes matinais vindos do nascente quanto suaves brisas vespertinas suspensas n’alma daquele horizonte poético pintado pelas cores singulares desta região.Tudo isso torna-o verdadeiramente especial! Descrição criada por Inteligência Artificial
AMI: 7959
Ref. Externa: R001
Id: 1791837
Inicie sessão para guardar este imóvel e aceder à sua lista de favoritos em qualquer dispositivo.
2 Quartos
1 WCs
Área bruta : 62 m²
Apresentamos este excelente apartamento T2 totalmente remodelado, com 62 m², situado ao nível de um 1º andar, numa zona calma e agradável da Baixa da Banheira. Destaca-se pela excelente luminosidade natural, proporcionando um ambiente acolhedor e confortável em todas as divisões. Composição do imóvel: Hall de entrada funciona, Cozinha moderna com móveis lacados, semi-equipada, Sala em conceito open-space, ampla e luminosa, 1 Quarto com chão flutuante e Varanda outro Quarto com chão flutuante, Casa de banho com polibã Inserido em prédio sem elevador, em urbanização tranquila, ideal para quem procura qualidade de vida. Imóvel em fase final de remodelação, conclusão da obra prevista em 2 semanas. Nova foto-reportagem para a semana. Excelente oportunidade para habitação própria ou investimento! Agende já a sua visita e venha conhecer o seu futuro lar! Somos intermediários de credito em regime vinculado, com a autorização nº 2534 emitida pelo Banco de Portugal, podendo assim também ajudar na obtenção do credito hipotecário. Descrição criada por Inteligência Artificial
AMI: 7959
Ref. Externa: APA_2898
Id: 1788916
Inicie sessão para guardar este imóvel e aceder à sua lista de favoritos em qualquer dispositivo.
5 Quartos
4 WCs
Área bruta : 296 m²
Apresentamos esta excelente Moradia T5 isolada, situada numa das zonas mais procuradas do Feijó, em Almada. Com áreas generosas, acabamentos de qualidade e uma localização estratégica, esta é a casa ideal para quem valoriza conforto, privacidade e proximidade a tudo. Composta por 3 pisos e inserida num lote de 3721,50m², esta propriedade destaca-se pela sua excelente exposição solar, vista desafogada e ambientes amplos e bem distribuídos. Distribuição do imóvel: Piso 0: Sala ampla com lareira, Cozinha semi-equipada, Escritório e WC social Piso 1: 3 Quartos com roupeiros e varandas, 1 Suíte tambem com varanda e 1 WC de apoio aos Quartos Cave: Garagem com 100 m², WC e Casa de máquinas Principais características: Chão flutuante nos quartos Porta de segurança Lareira acolhedora Roupeiros embutidos Caixilharia com corte térmico e vidro duplo Pré-instalação de alarme e aquecimento central Vídeo porteiro Portões automáticos Churrasqueira Zona exterior: Jardim privativo Espaço de lazer com churrasqueira — ideal para convívios Localização privilegiada: Situada numa zona residencial tranquila, próxima de escolas, colégios, comércio e serviços. A apenas 15 minutos das praias e com excelentes acessos à autoestrada e a Lisboa. Uma oportunidade única para quem procura qualidade de vida, espaço e uma casa pronta a habitar. Somos intermediários de credito em regime vinculado, com a autorização nº 2534 emitida pelo Banco de Portugal, podendo assim também ajudar na obtenção do credito hipotecário. Agende já a sua visita e venha conhecer a sua futura casa de sonho! Descrição criada por Inteligência Artificial
AMI: 7959
Ref. Externa: MOR_2900
Id: 1768754
Inicie sessão para guardar este imóvel e aceder à sua lista de favoritos em qualquer dispositivo.
595.000 €
4 Quartos
4 WCs
Área bruta : 202 m²
Descubra estas exclusivas moradias T4 nova com piscina, situada numa zona residencial tranquila de Fernão Ferro, na margem sul de Lisboa. Projetada para oferecer conforto, elegância e funcionalidade, esta propriedade combina arquitetura contemporânea, acabamentos de elevada qualidade e tecnologia moderna, criando um ambiente perfeito para viver com tranquilidade a poucos minutos da capital. Implantada num lote generoso de 511 m² e com 202 m² de área de construção, esta moradia oferece espaços amplos, muita luz natural e uma ligação harmoniosa entre interior e exterior — ideal para desfrutar do clima. A piscina privada e a zona de lazer exterior tornam esta casa perfeita tanto para residência permanente como para casa de férias. Piso 0 – Área Social Ampla sala de estar e jantar com cerca de 33 m², perfeita para receber família e amigos Cozinha moderna totalmente equipada com 18,22 m² Quarto versátil com cerca de 14 m² (ideal para hóspedes ou escritório) WC social Hall de entrada elegante Despensa / Lavandaria Piso 1 – Área Privada 3 suítes com closet, casa de banho privativa e varanda Suíte principal com cerca de 19 m² Duas suítes adicionais com 12,35 m² e 12,46 m² A disposição da casa garante privacidade, conforto e funcionalidade para toda a família. Equipamentos e Tecnologia Esta moradia está equipada com soluções modernas que garantem eficiência energética, conforto e segurança: Ar condicionado instalado Sistema VMC – ventilação mecânica controlada Pré-instalação de recuperador de calor Janelas em PVC com vidros duplos Estores elétricos Aspiração central Painéis solares Portões automáticos Sistema de alarme Videoporteiro Sistema CCTV de videovigilância Espaço Exterior O exterior foi pensado para proporcionar momentos únicos de lazer: Piscina privada, Zona de churrasqueira Espaço exterior amplo ideal para convívios, refeições ao ar livre e relaxamento. Localização Supermercados e comércio local, Escolas e creches, Farmácias e serviços de saúde, Restaurantes e cafés, Transportes públicos Localizada em Fernão Ferro, uma das zonas residenciais em maior crescimento na margem sul de Setúbal, esta moradia oferece o equilíbrio perfeito entre tranquilidade e acessibilidade. Excelentes acessos à A33 e A2, permitindo chegar rapidamente a Lisboa, Almada ou Setúbal Praias da Costa da Caparica, Natureza e praias da Lagoa de Albufeira Esta é uma excelente oportunidade para adquirir uma moradia nova, moderna e com piscina, numa zona tranquila e com forte potencial de valorização imobiliária, a poucos minutos de Lisboa. Conclusão da obra prevista: Julho de 2026 Venha Visitar Somos intermediários de credito em regime vinculado, com a autorização nº 2534 emitida pelo Banco de Portugal, podendo assim também ajudar na obtenção do credito hipotecário. Descrição criada por Inteligência Artificial
AMI: 7959
Ref. Externa: MOR_2895
Id: 1689742
Inicie sessão para guardar este imóvel e aceder à sua lista de favoritos em qualquer dispositivo.
3.600.000 €
10 Quartos
6 WCs
Área bruta : 642 m²
Encontro no Rio – Onde a natureza, o património e a harmonia se encontram Situado ao longo de 400 metros de margem tranquila, o Encontro no Rio é mais do que uma propriedade, é um lugar onde a natureza, o conforto e a história se unem. Rodeada por oliveiras, figueiras, kiwis, sobreiros e medronheiros, a propriedade oferece uma atmosfera portuguesa verdadeiramente autêntica. Totalmente renovada entre 2021 e 2023, a propriedade combina agora o charme tradicional com as comodidades modernas. Apresenta um telhado novo, edifícios remodelados, um sistema central de aquecimento a lenha e uma área de piscina renovada. A sustentabilidade está no centro: um novo sistema fotovoltaico trifásico garante a eficiência energética e um poço profundo abastece a piscina de 130 000 litros durante todo o ano. Internet de fibra ótica e uma ligação elétrica trifásica completam este confortável refúgio rural. Adicionando um toque único, o Encontro no Rio é propriedade do filho direto de Charles August Lindbergh, o lendário aviador americano que completou o primeiro voo solo sem escalas de Nova Iorque a Paris em 1927. Esta ligação notável acrescenta prestígio histórico a um local já especial. Entre as árvores e trilhas do Encontro no Rio, os cavalos vagueiam livremente no Rio Mondego. Os hóspedes podem passear pela floresta ou à beira da água, experimentando a paisagem da maneira mais autêntica possível. O espaço também tem um forte potencial para quem sonha em criar um destino onde a natureza, os animais e as pessoas se conectem. Com uma Licença de Alojamento Local (AL) ativa desde 2023, o Encontro no Rio não é apenas uma casa, é uma oportunidade pronta para investidores que procuram um espaço que combine estilo de vida, sustentabilidade e potencial de lucro num ambiente verdadeiramente único. Este imóvel, uma espaçosa T10 situada nas imediações de Tabua, Distrito de Coimbra, revela um interior cuidadosamente projetado para o conforto e bem-estar. No exterior desta magnífica quinta encontra-se um requintado jardim onde se pode desfrutar das vistas agradáveis do nascer do sol numa atmosfera tranquila e relaxante. As áreas comuns foram desenhadas com atenção à acessibilidade, assegurando que todos os residentes possam usufruir dos seus benefícios sem restrições relacionadas à mobilidade reduzida. Para além disso, há zonas sombreadas propícias ao convívio social. A localização privilegiada deste imóvel é outro dos seus muitos atrativos; situado perto do curso fluvial local oferece acesso fácil a diversas atividades recreativas junto à água como caminhadas na natureza ou passeios tranquilos pelas margens do rio próximo . Além disso as praias circundantes estão apenas a poucos quilómetros, de modo que tanto quem busca tranquilidade quanto aqueles interessados em momentos mais vibrantes podem satisfazer os seus anseios num raio muito curto . O ambiente envolvente proporciona charme especial tornando-o verdadeiramente único: imagine manhãs ensolaradas passadas nos jardins floridos seguidas por tardes refrescantes nas proximidades aquáticas – possibilitando assim uma vida repleta de qualidade neste refúgio harmonioso longe da agitação urbana mas ainda convenientemente posicionado no coração cultural português!
AMI: 7959
Ref. Externa: HER_2894
Id: 1689741
Inicie sessão para guardar este imóvel e aceder à sua lista de favoritos em qualquer dispositivo.
3 Quartos
2 WCs
Área bruta : 154 m²
Este magnífico apartamento T3, totalmente remodelado, situado na encantadora cidade de Setúbal, destaca-se pela sua generosa luminosidade e pelas suas características modernas. A habitação é composta por uma sala ampla e acolhedora, proporcionando um ambiente confortável. Os quartos contam com areas generosas e no caso da suite um closet bem dimensionado para maximizar o espaço disponível. A cozinha está equipada com todos os eletrodomésticos necessários – incluindo placa, forno, exaustor, maquina loiça e frigorífico e máquina de lavar roupa permite praticidade no dia-a-dia. O sistema elétrico do cilindro garante aquecimento eficiente, tal como os vidros inteligentes e os estores térmicos eléctricos, mantêm a casa num ambiente agradável em todas as estações do ano. No exterior do imóvel encontramos áreas comuns exuberantes que incluem jardins paisagísticos, como o Parque do Bonfim, cuidadosamente tratados e zonas recreativas como parque infantil ideal para famílias com crianças pequenas. Localizado numa zona privilegiada em Setúbal , este apartamento oferece acesso fácil tanto às belezas naturais das serranias circundantes quanto à costa marítima próxima onde as praias se destacam pela areia dourada e águas cristalinas . Serviços essenciais estão nas proximidades; escolas renomadas , clínicas médicas (incluindo hospitais), centros comerciais variados além da facilidade proporcionada pelos transportes públicos disponíveis — tudo isso contribui significativamente para tornar esta localização verdadeiramente prática quando consideramos vida familiar ou profissional ativa . O carácter único deste imóvel reside na harmonia entre serenidade do mar e a dinâmica urbana oferecida pelo centro citadino—um refúgio ideal! Imagine desfrutar tranquilamente do seu café matinal sob luz suave nascente, junto família amigos todos juntos neste lar perfeito!
AMI: 7959
Ref. Externa: APA_2893
Id: 1680364
Inicie sessão para guardar este imóvel e aceder à sua lista de favoritos em qualquer dispositivo.
320.000 €
2 Quartos
1 WCs
Área bruta : 290 m²
Temos disponível esta maravilhosa Quinta com uma potencialidade enorme. Este imovel embora muito perto do centro de Quinta do Anjo, fica numa zona onde conseguimos ter silencio, rodeados por terrenos agrícolas e algumas casas embora dispersas. A quinta embora seja prédio único está dividida em duas, uma primeira zona onde está situada a casa de habitação e os armazéns (a habitação e os armazéns não têm licença de utilização), zona essa que se encontra totalmente murada, na segunda zona é onde temos então a zona de cultivo e a vinha, vinha essa em que a casta predominante é D. Maria, ou seja uva de mesa. Esta ultima zona tem uma possibilidade de construção de até 90m2 de implantação. A quinta dispõe de um furo artesiano próprio com 140m de profundidade e deposito de armazenamento, com abundância de agua, duas bombas para gestão da agua para a habitação e zona de rega, eletricidade trifasica com 90 amperes, 30 por fase, e fibra. A moradia existente está em ótimo estado, conta com 2 quartos, sala e cozinha e uma casa de banho. Os armazéns, estão divididos em zonas de parqueamento do trator da quinta e alfaias agrícolas, uma zona para depósitos de agua de consumo e uma outra para um zona onde se fazia o vinho, tipo uma pequena adega. Para mais informações ou visitas não esite em nos contactar. Descrição criada por Inteligência Artificial
AMI: 7959
Ref. Externa: TER_2864
Id: 1676029
Inicie sessão para guardar este imóvel e aceder à sua lista de favoritos em qualquer dispositivo.
495.000 €
3 Quartos
3 WCs
Área bruta : 120 m²
Apresentamos esta excelente moradia, ideal para quem valoriza espaço, conforto e zonas exteriores pensadas para momentos de lazer em família. No rés-do-chão, encontra uma ampla e luminosa sala com 33 m², perfeita para criar diferentes ambientes de estar e jantar, uma cozinha funcional com 15 m², despensa para arrumação extra e um WC de serviço. O acesso ao exterior revela um agradável alpendre com churrasqueira, ideal para convívios, complementado por uma pérgula com 20 m² e um quintal privativo com 19 m², proporcionando um espaço perfeito para relaxar ou receber amigos. Conta ainda com estacionamento para 4 a 5 viaturas, uma mais-valia rara e muito prática. No primeiro andar, a zona privada oferece três quartos com boas áreas, dois deles com roupeiros embutidos. Destaca-se a confortável suíte com casa de banho privativa e varanda, além de um quarto com varanda própria. Existe ainda uma casa de banho principal de apoio aos restantes quartos. Com uma excelente distribuição de espaços interiores e exteriores, esta moradia é a escolha perfeita para famílias que procuram qualidade de vida, conforto e funcionalidade no dia a dia. Localizada numa zona tranquila e residencial, beneficia de excelente proximidade a paragem de autocarro, hipermercados, talho, comércio local, escolas e colégios, garantindo toda a conveniência necessária para o dia a dia. Fotos ilustrativas de imóveis do mesmo construtor Agende a Sua Visita! Não perca a oportunidade de conhecer esta magnífica moradia em construção! Agende já a sua visita e garanta o seu novo lar, onde cada detalhe reflete o seu estilo e preferência Precisa de ajuda com o seu crédito ? Conte connosco, sem qualquer custo para si! Somos intermediários de credito licenciados pelo Banco de Portugal com a licença Nº 2534, conheça o nosso site de intermediação de credito, icescolhacerta.pt e fique a par das novidades e peça-nos uma simulação. Descrição criada por Inteligência Artificial
AMI: 7959
Ref. Externa: MOR_2887
Id: 1586987
Inicie sessão para guardar este imóvel e aceder à sua lista de favoritos em qualquer dispositivo.
875.000 €
3 Quartos
4 WCs
Área bruta : 299 m²
Um Refúgio Exclusivo Onde a Natureza e a Arquitetura Contemporânea se Encontram. Implantada num lote magnífico de 9.500 m², esta quinta moderna e elegante beneficia de uma orientação perfeita, de nascente para poente, proporcionando luz natural ao longo de todo o dia. O terreno, ricamente arborizado, cria uma moldura verde que envolve a propriedade e garante total privacidade, serenidade e um ambiente verdadeiramente exclusivo. No coração do terreno, as áreas mais abertas convidam a desfrutar do ar livre, seja para momentos de descanso, lazer ou atividades familiares. Uma linha de água atravessa suavemente a propriedade, formando uma charca natural onde patos selvagens e galinhas-d'água encontram o seu habitat. Ao entardecer, o som das rãs, anfíbios e grilos cria uma atmosfera mágica, típica das noites de primavera e verão — um cenário raro tão perto da cidade. Com nascente própria na zona mais elevada, poço e um furo de 100 metros, o abastecimento de água é totalmente autónomo e abundante. Trilhos pedonais serpenteiam pelo terreno, proporcionando a sensação única de caminhar num parque natural privado, onde se destacam carvalhos, sobreiros, oliveiras, amieiros e uma fauna variada que inclui aves como águias, pica-paus, papa-figos, melros, noitibós, entre muitas outras. A propriedade oferece ainda diversos recantos de interesse, perfeitos para criar zonas de lazer naturais, celebrar momentos especiais ou receber amigos em plena harmonia com a natureza. Existe também uma área agrícola com horta e várias árvores de fruto — macieiras, limoeiros, laranjeiras, pessegueiros, ameixeiras e medronheiros — permitindo-lhe usufruir dos seus próprios produtos. O potencial de valorização é enorme: é possível construir uma piscina tradicional ou uma bio-piscina de grandes dimensões, criar uma mini quinta pedagógica, espaços de eventos ou áreas especialmente dedicadas às crianças. Design contemporâneo, luz e elegância Distribuída por dois pisos, a villa combina linhas modernas com amplos envidraçados, criando uma relação harmoniosa entre interior e exterior. Piso Térreo — a zona social Hall de entrada com claraboia, pé-direito generoso e escada suspensa de elevado impacto visual. Cozinha totalmente equipada com cerca de 30 m² e vista direta para o jardim. Sala de estar de 60 m², inundada de luz, com acesso a um alpendre perfeito para apreciar o cenário natural. WC social e lavandaria. Zona de estacionamento com ligação direta ao exterior da casa. Piso Superior — privacidade e conforto Área de escritório com vista aberta. Três suítes, todas com walk-in closet, casas de banho com loiças suspensas Roca e acesso a uma espetacular varanda panorâmica, de onde se contempla toda a propriedade. Construção de excelência e infraestruturas de alta eficiência Esta propriedade distingue-se pela qualidade técnica, pelos materiais premium e pela atenção ao detalhe: Fachada ventilada com estrutura em alumínio, isolamento térmico e painéis fenólicos TRESPA — durabilidade e eficiência energética máximas. Vãos envidraçados Technal/Hidro com vidro duplo SGG Climalit — conforto térmico e acústico superior. Pavimento flutuante QuickStep e cerâmicos 60x60 — estética moderna e resistente. Furo de 100 m, reservatório de 3.000 litros e bomba dedicada — autonomia completa de água. Mini ETAR de 2.000 litros, dimensionada para 8 pessoas, com purificação de 96%. Estação de gás para botijas de 45 kg. Pré-instalação de ar condicionado e de painéis solares com circuito de retorno. Pré-instalações elétricas para sombreamento automático (estores, lâminas ou blackouts). Ligação à rede pública de eletricidade e telecomunicações (incluindo fibra ótica). Localização privilegiada: tranquilidade, acessibilidade e qualidade de vida Situada entre Palmela e Azeitão, esta propriedade combina o ambiente natural com a proximidade a áreas urbanas e a importantes infraestruturas: A menos de 30 minutos de Lisboa e do aeroporto, via Ponte 25 de Abril ou Ponte Vasco da Gama. Próxima da St. Peter’s School, uma das mais prestigiadas escolas internacionais do distrito. Fácil acesso a Setúbal, praias da Arrábida, comércio, serviços e vias rápidas. Uma oportunidade rara para quem procura viver com exclusividade, conforto contemporâneo e uma relação íntima com a natureza. Marque já a sua visita e descubra este cenário único. Precisa de ajuda com o seu crédito ? Conte connosco, sem qualquer custo para si! Somos intermediários de credito licenciados pelo Banco de Portugal com a licença Nº 2534, conheça o nosso site de intermediação de credito, (url) e fique a par das novidades e peça-nos uma simulação. Descrição criada por Inteligência Artificial
AMI: 7959
Ref. Externa: QUI_2883
Id: 1490540
Inicie sessão para guardar este imóvel e aceder à sua lista de favoritos em qualquer dispositivo.
640.000 €
4 Quartos
3 WCs
Área bruta : 154 m²
Se procura uma moradia contemporânea pronta a habitar, cheia de luz natural, com áreas generosas e acabamentos de excelência, esta é a sua oportunidade! Situada numa zona calma de Fernão Ferro, com ótimos acessos e próxima de escolas, transportes, comércio e serviços, esta casa foi projetada para oferecer qualidade de vida, conforto e funcionalidade. Exterior Logradouro traseiro de 100m², ideal para convívios e momentos em família; Espaço de lazer de 20m² com pérgula; Alpendre com churrasqueira de 10m² com acesso direto ao logradouro; Estacionamento exterior para 4 viaturas, com pérgula de 20m²; Jardim frontal de 10m² que valoriza a entrada da casa. Interior Ampla sala em open space com a cozinha, num total de 46m²; Cozinha totalmente equipada com eletrodomésticos Teka, móveis modernos termolaminados e bancada em silestone; Suite de 12,80m² com roupeiro e Wc de 7m² com acesso direto ao logradouro; 2 quartos com roupeiros embutidos (12,80m² e 11,70m²); Suite adicional de 13,80m² com Wc privativo; Wc social moderno de 5,70m²; Zona de arrumos e lavandaria. Conforto e Tecnologia Tetos falsos com spots LED; Quartos com pavimento em parquet e zonas sociais em mosaico; Aspiração central; Pré-instalação de ar condicionado; Caixilharia em PVC oscilobatente com vidros duplos; Estores elétricos; Painel solar para aquecimento de águas sanitárias; Portões automáticos e iluminação exterior; Casas de banho com sanitários suspensos, móveis modernos e bases de duche elegantes. Outras Informações Lote: 375m² Área de construção habitável: 154m² Conforto, design e tranquilidade num só lugar Arquitetura contemporânea com acabamentos premium Localização 5 min. do Colégio Atlântico 15 min. das praias da Costa da Caparica 5 min. da estação Fertagus/Foros da Amora Excelentes acessos à A33, A2, N10, Ponte 25 de Abril e Ponte Vasco da Gama Uma moradia pensada para quem valoriza qualidade, modernidade e bem-estar. Agende já a sua visita e venha conhecer o seu futuro lar em Fernão Ferro! Somos intermediários de credito em regime vinculado, com a autorização nº 2534 emitida pelo Banco de Portugal, podendo assim também ajudar na obtenção do credito hipotecário. Descrição criada por Inteligência Artificial
AMI: 7959
Ref. Externa: MOR_2874
Id: 1389507
Inicie sessão para guardar este imóvel e aceder à sua lista de favoritos em qualquer dispositivo.
495.000 €
3 Quartos
4 WCs
Área bruta : 261 m²
Este encantador T3+1, uma moradia cuidadosamente projetada, oferece um interior que combina elegância e funcionalidade. Ao entrar na casa, é recebido por um amplo hall de entrada que leva a uma luminosa sala de estar com grandes janelas que permitem a entrada generosa de luz natural. A cozinha em estilo moderno está equipada com eletrodomésticos e apresenta bons acabamentos . Os três quartos com casa de banho são espaçosos e proporcionam conforto ideal para toda a família bem como roupeiros embutidos. No exterior, esta moradia destaca-se pela sua fachada imponente e atrativa rodeada por jardins muito cuidados onde se pode disfrutar da serenidade do ambiente circundante. As áreas comuns incluem espaço suficiente para estacionamento privado além da possibilidade dum agradável pátio ou terraço ao ar livre perfeito para convívios familiares ou momentos relaxantes sob o sol radiante típico daquela região, sem falar da enorme piscina que a moradia tem á disposição dos seus moradores. Localizada numa área residencial tranquila mas acessível, este imóvel beneficia da proximidade aos principais serviços essenciais como escolas, supermercados e transportes públicos facilitando assim as deslocações diárias dos seus habitantes enquanto mantém um equilíbrio saudável entre vida privada urbana dinâmica. Não perca a oportunidade única de adquirir esta magnífica residência; aqui poderá encontrar não apenas paredes mas sim todo um novo lar repleto das memórias felizes que certamente irão ser construídas pelos seus novos proprietários nos anos vindouros. Descrição criada por Inteligência Artificial
AMI: 7959
Ref. Externa: MOR_2867
Id: 1352934
Inicie sessão para guardar este imóvel e aceder à sua lista de favoritos em qualquer dispositivo.
550.000 €
4 Quartos
3 WCs
Área bruta : 184 m²
Moradia Térrea de Sonho com Piscina e Acabamentos Premium Descubra o equilíbrio perfeito entre elegância, conforto e tranquilidade nesta espetacular moradia isolada térrea, com piscina e um espaço exterior encantador – ideal para desfrutar de momentos inesquecíveis com família e amigos. Interior Moderno e Funcional: Sala e Cozinha em open space (40 m²) com acesso direto ao jardim e piscina, 2 Suítes espaçosas (20 m² cada), para máximo conforto e privacidade, 2 Quartos adicionais (15 m² e 13 m²), todos com roupeiros embutidos. Casa de banho completa, zona de máquinas, lavandaria e arrecadação Exterior Perfeito para Lazer: Piscina com zona de barbecue, Jardim cuidadosamente projetado e parqueamento com pérgula Conforto e Tecnologia: Janelas em PVC com vidros duplos e estores elétricos, Painéis solares, ar condicionado e aspiração central, Portões automáticos, vídeo porteiro e alarme, Ventilação mecânica controlada e pré-instalação de recuperador de calor Localização Privilegiada: Zona de moradias tranquilas, com comércio, escolas e transportes. A 10 min da Estação Ferroviária de Coina A 25–30 min das praias (Fonte da Telha, Lagoa de Albufeira, Sesimbra) A 25 min da Ponte 25 de Abril Entrega prevista para Março de 2026 Uma oportunidade única de viver com qualidade, conforto e sofisticação, a poucos minutos de tudo o que precisa. Precisa de ajuda com o seu crédito ? Conte connosco, sem qualquer custo para si! Somos intermediários de credito licenciados pelo Banco de Portugal com a licença Nº 2534.
AMI: 7959
Ref. Externa: MOR_2866
Id: 1349872
Inicie sessão para guardar este imóvel e aceder à sua lista de favoritos em qualquer dispositivo.
900.000 €
Área de terreno : 26662 m²
Apresentamos lhe este terreno para construção situado na Estrada da Vila Amélia. Lote uma área de 26662,5 m2, podendo ser edificado um ou mais armazéns ate 15.997, 5 m2 de implantação e 31.995 m2 de área bruta de construção. Os proprietários chegaram a desenvolver um projeto para construção de 16 armazéns com uma área de implantação de 10.080m2. Procura expandir o seu negócio? Este é o terreno que tem procurado! Estamos disponíveis para qualquer questão.
AMI: 7959
Ref. Externa: TER_2735
Id: 1251845
Inicie sessão para guardar este imóvel e aceder à sua lista de favoritos em qualquer dispositivo.
583.825 €
3 Quartos
3 WCs
Área bruta : 288 m²
Descubra a sua próxima casa nesta Moradia robusta e projetada, onde o espaço e a funcionalidade se combinam para proporcionar um ambiente confortável e acolhedor. Com quatro andares bem organizados, esta casa oferece tudo o que é necessário para uma vida prática e agradável Interiores que Inspiram Conforto e Praticidade Ao entrar, é recebido por um Hall de entrada generoso, que conduz a uma Sala com 36m2 ampla e luminosa, equipada com uma Lareira e recuperador de calor, criando o ambiente perfeito para os dias mais frios. A Cozinha com 22m2, totalmente equipada com móveis modernos e de qualidade, oferece o espaço ideal para desfrutar de momentos de criatividade culinária. Para maior comodidade, este piso conta ainda com um WC social, pensado para o dia a dia. No primeiro andar, encontra-se uma área reservada à vida privada. A suite com 22m2 destaca-se pela sua amplitude, com dois roupeiros embutidos, uma casa de banho privativa e uma varanda onde poderá desfrutar de momentos de tranquilidade. Este piso inclui ainda dois quartos com cerca de 15m2 cada, luminosos e uma casa de banho completa de apoio aos mesmos. O sótão, com janelas Velux que garantem uma excelente entrada de luz natural, é um espaço versátil que pode ser adaptado às suas necessidades, seja como escritório, sala de jogos ou até um quarto adicional como está de momento. Zonas Exteriores e comuns: No exterior, um terraço encantador torna-se o cenário ideal para desfrutar de momentos ao ar livre. Equipado com uma Churrasqueira, é perfeito para refeições descontraídas em família ou convívios entre amigos. A garagem espaçosa, localizada na cave, dispõe de capacidade para várias viaturas e inclui áreas adicionais para arrumação, oferecendo soluções práticas para o seu dia a dia. Toda a moradia foi projetada para garantir conforto e eficiência, contando com janelas de vidros duplos e portadas exteriores, que garantem um excelente isolamento Se procura uma casa que combine funcionalidade, espaço e conforto, esta moradia é a escolha ideal para criar memórias inesquecíveis. Venha conhecê-la! Somos intermediários de credito em regime vinculado, com a autorização nº 2534 emitida pelo Banco de Portugal, podendo assim também ajudar na obtenção do credito hipotecário. Descrição criada por Inteligência Artificial
AMI: 7959
Ref. Externa: MOR_2835
Id: 1156856
Inicie sessão para guardar este imóvel e aceder à sua lista de favoritos em qualquer dispositivo.
790.000 €
4 Quartos
4 WCs
Área bruta : 177 m²
Temos neste momento um ótimo condomínio disponível em Quinta do Anjo, Portugal, o Hanjos Village.. Este condomínio consiste em 3 moradias terras com piscina e possui certificado energético classe A. As casas estão neste momento a ser edificadas ou seja construções novas, projetadas para oferecer conforto e qualidade de vida aos seus futuros proprietários. Cada unidade possui uma ampla sala de estar, cozinha moderna totalmente equipada e quartos espaçosos. Além disso, todas as moradias possuem garagem privativa para maior comodidade dos residentes. O destaque deste condomínio é a área externa compartilhada pelos moradores: uma belíssima piscina perfeita para desfrutar nos dias ensolarados ou relaxar após um dia agitado. Os jardins bem cuidados proporcionam um ambiente tranquilo e agradável ao redor das residências. Localizado na encantadora região de Quinta do Anjo, este imóvel tem fácil acesso às principais vias para a cidade de Lisboa e Setubal. Neste momento e dado o inicio de construção, os futuros proprietários podem ser os próprios a decidir os acabamentos das moradias. Temos excelentes condições de credito para a aquisição das mesmas, venha conhecer a casa dos seus sonhos. Possibilidade de permuta.
AMI: 7959
Ref. Externa: EMP001-C
Id: 1156848
Inicie sessão para guardar este imóvel e aceder à sua lista de favoritos em qualquer dispositivo.
790.000 €
4 Quartos
4 WCs
Área bruta : 178 m²
Temos neste momento um ótimo condomínio disponível em Quinta do Anjo, Portugal, o Hanjos Village.. Este condomínio consiste em 3 moradias terras com piscina e possui certificado energético classe A. As casas estão neste momento a ser edificadas ou seja construções novas, projetadas para oferecer conforto e qualidade de vida aos seus futuros proprietários. Cada unidade possui uma ampla sala de estar, cozinha moderna totalmente equipada e quartos espaçosos. Além disso, todas as moradias possuem garagem privativa para maior comodidade dos residentes. O destaque deste condomínio é a área externa compartilhada pelos moradores: uma belíssima piscina perfeita para desfrutar nos dias ensolarados ou relaxar após um dia agitado. Os jardins bem cuidados proporcionam um ambiente tranquilo e agradável ao redor das residências. Localizado na encantadora região de Quinta do Anjo, este imóvel tem fácil acesso às principais vias para a cidade de Lisboa e Setubal. Neste momento e dado o inicio de construção, os futuros proprietários podem ser os próprios a decidir os acabamentos das moradias. Temos excelentes condições de credito para a aquisição das mesmas, venha conhecer a casa dos seus sonhos. Possibilidade de permuta.
AMI: 7959
Ref. Externa: EMP001-B
Id: 1156845
Inicie sessão para guardar este imóvel e aceder à sua lista de favoritos em qualquer dispositivo.
5 Quartos
6 WCs
Área bruta : 277 m²
Moradia T5 em Construção com Garagem, Piscina e Barbecue Apresentamos uma moradia T5 em construção, localizada numa zona privilegiada de Azeitão. Esta residência situa-se num bairro calmo, com bastante estacionamento e proximidade a diversos serviços, garantindo conforto e conveniência para os seus futuros moradores. Características do Imóvel: Sala: Uma incrível sala com uma vista deslumbrante para o jardim traseiro, onde se encontram a piscina aquecida, a garagem e a churrasqueira. Este espaço foi projetado para proporcionar uma sensação de continuidade entre o interior e o exterior, ideal para momentos de lazer e convivência. Piscina Aquecida: Localizada no jardim traseiro, a piscina oferece um espaço de relaxamento e diversão, podendo ser utilizada durante todo o ano. Churrasqueira: A churrasqueira, situada ao lado da piscina, é perfeita para reunir amigos e família para churrascos e refeições ao ar livre. Garagem: Espaçosa e prática, a garagem oferece segurança e comodidade para estacionar veículos. Teto Alto: Os tetos têm 4,50 metros de pé direito na sala, proporcionando uma sensação de amplitude e espaço. Janelas Amplas: Com 2,40 metros de altura, as janelas permitem a entrada abundante de luz natural, criando ambientes luminosos e agradáveis. Cozinha: Totalmente equipada com uma ilha central e todos os eletrodomésticos necessários, a cozinha é um espaço moderno e funcional, ideal para quem gosta de cozinhar e receber. Suites: Todos os cinco quartos são suítes, oferecendo privacidade e conforto aos seus habitantes. WC de Apoio: Na zona social da sala, encontra-se um WC de apoio, conveniente para convidados. Esta moradia combina elegância, conforto e funcionalidade, sendo uma excelente opção para quem procura um lar de sonho em Azeitão. Agende a Sua Visita! Não perca a oportunidade de conhecer esta magnífica moradia em construção! Ao adquirir o imóvel nesta fase, poderá ainda escolher os pormenores finais e personalizá-lo ao seu gosto. Agende já a sua visita e garanta o seu novo lar, onde cada detalhe reflete o seu estilo e preferência! Descrição criada por Inteligência Artificial
AMI: 7959
Ref. Externa: MOR_2798
Id: 1156840
Inicie sessão para guardar este imóvel e aceder à sua lista de favoritos em qualquer dispositivo.
630.000 €
4 Quartos
3 WCs
Área bruta : 298 m²
Duplex composto com uma Sala e Cozinha open space a Cozinha totalmente equipada com eletrodomésticos de marca Siemens e Varanda com Churrasqueira, Dois Quartos sendo um deles Suite com roupeiro embutido com portas de abrir em lacado a branco, outro quarto com closet, Wc social com base de duche e móvel de apoio. No piso 1 area dividida com 2 Quartos sendo um deles Suite e um WC social de apoio. Porta de acesso a terraço com área de cerca 23m2. Características gerais do Imóvel; Som ambiente por Bluetooth, Ar condicionado em todo o apartamento, Aspiração central, Caixilharia em PVC com corte térmico e Estores elétricos, Tetos falsos com iluminação LED embutida, Vídeo porteiro, Porta blindada, Painel solar individual, Box para 2 carros, Portão de garagem automático. Apartamento inserido em edifício de 3 pisos com elevador. Localizado numa das zonas residenciais mais procuradas na Margem Sul, próximo dos acessos da autoestrada que liga à Ponte Vasco da Gama ( 20 Minutos de Lisboa ) ou a Setúbal, próximo de escolas, superfícies comerciais e uma grande diversidade de comércio de rua. Somos intermediários de credito em regime vinculado, com a autorização nº 2534 emitida pelo Banco de Portugal, podendo assim também ajudar na obtenção do credito hipotecário. Excelente oportunidade, venha visitar!
AMI: 7959
Ref. Externa: DUP_2694
Id: 1156828
Inicie sessão para guardar este imóvel e aceder à sua lista de favoritos em qualquer dispositivo.
Inicie sessão para ocultar este imóvel das suas pesquisas e manter a sua lista de resultados organizada.
Escolha Certa Sociedade de Mediação Imobiliária Lda
Consultor imobiliário em Escolha Certa Sociedade de Mediação Imobiliária Lda - AMI: 7959
Compre créditos para poder destacar os seus imóveis! Desta forma eles são os primeiros a aparecer nas pesquisas e têm uma maior chance de serem vistos pelos utilizadores.
© Copyright 2023 | CASACERTA. All rights reserved
Guardar favoritos
Este imóvel foi guardados nos seus favoritos com sucesso.
Para poder guardar pesquisa deverá ter a sua sessão iniciada.
Caso não tenha uma conta, deverá criar uma.
A sua pesquisa foi guardada com sucesso!
Este site utiliza cookies. Ao navegar no site estará a consentir a sua utilização.
Para mais informações sobre os cookies pode consultar a
política de privacidade.