Consultor imobiliário em HomeFinder - AMI: 2969
Comprar
Arrendar
530.000 €
4 Quartos
4 WCs
Área bruta : 278 m²
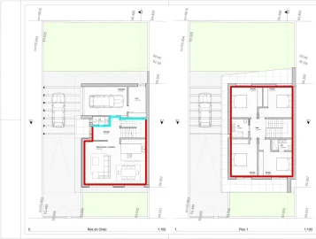
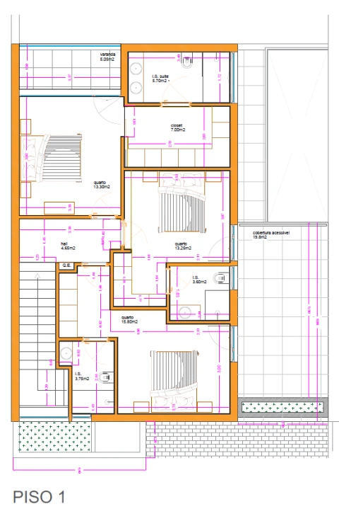
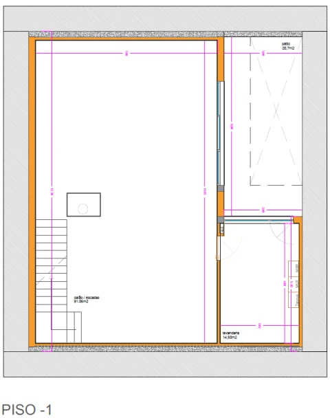
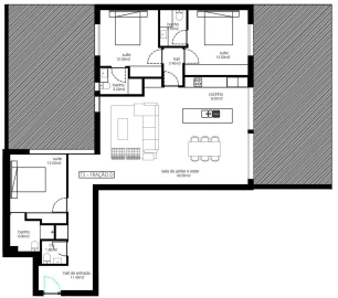
***Já é possível proceder ao agendamento de visitas.*** ***Fase final de acabamentos.*** ***Prazo previsto de conclusão: Novembro/Dezembro de 2026.*** Localizada numa zona residencial tranquila da freguesia de Palmeira, em Braga, esta moradia geminada V4 encontra-se em fase de construção e oferece o equilíbrio perfeito entre conforto, modernidade e privacidade. Situada numa rua de acesso reservado a residentes, é o espaço ideal para quem procura um ambiente sereno e seguro, a poucos minutos da cidade. Inserida num lote de 336 m², a casa apresenta uma área bruta de 278 m² e 209 m² de área útil, distribuídos por dois pisos amplos e bem organizados, pensados para garantir funcionalidade e bem-estar. Rés do Chão - A zona social é composta por uma sala e cozinha em open space, que proporciona luminosidade e uma vivência integrada, perfeita para quem valoriza o convívio familiar. Conta ainda com uma casa de banho de serviço, lavandaria, garagem exterior e garagem fechada com portões automáticos. No exterior, destaca-se uma zona de churrasqueira, ideal para desfrutar de momentos ao ar livre. Primeiro Andar - O piso superior dispõe de duas suites espaçosas, dois quartos adicionais e uma casa de banho completa de apoio. As divisões foram projetadas para oferecer privacidade e conforto a todos os membros da família. Características Técnicas e de Conforto A construção privilegia a eficiência energética e o isolamento térmico e acústico, contando com: - Revestimento exterior em capoto de 4 e 8 cm; - Caixilharia em PVC com vidro duplo e rutura térmica; - Bomba de calor para aquecimento das águas sanitárias; - Recuperador de calor ventilado na sala; - Soalho flutuante de 12 mm, que confere elegância e durabilidade; - Sistema de ar condicionado tipo split em várias divisões. Localização - A apenas 6 km do centro de Braga, esta moradia oferece a tranquilidade do campo com a conveniência da proximidade urbana, próxima de escolas, comércio e principais acessos rodoviários. Com conclusão prevista para março de 2026, esta é uma excelente oportunidade para quem procura uma casa moderna e funcional, num ambiente familiar e sossegado.
AMI: 2969
Ref. Externa: 33870097
Id: 1798295
Inicie sessão para guardar este imóvel e aceder à sua lista de favoritos em qualquer dispositivo.
530.000 €
4 Quartos
4 WCs
Área bruta : 278 m²
***Já é possível proceder ao agendamento de visitas.*** ***Praticamente concluída, falta apenas terminar alguns pormenores.*** Localizada numa zona residencial tranquila da freguesia de Palmeira, em Braga, esta moradia geminada V4 encontra-se em fase de construção e oferece o equilíbrio perfeito entre conforto, modernidade e privacidade. Situada numa rua de acesso reservado a residentes, é o espaço ideal para quem procura um ambiente sereno e seguro, a poucos minutos da cidade. Inserida num lote de 336 m², a casa apresenta uma área bruta de 278 m² e 209 m² de área útil, distribuídos por dois pisos amplos e bem organizados, pensados para garantir funcionalidade e bem-estar. Rés do Chão - A zona social é composta por uma sala e cozinha em open space, que proporciona luminosidade e uma vivência integrada, perfeita para quem valoriza o convívio familiar. Conta ainda com uma casa de banho de serviço, lavandaria, garagem exterior e garagem fechada com portões automáticos. No exterior, destaca-se uma zona de churrasqueira, ideal para desfrutar de momentos ao ar livre. Primeiro Andar - O piso superior dispõe de duas suites espaçosas, dois quartos adicionais e uma casa de banho completa de apoio. As divisões foram projetadas para oferecer privacidade e conforto a todos os membros da família. Características Técnicas e de Conforto A construção privilegia a eficiência energética e o isolamento térmico e acústico, contando com: - Revestimento exterior em capoto de 4 e 8 cm; - Caixilharia em PVC com vidro duplo e rutura térmica; - Bomba de calor para aquecimento das águas sanitárias; - Recuperador de calor ventilado na sala; - Soalho flutuante de 12 mm, que confere elegância e durabilidade; - Sistema de ar condicionado tipo split em várias divisões. Localização - A apenas 6 km do centro de Braga, esta moradia oferece a tranquilidade do campo com a conveniência da proximidade urbana, próxima de escolas, comércio e principais acessos rodoviários. Com conclusão prevista para março de 2026, esta é uma excelente oportunidade para quem procura uma casa moderna e funcional, num ambiente familiar e sossegado.
AMI: 2969
Ref. Externa: 33870096
Id: 1798294
Inicie sessão para guardar este imóvel e aceder à sua lista de favoritos em qualquer dispositivo.
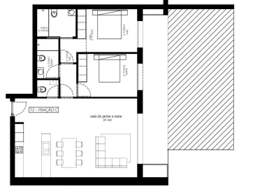
1 WCs
Área bruta : 45 m²
Situada numa das ruas mais movimentadas e de maior passagem da cidade, esta loja destaca-se pela sua excelente localização e visibilidade. Com uma ampla montra que proporciona grande exposição ao público, o imóvel é ideal para quem deseja investir em um negócio com alto potencial comercial. A loja conta também com WC próprio, oferecendo maior conforto e funcionalidade para os seus clientes e colaboradores. Com uma área de 44 m², o espaço proporciona flexibilidade para diversos tipos de atividade comercial, desde retalho a serviços, adaptando-se às suas necessidades. Aproveite esta oportunidade única de instalar o seu negócio no coração de Braga, numa zona de elevado tráfego de pessoas e com acessos facilitados. Venha conhecer este imóvel e avaliar o excelente potencial que ele oferece para o crescimento do seu negócio!
AMI: 2969
Ref. Externa: 33012783A
Id: 1791835
Inicie sessão para guardar este imóvel e aceder à sua lista de favoritos em qualquer dispositivo.
Área de terreno : 4000 m²
Apresenta-se este excelente terreno rústico com uma área total de 4.000 m², localizado na freguesia de Este São Mamede, no concelho de Braga. Inserido numa zona calma e envolvente natural, este terreno oferece o equilíbrio ideal entre a serenidade do campo e a proximidade à cidade. A localização é um dos seus grandes destaques. Situado a poucos minutos do centro de Braga, permite um acesso rápido a comércio, serviços, escolas e principais vias rodoviárias, garantindo comodidade no dia a dia. Ao mesmo tempo, beneficia de um ambiente tranquilo, com vistas desafogadas e contacto direto com a natureza, ideal para quem procura qualidade de vida longe da agitação urbana. A envolvente é marcada pela proximidade à Serra do Carvalho e à zona de nascente do rio Este, proporcionando um enquadramento natural único, rico em paisagem e biodiversidade. Trata-se de um local privilegiado para quem valoriza o contacto com a natureza e ambientes rurais autênticos. A nível de acessos, o terreno encontra-se inserido numa zona servida por vias locais, com fácil ligação a áreas rurais e urbanas, o que reforça a sua versatilidade e conveniência. Com bons acessos e excelente exposição solar, este terreno apresenta diversas possibilidades, seja para exploração agrícola, lazer ou investimento futuro. A sua dimensão generosa oferece versatilidade e potencial, num contexto cada vez mais valorizado pela procura de espaços amplos e bem localizados. Uma oportunidade única para adquirir um espaço com características distintas numa das zonas mais procuradas de Braga.
AMI: 2969
Ref. Externa: 33970006
Id: 1788917
Inicie sessão para guardar este imóvel e aceder à sua lista de favoritos em qualquer dispositivo.
5 Quartos
3 WCs
Área bruta : 286 m²
Este maravilhoso apartamento T5 duplex encontra-se em excelente estado de conservação, pronto a ser habitado. Com uma área de 210 m², destaca-se pela sua amplitude e conforto, ideal para quem procura espaço e qualidade de vida. O imóvel conta com um terraço generoso de 60 m², perfeito para desfrutar de momentos de lazer ao ar livre, seja em família ou com amigos. A propriedade beneficia de um sistema de aquecimento central e radiadores, garantindo um ambiente confortável durante todo o ano. O edifício está também equipado com elevador, proporcionando um acesso fácil e cómodo a todas as divisões. A cozinha, funcional e moderna, equipada com fogão, forno, exaustor, esquentador, frigorífico, tanque, máquina de lavar roupa, máquina de secar roupa e micro-ondas, além de uma despensa para maior arrumação. A sala, com lareira, proporciona um ambiente acolhedor e perfeito para momentos de convívio. O apartamento dispõe de 5 quartos, sendo um deles uma suite, todos com roupeiros embutidos, proporcionando grande arrumação e organização. A casa de banho principal é completa e há ainda uma casa de banho de serviço adicional. Localizado em uma das zonas mais valorizadas da cidade, o imóvel oferece uma excelente acessibilidade a diversos serviços, escolas e transportes públicos, tornando-o uma opção ideal para quem procura conforto e conveniência no seu dia a dia. A proximidade de zonas comerciais e áreas de lazer permite que os moradores desfrutem de tudo o que a cidade tem para oferecer, sem comprometer a tranquilidade e segurança que a localização proporciona. Por fim, o apartamento conta ainda com uma garagem privada, com portão automático, oferecendo espaço para 1 carro, e garantindo a segurança e comodidade para os seus moradores. Este é, sem dúvida, o imóvel perfeito para quem procura qualidade, conforto e uma localização privilegiada. Não perca esta oportunidade única e marque já a sua visita!
AMI: 2969
Ref. Externa: 33870095
Id: 1771068
Inicie sessão para guardar este imóvel e aceder à sua lista de favoritos em qualquer dispositivo.
4 Quartos
4 WCs
Área bruta : 204 m²
Apresenta-se este excelente apartamento T4, localizado na freguesia de Maximinos, a poucos minutos do centro da cidade de Braga. Este imóvel destaca-se pelas suas áreas generosas e pela luminosidade natural. Dispõe de quatro quartos, dois dos quais suite, oferecendo maior conforto e privacidade. A sala ampla, com abundante luz natural, proporciona um ambiente acolhedor e ideal para momentos em família ou convívio. A cozinha funcional, com bastante arrumação, foi pensada para garantir praticidade no dia a dia. Conta ainda com uma varanda espaçosa, perfeita para criar uma agradável zona de lazer. Para maior comodidade, o apartamento inclui garagem fechada para dois carros, elevador, ar condicionado e aquecimento central, assegurando conforto em todas as estações do ano. Uma excelente oportunidade para quem procura espaço, conforto e proximidade ao centro da cidade.
AMI: 2969
Ref. Externa: 33012826
Id: 1771073
Inicie sessão para guardar este imóvel e aceder à sua lista de favoritos em qualquer dispositivo.
295.000 €
3 Quartos
4 WCs
Área bruta : 246 m²
***JÁ ESTAMOS A ACEITAR RESERVAS! CPCV com a licença de construção no segundo trimestre 2026. Prazo para conclusão: 2 anos. APROVEITE ESTA OPORTUNIDADE!!*** O Domus Castle oferece-lhe uma excelente oportunidade de viver com qualidade, conforto e tranquilidade. Situado em Cervães – Vila Verde, este empreendimento proporciona uma experiência única entre o campo e a cidade. A poucos minutos de Braga, Barcelos e Viana do Castelo, e com fácil acesso às principais vias, este é o lugar perfeito para quem procura proximidade e paz. Este apartamento T3 com 132 m² de área útil destaca-se pelas áreas amplas, funcionalidade e luminosidade natural. Dispõe ainda de um logradouro com 88 m², perfeito para usufruir do exterior em total privacidade. Empreendimento moderno concebido a pensar no conforto e nas necessidades do dia a dia, ideal para habitação própria. Com classificação energética A+, garante eficiência, poupança energética e sustentabilidade a longo prazo. Os apartamentos dispõem de garagem dupla com portões automatizados, bombas de calor para aquecimento de águas, ar condicionado e recuperador de calor, assegurando um ambiente acolhedor em qualquer estação do ano. Os acabamentos interiores privilegiam a durabilidade e o conforto, com pavimento em madeira flutuante AC6, estores elétricos, porta de segurança blindada e iluminação LED. As três casas de banho, com louças sanitárias suspensas, oferecem funcionalidade e um design contemporâneo. As caixilharias com isolamento térmico e acústico proporcionam tranquilidade e eficiência, enquanto as varandas generosas criam espaços ideais para lazer, descanso e convívio familiar. Venha conhecer o seu novo lar e descubra a verdadeira definição de qualidade de vida.
AMI: 2969
Ref. Externa: 33012825B
Id: 1771071
Inicie sessão para guardar este imóvel e aceder à sua lista de favoritos em qualquer dispositivo.
600.000 €
3 Quartos
4 WCs
Área bruta : 332 m²
Se procura uma moradia moderna, funcional e com acabamentos de alta qualidade, esta V3 em gaveto, localizada na prestigiada zona de Palmeira, Braga, é a escolha ideal. Com uma área bruta de construção de 331,5 m² e três frentes, esta moradia oferece um ambiente familiar confortável com amplos espaços e ótima exposição solar. A moradia desenvolve-se em três pisos (cave, rés-do-chão e andar) e oferece: - Três suites com roupeiros embutidos e varandas, proporcionando privacidade e bem-estar; - Cozinha equipada com eletrodomésticos BOSCH (forno, micro-ondas, placa, exaustor, máquina de lavar loiça e frigorífico combinado), combinando eficiência e estética; - Sala de estar com recuperador de calor, ampla e luminosa, ideal para convívios em família; - Garagem fechada para 2 carros com portão automático; - Lavandaria independente; - Pré-instalação de piscina, permitindo a criação de um espaço de lazer ao ar livre à sua medida. Entre os acabamentos e extras, destacam-se: - Estores elétricos para maior comodidade; - Vidros duplos com corte térmico e caixilharia de alta qualidade; - Tetos falsos com iluminação embutida; - Sistema de ar condicionado e bomba de calor, garantindo conforto térmico durante todo o ano; - Vídeo porteiro moderno; - Portas interiores de altura total com dobradiças ocultas; - Porta de entrada de alta segurança; - Jardim exterior e portões automáticos, proporcionando segurança e privacidade. Esta moradia está inserida numa urbanização tranquila, ideal para famílias que procuram viver com conforto e qualidade a poucos minutos do centro da cidade de Braga. Não perca esta oportunidade única. Contacte-nos e agende a sua visita!
AMI: 2969
Ref. Externa: 33012761J
Id: 1771067
Inicie sessão para guardar este imóvel e aceder à sua lista de favoritos em qualquer dispositivo.
1 WCs
Área bruta : 123 m²
Localizada na freguesia de São José de São Lázaro, no concelho de Braga, esta loja apresenta-se como uma excelente oportunidade para quem procura um espaço versátil em plena zona urbana da cidade. Com duas frentes, o imóvel beneficia de ótima exposição e luminosidade natural, características que potenciam a visibilidade do negócio e criam um ambiente mais agradável no interior. A configuração do espaço permite uma organização funcional e adaptável a diferentes tipos de atividade. Uma das grandes mais-valias deste imóvel é a possibilidade de conversão em habitação, o que amplia significativamente o seu potencial, seja para investimento, arrendamento ou projeto próprio. Inserida numa zona central e consolidada da cidade, a área envolvente caracteriza-se pela proximidade a comércio, serviços, estabelecimentos de ensino, transportes públicos e diversos pontos de interesse, proporcionando grande conveniência no dia a dia. A localização estratégica, numa artéria urbana de referência, garante bons acessos e uma forte dinâmica habitacional e comercial. Pela sua versatilidade, dupla frente e potencial de transformação, este imóvel constitui uma opção a considerar tanto para comércio e serviços como para investimento habitacional, numa das zonas mais procuradas de Braga.
AMI: 2969
Ref. Externa: 33970010
Id: 1771072
Inicie sessão para guardar este imóvel e aceder à sua lista de favoritos em qualquer dispositivo.
3 Quartos
2 WCs
Área bruta : 136 m²
Apartamento T3 localizado em São Victor - Braga, uma área residencial consolidada e reconhecida pela proximidade a serviços, comércio e acessos rodoviários. O imóvel está atualmente arrendado por 299,82 €, com contrato em vigor até 31 de outubro de 2026, garantindo estabilidade e rendimento imediato para investimento. Dispõe ainda de um lugar de garagem, acrescentando comodidade e valorização ao imóvel. A envolvente caracteriza-se pela forte oferta de conveniências do quotidiano, destacando-se o Pingo Doce, situado a poucos metros, bem como outros estabelecimentos comerciais, bancos, cafés, farmácia e diversas opções de restauração. A zona dispõe de bons acessos, permitindo uma ligação rápida ao centro da cidade de Braga, bem como às principais vias de circulação. É um local procurado pela sua tranquilidade, segurança e funcionalidade, sendo ideal tanto para famílias como para quem privilegia viver perto de tudo sem abdicar de um ambiente residencial. Em suma, trata-se de um T3 bem localizado, integrado numa área prática e completa a nível de serviços, com contrato de arrendamento ativo e rentabilidade garantida até 2026, constituindo uma opção sólida para investimento no mercado imobiliário bracarense. O lugar de garagem incluído reforça ainda mais o seu potencial e conveniência. Nota: Por se encontrar arrendado, não é possível visitar o interior do apartamento.
AMI: 2969
Ref. Externa: 33012819
Id: 1771069
Inicie sessão para guardar este imóvel e aceder à sua lista de favoritos em qualquer dispositivo.
3 Quartos
4 WCs
Área bruta : 300 m²
Empreendimento residencial premium Casal das Flores redefine o conceito de habitar em Braga. Composto por 9 moradias unifamiliares térreas, cada uma com piscina e jardim privativo, combina elegância, inovação e proximidade urbana. Design e Distribuição: Piso 0: Sala e cozinha em open space, três suítes (uma master com closet) e WC social, com ligação direta à piscina e ao jardim. Piso -1: Garagem para três viaturas, lavandaria, WC de apoio e sala multiusos com luz natural. Exterior Privado: Piscina de 21 m², relvado com rega automática, churrasqueira, iluminação paisagística e estacionamento adicional. Detalhes que Fazem a Diferença: - Fachadas em travertino e alumínio lacado - Interiores com soalho laminado Finsa AC6 e acabamentos em Olmo Ontário - Cozinha equipada Bosch, bancadas Dekton - Piso radiante, VMC duplo fluxo e recuperador de calor - Domótica para estores, climatização e segurança - Painéis solares e videoporteiro digital com Wi-Fi Um Local Único: Inserido junto ao futuro Parque das Sete Fontes, com ligação imediata à circular urbana e a poucos minutos do centro histórico, universidades e hospitais, este é o equilíbrio perfeito entre qualidade de vida e valorização futura.
AMI: 2969
Ref. Externa: 33012815D
Id: 1771074
Inicie sessão para guardar este imóvel e aceder à sua lista de favoritos em qualquer dispositivo.
235.000 €
2 Quartos
3 WCs
Área bruta : 184 m²
***JÁ ESTAMOS A ACEITAR RESERVAS! CPCV com a licença de construção no segundo trimestre 2026. Prazo para conclusão: 2 anos. APROVEITE ESTA OPORTUNIDADE!!*** Desfrute da tranquilidade de viver no coração do Minho, em Cervães – Vila Verde, com o empreendimento Domus Castle. A apenas 15 minutos de Braga e Barcelos, este projeto oferece apartamentos T2 modernos com 93 m² de área útil, excelente exposição solar, garagens duplas e uma localização privilegiada, rodeada por natureza e a poucos minutos das principais vias de acesso. Este apartamento destaca-se ainda por um logradouro privativo com 42 m², ideal para lazer, convívio ou momentos de descanso ao ar livre. Empreendimento moderno concebido a pensar no conforto e nas necessidades do dia a dia, ideal para habitação própria. Com classificação energética A+, garante eficiência, poupança energética e sustentabilidade a longo prazo. Os apartamentos dispõem de garagem dupla com portões automatizados, bombas de calor para aquecimento de águas, ar condicionado e recuperador de calor, assegurando um ambiente acolhedor em qualquer estação do ano. Os acabamentos interiores privilegiam a durabilidade e o conforto, com pavimento em madeira flutuante AC6, estores elétricos, porta de segurança blindada e iluminação LED. As três casas de banho, com louças sanitárias suspensas, oferecem funcionalidade e um design contemporâneo. As caixilharias com isolamento térmico e acústico proporcionam tranquilidade e eficiência, enquanto as varandas generosas criam espaços ideais para lazer, descanso e convívio familiar. Viva num ambiente calmo, seguro e com uma excelente qualidade de vida. A sua casa de sonho espera por si no Domus Castle.
AMI: 2969
Ref. Externa: 33012825A
Id: 1771070
Inicie sessão para guardar este imóvel e aceder à sua lista de favoritos em qualquer dispositivo.
Área de terreno : 680 m²
EXCELENTE OPORTUNIDADE DE INVESTIMENTO: TERRENO RÚSTICO COM POSSIBILIDADE DE CONSTRUÇÃO DE MORADIA Terreno com 680 m², localizado em Sanguinhedo, freguesia de Vieira do Minho, com possibilidade de transformação em terreno urbano, ideal para construção de moradia. Situado numa zona de grande beleza natural e valor histórico, este terreno oferece o equilíbrio perfeito entre tranquilidade rural e acessibilidade urbana. * Apenas 7 minutos do centro da Póvoa de Lanhoso e a cerca de 3 km da vila de Vieira do Minho, dispõe de fácil acesso a serviços, comércios e outras infraestruturas. A região é caracterizada pela paisagem montanhosa da Serra da Cabreira, tornando-se o local ideal para quem valoriza um ambiente calmo, saudável e com contacto direto com a natureza. Este terreno é versátil, sendo possível desenvolver um projeto agrícola (hortícolas, árvores de fruto, etc.) ou investir na construção de uma moradia, aproveitando o potencial de valorização futura. Ideal para quem procura investir numa região em crescimento, rodeada pela natureza, mas perto de tudo. Seja para um projeto pessoal, agrícola ou residencial, esta é uma oportunidade imperdível!
AMI: 2969
Ref. Externa: 33970003
Id: 1771060
Inicie sessão para guardar este imóvel e aceder à sua lista de favoritos em qualquer dispositivo.
Área de terreno : 480 m²
Apresentamos um excelente terreno de 480 m² situado em Abrantes, numa urbanização tranquila e privilegiada. Localizado próximo ao Campo de Futebol de Casais de Revelhos, este lote oferece uma oportunidade única para construir uma Moradia Geminada, a casa dos seus sonhos. Com uma exposição solar excelente, o terreno é abençoado com luz natural durante todo o dia, proporcionando um ambiente luminoso e agradável. As vistas desafogadas oferecem uma sensação de espaço e liberdade, enquanto a localização soalheira garante um clima acolhedor e convidativo. A urbanização onde o terreno se encontra é caracterizada pela sua tranquilidade e segurança, ideal para famílias ou para quem procura um refúgio sereno longe do agito urbano. Além disso, os acessos rodoviários são ótimos, facilitando o deslocamento e a conexão com outras áreas. Não perca esta oportunidade única de investir num terreno com todas estas qualidades. Este é o lugar perfeito para construir uma residência que combine conforto, tranquilidade e acessibilidade.
AMI: 2969
Ref. Externa: 33012775
Id: 1771051
Inicie sessão para guardar este imóvel e aceder à sua lista de favoritos em qualquer dispositivo.
3 Quartos
3 WCs
Área bruta : 129 m²
Este empreendimento de luxo, situado num condomínio privado em Celeirós, uma das melhores freguesias de Braga, é composto por quatro blocos de apartamentos, estrategicamente localizados junto à futura ciclovia que se estenderá até ao Bom Jesus. Com uma localização privilegiada, o empreendimento encontra-se a poucos metros da Auto Estrada e da Estrada Nacional Braga-Porto, rodeado de natureza e próximo do Rio Este, proporcionando um ambiente tranquilo a apenas 5 minutos do centro de Braga. Nas proximidades, encontrará uma variedade de comércios e serviços, como escolas, bancos, farmácias, mercados, restaurantes e CTT, garantindo comodidade aos residentes. Os apartamentos deste empreendimento são concebidos com linhas contemporâneas, oferecendo a qualidade e o conforto ideais para famílias e amigos. A cozinha e a sala em Open Space, com móveis de cozinha em branco mate e uma bancada em pedra tipo mármore compacto, além de um pavimento em soalho de madeira flutuante. Os quartos incluem uma suite, todos com pavimento em madeira flutuante e roupeiros com portas brancas mate. As casas de banho apresentam mobiliário moderno, louça suspensa e uma base de duche com chuveiro embutido no pavimento. Cada apartamento dispõe de uma garagem fechada para um carro, exceto os apartamentos do último piso, que têm acesso a uma garagem para dois carros. Entre os destaques do empreendimento, estão as fechaduras magnéticas em todas as portas, ar condicionado por conduta, caixilharia com rutura térmica, painéis solares para aquecimento de águas e pré-instalação de churrasqueira na varanda e de alarme. Os moradores do condomínio podem usufruir de uma piscina exterior, um parque infantil, uma churrasqueira com mesa de apoio e um jardim. Este empreendimento combina conforto e elegância, criando um ambiente perfeito para um estilo de vida sofisticado. Imagine-se a desfrutar de uma refrescante piscina num dia de sol ou a relaxar na espaçosa zona de churrasco enquanto saboreia um delicioso churrasco. As crianças têm um espaço garantido no parque infantil, onde podem brincar em toda a segurança. Os apartamentos são concebidos com acabamentos de elevada qualidade, amplas áreas de convívio e uma distribuição inteligente dos espaços. Celeirós é uma zona com infraestruturas completas, repleta de comércio, serviços, escolas e transportes públicos de qualidade. Não perca esta oportunidade de viver o estilo de vida luxuoso que merece! A previsão de conclusão do empreendimento é para o final de 2025 ou início de 2026.
AMI: 2969
Ref. Externa: 33870082I
Id: 1771055
Inicie sessão para guardar este imóvel e aceder à sua lista de favoritos em qualquer dispositivo.
3 Quartos
1 WCs
Área bruta : 135 m²
Quintinha com algumas obras, com grande potencial para Turismo Rural, situada no cimo da montanha, em pleno contacto com a natureza. Esta propriedade, inserida numa área de cerca de 630 m², oferece uma edificação com 67 m² de implantação e 2 pisos, perfazendo aproximadamente 134 m² de área de construção. A Quintinha encontra-se numa localização privilegiada, numa zona rural tranquila, já permitida para Alojamento Local, o que a torna a opção ideal para quem deseja investir no setor de Turismo Rural. O ambiente acolhedor e a arquitetura centenária conferem-lhe um charme único, tornando-a perfeita para quem procura uma casa de campo que se transforme num verdadeiro refúgio. Não perca a oportunidade de explorar o enorme potencial que esta habitação oferece! Contacte-nos e agende a sua visita. Com certeza ficará encantado(a) com o que este imóvel tem para oferecer!
AMI: 2969
Ref. Externa: 33820001A
Id: 1771056
Inicie sessão para guardar este imóvel e aceder à sua lista de favoritos em qualquer dispositivo.
3 Quartos
4 WCs
Área bruta : 300 m²
Empreendimento residencial premium Casal das Flores redefine o conceito de habitar em Braga. Composto por 9 moradias unifamiliares térreas, cada uma com piscina e jardim privativo, combina elegância, inovação e proximidade urbana. Design e Distribuição: Piso 0: Sala e cozinha em open space, três suítes (uma master com closet) e WC social, com ligação direta à piscina e ao jardim. Piso -1: Garagem para três viaturas, lavandaria, WC de apoio e sala multiusos com luz natural. Exterior Privado: Piscina de 21 m², relvado com rega automática, churrasqueira, iluminação paisagística e estacionamento adicional. Detalhes que Fazem a Diferença: - Fachadas em travertino e alumínio lacado - Interiores com soalho laminado Finsa AC6 e acabamentos em Olmo Ontário - Cozinha equipada Bosch, bancadas Dekton - Piso radiante, VMC duplo fluxo e recuperador de calor - Domótica para estores, climatização e segurança - Painéis solares e videoporteiro digital com Wi-Fi Um Local Único: Inserido junto ao futuro Parque das Sete Fontes, com ligação imediata à circular urbana e a poucos minutos do centro histórico, universidades e hospitais, este é o equilíbrio perfeito entre qualidade de vida e valorização futura.
AMI: 2969
Ref. Externa: 33012815C
Id: 1771063
Inicie sessão para guardar este imóvel e aceder à sua lista de favoritos em qualquer dispositivo.
3 Quartos
3 WCs
Área bruta : 129 m²
Este empreendimento de luxo, situado num condomínio privado em Celeirós, uma das melhores freguesias de Braga, é composto por quatro blocos de apartamentos, estrategicamente localizados junto à futura ciclovia que se estenderá até ao Bom Jesus. Com uma localização privilegiada, o empreendimento encontra-se a poucos metros da Auto Estrada e da Estrada Nacional Braga-Porto, rodeado de natureza e próximo do Rio Este, proporcionando um ambiente tranquilo a apenas 5 minutos do centro de Braga. Nas proximidades, encontrará uma variedade de comércios e serviços, como escolas, bancos, farmácias, mercados, restaurantes e CTT, garantindo comodidade aos residentes. Os apartamentos deste empreendimento são concebidos com linhas contemporâneas, oferecendo a qualidade e o conforto ideais para famílias e amigos. A cozinha e a sala em Open Space, com móveis de cozinha em branco mate e uma bancada em pedra tipo mármore compacto, além de um pavimento em soalho de madeira flutuante. Os quartos incluem uma suite, todos com pavimento em madeira flutuante e roupeiros com portas brancas mate. As casas de banho apresentam mobiliário moderno, louça suspensa e uma base de duche com chuveiro embutido no pavimento. Cada apartamento dispõe de uma garagem fechada para um carro, exceto os apartamentos do último piso, que têm acesso a uma garagem para dois carros. Entre os destaques do empreendimento, estão as fechaduras magnéticas em todas as portas, ar condicionado por conduta, caixilharia com rutura térmica, painéis solares para aquecimento de águas e pré-instalação de churrasqueira na varanda e de alarme. Os moradores do condomínio podem usufruir de uma piscina exterior, um parque infantil, uma churrasqueira com mesa de apoio e um jardim. Este empreendimento combina conforto e elegância, criando um ambiente perfeito para um estilo de vida sofisticado. Imagine-se a desfrutar de uma refrescante piscina num dia de sol ou a relaxar na espaçosa zona de churrasco enquanto saboreia um delicioso churrasco. As crianças têm um espaço garantido no parque infantil, onde podem brincar em toda a segurança. Os apartamentos são concebidos com acabamentos de elevada qualidade, amplas áreas de convívio e uma distribuição inteligente dos espaços. Celeirós é uma zona com infraestruturas completas, repleta de comércio, serviços, escolas e transportes públicos de qualidade. Não perca esta oportunidade de viver o estilo de vida luxuoso que merece! A previsão de conclusão do empreendimento é para o final de 2025 ou início de 2026.
AMI: 2969
Ref. Externa: 33870082F
Id: 1771052
Inicie sessão para guardar este imóvel e aceder à sua lista de favoritos em qualquer dispositivo.
Área bruta : 893 m²
Vende-se armazém em Famalicão, situado a apenas 5 minutos do centro da cidade de Famalicão, a 27 minutos do Aeroporto Francisco Sá Carneiro e a 35 minutos do Porto de Leixões. Localizado no concelho de Famalicão, um dos principais centros exportadores de Portugal, este armazém oferece uma localização estratégica para o seu negócio, proporcionando excelentes acessos rodoviários e proximidade a importantes infraestruturas logísticas. Área Total de Implantanção: 893 m² Armazém e Escritório: 785 m² Garagem: 100 m² Estado: Excelente estado de conservação, pronto a ser utilizado Logradouro Exterior: Amplo e versátil, ideal para estacionamento, carga e descarga, ou armazenamento adicional Benefícios da Localização Proximidade a Vias Rápidas: Localizado próximo das principais vias rodoviárias, garantindo fácil acesso ao resto do país e à Europa. Centro Exportador: Famalicão é um dos principais centros exportadores de Portugal, com uma rede empresarial dinâmica e em crescimento. Infraestruturas de Transporte: A proximidade ao Aeroporto Francisco Sá Carneiro e ao Porto de Leixões facilita a logística internacional, seja por via aérea ou marítima. Contacte-nos para Mais Informações Não perca esta oportunidade única de estabelecer o seu negócio numa localização privilegiada em Famalicão. Este armazém está pronto para acolher a sua empresa, oferecendo o espaço e as condições ideais para o crescimento e sucesso do seu negócio. Para mais informações e agendamento de visitas, entre em contacto connosco. Dê ao seu negócio a localização e o espaço que ele merece! Estamos à sua disposição para ajudar a concretizar os seus objetivos empresariais.
AMI: 2969
Ref. Externa: 33012772A
Id: 1771059
Inicie sessão para guardar este imóvel e aceder à sua lista de favoritos em qualquer dispositivo.
550.000 €
4 Quartos
3 WCs
Área bruta : 359 m²
Apresentamos-lhe esta extraordinária moradia individual T4, situada em Lago, Amares – uma das zonas mais encantadoras do Minho, a apenas 15 minutos de Braga e próxima das famosas praias fluviais da região. Com um terreno generoso de 4.700 m², esta propriedade combina perfeitamente conforto, funcionalidade e enorme potencial de valorização. Características da Moradia Principal: Tipologia T4 (todos os quartos com roupeiros embutidos), incluindo: - 2 quartos suítes + 2 quartos servidos por uma casa de banho completa com banheira. - Sala espaçosa e luminosa, com lareira e recuperador de calor, acesso direto à varanda. - Cozinha funcional, em madeira de faia. - Hall de entrada amplo, que distribui harmoniosamente as divisões. - Garagem na cave com acesso interior. - Aquecimento central completo. - Caixilharia em alumínio com vidros duplos e portadas. - Pronta a habitar, com excelente estado de conservação. Anexo em Pedra com 81 m²: Uma charmosa construção em pedra independente, equipada com forno a lenha tradicional, churrasqueira e salão. Exterior e Potencial do Terreno: - Terreno plano com 4.700 m². - Excelente exposição solar durante todo o dia. - Zona envolvente com árvores de fruto e natureza em abundância. Localização Privilegiada: - Situada numa zona residencial tranquila com bons acessos. - Apenas a 15 minutos do centro de Braga. - Próxima de praias fluviais, escolas, comércio e serviços. Local ideal para quem procura qualidade de vida, tranquilidade e contacto com a natureza, sem abdicar da proximidade urbana. Porquê Esta Moradia? Este imóvel oferece muito mais do que uma casa: é um estilo de vida, com espaço, conforto, privacidade e oportunidades claras de rentabilidade futura. Ideal para residência principal, casa de férias ou investimento seguro, esta é uma das melhores ofertas disponíveis na região de Amares. Agende já a sua visita e descubra todo o potencial deste verdadeiro refúgio no coração do Minho. Não deixe escapar esta oportunidade.
AMI: 2969
Ref. Externa: 33012813
Id: 1771064
Inicie sessão para guardar este imóvel e aceder à sua lista de favoritos em qualquer dispositivo.
Inicie sessão para ocultar este imóvel das suas pesquisas e manter a sua lista de resultados organizada.
HomeFinder
Consultor imobiliário em HomeFinder - AMI: 2969
Compre créditos para poder destacar os seus imóveis! Desta forma eles são os primeiros a aparecer nas pesquisas e têm uma maior chance de serem vistos pelos utilizadores.
© Copyright 2023 | CASACERTA. All rights reserved
Guardar favoritos
Este imóvel foi guardados nos seus favoritos com sucesso.
Para poder guardar pesquisa deverá ter a sua sessão iniciada.
Caso não tenha uma conta, deverá criar uma.
A sua pesquisa foi guardada com sucesso!
Este site utiliza cookies. Ao navegar no site estará a consentir a sua utilização.
Para mais informações sobre os cookies pode consultar a
política de privacidade.