Consultor imobiliário em IAD Holding - AMI: 11220
Comprar
Arrendar
340.000 €
Área de terreno : 354 m²
Terreno para construção na zona velha de Portimão Excelente terreno com 354 m², localizado na zona velha de Portimão, inserido em Área de Reabilitação Urbana (ARU), com elevado potencial de valorização. O terreno permite a construção de até 4 moradias, ou edifício com 4 frações e estacionamento, conforme ilustrado nas imagens. Encontra-se elaborado um projeto de construção em conformidade com os parâmetros urbanísticos aplicáveis ao local, não estando ainda aprovado pelas entidades competentes. Situado numa zona central, com fácil acesso a: - Comércio local, supermercados, padarias e serviços essenciais; - Restaurantes, cafés e a zona ribeirinha do Rio Arade, a curta distância; - Transportes públicos e acessos rápidos; - Universidade do Algarve (Polo de Portimão) nas proximidades, ideal para investimento ou arrendamento; Uma excelente oportunidade para investidores, construtores ou para quem pretende desenvolver um projeto à medida. Para mais informações ou para agendar uma visita, entre em contacto. #ref: 783185
AMI: 11220
Ref. Externa: 783185
Id: 1562865
Inicie sessão para guardar este imóvel e aceder à sua lista de favoritos em qualquer dispositivo.
350.000 €
2 Quartos
2 WCs
Área útil : 88 m²
O "Vale Paraíso Living" é o novo e exclusivo empreendimento localizado na Urbanização Vale Paraíso, em Portimão. Este edifício de 3 pisos e 12 frações de apartamentos T1 e T2, todos com amplas varandas e lugar de garagem. Apartamento F Area Bruta Privativa: 88,90 m² Area da varanda: 21,80 m² Total: 110,70 m² Os apartamentos possuem acabamentos de excelente qualidade e design moderno, garantindo conforto e funcionalidade. Cada apartamento conta com duas casas de banho e a cozinha está totalmente equipada com eletrodomésticos da marca Teka, como forno, fogão vitrocerâmica, exaustor, frigorífico, máquina de lavar loiça. A iluminação LED embutida no tecto, incluindo fitas LED nas molduras das cortinas e nos armários superiores da cozinha, criam um ambiente prático. Todos os apartamentos têm instalação de ar condicionado em todos os quartos e sala, garantindo conforto em todas as estações do ano, e um sistema de Ventilação Mecânica Controlada (VMC), que proporciona uma excelente qualidade do ar no interior. Os apartamentos possuem uma bomba de calor de 200 litros, para um consumo muito prático, eficiente e económico. O edifício está equipado com um elevador, proporcionando uma mobilidade mais fácil entre os pisos. A previsão para a escritura dos imóveis está marcada para o 4º trimestre de 2026, o que permite aos interessados planear com tranquilidade a aquisição do seu novo lar. As condições de pagamento são muito acessíveis: 30% no contrato promessa de compra e venda (CPCV) 10% no final da caixilharia 60% na escritura. O "Vale Paraíso Living" encontra-se a poucos minutos das praias mais famosas da região, como a Praia da Rocha, a Praia do Vau e a Praia de Alvor. A cidade de Portimão oferece ainda uma vasta gama de opções de comércio, restaurantes, Hospitais, centros de saúde e escolas, tudo a uma curta distância. Se está à procura um lugar tranquilo para viver, mas com todas as facilidades de uma cidade moderna, o "Vale Paraíso Living" proporciona-lhe a oportunidade de viver num ambiente único, com a beleza natural do Algarve ao seu alcance. Agende comigo a sua apresentação para conhecer este projeto. #ref: 154717
AMI: 11220
Ref. Externa: 154717
Id: 1526205
Inicie sessão para guardar este imóvel e aceder à sua lista de favoritos em qualquer dispositivo.
4 Quartos
5 WCs
Área bruta : 200 m²
Moradia V4 em Mexilhoeira Grande - Pontalgar Esta magnífica moradia com uma área bruta de construção de 200m2, implantada num terreno de 268m2, é o local perfeito para quem procura luxo, privacidade e conforto no Algarve. Com uma arquitetura moderna e acabamentos de alta qualidade, esta moradia de 4 quartos e 5 casas de banho oferece um verdadeiro oásis de tranquilidade. Caraterísticas Interiores: - 4 quartos espaçosos, 4 deles suites - 5 casas de banho de design requintado - Cozinha em plano aberto, equipada e moderna - Sala de estar acolhedora com área de lazer e outra de refeições - 2 varandas com vistas envolventes - Acabamentos de alta qualidade em toda a casa - Casas de banho com design moderno - Pré Instalação de Ar condicionado em todas as divisões - Estores elétricos e vidros duplos para maior eficiência energética - Piso Radiante - Aquecimento por paineis fotovoltaicos Caraterísticas Exteriores: - Jardim em cantoneiro - Piscina privativa com 28m2 para momentos de lazer e diversão - Espaço para estacionar 2 veículos - Localizada num ambiente pacífico e calmo, ideal para relaxar Destaques: - Localização privilegiada, a poucos quilómetros de Odiáxere, Lagos, Portimão e Alvor - Acesso rápido à Autoestrada A22 - Próximo do Hospital Barlavento Algarvio - Proximidade das belas praias da Meia Praia - Apenas a 10km de Portimão e a 12km de Alvor Esta é a oportunidade ideal para viver numa casa de sonho no Algarve, onde o conforto e o bem-estar se fundem num estilo de vida distinto. Marque já a sua visita e deixe-se apaixonar por este lugar único. A sua casa de sonho espera por si em Mexilhoeira Grande! #ref: 740286
AMI: 11220
Ref. Externa: 740286
Id: 1442923
Inicie sessão para guardar este imóvel e aceder à sua lista de favoritos em qualquer dispositivo.
475.000 €
Área bruta : 224 m²
Prédio com 2 Pisos e Cave com Estacionamento para Viaturas! Este prédio situado em Portimão, construído em 1984, representa uma excelente oportunidade para investimento ou rendimento Características Principais: Área Total: 224m² Área do Terreno: 109,5m² 2 Pisos: Cada piso tem 77m², com entradas independentes para cada apartamento Tipologias: Cada andar é composto por dois quartos, uma casa de banho, zona de arrumos, sala e cozinha independente e equipada Localização: Situado numa zona com fácil acesso a restaurantes, ginásios, escolas e minimercados Estacionamento: Conta com espaço de estacionamento para viaturas, garantindo comodidade aos futuros utilizadores Estado Geral: Apesar de pequenas renovações já realizadas, o prédio necessita de renovação e modernização Pontos de Interesse nas Proximidades: Restaurante Brutal: Apenas a 350m, ideal para desfrutar de refeições deliciosas Ginásio EPIC: A 300m, ótimo para os amantes de desporto e saúde Escola Básica da Pedra Mourinha: Localizada a 500m, conveniente para a educação das crianças Mini Mercado Amanhecer - O Cantinho D'Ana VIII: Situado nas imediações, perfeito para as compras do dia a dia Escola Básica Júdice Fialho: Apenas a 240m, proporcionando facilidade de acesso à educação Aproveite esta oportunidade de investimento em Portimão Contacte-nos para mais informações e agende a sua visita #ref: 722922
AMI: 11220
Ref. Externa: 722922
Id: 1410341
Inicie sessão para guardar este imóvel e aceder à sua lista de favoritos em qualquer dispositivo.
230.000 €
Área de terreno : 4075 m²
Terreno com 4075m² para Construção – Silves (Pinheiro e Garrado) Excelente oportunidade de investimento no Algarve! Terreno com 4075m² situado em Pinheiro e Garrado, zona tranquila nos arredores de Silves, com grande potencial para desenvolvimento. Sem construções existentes – ideal para começar do zero Possibilidade de: • Construir uma moradia isolada de luxo • Dividir em 3 lotes para moradias isoladas • Construir 5 moradias em banda com piscina individual Localização privilegiada • Zona calma, com privacidade e vistas abertas • A poucos minutos do centro histórico de Silves • Proximidade a praias, campos de golfe e principais acessos • Ideal para projeto residencial, turístico ou de investimento Infraestruturas: A ligação à rede de água, luz e esgotos deverá ser solicitada. Este é o local ideal para desenvolver um projeto único e personalizado, num dos destinos mais autênticos do Algarve. Seja para fins residenciais, turísticos ou comerciais, este terreno oferece uma base sólida para transformar ideias em realidade. Agende a uma reunião comigo para mais esclarecimentos. #ref: 634898
AMI: 11220
Ref. Externa: 634898
Id: 1221243
Inicie sessão para guardar este imóvel e aceder à sua lista de favoritos em qualquer dispositivo.
50.000 €
Área de terreno : 6400 m²
Terreno agrícola com 6.400m², localizado junto à Estrada Municipal 524, que liga Algoz a Tunes. O acesso é facilitado por estrada alcatroada. Este terreno não pode ter casas pre fabricada, excepto se for de apoio à agricultura. Este terreno é plano e conta com diversas árvores de fruto, incluindo alfarrobeiras, oliveiras, figueiras, pessegueiros, ameixoeiras, pereiras, cerejeira, damasco e marmeleiro. Além disso, possui seis pés de vinha bebés. Ideal para cultivo, armazenamento ou outros usos agrícolas, este terreno destaca-se pela sua localização e acessibilidade. A casa existente no terreno vai ser removida e não está incluida na venda. Para mais informações, entre em contacto! #ref: 139644
AMI: 11220
Ref. Externa: 139644
Id: 1126829
Inicie sessão para guardar este imóvel e aceder à sua lista de favoritos em qualquer dispositivo.
200.000 €
Área de terreno : 292 m²
Lote de Terreno com Projeto para construção de Moradia na Urbanização Pontalgar - Mexilhoeira Grande, Portimão Este lote tem um total de 292m², sendo 193m2 destinados para construção, situado na tranquila zona de Mexilhoeira Grande, Portimão, oferece-lhe a oportunidade ideal para construir a moradia dos seus sonhos. Com projeto aprovado para uma moderna moradia em banda, esta propriedade foi desenhada para proporcionar o máximo conforto e uma experiência de vida. A moradia projetada inclui: - 3 suítes amplas, cada uma com closet, proporcionando privacidade e luxo a todos os ocupantes. - Escritório espaçoso, perfeito para trabalhar ou estudar com tranquilidade. - Casa de banho de serviço, prática e funcional. - Sala com kitchenette em open space, integrando perfeitamente áreas de convivência e lazer, com despensa para maior conveniência. No primeiro andar, desfrute de uma varanda espaçosa de 25m², que oferece vistas deslumbrantes para o poente. É o cenário perfeito para relaxar e admirar o pôr do sol, criando momentos inesquecíveis. No exterior, a propriedade conta ainda com: - Piscina tipo espelho de água com 23m², ideal para se refrescar nos dias quentes, agregando sofisticação ao espaço exterior. - Estacionamento privado de 22m², garantindo a comodidade e segurança que você procura. Esta é uma oportunidade única de adquirir uma propriedade com um projeto arquitetónico que equilibra conforto, praticidade e elegância em um dos locais mais desejados do Algarve. Não perca esta oportunidade! Para mais informações e agendamento de visitas, entre em contacto #ref: 125365
AMI: 11220
Ref. Externa: 125365
Id: 827001
Inicie sessão para guardar este imóvel e aceder à sua lista de favoritos em qualquer dispositivo.
600.000 €
Área de terreno : 7833 m²
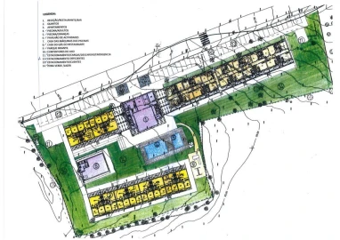
Grande terreno com projeto para hotel rural 3*** ou lar de idosos a 3 minutos da praia do VAU. Podendo construir até 2000m² O projeto foi elaborado para ter 2 piscinas com 120m², receção, restaurant/bar, salão Polivalente, balneario, 12 quartos individuais, 11 quartos duplos, 12 apartamentos T2 ( 4 deles adaptados a utentes com mobilidade reduzida – UMC), lugares de estacionamento e zonas de lazer. Possibilidade igualmente de construir um lar de terceira idade a nivel de saude, desporto, cinegético, da natureza e cultural, guardando o conceito de hotel rural. #ref: 29409
AMI: 11220
Ref. Externa: 29409
Id: 563121
Inicie sessão para guardar este imóvel e aceder à sua lista de favoritos em qualquer dispositivo.
1.150.000 €
4 Quartos
3 WCs
Área útil : 200 m²
À entrada de Carvoeiro, encontra esta moradia mediterrânea rodeada pela natureza com grande potencial de valorização. Embora esteja habitável, necessita de algumas renovações e modernização para alcançar todo o seu potencial e conforto. A propriedade desenvolve-se em dois pisos, oferecendo múltiplas possibilidades: - Rés do chão: três quartos, duas casas de banho, sala com zona de refeições, sala de estar com lareira e cozinha equipada. A sala dá acesso direto a um terraço com ligação ao jardim e à piscina. - Primeiro andar: sala adicional, segunda cozinha e quarto principal em suite. A sala dispõe de varanda com ligação ao jardim e piscina, além de acesso à cobertura, onde pode desfrutar de vistas panorâmicas e excelente exposição solar. O exterior é igualmente atrativo, com 2,6 hectares de terreno repleto de árvores de fruto, piscina, lavandaria, casa de ferramentas e um anexo habitacional. Espaços ideais para relaxar, conviver ou explorar diferentes usos. Graças à sua dimensão e localização, esta propriedade é perfeita para ser transformada em guesthouse, espaço de turismo rural ou numa acolhedora residência familiar. A moradia dispõe ainda de: - Dois acessos independentes: um pela frente da casa e outro pelas traseiras do terreno - Espaço para estacionamento de várias viaturas - Sistema de rega automática distribuído pelos jardins e árvores de fruto - Dois furos de água e um tanque de apoio à rega Localização privilegiada: - Praia de Carvoeiro a apenas 1,5 km - Campos de golfe a 5 km - Intermarché de Lagoa a 1 km e Apolónia a 2,2 km - EN125 a 3,5 km, garantindo ligações rápidas e convenientes Em resumo: uma moradia mediterrânea com dois pisos, varandas privativas, amplos jardins e localização privilegiada, uma oportunidade única de investimento e de vida no coração do Algarve. #ref: 93723
AMI: 11220
Ref. Externa: 93723
Id: 491387
Inicie sessão para guardar este imóvel e aceder à sua lista de favoritos em qualquer dispositivo.
2 Quartos
2 WCs
Área útil : 143 m²
Apartamento T2 de 106,55m2 e 36,90m2 de varandas, posicionado no 3º andar, inserido no condomínio Palm Residence, construção que prima pela qualidade e acabamentos de excelência. Dois quartos, um deles em suite, wc com base de duche e coluna, roupeiro com portas lacadas em branco mate e interior em melamina. Segunda WC com banheira,coluna e resguardo. Cozinha em open space equipada com electrodomésticos Bosch e sala ampla com acesso a grande terraço. Piscina no topo do prédio, com cobertura automática e pré-instalação de aquecimento. Garagem com lugar de estacionamento privativo de 17,80m2 de área. OUTRAS CARACTERÍSTICAS - Pavimento radiante eléctrico - Ar condicionado Samsung - Painel solar - Aspiração central instalada - Vidros duplos com caixilharia em alumínio com ruptura térmica - Estores eléctricos - Porta interiores lacadas em branco mate - Arquitectura paisagística cuidada em redor do edifício - Elevador Situado na bela cidade de Lagos, perto de comércio, serviços, escolas, hospital e espaços de lazer e apenas a 5 min. de carro das praias D. Ana, Pinhão, Camilo, Porto de Mós e outras. CONTACTE PARA MAIS INFORMAÇÕES #ref: 40231
AMI: 11220
Ref. Externa: 40231
Id: 250282
Inicie sessão para guardar este imóvel e aceder à sua lista de favoritos em qualquer dispositivo.
Inicie sessão para ocultar este imóvel das suas pesquisas e manter a sua lista de resultados organizada.
Hugo Vilhena
Consultor imobiliário em IAD Holding - AMI: 11220
Compre créditos para poder destacar os seus imóveis! Desta forma eles são os primeiros a aparecer nas pesquisas e têm uma maior chance de serem vistos pelos utilizadores.
Guardar favoritos
Este imóvel foi guardados nos seus favoritos com sucesso.
Para poder guardar pesquisa deverá ter a sua sessão iniciada.
Caso não tenha uma conta, deverá criar uma.
A sua pesquisa foi guardada com sucesso!
© Copyright 2023 | CASACERTA. All rights reserved
Este site utiliza cookies. Ao navegar no site estará a consentir a sua utilização.
Para mais informações sobre os cookies pode consultar a
política de privacidade.