Consultor imobiliário em Imoriginal - AMI: 10078
Comprar
Arrendar
259.000 €
1 Quartos
2 WCs
Área bruta : 88 m²
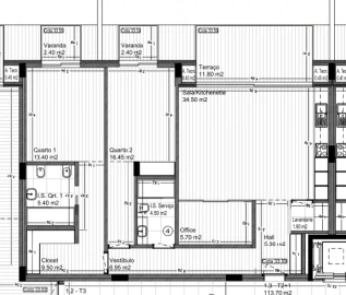
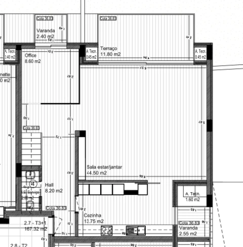
Apartamento T1+OFFICE com sala open-space de 32,40 m2, quarto suite com closet, lavabo social, escritório, cozinha equipada MIELE, lavandaria e lugar de garagem. Apartamento T1+Office com 72,80 m2 de área bruta privativa (coberta); Lugar de Garagem; Área bruta total 88,80 m2 Referência: 24.001 H Composto por: - Hall de entrada - Office; - Lavabo social; - Sala "open space" com 32,40 m2, cozinha equipada com eletrodomésticos da MIELE, tampos e entre móveis em Silestone e lavandaria separada; - Quarto suite 15,60 m2 com Closet, mais banho suite com 4,65 m2; - Lugar de garagem para 1 carro. Vistas amplas e desafogadas! o Edifício WHITE by LGPlano é um exclusivo projeto imobiliário composto por 28 apartamentos de tipologias entre T1, T1+OFFICE, T2, T2+OFFICE e T3+OFFICE distribuídos por 4 pisos acima da cota da soleira e 2 pisos abaixo, para garagens e arrumos. Cuidadosamente projetados para lhe proporcionar todo o conforto e qualidade de vida necessários ao seu bem-estar, construímos apartamentos com áreas muito generosas e funcionais, com acabamentos modernos e de elevada qualidade, servidos por boas varandas e espaços “office”, permitindo assim, uma perfeita conexão entre a vida do dia a dia e o trabalho ou lazer. Edifício com fachada e janelas de alta eficiência térmica e acústica, possui paredes duplas, sendo a parede interior em bloco térmico, isolamento térmico, caixa de ar e parede exterior em tijolo face à vista de grande inércia térmica da “Vale da Gândara”, referência “Branco Alcácer”, zonas comuns com decoração personalizada, sala de condomínio, 2 estacionamentos na cave reservados e acessos para mobilidade reduzida. Apartamentos com porta de segurança, videoporteiro a cores, carpintaria lacada a branco com portas até ao teto, soalho em madeira multicamadas em Carvalho ou Afzélia, cozinhas equipadas MÍELE, banhos com "Porcelanosa", bomba de calor, ar condicionado MITSUBISHI, iluminação com focos LED, caixilharia minimalista cor Sable Noir com corte térmico, vidro duplo térmico e estores elétricos pelo exterior em alumínio perfilado com isolamento de poliuretano. O edifício localiza-se no gaveto da Rua António Fernando Almeida Pinto Tavares com a Rua Benjamim Jorge Moreira, na freguesia da Madalena, Vila Nova de Gaia. Tem na proximidade, supermercado Pingo Doce a 200 metros, Unidade de Saúde a 250 metros, “Jardim do Tempo” a 50 metros, farmácia a 300 metros, autocarros STCP (com ligação ao METRO) 901 Trindade (Porto)-Valadares (Gaia) e 906 Trindade (Porto) -Madalena (Gaia) a 150 metros, comboio a 650 metros, excelentes acessos à A44, A29, A1, VCI de Gaia, ponte da Arrábida e do Freixo e variado comércio e serviços a poucos minutos a pé. A Praia da Madalena fica a 2900 metros (medidos por estrada). A conclusão da construção está prevista para o segundo semestre de 2026. Contacte-nos para mais informações. WHITE by LGPlano Exclusive apartments
AMI: 10078
Ref. Externa: 24.001H
Id: 1340346
Inicie sessão para guardar este imóvel e aceder à sua lista de favoritos em qualquer dispositivo.
3 Quartos
3 WCs
Área bruta : 248 m²
Excelente T3 Novo, 4 varandas, garagem BOX 2 carros, Mafamude / Metro Condomínio privado com área circundante do prédio privada, de acesso exclusivo aos condóminos. METRO de Santo Ovídio. Area de habitação 163,80 m2, inclui 20,90 m2 de varandas. Espaçosa garagem com 39,20 m2 para 2 carros, sobrando muito espaço para arrumação. Area bruta total 203,00 m2. Localiza-se a: - 300 metros do METRO de Santo Ovídio; - 260 metros da paragem de STCP, carreira 10M, 905 e 907; - 200 metros de lar da terceira idade; - 350 metros do Pingo Doce; - 600 metros da Escola EB 2/3 Soares dos Reis; - 350 metros da RTP; - 1400 metros do Hospital Santos Silva; - É servido ainda por diversos comércios locais e vários serviços. Agende já a sua visita! Tem como principais pontos de qualidade / acabamentos: - Fachada revestida a capoto de 6 cm de espessura - Caixilharia de alumínio com rutura térmica - Vidros duplos térmicos - Estores elétricos em alumínio lacado com poliuretano - Sistema de ar condicionado nos quartos e sala - Bomba de calor - Pré instalação (negativo da fração até ao telhado) que permite a colocação de painéis solares ou painéis fotovoltaicos - Portas de alta segurança - Vídeo porteiro - Portão seccionado motorizado com painéis revestidos a poliuretano, com dois comandos no acesso à garagem coletiva do prédio - Garagem individual para 2 carros e espaço para arrumação. - Zonas ajardinadas - Pavimento em soalho de madeira flutuante de 15 mm de espessura - Paredes com acabamento estanhado e pintadas - Tetos em gesso cartonado, com isolamento acústico, pintados em branco, com focos embutidos, sancas com fitas de iluminação led - Carpintaria lacada em branco com portas até ao teto - Móveis de cozinha lacados em branco, com iluminação led, dobradiças com amortecedores da marca Blum, gavetões com sistema de amortecimento - Cozinhas equipadas com placa, forno, micro-ondas, combinado e máquina de louça da marca Siemens - Tampo dos móveis de cozinha em granito preto polido com 3 cm de espessura - Móveis da lavandaria com módulos lacados CASAS DE BANHO - Pavimento e paredes revestidos a material cerâmico da Margrés - Tetos em gesso cartonado hidrófugo, com isolamento acústico, pintado, com focos embutidos - Móveis suspensos, com gavetões lacados e sistema de amortecimento - Tampo dos móveis da casa de banho em compacto de quartzo com 2 cm de espessura com lavatório da marca Sanindusa - Espelho sobre o tampo do móvel da casa de banho - Louças suspensas em branco da marca Sanindusa - Base de chuveiro extraplana branca com resguardo fixo ou com porta de correr em vidro incolor
AMI: 10078
Ref. Externa: 24.009 CC
Id: 1334057
Inicie sessão para guardar este imóvel e aceder à sua lista de favoritos em qualquer dispositivo.
365.000 €
2 Quartos
2 WCs
Área bruta : 131 m²
Excelente T2 com 131, m2 de área bruta, lugar de garagem e arrecadação; Praia da Madalena. Inserido num prestigiado condomínio fechado com portaria 24 horas, duas piscinas exteriores, uma para adultos e outra para crianças, com bom e bem tratado relvado circundante, sala de festas / reuniões bem equipada, voltada para o relvado e piscinas com cozinha e casas de banho, piscina interior aquecida, ginásio, balneários, Squash, sauna e banho turco, sala de convívio com bilhar, ping-pong e matrecos. Tem estacionamento no interior e zona de lavagem de carros. O condomínio está a sofrer obras profundas de renovação, mas já foram pagas na sua totalidade pelo atual proprietário. Na envolvente tem fantásticas praias de bandeira azul e extensos percursos pedonais da orla marítima, que lhe proporcionarão uma saudável qualidade de vida. O edifício tem à porta transportes do STCP e UNIR, tem próximo supermercado Continente Bom Dia, alguns comércios e serviços esplanadas e restaurantes. O apartamento está em excelente estado de conservação, sendo que a cozinha e uma das casas de banho foram alteradas recentemente. O apartamento possui: - Porta de segurança, videoporteiro a cores e alarme; - Generoso hall de entrada e hall dos quartos com grande roupeiro embutido; - Boa sala comum com lareira e recuperador de calor; - Cozinha toda equipada e lavandaria separada; - 2 Quartos suites com roupeiros embutidos; - Carpintaria e soalho maciço em carvalho francês; - Os banhos possuem banheira e colunas de hidromassagem; - Aquecimento central completo; - Som ambiente em todas as divisões com regulador de volume; - Reóstatos para regulação da intensidade da luz e focos embutidos; - Caixilharia dupla; - Lugar de garagem e arrecadação; A sua localização junto às praias, a 5 minutos da marina da Afurada e a 10 minutos do centro histórico do Porto, é perfeita para viver com qualidade! O apartamento está devoluto e pronto a habitar, contacte-nos e visite já!
AMI: 10078
Ref. Externa: 25.006
Id: 1297343
Inicie sessão para guardar este imóvel e aceder à sua lista de favoritos em qualquer dispositivo.
620.000 €
Área bruta : 607 m²
Loja com ABC de 607m2, garagem, escritório, para comércio e serviços! Possui excelente frente de rua, 331 m2 de loja, cave, arrecadação, garagem e escritório. Imóvel sem licença de utilização, vendável ao abrigo "simplex". Para mais informações não hesite em contactar! IMORIGINAL, Lda. A nossa missão é a procura de um compromisso com a excelência, baseados numa rigorosa ética profissional e conhecimento do mercado imobiliário, com o único objetivo de melhor servir os nossos clientes e interessados. Com uma vertente da empresa vocacionada para a nova construção e remodelações de imóveis e sob a direção de profissionais com mais de 25 anos de experiência, sabemos que cada cliente é único, por isso teremos sempre uma proposta de valor acrescentado para lhe apresentar. Conte connosco para o acompanhar em todo o processo negocial, com um aconselhamento profissional e integro. IMORIGINAL, o seu parceiro de negócios!
AMI: 10078
Ref. Externa: 25.005
Id: 1277096
Inicie sessão para guardar este imóvel e aceder à sua lista de favoritos em qualquer dispositivo.
2 Quartos
2 WCs
Área bruta : 120 m²
Como novo, T2+1 todo Remodelado, varanda fechada, boa Garagem BOX Impecável, pronto habitar! Boas áreas. Varanda fechada a toda a frente da sala e cozinha; Cozinha nova toda equipada; 2 WC’s; Caixilharia nova, dupla com vidro duplo nos quartos, estores elétricos. Quarto interior com janela para a sala, excelente para escritório ou pequeno quarto. 4 roupeiros embutidos; Toda o apartamento com iluminação LED. Pavimento em flutuante AC5 sistema click. Garagem BOX para 1 carro e ainda com muito espaço para arrumação, com portão automático. Em Valadares, próximo Escola Básica de Valadares, Escola Secundária Dr. Joaquim G. Ferreira Alves e esquadra nova da PSP. Servido por vários comércios, serviços, transportes STCP e Estação da CP a 800 metros. Composto por: - Hall de entrada com roupeiro embutido; - Despensa; - Varanda fechada a toda a frente da sala e cozinha; - Boa sala; - Cozinha espaçosa, móveis novos de alto brilho, tampo em granito negro, equipada com placa, forno, exaustor, máquina de lavar louça e frigorífico combinado da TEKA. - Quarto interior; - Quartos com 1 e 2 roupeiros e janelas duplas com vidro duplo e estores elétricos; - Banho completo com base de duche grande com resguardo, móvel de lavatório com espelho com LED; - Casa de banho de serviço; - Garagem BOX para 1 carro e ainda com muito espaço para arrumação, com portão automático. - Pequena área de jardim na frente do prédio de uso exclusivo da fração. Visite já, não perca esta oportunidade!
AMI: 10078
Ref. Externa: 25.004
Id: 1208050
Inicie sessão para guardar este imóvel e aceder à sua lista de favoritos em qualquer dispositivo.
3 Quartos
3 WCs
Área bruta : 235 m²
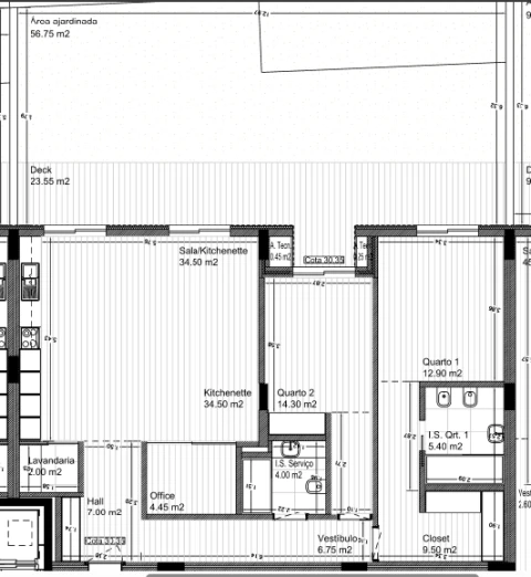
Edifício WHITE II by LGPlano - Praia de Valadares - Vila Nova de Gaia / Porto Exclusivo apartamento T3 Duplex + Office, na zona de Francelos. Com ótimas áreas e acabamentos "premium", grande sala comum com varanda de 11,80 m2 com vista mar, escritório contíguo à sala separado por portas envidraçadas com varanda, boa cozinha independente equipada com MIELE, lavandaria separada e varanda, 3 quartos (1 suite) no piso superior, 2 banhos completos (1 suite), 3 terraços e garagem BOX 2 carros. Fração T – HAB. 2.7 (VENDA DIRETA - somos os construtores) T3+Office DUPLEX, área bruta total de 235,80 m2; com 167,32 m2 de área coberta (ABP) e 34,73 m2 de varandas e terraços e garagem individual BOX para 2 carros, com 33,75 m2, com portão automático e eletricidade direta do apartamento. Vistas de mar! Orientação solar; Nascente / Poente; O apartamento é composto por; Piso inferior: - Hall de entrada, lavabo social, sala comum com 44,50 m2 com varanda de 11,80 m2 mais espaço “Office” com 8,60 m2 separado da sala por estrutura e portas envidraçadas, com varanda de 2,40m2 (se assim o pretender, poderá abdicar do espaço "office " e ampliar a área da sala para 53,10 m2), cozinha independente 13,75 m2 equipada MIELE, com ligação direta à sala e acesso pelo hall de entrada, lavandaria e varanda com 4,15 m2. Piso superior: - Quarto suíte, com uma área total de 21,30 m2 e acesso a terraço de 8,76 m2 orientado a poente com vista de mar, quartos orientados a nascente de 16,60 m2 e 13,75 m2, t os quartos com ótimos roupeiros e cada quarto com acesso a pequeno terraço, banho completo de apoio aos dois quartos, hall dos quartos com claraboia tipo "Velux". Edifício WHITE II by LGPlano O edifício WHITE II está situado a apenas 650 metros da praia, oferecendo um excelente equilíbrio entre a proximidade do mar e a tranquilidade residencial. Aqui poderá desfrutar de magníficas praias e dos extensos percursos pedonais da orla marítima, que lhe proporcionarão uma saudável qualidade de vida. Porque a vida não tem de ser monótona e aborrecida, o WHITE II sugere-lhe o dinamismo de uma vida ativa, de momentos e aventuras com o oceano em pano de fundo, proporcionando-lhe a criação de laços, memórias e uma harmoniosa união familiar. Este empreendimento será composto por 22 apartamentos de tipologias T0, T1+Office, T2+Office, T2 Duplex, T3 e T3+Office Duplex, distribuídos por 4 pisos, com áreas brutas compreendidas entre os 63 m2 e os 295 m2, sendo que alguns deles beneficiarão de terraços ou de um jardim com deck privado. Com um design moderno e diferenciado, o edifício oferece apartamentos projetados para potenciar o conforto de toda a família, com jardins privativos que permitem a construção da sua piscina, generosos terraços, espaços Office e opções em duplex, que promovem um ambiente tranquilo e relaxante, atendendo a diferentes necessidades e estilos de vida. Possui fachada com paredes duplas, sendo a parede exterior em tijolo face à vista da “Vale da Gândara”, referência “Branco Alcácer”, que garante uma elevada inércia térmica, excelente desempenho acústico e grande resistência ao fogo, além dos baixos custos de manutenção, zonas comuns com excelente decoração, caixilharia minimalista com corte térmico, vidro duplo térmico, sendo o vidro exterior laminado para maior segurança e estores elétricos pelo exterior em alumínio perfilado com isolamento de poliuretano, estacionamento na cave reservado e acessos para mobilidade reduzida. As áreas interiores são generosas, criadas num conceito de modernidade e funcionalidade, onde realçam os espaços ”Office” e os acabamentos, equipamentos e construção de qualidade “premium”. Destacam-se as cozinhas equipadas com eletrodomésticos da MIELE, ar condicionado MITSUBISHI, bomba de calor, portas interiores lacadas de altura igual ao pé direito da habitação, soalho LINKFLOOR KINGDOM e cerâmicas da Porcelanosa, louças sanitárias suspensas, na zona de duche tem um nicho iluminado com LED para colocar o gel de banho e champô, tetos falsos com iluminação LED, portas de segurança, videoporteiro a cores e alarme completo nos apartamentos de rés do chão. O Edifício WHITE2 by LGPlano promete ser um marco na região, oferecendo exclusividade, conforto e qualidade de vida. Venha conhecer e descubra o seu novo lar! Edifício WHITE II by LGPlano EXCLUSIVE APARTMENTS Siga-nos no Instagram – lgplano_ Observação: As imagens apresentadas são virtuais, exemplificativas do tipo de acabamentos que irão ser utilizados e foram criadas com base num apartamento T2+Office com jardim.
AMI: 10078
Ref. Externa: 25.001 T
Id: 1159503
Inicie sessão para guardar este imóvel e aceder à sua lista de favoritos em qualquer dispositivo.
3 Quartos
3 WCs
Área bruta : 251 m²
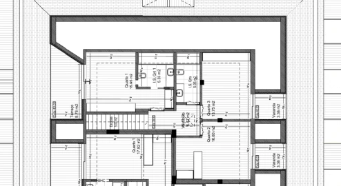
Edifício WHITE II by LGPlano - Praia de Valadares - Vila Nova de Gaia / Porto FRAÇAO P – HAB. 2.3 (VENDA DIRETA - somos os construtores). Na zona de Francelos, fabuloso apartamento T3+OFFICE DUPLEX com áreas muito generosas, evidenciando-se a grande sala comum com terraço de 11,80 m2, bom escritório contíguo a sala com varanda, separado da sala por portas envidraçadas, cozinha independente equipada MIELE, lavandaria separada, a zona social e a suite têm amplas vistas de mar! Vistas de mar, orientação solar a nascente, sul e poente! Ótimas áreas, construção e acabamentos de elevada qualidade. Garagem individual BOX para 2 carros; T3+OFFICE DUPLEX com área bruta total de 251,82 m2, sendo 168,15 m2 de área coberta (ABP), 42,67 m2 de varandas e terraços e garagem individual BOX para 2 carros, com 41,00 m2, com portão automático e eletricidade direta do apartamento. Ultimo andar! O apartamento é composto por: Piso inferior: - Sala comum com 44,50 m2 com duas varandas, uma de 11,80 m2 a poente e outra de 2,45 m2 a sul, o "Office" com 8,60 m2 é um espaço junto a sala separado por amplas portas envidraçadas, com varanda de 2,40 m2 a poente (se assim o pretender, poderá abdicar do espaço "office " e ampliar a área da sala para 53,10 m2), cozinha equipada MIELE e lavandaria independentes orientadas a sul, hall de entrada com 8,2 m2 e WC social. Piso superior: - Quarto suite com closet e acesso a terraço + varanda orientados a poente / sul com vista de mar, 2 quarto com roupeiro e acesso a varanda a nascente, com roupeiros embutidos, hall dos quartos com claraboia tipo “velux” e banho completo de apoio. Edifício WHITE II by LGPlano O edifício WHITE II está situado a apenas 650 metros da praia, oferecendo um excelente equilíbrio entre a proximidade do mar e a tranquilidade residencial. Aqui poderá desfrutar de magníficas praias e dos extensos percursos pedonais da orla marítima, que lhe proporcionarão uma saudável qualidade de vida. Porque a vida não tem de ser monótona e aborrecida, o WHITE II sugere-lhe o dinamismo de uma vida ativa, de momentos e aventuras com o oceano em pano de fundo, proporcionando-lhe a criação de laços, memórias e uma harmoniosa união familiar. Este empreendimento será composto por 22 apartamentos de tipologias T0, T1+Office, T2+Office, T2 Duplex, T3 e T3+Office Duplex, distribuídos por 4 pisos, com áreas brutas compreendidas entre os 63 m2 e os 295 m2, sendo que alguns deles beneficiarão de terraços ou de um jardim com deck privado. Com um design moderno e diferenciado, o edifício oferece apartamentos projetados para potenciar o conforto de toda a família, com jardins privativos que permitem a construção da sua piscina, generosos terraços, espaços Office e opções em duplex, que promovem um ambiente tranquilo e relaxante, atendendo a diferentes necessidades e estilos de vida. Possui fachada com paredes duplas, sendo a parede exterior em tijolo face à vista da “Vale da Gândara”, referência “Branco Alcácer”, que garante uma elevada inércia térmica, excelente desempenho acústico e grande resistência ao fogo, além dos baixos custos de manutenção, zonas comuns com excelente decoração, caixilharia minimalista com corte térmico, vidro duplo térmico, sendo o vidro exterior laminado para maior segurança e estores elétricos pelo exterior em alumínio perfilado com isolamento de poliuretano, estacionamento na cave reservado e acessos para mobilidade reduzida. As áreas interiores são generosas, criadas num conceito de modernidade e funcionalidade, onde realçam os espaços ”Office” e os acabamentos, equipamentos e construção de qualidade “premium”. Destacam-se as cozinhas equipadas com eletrodomésticos da MIELE, ar condicionado MITSUBISHI, bomba de calor, portas interiores lacadas de altura igual ao pé direito da habitação, soalho LINKFLOOR KINGDOM e cerâmicas da Porcelanosa, louças sanitárias suspensas, na zona de duche tem um nicho iluminado com LED para colocar o gel de banho e champô, tetos falsos com iluminação LED, portas de segurança, videoporteiro a cores e alarme completo nos apartamentos de rés do chão. O Edifício WHITE2 by LGPlano promete ser um marco na região, oferecendo exclusividade, conforto e qualidade de vida. Venha conhecer e descubra o seu novo lar! Edifício WHITE II by LGPlano EXCLUSIVE APARTMENTS Siga-nos no Instagram – lgplano_ Observação: As imagens apresentadas são virtuais, exemplificativas do tipo de acabamentos que irão ser utilizados e foram criadas com base num apartamento T2+Office com jardim. ...
AMI: 10078
Ref. Externa: 25.001 P
Id: 1159502
Inicie sessão para guardar este imóvel e aceder à sua lista de favoritos em qualquer dispositivo.
2 Quartos
3 WCs
Área bruta : 178 m²
Edifício WHITE II by LGPlano - Praia de Valadares - Vila Nova de Gaia / Porto Junto praias, na zona de Francelos; T2 Duplex vista mar, ótimas áreas, grande sala open space com ilha e varanda de 7,25 m2, 2 suites, terraços, garagem individual BOX 2 carros. Fração R – HAB. 2.5 (VENDA DIRETA - somos os construtores) Excelente apartamento T2 DUPLEX com área bruta total de 178,43 m2, 120,43 m2 de área coberta (ABP) e 24,09 m2 de varandas e terraços. Garagem individual BOX para 2 carros, com 33,75 m2, com portão automático e eletricidade direta do apartamento. Ultimo andar. Orientação solar: Nascente / Poente; O apartamento é composto por: Piso inferior: - Sala open-space com 40,80 m2 com varanda de 7,25 m2 a poente, cozinha equipada MIELE, com “ILHA”, hall de entrada 3,2 m2 com armário e WC social com 4,10 m2. Piso superior: - Dois quartos suites, um com a área de 20,97 m2 e acesso a terraço de 6,72 m2 orientado a nascente e outro com 19,42 m2 e acesso a terraço de 10,12 m2 a poente com vista de mar, com ótimos roupeiros, lavandaria com 3,77 m2, hall dos quartos com claraboia tipo “velux”. Edifício WHITE II by LGPlano O edifício WHITE II está situado a apenas 650 metros da praia, oferecendo um excelente equilíbrio entre a proximidade do mar e a tranquilidade residencial. Aqui poderá desfrutar de magníficas praias e dos extensos percursos pedonais da orla marítima, que lhe proporcionarão uma saudável qualidade de vida. Porque a vida não tem de ser monótona e aborrecida, o WHITE II sugere-lhe o dinamismo de uma vida ativa, de momentos e aventuras com o oceano em pano de fundo, proporcionando-lhe a criação de laços, memórias e uma harmoniosa união familiar. Este empreendimento será composto por 22 apartamentos de tipologias T0, T1+Office, T2+Office, T2 Duplex, T3 e T3+Office Duplex, distribuídos por 4 pisos, com áreas brutas compreendidas entre os 63 m2 e os 295 m2, sendo que alguns deles beneficiarão de terraços ou de um jardim com deck privado. Com um design moderno e diferenciado, o edifício oferece apartamentos projetados para potenciar o conforto de toda a família, com jardins privativos que permitem a construção da sua piscina, generosos terraços, espaços Office e opções em duplex, que promovem um ambiente tranquilo e relaxante, atendendo a diferentes necessidades e estilos de vida. Possui fachada com paredes duplas, sendo a parede exterior em tijolo face à vista da “Vale da Gândara”, referência “Branco Alcácer”, que garante uma elevada inércia térmica, excelente desempenho acústico e grande resistência ao fogo, além dos baixos custos de manutenção, zonas comuns com excelente decoração, caixilharia minimalista com corte térmico, vidro duplo térmico, sendo o vidro exterior laminado para maior segurança e estores elétricos pelo exterior em alumínio perfilado com isolamento de poliuretano, estacionamento na cave reservado e acessos para mobilidade reduzida. As áreas interiores são generosas, criadas num conceito de modernidade e funcionalidade, onde realçam os espaços ”Office” e os acabamentos, equipamentos e construção de qualidade “premium”. Destacam-se as cozinhas equipadas com eletrodomésticos da MIELE, ar condicionado MITSUBISHI, bomba de calor, portas interiores lacadas de altura igual ao pé direito da habitação, soalho LINKFLOOR KINGDOM e cerâmicas da Porcelanosa, louças sanitárias suspensas, na zona de duche tem um nicho iluminado com LED para colocar o produto de higiene, tetos falsos com iluminação LED, portas de segurança, videoporteiro a cores e alarme completo nos apartamentos de rés do chão. O Edifício WHITE2 by LGPlano promete ser um marco na região, oferecendo exclusividade, conforto e qualidade de vida. Venha conhecer e descubra o seu novo lar! Edifício WHITE II by LGPlano EXCLUSIVE APARTMENTS Siga-nos no Instagram – lgplano_ Observação: As imagens apresentadas são virtuais, exemplificativas do tipo de acabamentos que irão ser utilizados e foram criadas com base num apartamento T2+Office com jardim. ...
AMI: 10078
Ref. Externa: 25.001 R
Id: 1159501
Inicie sessão para guardar este imóvel e aceder à sua lista de favoritos em qualquer dispositivo.
2 Quartos
3 WCs
Área bruta : 175 m²
Edifício WHITE II by LGPlano - Praia de Valadares - Vila Nova de Gaia / Porto Na zona de Francelos, junto às praias. Excelente T2 Duplex, ótimas áreas e acabamentos, ampla sala / cozinha open space com ilha e boa varanda de 11,8 m2, lavabo social, lavandaria, 2 suites com terraço, closet, garagem individual BOX para 2 carros; FRAÇAO Q – HAB. 2.4 (VENDA DIRETA - somos os construtores); Excelente T2 DUPLEX com área bruta total de 175,29 m2, sendo 115,46 m2 de área coberta (ABP) e 26,08 m2 de varandas e terraços, garagem individual BOX para 2 carros, com 33,75 m2, com portão automático e eletricidade direta do apartamento. Ultimo andar! Vistas de mar! Orientação solar: Nascente / Poente; O apartamento é composto por: Piso inferior: - Sala open-space com 45,00 m2 com varanda de 11,80 m2 a poente, cozinha equipada MIELE, com “ILHA”, WC social com 2,00 m2. Piso superior: - Dois quartos suites, um com a área de 22,67 m2 e acesso a terraço de 10,12 m2 orientado a poente com vista de mar e outro com 16,26 m2 e acesso a varanda a nascente, com ótimos roupeiros, hall dos quartos com claraboia tipo “velux”. Edifício WHITE II by LGPlano: O edifício WHITE II está situado a apenas 650 metros da praia, oferecendo um excelente equilíbrio entre a proximidade do mar e a tranquilidade residencial. Aqui poderá desfrutar de magníficas praias e dos extensos percursos pedonais da orla marítima, que lhe proporcionarão uma saudável qualidade de vida. Porque a vida não tem de ser monótona e aborrecida, o WHITE II sugere-lhe o dinamismo de uma vida ativa, de momentos e aventuras com o oceano em pano de fundo, proporcionando-lhe a criação de laços, memórias e uma harmoniosa união familiar. Este empreendimento será composto por 22 apartamentos de tipologias T0, T1+Office, T2+Office, T2 Duplex, T3 e T3+Office Duplex, distribuídos por 4 pisos, com áreas brutas compreendidas entre os 63 m2 e os 295 m2, sendo que alguns deles beneficiarão de terraços ou de um jardim com deck privado. Com um design moderno e diferenciado, o edifício oferece apartamentos projetados para potenciar o conforto de toda a família, com jardins privativos que permitem a construção da sua piscina, generosos terraços, espaços Office e opções em duplex, que promovem um ambiente tranquilo e relaxante, atendendo a diferentes necessidades e estilos de vida. Possui fachada com paredes duplas, sendo a parede exterior em tijolo face à vista da “Vale da Gândara”, referência “Branco Alcácer”, que garante uma elevada inércia térmica, excelente desempenho acústico e grande resistência ao fogo, além dos baixos custos de manutenção, zonas comuns com excelente decoração, caixilharia minimalista com corte térmico, vidro duplo térmico, sendo o vidro exterior laminado para maior segurança e estores elétricos pelo exterior em alumínio perfilado com isolamento de poliuretano, estacionamento na cave reservado e acessos para mobilidade reduzida. As áreas interiores são generosas, criadas num conceito de modernidade e funcionalidade, onde realçam os espaços ”Office” e os acabamentos, equipamentos e construção de qualidade “premium”. Destacam-se as cozinhas equipadas com eletrodomésticos da MIELE, ar condicionado MITSUBISHI, bomba de calor, portas interiores lacadas de altura igual ao pé direito da habitação, soalho LINKFLOOR KINGDOM e cerâmicas da Porcelanosa, louças sanitárias suspensas, na zona de duche tem um nicho iluminado com LED para colocar o gel de banho e champô, tetos falsos com iluminação LED, portas de segurança, videoporteiro a cores e alarme completo nos apartamentos de rés do chão. O Edifício WHITE2 by LGPlano promete ser um marco na região, oferecendo exclusividade, conforto e qualidade de vida. Venha conhecer e descubra o seu novo lar! Edifício WHITE II by LGPlano EXCLUSIVE APARTMENTS Siga-nos no Instagram – lgplano_ Observação: As imagens apresentadas são virtuais, exemplificativas do tipo de acabamentos que irão ser utilizados e foram criadas com base num apartamento T2+Office com jardim. ...
AMI: 10078
Ref. Externa: 25.001 Q
Id: 1159497
Inicie sessão para guardar este imóvel e aceder à sua lista de favoritos em qualquer dispositivo.
3 Quartos
3 WCs
Área bruta : 188 m²
Edifício WHITE II by LGPlano - Praia de Valadares - Vila Nova de Gaia / Porto Fração L – HAB. 1.5 (VENDA DIRETA - somos os construtores); Na zona de Francelos, T3 junto às praias, ótima sala com varanda grande com vista de mar, 3 quartos sendo 2 deles suíte, 4 grandes roupeiros, 3 casas de banho completas, 4 varandas e garagem individual BOX para 2 carros. Vistas desafogadas, com vista de mar! Excelente apartamento T3 com área bruta total de 188,44 m2, sendo 132,30 m2 de área coberta (ABP), mais varandas com um total de 22,84 m2 e garagem individual BOX para 2 carros, com 33,30 m2, com portão automático e eletricidade direta do apartamento. Edifício WHITE II by LGPlano O edifício WHITE II está situado a apenas 650 metros da praia, oferecendo um excelente equilíbrio entre a proximidade do mar e a tranquilidade residencial. Aqui poderá desfrutar de magníficas praias e dos extensos percursos pedonais da orla marítima, que lhe proporcionarão uma saudável qualidade de vida. Porque a vida não tem de ser monótona e aborrecida, o WHITE II sugere-lhe o dinamismo de uma vida ativa, de momentos e aventuras com o oceano em pano de fundo, proporcionando-lhe a criação de laços, memórias e uma harmoniosa união familiar. Este empreendimento será composto por 22 apartamentos de tipologias T0, T1+Office, T2+Office, T2 Duplex, T3 e T3+Office Duplex, distribuídos por 4 pisos, com áreas brutas compreendidas entre os 63 m2 e os 295 m2, sendo que alguns deles beneficiarão de terraços ou de um jardim com deck privado. Com um design moderno e diferenciado, o edifício oferece apartamentos projetados para potenciar o conforto de toda a família, com jardins privativos que permitem a construção da sua piscina, generosos terraços, espaços Office e opções em duplex, que promovem um ambiente tranquilo e relaxante, atendendo a diferentes necessidades e estilos de vida. Possui fachada com paredes duplas, sendo a parede exterior em tijolo face à vista da “Vale da Gândara”, referência “Branco Alcácer”, que garante uma elevada inércia térmica, excelente desempenho acústico e grande resistência ao fogo, além dos baixos custos de manutenção, zonas comuns com excelente decoração, caixilharia minimalista com corte térmico, vidro duplo térmico, sendo o vidro exterior laminado para maior segurança e estores elétricos pelo exterior em alumínio perfilado com isolamento de poliuretano, estacionamento na cave reservado e acessos para mobilidade reduzida. As áreas interiores são generosas, criadas num conceito de modernidade e funcionalidade, onde realçam os espaços ”Office” e os acabamentos, equipamentos e construção de qualidade “premium”. Destacam-se as cozinhas equipadas com eletrodomésticos da MIELE, ar condicionado MITSUBISHI, bomba de calor, portas interiores lacadas de altura igual ao pé direito da habitação, soalho LINKFLOOR KINGDOM e cerâmicas da Porcelanosa, louças sanitárias suspensas, na zona de duche tem um nicho iluminado com LED para colocar o gel de banho e champô, tetos falsos com iluminação LED, portas de segurança, videoporteiro a cores e alarme completo nos apartamentos de rés do chão. O Edifício WHITE2 by LGPlano promete ser um marco na região, oferecendo exclusividade, conforto e qualidade de vida. Venha conhecer e descubra o seu novo lar! Edifício WHITE II by LGPlano EXCLUSIVE APARTMENTS Siga-nos no Instagram – lgplano_ Observação: As imagens apresentadas são virtuais, exemplificativas do tipo de acabamentos que irão ser utilizados e foram criadas com base num apartamento T2+Office com jardim. ...
AMI: 10078
Ref. Externa: 25.001 L
Id: 1159495
Inicie sessão para guardar este imóvel e aceder à sua lista de favoritos em qualquer dispositivo.
2 Quartos
2 WCs
Área bruta : 229 m²
Edifício WHITE II by LGPlano - Praia de Valadares - Vila Nova de Gaia / Porto FRAÇAO D Hab 0.4 - T2 + 1 (Office) (VENDA DIRETA - somos os construtores); Na zona de Francelos, T2+Office com 114, m2 de área coberta, mais 81,00 m2 de jardim e deck, boa sala, suite com closet, todas as divisões com acesso direto ao jardim, garagem BOX para 2 carros. Apartamento T2+Office com área bruta total de 229,85 m2, sendo 114,65 m2 de área coberta (ABP), jardim / deck com 81,00 m2, com acesso por todas as divisões do apartamento e garagem individual BOX com 33,30m2, com portão automático e eletricidade direta do apartamento. Na área ajardinada há possibilidade de contruir piscina. Edifício WHITE II by LGPlano O edifício WHITE II está situado a apenas 650 metros da praia, oferecendo um excelente equilíbrio entre a proximidade do mar e a tranquilidade residencial. Aqui poderá desfrutar de magníficas praias e dos extensos percursos pedonais da orla marítima, que lhe proporcionarão uma saudável qualidade de vida. Porque a vida não tem de ser monótona e aborrecida, o WHITE II sugere-lhe o dinamismo de uma vida ativa, de momentos e aventuras com o oceano em pano de fundo, proporcionando-lhe a criação de laços, memórias e uma harmoniosa união familiar. Este empreendimento será composto por 22 apartamentos de tipologias T0, T1+Office, T2+Office, T2 Duplex, T3 e T3+Office Duplex, distribuídos por 4 pisos, com áreas brutas compreendidas entre os 63 m2 e os 295 m2, sendo que alguns deles beneficiarão de terraços ou de um jardim com deck privado. Com um design moderno e diferenciado, o edifício oferece apartamentos projetados para potenciar o conforto de toda a família, com jardins privativos que permitem a construção da sua piscina, generosos terraços, espaços Office e opções em duplex, que promovem um ambiente tranquilo e relaxante, atendendo a diferentes necessidades e estilos de vida. Possui fachada com paredes duplas, sendo a parede exterior em tijolo face à vista da “Vale da Gândara”, referência “Branco Alcácer”, que garante uma elevada inércia térmica, excelente desempenho acústico e grande resistência ao fogo, além dos baixos custos de manutenção, zonas comuns com excelente decoração, caixilharia minimalista com corte térmico, vidro duplo térmico, sendo o vidro exterior laminado para maior segurança e estores elétricos pelo exterior em alumínio perfilado com isolamento de poliuretano, estacionamento na cave reservado e acessos para mobilidade reduzida. As áreas interiores são generosas, criadas num conceito de modernidade e funcionalidade, onde realçam os espaços ”Office” e os acabamentos, equipamentos e construção de qualidade “premium”. Destacam-se as cozinhas equipadas com eletrodomésticos da MIELE, ar condicionado MITSUBISHI, bomba de calor, portas interiores lacadas de altura igual ao pé direito da habitação, soalho LINKFLOOR KINGDOM e cerâmicas da Porcelanosa, louças sanitárias suspensas, na zona de duche tem um nicho iluminado com LED para colocar o gel de banho e champô, tetos falsos com iluminação LED, portas de segurança, videoporteiro a cores e alarme completo nos apartamentos de rés do chão. O Edifício WHITE2 by LGPlano promete ser um marco na região, oferecendo exclusividade, conforto e qualidade de vida. Venha conhecer e descubra o seu novo lar! Edifício WHITE II by LGPlano EXCLUSIVE APARTMENTS Siga-nos no Instagram – lgplano_ Observação: As imagens apresentadas são virtuais mas referentes ao apartamento e exemplificativas do tipo de acabamentos que irão ser utilizados. ...
AMI: 10078
Ref. Externa: 25.001 D
Id: 1159493
Inicie sessão para guardar este imóvel e aceder à sua lista de favoritos em qualquer dispositivo.
2 Quartos
2 WCs
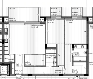
Área bruta : 144 m²
Edifício WHITE II by LGPlano - Praia de Valadares - Vila Nova de Gaia / Porto Na zona de Francelos, T2+Office, ótimas áreas e acabamentos, sala com varanda de 11,80 m2, suite com closet, quartos com varanda. Lugar de Garagem; FRAÇAO K – HAB. 1.4 (VENDA DIRETA - somos os construtores); Apartamento T2+Office com excelentes áreas e qualidade de construção / acabamentos, conforto e funcionalidade. T2+Office com área bruta total de 144,95 m2, sendo 113,70 m2 de área coberta (ABP) e três varandas com um total de 17,45 m2, para a sala e para os dois quartos, lugar de garagem na cave com 13,80 m2. O apartamento possui sala em open-space com 30,45 m2 e varanda de 11,80 m2 mais espaço “Office” com 5,70 m2 separado da sala por portas de correr envidraçadas, hall de entrada com roupeiro embutido e circulação com um total de 12,25 m2, quarto suite com closet, com uma área total de 22,90 m2, quarto com roupeiro 16,45 m2 e banho completo de apoio ao quarto e serviço à casa, ambos os quartos têm varanda. Orientação solar: Poente. Vista de mar. Edifício WHITE II by LGPlano: O edifício WHITE II está situado a apenas 650 metros da praia, oferecendo um excelente equilíbrio entre a proximidade do mar e a tranquilidade residencial. Aqui poderá desfrutar de magníficas praias e dos extensos percursos pedonais da orla marítima, que lhe proporcionarão uma saudável qualidade de vida. Porque a vida não tem de ser monótona e aborrecida, o WHITE II sugere-lhe o dinamismo de uma vida ativa, de momentos e aventuras com o oceano em pano de fundo, proporcionando-lhe a criação de laços, memórias e uma harmoniosa união familiar. Este empreendimento será composto por 22 apartamentos de tipologias T0, T1+Office, T2+Office, T2 Duplex, T3 e T3+Office Duplex, distribuídos por 4 pisos, com áreas brutas compreendidas entre os 63 m2 e os 295 m2, sendo que alguns deles beneficiarão de terraços ou de um jardim com deck privado. Com um design moderno e diferenciado, o edifício oferece apartamentos projetados para potenciar o conforto de toda a família, com jardins privativos que permitem a construção da sua piscina, generosos terraços, espaços Office e opções em duplex, que promovem um ambiente tranquilo e relaxante, atendendo a diferentes necessidades e estilos de vida. Possui fachada com paredes duplas, sendo a parede exterior em tijolo face à vista da “Vale da Gândara”, referência “Branco Alcácer”, que garante uma elevada inércia térmica, excelente desempenho acústico e grande resistência ao fogo, além dos baixos custos de manutenção, zonas comuns com excelente decoração, caixilharia minimalista com corte térmico, vidro duplo térmico, sendo o vidro exterior laminado para maior segurança e estores elétricos pelo exterior em alumínio perfilado com isolamento de poliuretano, estacionamento na cave reservado e acessos para mobilidade reduzida. As áreas interiores são generosas, criadas num conceito de modernidade e funcionalidade, onde realçam os espaços ”Office” e os acabamentos, equipamentos e construção de qualidade “premium”. Destacam-se as cozinhas equipadas com eletrodomésticos da MIELE, ar condicionado MITSUBISHI, bomba de calor, portas interiores lacadas de altura igual ao pé direito da habitação, soalho LINKFLOOR KINGDOM e cerâmicas da Porcelanosa, louças sanitárias suspensas, na zona de duche tem um nicho iluminado com LED para colocar o gel de banho e champô, tetos falsos com iluminação LED, portas de segurança, videoporteiro a cores e alarme completo nos apartamentos de rés do chão. O Edifício WHITE2 by LGPlano promete ser um marco na região, oferecendo exclusividade, conforto e qualidade de vida. Venha conhecer e descubra o seu novo lar! Edifício WHITE II by LGPlano EXCLUSIVE APARTMENTS Siga-nos no Instagram – lgplano_ Observação: As imagens apresentadas são virtuais, exemplificativas do tipo de acabamentos que irão ser utilizados e foram criadas com base num apartamento T2+Office com jardim. ...
AMI: 10078
Ref. Externa: 25.001 K
Id: 1159491
Inicie sessão para guardar este imóvel e aceder à sua lista de favoritos em qualquer dispositivo.
2 Quartos
2 WCs
Área bruta : 144 m²
Edifício WHITE II by LGPlano - Praia de Valadares - Vila Nova de Gaia / Porto Na zona de Francelos, junto praias. T2+Office, ótimas áreas e acabamentos, sala com varanda de 11,80 m2, suite com closet, Lugar de Garagem; FRAÇAO J – HAB. 1.3 (VENDA DIRETA - somos os construtores); Apartamento T2+Office com excelentes áreas e qualidade de construção / acabamentos. T2+Office com área bruta total de 144,95 m2, sendo 113,70 m2 de área coberta (ABP) e três varandas com um total de 17,45 m2, para a sala e para os dois quartos, lugar de garagem na cave com 13,80 m2. Orientação solar: Poente. O apartamento possui sala em open-space com 30,45 m2 e varanda de 11,80 m2 mais espaço “Office” com 5,70 m2 separado da sala por portas de correr envidraçadas, hall de entrada com roupeiro embutido e circulação com um total de 12,25 m2, quarto suite com closet, com uma área total de 22,90 m2, quarto com roupeiro 16,45 m2 e banho completo de apoio ao quarto e serviço à casa, ambos os quartos têm varanda. Edifício WHITE II by LGPlano: O edifício WHITE II está situado a apenas 650 metros da praia, oferecendo um excelente equilíbrio entre a proximidade do mar e a tranquilidade residencial. Aqui poderá desfrutar de magníficas praias e dos extensos percursos pedonais da orla marítima, que lhe proporcionarão uma saudável qualidade de vida. Porque a vida não tem de ser monótona e aborrecida, o WHITE II sugere-lhe o dinamismo de uma vida ativa, de momentos e aventuras com o oceano em pano de fundo, proporcionando-lhe a criação de laços, memórias e uma harmoniosa união familiar. Este empreendimento será composto por 22 apartamentos de tipologias T0, T1+Office, T2+Office, T2 Duplex, T3 e T3+Office Duplex, distribuídos por 4 pisos, com áreas brutas compreendidas entre os 63 m2 e os 295 m2, sendo que alguns deles beneficiarão de terraços ou de um jardim com deck privado. Com um design moderno e diferenciado, o edifício oferece apartamentos projetados para potenciar o conforto de toda a família, com jardins privativos que permitem a construção da sua piscina, generosos terraços, espaços Office e opções em duplex, que promovem um ambiente tranquilo e relaxante, atendendo a diferentes necessidades e estilos de vida. Possui fachada com paredes duplas, sendo a parede exterior em tijolo face à vista da “Vale da Gândara”, referência “Branco Alcácer”, que garante uma elevada inércia térmica, excelente desempenho acústico e grande resistência ao fogo, além dos baixos custos de manutenção, zonas comuns com excelente decoração, caixilharia minimalista com corte térmico, vidro duplo térmico, sendo o vidro exterior laminado para maior segurança e estores elétricos pelo exterior em alumínio perfilado com isolamento de poliuretano, estacionamento na cave reservado e acessos para mobilidade reduzida. As áreas interiores são generosas, criadas num conceito de modernidade e funcionalidade, onde realçam os espaços ”Office” e os acabamentos, equipamentos e construção de qualidade “premium”. Destacam-se as cozinhas equipadas com eletrodomésticos da MIELE, ar condicionado MITSUBISHI, bomba de calor, portas interiores lacadas de altura igual ao pé direito da habitação, soalho LINKFLOOR KINGDOM e cerâmicas da Porcelanosa, louças sanitárias suspensas, na zona de duche tem um nicho iluminado com LED para colocar o gel de banho e champô, tetos falsos com iluminação LED, portas de segurança, videoporteiro a cores e alarme completo nos apartamentos de rés do chão. O Edifício WHITE2 by LGPlano promete ser um marco na região, oferecendo exclusividade, conforto e qualidade de vida. Venha conhecer e descubra o seu novo lar! Edifício WHITE II by LGPlano EXCLUSIVE APARTMENTS Siga-nos no Instagram – lgplano_ Observação: As imagens apresentadas são virtuais, exemplificativas do tipo de acabamentos que irão ser utilizados e foram criadas com base num apartamento T2+Office com jardim. ...
AMI: 10078
Ref. Externa: 25.001 J
Id: 1159489
Inicie sessão para guardar este imóvel e aceder à sua lista de favoritos em qualquer dispositivo.
3 Quartos
3 WCs
Área bruta : 295 m²
Edifício WHITE II by LGPlano - Praia de Valadares - Vila Nova de Gaia / Porto (VENDA DIRETA - somos os construtores); Fração E – HAB. 0.5 Magnifico apartamento T3, possui jardim e deck com área de 108,05 m2, com a possibilidade de construir piscina. Sobressai uma grande sala / cozinha open space, 3 quartos sendo dois suite, 3 casas de banho completas (2 suite), fantásticos roupeiros embutidos e uma espaçosa garagem para 3 carros. Apartamento T3 com área bruta total de 295,20 m2, sendo 138,60 m2 de área coberta (ABP), jardim / deck com 108,05 m2, varanda com 5,35 m2 com acesso por um quarto e pela sala / cozinha e garagem individual BOX com 43,12 m2, com portão automático e eletricidade direta do apartamento. Edifício WHITE II by LGPlano O edifício WHITE II está situado a apenas 650 metros da praia, oferecendo um excelente equilíbrio entre a proximidade do mar e a tranquilidade residencial. Aqui poderá desfrutar de magníficas praias e dos extensos percursos pedonais da orla marítima, que lhe proporcionarão uma saudável qualidade de vida. Porque a vida não tem de ser monótona e aborrecida, o WHITE II sugere-lhe o dinamismo de uma vida ativa, de momentos e aventuras com o oceano em pano de fundo, proporcionando-lhe a criação de laços, memórias e uma harmoniosa união familiar. Este empreendimento será composto por 22 apartamentos de tipologias T0, T1+Office, T2+Office, T2 Duplex, T3 e T3+Office Duplex, distribuídos por 4 pisos, com áreas brutas compreendidas entre os 63 m2 e os 295 m2, sendo que alguns deles beneficiarão de terraços ou de um jardim com deck privado. Com um design moderno e diferenciado, o edifício oferece apartamentos projetados para potenciar o conforto de toda a família, com jardins privativos que permitem a construção da sua piscina, generosos terraços, espaços Office e opções em duplex, que promovem um ambiente tranquilo e relaxante, atendendo a diferentes necessidades e estilos de vida. Possui fachada com paredes duplas, sendo a parede exterior em tijolo face à vista da “Vale da Gândara”, referência “Branco Alcácer”, que garante uma elevada inércia térmica, excelente desempenho acústico e grande resistência ao fogo, além dos baixos custos de manutenção, zonas comuns com excelente decoração, caixilharia minimalista com corte térmico, vidro duplo térmico, sendo o vidro exterior laminado para maior segurança e estores elétricos pelo exterior em alumínio perfilado com isolamento de poliuretano, estacionamento na cave reservado e acessos para mobilidade reduzida. As áreas interiores são generosas, criadas num conceito de modernidade e funcionalidade, onde realçam os espaços ”Office” e os acabamentos, equipamentos e construção de qualidade “premium”. Destacam-se as cozinhas equipadas com eletrodomésticos da MIELE, ar condicionado MITSUBISHI, bomba de calor, portas interiores lacadas de altura igual ao pé direito da habitação, soalho LINKFLOOR KINGDOM e cerâmicas da Porcelanosa, louças sanitárias suspensas, na zona de duche tem um nicho iluminado com LED para colocar o gel de banho e champô, tetos falsos com iluminação LED, portas de segurança, videoporteiro a cores e alarme completo nos apartamentos de rés do chão. O Edifício WHITE2 by LGPlano promete ser um marco na região, oferecendo exclusividade, conforto e qualidade de vida. Venha conhecer e descubra o seu novo lar! Edifício WHITE II by LGPlano EXCLUSIVE APARTMENTS Siga-nos no Instagram – lgplano_ Observação: As imagens apresentadas são virtuais, exemplificativas do tipo de acabamentos que irão ser utilizados e foram criadas com base num apartamento T2+Office com jardim. ...
AMI: 10078
Ref. Externa: 25.001 E
Id: 1159487
Inicie sessão para guardar este imóvel e aceder à sua lista de favoritos em qualquer dispositivo.
2 Quartos
2 WCs
Área bruta : 110 m²
Edifício WHITE II by LGPlano - Praia de Valadares - Vila Nova de Gaia / Porto FRAÇAO O – HAB. 2.2 (VENDA DIRETA - somos os construtores). Na zona de Francelos, T2 com excelente sala de 38,5 m2, varandas com vistas de mar orientadas a sul, suite (2 banhos completos) e lugar de garagem! Apartamento T2 com área bruta total de 110,02 m2, sendo 86,70 m2 de área coberta (ABP), varandas com um total de 9,70 m2 e Lugar de garagem na cave. com 13,80 m2 Orientação solar: Nascente / Sul. Edifício WHITE II by LGPlano O edifício WHITE II está situado a apenas 650 metros da praia, oferecendo um excelente equilíbrio entre a proximidade do mar e a tranquilidade residencial. Aqui poderá desfrutar de magníficas praias e dos extensos percursos pedonais da orla marítima, que lhe proporcionarão uma saudável qualidade de vida. Porque a vida não tem de ser monótona e aborrecida, o WHITE II sugere-lhe o dinamismo de uma vida ativa, de momentos e aventuras com o oceano em pano de fundo, proporcionando-lhe a criação de laços, memórias e uma harmoniosa união familiar. Este empreendimento será composto por 22 apartamentos de tipologias T0, T1+Office, T2+Office, T2 Duplex, T3 e T3+Office Duplex, distribuídos por 4 pisos, com áreas brutas compreendidas entre os 63 m2 e os 295 m2, sendo que alguns deles beneficiarão de terraços ou de um jardim com deck privado. Com um design moderno e diferenciado, o edifício oferece apartamentos projetados para potenciar o conforto de toda a família, com jardins privativos que permitem a construção da sua piscina, generosos terraços, espaços Office e opções em duplex, que promovem um ambiente tranquilo e relaxante, atendendo a diferentes necessidades e estilos de vida. Possui fachada com paredes duplas, sendo a parede exterior em tijolo face à vista da “Vale da Gândara”, referência “Branco Alcácer”, que garante uma elevada inércia térmica, excelente desempenho acústico e grande resistência ao fogo, além dos baixos custos de manutenção, zonas comuns com excelente decoração, caixilharia minimalista com corte térmico, vidro duplo térmico, sendo o vidro exterior laminado para maior segurança e estores elétricos pelo exterior em alumínio perfilado com isolamento de poliuretano, estacionamento na cave reservado e acessos para mobilidade reduzida. As áreas interiores são generosas, criadas num conceito de modernidade e funcionalidade, onde realçam os espaços ”Office” e os acabamentos, equipamentos e construção de qualidade “premium”. Destacam-se as cozinhas equipadas com eletrodomésticos da MIELE, ar condicionado MITSUBISHI, bomba de calor, portas interiores lacadas de altura igual ao pé direito da habitação, soalho LINKFLOOR KINGDOM e cerâmicas da Porcelanosa, louças sanitárias suspensas, na zona de duche tem um nicho iluminado com LED para colocar o gel de banho e champô, tetos falsos com iluminação LED, portas de segurança, videoporteiro a cores e alarme completo nos apartamentos de rés do chão. O Edifício WHITE2 by LGPlano promete ser um marco na região, oferecendo exclusividade, conforto e qualidade de vida. Venha conhecer e descubra o seu novo lar! Edifício WHITE II by LGPlano EXCLUSIVE APARTMENTS Siga-nos no Instagram – lgplano_ Observação: As imagens apresentadas são virtuais, exemplificativas do tipo de acabamentos que irão ser utilizados e foram criadas com base num apartamento T2+Office com jardim. ...
AMI: 10078
Ref. Externa: 25.001 O
Id: 1159484
Inicie sessão para guardar este imóvel e aceder à sua lista de favoritos em qualquer dispositivo.
2 Quartos
2 WCs
Área bruta : 120 m²
Edifício WHITE II by LGPlano - Praia de Valadares - Vila Nova de Gaia / Porto FRAÇAO O – HAB. 2.8 (VENDA DIRETA - somos os construtores) Apartamento T2 com uma área bruta total de 120,08 m2, tendo 96,75 m2 de área coberta e varandas com um total de 10,25 m2 e lugar de garagem na cave com 13,8 m2. Possui uma espaçosa sala / cozinha em open space com duas varandas, hall de entrada com armário, quarto suite com roupeiro, espaçosa casa de banho e acesso a uma varanda, quarto com roupeiro e acesso a varanda. banho completo de apoio ao quarto e serviço à casa. Orientação solar: Nascente (sala e suite) / Norte (um quarto). Edifício WHITE II by LGPlano O edifício WHITE II está situado a apenas 650 metros da praia, oferecendo um excelente equilíbrio entre a proximidade do mar e a tranquilidade residencial. Aqui poderá desfrutar de magníficas praias e dos extensos percursos pedonais da orla marítima, que lhe proporcionarão uma saudável qualidade de vida. Porque a vida não tem de ser monótona e aborrecida, o WHITE II sugere-lhe o dinamismo de uma vida ativa, de momentos e aventuras com o oceano em pano de fundo, proporcionando-lhe a criação de laços, memórias e uma harmoniosa união familiar. Este empreendimento será composto por 22 apartamentos de tipologias T0, T1+Office, T2+Office, T2 Duplex, T3 e T3+Office Duplex, distribuídos por 4 pisos, com áreas brutas compreendidas entre os 63 m2 e os 295 m2, sendo que alguns deles beneficiarão de terraços ou de um jardim com deck privado. Com um design moderno e diferenciado, o edifício oferece apartamentos projetados para potenciar o conforto de toda a família, com jardins privativos que permitem a construção da sua piscina, generosos terraços, espaços Office e opções em duplex, que promovem um ambiente tranquilo e relaxante, atendendo a diferentes necessidades e estilos de vida. Possui fachada com paredes duplas, sendo a parede exterior em tijolo face à vista da “Vale da Gândara”, referência “Branco Alcácer”, que garante uma elevada inércia térmica, excelente desempenho acústico e grande resistência ao fogo, além dos baixos custos de manutenção, zonas comuns com excelente decoração, caixilharia minimalista com corte térmico, vidro duplo térmico, sendo o vidro exterior laminado para maior segurança e estores elétricos pelo exterior em alumínio perfilado com isolamento de poliuretano, estacionamento na cave reservado e acessos para mobilidade reduzida. As áreas interiores são generosas, criadas num conceito de modernidade e funcionalidade, onde realçam os espaços ”Office” e os acabamentos, equipamentos e construção de qualidade “premium”. Destacam-se as cozinhas equipadas com eletrodomésticos da MIELE, ar condicionado MITSUBISHI, bomba de calor, portas interiores lacadas de altura igual ao pé direito da habitação, soalho LINKFLOOR KINGDOM e cerâmicas da Porcelanosa, louças sanitárias suspensas, na zona de duche tem um nicho iluminado com LED para colocar o gel de banho e champô, tetos falsos com iluminação LED, portas de segurança, videoporteiro a cores e alarme completo nos apartamentos de rés do chão. O Edifício WHITE2 by LGPlano promete ser um marco na região, oferecendo exclusividade, conforto e qualidade de vida. Venha conhecer e descubra o seu novo lar! Edifício WHITE II by LGPlano EXCLUSIVE APARTMENTS Siga-nos no Instagram – lgplano_ Observação: As imagens apresentadas são virtuais, exemplificativas do tipo de acabamentos que irão ser utilizados e foram criadas com base num apartamento T2+Office com jardim.
AMI: 10078
Ref. Externa: 25.001 U
Id: 1159482
Inicie sessão para guardar este imóvel e aceder à sua lista de favoritos em qualquer dispositivo.
2 Quartos
2 WCs
Área bruta : 103 m²
Apartamento T2 com terraço e lugar de garagem; junto ao Metro. Sala e quartos com acesso ao terraço. Duas casas de banho. Armário no hall do quartos com 3,83 metros lineares; Lugar de garagem Principais características dos acabamentos Painéis Solares Elevador elétrico Porta de segurança Videoporteiro a cores Tetos falsos com focos de LED embutidos em todas as divisões Carpintaria em madeira lacada, portas de 2,4 m de altura Móveis de cozinha termolaminados em cor branca ou amadeirada Tampo em granito-Angola Eletrodomésticos TEKA 8 – placa, forno, micro-ondas, frigorífico combinado e máquina de lavar louça. WC’ s com som ambiente, cerâmica retificada e louças e móveis de casas de banho suspensos Estores elétricos com comando junto à porta Caixilharia em alumínio com corte térmico e vidro duplo Peitoris interiores das janelas em mármore Excelente localização junto ao METRO, transportes públicos STCP, todo o comércio e erviço, escolas e infantários. Última fração para venda. Para mais informações, não hesite em contactar-nos.
AMI: 10078
Ref. Externa: 24.032
Id: 1159469
Inicie sessão para guardar este imóvel e aceder à sua lista de favoritos em qualquer dispositivo.
Área de terreno : 1100 m²
Terreno localizado em zona industrial, próximo ao centro de Perosinho. Com viabilidade para construção de armazém industrial de quatro frentes e logradouro. Bons acessos. Área de terreno - 1100 m2 Área de armazém - 386 m2 Localiza-se a: - 4 km da A1 - 3,7 km da A29 - 3,5 km da EN1 Não hesite em contactar para mais informações. IMORIGINAL, Lda. A nossa missão é a procura de um compromisso com a excelência, baseados numa rigorosa ética profissional e conhecimento do mercado imobiliário, com o único objetivo de melhor servir os nossos clientes, compradores, arrendatários ou vendedores. Com uma vertente da empresa vocacionada para a nova construção e remodelações de imóveis e sob a direção de profissionais com mais de 25 anos de experiência, sabemos que cada cliente é único, por isso teremos sempre uma proposta de valor acrescentado para lhe apresentar. Conte connosco para o acompanhar em todo o processo negocial, com um aconselhamento profissional e integro. IMORIGINAL, pelo prazer de entrar em casa!
AMI: 10078
Ref. Externa: 24.031
Id: 1159467
Inicie sessão para guardar este imóvel e aceder à sua lista de favoritos em qualquer dispositivo.
555.000 €
3 Quartos
3 WCs
Área bruta : 186 m²
Moradia T3 de 3 frentes de apenas R/C e 1.º andar, na Madalena / Gaia / Porto Garagem exterior com 18,14 m2 e espaço para aparcar mais 2 carros Nascente / Sul / Poente Nova - classe energética A Composta por: - Logradouro e jardim - Garagem Piso de rés do chão: - Hall de entrada - Sala comum com 39,44 m2 - Cozinha equipada, lavandaria independente - Casa de banho com base de duche - Alpendre Primeiro andar: - Quarto suite com closet, mais um roupeiro embutido, varanda - 2 Quartos com roupeiros e varanda - Casa de banho completa Equipamento: - 2 Painéis solares - Exterior da moradia revestido a "Capotto" com 6 e 10 cm de isolamento. - Ar condicionado - Alarme - Estores elétricos, em alumínio perfilado, com isolamento em poliuretano - Tetos falsos com focos, isolados com placa de lã de rocha. Visite já! IMORIGINAL, Lda. A nossa missão é a procura de um compromisso com a excelência, baseados numa rigorosa ética profissional e conhecimento do mercado imobiliário, com o único objetivo de melhor servir os nossos clientes, compradores, arrendatários ou vendedores. Com uma vertente da empresa vocacionada para a nova construção e remodelações de imóveis e sob a direção de profissionais com mais de 25 anos de experiência, sabemos que cada cliente é único, por isso teremos sempre uma proposta de valor acrescentado para lhe apresentar. Conte connosco para o acompanhar em todo o processo de aquisição, venda ou arrendamento, com um aconselhamento profissional e integro. IMORIGINAL, pelo prazer de entrar em casa…
AMI: 10078
Ref. Externa: 24.022
Id: 1159463
Inicie sessão para guardar este imóvel e aceder à sua lista de favoritos em qualquer dispositivo.
3 Quartos
3 WCs
Área bruta : 196 m²
Excelente T3 Novo, 4 varandas, garagem BOX 2 carros, Mafamude / Metro Condomínio privado com área circundante do prédio privada, de acesso exclusivo aos condóminos. METRO de Santo Ovídio. Espaçosa garagens para 2 carros, sobrando muito espaço para arrumação. Area de habitação 161,35 m2, com 20,90 m2 de varandas. Localiza-se a: - 300 metros do METRO de Santo Ovídio; - 260 metros da paragem de STCP, carreira 10M, 905 e 907; - 200 metros de lar da terceira idade; - 350 metros do Pingo Doce; - 600 metros da Escola EB 2/3 Soares dos Reis; - 350 metros da RTP; - 1400 metros do Hospital Santos Silva; - É servido ainda por diversos comércios locais e vários serviços. Agende já a sua visita! Tem como principais pontos de qualidade / acabamentos: - Fachada revestida a capoto de 6 cm de espessura - Caixilharia de alumínio com rutura térmica - Vidros duplos térmicos - Estores elétricos em alumínio lacado com poliuretano - Sistema de ar condicionado nos quartos e sala - Bomba de calor - Pré instalação (negativo da fração até ao telhado) que permite a colocação de painéis solares ou painéis fotovoltaicos - Portas de alta segurança - Vídeo porteiro - Portão seccionado motorizado com painéis revestidos a poliuretano, com dois comandos no acesso à garagem coletiva do prédio - Garagem individual para 2 carros e espaço para arrumação. - Zonas ajardinadas - Pavimento em soalho de madeira flutuante de 15 mm de espessura - Paredes com acabamento estanhado e pintadas - Tetos em gesso cartonado, com isolamento acústico, pintados em branco, com focos embutidos, sancas com fitas de iluminação led - Carpintaria lacada em branco com portas até ao teto - Móveis de cozinha lacados em branco, com iluminação led, dobradiças com amortecedores da marca Blum, gavetões com sistema de amortecimento - Cozinhas equipadas com placa, forno, micro-ondas, combinado e máquina de louça da marca Siemens - Tampo dos móveis de cozinha em granito preto polido com 3 cm de espessura - Móveis da lavandaria com módulos lacados CASAS DE BANHO - Pavimento e paredes revestidos a material cerâmico da Margrés - Tetos em gesso cartonado hidrófugo, com isolamento acústico, pintado, com focos embutidos - Móveis suspensos, com gavetões lacados e sistema de amortecimento - Tampo dos móveis da casa de banho em compacto de quartzo com 2 cm de espessura com lavatório da marca Sanindusa - Espelho sobre o tampo do móvel da casa de banho - Louças suspensas em branco da marca Sanindusa - Base de chuveiro extraplana branca com resguardo fixo ou com porta de correr em vidro incolor
AMI: 10078
Ref. Externa: 24.009 B
Id: 1159456
Inicie sessão para guardar este imóvel e aceder à sua lista de favoritos em qualquer dispositivo.
Inicie sessão para ocultar este imóvel das suas pesquisas e manter a sua lista de resultados organizada.
Imoriginal
Consultor imobiliário em Imoriginal - AMI: 10078
Compre créditos para poder destacar os seus imóveis! Desta forma eles são os primeiros a aparecer nas pesquisas e têm uma maior chance de serem vistos pelos utilizadores.
Guardar favoritos
Este imóvel foi guardados nos seus favoritos com sucesso.
Para poder guardar pesquisa deverá ter a sua sessão iniciada.
Caso não tenha uma conta, deverá criar uma.
A sua pesquisa foi guardada com sucesso!
© Copyright 2023 | CASACERTA. All rights reserved
Este site utiliza cookies. Ao navegar no site estará a consentir a sua utilização.
Para mais informações sobre os cookies pode consultar a
política de privacidade.