Lista
Comprar
Arrendar
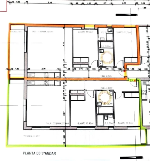
3 Quartos
Área bruta : 94 m²
A Dignus Domus apresenta...Excelente Oportunidade – Apartamento T3 na Zona da Boavista | PortoVenha conhecer este apartamento T3 com excelente localização, a apenas 150 metros da prestigiada Avenida da Boavista, zona muito valorizada e procurada para investimento no Porto.Ideal tanto para habitação própria como para investimento, este imóvel beneficia-se da proximidade das universidades no Polo Universitário do Campo Alegre, e com a oferta de todos os tipos de serviços, comércios e de uma excelente rede de transportes públicos, garantindo elevada procura no mercado de arrendamento. Além do acesso rápido à VCI e outras autoestradas.O apartamento tem áreas bem distribuídas em 03 quartos, sala, cozinha, 1 casa de banho, 1 WC e lavandaria.Para maior conforto possui vidros duplos em algumas caixilharias. Tetos falsos na sala.O apartamento tem um grande potencial de valorização no mercado de arrendamento de quartos com a possibilidade de fazer mais 1 quarto na sala para aumentar a rentabilidade.Não perca esta oportunidade única para viver com comodidade ou garantir um investimento seguro e rentável.📍 Localização premium |📈 Elevado potencial de rentabilidade 🚋 Transportes à portaNOTA:O apartamento não tem garagem. Mas tem aparcamento público exclusivo para residentesLocalizado no primeiro piso de um prédio sem elevadorPara mais informações não hesite em ligar-nos.
AMI: 15630
Ref. Externa: DD_790
Id: 1593686
Inicie sessão para guardar este imóvel e aceder à sua lista de favoritos em qualquer dispositivo.
220.000 €
2 Quartos
Área bruta : 85 m²
Apartamento T2, com garagem- Alto do Forno!*EXCLUSIVO*Na Figueira da Foz, A Urbanização denominada “Alto do Forno/Patracol”, beneficia de uma localização privilegiada, tendo por perto transportes públicos, superfícies comerciais, serviços administrativos, escolas, restauração, saúde e bem-estar e a apenas 1,2 km da praia de Buarcos (rotunda do Pescador).É precisamente neste área, que lhe propomos, num terceiro andar, este apartamento de tipologia T2 com garagem.O imóvel, em perfeito estado de conservação, é composto pelo hall, pela cozinha com despensa e varanda, e pela sala de estar exposta a poente, também ela com varanda. Os dois quartos tem o piso revestido a flutuante e logo, por perto, a casa de banho completa, com banheira e extração de ar interior.-» Excelente oportunidade de compra para investimento ou habitação própria permanente!5 razões para comprar com Espaços & Casas?• Espaços & Casas Imobiliária, apresenta-se como uma verdadeira plataforma de informação fidedigna, atualizada e responsável, fornecendo dados fundamentais pela credibilidade para todos aqueles que intervêm no mercado imobiliário.• Desde 1997, ouvimos, analisamos e depois apresentamos propostas que acrescentem valor ao seu negócio.• Trabalhamos diariamente para satisfazer as necessidades dos clientes, para que no final de cada processo todos os seus intervenientes, desde promotores, proprietários e consumidores, sintam orgulho e satisfação da imobiliária escolhida para o seu negócio.• Prestamos um acompanhamento constante desde o início até ao final do processo de compra ou venda, designadamente o contrato promessa, a escritura, o registo predial, as despesas inerentes ao negócio, isenção de IMI, quando aplicável, bem como eventual apoio no processo de financiamento.• Comprar ou vender uma propriedade não tem que ser uma ação demorada e complicada, pelo contrário, simples, rápida e transparente.
AMI: 1965
Ref. Externa: 1586-A
Id: 1593679
Inicie sessão para guardar este imóvel e aceder à sua lista de favoritos em qualquer dispositivo.
2 Quartos
1 WCs
Excelente T2 com Vista Desafogada na Prestigiada Zona da Foz Referencia Interna - por_260104 Descubra este Apartamento T2 com 106 m², em bom estado de conservação, beneficiando de uma remodelação recente ligeira e de um enquadramento urbano verdadeiramente privilegiado. Localizado no 3.º andar de um edifício com 9 pisos, servido por elevadores (2 + 1 monta-cargas) e com acessos exteriores adaptados a pessoas com mobilidade reduzida, este imóvel insere-se num prédio que se encontra em processo de renovação total da fachada com aplicação de capoto, com conclusão prevista para 2025, garantindo maior conforto térmico e valorização futura. O apartamento destaca-se pela excelente luminosidade natural e pela vista desafogada, sendo composto por: - Cozinha em remodelação, com conclusão prevista até meados de dezembro, totalmente equipada com eletrodomésticos novos embutidos (placa e forno), frigorífico combinado e máquinas de lavar roupa e loiça novas - Dois quartos bem dimensionados, um deles com armário embutido - Lavandaria / marquise, prática e funcional - Sala ampla, com possibilidade de ampliação, ideal para criar diferentes ambientes - Uma casa de banho completa, com espaço e projeto previsto para a criação de uma segunda casa de banho - Duas arrecadações, localizadas na cave do prédio, oferecendo excelente apoio de arrumação O condomínio tem um valor mensal de 60 €. A localização é um dos grandes trunfos deste imóvel: inserido numa zona residencial tranquila, com comércio, serviços e transportes à curta distância pedonal, e com facilidade de estacionamento nas imediações do edifício. Encontra-se a poucos minutos a pé das praias da Foz, da Avenida da Boavista, da Fundação de Serralves e do Parque da Cidade, proporcionando uma qualidade de vida excecional. Comércio e serviços próximos: Farmácia (7 min), Pingo Doce (6 min), Continente (8 min), Mercado da Foz (10 min). Ensino e universidades: Colégio CEBES (2 min), Universidade Católica (8 min), Escola Francisco Torrinha (8 min), Colégio Inglês (10 min), Escola Francesa (11 min), Escola Garcia de Orta (15 min). Uma oportunidade única para viver ou investir numa das localizações mais procuradas do Porto, onde a tranquilidade, a proximidade ao mar e a excelência urbana se unem para proporcionar uma experiência de vida ímpar. Tratamos do financiamento sem qualquer custo! Certificado energético: C Área: 106 m2 Valor: 410.000 € Ref: por_260104 (Planta meramente ilustrativa) Marque já a sua visita!! Teremos todo o gosto em ajudar a escolher seu imóvel.
AMI: 14839
Ref. Externa: por_260104
Id: 1591774
Inicie sessão para guardar este imóvel e aceder à sua lista de favoritos em qualquer dispositivo.
235.000 €
1 Quartos
Área bruta : 77 m²
Apartamento T1K, com garagem, para venda - Praia de Buarcos!* EXCLUSIVO*Apartamento T1K, para venda na Praia de Buarcos, junto à rotunda do Pescador, ao mercado municipal, e do Teatro “das Caras Direitas”, num dos edifícios mais imponentes da cidade e melhor localizado.Descrição:O prédio:Construído em 1992, o edifício com 22 andares, tem uma arquitetónica vanguardista e mantém uma aparência distinta e profundamente cuidada (prédio com porteira).O apartamento:Hall de entrada com roupeiro de arrumações, sala e cozinha reunidas (em open-space), numa fusão perfeita e aconchegante, que isenta o ambiente de qualquer barreira visual;- Quarto com 14m², com chão em corticite (poderoso isolante térmico e acústico de alta performance, que proporciona conforto ao caminhar devido à sua resiliência); - Grandes janelas na sala e quarto, que favorecem a entrada de luz natural na habitação;- Casa de banho moderna, com base de chuveiro de grande dimensão e coluna de hidromassagem incorporada.Outras características :- Revestimento integral do chão em pedra natural, de cor branca, que confere às zonas sociais uma extraordinária sensação de profundidade e elegância;- Cozinha equipada com esquentador, fogão a gás, máquina de lavar a roupa, máquina de secar roupa, e frigorífico;- Aquecimento elétrico no quarto e sala;- Grandes janelas na sala e quarto que favorecem a entrada de luz natural na habitação;- Sala e quarto com vista panorâmica sobre a Serra e cidade;- Estores elétricos;- Garagem fechada, na cave com uma área de 22 m².-» Venha hoje mesmo conhecer este excecional apartamento “ à beira mar plantado” !5 razões para comprar com Espaços & Casas:• Espaços & Casas Imobiliária, apresenta-se como uma verdadeira plataforma de informação fidedigna, atualizada e responsável.• Desde 1997, ouvimos, analisamos e depois apresentamos propostas que acrescentem valor ao seu negócio.• Trabalhamos diariamente para satisfazer as necessidades dos clientes, para que no final de cada processo todos sintam orgulho e satisfação da imobiliária escolhida para o seu negócio.• Prestamos um acompanhamento constante desde o início até ao final do processo de compra ou venda.• Comprar ou vender uma propriedade não tem que ser uma ação demorada e complicada, pelo contrário, simples, rápida e transparente.
AMI: 1965
Ref. Externa: 1585-A
Id: 1589628
Inicie sessão para guardar este imóvel e aceder à sua lista de favoritos em qualquer dispositivo.
2 WCs
Área bruta : 599 m²
Escritório situados num Edifício industrial do início do século XX, maravilhosamente renovado, no centro do Porto. Com varias salas, edifício equipado com casas de banho masculinas e femininas, e áreas dedicada a copa, ideal para pausas, reuniões informais ou hospitalidade de clientes. Localizado no r/c com uma área de 522,89 m2 (não estão incluídas as áreas de escadas e de acessos) A pré-instalação do ar condicionado já está pronta. O espaço está atualmente em fase de adaptação e pronto para ser personalizado de acordo com a imagem e as necessidades da sua empresa. Oferece uma área combinada de 1056 m² em vários andares ideal para empresas que procuram um espaço versátil e conectado, com zonas distintas para trabalho, criatividade e hospitalidade. Um espaço único situado num edifício industrial do início do século XX, maravilhosamente restaurado, no coração do centro da cidade do Porto. Concebido para quem valoriza o caráter, a flexibilidade e a conexão, este espaço em plano aberto é ideal para escritórios, estúdios criativos, showrooms ou eventos. Acessibilidade incomparável Chegar não poderia ser mais fácil. Com vários parques de estacionamento nas proximidades e a apenas um quarteirão de três estações de metro São Bento, Aliados e Bolhão que servem seis linhas principais (azul, vermelha, verde, laranja, amarela e a linha rosa, que será inaugurada em breve), além de acesso direto à estação ferroviária de São Bento e várias linhas de autocarro, a mobilidade é perfeita para equipas, convidados e clientes. Sabores e hospitalidade nas proximidades Rodeado por opções de alojamento que vão desde hotéis boutique a acolhedoras pensões, este edifício também fica perto de uma mistura eclética de restaurantes e locais de convívio, permitindo-lhe saborear os sabores locais do Porto a poucos passos de distância. O pulso do Porto: artes, lojas e património Saia e seja envolvido pela energia cultural do Porto. Num único quarteirão, encontrará o Teatro Nacional São João, o Teatro Rivoli, o icónico Coliseu Porto Ageas, o Teatro Sá da Bandeira e o Batalha Centro de Cinema, maravilhosamente restaurado cada um com uma rica programação de teatro, dança, concertos, cinema e espetáculos internacionais. A poucos passos do património arquitetónico do Porto e das principais atrações da cidade, este magnifico edifício coloca-o no centro da sua vibrante cena artística e a uma curta distância das ruas comerciais mais dinâmicas da cidade incluindo a Rua de Santa Catarina, a Rua das Flores e a Rua Sá da Bandeira onde marcas internacionais, boutiques locais e cafés charmosos se alinham em avenidas pedonais. também fica perto do icónico Mercado do Bolhão, um tesouro cultural que oferece produtos frescos, artigos artesanais e o verdadeiro sabor das tradições do Porto. Nota: Acresce os custos com os concessionários: Internet, agua, limpeza e eletricidade.
AMI: 14373
Ref. Externa: OFI_896 A
Id: 1589530
Inicie sessão para guardar este imóvel e aceder à sua lista de favoritos em qualquer dispositivo.
Área bruta : 328 m²
Escritório situados num Edifício industrial do início do século XX, maravilhosamente renovado, no centro do Porto. Com varias salas, edifício equipado com casas de banho masculinas e femininas, e áreas dedicada a copa, ideal para pausas, reuniões informais ou hospitalidade de clientes. Localizado no 1º piso e 2º piso com uma área de 287 m2 + 41m2 área descoberta (não estão incluídas as áreas de escadas e de acessos) A pré-instalação do ar condicionado já está pronta. O espaço está atualmente em fase de adaptação e pronto para ser personalizado de acordo com a imagem e as necessidades da sua empresa. Ideal para empresas que procuram um espaço versátil e conectado, com zonas distintas para trabalho, criatividade e hospitalidade. Um espaço único situado num edifício industrial do início do século XX, maravilhosamente restaurado, no coração do centro da cidade do Porto. Concebido para quem valoriza o caráter, a flexibilidade e a conexão, este espaço em plano aberto é ideal para escritórios, estúdios criativos, showrooms ou eventos. Acessibilidade incomparável Chegar não poderia ser mais fácil. Com vários parques de estacionamento nas proximidades e a apenas um quarteirão de três estações de metro São Bento, Aliados e Bolhão que servem seis linhas principais (azul, vermelha, verde, laranja, amarela e a linha rosa, que será inaugurada em breve), além de acesso direto à estação ferroviária de São Bento e várias linhas de autocarro, a mobilidade é perfeita para equipas, convidados e clientes. Sabores e hospitalidade nas proximidades Rodeado por opções de alojamento que vão desde hotéis boutique a acolhedoras pensões, este edifício também fica perto de uma mistura eclética de restaurantes e locais de convívio, permitindo-lhe saborear os sabores locais do Porto a poucos passos de distância. O pulso do Porto: artes, lojas e património Saia e seja envolvido pela energia cultural do Porto. Num único quarteirão, encontrará o Teatro Nacional São João, o Teatro Rivoli, o icónico Coliseu Porto Ageas, o Teatro Sá da Bandeira e o Batalha Centro de Cinema, maravilhosamente restaurado cada um com uma rica programação de teatro, dança, concertos, cinema e espetáculos internacionais. A poucos passos do património arquitetónico do Porto e das principais atrações da cidade, este magnifico edifício coloca-o no centro da sua vibrante cena artística e a uma curta distância das ruas comerciais mais dinâmicas da cidade incluindo a Rua de Santa Catarina, a Rua das Flores e a Rua Sá da Bandeira onde marcas internacionais, boutiques locais e cafés charmosos se alinham em avenidas pedonais. também fica perto do icónico Mercado do Bolhão, um tesouro cultural que oferece produtos frescos, artigos artesanais e o verdadeiro sabor das tradições do Porto. Nota: Acresce os custos com os concessionários: Internet, agua, limpeza e eletricidade. Licença: NUD/468571/2020/CMP),
AMI: 14373
Ref. Externa: OFI_896 D
Id: 1589528
Inicie sessão para guardar este imóvel e aceder à sua lista de favoritos em qualquer dispositivo.
Área bruta : 258 m²
Escritório situados num Edifício industrial do início do século XX, maravilhosamente renovado, no centro do Porto. Com varias salas, edifício equipado com casas de banho masculinas e femininas, e áreas dedicada a copa, ideal para pausas, reuniões informais ou hospitalidade de clientes. Localizado no 1º piso com uma área de 239 m2 + 19 m2 área descoberta (não estão incluídas as áreas de escadas e de acessos) A pré-instalação do ar condicionado já está pronta. O espaço está atualmente em fase de adaptação e pronto para ser personalizado de acordo com a imagem e as necessidades da sua empresa. Ideal para empresas que procuram um espaço versátil e conectado, com zonas distintas para trabalho, criatividade e hospitalidade. Um espaço único situado num edifício industrial do início do século XX, maravilhosamente restaurado, no coração do centro da cidade do Porto. Concebido para quem valoriza o caráter, a flexibilidade e a conexão, este espaço em plano aberto é ideal para escritórios, estúdios criativos, showrooms ou eventos. Acessibilidade incomparável Chegar não poderia ser mais fácil. Com vários parques de estacionamento nas proximidades e a apenas um quarteirão de três estações de metro São Bento, Aliados e Bolhão que servem seis linhas principais (azul, vermelha, verde, laranja, amarela e a linha rosa, que será inaugurada em breve), além de acesso direto à estação ferroviária de São Bento e várias linhas de autocarro, a mobilidade é perfeita para equipas, convidados e clientes. Sabores e hospitalidade nas proximidades Rodeado por opções de alojamento que vão desde hotéis boutique a acolhedoras pensões, este edifício também fica perto de uma mistura eclética de restaurantes e locais de convívio, permitindo-lhe saborear os sabores locais do Porto a poucos passos de distância. O pulso do Porto: artes, lojas e património Saia e seja envolvido pela energia cultural do Porto. Num único quarteirão, encontrará o Teatro Nacional São João, o Teatro Rivoli, o icónico Coliseu Porto Ageas, o Teatro Sá da Bandeira e o Batalha Centro de Cinema, maravilhosamente restaurado cada um com uma rica programação de teatro, dança, concertos, cinema e espetáculos internacionais. A poucos passos do património arquitetónico do Porto e das principais atrações da cidade, este magnifico edifício coloca-o no centro da sua vibrante cena artística e a uma curta distância das ruas comerciais mais dinâmicas da cidade incluindo a Rua de Santa Catarina, a Rua das Flores e a Rua Sá da Bandeira onde marcas internacionais, boutiques locais e cafés charmosos se alinham em avenidas pedonais. também fica perto do icónico Mercado do Bolhão, um tesouro cultural que oferece produtos frescos, artigos artesanais e o verdadeiro sabor das tradições do Porto. Nota: Acresce os custos com os concessionários: Internet, agua, limpeza e eletricidade. Licença: NUD/468571/2020/CMP),
AMI: 14373
Ref. Externa: OFI_896 C
Id: 1589529
Inicie sessão para guardar este imóvel e aceder à sua lista de favoritos em qualquer dispositivo.
Área útil : 125 m²
Loja para arrendamento com 125m2 de área total, composta por área comercial, armazém e instalação sanitária. Imóvel com excelente localização, adequado para comércio ou prestação de serviços. Disponível para visitas. Não perca esta oportunidade.
AMI: 23263
Ref. Externa: LOC_633
Id: 1586983
Inicie sessão para guardar este imóvel e aceder à sua lista de favoritos em qualquer dispositivo.
145.000 €
1 Quartos
Área bruta : 40 m²
T1 Kitchenette, para venda – Abadias!*EXCLUSIVO*Descubra connosco esta oportunidade de negócio que temos para si!T1K inserido num prédio habitacional cuidado, junto ao imenso Jardim das Abadias, em localização de constante valorização, junto ao CAE, supermercado Aldi, mercado municipal e a 10 minutos a pé da praia e da marina.A fração encontra-se bastante zelada e está pronta a entrar de imediato para quem procura a melhor opção de investimento ou, simplesmente, um cantinho para a sua habitação de férias.Este imóvel é vendido parcialmente mobilado, e a cozinha fica integralmente equipada.- Prédio com rampa de acesso para pessoas com mobilidade reduzida;- Terraço comum na cobertura do prédio.- Gás natural.5 razões para comprar com Espaços & Casas:• Espaços & Casas Imobiliária, apresenta-se como uma verdadeira plataforma de informação fidedigna, atualizada e responsável.• Desde 1997, ouvimos, analisamos e depois apresentamos propostas que acrescentem valor ao seu negócio.• Trabalhamos diariamente para satisfazer as necessidades dos clientes, para que no final de cada processo todos sintam orgulho e satisfação da imobiliária escolhida para o seu negócio.• Prestamos um acompanhamento constante desde o início até ao final do processo de compra ou venda.• Comprar ou vender uma propriedade não tem que ser uma ação demorada e complicada, pelo contrário, simples, rápida e transparente.
AMI: 1965
Ref. Externa: 1584-A
Id: 1582492
Inicie sessão para guardar este imóvel e aceder à sua lista de favoritos em qualquer dispositivo.
3 Quartos
Área útil : 227 m²
O terreno está localizado em Santa Lucrécia de Algeriz, freguesia do concelho de Braga, no norte de Portugal. Originalmente uma zona de perfil rural, a região tornou-se altamente valorizada nos últimos anos devido à sua proximidade com o centro urbano, oferecendo uma combinação equilibrada entre tranquilidade, natureza e conveniência.Inserido num ambiente sereno e com belas paisagens naturais, o imóvel encontra-se a apenas 10 km do centro da cidade de Braga e a cerca de 61 km do Aeroporto Internacional do Porto (OPO), beneficiando de bons acessos rodoviários que garantem ligações rápidas e confortáveis às principais vias da região. A freguesia de Santa Lucrécia de Algeriz destaca-se ainda pelo seu património histórico, nomeadamente a Igreja de Santa Lucrécia de Algeriz, bem como pela presença de quintas tradicionais e propriedades rurais, sendo uma localização ideal para quem procura qualidade de vida em contacto com a natureza, sem abdicar da proximidade a importantes centros urbanos.O terreno é composto por dois artigos — um rústico e outro urbano — com uma área total aproximada de 10.000 m². O artigo urbano dispõe de autorização para a construção de uma moradia de dois pisos, sendo o primeiro andar composto por duas divisões e o segundo andar por três divisões, com área de implantação coberta de 227 m² e logradouro de 380 m².A propriedade já conta com infraestruturas essenciais, incluindo saneamento público, muros em parte da sua extensão, diversas árvores de fruto e a presença de dois pequenos ribeiros que valorizam ainda mais o enquadramento natural do terreno.As pedras da antiga moradia em ruína encontram-se no local e fazem parte integrante da venda, permitindo a preservação de elementos arquitetónicos originais e acrescentando valor histórico ao projeto.Trata-se de uma excelente oportunidade para a construção de uma moradia de elevado potencial ou para o desenvolvimento de uma pequena quinta, num contexto de grande valorização imobiliária.Para mais informações, estamos à disposição.A VBR Invest conecta imóveis e negócios de Portugal e do Brasil ao mercado internacional.www.vbrinvest.com
AMI: 22750
Ref. Externa: VBR428
Id: 1582487
Inicie sessão para guardar este imóvel e aceder à sua lista de favoritos em qualquer dispositivo.
187.500 €
2 Quartos
Área bruta : 91 m²
Apartamento T2, para venda Abadias - Figueira da Foz!*EXCLUSIVO*Apartamento T2 nas Abadias, todo exposto ao sol da manhã, remodelado e com vista panorâmica sobre o rio.A área de 91 m² está distribuída por um hall, uma extensa sala, cozinha equipada com cilindro elétrico e eletrodomésticos, e uma despensa logo em frente.Os dois quartos têm ambos excelentes dimensões, e são servidos por uma moderna casa de banho com poliban. Varanda de 10 m², abrangente à sala de estar, cozinha e a um dos quartos.-» Vendido com algum recheio mobiliário!5 razões para comprar com Espaços & Casas:• Espaços & Casas Imobiliária, apresenta-se como uma verdadeira plataforma de informação fidedigna, atualizada e responsável.• Desde 1997, ouvimos, analisamos e depois apresentamos propostas que acrescentem valor ao seu negócio.• Trabalhamos diariamente para satisfazer as necessidades dos clientes, para que no final de cada processo todos sintam orgulho e satisfação da imobiliária escolhida para o seu negócio.• Prestamos um acompanhamento constante desde o início até ao final do processo de compra ou venda.• Comprar ou vender uma propriedade não tem que ser uma ação demorada e complicada, pelo contrário, simples, rápida e transparente.
AMI: 1965
Ref. Externa: 1583-A
Id: 1580641
Inicie sessão para guardar este imóvel e aceder à sua lista de favoritos em qualquer dispositivo.
350.000 €
2 Quartos
Área útil : 63 m²
Apartamento duplex em fase de construção, situado numa zona calma e central de Monte Gordo. Ideal para habitação permanente, casa de férias ou investimento para arrendamento turístico. 2 Quartos 2 Casas de banho Cozinha moderna em open space Terraço com excelente exposição solar Acabamentos contemporâneos e materiais de qualidade este apartamento combina conforto, funcionalidade e proximidade do mar, sendo uma excelente oportunidade de compra numa das zonas mais valorizadas do sotavento algarvio. Conclusão prevista da obra: Junho de 2027
AMI: 9568
Ref. Externa: 303
Id: 1579943
Inicie sessão para guardar este imóvel e aceder à sua lista de favoritos em qualquer dispositivo.
460.000 €
3 Quartos
2 WCs
Área bruta : 118 m²
Apartamento duplex com vista mar em fase de construção, situado numa zona calma e central de Monte Gordo. Ideal para habitação permanente, casa de férias ou investimento para arrendamento turístico. 3 Quartos 2 Casas de banho Cozinha moderna em open space Terraço com excelente exposição solar Acabamentos contemporâneos e materiais de qualidade este apartamento combina conforto, funcionalidade e proximidade do mar, sendo uma excelente oportunidade de compra numa das zonas mais valorizadas do sotavento algarvio. Conclusão prevista da obra: Julho de 2026
AMI: 9568
Ref. Externa: 305
Id: 1579942
Inicie sessão para guardar este imóvel e aceder à sua lista de favoritos em qualquer dispositivo.
4 Quartos
Área bruta : 230 m²
Vende-se moradia T4 + ComércioMoradia com excelente exposição solar e espaço comercial rentável, ideal para quem procura uma solução de habitação e investimento num único imóvel.Esta propriedade destaca-se pelo seu bom estado de conservação, oferecendo um ambiente acolhedor e luminoso, perfeito para viver com conforto e praticidade.A moradia possui uma distribuição funcional e versátil, contando com uma área ampla que inclui várias divisões habitacionais e um espaço comercial integrado, que pode ser explorado para gerar rendimentos. A localização beneficia de ótimos acessos às principais vias rodoviárias, facilitando a mobilidade e proximidade dos principais centros urbanos e serviços.Entre as especificações, destaca-se a tipologia adaptável conforme a necessidade do novo proprietário, a presença de áreas de convivência bem iluminadas pela luz natural e o espaço comercial que é um diferencial para investidores que queiram rentabilizar o imóvel. O estado geral é muito bom, dispensando grandes intervenções. Além disso, a excelente exposição solar contribui para um ambiente interior agradável, que valoriza ainda mais esta moradia, tornando-a num imóvel perfeito para famílias e empreendedores. A sua proximidade às principais vias possibilita um acesso rápido a escolas, comércio, e serviços essenciais.Não perca esta oportunidade única de adquirir uma moradia com características singulares e potencial para diversas finalidades.Contacte-nos para agendar a sua visita e conhecer todos os detalhes que este imóvel tem para oferecer. Estamos ao seu dispor para esclarecer dúvidas e ajudar na concretização do seu novo projeto imobiliário.Está à procura de apoio especializado para facilitar o seu processo de financiamento imobiliário?Como intermediário de crédito devidamente registado junto do Banco de Portugal, ofereço um serviço completo para garantir a viabilidade do seu financiamento de forma simples e segura. A minha missão é ser o seu parceiro de confiança, tratando de toda a documentação e negociações necessárias para que possa concretizar o sonho da casa própria ou investir no mercado imobiliário com total tranquilidade. Com ampla experiência e conhecimento do mercado financeiro português, acompanho-o em todas as fases do processo, desde a análise inicial até à aprovação do crédito, garantindo as melhores condições possíveis, adaptadas ao seu perfil e necessidades. Este serviço é essencial para quem deseja evitar complicações burocráticas e economizar tempo, enquanto assegura um processo transparente e eficaz.
AMI: 25707
Ref. Externa: IMO_40
Id: 1577865
Inicie sessão para guardar este imóvel e aceder à sua lista de favoritos em qualquer dispositivo.
Área de terreno : 626 m²
Lote de Terreno Urbano, com viabilidade de construção de um prédio. Caracterização do loteamento: Loteamento situado no centro de Arco de Baúlhe, concelho de Cabeceiras de Basto, lotes de terreno destinados a Habitação e Comércio. Caracterização do lote: Inserido em lote de 626 m2, apresenta uma área de implantação de 442 m2, permitindo uma área de construção para habitação de 1,326 m2 e de 442 m2 para comércio, em 4 pisos acima da cota de soleira e 1 pisos em cave. O lote de terreno urbano permite Construçao de Apartamentos (T1, T2, T3 ). Acessibilidades: Loteamento com bons acessos, situado no centro de Arco de Baúlhe. Localizado a 2 minutos da saída/Entrada Auto Estrada A7, 5 minutos de Cabeceiras de Basto, 1 hora do Porto e 45 minutos de Braga. Não perca esta Oportunidade! Comercializado por ImoArco | Lic. AMI 9659
AMI: 9659
Ref. Externa: ARCO(038)
Id: 1575538
Inicie sessão para guardar este imóvel e aceder à sua lista de favoritos em qualquer dispositivo.
850.000 €
Área de terreno : 4617 m²
Terreno com 4617m2 Urbanizável para Construção de Moradias, sendo o índice de Edificabilidade de 70% da área do mesmo. Contém uma moradia em ruína, situado junto ao Parque da Resineira e do Maia Shopping, assim como comércio local, serviços, escolas e transportes (rodoviários e ferroviários). A 700mts do Externato Sta Joana A 700mts do Maia Shopping A 1,2 Km da escola da travagem A 1,1 km Igreja Matriz A 1,4 Km Estação Ferroviária Peça mais informações Desde o ano 2000 na atividade, procuramos a melhor solução para o cliente sempre com ética e profissionalismo. Acompanhamento personalizado até à escritura. Se não tivermos o que precisa, procuramos para o satisfazer. Venha até nós SOMOS A ALTERNATIVA IDEAL PARA SI - JCB IMÓVEIS - ERMESINDE.
AMI: 11215
Ref. Externa: 657
Id: 1575537
Inicie sessão para guardar este imóvel e aceder à sua lista de favoritos em qualquer dispositivo.
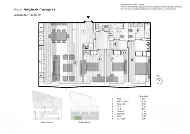
3 Quartos
2 WCs
Área bruta : 100 m²
Excelente apartamento de tipologia T3 para arrendamento, situado no centro da cidade, próximo de vários serviços e departamentos, bem como, da Universidade Lusíada. O imóvel encontra-se totalmente renovado, incluindo cozinha e casas de banho (uma completa e outra de serviço). Dispõe de cozinha em open space, equipada com exaustor, placa, forno e frigorifico, sala ampla com acesso a varanda, com vista desafogada. NÃO POSSUI GARAGEM Agende já a sua visita...
AMI: 23263
Ref. Externa: APA_632
Id: 1575382
Inicie sessão para guardar este imóvel e aceder à sua lista de favoritos em qualquer dispositivo.
317.500 €
3 Quartos
Área bruta : 200 m²
Moradia T3, junto à carismática Praia de Quiaios!EXCLUSIVO!Apresentamos esta excelente moradia T3, situada a 500 m da carismática Praia de Quiaios, uma localização privilegiada para quem valoriza o mar, procura tranquilidade e uma elevada qualidade de vida.No exterior, a moradia dispõe de um agradável logradouro nas traseiras, um verdadeiro espaço de lazer onde poderá desfrutar do sol, conviver com família e amigos e realizar refeições ao ar livre, graças à churrasqueira existente, ideal para momentos relaxantes e memoráveis.O rés do chão é composto por um acolhedor mini-hall de entrada, uma confortável sala de estar, uma casa de banho social e uma cozinha moderna, pronta a funcionar, equipada com despensa e copa, virada para o logradouro, permitindo uma excelente ligação entre o interior e o espaço exterior.No primeiro piso encontram-se três quartos, ideais para acomodar toda a família, bem como duas casas de banho com janela, garantindo luz natural e ventilação.Esta moradia é perfeita tanto para habitação permanente como para casa de férias, ou ainda como investimento, beneficiando da proximidade à praia e do ambiente único de Quiaios.Outras características:- Lareira em pedra natural na sala de estar;- Painéis solares;- Duas garrafas de gás propano instaladas no pátio exterior;- Ar condicionado BECKEN;- Janelas de correr em alumínio verde, com vidros duplos, e portas exteriores;- Jacuzzi.Não perca esta oportunidade. Agende já a sua visita e venha conhecer a sua próxima casa junto ao mar.5 razões para comprar com Espaços & Casas:• Espaços & Casas Imobiliária, apresenta-se como uma verdadeira plataforma de informação fidedigna, actualizada e responsável.• Desde 1997 que ouvimos, analisamos e depois apresentamos propostas que apresentam valor ao seu negócio.• Trabalhamos diariamente para satisfazer as necessidades dos clientes, para que no final de cada processo todos sintam orgulho e satisfação da propriedade escolhida para o seu negócio.• Prestamos um acompanhamento constante desde o início até ao final do processo de compra ou venda.• Comprar ou vender um imóvel não tem de ser uma ação demorada e complicada, antes pelo contrário, simples, rápida e transparente.
AMI: 1965
Ref. Externa: 1582-M
Id: 1573995
Inicie sessão para guardar este imóvel e aceder à sua lista de favoritos em qualquer dispositivo.
Área de terreno : 6648 m²
Terreno com vista panorâmica sobre o Rio Douro, localizado em Caldas de Aregos, uma localidade do município de Resende, no distrito de Viseu, na região Norte de Portugal.Caldas de Aregos é uma estância termal situada à margem do rio Douro, reconhecida pelas suas águas termais, marina fluvial e ambiente tranquilo, sendo um dos principais polos turísticos do concelho. A localidade combina vocação residencial com turismo de bem-estar, oferecendo um enquadramento natural privilegiado e elevada atratividade paisagística.O município de Resende tem como sede a vila de Resende e caracteriza-se por ser uma região estável do interior norte de Portugal, com tradição habitacional, serviços locais consolidados e forte ligação ao vale do Douro. Trata-se de um território procurado por residentes que valorizam tranquilidade, qualidade de vida e proximidade à natureza.O terreno possui Pedido de Informação Prévia (PIP) aprovado para habitação multifamiliar e está inserido em Espaços de Expansão Predominantemente Habitacionais – Nível II, permitindo o desenvolvimento de um empreendimento residencial de média dimensão, adequado ao mercado local e internacional.O projeto prevê 34 unidades habitacionais, com três pisos acima do solo e um piso subterrâneo, altura máxima de 14,60 m e altura de fachada de 9,75 m, totalizando 6.532 m² de área de construção em um terreno de 6.648 m². O estacionamento inclui 68 lugares interiores e 22 exteriores, com áreas funcionais distribuídas de forma eficiente para veículos e pedestres.O terreno está situado numa zona tranquila e de baixa densidade, com paisagem natural harmoniosa e vista direta para o Rio Douro, oferecendo qualidade de vida, privacidade e um enquadramento paisagístico de elevado valor.Em termos de acessibilidade, o centro da vila de Resende está a 15 km, a cidade de Viseu a 65 km, a cidade do Porto a 95 km e o Aeroporto Internacional do Porto – Francisco Sá Carneiro a cerca de 95–100 km, garantindo fácil ligação a centros urbanos e infraestruturas internacionais.Este ativo representa uma oportunidade estratégica para promotores e investidores, com licenciamento aprovado, localização privilegiada junto ao rio Douro e grande potencial de valorização, combinando habitação de qualidade com forte atratividade paisagística.A VBR Invest conecta imóveis e negócios de Portugal e do Brasil ao mercado internacional.Contacto consultor: Liliana Vieira +351 938 822 783www.vbrinvest.com
AMI: 22750
Ref. Externa: VBR426
Id: 1573972
Inicie sessão para guardar este imóvel e aceder à sua lista de favoritos em qualquer dispositivo.
1 Quartos
1 WCs
Área útil : 80 m²
T1+1 Mobilado com Garagem Box no Centro do Porto Referencia Interna - apor_260108 Apartamento T1+1 para arrendamento, situado numa zona central do Porto, ideal para quem procura conforto, funcionalidade e excelente localização. O imóvel encontra-se totalmente mobilado e equipado, pronto a habitar, destacando-se pela sua boa luminosidade natural e áreas amplas, que proporcionam um ambiente confortável e acolhedor. Dispõe de 1 casa de banho, elevador no edifício e garagem box, uma mais-valia rara numa zona tão central. A localização é um dos seus grandes pontos fortes: a poucos minutos de metro, autocarros, supermercados, farmácias, faculdades e escolas, permitindo um dia a dia prático, com fácil acesso a todos os serviços e transportes. Não são aceites animais. Uma excelente opção para quem valoriza viver no coração do Porto, com todas as comodidades à porta. Certificado energético: A Área: 80 m2 Valor: 1.150€ Ref: apor_260108 Marque já a sua visita!! Teremos todo o gosto em ajudar a escolher seu imóvel.
AMI: 14839
Ref. Externa: apor_260108
Id: 1572130
Inicie sessão para guardar este imóvel e aceder à sua lista de favoritos em qualquer dispositivo.
Inicie sessão para ocultar este imóvel das suas pesquisas e manter a sua lista de resultados organizada.
Guardar favoritos
Este imóvel foi guardados nos seus favoritos com sucesso.
Para poder guardar pesquisa deverá ter a sua sessão iniciada.
Caso não tenha uma conta, deverá criar uma.
A sua pesquisa foi guardada com sucesso!
© Copyright 2023 | CASACERTA. All rights reserved
Este site utiliza cookies. Ao navegar no site estará a consentir a sua utilização.
Para mais informações sobre os cookies pode consultar a
política de privacidade.