Consultor imobiliário em IAD Holding - AMI: 11220
Comprar
Arrendar
300.000 €
Área de terreno : 514 m²
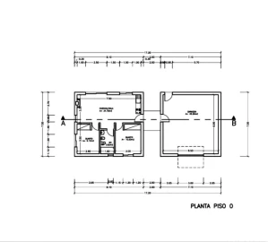
Moradia Nova T3 Terrea com 514m2 de terreno. Lote muito bem situado e com uma vista desafogada. Inserido numa zona residencial, podendo usufruir da calma e tranquilidade depois de um dia de trabalho. Esta moradia dispõe: - Cozinha e sala open space; - 2 Quartos com roupeiros embutidos; - 1 Quarto Suite (com closet e wc privado); - Casa de banho; - Despensa; - Abrigo de automóvel. Prazo de construção: 12 meses. Inclui todos os projetos necessários, licenças e taxas camarárias, entregue chave na mão! Caracteristicas: - Lote de 514m2; - Portas e janelas em PVC com rutura termica e oscilobatentes; - Pré instalação de Ar-condicionado; - Estores eletricos; - Piso vinilico nos quartos cozinha e sala; - Possibilidade de construção de piscina. Com todas as infraestruturas (água, esgoto, telecomunicações e luz) por perto, sendo apenas necessário solicitar as respetivas ligações junto às Entidades competentes. Situado numa zona com excelente exposição solar. Têm ainda nas proximidades todo o tipo de comércios e serviços. Próximo das maravilhosas praias do Oeste: Peniche, Baleal, Areia Branca, Foz do Arelho, Santa Cruz e Nazaré. Apenas 15 minutos da Serra de Montejunto, onde poderá ir à descoberta da sua natureza magnífica. Fica ainda a: A 10 minutos do Jardim Budha Eden. A 10 minutos da auto estrada A8. A 25 minutos de Torres Vedras. A 15 minutos de Caldas da Rainha. A 30 minutos da auto estrada A1. A 45 minutos de Lisboa. Venha conhecer! Marque já a sua visita e comece a idealizar a sua casa de sonho aqui! #ref: 145702
AMI: 11220
Ref. Externa: 145702
Id: 1275120
Inicie sessão para guardar este imóvel e aceder à sua lista de favoritos em qualquer dispositivo.
30.000 €
Área de terreno : 240 m²
Terreno urbano para construção. Parcela com 240 m2. Têm um pedido de informação prévia (PIP) aprovado pela câmara municipal, podendo ser o projeto adaptado às suas ideias ou orçamento. A zona onde se pretende edificar é já servida por arruamento público, abastecimento domiciliário de água e rede de esgotos, bem como de telecomunicações e rede de energia elétrica, procedendo-se apenas à sua ligação através de ramais. O projeto aprovado têm as seguintes áreas de construção: - área bruta de construção: 129,86 m2 - área útil de construção: 97,37 m2 - área de implantação: 129,86 m2 - volumetria: 671,30 m2 - cércea: 3,5 m - n.º de pisos abaixo da cota de soleira: 0 - n.º de pisos acima da cota de soleira: 1 Muito bem situado, com uma vista desafogada no sopé da “Serra de Montejunto.” Lugar muito especial para quem procura viver junto à natureza e ter uma casa no campo. Inserido numa zona residencial, podendo usufruir da calma e tranquilidade depois de um dia de trabalho, deslumbrando com o magnífico pôr do sol. Este belo lugar tem muito para oferecer além da serra, possui um parque verde protegido nas colinas. Está a poucos minutos da vila do Cadaval, onde encontrará todos os serviços disponíveis, escolas, supermercados, lojas, etc. Têm ainda nas proximidades os famosos jardins Budha Eden. A 15 minutos tem acesso às principais autoestradas: A8 (Lisboa/Leiria) e A1 (Lisboa/Porto). Fica ainda a 20 minutos de Torres Vedras, a 20 minutos de Caldas da Rainha, e a 20-30 minutos das praias do Oeste: Nazaré (cidade da “Grande Onda”), Peniche, Baleal e Santa Cruz (cidades do Surf mundial) e Foz do Arelho e Areia Branca. Marque já a sua visita e comece a idealizar a sua casa de sonho aqui! #ref: 136616
AMI: 11220
Ref. Externa: 136616
Id: 1051041
Inicie sessão para guardar este imóvel e aceder à sua lista de favoritos em qualquer dispositivo.
3 Quartos
2 WCs
Área útil : 160 m²
Venha conhecer este fantástico terreno localizado muito próximo dos acessos à A8 podendo deslocar-se rapidamente à capital ou às praias fantásticas da Costa da Prata. Poderá ainda desfrutar da vista maravilhosa para a Serra do Montejunto. A compra inclui o terreno com a construção de uma moradia térrea da Tipologia 3. Chave na mão! No entanto, este projeto poderá ser adaptado às suas ideias ou orçamento. A construção será iniciada após a reserva e aprovação do projeto camarário, com a previsão de entrega até 12 meses. É composto por: - Sala e cozinha em open space (47,50m2); - 2 Quartos com roupeiros embutidos (15m2/cada); - 1 Quarto Suite com roupeiro embutido (22,40m2); - Casa de banho social (6,30m2); - Garagem (28,55m2) para 2 viaturas. As características são: - Janelas em PVC com vidro duplo e ruptura térmica; - Pavimento flutuante; - Estores elétricos; - Painéis solares; - Pré-aquecimento do ar condicionado sem aparelhos; - Cozinha não equipada; - Piscina (opcional). Área do Lote: cerca de 700 m2 Fica a 5 minutos de carro da Vila do Cadaval onde poderá encontar bancos, farmácias, escolas, bombas de combustível e todo o tipo de comércio e serviços. Fica ainda: A 15 minutos do Jardim Budha Eden; A 10 minutos da A8; A 20 minutos de Torres Vedras; A 25 minutos de Caldas da Rainha; A 30 minutos da A1; A 50 minutos de Lisboa; Próximo das praias do Oeste: Peniche, Baleal, Areia Branca, Foz do Arelho, Santa Cruz. Marque já a sua visita e comece a idealizar a sua casa de sonho aqui! #ref: 91258
AMI: 11220
Ref. Externa: 91258
Id: 388013
Inicie sessão para guardar este imóvel e aceder à sua lista de favoritos em qualquer dispositivo.
Área de terreno : 500 m²
Venha conhecer este fantástico terreno localizado muito próximo dos acessos à A8 podendo deslocar-se rapidamente à capital ou às praias fantásticas da Costa da Prata. Poderá ainda desfrutar da vista maravilhosa para a Serra do Montejunto. A compra inclui o terreno com a construção de uma moradia térrea da Tipologia 3. Chave na mão! No entanto, este projeto poderá ser adaptado às suas ideias ou orçamento. A construção será iniciada após a reserva e aprovação do projeto camarário, com a previsão de entrega até 12 meses. É composto por: - Sala e cozinha em open space (47,50m2); - 2 Quartos com roupeiros embutidos (15m2/cada); - 1 Quarto Suite com roupeiro embutido (22,40m2); - Casa de banho social (6,30m2); - Garagem (28,55m2) para 2 viaturas. As características são: - Janelas em PVC com vidro duplo e ruptura térmica; - Pavimento flutuante; - Estores elétricos; - Painéis solares; - Pré-aquecimento do ar condicionado sem aparelhos; - Cozinha não equipada; - Piscina (opcional). Área do Lote: cerca de 500 m2 Fica a 5 minutos de carro da Vila do Cadaval onde poderá encontar bancos, farmácias, escolas, bombas de combustível e todo o tipo de comércio e serviços. Fica ainda: A 15 minutos do Jardim Budha Eden; A 10 minutos da A8; A 20 minutos de Torres Vedras; A 25 minutos de Caldas da Rainha; A 30 minutos da A1; A 50 minutos de Lisboa; Próximo das praias do Oeste: Peniche, Baleal, Areia Branca, Foz do Arelho, Santa Cruz. Marque já a sua visita e comece a idealizar a sua casa de sonho aqui! #ref: 91180
AMI: 11220
Ref. Externa: 91180
Id: 387107
Inicie sessão para guardar este imóvel e aceder à sua lista de favoritos em qualquer dispositivo.
320.000 €
Área de terreno : 800 m²
TERRENO URBANO + CONSTRUÇÃO NOVA de moradia com 3 quartos: Encontra-se muito bem situado e inserido numa zona residencial. No entanto, este terreno fica ligeiramente afastado, podendo usufruir da calma e tranquilidade depois de um longo dia de trabalho, com uma vista fantástica para a Serra de Montejunto. Desde a compra do terreno à construção da moradia, está incluído o projeto de arquitetura, os projetos de especialidades e as licenças e taxas camarárias...chave na mão! A construção será iniciada após a reserva e aprovação do projeto camarário, com previsão de entrega até 12 meses mediante a necessidade. No entanto, este projeto pode ser adaptado às suas ideias ou orçamento. Composta por: - Sala e cozinha open space - 2 Quartos com roupeiro embutido - 1 Quarto Suite com roupeiro embutido e wc privado - Casa de Banho social - Abrigo para automóvel Características: - Janelas PVC com vidro duplo e corte térmico; - Chão flutuante; - Estores elétricos; - Painéis Solares; - Pré-aquecimento de Ar-condicionado sem aparelhos; - Cozinha não equipada; - Piscina (opcional). Área do lote: cerca 800 m2. Localizado junto a todo tipo de comércio e serviços, transportes públicos e escolas nas proximidades. A: - 10 minutos do jardim Budha Eden; - 10 minutos da autoestrada A8 (Bombarral); - 20 minutos de Torres Vedras; - 20 minutos das Caldas da Rainha; - 20 a 30 minutos das praias do Oeste: Santa Cruz, Areia Branca, Foz do Arelho, Peniche, Baleal, São Martinho do Porto e Nazaré; - 30 minutos da autoestrada A1; - 50 minutos de Lisboa e o Aeroporto. Venha conhecer o Oeste! Marque já a sua visita! Disponibilidade aos fins de semana. #ref: 90961
AMI: 11220
Ref. Externa: 90961
Id: 383170
Inicie sessão para guardar este imóvel e aceder à sua lista de favoritos em qualquer dispositivo.
Área de terreno : 10000 m²
OPORTUNIDADE ÚNICA | PARCELA DE TERRENO TOTALMENTE URBANA com parecer favorável de viabilidade de construção aprovado para construção de moradias, sendo possível executar por fases. Descubra este magnífico terreno com cerca de 10,000 m2, menos do que 20€/m2. Terreno com pinheiros mansos com rentabilide anual. Pode contar com uma vista privilegiada a sul para a Serra de Montejunto e com excelente exposição solar. Se é Investidor e procura construir moradias, este terreno tem imenso potencial encontrando-se junto à vila do Cadaval, distrito de Lisboa. Existe já elevatória sanitária construída aquando do primeiro loteamento de 5 lotes. Próximo de todos os serviços e comércio, escolas e transportes públicos. Localizado junto à vila do Cadaval e a cerca de 5 minutos da Autoestrada do Oeste A8 - (Saída Bombarral), este terreno combina a tranquilidade do campo com a proximidade das comodidades urbanas. Caso seja necessário, tratamos ainda do seu processo de financiamento de crédito, de forma totalmente gratuita, disponibilizado de um departamento especializado e protocolado, apresentando as mais condições benéficas e soluções para si junto das entidades bancárias, através de intermediação de crédito vinculada e certificado pelo Banco de Portugal. Não perca esta oportunidade única de investimento. Entre em contacto comigo para mais informações e agende já a sua visita!! #ref: 79923
AMI: 11220
Ref. Externa: 79923
Id: 257995
Inicie sessão para guardar este imóvel e aceder à sua lista de favoritos em qualquer dispositivo.
Inicie sessão para ocultar este imóvel das suas pesquisas e manter a sua lista de resultados organizada.
Isolete Lemos
Consultor imobiliário em IAD Holding - AMI: 11220
Compre créditos para poder destacar os seus imóveis! Desta forma eles são os primeiros a aparecer nas pesquisas e têm uma maior chance de serem vistos pelos utilizadores.
© Copyright 2023 | CASACERTA. All rights reserved
Guardar favoritos
Este imóvel foi guardados nos seus favoritos com sucesso.
Para poder guardar pesquisa deverá ter a sua sessão iniciada.
Caso não tenha uma conta, deverá criar uma.
A sua pesquisa foi guardada com sucesso!
Este site utiliza cookies. Ao navegar no site estará a consentir a sua utilização.
Para mais informações sobre os cookies pode consultar a
política de privacidade.