Consultor imobiliário em Nest Private - AMI: 16105
Comprar
Arrendar
2 Quartos
Área bruta : 54 m²
Este encantador apartamento T2, localizado na vibrante cidade do Porto, apresenta um interior cuidadosamente projetado que combina elegância e conforto. Ao entrar no imóvel, somos imediatamente acolhidos por uma ampla sala de estar iluminada pela luz natural que entra generosamente pelas janelas. As paredes em tons neutros conferem ao espaço uma sensação de amplitude e serenidade. A cozinha adjacente é moderna e funcional, equipada com eletrodomésticos de última geração e acabamentos contemporâneos que garantem praticidade no dia a dia. No exterior do edifício destaca-se a sua arquitectura clássica integrada harmoniosamente nas ruas históricas da zona envolvente. O prédio possui áreas comuns bem conservadas onde os moradores podem desfrutar momentos agradáveis; inclui um pátio ajardinado ideal para relaxamento ou socialização entre vizinhos. Além disso, há estacionamento disponível para maior comodidade dos residentes – um verdadeiro privilégio numa área urbana como esta. Situado num bairro dinâmico del Porto, o apartamento beneficia da proximidade a diversas infraestruturas essenciais: transportes públicos eficientes permitem fácil acesso às principais zonas comerciais e culturais da cidade. Para além disso, as opções gastronómicas são vastas¸ desde tradicionais tascas até restaurantes modernos; tudo isto em distâncias curtas a pé ou através das vias circundantes tranquilas mas animadas. Por último, vale ressaltar o charme singular deste imóvel - ele não é apenas uma casa; representa também uma oportunidade única para viver plenamente a essência portuense! Com vistas deslumbrantes sobre pontos icónicos locais disponíveis diretamente das suas janelas durante cada pôr-do-sol esplendoroso , este T2 oferece mais do que mero abrigo: proporciona qualidade à vida diária dos seus habitantes. Descrição criada por Inteligência Artificial
AMI: 16105
Ref. Externa: 2602
Id: 1649291
Inicie sessão para guardar este imóvel e aceder à sua lista de favoritos em qualquer dispositivo.
2 Quartos
Área bruta : 70 m²
Este excelente apartamento T2, situado na vibrante cidade do Porto, revela um interior cuidadosamente pensado que alia conforto e funcionalidade. Ao entrar no imóvel, somos imediatamente recebidos por uma sala de estar ampla e luminosa, onde a luz natural flui através das janelas generosas. A cozinha é moderna e equipada com electrodomésticos de última geração, proporcionando um espaço ideal tanto para refeições íntimas como para receber amigos. Os quartos são bem dimensionados; o principal dispõe ainda de varanda privativa que convida à contemplação dos primeiros raios de sol ao amanhecer. No exterior do edifício encontramos áreas comuns muito agradáveis que elevam a qualidade deste empreendimento habitacional. O prédio beneficia da presença de jardins paisagísticos meticulosamente cuidados nas proximidades da entrada principal e oferece zonas recreativas destinadas ao lazer dos residentes mais jovens ou menos jovens. Além disso, existe também estacionamento privado disponível aos condóminos em local seguro. Localizado numa zona privilegiada da cidade invicta, este apartamento está inserido num bairro caracterizado pela sua tranquilidade enquanto se encontra próximo das principais artérias comerciais e culturais do Porto. Com fácil acesso a transportes públicos eficazes – incluindo metro и autocarros – permite deslocações rápidas pelo centro histórico ou rumo às deslumbrantes margens do Douro River. O encanto especial deste imóvel reside não apenas nas suas características intrínsecas mas também na sensação acolhedora inerente à vida nesta área pitoresca da cidade portuense: os aromas emanando das pastelarias locais misturam-se com as sussurros nostálgicos vindos destas ruas antigas repletas história - criando assim uma verdadeira experiência residencial ímpar! Descrição criada por Inteligência Artificial
AMI: 16105
Ref. Externa: 2601
Id: 1612910
Inicie sessão para guardar este imóvel e aceder à sua lista de favoritos em qualquer dispositivo.
385.000 €
2 Quartos
2 WCs
Área bruta : 109 m²
Este apartamento T2, situado no coração do Porto, apresenta um ambiente interior sofisticado e acolhedor. Ao entrar, somos recebidos por uma sala luminosa que combina a modernidade com toques clássicos na sua decoração. As amplas janelas proporcionam abundante luz natural e vistas encantadoras da cidade. A cozinha está equipada com eletrodomésticos de última geração e armários elegantes em madeira clara, oferecendo um espaço funcional para preparar refeições deliciosas. Os dois quartos são espaçosos; o dormitório principal conta ainda com casa de banho privativa que assegura total conforto aos seus habitantes. No exterior, o edifício exibe uma fachada imponente típica da arquitetura portuense, rodeada por áreas comuns bem cuidadas onde os residentes podem relaxar ou socializar entre si. O imóvel beneficia também de acesso a um jardim privado harmoniosamente ajardinado que proporciona momentos agradáveis ao ar livre num ambiente tranquilo longe do bulício urbano. Adicionalmente, dispõe de lugares reservados para estacionar viaturas nas proximidades e segurança 24 horas. Localizado numa das zonas mais vibrantes do Porto, este apartamento encontra-se próximo dos principais pontos turísticos da cidade como a Ribeira ou a Torre dos Clérigos. Transportes públicos acessíveis tornam todo o tipo de deslocações muito simples tanto dentro quanto fora da cidade invicta! Nas redondezas pode desfrutar igualmente das melhores opções gastronómicas locais além disso poderá encontrar comércio variado à distância confortável - perfeito para quem busca conveniência sem abrir mão desta metrópole histórica cheia d' charme! Um pormenor único deste imóvel é o encanto histórico associado à zona circundante: cada rua traz consigo histórias passadas enquanto as casas mantém traços arquitetónicos belíssimos típicos daquela época dourada portuguesa! Este apartamento não é apenas mais uma propriedade; ele representa qualidade habitacional aliando confortabilidade moderna ao requinte tradicional – ideal seja qual for seu estilo pessoal. Descrição criada por Inteligência Artificial
AMI: 16105
Ref. Externa: 25591
Id: 1389558
Inicie sessão para guardar este imóvel e aceder à sua lista de favoritos em qualquer dispositivo.
399.000 €
2 Quartos
2 WCs
Área bruta : 104 m²
Este apartamento T2, situado no coração do Porto, apresenta um ambiente interior sofisticado e acolhedor. Ao entrar, somos recebidos por uma sala luminosa que combina a modernidade com toques clássicos na sua decoração. As amplas janelas proporcionam abundante luz natural e vistas encantadoras da cidade. A cozinha está equipada com eletrodomésticos de última geração e armários elegantes em madeira clara, oferecendo um espaço funcional para preparar refeições deliciosas. Os dois quartos são espaçosos; o dormitório principal conta ainda com casa de banho privativa que assegura total conforto aos seus habitantes. No exterior, o edifício exibe uma fachada imponente típica da arquitetura portuense, rodeada por áreas comuns bem cuidadas onde os residentes podem relaxar ou socializar entre si. O imóvel beneficia também de acesso a um jardim privado harmoniosamente ajardinado que proporciona momentos agradáveis ao ar livre num ambiente tranquilo longe do bulício urbano. Adicionalmente, dispõe de lugares reservados para estacionar viaturas nas proximidades e segurança 24 horas. Localizado numa das zonas mais vibrantes do Porto, este apartamento encontra-se próximo dos principais pontos turísticos da cidade como a Ribeira ou a Torre dos Clérigos. Transportes públicos acessíveis tornam todo o tipo de deslocações muito simples tanto dentro quanto fora da cidade invicta! Nas redondezas pode desfrutar igualmente das melhores opções gastronómicas locais além disso poderá encontrar comércio variado à distância confortável - perfeito para quem busca conveniência sem abrir mão desta metrópole histórica cheia d' charme! Um pormenor único deste imóvel é o encanto histórico associado à zona circundante: cada rua traz consigo histórias passadas enquanto as casas mantém traços arquitetónicos belíssimos típicos daquela época dourada portuguesa! Este apartamento não é apenas mais uma propriedade; ele representa qualidade habitacional aliando confortabilidade moderna ao requinte tradicional – ideal seja qual for seu estilo pessoal. Descrição criada por Inteligência Artificial
AMI: 16105
Ref. Externa: 2590
Id: 1386152
Inicie sessão para guardar este imóvel e aceder à sua lista de favoritos em qualquer dispositivo.
4 Quartos
4 WCs
Área bruta : 393 m²
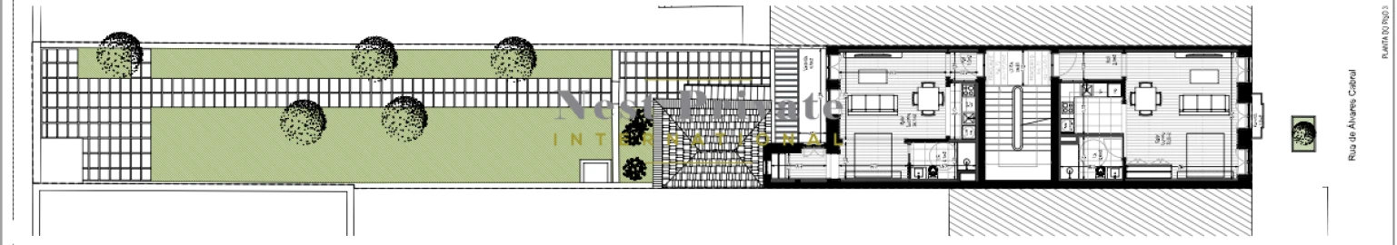
Viva no topo. Viva diferente. Imagine-se a abrir as cortinas de uma penthouse duplex única com mais de 245 m² de área interior e 100 m² de varandas que envolvem toda a casa. A vista? Um cenário aberto que acompanha o nascer e o pôr do sol. Aqui, cada detalhe foi pensado para quem procura mais do que uma casa - procura um refúgio exclusivo no coração do Campo Alegre, a poucos passos do Parque da Cidade, das melhores escolas e de tudo o que a vida moderna exige. O imóvel é arrendado com cozinha equipada e sem mobiliário incluido. Porque este apartamento é único? - Uma Penthouse Espetacular - privacidade total - Cozinha renovada e ampla sala com varandas a toda a volta - Escritório com muita Luminosidade - o luxo de relaxar sem sair de casa - Suítes luminosas no piso superior, cada uma com varanda própria - Garagem para dois carros. Aqui não há compromissos: espaço, conforto, luz e exclusividade vivem lado a lado. Se procura um lar que combine o melhor da cidade com a tranquilidade de um refúgio privado, esta penthouse é para si. Condições de Arrendamento: - Quatro rendas de entrada Entre em contacto comigo via WhatsApp ( (telefone) e venha descobrir como é viver no topo. A Nest Private é uma empresa do sector imobiliário que actua no mercado de Administração e Vendas de Imóveis há mais Uma década. Com um padrão de seriedade na prestação de serviços imobiliários, procura realizar bons negócios com eficiência, proporcionando assim, tranquilidade aos seus clientes. Criada originalmente para vender empreendimentos de luxo, ao longo dos anos a Nest Private tem ampliado a sua atuação para outros segmentos do mercado, incluindo imóveis residenciais, comerciais, industriais e de lazer em todo o país. Apoiada pelo profissionalismo e seriedade, a Nest Private está colocada entre as maiores imobiliárias do Porto, que, ao longo dos anos, tem tido o privilégio de promover vários empreendimentos em regime de exclusividade. Categoria Energética: B
AMI: 16105
Ref. Externa: 2589
Id: 1378299
Inicie sessão para guardar este imóvel e aceder à sua lista de favoritos em qualquer dispositivo.
3 Quartos
3 WCs
Área bruta : 150 m²
O APARTAMENTO, COM ORIENTAÇÃO NASCENTE/POENTE, CONJUGA DESIGN, CONFORTO E FUNCIONALIDADE, DESTINANDO-SE A UM PÚBLICO QUE PRIVILEGIA VIVER NA MAIS PRESTIGIADA ZONA RESIDENCIAL DO PORTO, JUNTO À AV. MARECHAL GOMES DA COSTA E NA ENVOLVENTE DO PARQUE DA CIDADE, DA FOZ, DA UNIVERSIDADE CATÓLICA E DOS MELHORES COLÉGIOS DO PORTO. A EXCELENTE REDE DE TRANSPORTES PÚBLICOS DE QUE DISPÕE, COM DESTAQUE PARA O METRO BUS, COLOCA O APARTAMENTO A ESCASSOS MINUTOS DA ROTUNDA DA BOAVISTA, DO CENTRO DA CIDADE, DA FOZ E DAS PRAIAS. O APARTAMENTO DISPÕE DE 2 LUGARES DE ESTACIONAMENTO.
AMI: 16105
Ref. Externa: 2557
Id: 1196374
Inicie sessão para guardar este imóvel e aceder à sua lista de favoritos em qualquer dispositivo.
3 Quartos
3 WCs
Área bruta : 335 m²
O APARTAMENTO, COM ORIENTAÇÃO NASCENTE/POENTE, CONJUGA DESIGN, CONFORTO E FUNCIONALIDADE, DESTINANDO-SE A UM PÚBLICO QUE PRIVILEGIA VIVER NA MAIS PRESTIGIADA ZONA RESIDENCIAL DO PORTO, JUNTO À AV. MARECHAL GOMES DA COSTA E NA ENVOLVENTE DO PARQUE DA CIDADE, DA FOZ, DA UNIVERSIDADE CATÓLICA E DOS MELHORES COLÉGIOS DO PORTO. A EXCELENTE REDE DE TRANSPORTES PÚBLICOS DE QUE DISPÕE, COM DESTAQUE PARA O METRO BUS, COLOCA O APARTAMENTO A ESCASSOS MINUTOS DA ROTUNDA DA BOAVISTA, DO CENTRO DA CIDADE, DA FOZ E DAS PRAIAS. O APARTAMENTO DISPÕE DE 2 LUGARES DE ESTACIONAMENTO.
AMI: 16105
Ref. Externa: 2555
Id: 1196372
Inicie sessão para guardar este imóvel e aceder à sua lista de favoritos em qualquer dispositivo.
4 Quartos
4 WCs
Área bruta : 490 m²
O APARTAMENTO DUPLEX, COM ORIENTAÇÃO NASCENTE/POENTE, CONJUGA DESIGN, CONFORTO E FUNCIONALIDADE, DESTINANDO-SE A UM PÚBLICO QUE PRIVILEGIA VIVER NA MAIS PRESTIGIADA ZONA RESIDENCIAL DO PORTO, JUNTO À AV. MARECHAL GOMES DA COSTA E NA ENVOLVENTE DO PARQUE DA CIDADE, DA FOZ, DA UNIVERSIDADE CATÓLICA E DOS MELHORES COLÉGIOS DO PORTO. A EXCELENTE REDE DE TRANSPORTES PÚBLICOS DE QUE DISPÕE, COM DESTAQUE PARA O METRO BUS, COLOCA O APARTAMENTO A ESCASSOS MINUTOS DA ROTUNDA DA BOAVISTA, DO CENTRO DA CIDADE, DA FOZ E DAS PRAIAS. O APARTAMENTO DISPÕE DE 4 LUGARES DE ESTACIONAMENTO.
AMI: 16105
Ref. Externa: 2554
Id: 1196371
Inicie sessão para guardar este imóvel e aceder à sua lista de favoritos em qualquer dispositivo.
1 Quartos
1 WCs
Área bruta : 43 m²
Situado na Travessa do Agueiro, Nº 40 e 42, o este empreendimento no qual se encontra inserido o apartamento, posiciona-se estrategicamente no centro de Vila Nova de Gaia, uma das cidades mais dinâmicas da Área Metropolitana do Porto. Este local oferece proximidade a tudo o que precisa: comércio, restaurantes, escolas e serviços essenciais, tudo a uma curta distância a pé ou de transportes públicos. A excelente rede rodoviária e ferroviária liga-o facilmente às cidades vizinhas e ao centro histórico do Porto. O Tetris foi pensado para quem procura viver no coração da cidade, mas sem abdicar de conforto e tranquilidade. Aqui, tudo está ao seu alcance. Os apartamentos refletem uma visão arquitetónica inovadora. Os interiores são projetados para maximizar a funcionalidade e o conforto, oferecendo layouts que se adaptam a diferentes estilos de vida. Grandes janelas trazem luz natural abundante, enquanto os materiais e acabamentos de alta qualidade garantem durabilidade e sofisticação. O imóvel apresenta a solução perfeita para quem procura unir estilo e praticidade. Os apartamentos foram projetados para oferecer a perfeita combinação de conforto e modernidade, com acabamentos de alta qualidade e uma atenção meticulosa ao detalhe. Cada unidade foi planeada para maximizar a luz natural e a funcionalidade, garantindo espaços amplos e bem distribuídos. No empreendimento, a vida é projetada para ser mais prática e prazerosa. Entre as suas comodidades destaca-se um ginásio totalmente equipado, perfeito para manter uma rotina saudável sem sair de casa. Cada detalhe foi cuidadosamente pensado para elevar o seu padrão de vida e proporcionar experiências únicas aos residentes deste empreendimento único. A NESTPRIVATE é uma empresa do setor imobiliário que atua no mercado de Administração, Mediação e Compra e Venda de Imóveis. Com um padrão de seriedade na prestação de serviços imobiliários, procura realizar bons negócios com eficiência, proporcionando assim, tranquilidade e confiança aos NOSSOS clientes. A concretização dos sonhos dos nossos clientes é a nossa prioridade. Foco constante na solução.
AMI: 16105
Ref. Externa: 2547
Id: 1196363
Inicie sessão para guardar este imóvel e aceder à sua lista de favoritos em qualquer dispositivo.
350.000 €
2 Quartos
1 WCs
Área bruta : 100 m²
Este encantador apartamento T2+1, situado na vibrante cidade do Porto, apresenta um interior harmonioso que combina conforto e funcionalidade. A cozinha está equipada com materiais modernos de elevada qualidade e integra-se perfeitamente à zona da refeição, criando um espaço ideal para convívios familiares ou sociais. Os quartos são acolhedores e proporcionam tranquilidade após um dia agitado. O espaço adicional pode ser adaptado a escritório ou quarto extra conforme as necessidades do futuro proprietário. No exterior deste elegante edifício predomina uma estética contemporânea enquanto mantém elementos tradicionais típicos da arquitetura portuense. As áreas comuns foram cuidadosamente planeadas para proporcionar aos residentes momentos agradáveis: contamos com espaços bem cuidados onde se poderá relaxar ao ar livre e com um ginásio totalmente equipado com aparelhos fitness para que possa exercitar e cuidar da sua saúde e bem estar sem ter de sair do local de residência. Localizado numa das mais prestigiadas artérias da cidade invicta, este apartamento beneficia não apenas pela proximidade às principais vias de acesso como também pelas diversas opções culturais circundantes, tornando-o perfeito tanto para quem deseja disfrutar intensamente tudo aquilo que o Porto tem para oferecer quanto aqueles em busca duma vida tranquila num ambiente urbano dinâmico acessível facilmente através dos transportes públicos eficazmente interligados. Seja para estudar, trabalhar, ou simplesmente desfrutar da vida urbana, este apartamento oferece uma experiência de vida descomplicada, sustentável e cheia de estilo, perfeitamente integrado na vibrante cidade do Porto. A NESTPRIVATE é uma empresa do setor imobiliário que atua no mercado de Administração, Mediação e Compra e Venda de Imóveis. Com um padrão de seriedade na prestação de serviços imobiliários, procura realizar bons negócios com eficiência, proporcionando assim, tranquilidade e confiança aos NOSSOS clientes. A concretização dos sonhos dos nossos clientes é a nossa prioridade. Foco constante na solução.
AMI: 16105
Ref. Externa: 2539
Id: 1196356
Inicie sessão para guardar este imóvel e aceder à sua lista de favoritos em qualquer dispositivo.
360.000 €
2 Quartos
1 WCs
Área bruta : 102 m²
Este encantador apartamento T2+1, situado na vibrante cidade do Porto, apresenta um interior harmonioso que combina conforto e funcionalidade. A cozinha está equipada com materiais modernos de elevada qualidade e integra-se perfeitamente à zona da refeição, criando um espaço ideal para convívios familiares ou sociais. Os quartos são acolhedores e proporcionam tranquilidade após um dia agitado. O espaço adicional pode ser adaptado a escritório ou quarto extra conforme as necessidades do futuro proprietário. No exterior deste elegante edifício predomina uma estética contemporânea enquanto mantém elementos tradicionais típicos da arquitetura portuense. As áreas comuns foram cuidadosamente planeadas para proporcionar aos residentes momentos agradáveis: contamos com espaços bem cuidados onde se poderá relaxar ao ar livre e com um ginásio totalmente equipado com aparelhos fitness para que possa exercitar e cuidar da sua saúde e bem estar sem ter de sair do local de residência. Localizado numa das mais prestigiadas artérias da cidade invicta, este apartamento beneficia não apenas pela proximidade às principais vias de acesso como também pelas diversas opções culturais circundantes, tornando-o perfeito tanto para quem deseja disfrutar intensamente tudo aquilo que o Porto tem para oferecer quanto aqueles em busca duma vida tranquila num ambiente urbano dinâmico acessível facilmente através dos transportes públicos eficazmente interligados. Seja para estudar, trabalhar, ou simplesmente desfrutar da vida urbana, este apartamento oferece uma experiência de vida descomplicada, sustentável e cheia de estilo, perfeitamente integrado na vibrante cidade do Porto. A NESTPRIVATE é uma empresa do setor imobiliário que atua no mercado de Administração, Mediação e Compra e Venda de Imóveis. Com um padrão de seriedade na prestação de serviços imobiliários, procura realizar bons negócios com eficiência, proporcionando assim, tranquilidade e confiança aos NOSSOS clientes. A concretização dos sonhos dos nossos clientes é a nossa prioridade. Foco constante na solução.
AMI: 16105
Ref. Externa: 2538
Id: 1196355
Inicie sessão para guardar este imóvel e aceder à sua lista de favoritos em qualquer dispositivo.
Área bruta : 520 m²
Imóvel com projeto aprovado e licenças pagas. Situado numa importante rua da vibrante cidade do Porto, caracteriza-se por ser um prédio com capacidade para serem construídos 6 apartamentos, distribuídos por 4 pisos. No projeto aprovado, os apartamentos serão de tipologia T0, T1 e T2, e, todos eles foram cuidadosamente pensados para permitir a criação de um espaço acolhedor. O imóvel exala notoriedade, elegância e conforto. É sem dúvida uma mistura entre classe e funcionalidade. No exterior deste edifício destoam as características arquitectónicas clássicas da zona enquanto o mesmo se integra harmoniosamente no tecido urbano circundante; destaca-se pela sua fachada bem conservada e detalhes artísticos tradicionais típicos do Porto. As áreas comuns e o jardim foram pensadas para o usufruto dos residentes: áreas onde podem relaxar após um dia agitado ou socializar com vizinhos num ambiente descontraído mas sofisticado. Localizado em pleno coração da cidade invicta, este imóvel encontra-se próximo das principais artérias da cidade como a Avenida dos Aliados, a Rua da Boavista, a Praça da República, entre outras. Nas proximidades do imóvel existe uma variada oferta de transportes públicos, desde metro e autocarros a 1 minuto de distância a pé e comboio nas redondezas. Dispõe também de acessibilidade muito próxima a todo o tipo de superfícies comerciais, como supermercados, farmácias, restaurantes, cafés, etc. Esta localização privilegiada oferece diversas possibilidades recreativas nas proximidades, nomeadamente pelas históricas ruas repletas de cultura local e tradição. Este empreendimento não oferece apenas uma espaço confortável a quem usufrui do mesmo mas, também, promove uma verdadeira experiência urbana rica! Não perca esta oportunidade única! A NESTPRIVATE é uma empresa do setor imobiliário que atua no mercado de Administração, Mediação e Compra e Venda de Imóveis. Com um padrão de seriedade na prestação de serviços imobiliários, procura realizar bons negócios com eficiência, proporcionando assim, tranquilidade e confiança aos NOSSOS clientes. A concretização dos sonhos dos nossos clientes é a nossa prioridade. Foco constante na solução.
AMI: 16105
Ref. Externa: 2542
Id: 1196359
Inicie sessão para guardar este imóvel e aceder à sua lista de favoritos em qualquer dispositivo.
249.000 €
1 Quartos
1 WCs
Área bruta : 60 m²
Este encantador apartamento T1, situado na vibrante cidade do Porto, apresenta um interior harmonioso que combina conforto e funcionalidade. A cozinha está equipada com materiais modernos de elevada qualidade e integra-se perfeitamente à zona da refeição, criando um espaço ideal para convívios familiares ou sociais. O quarto é acolhedor e proporciona tranquilidade após um dia agitado. No exterior deste elegante edifício predomina uma estética contemporânea enquanto mantém elementos tradicionais típicos da arquitetura portuense. As áreas comuns foram cuidadosamente planeadas para proporcionar aos residentes momentos agradáveis: contamos com espaços bem cuidados onde se poderá relaxar ao ar livre e com um ginásio totalmente equipado com aparelhos fitness para que possa exercitar e cuidar da sua saúde e bem estar sem ter de sair do local de residência. Localizado numa das mais prestigiadas artérias da cidade invicta, este apartamento beneficia não apenas pela proximidade às principais vias de acesso como também pelas diversas opções culturais circundantes, tornando-o perfeito tanto para quem deseja disfrutar intensamente tudo aquilo que o Porto tem para oferecer quanto aqueles em busca duma vida tranquila num ambiente urbano dinâmico acessível facilmente através dos transportes públicos eficazmente interligados. Seja para estudar, trabalhar, ou simplesmente desfrutar da vida urbana, este apartamento oferece uma experiência de vida descomplicada, sustentável e cheia de estilo, perfeitamente integrado na vibrante cidade do Porto. A NESTPRIVATE é uma empresa do setor imobiliário que atua no mercado de Administração, Mediação e Compra e Venda de Imóveis. Com um padrão de seriedade na prestação de serviços imobiliários, procura realizar bons negócios com eficiência, proporcionando assim, tranquilidade e confiança aos NOSSOS clientes. A concretização dos sonhos dos nossos clientes é a nossa prioridade. Foco constante na solução.
AMI: 16105
Ref. Externa: 2541
Id: 1196358
Inicie sessão para guardar este imóvel e aceder à sua lista de favoritos em qualquer dispositivo.
1 WCs
Área bruta : 35 m²
Situado na Travessa do Agueiro, Nº 40 e 42, o este empreendimento no qual se encontra inserido o apartamento, posiciona-se estrategicamente no centro de Vila Nova de Gaia, uma das cidades mais dinâmicas da Área Metropolitana do Porto. Este local oferece proximidade a tudo o que precisa: comércio, restaurantes, escolas e serviços essenciais, tudo a uma curta distância a pé ou de transportes públicos. A excelente rede rodoviária e ferroviária liga-o facilmente às cidades vizinhas e ao centro histórico do Porto. O Tetris foi pensado para quem procura viver no coração da cidade, mas sem abdicar de conforto e tranquilidade. Aqui, tudo está ao seu alcance. Os apartamentos refletem uma visão arquitetónica inovadora. Os interiores são projetados para maximizar a funcionalidade e o conforto, oferecendo layouts que se adaptam a diferentes estilos de vida. Grandes janelas trazem luz natural abundante, enquanto os materiais e acabamentos de alta qualidade garantem durabilidade e sofisticação. O imóvel apresenta a solução perfeita para quem procura unir estilo e praticidade. Os apartamentos foram projetados para oferecer a perfeita combinação de conforto e modernidade, com acabamentos de alta qualidade e uma atenção meticulosa ao detalhe. Cada unidade foi planeada para maximizar a luz natural e a funcionalidade, garantindo espaços amplos e bem distribuídos. No empreendimento, a vida é projetada para ser mais prática e prazerosa. Entre as suas comodidades destaca-se um ginásio totalmente equipado, perfeito para manter uma rotina saudável sem sair de casa. Cada detalhe foi cuidadosamente pensado para elevar o seu padrão de vida e proporcionar experiências únicas aos residentes deste empreendimento único. A NESTPRIVATE é uma empresa do setor imobiliário que atua no mercado de Administração, Mediação e Compra e Venda de Imóveis. Com um padrão de seriedade na prestação de serviços imobiliários, procura realizar bons negócios com eficiência, proporcionando assim, tranquilidade e confiança aos NOSSOS clientes. A concretização dos sonhos dos nossos clientes é a nossa prioridade. Foco constante na solução.
AMI: 16105
Ref. Externa: 2544
Id: 1196361
Inicie sessão para guardar este imóvel e aceder à sua lista de favoritos em qualquer dispositivo.
245.000 €
1 Quartos
1 WCs
Área bruta : 58 m²
Este encantador apartamento T1, situado na vibrante cidade do Porto, apresenta um interior harmonioso que combina conforto e funcionalidade. A cozinha está equipada com materiais modernos de elevada qualidade e integra-se perfeitamente à zona da refeição, criando um espaço ideal para convívios familiares ou sociais. O quarto é acolhedor e proporciona tranquilidade após um dia agitado. No exterior deste elegante edifício predomina uma estética contemporânea enquanto mantém elementos tradicionais típicos da arquitetura portuense. As áreas comuns foram cuidadosamente planeadas para proporcionar aos residentes momentos agradáveis: contamos com espaços bem cuidados onde se poderá relaxar ao ar livre e com um ginásio totalmente equipado com aparelhos fitness para que possa exercitar e cuidar da sua saúde e bem estar sem ter de sair do local de residência. Localizado numa das mais prestigiadas artérias da cidade invicta, este apartamento beneficia não apenas pela proximidade às principais vias de acesso como também pelas diversas opções culturais circundantes, tornando-o perfeito tanto para quem deseja disfrutar intensamente tudo aquilo que o Porto tem para oferecer quanto aqueles em busca duma vida tranquila num ambiente urbano dinâmico acessível facilmente através dos transportes públicos eficazmente interligados. Seja para estudar, trabalhar, ou simplesmente desfrutar da vida urbana, este apartamento oferece uma experiência de vida descomplicada, sustentável e cheia de estilo, perfeitamente integrado na vibrante cidade do Porto. A NESTPRIVATE é uma empresa do setor imobiliário que atua no mercado de Administração, Mediação e Compra e Venda de Imóveis. Com um padrão de seriedade na prestação de serviços imobiliários, procura realizar bons negócios com eficiência, proporcionando assim, tranquilidade e confiança aos NOSSOS clientes. A concretização dos sonhos dos nossos clientes é a nossa prioridade. Foco constante na solução.
AMI: 16105
Ref. Externa: 2540
Id: 1196357
Inicie sessão para guardar este imóvel e aceder à sua lista de favoritos em qualquer dispositivo.
285.000 €
1 Quartos
1 WCs
Área bruta : 70 m²
Este encantador apartamento T1, situado na vibrante cidade do Porto, apresenta um interior harmonioso que combina conforto e funcionalidade. A cozinha está equipada com materiais modernos de elevada qualidade e integra-se perfeitamente à zona da refeição, criando um espaço ideal para convívios familiares ou sociais. O quarto principal é acolhedor e proporciona tranquilidade após um dia agitado. No exterior deste elegante edifício predomina uma estética contemporânea enquanto mantém elementos tradicionais típicos da arquitetura portuense. As áreas comuns foram cuidadosamente planeadas para proporcionar aos residentes momentos agradáveis: contamos com espaços bem cuidados onde se poderá relaxar ao ar livre e com um ginásio totalmente equipado com aparelhos fitness para que possa exercitar e cuidar da sua saúde e bem estar sem ter de sair do local de residência. Localizado numa das mais prestigiadas artérias da cidade invicta, este apartamento beneficia não apenas pela proximidade às principais vias de acesso como também pelas diversas opções culturais circundantes, tornando-o perfeito tanto para quem deseja disfrutar intensamente tudo aquilo que o Porto tem para oferecer quanto aqueles em busca duma vida tranquila num ambiente urbano dinâmico acessível facilmente através dos transportes públicos eficazmente interligados. Seja para estudar, trabalhar, ou simplesmente desfrutar da vida urbana, este apartamento oferece uma experiência de vida descomplicada, sustentável e cheia de estilo, perfeitamente integrado na vibrante cidade do Porto. A NESTPRIVATE é uma empresa do setor imobiliário que atua no mercado de Administração, Mediação e Compra e Venda de Imóveis. Com um padrão de seriedade na prestação de serviços imobiliários, procura realizar bons negócios com eficiência, proporcionando assim, tranquilidade e confiança aos NOSSOS clientes. A concretização dos sonhos dos nossos clientes é a nossa prioridade. Foco constante na solução.
AMI: 16105
Ref. Externa: 2537
Id: 1196354
Inicie sessão para guardar este imóvel e aceder à sua lista de favoritos em qualquer dispositivo.
750.000 €
5 Quartos
4 WCs
Área bruta : 600 m²
Moradia de rés-do-chão, 1º andar e águas furtadas, com uma área de 400 m2. Possui um Jardim/Logradouro com 2200 m2 e uma dependência para arrumos com 55,75m2. Moradia com uma arquitetura típica de casas de brasileiros torna-viagem, muito característica de moradias. Está localizada em Abraveses, Viseu. A casa tem 5 quartos, várias salas, ideal para um Hotel Boutique ou Casa de Geriatria, podendo ter também uma utilização multifamiliar.
AMI: 16105
Ref. Externa: 2515
Id: 1196339
Inicie sessão para guardar este imóvel e aceder à sua lista de favoritos em qualquer dispositivo.
470.000 €
3 Quartos
3 WCs
Área bruta : 144 m²
Este apartamento T3, situado no coração do Porto, oferece um interior sofisticado e funcional. O espaço é acolhedor, a cozinha em conceito aberto está equipada com modernos eletrodomésticos de última geração e armários elegantes, otimizando o armazenamento sem comprometer o estilo. A área de estar combina conforto e praticidade; o ambiente acolhedor convida à tranquilidade após um dia agitado na cidade. No exterior, os acabamentos são igualmente impressionantes: a fachada do edifício reflete uma arquitetura contemporânea harmoniosamente integrada ao tradicional charme portuense. As áreas comuns incluem espaços bem cuidados onde se pode relaxar ou socializar juntamente aos outros residentes. O prédio dispõe ainda de elevador moderno para conveniência dos moradores e visitantes. A localização deste imóvel não poderia ser mais privilegiada; encontra-se próximo das principais artérias da vida urbana portuense, as acessibilidades ao transporte público permitem deslocações ágeis e eficazes para qualquer zona da cidade Com todas estas características marcantes alinhadas num só lugar – este apartamento apresenta-se como uma oportunidade única para quem procura viver imerso na cultura vibrante do Porto enquanto desfruta simultaneamente das comodidades modernas que tornam cada momento especial no seu novo lar. A NESTPRIVATE é uma empresa do setor imobiliário que atua no mercado de Administração, Mediação e Compra e Venda de Imóveis. Com um padrão de seriedade na prestação de serviços imobiliários, procura realizar bons negócios com eficiência, proporcionando assim, tranquilidade e confiança aos NOSSOS clientes. A concretização dos sonhos dos nossos clientes é a nossa prioridade. Foco constante na solução.
AMI: 16105
Ref. Externa: 2532
Id: 1196348
Inicie sessão para guardar este imóvel e aceder à sua lista de favoritos em qualquer dispositivo.
749.000 €
5 Quartos
6 WCs
Área bruta : 275 m²
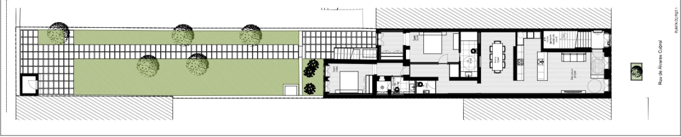
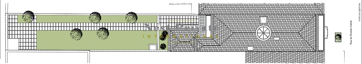
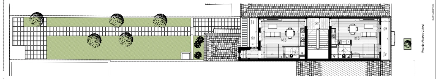
**Duplex T5 de Luxo no Porto: Um Novo Conceito de Vida Familiar** Descobre o novo projeto residencial que redefine o conceito de vida em família no coração do Porto. Este magnífico duplex T5, com 214 m², oferece uma fusão perfeita entre modernidade e conforto, desenhado com atenção ao detalhe para proporcionar uma utilização cómoda e funcional. Localizado no novo centro da cidade, desfruta de uma excelente relação com o exterior, permitindo-te viver o espírito cosmopolita e vibrante do Porto, reconhecido internacionalmente como um destino a descobrir. O edifício, projetado com os mais modernos padrões de construção, garante condições sustentáveis de segurança, salubridade e estética. Com 5 quartos espaçosos e 5 casas de banho, este apartamento oferece amplas áreas para toda a família. Os armários embutidos e a arrecadação proporcionam espaço de arrumação adicional, enquanto os 2 lugares de garagem e a orientação solar sul, este e oeste garantem conforto e conveniência. Com acesso adaptado para pessoas com mobilidade reduzida, ar condicionado e classe energética A+, este duplex é ideal para quem procura um lar moderno e eficiente. A proximidade à Via de Cintura Interna, estação de Metro e uma vasta rede de transportes públicos asseguram uma excelente conectividade. Não percas a oportunidade de viver numa das cidades mais dinâmicas da Europa!
AMI: 16105
Ref. Externa: 2501
Id: 1196333
Inicie sessão para guardar este imóvel e aceder à sua lista de favoritos em qualquer dispositivo.
6 Quartos
8 WCs
Área bruta : 2542 m²
Em pleno coração do Porto, foi reconvertido este Palacete num luxuoso Imóvel no qual os espaços ao ar livre são valorizados. Apresentando uma residência extraordinária no coração do Porto, este Palacete combina na perfeição a grandeza histórica com o luxo moderno. Meticulosamente renovado e pintado por um talentoso artista local para preservar o seu património arquitetónico, esta propriedade é ideal para ser transformada num prestigiado boutique hotel de luxo, escritório ou para a sua própria residência. ***** Detalhes da propriedade ***** * Área total: 1,264 m2 * Área total do terreno: 784 m2 c/ Jardim e Terraço espaçosos * Número de Quartos: 6 * Casas de banho: 8 * Número total de divisões: 28 * Espaços adicionais: Grande Garagem, Sala de Cinema, Lounge com Bar, Sala de Jogos, Adega, Piscina Interior com Bar e possibilidade de fazer um Spa, Ginásio, Biblioteca, Escritório, Lavandaria, Sala de Pânico, Salas de Estar, Sala de Jantar, Cozinha Totalmente Equipada c/ Despensa e Aparelhos Gaggenau, Vários Espaços de Arrumação. * Estacionamento: Garagem segura e privada para 5 carros, lugares de estacionamento adicionais fora da garagem. ***** Características principais ***** * Localização privilegiada: Situado no vibrante centro do Porto (Cedofeita), oferecendo acesso inigualável aos marcos culturais da cidade, restaurantes gourmet e lojas de luxo. * Charme histórico: Uma fachada cuidadosamente restaurada e interiores que mantêm a elegância do seu design original, com pinturas feitas à mão, molduras intrincadas, acessórios antigos e acabamentos opulentos. * Amenities modernas: Cuidadosamente atualizado para incluir comodidades de última geração sem comprometer a sua integridade histórica. * Espaçoso: Quartos amplos com tectos altos, janelas grandes Destaques do investimento: * Potencial para Hotel Boutique de Luxo: Com o seu charme único e localização privilegiada, esta propriedade está pronta para se tornar um destino de topo e o mais vibrante da cidade do Porto. * Pólo de Turismo em Crescimento: O rápido aumento da popularidade do Porto como destino turístico assegura uma elevada procura de alojamentos de luxo. Elevada procura de experiências únicas e extraordinárias. * Flexibilidade: O layout versátil da propriedade permite várias configurações para se adequar a diferentes modelos de negócio e experiências dos hóspedes. Este Palacete é mais do que um simples imóvel; é uma oportunidade de possuir um pedaço da história do Porto, ao mesmo tempo que capitaliza a indústria do turismo em expansão na cidade. A NESTPRIVATE é uma empresa do setor imobiliário que atua no mercado de Administração, Mediação e Compra e Venda de Imóveis. Com um padrão de seriedade na prestação de serviços imobiliários, procura realizar bons negócios com eficiência, proporcionando assim, tranquilidade e confiança aos NOSSOS clientes. A concretização dos sonhos dos nossos clientes é a nossa prioridade. Foco constante na solução. Contacte hoje para uma visita privada.
AMI: 16105
Ref. Externa: 2520
Id: 1196342
Inicie sessão para guardar este imóvel e aceder à sua lista de favoritos em qualquer dispositivo.
Inicie sessão para ocultar este imóvel das suas pesquisas e manter a sua lista de resultados organizada.
Nest Private
Consultor imobiliário em Nest Private - AMI: 16105
Compre créditos para poder destacar os seus imóveis! Desta forma eles são os primeiros a aparecer nas pesquisas e têm uma maior chance de serem vistos pelos utilizadores.
© Copyright 2023 | CASACERTA. All rights reserved
Guardar favoritos
Este imóvel foi guardados nos seus favoritos com sucesso.
Para poder guardar pesquisa deverá ter a sua sessão iniciada.
Caso não tenha uma conta, deverá criar uma.
A sua pesquisa foi guardada com sucesso!
Este site utiliza cookies. Ao navegar no site estará a consentir a sua utilização.
Para mais informações sobre os cookies pode consultar a
política de privacidade.