Consultor imobiliário em NostraDomus - AMI: 23036
Comprar
Arrendar
2 Quartos
1 WCs
Área bruta : 100 m²
Andar Moradia Valbom (1 andar) Detalhes do Imóvel (Valbom, Gondomar): Tipologia: T2 (dois quartos area total 70m2. Estado/Conteúdo: Mobilado. Áreas: Sala ampla, WC completo, cozinha equipada. Exterior: Terraço. Estacionamento: Não possui garagem. Localização: Zona de Valbom, próximo da Igreja, serviços e transportes. Condições de Arrendamento: Pagamentos Iniciais: 2 rendas + 2 meses de caução. Garantias: Fiador necessário. Documentação: NIF, Cartão de Cidadão, recibos de vencimento (últimos 3 meses), IRS e Nota de Liquidação.
AMI: 23036
Ref. Externa: HM26001
Id: 1665881
Inicie sessão para guardar este imóvel e aceder à sua lista de favoritos em qualquer dispositivo.
1.200.000 €
4 Quartos
5 WCs
Área bruta : 348 m²
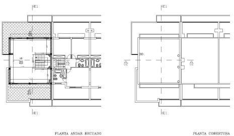
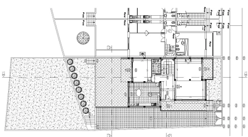
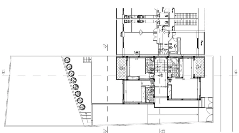
Moradia com 3 frentes, Poente / Norte / Sul, Com possibilidade de construção de piscina. Localizada numa rua tranquila a 500m da praia. Com vistas de mar. Descrição da moradia: Cave: Com luz direta, Com 2 quartos para visitas, casa de banho de banho completa com base de duche poliban, ginásio. Espaço para arrumos, lavandaria, Garagem ampla para 3 carros. Portão automático. 2 acessos, pelo interior e exterior. Rés-do-chão: Hall de entrada com bastante luminosidade e espaçoso, Sala comum, com varanda e fogão de sala Casa de banho completa com base de duche poliban. Cozinha com luz direta, muito espaçosa, moderna, fogão montado numa configuração de ilha, com acesso a um grande terraço, Terraço com dipositivo tapa vento recolhível e vistas desafogadas. Escritório, com boas dimensões, e acesso ao terraço. 1º andar: Uma suite de grandes dimensões com closet, e acesso a varanda. 2 quartos suite com roupeiros embutidos, e acesso a varanda. 2º Andar Recuado com terraços com vista de mar para a frente e para as traseiras. Todo envidraçado. Ideal para sala de jogos, ginásio, House with 3 fronts, West/North/South, With the possibility of building a pool. Located on a quiet street 500m from the beach. Ocean view. House Description: Basement: With direct light, With 2 guest bedrooms, Full bathroom with walk-in shower, Gym. Storage space, Laundry room, Large garage for 3 cars. Automatic gate. Two entrances, inside and outside. Ground Floor: Entrance hall with plenty of light and spacious, Living room with balcony and fireplace, Full bathroom with walk-in shower. Very spacious, modern kitchen with direct light, stovetop mounted in an island configuration, With access to a large terrace, Terrace with retractable windbreak and panoramic views. Good-sized bedroom converted into an office with access to the terrace. First Floor: A large suite with a walk-in closet and access to a balcony. Two suites with built-in closets and access to a balcony. Second Floor: Set back with terraces with ocean views to the front and back. All glass. Ideal for a game room, gym,
AMI: 23036
Ref. Externa: AR2401
Id: 1423050
Inicie sessão para guardar este imóvel e aceder à sua lista de favoritos em qualquer dispositivo.
1 Quartos
1 WCs
Área bruta : 48 m²
Simpático Apartamento T1 com lugar de garagem. Localização excelente, em local nobre da cidade do Porto. A poucos metros da Casa da Musica. Em frente à rotunda da Boavista. Com autocarros STCP e Metro à Porta. Sala com lareira. Cozinha equipada com placa forno e exaustor. Quarto com roupeiro embutido. Caixilharia Dupla. Chão em tijoleira. O apartamento tem arrumos Com Lugar de garagem. Com vistas para a rotunda da Boavista Excelente qualidade de construção. Ótimo para investimento dada a proximidade de transportes e de todo o comércio e serviços, mesmo no centro do Porto! O mesmo proprietário tem outro T1 exatamente igual mas s/varanda mesmo contíguo ao outro (basta eliminar uma parede e faz um grande apartamento). Agende visita!
AMI: 23036
Ref. Externa: PA2502
Id: 1417852
Inicie sessão para guardar este imóvel e aceder à sua lista de favoritos em qualquer dispositivo.
1 Quartos
1 WCs
Área bruta : 48 m²
Apartamento T1 com lugar de garagem Localizado no local nobre da cidade do Porto. A poucos metros da Casa da Musica. Em frente à rotunda da Boavista. Prédio com 2 elevadores. Com autocarros STCP e Metro à Porta. Sala com lareira. Cozinha equipada com placa forno e exaustor. Caixilharia Dupla. Chão em tijoleira. O apartamento tem arrumos Com Lugar de garagem. Com varanda. Com vistas para a rotunda da Boavista Excelente qualidade de construção. Ótimo para investimento dada a proximidade de transportes e de todo o comércio e serviços, mesmo no centro do Porto! O mesmo proprietário tem outro T1 exatamente igual c/varanda mesmo contíguo ao outro (basta eliminar uma parede e faz um grande apartamento). Agende visita! -- One-bedroom apartment with parking space Located in a prime location in Porto. A few meters from Casa da Música. Across from the Boavista roundabout. With STCP bus and metro lines right outside. Living room with fireplace. Kitchen equipped with stove and extractor fan. Double-glazed windows. Tiled floor. The apartment has a storage room. With parking space. Overlooking the Boavista roundabout. Great investment opportunity given its proximity to transportation and all shops and services, right in the center of Porto! The same owner has another one-bedroom apartment exactly the same, but with a balcony right next to the other (just remove a wall and create a large apartment). Schedule a viewing! -- Appartement T2 avec parking Situé dans un emplacement privilégié à Porto. À quelques mètres de la Casa da Música. Face au rond-point de Boavista. À proximité des lignes de bus et de métro STCP. Séjour avec cheminée. Cuisine équipée avec cuisinière et hotte aspirante. Fenêtres à double vitrage. Sol carrelé. L'appartement dispose d'un débarras. Avec parking. Vue sur le rond-point de Boavista. Excellente opportunité d'investissement grâce à sa proximité avec les transports et tous les commerces et services, en plein centre de Porto ! Le même propriétaire possède un autre appartement T2 identique, mais avec un balcon juste à côté (il suffit de supprimer un mur pour créer un grand appartement). Prenez rendez-vous pour une visite ! -- 附停車位的一房公寓 位於波爾圖黃金地段。 距離波爾圖音樂廳僅幾公尺之遙。 對面是博阿維斯塔環島。 公寓外即是STCP公車線路和地鐵線路。 客廳有壁爐。 廚房配備爐灶和排氣扇。 雙層玻璃窗。 瓷磚地板。 公寓設有儲藏室。 附停車位。 俯瞰博阿維斯塔環島。 地理位置優越,交通便利,商店林立,服務設施齊全,位於波爾圖市中心,是絕佳的投資機會! 同一屋主還有另一間一模一樣的一房公寓,但緊鄰另一套,附陽台(只需拆除一面牆,即可打造寬敞的公寓)。 預約看房! -- Однокомнатная квартира с парковочным местом Расположена в престижном районе Порту. В нескольких метрах от Дома музыки. Напротив кольцевой развязки Боавишта. Остановка автобуса и метро STCP прямо у входа. Гостиная с камином. Кухня оборудована плитой и вытяжкой. Окна с двойными стеклопакетами. Плиточный пол. В квартире есть кладовая. С парковочным местом. Вид на кольцевую развязку Боавишта. Отличная инвестиционная возможность, учитывая близость к транспорту, магазинам и всем необходимым услугам, в самом центре Порту! У того же владельца есть ещё одна точно такая же однокомнатная квартира, но с балконом рядом с первой (достаточно снести стену и получить большую квартиру). Запишитесь на просмотр!
AMI: 23036
Ref. Externa: PA2501
Id: 1417851
Inicie sessão para guardar este imóvel e aceder à sua lista de favoritos em qualquer dispositivo.
150.000 €
4 Quartos
Área bruta : 192 m²
Moradia para restauro, inserida terreno com aproximadamente 600m2 de terreno Moradia a necessitar de restauro no entanto com boas áreas para que se ajuste à sua casa de sonho Preço bastante competitivo face ao valor atual de mercado Ótima localização, numa das ruas mais centrais da freguesia de Canelas, com excelentes acessos a comércio, serviços, escolas, creches e aos pontos de acesso a autoestradas Pedido de informação simples não vinculativa solicitado e gerado com a seguinte informação: 2. Qualquer intervenção nestas áreas deve garantir, a manutenção das características homogéneas, como as malhas, morfologias, tipologias ou alinhamento existentes e uma adequada inserção na área envolvente, valorizando a qualidade arquitetónica do conjunto, valendo, para o efeito, as seguintes regras: a) O alinhamento admissível é o dominante sem prejuízo do disposto no artigo 36.º; b) As construções para habitação a erigir em prédios, não devem constituir corpos edificados contínuos de comprimento superior a 24m, exceto em situações de colmatação ou quando a dominância tipo-morfológica for de frente contínua; c) A cércea máxima é de 2 pisos; admitindo-se um terceiro piso com área bruta equivalente até 50% da área do piso imediatamente inferior, sem prejuízo do ponto 3 do artigo 41.º e das normas regulamentares aplicáveis; d) Nos prédios edificados para além das tipologias referidas no artigo 55.º, admitem-se também tipologias multifamiliares desde que resultem exclusivamente de obras de alteração no interior dos edifícios, e ainda, obras de alteração ou ampliação desde que sejam fator de preservação e valorização do edificado, e) Admite-se também a tipologia multifamiliar desde que seja para promover a colmatação de empenas de edifícios existentes
AMI: 23036
Ref. Externa: HS_2024_10
Id: 1261640
Inicie sessão para guardar este imóvel e aceder à sua lista de favoritos em qualquer dispositivo.
Inicie sessão para ocultar este imóvel das suas pesquisas e manter a sua lista de resultados organizada.
NostraDomus
Consultor imobiliário em NostraDomus - AMI: 23036
Compre créditos para poder destacar os seus imóveis! Desta forma eles são os primeiros a aparecer nas pesquisas e têm uma maior chance de serem vistos pelos utilizadores.
© Copyright 2023 | CASACERTA. All rights reserved
Guardar favoritos
Este imóvel foi guardados nos seus favoritos com sucesso.
Para poder guardar pesquisa deverá ter a sua sessão iniciada.
Caso não tenha uma conta, deverá criar uma.
A sua pesquisa foi guardada com sucesso!
Este site utiliza cookies. Ao navegar no site estará a consentir a sua utilização.
Para mais informações sobre os cookies pode consultar a
política de privacidade.