Consultor imobiliário em IAD Holding - AMI: 11220
Comprar
Arrendar
9 WCs
Área útil : 269 m²
Projeto Aprovado para Turismo em Espaço Rural – Provesende, Douro Uma oportunidade única no coração do Douro Vinhateiro (Património Mundial da UNESCO) Apresentamos um projeto aprovado pela Câmara Municipal para a reabilitação, ampliação e alteração de um edifício histórico na pitoresca aldeia de Provesende, destinado a Turismo em Espaço Rural – Casas de Campo. Todos os projetos de especialidade já foram entregues, garantindo um processo rápido para avançar para obra. Trata-se de uma oportunidade rara para quem procura investir no turismo de charme, num dos destinos mais procurados de Portugal. ✨ Destaques do investimento: • ✔ Projeto de Arquitetura já aprovado • ✔ Projetos de especialidade entregues dentro do prazo • ✔ Integração de piscina e estacionamento • ✔ Forte potencial de rentabilidade no setor turístico em expansão • ✔ Localização privilegiada numa aldeia histórica do Douro Vinhateiro-UNESCO Localização • Aldeia de Provesende, uma das mais emblemáticas do Douro • Região classificada pela UNESCO, com elevado fluxo de turismo nacional e internacional • Zona em crescente valorização imobiliária e turística Projeto Arquitetónico (em imagens) Plantas • Distribuição funcional dos espaços por piso, otimizando conforto e experiência do hóspede • Piscina integrada no espaço exterior, com estacionamento previsto Alçados e Corte *Fachada principal preservando a traça histórica • Soluções arquitetónicas modernas, em perfeita harmonia com o contexto rural Implantação / Localização * Inserção do edifício no coração de Provesende, rodeado por vinhas e património. Contacto Não perca esta oportunidade de investir num negócio sólido, com projeto aprovado e pronto a arrancar. Contacte-nos para mais informações e agende já uma reunião de apresentação do projeto. #ref: 148561
AMI: 11220
Ref. Externa: 148561
Id: 1373182
Inicie sessão para guardar este imóvel e aceder à sua lista de favoritos em qualquer dispositivo.
3 Quartos
3 WCs
Área útil : 180 m²
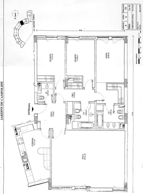
Arrendamento T3 em Condomínio de Referência – Jardins de Campolide, Lisboa Magnífico T3 disponível para arrendamento nos Jardins de Campolide, um dos condomínios mais prestigiados de Lisboa. Este apartamento distingue-se pela clara separação entre zona social e zona privada. A zona privada conta com uma suite com roupeiro-closet, dois quartos com roupeiros embutidos, corredor de distribuição com arrumação adicional e uma casa de banho de apoio aos quartos. Na entrada encontra-se um hall com casa de banho social, dando acesso a uma sala ampla e luminosa, com ar condicionado e vista para a frente do condomínio, e a uma cozinha totalmente equipada. Inclui ainda dois lugares de garagem e arrecadação. O condomínio dispõe de piscina e jardim privados, bem como segurança 24 horas, proporcionando tranquilidade e conforto. A localização é outro dos grandes destaques. Campolide é uma zona central de Lisboa que combina tradição e modernidade. Outrora marcada por quintas e olivais, é hoje uma área residencial de excelência, próxima do El Corte Inglés, Amoreiras, Campo de Ourique e Avenida da Liberdade. Mantém ainda um espírito de bairro, com comércio local, cafés e restaurantes, ao mesmo tempo que oferece acesso rápido às principais vias da cidade. Esta conjugação entre história, centralidade e qualidade de vida faz de Campolide uma das zonas mais procuradas para viver em Lisboa. Localização: Jardins de Campolide – Campolide, Lisboa Garagem: 2 lugares + arrecadação Condomínio: Piscina, jardim e segurança 24h #ref: 148003 Licença de utilização: 3518080
AMI: 11220
Ref. Externa: 148003
Id: 1337062
Inicie sessão para guardar este imóvel e aceder à sua lista de favoritos em qualquer dispositivo.
2 Quartos
2 WCs
Área útil : 123 m²
Arrendamento – Apartamento T2 no Condomínio Alcântara Rio Descubra este magnífico apartamento T2, praticamente novo e com muito pouco uso, localizado no prestigiado condomínio Alcântara Rio, a escassos metros do rio Tejo e a alguns passos da CUF Tejo, muito próximo de todos os serviços. Com uma área útil habitável de 125 m², este imóvel oferece: •Ampla sala com excelente luminosidade; •Dois quartos, sendo um deles suite; •Duas casas de banho; •Cozinha totalmente equipada com áreas muito generosas; •Dois lugares de estacionamento (no piso -1). Situado no primeiro andar, este apartamento combina conforto, espaço e uma localização privilegiada, perfeita para quem quer viver com qualidade e perto de tudo. Localização: Alcântara, Lisboa Área útil: 125 m² Estacionamento: 2 lugares Condomínio de prestígio com proximidade ao rio e fácil acesso a transportes, comércio e lazer. Não perca a oportunidade de viver num dos locais mais desejados de Lisboa. O Condomínio Alcântara Rio representa um marco significativo na requalificação urbanística de Lisboa. Desenvolvido numa vasta área de intervenção — mais de 400 000 m² — o empreendimento integra oito edifícios que combinam habitação (majoritariamente T2 a T4), escritórios, comércio e serviços, todos projetados para oferecer uma vida urbana de qualidade, conforto e privacidade . O projeto teve como arquiteto o Frederico Valsassina, da Frederico Valsassina Arquitectos, e foi concluído entre 1999 e 2008 . A sua visão centrava-se na integração harmoniosa entre construído e paisagem, com uma linguagem arquitetónica moderna e volumetricamente marcante. Foram privilegiadas as grandes superfícies envidraçadas para maximizar luz natural, vistas e uma ligação orgânica entre os espaços interiores e exteriores . Uma característica distintiva do empreendimento é a reutilização simbólica da estrutura da antiga Fábrica União Fontaínhas, que deu origem ao complexo. A antiga chaminé industrial foi preservada e reintegrada na paisagem do condomínio, conferindo-lhe uma forte identidade que dialoga com a memória do local . Reconhecimentos e Prémios O projeto foi amplamente reconhecido no setor da arquitetura e imobiliário: •Ganhou um Óscar na categoria Habitação na 8ª edição dos Óscares do Imobiliário, promovido pela Revista Imobiliária; •Recebeu uma Menção Honrosa nos Prémios Valmor de Arquitetura . Qualidade, Segurança e Conforto O condomínio destaca-se ainda por oferecer: •Elevado nível de segurança e manutenção rigorosa de todas as áreas comuns; •Tecnologia moderna como deteção de incêndio, controlo de intrusão, gerador de emergência, elevadores com acesso dedicado, e estrutura anti-sísmica ; •Ampla gama de serviços à porta — desde escolas, farmácias, aos transportes públicos e zonas comerciais — tudo pensado para garantir conveniência e bem-estar aos moradores . ⸻ Conclusão O Condomínio Alcântara Rio é muito mais do que um conjunto de residências modernas: é uma intervenção arquitetónica que combina memória industrial, funcionalidade e estética contemporânea. Com assinatura de Frederico Valsassina, o projeto é ainda hoje referência em urbanismo inteligente — um local verdadeiramente desejado para viver, anunciar, promover e destacar. #ref: 147340 Licença de utilização: 284
AMI: 11220
Ref. Externa: 147340
Id: 1319966
Inicie sessão para guardar este imóvel e aceder à sua lista de favoritos em qualquer dispositivo.
2 Quartos
1 WCs
Área útil : 77 m²
Viva com Elegância na Prestigiada Lapa – Apartamento T2 com Vista Deslumbrante sobre o Rio Tejo Estrela | Lapa | Lisboa Garagem Privativa Opcional Inserido no coração da histórica freguesia da Lapa, na zona nobre da Estrela, este requintado apartamento T2 situa-se no primeiro andar de um edifício emblemático, cuja fachada tradicional portuguesa foi meticulosamente restaurada e classificada como património protegido da cidade de Lisboa. Os interiores, incluindo paredes cuidadosamente recuperadas, conjugam harmoniosamente a autenticidade arquitetónica com acabamentos contemporâneos de elevada qualidade. ️ Características e acabamentos de excelência: •Dois quartos com roupeiros embutidos, oferecendo conforto e funcionalidade •Casa de banho completa, equipada com banheira e detalhes de luxo •Espaços de estar e jantar amplos e distintos, complementados por uma elegante zona de escritório integrada •Cozinha contemporânea, totalmente equipada com eletrodomésticos topo de gama •Pavimento em madeira maciça e tetos altos com ornamentação típica portuguesa, conferindo uma singular identidade e requinte ao imóvel •Duas varandas que proporcionam uma vista poente soberba sobre o Rio Tejo, ideais para apreciar o pôr-do-sol •Exposição solar privilegiada, garantindo luminosidade natural abundante e envolvente Nota Importante: As imagens apresentadas ilustram o apartamento mobilado unicamente para fins exemplificativos, com o intuito de evidenciar o potencial de conforto e funcionalidade dos espaços. O imóvel será arrendado sem mobiliário. Localização Exclusiva e Envolvente: A escassos minutos a pé de: •O emblemático Jardim da Estrela •O sofisticado Jardim do Príncipe Real •Comércios tradicionais, serviços de excelência, escolas de referência e zonas pedonais de charme •A marginal do Tejo, um espaço privilegiado para lazer e qualidade de vida Garagem privativa fechada disponível, mediante valor adicional – uma raridade e vantagem incontornável nesta localização central e histórica ⸻ Apartamento exclusivo da IAD Portugal. Para mais informações ou agendar visita privada contacte: ✉️ [email protected] 912 247 129 #ref: 143541 Licença de utilização: 204
AMI: 11220
Ref. Externa: 143541
Id: 1224640
Inicie sessão para guardar este imóvel e aceder à sua lista de favoritos em qualquer dispositivo.
2 Quartos
1 WCs
Área útil : 78 m²
Apartamento T2, mobilado, em São João do Estoril, junto à praia. Apartamento com 80m2 de área bruta privativa e boa exposição solar. Composta por; sala comum de estar e jantar ; cozinha independente totalmente equipada, com uma varanda fechada, com sol e luz direta, como lavandaria devidamente equipada; casa de banho completo com banheira; dois quarto com roupeiros dos quais um com uma zona de varanda fechada,com sol direto, para relaxamento devidamente mobilidade e outra com uma varanda fechada, com muita luz natural, para espaço de leitura . Apartamento equipado, com excelentes acabamentos e materiais. Excelente localização, com fáceis acessos. Perto de comércio, serviços, praia e estação. Cascais é uma vila portuguesa conhecida pela sua baía de praias, comércio e cosmopolitismo. Considerado o destino mais sofisticado da região de Lisboa, onde os palacetes e a elegância requintada de todas as construções são visivelmente agradáveis. Com o mar a seus pés, Cascais pode orgulhar-se de ter 7 campos de golfe, um casino, um centro de congressos, marina e inúmeros espaços de lazer. A 30 minutos de Lisboa e do aeroporto internacional. #ref: 141955 Licença de utilização: 403
AMI: 11220
Ref. Externa: 141955
Id: 1196607
Inicie sessão para guardar este imóvel e aceder à sua lista de favoritos em qualquer dispositivo.
Inicie sessão para ocultar este imóvel das suas pesquisas e manter a sua lista de resultados organizada.
Pipas GIL RODRIGUES
Consultor imobiliário em IAD Holding - AMI: 11220
Compre créditos para poder destacar os seus imóveis! Desta forma eles são os primeiros a aparecer nas pesquisas e têm uma maior chance de serem vistos pelos utilizadores.
Guardar favoritos
Este imóvel foi guardados nos seus favoritos com sucesso.
Para poder guardar pesquisa deverá ter a sua sessão iniciada.
Caso não tenha uma conta, deverá criar uma.
A sua pesquisa foi guardada com sucesso!
© Copyright 2023 | CASACERTA. All rights reserved
Este site utiliza cookies. Ao navegar no site estará a consentir a sua utilização.
Para mais informações sobre os cookies pode consultar a
política de privacidade.