Consultor imobiliário em Quali Real Estate - AMI: 15427
Comprar
Arrendar
120.000 €
Área de terreno : 595 m²
Terreno situado na freguesia dos Canhas, concelho da Ponta do Sol, a cerca de 385 metros de altitude, com projeto aprovado para construção de moradia com andares ou divisões suscetíveis de utilização independente.O projeto contempla três habitações distintas: duas no rés-do-chão e uma no primeiro andar.No primeiro andar, encontra-se uma habitação com um quarto, distribuída por dois pisos. O piso principal integra sala de estar com cozinha, sala de jogos e instalações sanitárias. No piso superior, em formato de galeria, localiza-se o quarto principal, com ampla janela ao longo de toda a frente do cume, proporcionando excelente luminosidade e vistas abertas.No rés-do-chão, uma das frações corresponde a uma habitação com um quarto, composta por sala de estar com cozinha, quarto e instalações sanitárias. A outra fração é uma habitação com dois quartos, organizada num único piso, com sala de estar e jantar, cozinha, despensa, lavandaria, quarto, escritório, instalações sanitárias e zonas de circulação. Esta unidade contempla ainda cozinha exterior e piscina, conforme indicado em planta.Estão previstas infraestruturas para carregamento de veículos elétricos, reforçando a adequação do projeto às exigências atuais de mobilidade e eficiência.Uma proposta sólida, com enquadramento urbano definido, projeto aprovado e potencial claro para desenvolvimento habitacional numa zona em valorização.Thomas PriebeWhatsApp +49 178 3336330
AMI: 15427
Ref. Externa: Q2618
Id: 1804395
Inicie sessão para guardar este imóvel e aceder à sua lista de favoritos em qualquer dispositivo.
3 Quartos
Área bruta : 227 m²
Moradia isolada T3 situada no Estreito de Câmara de Lobos.O imóvel é composto por três quartos, uma casa de banho, sala de estar e de jantar com boa luminosidade, cozinha, lavandaria e duas varandas. Dispõe de uma garagem com capacidade para várias viaturas. O terreno envolvente permite usufruir de áreas exteriores com bastante potencial, incluindo a criação de jardim ou zona de cultivo, tirando partido das condições naturais da zona.A propriedade apresenta-se em bom estado de conservação e beneficia de uma localização com acessos facilitados às principais vias rodoviárias, permitindo uma ligação rápida a outros pontos da ilha.
AMI: 15427
Ref. Externa: Q2668
Id: 1796614
Inicie sessão para guardar este imóvel e aceder à sua lista de favoritos em qualquer dispositivo.
Área de terreno : 788 m²
Terreno com 828 m² nos Canhas, Ponta do Sol, situado a cerca de 480 metros de altitude, numa zona calma onde se encontram algumas moradias de segmento superior. A envolvente é discreta, com vista parcial para a Madalena do Mar e com o ponto de descolagem de parapente a curta distância.A área dispõe de minimercados, campo de futebol, restaurantes e comércio local.O terreno apresenta condições para a construção de uma moradia unifamiliar, integrado numa zona já urbanizada, com acesso a carro. Está inserido numa zona de edificação dispersa.Uma oportunidade sólida para quem procura investir num dos concelhos mais apreciados da costa sul da ilha.
AMI: 15427
Ref. Externa: Q2653
Id: 1744612
Inicie sessão para guardar este imóvel e aceder à sua lista de favoritos em qualquer dispositivo.
340.000 €
3 Quartos
Área bruta : 270 m²
Moradia em pedra, situada na Camacha, em Santa Cruz, num ambiente tranquilo, rodeada por uma envolvente verdejante, ideal para quem procura tranquilidade e privacidade.O imóvel encontra-se em fase de remodelação, com obras interrompidas, permitindo ao futuro proprietário terminar o projeto ao seu gosto e definir materiais, acabamentos e organização dos espaços interiores.A construção mantém a autenticidade da pedra, transmitindo charme e robustez. Possui um sótão visitável, com potencial para estúdio, quarto extra ou área de lazer. No piso intermédio desenvolve-se a área principal da habitação, composta por hall de entrada, casa de banho, dois quartos de dormir e uma sala ampla em conceito open-space com a cozinha. No piso inferior, encontra-se uma área com potencial para funcionar como espaço independente, com acesso próprio, adequada para visitas.A propriedade beneficia ainda de amplo terraço e zonas exteriores ajardinadas, com potencial para área de lazer e convívio ao ar livre, bem como estacionamento descoberto dentro da propriedade.Esta moradia representa uma oportunidade interessante tanto para habitação própria como para investimento, num local com boa acessibilidade e proximidade a serviços essenciais.
AMI: 15427
Ref. Externa: Q2651
Id: 1719937
Inicie sessão para guardar este imóvel e aceder à sua lista de favoritos em qualquer dispositivo.
850.000 €
2 Quartos
Área bruta : 184 m²
Novo empreendimento na Calheta, a curta distância da praia e da marina, integrado numa das zonas com maior procura na Madeira. Projeto residencial composto por 50 apartamentos, disponíveis nas tipologias T0, T1, T2, T2+1 e T3, entregues totalmente mobilados e equipados, prontos a utilizar ou a rentabilizar.Arquitetura contemporânea, linhas sóbrias e ambientes interiores bem organizados definem este empreendimento. As áreas interiores foram desenhadas para garantir fluidez e luminosidade natural, com cozinhas em open space, roupeiros embutidos e ar condicionado instalado. As varandas ampliam a relação com o exterior, muitas delas com vista mar desafogada.As zonas comuns reforçam a diferenciação do projeto: piscina aquecida com zona areada e entrada suave estilo praia, sauna, ginásio equipado e áreas exteriores pensadas para usufruto ao longo de todo o ano. Um conceito que combina conforto residencial com características associadas a um ambiente de resort.O apartamento em comercialização corresponde a um T2 + 1, localizado no rés-do-chão, no Bloco A, totalmente mobilado. Dispõe de sala e cozinha em open space, wc social, duas suites ambas com casa de banho privativa e escritório. No exterior, beneficia de um amplo logradouro e jacuzzi privativo, criando uma extensão natural da área interior. Inclui ainda um lugar de estacionamento.Localizado em enquadramento tranquilo, mas próximo de restaurantes, comércio e serviços, o condomínio encontra-se preparado para exploração em Alojamento Local, acompanhando a forte dinâmica turística da Calheta e o seu consistente potencial de valorização.Conclusão prevista para o início de 2028.
AMI: 15427
Ref. Externa: Q2632
Id: 1686208
Inicie sessão para guardar este imóvel e aceder à sua lista de favoritos em qualquer dispositivo.
480.000 €
1 Quartos
Área bruta : 140 m²
Novo empreendimento na Calheta, a curta distância da praia e da marina, integrado numa das zonas com maior procura na Madeira. Projeto residencial composto por 50 apartamentos, disponíveis nas tipologias T0, T1, T2, T2+1 e T3, entregues totalmente mobilados e equipados, prontos a utilizar ou a rentabilizar.Arquitetura contemporânea, linhas sóbrias e ambientes interiores bem organizados definem este empreendimento. As áreas interiores foram desenhadas para garantir fluidez e luminosidade natural, com cozinhas em open space, roupeiros embutidos e ar condicionado instalado. As varandas ampliam a relação com o exterior, muitas delas com vista mar desafogada.As zonas comuns reforçam a diferenciação do projeto: piscina aquecida com zona areada e entrada suave estilo praia, sauna, ginásio equipado e áreas exteriores pensadas para usufruto ao longo de todo o ano. Um conceito que combina conforto residencial com características associadas a um ambiente de resort.O apartamento em comercialização corresponde a um T1 localizado no rés do chão, no Bloco A, totalmente mobilado. Dispõe de sala e cozinha em open space, quarto de dormir e instalação sanitária. No exterior, beneficia de um jardim privativo com 67 m² e jacuzzi exclusivo, criando uma extensão natural da área interior. Inclui ainda um lugar de estacionamento.Localizado em enquadramento tranquilo, mas próximo de restaurantes, comércio e serviços, o condomínio encontra-se preparado para exploração em Alojamento Local, acompanhando a forte dinâmica turística da Calheta e o seu consistente potencial de valorização.Conclusão prevista para o início de 2028.
AMI: 15427
Ref. Externa: Q2626
Id: 1686202
Inicie sessão para guardar este imóvel e aceder à sua lista de favoritos em qualquer dispositivo.
210.000 €
2 Quartos
Área bruta : 96 m²
Moradia geminada para reabilitação, inserida num lote de aproximadamente 400 m2, com amplo espaço exterior, 96 m2 de área bruta e 49 m2 de área útil. Dispõe de dois quartos e uma casa de banho. O imóvel necessita de obras de recuperação, não se encontrando atualmente em condições de habitabilidade.O terreno permite a criação de acesso para viatura ou a construção de garagem.Encontra-se integrada num loteamento aprovado posteriormente à construção original da moradia, circunstância que determinou a sua configuração geminada atual.Localizada na Terra Chã, em rua sem saída, beneficia de um ambiente mais reservado e tranquilo. Situa-se próxima da Escola da Ladeira, Pingo Doce, creches, escolas e a cerca de 287 m do mar, reunindo proximidade a serviços essenciais e à zona costeira.Uma oportunidade consistente para desenvolver um projeto à medida numa zona consolidada do Funchal.
AMI: 15427
Ref. Externa: Q2624
Id: 1669506
Inicie sessão para guardar este imóvel e aceder à sua lista de favoritos em qualquer dispositivo.
Área de terreno : 2640 m²
Terreno rústico com 2.640 m², localizado numa zona calma no Sitio do Ribeiro Serrão, na Camacha, em Santa Cruz com acesso a estrada.Com declive moderado e excelente exposição solar, reúne condições muito favoráveis para cultivo, plantação de árvores de fruto ou desenvolvimento de um projeto agrícola. A dimensão do terreno permite organizar diferentes áreas de produção, ou outras culturas adaptadas ao clima da região, tirando partido da tradição rural característica da zona, adaptando-se tanto a exploração própria como a produção orientada para rendimento.Pela sua dimensão e enquadramento, poderá admitir no futuro, mediante verificação junto das entidades competentes, enquadramento para um projeto de turismo rural associado à atividade agrícola, reforçando a componente produtiva da propriedade.A envolvente é tranquila, com proximidade a comércio e serviços, assegurando funcionalidade no dia a dia sem comprometer a serenidade do espaço.Uma solução sólida para quem pretende desenvolver atividade agrícola ou garantir um ativo natural com potencial produtivo.
AMI: 15427
Ref. Externa: Q2620
Id: 1649705
Inicie sessão para guardar este imóvel e aceder à sua lista de favoritos em qualquer dispositivo.
4 Quartos
Área bruta : 463 m²
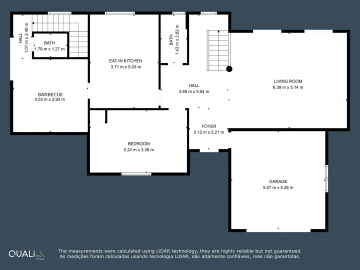
Moradia T4 no Estreito da Calheta, Calheta (Madeira), em ótimo estado de conservação e pronta a habitar.O rés-do-chão inicia-se com um foyer que dá acesso a um hall central, que funciona como ponto de distribuição para todas as divisões. À direita, a sala de estar apresenta luz abundante, graças às suas amplas janelas. À esquerda, a cozinha encontra-se totalmente equipada e mobilada, incluindo uma zona de refeições. Comunica diretamente com a área de barbecue, que dispõe de forno a lenha e acesso a uma casa de banho de apoio, ao exterior e à cave. No mesmo piso, existe ainda um quarto espaçoso, uma casa de banho completa e uma garagem com porta automática. A zona do churrasco abre-se para um pequeno jardim, perfeito para momentos de convívio ao ar livre.O primeiro andar organiza-se em torno de um corredor que dá acesso a todas as divisões. À direita, encontra-se uma casa de banho de apoio aos quartos e um quarto com roupeiros embutidos e varanda privativa. Em frente à escadaria, situa-se outro quarto, igualmente com armário embutido e acesso a uma varanda partilhada. No final do corredor, localiza-se a sala de jogos, um espaço versátil para momentos de lazer. Do lado oposto à escadaria, a suíte principal inclui casa de banho privativa, roupeiros embutidos e acesso a uma varanda.O sótão, com 140 m², é um espaço amplo e versátil, com potencial para ser adaptado em um T2 independente com escadaria exterior, ideal para gerar rendimento extra ou acolher familiares e amigos.A cave é um espaço funcional, com uma pequena janela que garante ventilação e entrada de luz natural, ideal para utilizar como arrecadação ou zona de arrumos, mantendo assim o restante da casa organizado e livre de objetos de uso menos frequente.Localizada no Estreito da Calheta, a poucos passos de uma farmácia, minimercado, cafés e comércio local, esta moradia beneficia de excelente exposição solar e de fácil acesso, a apenas 7 minutos de carro da Praia da Calheta.
AMI: 15427
Ref. Externa: Q2602
Id: 1563098
Inicie sessão para guardar este imóvel e aceder à sua lista de favoritos em qualquer dispositivo.
Área de terreno : 973 m²
Terreno com 973 m² localizado na freguesia dos Prazeres, Calheta, a cerca de 490 metros de altitude, numa zona premium marcada por moradias de luxo e um ambiente calmo e bem cuidado. O terreno beneficia de uma exposição solar excelente, privacidade e vistas sobre a paisagem natural envolvente. Dispõe, igualmente, de acesso a carro.A poucos minutos a pé encontram-se diversas comodidades locais, como mini-mercado, café, pavilhão gimnodesportivo, campo de futebol, patinódromo, mercado agrícola e a conhecida quinta pedagógica dos Prazeres.A apenas 15 minutos de carro da Praia da Calheta e de todas as facilidades do centro, esta é uma oportunidade excecional para investir ou construir numa das áreas mais apreciadas da costa sul da Madeira.
AMI: 15427
Ref. Externa: Q2597
Id: 1423526
Inicie sessão para guardar este imóvel e aceder à sua lista de favoritos em qualquer dispositivo.
Área de terreno : 727 m²
Terreno com 727 m² localizado na freguesia dos Prazeres, Calheta, a cerca de 490 metros de altitude, numa zona premium marcada por moradias de luxo e um ambiente calmo e bem cuidado. O terreno beneficia de uma exposição solar excelente, privacidade e vistas sobre a paisagem natural envolvente. Dispõe, igualmente, de acesso a carro.A poucos minutos a pé encontram-se diversas comodidades locais, como mini-mercado, café, pavilhão gimnodesportivo, campo de futebol, patinódromo, mercado agrícola e a conhecida quinta pedagógica dos Prazeres.A apenas 15 minutos de carro da Praia da Calheta e de todas as facilidades do centro, esta é uma oportunidade excecional para investir ou construir numa das áreas mais apreciadas da costa sul da Madeira.
AMI: 15427
Ref. Externa: Q2598
Id: 1423525
Inicie sessão para guardar este imóvel e aceder à sua lista de favoritos em qualquer dispositivo.
1.280.000 €
3 Quartos
Área bruta : 321 m²
Em São Gonçalo, a 228 metros de altitude, encontra esta moradia T3 de linhas contemporâneas, uma proposta singular para quem valoriza privacidade, conforto e uma vista absolutamente fascinante sobre o mar e a cidade do Funchal.O imóvel distingue-se pelos grandes espaços, inundados de luz natural, que criam uma atmosfera acolhedora em todos os ambientes. Aqui, cada detalhe convida a desfrutar da vida com tranquilidade: uma piscina privativa para os seus momentos de lazer, uma varanda generosa que se converte no cenário ideal para admirar o pôr do sol sobre a baía, além de uma convidativa zona de churrasqueira para autênticos momentos de convívio. A garagem privada, com espaço para vários veículos, acrescenta ainda mais praticidade.Esta propriedade distingue-se não só como um lar de excelência, mas também pelo seu enorme potencial de investimento, já que se encontra atualmente a ser rentabilizada através do Alojamento Local. Existe, ainda, potencial para investimento adicional, com a possibilidade de converter o rés-do-chão da moradia em dois apartamentos T1 com entradas independentes, ampliando assim as oportunidades de retorno financeiro.A moradia está estrategicamente situada numa zona calma, mas a poucos minutos do centro do Funchal, com acesso facilitado a todos os serviços essenciais, comércio e principais vias rodoviárias. Uma oportunidade rara onde qualidade de vida, potencial de valorização e uma paisagem inesquecível convergem para tornar a rotina verdadeiramente especial.
AMI: 15427
Ref. Externa: Q2551
Id: 1303788
Inicie sessão para guardar este imóvel e aceder à sua lista de favoritos em qualquer dispositivo.
195.000 €
8 Quartos
Área bruta : 166 m²
Moradia rústica em ruínas à venda, com oito divisões e cozinha, inserida num amplo terreno de 892 m², na zona dos Prazeres, Calheta. A casa oferece uma vista desafogada sobre o centro da vila, proporcionando um cenário pitoresco, ideal para quem procura um projeto de restauro com grande potencial.Se ambiciona recuperar uma casa antiga e transformá-la num espaço único, esta é a oportunidade ideal.Para mais informações e para agendar uma visita, contacte-nos.
AMI: 15427
Ref. Externa: Q2548
Id: 1277757
Inicie sessão para guardar este imóvel e aceder à sua lista de favoritos em qualquer dispositivo.
2.900.000 €
3 Quartos
Área bruta : 406 m²
Na costa solarenga da Calheta, a apenas 30 minutos do Funchal e a 40 minutos do Aeroporto Internacional da Madeira, encontra-se esta moradia (B) contemporânea com vista panorâmica sobre o oceano Atlântico. Implantada num lote generoso de 1180m², a propriedade combina arquitetura de linhas modernas com integração harmoniosa na paisagem envolvente, tirando o máximo partido da exposição solar e da tranquilidade natural da zona.Com cerca de 400m² de área bruta distribuída num único piso, esta moradia T3 foi pensada para oferecer conforto, funcionalidade e elegância, com interiores amplos, acabamentos de excelência e materiais duradouros que garantem baixa manutenção ao longo do tempo. No exterior, a piscina privada e os jardins cuidadosamente planeados reforçam a exclusividade e proporcionam um estilo de vida relaxado, perfeito para quem valoriza espaço, privacidade e contacto direto com a natureza.Ideal para residência permanente, casa de férias ou investimento de luxo numa das zonas mais procuradas da Madeira, esta propriedade representa uma rara oportunidade no mercado imobiliário.
AMI: 15427
Ref. Externa: Q2478
Id: 1219269
Inicie sessão para guardar este imóvel e aceder à sua lista de favoritos em qualquer dispositivo.
598.000 €
3 Quartos
Área bruta : 234 m²
Moradia isolada localizada numa das zonas mais ensolaradas e populares da Madeira, a cerca de 260 metros de altitude, na Ponta do Sol, oferecendo uma vista deslumbrante sobre o Oceano Atlântico assim como abundante exposição solar durante todo o ano.A casa foi recentemente renovada com grande atenção aos detalhes e com recurso a materiais de alta qualidade. Está pronta a habitar e é perfeita para quem procura conforto, amplo espaço e uma localização excelente. A moradia tem três quartos (um dos quais é uma suíte principal com casa de banho privativa), uma casa de banho adicional moderna, uma sala de estar espaçosa e uma cozinha. A enorme garagem tem espaço para muitos veículos e pode também ser usada como oficina, estúdio ou zona de lazer.Além disso, há uma grande lavandaria com muito espaço extra e arrecadação com roupeiros embutidos que proporciona mais espaço de armazenamento. O terraço espaçoso convida a momentos de relaxamento e contemplação. A moradia tem um sótão que atualmente é usado como arrecadação, mas tem potencial para ser convertido num espaço habitável ou num terraço.A propriedade inclui também um segundo terraço com área para churrasco e um pequeno jardim. Com uma área total de 550 metros quadrados, dos quais 366 metros quadrados cobertos, esta moradia oferece muito espaço para viver, relaxar e sentir-se bem. A localização ideal, virada a sul, garante sol durante todo o ano e uma vista deslumbrante sobre o mar.Seja como residência permanente, elegante casa de férias ou investimento rentável, esta moradia está de acordo com os mais elevados padrões e dá as boas-vindas aos seus novos proprietários.Para mais informações ou para marcar uma visita, contacte-nos.
AMI: 15427
Ref. Externa: Q2533
Id: 1209462
Inicie sessão para guardar este imóvel e aceder à sua lista de favoritos em qualquer dispositivo.
550.000 €
Área de terreno : 2295 m²
Terreno urbanizável com 2295 metros quadrados, localizado na Fajã do Arco da Calheta, junto à estrada municipal, a apenas 500 metros do Hotel Saccharum e a uma altitude de 100 metros, com vistas pitorescas do oceano. Este terreno apresenta inúmeras oportunidades para a construção de moradias modernas, criando um ambiente tranquilo e convidativo numa área de elevado prestígio. Para saber mais ou marcar uma visita, não hesite em contactar-nos.
AMI: 15427
Ref. Externa: Q2328
Id: 1154324
Inicie sessão para guardar este imóvel e aceder à sua lista de favoritos em qualquer dispositivo.
500.000 €
Área de terreno : 10000 m²
Terreno nos Prazeres de 10.000 m2 com Projeto para Bungalows.Lugar calmo e muito aprazível, zona verde com vista, junto a Levada Nova, com infraestruturas de água potável, eletricidade e telecomunicações e acesso rodoviário.Apresenta uma situação excelente quanto á sua morfologia e localização, salvaguardando assim a e serra e a natureza predominantemente verde que o caracteriza.Nota: Condicionamentos gerais;Em conformidade com o PDM do Município da Calheta, os condicionamentos para zonas de edificação dispersa são os seguintes:- Índice de Construção: 0,7- Índice de impermeabilização: 50%- Altura total de Edificação: 10mts- Afastamentos laterais e tardoz mínimos: 3 metrosCompatível com um projeto TurísticoNão descarte esta oportunidade, marque já a sua visita!
AMI: 15427
Ref. Externa: Q1900
Id: 1154317
Inicie sessão para guardar este imóvel e aceder à sua lista de favoritos em qualquer dispositivo.
Área de terreno : 710 m²
Terreno agrícola com frente de estrada junto a Ribeiro.Tem uma área de 710 m2, localizado no Machico, onde perdura o sossego e a tranquilidade.É possível construir de acordo com as especificações do PDM emitido pela Câmara Municipal de Machico.Boa Oportunidade de Investimento!
AMI: 15427
Ref. Externa: Q1781
Id: 1154316
Inicie sessão para guardar este imóvel e aceder à sua lista de favoritos em qualquer dispositivo.
Área de terreno : 1500 m²
Terreno Rústico com 1500 m2 no Santo da Serra para venda.Excelente terreno junto à estrada, em zona calma de ambiente familiar, acolhedor e sossegado no Santo da Serra com excelente exposição solar.Boa Oportunidade de Investimento!
AMI: 15427
Ref. Externa: Q1859
Id: 1154315
Inicie sessão para guardar este imóvel e aceder à sua lista de favoritos em qualquer dispositivo.
Área bruta : 4690 m²
- Terreno Misto de 4690 m2, vista serra com T0 KITCHENET incorporado;- Perfeito para projecto agrícola ou de construção;- Poço com água da nascente até 100 mil litros;- Vários tipos de árvores de frutos.
AMI: 15427
Ref. Externa: Q1334
Id: 1154310
Inicie sessão para guardar este imóvel e aceder à sua lista de favoritos em qualquer dispositivo.
Inicie sessão para ocultar este imóvel das suas pesquisas e manter a sua lista de resultados organizada.
QUALI Real Estate, Lda
Consultor imobiliário em Quali Real Estate - AMI: 15427
Compre créditos para poder destacar os seus imóveis! Desta forma eles são os primeiros a aparecer nas pesquisas e têm uma maior chance de serem vistos pelos utilizadores.
© Copyright 2023 | CASACERTA. All rights reserved
Guardar favoritos
Este imóvel foi guardados nos seus favoritos com sucesso.
Para poder guardar pesquisa deverá ter a sua sessão iniciada.
Caso não tenha uma conta, deverá criar uma.
A sua pesquisa foi guardada com sucesso!
Este site utiliza cookies. Ao navegar no site estará a consentir a sua utilização.
Para mais informações sobre os cookies pode consultar a
política de privacidade.