Agência imobiliária - AMI: 5604
Comprar
Arrendar
490.000 €
Área de terreno : 1340 m²
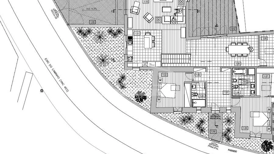
O lote dispõe de projeto aprovado (PIP) para a construção de uma moradia contemporânea de alto padrão, cuidadosamente concebida para maximizar a luz natural, a privacidade e a integração com a paisagem envolvente. O projeto inclui ainda um anexo independente, oferece grande versatilidade de utilização; perfeito para receber hóspedes, criar um escritório, estúdio ou até gerar rendimento adicional. Destacase a arquitetura moderna, marcada por linhas elegantes e amplas superfícies envidraçadas orientadas para o mar, que garantem luminosidade e vistas deslumbrantes. Os espaços exteriores foram pensados para proporcionar o máximo conforto e lazer, integrando zona de refeições ao ar livre, piscina e jardim paisagístico. A moradia foi desenhada para oferecer uma experiência de vida funcional e sofisticada: uma ampla sala em open space com cozinha integrada, quatro suítes com acesso a terraços privativos e uma garagem espaçosa para três carros, complementada por uma arrecadação ideal para arrumação extra. Este terreno distinguese pela combinação de uma localização premium, vista mar, PIP aprovado e elevado potencial de valorização, tornandoo uma oportunidade excecional tanto para residência permanente como para investimento. Este projeto abraça um estilo de vida onde o design se funde com a paisagem, uma verdadeira porta de entrada para o melhor que o Algarve tem para oferecer.
AMI: 5604
Ref. Externa: 1009-2406
Id: 1698003
Inicie sessão para guardar este imóvel e aceder à sua lista de favoritos em qualquer dispositivo.
Área de terreno : 7971 m²
Rodeado por uma paisagem pitoresca e marcada por árvores típicas da região, nomeadamente 18 figueiras, 18 amendoeiras, 4 oliveiras e 3 alfarrobeiras entre outras. Graças ao seu solo fértil e às suas dimensões, este espaço abre portas a múltiplas possibilidades de exploração agrícola, permitindo criar um projeto sustentável e produtivo, em harmonia com o meio envolvente. Embora não seja possível construir, este terreno é perfeito para quem valoriza a terra e deseja investir com consciência, seja para cultivo ou simplesmente para desfrutar da serenidade rural.
AMI: 5604
Ref. Externa: 1009-2395
Id: 1573773
Inicie sessão para guardar este imóvel e aceder à sua lista de favoritos em qualquer dispositivo.
3 Quartos
1 WCs
Área bruta : 165 m²
Atualmente, esta ampla moradia destacase pela sua fachada de grande charme, perfeita para ser restaurada e apresenta um enorme potencial para uma reconstrução completa. O seu interior não está habitável e precisa de reconstrução. Dispõe de uma sala de estar e jantar, cozinha, três quartos, uma casa de banho e ainda uma garagem fechada com zona de arrumos. A propriedade tem acesso através de estrada asfaltada com todos os serviços municipais, garantindo total comodidade. O terreno é plano e adornado com árvores de fruto típicas da região, oferece vistas abertas sobre a paisagem campestre, criando um ambiente sereno. Uma localização simplesmente imbatível: a poucos minutos da Estação de Comboios e a apenas 7 km de Quarteira e Vilamoura, com as suas praias deslumbrantes, serviços de excelência e uma vida vibrante. A cidade de Loulé fica a meros 5 km, oferecendo toda a conveniência do quotidiano. O equilíbrio perfeito entre estar perto de tudo e desfrutar da tranquilidade. A totalidade do terreno encontra-se inserida em zona de Espaços Urbanizáveis a Estruturar segundo o PDM, permitindo a possibilidade de subdivisão e construção de moradias geminadas ou unidades independentes Para quem procura um investimento seguro, rentável e cheio de potencial. Perfeito para quem quer rentabilizar desde já ou desenvolver um projeto que promete retorno garantido no futuro. Esta propriedade está localizada mesmo ao lado da propriedade com referência 1009-2400, o que abre a possibilidade de unir ambas e desenvolver um projeto de maior dimensão.
AMI: 5604
Ref. Externa: 1009-2404
Id: 1526460
Inicie sessão para guardar este imóvel e aceder à sua lista de favoritos em qualquer dispositivo.
4 Quartos
2 WCs
Área bruta : 109 m²
Atualmente, a moradia encontra-se dividida em dois apartamentos independentes, embora parcialmente habitável está a precisar alguma modernização. O terreno, totalmente plano e enriquecido com árvores de fruto típicas da região, oferece vistas desafogadas sobre o campo, proporcionando um ambiente tranquilo e natural. A localização é verdadeiramente privilegiada: a poucos minutos da Estação de Comboios, a apenas 7 km de Quarteira e Vilamoura com todas as suas praias, serviços e animação e a 5 km da cidade de Loulé. Uma combinação perfeita entre centralidade e privacidade. A primeira unidade da casa dispõe de uma sala de estar e jantar em plano aberto com cozinha integrada, dois quartos e uma casa de banho. A segunda unidade, com entrada independente, oferece dois quartos e uma casa de banho. A propriedade tem dois acessos através de duas entradas diferentes que são estradas asfaltadas com todos os serviços municipais, garantindo total comodidade. A totalidade do terreno encontra-se inserida em zona de Espaços Urbanizáveis a Estruturar segundo o PDM, permitindo a possibilidade de subdivisão e construção de novas moradias ou unidades independentes. Um verdadeiro trunfo para quem procura um investimento sólido e versátil. Ideal para quem deseja investir agora ou preparar um projeto de valorização futura. Esta propriedade está localizada mesmo ao lado da propriedade com referência 1009-2404, o que abre a possibilidade de unir ambas e desenvolver um projeto de maior dimensão.
AMI: 5604
Ref. Externa: 1009-2400
Id: 1526458
Inicie sessão para guardar este imóvel e aceder à sua lista de favoritos em qualquer dispositivo.
350.000 €
Área de terreno : 11217 m²
Oferece uma vantagem única: um projeto anteriormente aprovado para uma moradia de design moderno, composta por rés do chão e cave, com um total de cinco quartos em suite e piscina. A reativação deste projeto junto da Câmara Municipal poderá representar uma significativa poupança de tempo no processo de construção. Com uma vista desafogada sobre o campo, a ruína existente está posicionada no centro do terreno, o que é altamente vantajoso para a nova implantação. A topografia praticamente plana é ideal para a criação de um jardim magnífico, já enriquecido com árvores regionais, como amendoeiras, alfarrobeiras e figueiras. Localizado numa zona rural tranquila, o terreno encontra-se a apenas 4 km do centro de Boliqueime e a 6 km de Vilamoura, proporcionando o equilíbrio perfeito entre o charme tradicional e a modernidade de todas as infraestruturas de lazer. O acesso é pavimentado, com exceção dos últimos 20 metros de entrada, encontrando-se ambos em excelentes condições. O cenário perfeito para dar vida ao seu projeto familiar ou garantir um investimento seguro numa das zonas mais cobiçadas do Algarve.
AMI: 5604
Ref. Externa: 1009-2403
Id: 1526459
Inicie sessão para guardar este imóvel e aceder à sua lista de favoritos em qualquer dispositivo.
50.000 €
Área de terreno : 2000 m²
Com localização privilegiada e enorme potencial agrícola, o destaque vai para o seu pomar tradicional, repleto de árvores autóctones:30 amendoeiras e 6 figueiras entre outras que enriquecem a paisagem e que podem oferecer produção generosa ano após ano. Terreno versátil, com áreas planas e um suave declive que asseguram excelente drenagem natural e condições ideais para diferentes tipos de cultivo. Embora não seja permitida construção, este terreno é perfeito para quem procura investir em agricultura, criar um projeto ecológico ou simplesmente desfrutar da tranquilidade e do valor ambiental de uma propriedade preservada. Uma oportunidade rara para quem deseja unir rentabilidade, natureza e qualidade de vida no coração do Algarve. Esta propriedade é uma oportunidade para quem valoriza a terra e o contacto com a natureza.
AMI: 5604
Ref. Externa: 1009-2394
Id: 1480191
Inicie sessão para guardar este imóvel e aceder à sua lista de favoritos em qualquer dispositivo.
Área de terreno : 7822 m²
Esta propriedade é composta por dois terrenos contíguos . Com uma abundante presença de árvores autóctones, destaca-se um verdadeiro pomar tradicional: 40 alfarrobeiras, 12 amendoeiras e diversas figueiras que pontuam a paisagem . O solo fértil oferece excelentes condições para exploração agrícola e para criar um ambiente sustentável, produtivo e em harmonia com a natureza, enquanto o acesso asfaltado garante praticidade para qualquer tipo de atividade rural. Embora não seja permitida construção, este espaço é ideal para quem procura investir na terra, cultivar com consciência ou simplesmente desfrutar da tranquilidade e do valor ecológico de uma propriedade preservada.
AMI: 5604
Ref. Externa: 1009-2392
Id: 1477945
Inicie sessão para guardar este imóvel e aceder à sua lista de favoritos em qualquer dispositivo.
Área de terreno : 1430 m²
A propriedade conta com uma rica vegetação nativa, onde se destaca um pomar tradicional composto por alfarrobeiras, amendoeiras e várias figueiras entre outras. O solo, de elevada qualidade, proporciona ótimas condições para o desenvolvimento de projetos agrícolas sustentáveis, promovendo produtividade em sintonia com o meio ambiente. O acesso por estrada asfaltada facilita a logística de qualquer atividade rural. A construção não está permitida nesta zona, mas este lote representa uma excelente oportunidade para quem deseja investir na terra, praticar agricultura consciente ou simplesmente usufruir da serenidade e do valor ecológico.
AMI: 5604
Ref. Externa: 1009-2393
Id: 1477944
Inicie sessão para guardar este imóvel e aceder à sua lista de favoritos em qualquer dispositivo.
Área de terreno : 963 m²
A ruína está situada no ponto mais alto do terreno, o que otimiza a vista, e o terreno possui um ligeiro declive ideal para a criação de um jardim espetacular. Com acesso asfaltado, a localização é bastante central, a poucos quilómetros da cidade de Loulé. Além disso, todos os serviços essenciais como saneamento básico e eletricidade estão disponíveis para ligação, o que facilitará bastante o processo de construção. Embora existam algumas casas vizinhas nas redondezas, a privacidade da propriedade é totalmente preservada. A sua excelente localização permite desfrutar da tranquilidade do campo, mantendo todas as conveniências por perto. Nas imediações, encontrará também pontos de interesse ideais para longos e relaxantes passeios, permitindo a observação da natureza,. Esta é sem dúvida uma oportunidade fantástica para criar um refúgio personalizado sem comprometer a conveniência.
AMI: 5604
Ref. Externa: 1009-2399
Id: 1443052
Inicie sessão para guardar este imóvel e aceder à sua lista de favoritos em qualquer dispositivo.
Área de terreno : 1239 m²
Descubra uma oportunidade rara no coração do Algarve. Localizada nas colinas tranquilas de Parragil, esta propriedade oferece uma vantagem única na criação da sua casa de luxo de sonho. Com vista panorâmica para o mar e uma posição tranquila no final de um beco sem saída, esta é uma localização privilegiada que oferece paz e privacidade, mas a poucos minutos das vibrantes cidades de Loulé e Boliqueime. Por que esperar anos pela permissão de planejamento? Este imóvel é vendido com projeto municipal totalmente aprovado, sendo que a construção bruta (estrutura e paredes) já está concluída. Isso remove todo o risco, burocracia e incerteza do processo de construção, economizando tempo e dinheiro inestimáveis. Você entra na fase emocionante: escolher os acabamentos para personalizar sua casa. Os planos aprovados são para uma magnífica moradia de 4 quartos e 4 casas de banho projetada para uma vida moderna e para maximizar as vistas deslumbrantes: Térreo: Possui dois espaçosos quartos com banheiro privativo e uma impressionante sala de estar e cozinha em plano aberto. As janelas panorâmicas inundam o espaço de luz e conduzem diretamente ao futuro terraço da piscina. Primeiro andar: Lar de dois quartos principais com casa de banho privativa, ambos com vistas deslumbrantes sobre o mar e acesso a um terraço privado. Terraço na cobertura: Um grande espaço privativo na cobertura oferece o melhor "sky lounge" para banhos de sol, entretenimento ou simplesmente apreciar as vistas de 360 graus. Porão: Um nível inferior substancial inclui uma grande garagem para três carros, uma despensa e um banheiro. A oportunidade de bônus: terreno urbano adjacente incluído. Esta venda inclui exclusivamente um terreno urbano adjacente e separado. Este é um ativo incrível, dando a você a flexibilidade de: Construa uma casa de hóspedes separada para a família ou funcionários. Construa uma segunda moradia como investimento para arrendamento. Crie um extenso jardim privado e complexo de lazer. Esta é a solução perfeita para quem quer construir e personalizar a sua própria propriedade no Algarve, com permissão de construção garantida e uma vantagem significativa.
AMI: 5604
Ref. Externa: 1001-2402
Id: 1439022
Inicie sessão para guardar este imóvel e aceder à sua lista de favoritos em qualquer dispositivo.
Área de terreno : 4135 m²
A futura moradia está composta por dois quartos, incluindo uma suíte, oferece uma cozinha em plano aberto que se estende para a sala de estar e jantar, criando um ambiente amplo e acolhedor. Conta ainda com uma prática despensa, uma cave destinada a garagem e acesso a uma espaçosa açoteia tradicional com cozinha exterior e vistas deslumbrantes. O terreno plano e generoso oferece uma ligação ideal entre os espaços interiores e exteriores. Conta com várias oliveiras, alfarrobeiras e figueiras, proporcionando o espaço perfeito para relaxar, rodeado pela tranquilidade da natureza. Localização privilegiada numa zona calma e central, beneficia de acesso asfaltado e está apenas 2,5 km da cidade de Loulé, portanto a sua proximidade a escolas, comércio, restaurantes e actividades culturais é um ponto importante para um dia a dia confortável. Com um design contemporâneo que incorpora elementos rústicos, como paredes em pedra natural, refletindo uma tendência crescente que valoriza a estética e promove a harmonia entre o tradicional e o moderno. O resultado é um espaço residencial único, ideal para quem procura um refúgio rural com estilo ou uma excelente oportunidade de investimento no coração do Algarve.
AMI: 5604
Ref. Externa: 1009-2398
Id: 1421684
Inicie sessão para guardar este imóvel e aceder à sua lista de favoritos em qualquer dispositivo.
320.000 €
Área de terreno : 6400 m²
Com uma área total ampla onde aproximadamente 1000 m2 estão designados no PDM de Loulé como "Zona de Edificação Dispersa a Estruturar", o que permite a construção de habitação. Rodeado pela serenidade do campo, esta propriedade, situada numa zona rural tranquila com algumas moradias dispersas, oferece o equilíbrio perfeito entre privacidade e comunidade. Com vistas amplas e desimpedidas sobre a paisagem natural, e da parte mais elevada do terreno, um vislumbre da linha azul da costa Algarvia. A poucos minutos, cafés e restaurantes típicos assim como a Vila de Boliqueime onde o dia a dia será mais fácil, pois oferece uma panóplia de serviços. O acesso asfaltado garante comodidade para qualquer projeto futuro. Seja residência própria ou investimento, este pode ser um fantástico ponto de partida para desenvolver um projecto .
AMI: 5604
Ref. Externa: 1009-2391
Id: 1402832
Inicie sessão para guardar este imóvel e aceder à sua lista de favoritos em qualquer dispositivo.
200.000 €
Área de terreno : 393 m²
Esta propriedade encontra-se dividida em dois espaços distintos cada um com uma entrada independente. Inclui um logradouro que pode ser utilizado para estacionamento ou para qualquer outra finalidade que necessite. Localizado numa zona rural mas de fácil acesso à N270 e também à autoestrada A22, este armazém oferece uma boa área de construção e diversas possibilidades. A sua localização privilegiada e a acessibilidade conveniente fazem dele o espaço ideal para expandir ou iniciar o seu negócio.
AMI: 5604
Ref. Externa: 1009-2390
Id: 1401101
Inicie sessão para guardar este imóvel e aceder à sua lista de favoritos em qualquer dispositivo.
4 Quartos
3 WCs
Área bruta : 152 m²
Espaçosa moradia de 4 quartos com piscina privada situada em Gorjões, Santa Bárbara de Nexe, Faro, Algarve, posicionada num terreno elevado e privado de 8.170 m² que oferece vistas panorâmicas deslumbrantes do campo. A residência de dois andares está em boas condições e oferece áreas de estar generosas, amplos terraços e terrenos maduros que captam a abundante luz solar algarvia. A propriedade combina uma reclusão rural tranquila com acesso conveniente a Faro, praias próximas e comodidades regionais, tornando-se uma excelente casa de família ou um investimento de arrendamento de alto potencial. Enquanto a villa está pronta para ser ocupada, a atualização e modernização de bom gosto liberariam todo o seu valor de mercado e criariam um ambiente de vida contemporâneo e cheio de luz, adaptado ao gosto pessoal. Agende uma visita para experimentar o ambiente elevado, a piscina privada e o potencial desta excepcional propriedade algarvia.
AMI: 5604
Ref. Externa: 1001-2397
Id: 1388273
Inicie sessão para guardar este imóvel e aceder à sua lista de favoritos em qualquer dispositivo.
60.000 €
Área de terreno : 150 m²
Cada casa conta com três divisões e pode ser reconstruída de forma independente. Existe também a possibilidade de criar uma casa maior, adaptada ao estilo de vida ou visão de investimento. O espaço exterior, um quintal que é partilhado por estas duas casas pontuado por árvores que oferecem sombra e frescura, pode ser transformado num jardim encantador, ideal para momentos ao ar livre. A localização sossegada dentro de um aldeia rural tem a poucos passos um café / restaurante e outras comodidades locais, esta propriedade oferece o equilíbrio perfeito entre a tranquilidade e a conveniência de ter alguns vizinhos por perto e vistas agradáveis para o campo, o ambiente é acolhedor e seguro. Seja para criar a sua habitação principal, desenvolver um projeto ou simplesmente investir numa zona do barrocal Algarvio, esta é uma oportunidade de criar algo verdadeiramente charmoso.
AMI: 5604
Ref. Externa: 1009-2388
Id: 1381251
Inicie sessão para guardar este imóvel e aceder à sua lista de favoritos em qualquer dispositivo.
Área de terreno : 203 m²
Situado na charmosa vila de Benafim, no coração da região do Algarve em Portugal, este empreendimento imobiliário único apresenta uma oportunidade rara de transformar quatro ruínas históricas em casas modernas e cuidadosamente projetadas. Cada propriedade terá um ou dois quartos e um pátio privado com paredes, oferecendo uma combinação ideal de conforto, estilo e autenticidade rústica. As casas ficam lado a lado, permitindo a possibilidade de combiná-las em uma única residência maior, perfeita para quem busca um layout personalizado. Este projeto cuidadosamente projetado mistura a vida moderna com o charme de um ambiente tradicional de vila. Os planos maximizam o espaço e a luz, criando casas confortáveis e funcionais. Seja pensadas como residências permanentes e tranquilas, retiros de férias íntimos ou propriedades boutique para aluguel, essas futuras residências prometem elegância contemporânea em um ambiente atemporal de vila. Benafim oferece um estilo de vida tranquilo, cercado pela natureza, cultura e pelo charme inconfundível do Algarvetornando este projeto uma escolha inspiradora tanto para incorporadores quanto para quem busca casas dos sonhos. Este projeto representa um investimento fantástico, seja você procurando uma residência permanente, uma viagem de férias ou um imóvel rentável para aluguel. Com as permissões de construção já garantidas, você pode contornar a burocracia e começar a construir seu futuro sob o sol imediatamente. Por favor, note que este é um projeto aprovado e não inclui o custo de construção do imóvel.
AMI: 5604
Ref. Externa: 1001-2386
Id: 1297611
Inicie sessão para guardar este imóvel e aceder à sua lista de favoritos em qualquer dispositivo.
2 Quartos
1 WCs
Área bruta : 119 m²
A moradia foi cuidadosamente renovada e transformada numa casa moderna, sem perder a alma tradicional, os elementos clássicos fundem-se harmoniosamente com materiais atuais, criando um ambiente acolhedor. Além disso, oferece a possibilidade de acrescentar facilmente mais um quarto, adaptando-se às necessidades futuras. O interior é luminoso e funcional, destaca-se pelos espaços amplos e bem distribuídos: uma acolhedora sala de estar com recuperador de calor, a cozinha contemporânea com acesso direto a uma linda marquise, dois quartos confortáveis e uma casa de banho espaçosa. Os tetos altos enchem a casa de luz natural e ampliam a sensação de liberdade. A pérgola na área exterior é o convite perfeito para relaxar em qualquer estação. Conta ainda com uma garagem generosa e fechada e uma entrada em calçada típica que pode ser usada como estacionamento para vários carros, além de modernas comodidades como ar condicionado e aquecimento chão radiante (na cozinha e casa de banho), que garantem bem-estar durante todo o ano. O exterior oferece o melhor da natureza, terraços cobertos e também descobertos perfeitos para momentos de lazer e uma churrasqueira ideal para refeições ao ar livre. O jardim, de baixa manutenção, oferece beleza com simplicidade, complementado por terreno adicional com árvores autóctones que preservam o caráter natural da propriedade.
AMI: 5604
Ref. Externa: 1009-2385
Id: 1296128
Inicie sessão para guardar este imóvel e aceder à sua lista de favoritos em qualquer dispositivo.
1.295.000 €
5 Quartos
5 WCs
Área útil : 333 m²
A propriedade possui uma espaçosa área de construção de 333 metros quadrados e está inserida num generoso terreno de 12.200 metros quadrados. Construída em 1999, esta moradia transpira elegância nos seus 3 pisos. Ao entrar, deparamo-nos com um interior encantador com comodidades luxuosas, como piscina, terraço, aquecimento e ar condicionado. Para além da cozinha em open space, sala de jantar e sala de estar, a moradia inclui ainda uma lavandaria, roupeiros embutidos em todos os quartos e um apartamento independente completo, com cozinha totalmente equipada, um quarto e uma casa de banho com piso aquecido, garantindo conforto e conveniência em todos os momentos. Os atuais proprietários têm alugado o apartamento a hóspedes durante a maior parte do ano. Uma parte substancial do terreno foi reservada para alguns cavalos, e os estábulos e o paddock ainda lá estão. Uma das características marcantes desta propriedade são as vistas deslumbrantes que oferece. Da vista para o mar à vista para o campo e para a montanha, pode apreciar a beleza da paisagem circundante a partir de todas as janelas e terraços em redor da casa. Com a sua localização privilegiada perto de Loulé e de um campo de golfe, situada numa posição elevada, a casa oferece toda a beleza pela qual o Algarve é famoso.
AMI: 5604
Ref. Externa: 1031-2373
Id: 1288981
Inicie sessão para guardar este imóvel e aceder à sua lista de favoritos em qualquer dispositivo.
Área de terreno : 48 m²
Uma oportunidade de criar uma casa deslumbrante e contemporânea no coração da autêntica vila algarvia de Benafim. Este projeto aprovado permite a construção de uma elegante casa de aldeia de três andares e dois quartos, completa com um pátio privado, substituindo uma ruína atual. Com todos os planos arquitetônicos aprovados e prontos para o início da fase de construção, esta é a chance perfeita para construir a casa dos seus sonhos ou um imóvel de aluguel altamente desejável sem o longo e incerto processo de planejamento. Este projeto cuidadosamente projetado combina a vida moderna com o charme de um ambiente tradicional de vila. Os planos maximizam o espaço e a luz em três andares, criando uma casa confortável e funcional. O piso térreo foi projetado para uma vida em plano aberto, fluindo para um pátio privado - perfeito para refeições ao ar livre e desfrutar do famoso clima do Algarve. Os andares superiores abrigarão dois quartos, oferecendo um retiro tranquilo. Benafim é uma vila pitoresca e tranquila que oferece uma fuga da agitação das principais estâncias costeiras, sem deixar de estar convenientemente localizada. Aninhada nas colinas do centro do Algarve, é conhecida pela sua comunidade acolhedora, cafés locais e um ambiente natural deslumbrante. Este projeto representa um investimento fantástico, quer esteja à procura de uma residência permanente, de uma escapadinha de férias ou de um imóvel rentável para arrendamento. Com as permissões de planejamento já garantidas, você pode contornar a burocracia e começar a construir seu futuro ao sol imediatamente. Observe que este é um projeto aprovado e não inclui o custo de construção da propriedade.
AMI: 5604
Ref. Externa: 1001-2381
Id: 1286077
Inicie sessão para guardar este imóvel e aceder à sua lista de favoritos em qualquer dispositivo.
Área de terreno : 56 m²
Imagine construir o seu retiro ideal no coração de Benafim, uma vila tradicional aninhada nas colinas cênicas de Loulé. Este projeto totalmente aprovado dá a você a chance de criar uma elegante residência de três andares com um pátio privativo murado para refeições ao ar livre e um terraço ensolarado na cobertura para aproveitar as vistas panorâmicas do campo. Quer esteja a imaginar uma base tranquila ou um arrendamento de férias gerador de rendimento, esta propriedade combina charme rústico com potencial moderno. Você está a poucos passos dos itens essenciais do dia a dia - um banco, supermercado, restaurantes aconchegantes e lojas portuguesas autênticas - para desfrutar da conveniência sem sacrificar a tranquilidade. Esta casa é um dos cinco projetos aprovados para venda na mesma rua e pode ser combinada com uma ou todas as outras propriedades para fazer uma casa maior. Com preços competitivos para atrair investidores e construtores ansiosos para dar vida a uma casa de sonho numa das regiões mais desejadas de Portugal. Observe que este é um projeto aprovado e não inclui o custo de construção da propriedade.
AMI: 5604
Ref. Externa: 1001-2379
Id: 1286075
Inicie sessão para guardar este imóvel e aceder à sua lista de favoritos em qualquer dispositivo.
Inicie sessão para ocultar este imóvel das suas pesquisas e manter a sua lista de resultados organizada.
richard mills
Agência imobiliária - AMI: 5604
Compre créditos para poder destacar os seus imóveis! Desta forma eles são os primeiros a aparecer nas pesquisas e têm uma maior chance de serem vistos pelos utilizadores.
© Copyright 2023 | CASACERTA. All rights reserved
Guardar favoritos
Este imóvel foi guardados nos seus favoritos com sucesso.
Para poder guardar pesquisa deverá ter a sua sessão iniciada.
Caso não tenha uma conta, deverá criar uma.
A sua pesquisa foi guardada com sucesso!
Este site utiliza cookies. Ao navegar no site estará a consentir a sua utilização.
Para mais informações sobre os cookies pode consultar a
política de privacidade.