Consultor imobiliário em Soluções Ideais Braga - Centro - AMI: 17170
Comprar
Arrendar
500.000 €
3 Quartos
Área bruta : 207 m²
Moradia Térrea NOVA!Moradia T3 em Gaveto, completamente equipada e piscina aquecida!Localizada em Espinho numa zona calma, com vistas desafogadas e rápido acesso ás cidades de Braga e Guimarães!Principais características:- zona exterior com w.c de serviço, churrasqueira e piscina aquecida;- 650 m2 de terreno;- Excelente exposição solar e vistas desafogadas;- Todas as divisões com janela;- Ar- condicionado em todas as divisões;- Aquecimento central por recuperador de calor;- Recuperador de calor;- Isolamento térmico e acústico;- Suíte com closet;- Cozinha em open-space, completamente equipada e com despenseiro;- Bomba de calor;- Garagem fechada para 2 viaturas.Não perca esta oportunidade, agenda já a sua visita! Porquê comprar com a Soluções ideais?Criado em 2002, o grupo Soluções Ideais é hoje em dia uma referência incontornável no setor imobiliário e a comprová-lo estão os vários prémios que tem conquistado nestes 20 anos, incluindo o Prémio Cinco Estrelas e Melhor Marca do Ano. Do consumidor a entidades públicas e privadas, de parceiros de negócio a franchisados, a opinião é unânime: a Soluções Ideais é uma mais-valia sem igual nas áreas em que atua ? a construção e arquitetura, a mediação imobiliária e a consultoria e intermediação de créditos.Assim, a Soluções Ideais é a escolha segura de quem procura mediação para comprar, vender ou arrendar imóvel.
AMI: 17170
Ref. Externa: BGCFS177
Id: 1487162
Inicie sessão para guardar este imóvel e aceder à sua lista de favoritos em qualquer dispositivo.
2 Quartos
Área bruta : 85 m²
Apartamento T2+1 no Centro de Braga!Junto a todos os serviços e acesso fácil a qualquer ponto da cidade !Principais características:- Elevador;- Lugar de garagem;- Suíte;- Varanda na sala e quartos;- Lugar de sótão para arrumos;- lavandaria;- Despenseiro na cozinha;- Lareira.Não perca esta oportunidade, agenda já a sua visita!Porquê comprar com a Soluções ideais?Criado em 2002, o grupo Soluções Ideais é hoje em dia uma referência incontornável no setor imobiliário e a comprová-lo estão os vários prémios que tem conquistado nestes 20 anos, incluindo o Prémio Cinco Estrelas e Melhor Marca do Ano. Do consumidor a entidades públicas e privadas, de parceiros de negócio a franchisados, a opinião é unânime: a Soluções Ideais é uma mais-valia sem igual nas áreas em que atua ? a construção e arquitetura, a mediação imobiliária e a consultoria e intermediação de créditos.Assim, a Soluções Ideais é a escolha segura de quem procura mediação para comprar, vender ou arrendar imóvel.
AMI: 17170
Ref. Externa: BGCFS175
Id: 1439621
Inicie sessão para guardar este imóvel e aceder à sua lista de favoritos em qualquer dispositivo.
3 Quartos
Área bruta : 280 m²
Moradia Individual Térrea junto ao Centro de Braga!Moradia T3 (3 Suítes)+ escritório, pronta habitar!Principais Características:- Lote de 790 M2 (plano);- 2 lugares de estacionamento exteriores;- Garagem fechada para 3 viaturas;- Escritório com A.C,- Caixilharia em alumínio com ruptura térmica e vidro duplo;- Estores Elétricos;- Isolamento térmico e Acústico; - Cozinha em Open-Space, equipada com eletrodomésticos; - Recuperador de calor;- Ar- Condicionado em todas as divisões;- W.C de Serviço;- Armários embutidos em todos os quartos e hall dos Quartos;- 3 quartos (Suíte);- Alarme;- Rega Automática;- Piscina.Situada em zona residencial:- Bastantes espaços verdes ao redor;- Zona sem transito, apenas moradores;- Acesso a transportes públicos (5 metros);- Vários acessos ao Centro da Cidade.Não perca esta oportunidade, agende a sua visita! Porquê comprar com a Soluções ideais?Criado em 2002, o grupo Soluções Ideais é hoje em dia uma referência incontornável no setor imobiliário e a comprová-lo estão os vários prémios que tem conquistado nestes 20 anos, incluindo o Prémio Cinco Estrelas e Melhor Marca do Ano. Do consumidor a entidades públicas e privadas, de parceiros de negócio a franchisados, a opinião é unânime: a Soluções Ideais é uma mais-valia sem igual nas áreas em que atua ? a construção e arquitetura, a mediação imobiliária e a consultoria e intermediação de créditos.Assim, a Soluções Ideais é a escolha segura de quem procura mediação para comprar, vender ou arrendar imóvel.
AMI: 17170
Ref. Externa: BGCFS174
Id: 1381593
Inicie sessão para guardar este imóvel e aceder à sua lista de favoritos em qualquer dispositivo.
1 Quartos
Área bruta : 46 m²
Apartamento NOVO no Centro Histórico de Braga!Principais características:- Prédio Novo com elevador;- Quarto com Ar-condicionado;- Cozinha equipada com placa, forno, exaustor;- W.C. completo com base de chuveiro;- Painéis solares;- Caixilharia Alumínio com vidro duplo;- Ar condicionado;- Pavimento flutuante;- Carpintaria lacada.Localização Central em Zona Histórica de Braga, na freguesia de S. Vicente, a escassos minutos do centro da cidade, a próximo de vários serviços, comércios e escolas.Agende a sua visita!Porquê comprar com a Soluções ideais?Criado em 2002, o grupo Soluções Ideais é hoje em dia uma referência incontornável no setor imobiliário e a comprová-lo estão os vários prémios que tem conquistado nestes 20 anos, incluindo o Prémio Cinco Estrelas e Melhor Marca do Ano. Do consumidor a entidades públicas e privadas, de parceiros de negócio a franchisados, a opinião é unânime: a Soluções Ideais é uma mais-valia sem igual nas áreas em que atua ? a construção e arquitetura, a mediação imobiliária e a consultoria e intermediação de créditos.Assim, a Soluções Ideais é a escolha segura de quem procura mediação para comprar, vender ou arrendar imóvel.
AMI: 17170
Ref. Externa: BGCFS172
Id: 1315375
Inicie sessão para guardar este imóvel e aceder à sua lista de favoritos em qualquer dispositivo.
1 Quartos
Área bruta : 46 m²
Apartamento NOVO no Centro Histórico de Braga!Principais características:- Prédio Novo com elevador;- Quarto com Ar-condicionado;- Cozinha equipada com placa, forno, exaustor;- W.C. completo com base de chuveiro;- Painéis solares;- Caixilharia Alumínio com vidro duplo;- Ar condicionado;- Pavimento flutuante;- Carpintaria lacada.Localização Central em Zona Histórica de Braga, na freguesia de S. Vicente, a escassos minutos do centro da cidade, a próximo de vários serviços, comércios e escolas.Agende a sua visita!Porquê comprar com a Soluções ideais?Criado em 2002, o grupo Soluções Ideais é hoje em dia uma referência incontornável no setor imobiliário e a comprová-lo estão os vários prémios que tem conquistado nestes 20 anos, incluindo o Prémio Cinco Estrelas e Melhor Marca do Ano. Do consumidor a entidades públicas e privadas, de parceiros de negócio a franchisados, a opinião é unânime: a Soluções Ideais é uma mais-valia sem igual nas áreas em que atua ? a construção e arquitetura, a mediação imobiliária e a consultoria e intermediação de créditos.Assim, a Soluções Ideais é a escolha segura de quem procura mediação para comprar, vender ou arrendar imóvel.
AMI: 17170
Ref. Externa: BGCFS171
Id: 1315374
Inicie sessão para guardar este imóvel e aceder à sua lista de favoritos em qualquer dispositivo.
3 Quartos
Área bruta : 273 m²
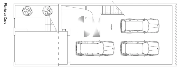
Fantástica Moradia T3 NOVA em Dume!Acabamentos de alta qualidade, possibilidade de escolha de acabamentos!!Prazo de entrega de 18meses!Moradia inserida em zona residencial de excelência bastante sossegada, a 2 min. do shopping Nova Arcada/IKEA e a 5 min. do centro de Braga!Zona com vários espaços verdes, escolas, parque para crianças, quinta pedagógica, rio e próximo de vários estabelecimentos comerciais. - Fantástica exposição solar (Nascente - Poente);- Amplo logradouro, ao nível da zona social, com possibilidade de construir piscina;- Sala com recuperador de calor;- Cozinha mobilada em acesso a logradouro;- Suite com closet;- Armários embutidos;- Varanda em todos os quartos;- A.C. Completo por conduta;- Pré-instalação de Aspiração central;- Pré-instalação Aquecimento central;- Pré-instalação Alarme e vigilância;- Pré-instalação painéis solares;- Pré-instalação de elevador doméstico;- Estores Elétricos;- Caixilharia em Alumínio com corte térmico e vidros duplos;- Bomba de calor;- Instalação completa de vídeo - porteiro;- Garagem para 3 carros com luz natural;- Portões interiores e exteriores automáticos.Marque já a sua visita! Porquê comprar com a Soluções ideais?Criado em 2002, o grupo Soluções Ideais é hoje em dia uma referência incontornável no setor imobiliário e a comprová-lo estão os vários prémios que tem conquistado nestes 20 anos, incluindo o Prémio Cinco Estrelas e Melhor Marca do Ano. Do consumidor a entidades públicas e privadas, de parceiros de negócio a franchisados, a opinião é unânime: a Soluções Ideais é uma mais-valia sem igual nas áreas em que atua ? a construção e arquitetura, a mediação imobiliária e a consultoria e intermediação de créditos.Assim, a Soluções Ideais é a escolha segura de quem procura mediação para comprar, vender ou arrendar imóvel.
AMI: 17170
Ref. Externa: BGCFS173
Id: 1313542
Inicie sessão para guardar este imóvel e aceder à sua lista de favoritos em qualquer dispositivo.
Área bruta : 27 m²
Escritório no Centro Histórico de Braga com parque privativo! INFORMAÇÃO IMPORTANTE!NÃO É POSSIVEL TRANSFORMAR EM APARTAMENTO, NÃO TEM W.C NEM HÁ POSSIBILIDADE DE TER!Localizado junto ao Arco da Porta Nova, junto ao centro histórico e Estação Ferroviária! Agende já a sua visita!
AMI: 17170
Ref. Externa: BGCFS170
Id: 1271184
Inicie sessão para guardar este imóvel e aceder à sua lista de favoritos em qualquer dispositivo.
Área bruta : 26 m²
Fabuloso Apartamento T0 no centro da cidade de Braga! Imóvel perfeito para investidores, a sua localização central e a grande procura por alojamento local torna este imóvel um excelente investimento com rendimento no imediato! Imóvel Arrendado com contrato de 6 meses! Localizado na Avenida Central, juntos de todos os bens e serviços, com paragem de autocarro á porta! - Apartamento completamente remodelado;- Apartamento mobilado;- Equipado com eletrodomésticos novos;- Ar- condicionado;- Isolamento acústico e térmico;- Elevador.Agende já a sua visita!Porquê comprar com a Soluções ideais?Criado em 2002, o grupo Soluções Ideais é hoje em dia uma referência incontornável no setor imobiliário e a comprová-lo estão os vários prémios que tem conquistado nestes 20 anos, incluindo o Prémio Cinco Estrelas e Melhor Marca do Ano. Do consumidor a entidades públicas e privadas, de parceiros de negócio a franchisados, a opinião é unânime: a Soluções Ideais é uma mais-valia sem igual nas áreas em que atua ? a construção e arquitetura, a mediação imobiliária e a consultoria e intermediação de créditos.Assim, a Soluções Ideais é a escolha segura de quem procura mediação para comprar, vender ou arrendar imóvel.
AMI: 17170
Ref. Externa: BGCFS169
Id: 1228154
Inicie sessão para guardar este imóvel e aceder à sua lista de favoritos em qualquer dispositivo.
Inicie sessão para ocultar este imóvel das suas pesquisas e manter a sua lista de resultados organizada.
Soluções Ideais Braga - Centro
Consultor imobiliário em Soluções Ideais Braga - Centro - AMI: 17170
Compre créditos para poder destacar os seus imóveis! Desta forma eles são os primeiros a aparecer nas pesquisas e têm uma maior chance de serem vistos pelos utilizadores.
© Copyright 2023 | CASACERTA. All rights reserved
Guardar favoritos
Este imóvel foi guardados nos seus favoritos com sucesso.
Para poder guardar pesquisa deverá ter a sua sessão iniciada.
Caso não tenha uma conta, deverá criar uma.
A sua pesquisa foi guardada com sucesso!
Este site utiliza cookies. Ao navegar no site estará a consentir a sua utilização.
Para mais informações sobre os cookies pode consultar a
política de privacidade.