Consultor imobiliário em UrbanProfile, Gestão de Património Imob. Unipessoal, Lda - AMI: 10502
Comprar
Arrendar
1.800.000 €
4 Quartos
5 WCs
Área bruta : 569 m²
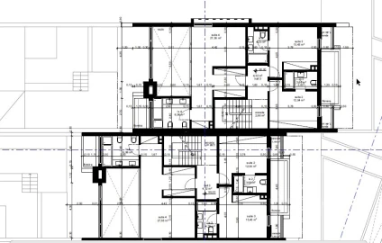
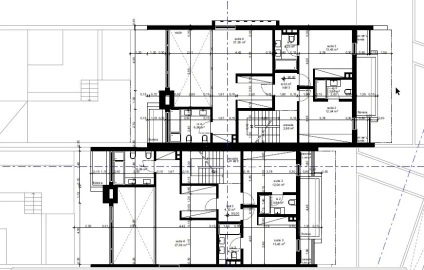
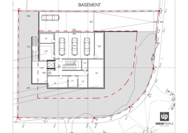
Moradia T4 nova para venda em Murches, inserida num condomínio fechado composto por 4 moradias, cada uma com um Rooftop, piscina privada e jardim. A moradia distribui-se por 4 pisos, com a seguinte composição: Piso 0: Hall de entrada, sala com lareira e acesso ao jardim e piscina, cozinha totalmente equipada em open space, 1 suite e lavabo social; Piso 1: 3 suites Rooftop, com pérgola com vista mar e Serra de Sintra Cave: Garagem para 3 carros, lavandaria, wc e área técnica situado numa zona residencial, fácil acesso a A5 e A16, serviços, supermercados, cafés, restaurantes, ginásios, etc, perto de escolas internacionais, bem como de um centro hípico, campos de golfe, ténis e padel, e a poucos minutos do centro de Cascais, da praia do Guincho, das dunas da Cresmina e da Malveira da Serra. prevista a sua conclusão em Novembro de 2025
AMI: 10502
Ref. Externa: CJG-M1293_3
Id: 1814288
Inicie sessão para guardar este imóvel e aceder à sua lista de favoritos em qualquer dispositivo.
2.750.000 €
3 Quartos
3 WCs
Área bruta : 215 m²
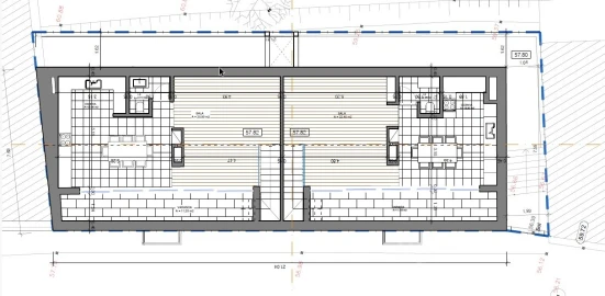
Moradia T3 para venda com jardim de 61 m², terraço com 103 m² com piscina privada, varanda de 13 m² e garagem em box com lugar para estacionar 2/3 carros, inserido no Empreendimento Vila Tijolo, no coração de Lisboa, junto à Tapada das Necessidades, entre a Estrela, Campo de Ourique e Alcântara Todas elas possuem Box própria, com ligação direta à habitação; cozinhas totalmente equipadas; arrumos; lavandaria; amplas salas abertas para os jardins privados; casas-de-banho com pavimento radiante; sistema de segurança e sistema de domótica de topo NOS Smart Home. Comodidades da Vila Tijolo Ginásio Piscina comum Jardim central privativo Estacionamento com tomadas para veículos elétricos Boxes privativas para as moradias Arrecadações individuais Espaço de lavagem para bicicletas e equipamentos Sistema de segurança central Solução tecnológica NOS Smart Home para uma gestão eficiente, inteligente e sustentável da habitação Hall de entrada com cacifos inteligentes para receção de encomendas Construída entre 1891 e 1893 por iniciativa de José Joaquim de Almeida Junça, para alojar os trabalhadores da sua Fábrica da Fonte Santa (Cerâmicas Junça), a Vila do Tijolo é um raro e notável exemplar da arquitetura industrial em tijolo à vista em Lisboa apenas comparável à icónica Praça de Touros do Campo Pequeno. O projeto original data de 1887 e reflete uma abordagem arquitetónica única, com uma fachada decorativa rica, galerias em ferro fundido nas traseiras e interiores com pés-direitos altos e abóbadas em tijolo burro exposto. Classificado como Monumento de Interesse Municipal, o imóvel foi alvo de uma intervenção respeitosa e criteriosa, que honra o seu valor histórico e arquitetónico, ao mesmo tempo que introduz novas valências habitacionais, de conforto e sustentabilidade Junto às novas estações da linha vermelha do Metro, a escolas, serviços, comércio local, rede de transportes públicos e excelentes acessibilidades ao centro de Lisboa.
AMI: 10502
Ref. Externa: P-MMM-M1412_1
Id: 1808280
Inicie sessão para guardar este imóvel e aceder à sua lista de favoritos em qualquer dispositivo.
420.000 €
1 Quartos
1 WCs
Área bruta : 46 m²
Apartamento T0 para venda com 46m2 e 16m2 jardim privativo, inserido em novo empreendimento, o Vila Tijolo, é um empreendimento residencial exclusivo no coração de Lisboa, junto à Tapada das Necessidades, entre a Estrela, Campo de Ourique e Alcântara, com piscina comum e ginásio, Comodidades da Vila Tijolo, Hall de entrada com espaço reservado a cacifos para receção de encomendas; o ginásio; a piscina comum; o amplo jardim; o estacionamento com tomadas para carregamento de veículos elétricos, uma área destinada a arrecadações individuais e um espaço para lavagem de equipamentos como bicicletas. Todas as unidades do projeto Vila Tijolo, usufruem de sistema de segurança do condomínio e de sistema inteligente NOS Smart Home, para uma gestão mais eficiente e sustentável da sua casa Construída entre 1891 e 1893 por iniciativa de José Joaquim de Almeida Junça, para alojar os trabalhadores da sua Fábrica da Fonte Santa (Cerâmicas Junça), a Vila do Tijolo é um raro e notável exemplar da arquitetura industrial em tijolo à vista em Lisboa apenas comparável à icónica Praça de Touros do Campo Pequeno. O projeto original data de 1887 e reflete uma abordagem arquitetónica única, com uma fachada decorativa rica, galerias em ferro fundido nas traseiras e interiores com pés-direitos altos e abóbadas em tijolo burro exposto. Classificado como Monumento de Interesse Municipal, o imóvel foi alvo de uma intervenção respeitosa e criteriosa, que honra o seu valor histórico e arquitetónico, ao mesmo tempo que introduz novas valências habitacionais, de conforto e sustentabilidade Junto às novas estações da linha vermelha do Metro, a escolas, serviços, comércio local, rede de transportes públicos e excelentes acessibilidades ao centro de Lisboa.
AMI: 10502
Ref. Externa: P-MMM-A1410_1
Id: 1803978
Inicie sessão para guardar este imóvel e aceder à sua lista de favoritos em qualquer dispositivo.
420.000 €
1 Quartos
1 WCs
Área bruta : 46 m²
Apartamento T0 para venda com 46m2 e 16m2 jardim privativo, inserido em novo empreendimento, o Vila Tijolo, é um empreendimento residencial exclusivo no coração de Lisboa, junto à Tapada das Necessidades, entre a Estrela, Campo de Ourique e Alcântara, com piscina comum e ginásio, Comodidades da Vila Tijolo, Hall de entrada com espaço reservado a cacifos para receção de encomendas; o ginásio; a piscina comum; o amplo jardim; o estacionamento com tomadas para carregamento de veículos elétricos, uma área destinada a arrecadações individuais e um espaço para lavagem de equipamentos como bicicletas. Todas as unidades do projeto Vila Tijolo, usufruem de sistema de segurança do condomínio e de sistema inteligente NOS Smart Home, para uma gestão mais eficiente e sustentável da sua casa Construída entre 1891 e 1893 por iniciativa de José Joaquim de Almeida Junça, para alojar os trabalhadores da sua Fábrica da Fonte Santa (Cerâmicas Junça), a Vila do Tijolo é um raro e notável exemplar da arquitetura industrial em tijolo à vista em Lisboa apenas comparável à icónica Praça de Touros do Campo Pequeno. O projeto original data de 1887 e reflete uma abordagem arquitetónica única, com uma fachada decorativa rica, galerias em ferro fundido nas traseiras e interiores com pés-direitos altos e abóbadas em tijolo burro exposto. Classificado como Monumento de Interesse Municipal, o imóvel foi alvo de uma intervenção respeitosa e criteriosa, que honra o seu valor histórico e arquitetónico, ao mesmo tempo que introduz novas valências habitacionais, de conforto e sustentabilidade Junto às novas estações da linha vermelha do Metro, a escolas, serviços, comércio local, rede de transportes públicos e excelentes acessibilidades ao centro de Lisboa. PRAZO DE FINAL DE OBRA 3ºTRIMESTE 2026
AMI: 10502
Ref. Externa: P-MMM-A1410
Id: 1803976
Inicie sessão para guardar este imóvel e aceder à sua lista de favoritos em qualquer dispositivo.
3.150.000 €
4 Quartos
3 WCs
Área bruta : 257 m²
Moradia T4 para venda com jardim de 130 m², terraço de 126 m² com piscina privada, varanda de 32 m² e garagem em box com lugar para estacionar 2/3 carros, inserido no Empreendimento Vila Tijolo, no coração de Lisboa, junto à Tapada das Necessidades, entre a Estrela, Campo de Ourique e Alcântara É composta por 3 pisos: Piso 0: Cozinha totalmente equipada, sala com acesso ao jardim, 1 casa de banho social Piso 1: Quartos Piso 2: Terraço com piscina privada Todas elas possuem Box própria, com ligação direta à habitação; cozinhas totalmente equipadas; arrumos; lavandaria; amplas salas abertas para os jardins privados; casas-de-banho com pavimento radiante; sistema de segurança e sistema de domótica de topo NOS Smart Home. Comodidades da Vila Tijolo Ginásio Piscina comum Jardim central privativo Estacionamento com tomadas para veículos elétricos Boxes privativas para as moradias Arrecadações individuais Espaço de lavagem para bicicletas e equipamentos Sistema de segurança central Solução tecnológica NOS Smart Home para uma gestão eficiente, inteligente e sustentável da habitação Hall de entrada com cacifos inteligentes para receção de encomendas Construída entre 1891 e 1893 por iniciativa de José Joaquim de Almeida Junça, para alojar os trabalhadores da sua Fábrica da Fonte Santa (Cerâmicas Junça), a Vila do Tijolo é um raro e notável exemplar da arquitetura industrial em tijolo à vista em Lisboa apenas comparável à icónica Praça de Touros do Campo Pequeno. O projeto original data de 1887 e reflete uma abordagem arquitetónica única, com uma fachada decorativa rica, galerias em ferro fundido nas traseiras e interiores com pés-direitos altos e abóbadas em tijolo burro exposto. Classificado como Monumento de Interesse Municipal, o imóvel foi alvo de uma intervenção respeitosa e criteriosa, que honra o seu valor histórico e arquitetónico, ao mesmo tempo que introduz novas valências habitacionais, de conforto e sustentabilidade Junto às novas estações da linha vermelha do Metro, a escolas, serviços, comércio local, rede de transportes públicos e excelentes acessibilidades ao centro de Lisboa.
AMI: 10502
Ref. Externa: P-MMM-M1412
Id: 1803977
Inicie sessão para guardar este imóvel e aceder à sua lista de favoritos em qualquer dispositivo.
1.460.000 €
3 Quartos
2 WCs
Área bruta : 150 m²
Apartamento T3 duplex com 149,69m², 2 varandas, inserido no Edifício Pórtico do empreendimento Vila Tijolo, no coração de Lisboa, junto à Tapada das Necessidades, entre a Estrela, Campo de Ourique e Alcântara. Este apartamento deste edifício tem lugar de estacionamento com tomada para veículos elétricos, arrecadação, cozinha equipada, sistema de segurança, sistema de domótica NOS Smart Home, ar condicionado, pavimento radiante nas casas-de-banho e beneficiam de todas a comodidades exclusivas do condomínio Comodidades da Vila Tijolo Ginásio Piscina comum Jardim central privativo Estacionamento com tomadas para veículos elétricos Boxes privativas para as moradias Arrecadações individuais Espaço de lavagem para bicicletas e equipamentos Sistema de segurança central Solução tecnológica NOS Smart Home para uma gestão eficiente, inteligente e sustentável da habitação Hall de entrada com cacifos inteligentes para receção de encomendas Construída entre 1891 e 1893 por iniciativa de José Joaquim de Almeida Junça, para alojar os trabalhadores da sua Fábrica da Fonte Santa (Cerâmicas Junça), a Vila do Tijolo é um raro e notável exemplar da arquitetura industrial em tijolo à vista em Lisboa apenas comparável à icónica Praça de Touros do Campo Pequeno. O projeto original data de 1887 e reflete uma abordagem arquitetónica única, com uma fachada decorativa rica, galerias em ferro fundido nas traseiras e interiores com pés-direitos altos e abóbadas em tijolo burro exposto. Classificado como Monumento de Interesse Municipal, o imóvel foi alvo de uma intervenção respeitosa e criteriosa, que honra o seu valor histórico e arquitetónico, ao mesmo tempo que introduz novas valências habitacionais, de conforto e sustentabilidade Junto às novas estações da linha vermelha do Metro, a escolas, serviços, comércio local, rede de transportes públicos e excelentes acessibilidades ao centro de Lisboa.
AMI: 10502
Ref. Externa: P-MMM-A1410_2
Id: 1803975
Inicie sessão para guardar este imóvel e aceder à sua lista de favoritos em qualquer dispositivo.
3.750.000 €
4 Quartos
5 WCs
Área bruta : 450 m²
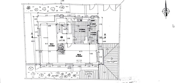
Moradia T4 com piscina aquecida, totalmente e profundamente remodelada, para venda em zona residencial e tranquila de Murches, a poucos minutos da Praia do Guincho e dos principais acessos a Lisboa, Sintra e Costa do Estoril. A moradia apresenta uma área de construção total de 450 m2 dividida por 3 pisos, com garagem e zona de refeições exterior. Com uma tipologia T4, o imóvel desenvolve-se da seguinte forma: No Piso 0, temos um hall, lavabo social, sala de estar/jantar em open space com cozinha totalmente equipada, aberta e grande varanda com acesso direto ao magnifico jardim. Piso 1, temos um hall/circulação e 3 suites com varandas. Na cave temos a zona técnica, lavandaria, wc completo, quarto e sala para diversos usos. No exterior encontramos um lindíssimo jardim tropical e uma piscina com 50 m2 com água aquecida , Zona de refeições exterior preparada para instalar uma cozinha e fechar se assim o entender. Garagem com área de 25,60m2 e estacionamento exterior para várias viaturas. O lote, com uma área de 1.050m2, dispõe de 3 entradas, sendo uma pedonal e duas de viaturas. Equipamento: Piso radiante hidráulico com sistema inverter Daikin (quente/frio); Ar condicionado por condutas Daikin; Sistema de renovação de ar Daikin; Painéis solares; Estores elétricos; Sistema de vídeo vigilância; Cozinha totalmente equipada; Piscina com água aquecida; Furo para rega; A moradia está localizada em Murches, numa zona residencial muito sossegada, próxima de diverso comércio local, supermercados, Ginásios e de diversos restaurantes. Fácil acesso à A5, à praia do Guincho e a poucos minutos de carro ao centro de Cascais. IMÓVEL NOVO A ESTREAR!
AMI: 10502
Ref. Externa: CJG-M1229
Id: 1798743
Inicie sessão para guardar este imóvel e aceder à sua lista de favoritos em qualquer dispositivo.
5 Quartos
4 WCs
Área bruta : 365 m²
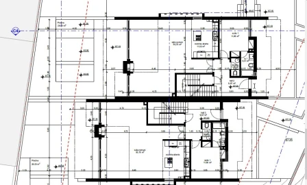
Moradia T5+1 para venda no cobre com jardim e piscina e com enorme potencial de remodelação Distribui-se por três pisos da seguinte forma: Piso Térreo: Hall, sala espaçosa com salamandra e saída direta para o jardim, escritório, cozinha, lavabo social 1º Andar: 1 suite com closet, 3 quartos, 1 casa de banho completa. Todas as divisões têm varanda. Cave: Com entrada independente, é um espaço totalmente aproveitado com luz natural, onde encontra uma garagem, um quarto com casa de banho, cozinha, sala ampla, zona de jogos com mesa de snooker . Ideal para 2 famílias ou para casa de estudantes/residencial. Bons acessos rodoviários, transportes públicos próximos, escolas privadas e internacionais, comércio local e supermercados, muito próximo do Hospital Privado CUF Cascais, está a 4 min de carro ao acesso à autoestrada A5 e A16, e a 8 min do Centro de Cascais.
AMI: 10502
Ref. Externa: CJG-M1356
Id: 1786133
Inicie sessão para guardar este imóvel e aceder à sua lista de favoritos em qualquer dispositivo.
2.750.000 €
4 Quartos
Área bruta : 550 m²
Moradia T4+2, em fase de recuperação total, para venda no empreendimento Belas Clube de Campo. Com amplas áreas, distribuídas por 3 pisos, a moradia está dividida da seguinte forma: Piso 0: Hall 10m2, sala 55m2 com acesso ao jardim, cozinha 18m2 totalmente equipada, despensa, casa de banho social e zona de circulação 8m2. Piso 1: Master suite 16m2 com walk in closet 5m2 e casa de banho 12m2, suite 17m2 com casa de banho 4m2, 2 quartos (18m2 e 17m2) com roupeiros), casa de banho 9m2 com lavatório duplo, banheira e base de duche e escritório 8m2. Piso -1: Sala multiusos 40m2, Sala de cinema, 1 suite, 1 quarto, 1 casa de banho, 2 zonas de arrumos e garagem para 2 carros. O empreendimento Belas Clule de Campo oferece aos seus moradores segurança 24h por dia, um dos melhores campos de golf de Portugal com 18 buracos, padel, ténis, futebol e basquetebol, ginásio, creche, restaurantes, piscinas, parques infantis, minimercado, cabeleireiro, lavandaria, ciclovia, trilhos pedestres, posto dos correios e amplos espaços verdes. Localizada apenas a 10 Kms de Lisboa, a 15 Km de Sintra e a 27 Km de Cascais. Pode ser vendida neste estado (valor a negociar) ou finalizada.
AMI: 10502
Ref. Externa: CJG-M1162
Id: 1774341
Inicie sessão para guardar este imóvel e aceder à sua lista de favoritos em qualquer dispositivo.
4 Quartos
3 WCs
Área bruta : 270 m²
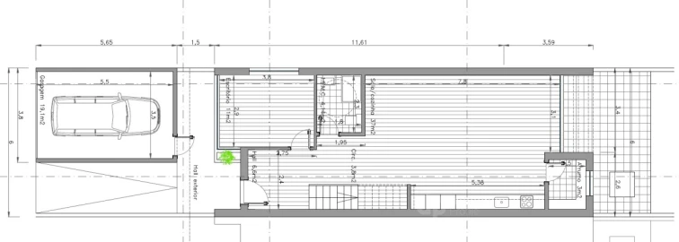
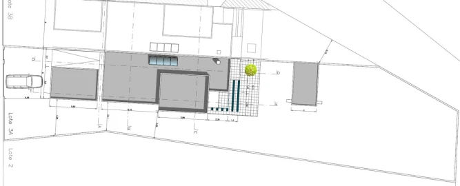
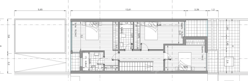
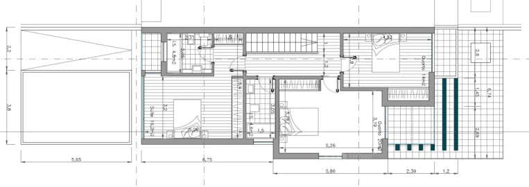
Moradia T4 MOBILADA, inserida em lote de 1.680m2, para venda em Á dos Cunhado, Torres Vedras, local sossegado com vistas deslumbrantes para o campo e mar. Usufruindo de uma excelente localização rodeada pela calma do campo, mas próximo da cidade. A moradia foi recuperada a partir de uma pré-existente, tendo sido mantida a traça original. Todo o espaço antigo foi ampliado e foram introduzidas várias janelas de pequenas e grandes dimensões que não só permitem a entrada de luz natural como também permitem vistas desafogadas a partir do interior, quer no piso térreo quer no piso superior. Desta forma, a moradia torna-se única pela sua originalidade, onde os pequenos pormenores não foram deixados ao acaso e onde se alia o conforto com a serenidade. Interior cuidado, em bom estado de conservação. Piso 0 Entrada, sala com dois ambientes, cozinha, 2 wc e dois quartos. Piso 1 Segunda zona de estar, um quarto en-suite com closet espaço para mais um quarto e acesso a terraço. Moradia com garagem, jardim, espaço de horta e canil. Excelente localização, próxima das praias do Oeste (Santa Rita, Santa Cruz e Praia Azul) , a 60 min de Lisboa, 30 min de Peniche e Ericeira.
AMI: 10502
Ref. Externa: JBC-M203
Id: 1768041
Inicie sessão para guardar este imóvel e aceder à sua lista de favoritos em qualquer dispositivo.
800.000 €
2 Quartos
2 WCs
Área bruta : 115 m²
Apartamento T2, virado a sul, com 77,10 m2 (área útil) e varanda 38m2 e 1 lugar de estacionamento, composto por: hall, sala, cozinha aberta para a sala, 1 suite, 1 quarto, 1 wc completo. Todas as divisões têm acesso à varanda Localizado no Empreendimento Copaliving em Alvalade, Lisboa, com estacionamento em garagem, lobby, amplo urban garden comum, espaço para ginásio, parqueamento de bicicletas elétricas com facilidade de carregamento e ainda uma sala de meditação. A arquitetura contemporânea, em conjunto com as áreas amplas, tornam a sensação de viver no centro de Lisboa uma experiência nova. Com acabamentos de alta qualidade: janelas com vidros duplos térmicos quebra e isolamento acústico, rede de fibra óptica, cozinhas equipadas e sistema de CCTV, que perpetuam a experiência dos materiais do interior dos apartamentos. A dois passos da Cidade Universitária e do centro do famoso Bairro de Alvalade, o empreendimento é servido por uma excelente rede de transportes - Metro, Carris, Aeroporto a 5 minutos de distância e bicicletas públicas, permitindo uma excelente mobilidade urbana sustentável. PRONTO P/ESCRITURAR EM JULHO DE 2026
AMI: 10502
Ref. Externa: CJG-A1406
Id: 1764113
Inicie sessão para guardar este imóvel e aceder à sua lista de favoritos em qualquer dispositivo.
4.060.000 €
5 Quartos
6 WCs
Área bruta : 507 m²
Moradia T5 contemporânea com piscina e jardim para venda em Birre, Cascais. Implantada num terreno privativo de 648 m², oferece 507,19 m² de área bruta de construção distribuída por três pisos, num projeto que combina arquitetura moderna, design funcional, acabamentos de excelência e máxima privacidade. - Piso Térreo (159,64 m²) Sala de estar e jantar com 67 m², amplas janelas e acesso direto ao jardim e piscina; Cozinha de 31 m², totalmente equipada com eletrodomésticos ( Placa Indução com sistema de exaustão - BORA, Sistema side by side com frigorifico e congelador integráveis - BOSCH, máquina de lavar a loiça, forno e micro-ondas integráveis - BOSCH, Misturadora de banca com bica extensível topo de gama); Escritório/atelier com luz natural. Zona exterior coberta ideal para refeições ao ar livre e entretenimento. - Primeiro Andar (174,30 m²) Master Suíte com closet, casa de banho e duas varandas privativas. 3 suítes júnior, todas com casa de banho privativa, galerias e vista para o jardim. Áreas de circulação amplas e luminosas. Nível Inferior (173,66 m²) Garagem fechada para até 3 viaturas (71 m²) 1 Suíte de hóspedes com casa de banho privativa. Lavandaria, áreas técnicas e arrumos generosos. Equipada com ar condicionado, domótica, painéis solares com bomba de calor, caixilharia em alumínio com vidros duplos e corte térmico. Luxo exterior e conforto total O exterior foi desenhado para proporcionar privacidade e bem-estar. Dispõe de um jardim paisagístico, piscina privativa de 28 m² e amplas áreas de lazer e descanso. Cada elemento foi pensado para integrar o espaço interior e exterior de forma harmoniosa. Situada numa das zonas residenciais mais exclusivas, esta moradia oferece um estilo de vida incomparável: Próxima das Praias do Guincho e da Rainha, a poucos minutos da Marina de Cascais e dos campos de golfe Oitavos Dunes e Quinta da Marinha, próxima de restaurantes com estrelas Michelin, lojas premium e espaços culturais, escolas internacionais de referência como St. Julian's, King's College e IPS, a 15 minutos de Sintra e 20 minutos de Lisboa pela A5 Localização privilegiada - Viver o melhor de Cascais
AMI: 10502
Ref. Externa: P-MMM-A1378
Id: 1751855
Inicie sessão para guardar este imóvel e aceder à sua lista de favoritos em qualquer dispositivo.
4.150.000 €
5 Quartos
6 WCs
Área bruta : 660 m²
Moradia T5 contemporânea com piscina e jardim para venda em Birre, Cascais. Implantada num terreno de 647 m², com uma área bruta de construção próxima dos 660 m². Distribuida da seguinte forma: - Piso térreo - 163 m² Hall de entrada luminoso dá acesso a um escritório privativo, lavabo e uma ampla sala de estar e jantar de 77 m², com janelas panorâmicas e ligação direta ao jardim; A cozinha, com 22 m², apresenta um design contemporâneo e está totalmente equipada com eletrodomésticos de topo. No exterior, um lounge coberto e uma piscina de 33 m² criam o cenário ideal para relaxar ou receber convidados. Primeiro andar - 167 m² Master Suíte com closet, casa de banho privativa e varanda exclusiva com vista sobre o jardim; 3 suítes adicionais, todas com casas de banho privativas e acesso direto à varanda, garantindo privacidade e conforto para toda a família. Piso inferior - 187 m² Garagem espaçosa para vários veículos (106 m²), suíte de hóspedes, lavandaria e um pátio interno, que assegura ventilação e luz natural a todo o piso. Equipada com ar condicionado, domótica, painéis solares com bomba de calor, caixilharia em alumínio com vidros duplos e corte térmico. Detalhes que fazem a diferença Linhas arquitetónicas elegantes e materiais premium Interiores amplos, luminosos e com acabamentos de alto padrão Jardim paisagístico e piscina com zona de estar coberta Layout funcional, pensado para o estilo de vida familiar moderno Situada numa das zonas residenciais mais exclusivas, esta moradia oferece um estilo de vida incomparável: Próxima das Praias do Guincho e da Rainha, a poucos minutos da Marina de Cascais e dos campos de golfe Oitavos Dunes e Quinta da Marinha, próxima de restaurantes com estrelas Michelin, lojas premium e espaços culturais, escolas internacionais de referência como St. Julian's, King's College e IPS, a 15 minutos de Sintra e 20 minutos de Lisboa pela A5 Localização privilegiada - Viver o melhor de Cascais
AMI: 10502
Ref. Externa: P-MMM-A1378_1
Id: 1749319
Inicie sessão para guardar este imóvel e aceder à sua lista de favoritos em qualquer dispositivo.
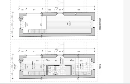
1.800.000 €
4 Quartos
5 WCs
Área bruta : 569 m²
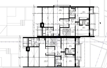
Moradia T4 nova para venda em Murches, inserida num condomínio fechado composto por 4 moradias, cada uma com um Rooftop, piscina privada e jardim. A moradia distribui-se por 4 pisos, com a seguinte composição: Piso 0: Hall de entrada, sala com lareira e acesso ao jardim e piscina, cozinha totalmente equipada em open space, 1 suite e lavabo social; Piso 1: 3 suites e varanda; Rooftop: com pérgola com vista mar e Serra de Sintra; Cave: Garagem fechada para 3 carros, lavandaria, wc e área técnica. Situado numa zona residencial, fácil acesso a A5 e A16, serviços, supermercados, cafés, restaurantes, ginásios, etc, perto de escolas internacionais, bem como de um centro hípico, campos de golfe, ténis e padel, e a poucos minutos do centro de Cascais, da praia do Guincho, das dunas da Cresmina e da Malveira da Serra. prevista a sua conclusão em Março de 2026
AMI: 10502
Ref. Externa: CJG-M1293_2
Id: 1719625
Inicie sessão para guardar este imóvel e aceder à sua lista de favoritos em qualquer dispositivo.
1 WCs
Área bruta : 72 m²
Escritório para arrendar na Av. 25 de Abril em Cascais É composto por: - Receção, - uma mini sala de reuniões, - 4 gabinetes, - Casa de banho. Está mobilado. Localização premium, em plena Av. 25 de Abril, com transportes públicos e diverso tipo de comércio e serviços nas proximidades.
AMI: 10502
Ref. Externa: CJG-L1405
Id: 1712441
Inicie sessão para guardar este imóvel e aceder à sua lista de favoritos em qualquer dispositivo.
815.000 €
Área de terreno : 633 m²
EM EXCLUSIVO - Terreno urbano na Quinta das Patinhas, Cascais para venda com 633 m2 onde se pode construir: Área do Lote - 633,00 Área Comum - 190,61 Área Fração - 442,39 Const (acima solo) - 316,50 Cave - 147 Muito bem localizado, perto de escolas internacionais (Aprendizes, St Georges, St James, King's College, CAISL e Tasis), de diversos tipos de comércio e serviços e dos principais acessos ao centro de Cascais, Costa do Estoril, Sintra e Lisboa. Muito perto das praias e campos de golfe. Pode construir 1 ou mais moradias. OPORTUNIDADE DE NEGÒCIO!!
AMI: 10502
Ref. Externa: CJG-T1318
Id: 1710040
Inicie sessão para guardar este imóvel e aceder à sua lista de favoritos em qualquer dispositivo.
420.000 €
Área de terreno : 140200 m²
Terreno Rústico com 14,023 ha + Terreno Urbano para venda no Cercal do Alentejo Informação Prévia Simples (Município de Santiago do Cacém): Informa-se do seguinte face ao regulamento do PDM: a) Admite-se a construção de uma habitação para proprietário-agricultor, com uma área máxima total de construção de 500 m² (143.023 m² x 0,004, no máximo de 500 m2), desde que faça prova de que é agricultor, facto que deve ser comprovado pela Direção Regional de Agricultura e Pescas do Alentejo; b) Admite-se a construção de dependências agrícolas até perfazer uma área máxima de construção de 1.430,23 m² (143.023m² x 0,01); c) Não existindo qualquer pré-existência legal no prédio, a única modalidade de Empreendimento turístico permitido é um hotel rural até perfazer uma área máxima de construção de 6.000,00 m² (143.023 m² x 0,15, no máximo de 6.000 m2); Localizado a cerca de 20 minutos da praia do Malhão, de Vila Nova de Milfontes e de Porto Covo. A 30 Km de Sines. Existem 3 terrenos contíguos, perfazendo um total de 62,45 ha. (N/REFªs: CJG-T1235 e CJG-T1237). Os terrenos podem ser vendidos conjuntamente ou em separado. Encontram-se vedados em conjunto e confinam com a rede de distribuição de água e eletricidade.
AMI: 10502
Ref. Externa: CJG-T1236
Id: 1710033
Inicie sessão para guardar este imóvel e aceder à sua lista de favoritos em qualquer dispositivo.
540.000 €
Área de terreno : 181200 m²
Terreno Rústico com 18,12 ha, para venda no Cercal do Alentejo Informação Prévia Simples (Município de Santiago do Cacém): Informa-se do seguinte face ao regulamento do PDM: a) Admite-se a construção de uma habitação para proprietário-agricultor, com uma área máxima total de construção de 500 m² (143.023 m² x 0,004, no máximo de 500 m2), desde que faça prova de que é agricultor, facto que deve ser comprovado pela Direção Regional de Agricultura e Pescas do Alentejo; b) Admite-se a construção de dependências agrícolas até perfazer uma área máxima de construção de 1.430,23 m² (143.023m² x 0,01); c) Não existindo qualquer pré-existência legal no prédio, a única modalidade de Empreendimento turístico permitido é um hotel rural até perfazer uma área máxima de construção de 6.000,00 m² (143.023 m² x 0,15, no máximo de 6.000 m2); Localizado a cerca de 20 minutos da praia do Malhão, de Vila Nova de Milfontes e de Porto Covo. A 30 Km de Sines. Existem 3 terrenos contíguos, perfazendo um total de 62,45 ha. Existem 3 terrenos contíguos, perfazendo um total de 62,45 ha. (N/REFªs: CJG-T1236 e CJG-T1237). Os terrenos podem ser vendidos conjuntamente ou em separado. Encontram-se vedados em conjunto e confinam com a rede de distribuição de água e eletricidade.
AMI: 10502
Ref. Externa: CJG-T1235
Id: 1710031
Inicie sessão para guardar este imóvel e aceder à sua lista de favoritos em qualquer dispositivo.
5.500.000 €
Área de terreno : 5240 m²
Terreno muito bem localizado, com 5.240m2, para venda em Birre, em zona com comercio e habitação, mesmo à saída da autoestrada, na direção do centro de Cascais. Terreno plano com acesso por duas vias independentes, uma delas é a principal entrada e saída em Cascais e a outra muito resguardada, sem saída, dá acesso a zona de moradias uni familiares. Para este terreno, foi elaborado projeto para a construção de 8 moradias independentes, em lotes com cerca de 650m2 cada. A CMC permite também a construção de edifício(s) de escritórios.
AMI: 10502
Ref. Externa: CJG-T1242
Id: 1710029
Inicie sessão para guardar este imóvel e aceder à sua lista de favoritos em qualquer dispositivo.
580.000 €
Área de terreno : 52500 m²
Terreno para venda em Alcáçovas (Herdade da Lameira), de 52.500m2 com projeto aprovado para 10 Moradias T1+1 com piscina privativa, espaços amplos e design contemporâneo e serviços complementares às mesmas unidades de alojamento As casas estão bastante afastadas entre si, cada uma com a sua piscina, o que as torna muito privadas, mantendo o sossego que a zona merece e ao mesmo tempo pode-se disfrutar de zonas comuns de lazer e de desporto com campo de padel, ginásio, sauna, banho turco, jacuzzi e espaços verdes para lazer e caminhar. Existe igualmente um edifício com zona de estar/receber e eventualmente servir de restaurante/bar, com a possibilidade de inserir um apartamento para caseiros. O futuro empreendimento situa-se em Alcáçovas/Torrão, dentro da Herdade da Lameira ( a 3km da pousada Vale do Gaio). O projeto de especialidades vai ser entregue até junho. Ficando assim o projeto pronto para começar a construir. Muito perto de Alcacer do Sal. Fácil acesso a autoestradas e estradas nacionais e às praias da Comporta.
AMI: 10502
Ref. Externa: CJG-T1321
Id: 1710022
Inicie sessão para guardar este imóvel e aceder à sua lista de favoritos em qualquer dispositivo.
Inicie sessão para ocultar este imóvel das suas pesquisas e manter a sua lista de resultados organizada.
UrbanProfile Properties
Consultor imobiliário em UrbanProfile, Gestão de Património Imob. Unipessoal, Lda - AMI: 10502
Compre créditos para poder destacar os seus imóveis! Desta forma eles são os primeiros a aparecer nas pesquisas e têm uma maior chance de serem vistos pelos utilizadores.
© Copyright 2023 | CASACERTA. All rights reserved
Guardar favoritos
Este imóvel foi guardados nos seus favoritos com sucesso.
Para poder guardar pesquisa deverá ter a sua sessão iniciada.
Caso não tenha uma conta, deverá criar uma.
A sua pesquisa foi guardada com sucesso!
Este site utiliza cookies. Ao navegar no site estará a consentir a sua utilização.
Para mais informações sobre os cookies pode consultar a
política de privacidade.