Agência imobiliária - AMI: 18543
Comprar
Arrendar
299.000 €
1 Quartos
Área bruta : 95 m²
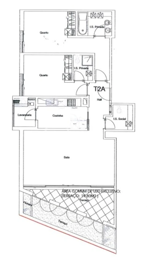
Apartamento T1 em Machico em fase de acabamento. Existe a possibilidade ainda de transformar em um apartamento T1 + 1. É uma fração exclusiva num prédio de referência, situada em localização premium, próxima de tudo o que realmente importa: transportes, comércio, serviços, escolas e zonas de lazer. O edifício distingue-se pelos acabamentos de alto padrão, design moderno e atenção aos detalhes, garantindo conforto, sofisticação e uma experiência de vida superior. Com excelentes facilidades e uma envolvente repleta de conveniência, esta fração oferece o equilíbrio perfeito entre qualidade, estilo e funcionalidade. Uma oportunidade imperdível para quem procura um investimento sólido, com forte potencial de valorização e elevado retorno. Não perca esta oportunidade!
AMI: 18543
Ref. Externa: DR544
Id: 1689739
Inicie sessão para guardar este imóvel e aceder à sua lista de favoritos em qualquer dispositivo.
617.500 €
3 Quartos
3 WCs
Área bruta : 236 m²
Moradia T3 geminada situada em Gaula de Baixo, no concelho de Santa Cruz, com uma vista mar absolutamente espetacular e um ambiente ideal para quem procura tranquilidade, conforto e qualidade de vida. Totalmente renovada e entregue pronta a habitar, esta moradia destaca-se pelos espaços amplos, funcionais e bem distribuídos, aliados a uma excelente luminosidade natural que valoriza cada divisão da casa. No piso inferior encontra-se uma garagem ampla com capacidade para várias viaturas, um WC de apoio e ainda um espaço versátil, que pode ser adaptado a diferentes utilizações, como zona de lazer, ginásio, escritório ou arrecadação. Inserida num empreendimento composto por seis moradias geminadas, esta propriedade foi pensada para quem valoriza conforto, modernidade e bem-estar no dia a dia. As moradias destacam-se pela sua arquitetura contemporânea, linhas elegantes e acabamentos de elevada qualidade, criando um ambiente harmonioso e moderno, ideal tanto para residência própria como para investimento. Uma excelente oportunidade para viver numa zona tranquila, com vista privilegiada sobre o mar, a poucos minutos de serviços e comercio, e a apenas dois minutos da entrada/saída da via rápida.
AMI: 18543
Ref. Externa: DR543_C
Id: 1685394
Inicie sessão para guardar este imóvel e aceder à sua lista de favoritos em qualquer dispositivo.
617.500 €
3 Quartos
3 WCs
Área bruta : 245 m²
Moradia T3 geminada situada em Gaula de Baixo, no concelho de Santa Cruz, com uma vista mar absolutamente espetacular e um ambiente ideal para quem procura tranquilidade, conforto e qualidade de vida. Totalmente renovada e entregue pronta a habitar, esta moradia destaca-se pelos espaços amplos, funcionais e bem distribuídos, aliados a uma excelente luminosidade natural que valoriza cada divisão da casa. No piso inferior encontra-se uma garagem ampla com capacidade para várias viaturas, um WC de apoio e ainda um espaço versátil, que pode ser adaptado a diferentes utilizações, como zona de lazer, ginásio, escritório ou arrecadação. Inserida num empreendimento composto por seis moradias geminadas, esta propriedade foi pensada para quem valoriza conforto, modernidade e bem-estar no dia a dia. As moradias destacam-se pela sua arquitetura contemporânea, linhas elegantes e acabamentos de elevada qualidade, criando um ambiente harmonioso e moderno, ideal tanto para residência própria como para investimento. Uma excelente oportunidade para viver numa zona tranquila, com vista privilegiada sobre o mar, a poucos minutos de serviços e comercio, e a apenas dois minutos da entrada/saída da via rápida.
AMI: 18543
Ref. Externa: DR543_D
Id: 1685393
Inicie sessão para guardar este imóvel e aceder à sua lista de favoritos em qualquer dispositivo.
635.000 €
3 Quartos
3 WCs
Área bruta : 233 m²
Moradia T3 geminada situada em Gaula de Baixo, no concelho de Santa Cruz, com uma vista mar absolutamente espetacular e um ambiente ideal para quem procura tranquilidade, conforto e qualidade de vida. Totalmente renovada e entregue pronta a habitar, esta moradia destaca-se pelos espaços amplos, funcionais e bem distribuídos, aliados a uma excelente luminosidade natural que valoriza cada divisão da casa. No piso inferior encontra-se uma garagem ampla com capacidade para várias viaturas, um WC de apoio e ainda um espaço versátil, que pode ser adaptado a diferentes utilizações, como zona de lazer, ginásio, escritório ou arrecadação. Inserida num empreendimento composto por seis moradias geminadas, esta propriedade foi pensada para quem valoriza conforto, modernidade e bem-estar no dia a dia. As moradias destacam-se pela sua arquitetura contemporânea, linhas elegantes e acabamentos de elevada qualidade, criando um ambiente harmonioso e moderno, ideal tanto para residência própria como para investimento. Uma excelente oportunidade para viver numa zona tranquila, com vista privilegiada sobre o mar, a poucos minutos de serviços e comercio, e a apenas dois minutos da entrada/saída da via rápida.
AMI: 18543
Ref. Externa: DR543_A
Id: 1685395
Inicie sessão para guardar este imóvel e aceder à sua lista de favoritos em qualquer dispositivo.
567.500 €
3 Quartos
3 WCs
Área bruta : 233 m²
Moradia T3 geminada situada em Gaula de Baixo, no concelho de Santa Cruz, com uma vista mar absolutamente espetacular e um ambiente ideal para quem procura tranquilidade, conforto e qualidade de vida. Totalmente renovada e entregue pronta a habitar, esta moradia destaca-se pelos espaços amplos, funcionais e bem distribuídos, aliados a uma excelente luminosidade natural que valoriza cada divisão da casa. No piso inferior encontra-se uma garagem ampla com capacidade para várias viaturas, um WC de apoio e ainda um espaço versátil, que pode ser adaptado a diferentes utilizações, como zona de lazer, ginásio, escritório ou arrecadação. Inserida num empreendimento composto por seis moradias geminadas, esta propriedade foi pensada para quem valoriza conforto, modernidade e bem-estar no dia a dia. As moradias destacam-se pela sua arquitetura contemporânea, linhas elegantes e acabamentos de elevada qualidade, criando um ambiente harmonioso e moderno, ideal tanto para residência própria como para investimento. Uma excelente oportunidade para viver numa zona tranquila, com vista privilegiada sobre o mar, a poucos minutos de serviços e comercio, e a apenas dois minutos da entrada/saída da via rápida.
AMI: 18543
Ref. Externa: DR543_B
Id: 1685396
Inicie sessão para guardar este imóvel e aceder à sua lista de favoritos em qualquer dispositivo.
567.500 €
3 Quartos
3 WCs
Área bruta : 233 m²
Moradia T3 geminada situada em Gaula de Baixo, no concelho de Santa Cruz, com uma vista mar absolutamente espetacular e um ambiente ideal para quem procura tranquilidade, conforto e qualidade de vida. Totalmente renovada e entregue pronta a habitar, esta moradia destaca-se pelos espaços amplos, funcionais e bem distribuídos, aliados a uma excelente luminosidade natural que valoriza cada divisão da casa. No piso inferior encontra-se uma garagem ampla com capacidade para várias viaturas, um WC de apoio e ainda um espaço versátil, que pode ser adaptado a diferentes utilizações, como zona de lazer, ginásio, escritório ou arrecadação. Inserida num empreendimento composto por seis moradias geminadas, esta propriedade foi pensada para quem valoriza conforto, modernidade e bem-estar no dia a dia. As moradias destacam-se pela sua arquitetura contemporânea, linhas elegantes e acabamentos de elevada qualidade, criando um ambiente harmonioso e moderno, ideal tanto para residência própria como para investimento. Uma excelente oportunidade para viver numa zona tranquila, com vista privilegiada sobre o mar, a poucos minutos de serviços e comercio, e a apenas dois minutos da entrada/saída da via rápida.
AMI: 18543
Ref. Externa: DR543_E
Id: 1685392
Inicie sessão para guardar este imóvel e aceder à sua lista de favoritos em qualquer dispositivo.
675.000 €
3 Quartos
3 WCs
Área bruta : 242 m²
Moradia T3 geminada situada em Gaula de Baixo, no concelho de Santa Cruz, com uma vista mar absolutamente espetacular e um ambiente ideal para quem procura tranquilidade, conforto e qualidade de vida. Totalmente renovada e entregue pronta a habitar, esta moradia destaca-se pelos espaços amplos, funcionais e bem distribuídos, aliados a uma excelente luminosidade natural que valoriza cada divisão da casa. No piso inferior encontra-se uma garagem ampla com capacidade para várias viaturas, um WC de apoio e ainda um espaço versátil, que pode ser adaptado a diferentes utilizações, como zona de lazer, ginásio, escritório ou arrecadação. Inserida num empreendimento composto por seis moradias geminadas, esta propriedade foi pensada para quem valoriza conforto, modernidade e bem-estar no dia a dia. As moradias destacam-se pela sua arquitetura contemporânea, linhas elegantes e acabamentos de elevada qualidade, criando um ambiente harmonioso e moderno, ideal tanto para residência própria como para investimento. Uma excelente oportunidade para viver numa zona tranquila, com vista privilegiada sobre o mar, a poucos minutos de serviços e comercio, e a apenas dois minutos da entrada/saída da via rápida.
AMI: 18543
Ref. Externa: DR543_F
Id: 1685391
Inicie sessão para guardar este imóvel e aceder à sua lista de favoritos em qualquer dispositivo.
195.000 €
Área de terreno : 852 m²
Terreno com 850m² localizado no Funchal, na zona de Santo António. O terreno conta já com projeto aprovado para a construção de uma moradia unifamiliar T3, com cerca de 175m² de área coberta, oferecendo uma excelente oportunidade para quem procura construir a sua casa numa zona tranquila da cidade. Inserido numa área residencial calma e com boa envolvência, este terreno beneficia de uma localização estratégica, estando a apenas 5 minutos do Madeira Shopping, permitindo fácil acesso a comércio, serviços, supermercados e outras comodidades do dia a dia. Uma ótima oportunidade para construir a sua moradia numa zona sossegada, mas próxima de tudo o que precisa. Não perca esta oportunidade
AMI: 18543
Ref. Externa: DR542
Id: 1682115
Inicie sessão para guardar este imóvel e aceder à sua lista de favoritos em qualquer dispositivo.
300.000 €
1 WCs
Área bruta : 74 m²
Escritório com 74 m², localizado no 3.º andar de um edifício com elevador, em pleno centro do Funchal. Com excelente potencial de remodelação, este imóvel pode ser facilmente convertido num apartamento T1, tornando-se uma ótima oportunidade para investimento ou habitação própria. A localização é um dos seus grandes destaques: situado no coração da cidade, permite desfrutar de todos os serviços essenciais a poucos passos, como restaurantes, comércio, instituições públicas, transportes e acessos rápidos às principais zonas do Funchal. Perfeito para quem procura viver no centro com tranquilidade ou para quem deseja investir numa zona com elevada procura. Principais características de valorização: Área total de 74 m² Possibilidade de conversão em Apartamento T1 3.º andar com elevador Localização central privilegiada Próximo de comércio, serviços e transportes Excelente potencial de valorização após remodelação. Não perca esta oportunidade Marque já a sua visita!
AMI: 18543
Ref. Externa: DR541
Id: 1680361
Inicie sessão para guardar este imóvel e aceder à sua lista de favoritos em qualquer dispositivo.
294.000 €
1 WCs
Área útil : 72 m²
Fração exclusiva num prédio de referência, situada em localização premium, próxima de tudo o que realmente importa: transportes, comércio, serviços, escolas e zonas de lazer. O edifício distingue-se pelos acabamentos de alto padrão, design moderno e atenção aos detalhes, garantindo conforto, sofisticação e uma experiência de vida superior. Com excelentes facilidades e uma envolvente repleta de conveniência, esta fração oferece o equilíbrio perfeito entre qualidade, estilo e funcionalidade. Uma oportunidade imperdível para quem procura um investimento sólido, com forte potencial de valorização e elevado retorno. Não perca esta oportunidade!
AMI: 18543
Ref. Externa: DR510_C
Id: 1680360
Inicie sessão para guardar este imóvel e aceder à sua lista de favoritos em qualquer dispositivo.
460.000 €
1 Quartos
1 WCs
Área bruta : 80 m²
Descubra este sofisticado apartamento T1 inserido no exclusivo empreendimento Ornelas Legacy, localizado na prestigiada zona da Calheta, na ilha da Madeira. Totalmente mobilado e equipado, este apartamento foi projetado para oferecer conforto, funcionalidade e elegância, com áreas generosas e layout moderno. A zona social conta com cozinha em open space totalmente equipada, integrada com a sala de estar, criando um ambiente amplo e luminoso que se estende para uma agradável varanda, ideal para desfrutar do clima ameno da Madeira muitas unidades com vista mar. O quarto dispõe de roupeiros embutidos, garantindo excelente capacidade de arrumação, enquanto o apartamento já inclui ar condicionado instalado, proporcionando conforto durante todo o ano. Inserido num empreendimento pensado para qualidade de vida e investimento, os residentes beneficiam de zonas comuns premium, incluindo: - Piscina aquecida - Sauna - Ginásio totalmente equipado - Jardins envolventes O projeto encontra-se preparado para exploração em Alojamento Local, apresentando ainda uma oferta de 7% sobre o rendimento (sujeita a condições contratuais), tornando-o uma excelente opção tanto para investimento como para casa de férias. Localizado a poucos minutos da praia da Calheta, da marina, restaurantes e diversos serviços, este apartamento beneficia de uma das zonas mais procuradas da Madeira, conhecida pela forte procura turística e elevada qualidade de vida. Com conclusão prevista para o início de 2028, esta é uma oportunidade única de adquirir um imóvel moderno, com forte potencial de valorização e retorno. Venha conhecer este novo projeto e marque já a sua visita.
AMI: 18543
Ref. Externa: DR540_AH
Id: 1678172
Inicie sessão para guardar este imóvel e aceder à sua lista de favoritos em qualquer dispositivo.
450.000 €
1 Quartos
1 WCs
Área bruta : 109 m²
Descubra este sofisticado apartamento T1 com logradouro, inserido no exclusivo empreendimento Ornelas Legacy, localizado na prestigiada zona da Calheta, na ilha da Madeira. Totalmente mobilado e equipado, este apartamento foi projetado para oferecer conforto, funcionalidade e elegância, com áreas generosas e layout moderno. A zona social conta com cozinha em open space totalmente equipada, integrada com a sala de estar, criando um ambiente amplo e luminoso que se estende para uma agradável varanda, ideal para desfrutar do clima ameno da Madeira muitas unidades com vista mar. O quarto dispõe de roupeiros embutidos, garantindo excelente capacidade de arrumação, enquanto o apartamento já inclui ar condicionado instalado, proporcionando conforto durante todo o ano. Inserido num empreendimento pensado para qualidade de vida e investimento, os residentes beneficiam de zonas comuns premium, incluindo: - Piscina aquecida - Sauna - Ginásio totalmente equipado - Jardins envolventes O projeto encontra-se preparado para exploração em Alojamento Local, apresentando ainda uma oferta de 7% sobre o rendimento (sujeita a condições contratuais), tornando-o uma excelente opção tanto para investimento como para casa de férias. Localizado a poucos minutos da praia da Calheta, da marina, restaurantes e diversos serviços, este apartamento beneficia de uma das zonas mais procuradas da Madeira, conhecida pela forte procura turística e elevada qualidade de vida. Com conclusão prevista para o início de 2028, esta é uma oportunidade única de adquirir um imóvel moderno, com forte potencial de valorização e retorno. Venha conhecer este novo projeto e marque já a sua visita!
AMI: 18543
Ref. Externa: DR540_AE
Id: 1678173
Inicie sessão para guardar este imóvel e aceder à sua lista de favoritos em qualquer dispositivo.
825.000 €
2 Quartos
3 WCs
Área bruta : 154 m²
Apartamento T2+1 num exclusivo empreendimento de luxo situado na Calheta, na ilha da Madeira, pensado para quem procura conforto, sofisticação e uma oportunidade sólida de investimento. Este elegante projeto integra apartamentos T0, T1, T2, T2+1, T3 e T3+1, todos totalmente mobilados e equipados, concebidos com layouts funcionais, áreas generosas e amplas varandas, muitas delas com deslumbrante vista para o mar. Cada apartamento foi cuidadosamente projetado para proporcionar máxima comodidade e qualidade de vida, contando com cozinha em open space, roupeiros embutidos e ar condicionado instalado, criando o ambiente ideal tanto para uso próprio como para exploração em Alojamento Local. O empreendimento oferece ainda um conjunto de comodidades premium, incluindo: - Piscina aquecida - Sauna - Ginásio totalmente equipado - Jardins cuidadosamente integrados Estas infraestruturas aumentam significativamente o potencial de arrendamento turístico durante todo o ano, tornando o Ornelas Legacy uma opção altamente atrativa para investidores. Preparado para exploração em Alojamento Local, o projeto apresenta ainda uma oferta de 7% sobre o rendimento (sujeita a condições contratuais), proporcionando previsibilidade e retorno competitivo. Localizado a poucos minutos da praia da Calheta, da marina, de restaurantes e de diversos serviços e comercio, o Ornelas Legacy beneficia de uma localização privilegiada numa das zonas mais procuradas da Madeira, combinando forte procura de arrendamento com elevado potencial de valorização. Com conclusão prevista para o início de 2028, este empreendimento representa uma oportunidade de investimento segura, com manutenção reduzida e elevado potencial de rentabilidade. Marcamos a sua visita?
AMI: 18543
Ref. Externa: DR540_T
Id: 1678170
Inicie sessão para guardar este imóvel e aceder à sua lista de favoritos em qualquer dispositivo.
795.000 €
2 Quartos
3 WCs
Área bruta : 154 m²
Apartamento T2+1 num exclusivo empreendimento de luxo situado na Calheta, na ilha da Madeira, pensado para quem procura conforto, sofisticação e uma oportunidade sólida de investimento. Este elegante projeto integra apartamentos T0, T1, T2, T2+1, T3 e T3+1, todos totalmente mobilados e equipados, concebidos com layouts funcionais, áreas generosas e amplas varandas, muitas delas com deslumbrante vista para o mar. Cada apartamento foi cuidadosamente projetado para proporcionar máxima comodidade e qualidade de vida, contando com cozinha em open space, roupeiros embutidos e ar condicionado instalado, criando o ambiente ideal tanto para uso próprio como para exploração em Alojamento Local. O empreendimento oferece ainda um conjunto de comodidades premium, incluindo: - Piscina aquecida - Sauna - Ginásio totalmente equipado - Jardins cuidadosamente integrados Estas infraestruturas aumentam significativamente o potencial de arrendamento turístico durante todo o ano, tornando o Ornelas Legacy uma opção altamente atrativa para investidores. Preparado para exploração em Alojamento Local, o projeto apresenta ainda uma oferta de 7% sobre o rendimento (sujeita a condições contratuais), proporcionando previsibilidade e retorno competitivo. Localizado a poucos minutos da praia da Calheta, da marina, de restaurantes e de diversos serviços e comercio, o Ornelas Legacy beneficia de uma localização privilegiada numa das zonas mais procuradas da Madeira, combinando forte procura de arrendamento com elevado potencial de valorização. Com conclusão prevista para o início de 2028, este empreendimento representa uma oportunidade de investimento segura, com manutenção reduzida e elevado potencial de rentabilidade. Marcamos a sua visita?
AMI: 18543
Ref. Externa: DR540_N
Id: 1678171
Inicie sessão para guardar este imóvel e aceder à sua lista de favoritos em qualquer dispositivo.
470.000 €
3 Quartos
2 WCs
Área bruta : 141 m²
Apartamento T3 localizado no Caniço de Baixo, numa das zonas mais valorizadas da Madeira, a dois minutos a pé da emblemática Praia dos Reis Magos e da agradável Promenade do Caniço, ideal para caminhadas à beira-mar e momentos de lazer. Este imóvel destaca-se pelas áreas generosas e excelente distribuição dos espaços. Dispõe de 3 quartos, todos com boa luminosidade natural, proporcionando conforto e privacidade. Conta ainda com 2 casas de banho, funcionais e bem conservadas. A zona social é espaçosa e acolhedora, perfeita para convívios em família ou com amigos. O apartamento encontra-se em bom estado de conservação, pronto a habitar. Uma oportunidade ideal tanto para residência permanente como para investimento, numa localização tranquila, com bons acessos, serviços e proximidade ao mar. Não perca esta oportunidade!
AMI: 18543
Ref. Externa: DR536
Id: 1651873
Inicie sessão para guardar este imóvel e aceder à sua lista de favoritos em qualquer dispositivo.
850.000 €
3 Quartos
3 WCs
Área bruta : 237 m²
Apresentamos esta elegante moradia T3 geminada, localizada numa das zonas residenciais mais procuradas do Funchal o Pilar, em Santo António onde a tranquilidade, a exposição solar e a vista mar desafogada se conjugam na perfeição. Projetada com uma arquitetura contemporânea e funcional, esta moradia destaca-se pelas áreas amplas, elevada qualidade de construção e atenção ao detalhe em todos os acabamentos. A habitação oferece um ambiente moderno e confortável, ideal para quem valoriza espaço, privacidade e qualidade de vida. No piso habitacional, encontra-se uma espaçosa suite com impressionantes 46 m², proporcionando um verdadeiro refúgio de conforto e exclusividade. A zona social integra uma cozinha moderna com ilha, pensada para o dia a dia e para momentos de convívio, com ligação harmoniosa às restantes áreas da casa. A moradia dispõe ainda de lavandaria independente, zona de arrumos e uma garagem fechada com capacidade para três viaturas, garantindo total comodidade e funcionalidade. Destacam-se também: - Vista mar definitiva e desafogada - Acabamentos de elevada qualidade - Materiais de construção de excelência - Excelente exposição solar - Possibilidade de personalização dos acabamentos e detalhes interiores ao gosto do comprador O início da construção está previsto para março de 2026, com conclusão estimada em maio de 2027, representando uma excelente oportunidade para adquirir uma moradia nova e adaptar o projeto às suas preferências pessoais. Uma oportunidade única de viver com conforto, modernidade e uma vista privilegiada sobre o Atlântico.
AMI: 18543
Ref. Externa: DR535
Id: 1651872
Inicie sessão para guardar este imóvel e aceder à sua lista de favoritos em qualquer dispositivo.
2 Quartos
Área bruta : 124 m²
Descubra este fantástico apartamento T2 situado na prestigiada zona dos Barreiros, no Funchal, inserido num condomínio fechado que combina conforto, segurança e uma localização privilegiada. Com uma excelente distribuição de áreas, este imóvel oferece: 2 Quartos amplos, sendo um deles em suíte, garantindo maior privacidade e comodidade, 2 Casas de banho completas. A Sala é luminosa e acolhedora, ideal para momentos em família. A Cozinha é funcional com ótimo aproveitamento de espaço. Condomínio fechado com ambiente tranquilo e cuidado. A localização é um dos seus maiores destaques: encontra-se a poucos minutos de supermercados, restaurantes, cafés, farmácias, escolas, serviços essenciais e transportes públicos tudo o que precisa no seu dia a dia sem necessidade de grandes deslocações. Ideal como habitação própria permanente e para quem valoriza centralidade com tranquilidade. Uma excelente oportunidade de viver numa das zonas mais procuradas do Funchal. Agende já a sua visita!
AMI: 18543
Ref. Externa: DR534
Id: 1647665
Inicie sessão para guardar este imóvel e aceder à sua lista de favoritos em qualquer dispositivo.
425.000 €
3 Quartos
3 WCs
Área bruta : 195 m²
Apresentamos esta encantadora moradia T3 geminada localizada na zona residencial das Figueirinhas, no Caniço, reconhecida pela tranquilidade e proximidade a todos os serviços. A moradia conta com 3 quartos com boas áreas e armários embutidos, 4 casas de banho, Sala ampla e luminosa, Cozinha funcional e equipada, Garagem para 2 carros. A moradia está em excelente estado de conservação, pronta a habitar. Conta ainda com um espaço exterior ideal para momentos em família, contando com churrasqueira e amplo quintal. Com áreas generosas e excelente exposição solar, esta moradia é perfeita para quem procura conforto, localização e qualidade de vida. Perto de escolas, supermercados, transportes e a poucos minutos do centro do Caniço. Não perca esta oportunidade
AMI: 18543
Ref. Externa: DR450
Id: 1645538
Inicie sessão para guardar este imóvel e aceder à sua lista de favoritos em qualquer dispositivo.
4 Quartos
3 WCs
Área bruta : 336 m²
Excelente oportunidade de investimento situada na prestigiada zona da Boa Nova, em Santa Maria Maior, a poucos minutos do centro do Funchal. Esta moradia encontra-se atualmente dividida em duas frações T2 independentes, complementadas por um anexo T1, oferecendo versatilidade e elevado potencial de rentabilidade. Cada unidade dispõe do seu lugar de estacionamento, garantindo conforto e funcionalidade para residentes ou hóspedes. Inserida numa zona tranquila e de fácil acesso, a propriedade beneficia de uma agradável área exterior, ideal para momentos de lazer e convívio, valorizando ainda mais o imóvel tanto para habitação como para exploração turística. Pela sua configuração atual, representa uma excelente opção para investimento no mercado de arrendamento de longa duração ou alojamento local, permitindo múltiplas fontes de rendimento. Adicionalmente, existe a possibilidade de reconversão numa moradia unifamiliar, transformando o imóvel numa residência ampla e exclusiva, localizada numa das zonas mais procuradas do Funchal. Destaques do imóvel: - 2 apartamentos T2 independentes - 1 anexo T1 - Estacionamento - Área exterior agradável - Zona tranquila próxima do centro do Funchal - Elevado potencial de rentabilidade - Possibilidade de conversão em moradia unifamiliar Uma oportunidade rara que combina localização, versatilidade e valorização futura. Marcamos a sua visita?
AMI: 18543
Ref. Externa: DR533
Id: 1635340
Inicie sessão para guardar este imóvel e aceder à sua lista de favoritos em qualquer dispositivo.
480.000 €
3 Quartos
3 WCs
Área bruta : 0 m²
Magnífica moradia T3, situada numa excelente zona de Câmara de Lobos, a apenas 2 minutos da vila. Uma localização privilegiada que combina tranquilidade, bons acessos e proximidade a todo o tipo de serviços, comércio e restauração. Totalmente remodelada e entregue como nova, esta moradia destaca-se pelas suas áreas amplas e excelente luminosidade. Com 224 m² de área útil, oferece todo o conforto e espaço ideal para uma família. O imóvel é composto por: - 3 quartos espaçosos - 3 casas de banho - Cozinha moderna totalmente equipada - Sala ampla com ótima exposição solar - Estacionamento para 2 viaturas Uma oportunidade única para quem procura qualidade, conforto e uma localização de excelência numa das zonas mais procuradas da Madeira. Agende já a sua visita e venha conhecer a sua futura casa!
AMI: 18543
Ref. Externa: DR531
Id: 1635341
Inicie sessão para guardar este imóvel e aceder à sua lista de favoritos em qualquer dispositivo.
Inicie sessão para ocultar este imóvel das suas pesquisas e manter a sua lista de resultados organizada.
Verónica Chaves
Agência imobiliária - AMI: 18543
Compre créditos para poder destacar os seus imóveis! Desta forma eles são os primeiros a aparecer nas pesquisas e têm uma maior chance de serem vistos pelos utilizadores.
© Copyright 2023 | CASACERTA. All rights reserved
Guardar favoritos
Este imóvel foi guardados nos seus favoritos com sucesso.
Para poder guardar pesquisa deverá ter a sua sessão iniciada.
Caso não tenha uma conta, deverá criar uma.
A sua pesquisa foi guardada com sucesso!
Este site utiliza cookies. Ao navegar no site estará a consentir a sua utilização.
Para mais informações sobre os cookies pode consultar a
política de privacidade.