Consultor imobiliário em Viver Nas Ondas - Mediação Imobiliária, Lda - AMI: 7530
Comprar
Arrendar
2.500.000 €
50 Quartos
Área bruta : 5291 m²
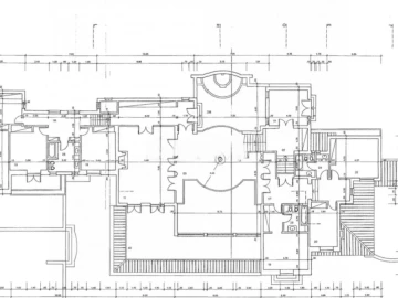
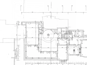
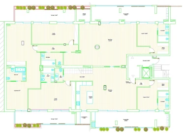
Lote de Terreno com Projeto Aprovado para Hotel de Saúde 4 Estrelas - Mexilhoeira Grande, Algarve. A Viver nas Ondas tem o prazer de apresentar uma oportunidade de investimento exclusiva no coração do Algarve, em Mexilhoeira Grande. Trata-se de um lote de terreno com projeto aprovado para a construção de um Hotel de Saúde de 4 estrelas, concebido para oferecer uma experiência de luxo e bem-estar num dos destinos mais emblemáticos de Portugal. Descrição do Projeto: Este empreendimento único prevê a construção de um hotel moderno com 50 quartos, cuidadosamente desenhados para proporcionar o máximo conforto e sofisticação. O projeto destaca-se por oferecer um ambiente acolhedor, tanto para os hóspedes que procuram uma escapada relaxante como para aqueles que necessitam de tratamentos especializados de saúde e bem-estar. Comodidades e Infraestruturas de Excelência: Piso Dedicado à Saúde e Bem-Estar: O hotel incluirá um andar exclusivo para serviços de saúde, equipado com as mais modernas tecnologias e tratamentos, promovendo uma experiência de revitalização e cuidado. Piscina Interior e Exterior: Duas piscinas, uma interior e outra exterior, foram desenhadas para garantir momentos de relaxamento e lazer em todas as estações do ano, num ambiente sereno e luxuoso. Jardins Paisagísticos: Rodeado por jardins amplos e cuidadosamente desenhados, o hotel oferece um refúgio de tranquilidade e contato com a natureza, ideal para descontrair e relaxar. Circuito de Manutenção: Um circuito ao ar livre será disponibilizado para caminhadas e exercícios físicos, promovendo o bem-estar e a saúde dos hóspedes num cenário natural deslumbrante. Bar e Restaurante: A área de restauração contará com um bar e restaurante de alto nível, oferecendo uma experiência gastronómica diversificada e requintada, com vista para os jardins e espaços envolventes. Ginásio Moderno: Equipado com os mais avançados aparelhos de fitness, o ginásio permitirá aos clientes manterem-se ativos e saudáveis, complementando a oferta de serviços de bem-estar. Localização de Prestígio. Este projeto está situado numa zona tranquila e privilegiada da Mexilhoeira Grande, uma localização que conjuga o encanto da natureza com a proximidade de algumas das melhores praias do Algarve e dos mais prestigiados campos de golfe da região. A localização estratégica faz deste empreendimento um destino ideal para o turismo de saúde e bem-estar, numa região reconhecida pela sua qualidade de vida e beleza natural. Proximidade a Principais Atrações: A poucos minutos das icónicas praias do Algarve. Próximo de campos de golfe de renome internacional. Fácil acesso a cidades como Lagos e Portimão, que oferecem uma vasta gama de serviços, cultura e entretenimento. Este lote de terreno com projeto aprovado para a construção de um Hotel de Saúde 4 estrelas representa uma oportunidade imperdível para investidores que pretendem desenvolver um empreendimento de luxo numa região em constante crescimento e valorização. Com todas as infraestruturas e serviços necessários já projetados, este é o momento ideal para concretizar um projeto inovador e rentável. Não perca esta oportunidade! Entre em contacto connosco para mais informações e descubra como este projeto pode ser o seu próximo grande sucesso no mercado imobiliário. Viver nas Ondas - Transformamos o Futuro do Turismo e Bem-Estar! A VIVER NAS ONDAS é uma imobiliária com 19 anos de experiência que também atua como INTERMEDIÁRIA de CRÉDITO, devidamente autorizada pelo Banco de Portugal (Reg. 3151). A nossa equipa é composta por profissionais apaixonados e dedicados, prontos para tornar os seus sonhos em realidade. Assumimos a responsabilidade de cuidar de todo o processo de financiamento, caso necessite, proporcionando-lhe tranquilidade e segurança. Estamos empenhados em encontrar as melhores soluções de crédito habitação disponíveis no mercado, e trabalhamos incansavelmente para alcançar esse objetivo. Cuidamos de todos os detalhes do processo, desde a análise das suas necessidades financeiras até a apresentação das opções de financiamento mais adequadas ao seu perfil. A nossa missão é oferecer um serviço de excelência, colocando os seus interesses em primeiro lugar. Trabalhamos com empenho e dedicação para tornar o processo de obtenção de crédito habitação mais simples e eficaz para si.
AMI: 7530
Ref. Externa: IF-914
Id: 852877
Inicie sessão para guardar este imóvel e aceder à sua lista de favoritos em qualquer dispositivo.
10 Quartos
2 WCs
Área bruta : 512 m²
Descubra a excelência e a história nesta propriedade requintada, localizada apenas a 25 minutos, a norte, do centro da cidade do Porto. Esta quinta, construída originalmente por uma família nobre, conta com uma peça única da identidade portuguesa. As vistas de qualquer ângulo desta quinta são uma ode à elegância e contacto com a natureza, oferecendo espaços amplos em seus andares e anexos, cada um contando uma história fascinante. Todas as características originais conferem à propriedade uma aparência atemporal. Os detalhes em toda a casa testemunham o legado deixado, e ainda assim, cada cômodo se enquadra no século XXI. Com 10 quartos, uma ampla sala de estar, uma sala de jantar e uma cozinha tradicional, esta Quinta Portuguesa encanta todos os que a visitam. Os terrenos circundantes florescem entre as magníficas paisagens naturais do rio Ave. Com pomares, vinhas e um jardim de rosas imaculado, este domínio é verdadeiramente único na sua espécie. Esta propriedade conta cerca de 9000 M2 e oferece diversas possibilidades. É possível realizar divisões de terreno para um loteamento (8000 m2) e renovar a casa principal com 540 m2 de área bruta construtiva, inserida num lote com 1200 m2. Não perca esta oportunidade rara de possuir um autêntico pedaço da história e da beleza portuguesa. Marque já uma visita para descobrir esta incomparável joia imobiliária. A VIVER NAS ONDAS é uma imobiliária com 19 anos de experiência que também atua como INTERMEDIÁRIA de CRÉDITO, devidamente autorizada pelo Banco de Portugal (Reg. 3151). A nossa equipa é composta por profissionais apaixonados e dedicados, prontos para tornar os seus sonhos em realidade. Assumimos a responsabilidade de cuidar de todo o processo de financiamento, caso necessite, proporcionando-lhe tranquilidade e segurança. Estamos empenhados em encontrar as melhores soluções de crédito habitação disponíveis no mercado, e trabalhamos incansavelmente para alcançar esse objetivo. Cuidamos de todos os detalhes do processo, desde a análise das suas necessidades financeiras até a apresentação das opções de financiamento mais adequadas ao seu perfil. A nossa missão é oferecer um serviço de excelência, colocando os seus interesses em primeiro lugar. Trabalhamos com empenho e dedicação para tornar o processo de obtenção de crédito habitação mais simples e eficaz para si.
AMI: 7530
Ref. Externa: IP-847
Id: 722943
Inicie sessão para guardar este imóvel e aceder à sua lista de favoritos em qualquer dispositivo.
7 Quartos
6 WCs
Área bruta : 547 m²
OFERTA DA ESCRITURA de compra e venda* Descubra esta deslumbrante penthouse de luxo, projetada para quem procura exclusividade, conforto e uma localização privilegiada. Com 195,48 m² de área exterior, oferece um ambiente único para desfrutar do melhor que Faro tem para oferecer. Atualmente em construção, com entrega prevista para o outono de 2025, esta residência combina arquitetura moderna, acabamentos premium e tecnologia de última geração, garantindo um estilo de vida sofisticado e pleno de comodidades. Características do imóvel: - 4 quartos em suíte, duas com closet, proporcionando máximo conforto e privacidade. - Sala de estar e jantar em open space, com uma área total de 104 m². - Cozinha moderna com ilha central, equipada com eletrodomésticos Bosch topo de gama. Acabamentos de excelência, incluindo: - Ar condicionado em todas as divisões; - Vidros duplos para isolamento térmico e acústico; - Aspiração central; - Estores elétricos; - Sistema de som embutido; - Porta de entrada reforçada para máxima segurança. - Sistema solar térmico com kit termosifão para aquecimento de águas, complementado por um termoacumulador. - Box de estacionamento privativa e arrecadação. Comodidades Exclusivas do Empreendimento: - Cobertura com piscina infinita e zona de lazer exclusiva para residentes. - 2 elevadores modernos, garantindo conforto e acessibilidade. - Garagem privativa com boxes fechadas e acesso por portão automático. - Espaço comercial no rés do chão, proporcionando conveniência extra. A poucos passos do centro de Faro e com acesso rápido a todas as comodidades essenciais, este empreendimento permite-lhe desfrutar do melhor que a cidade tem para oferecer. Desde o Fórum Algarve, hipermercados e escolas até ao Teatro das Figuras, o passeio ribeirinho e a marina, tudo está ao seu alcance. Além disso, o Aeroporto Internacional de Faro encontra-se a menos de 10 minutos, facilitando deslocações nacionais e internacionais. Com a praia de Faro e a autoestrada (A22) igualmente a poucos minutos de distância, este é o local ideal para quem procura uma vida equilibrada entre trabalho, lazer e natureza. Um Investimento Seguro e Valorizado no Algarve Esta imóvel é perfeito para residência permanente, casa de férias ou investimento imobiliário, aliando qualidade de vida, localização excecional e design contemporâneo. Agende já a sua visita e venha conhecer este apartamento exclusivo em Faro! * Oferta em cartão Dá (Grupo SONAE). A VIVER NAS ONDAS é uma imobiliária com 19 anos de experiência que também atua como INTERMEDIÁRIA de CRÉDITO, devidamente autorizada pelo Banco de Portugal (Reg. 3151). A nossa equipa é composta por profissionais apaixonados e dedicados, prontos para tornar os seus sonhos em realidade. Assumimos a responsabilidade de cuidar de todo o processo de financiamento, caso necessite, proporcionando-lhe tranquilidade e segurança. Estamos empenhados em encontrar as melhores soluções de crédito habitação disponíveis no mercado, e trabalhamos incansavelmente para alcançar esse objetivo. Cuidamos de todos os detalhes do processo, desde a análise das suas necessidades financeiras até a apresentação das opções de financiamento mais adequadas ao seu perfil. A nossa missão é oferecer um serviço de excelência, colocando os seus interesses em primeiro lugar. Trabalhamos com empenho e dedicação para tornar o processo de obtenção de crédito habitação mais simples e eficaz para si
AMI: 7530
Ref. Externa: IG-1069AL
Id: 1233069
Inicie sessão para guardar este imóvel e aceder à sua lista de favoritos em qualquer dispositivo.
890.000 €
7 Quartos
6 WCs
Área bruta : 548 m²
Descubra esta magnífica moradia de dois pisos, situada numa zona tranquila e privilegiada, a apenas 20 minutos do Porto. Em excelente estado de conservação, esta propriedade combina elegância, conforto e privacidade, sendo ideal para famílias ou para quem procura um refúgio sofisticado e espaçoso. Localização: Meixomil - Paços de Ferreira Área do Terreno: 720 m² Área de Construção: 548 m² Ano de Construção: 2019 Rés do Chão - Sala de estar e jantar ampla, com excelente luminosidade natural - Cozinha totalmente equipada com eletrodomésticos Bosch, incluindo placa de indução, exaustor, frigorífico, máquina de lavar louça, forno e micro-ondas - Lavandaria espaçosa com área para tratamento de roupa - Suíte com roupeiro embutido e casa de banho privativa - Quarto adicional, que pode ser utilizado como sala de estar com vista para a piscina - Quarto interior, ideal para escritório ou espaço de arrumação - Casa de banho social - Despensa - Garagem fechada com capacidade para quatro viaturas - Espaço multifuncional de 62 m² com casa de banho e acesso direto ao exterior, ideal para salão de festas, ginásio, sala de cinema, espaço infantil ou uma segunda garagem Primeiro Andar - Suíte principal com closet e casa de banho privativa - Segunda suíte com roupeiro embutido e casa de banho privativa - Dois quartos adicionais, ambos com roupeiros embutidos - Quarto extra que pode ser utilizado como sala de estar com vista para a piscina - Casa de banho comum - Hall com armário para arrumação - Varandas em todos os quartos Exterior - Pavimentos em granito natural, relvado sintético, ciprestes e árvores de fruto - Área da piscina com casa das máquinas - Instalação elétrica para zona de churrasqueira em frente à cozinha Equipamentos e Acabamentos - Roupeiros embutidos em quatro quartos - Ar condicionado LG em todas as divisões - Tetos falsos em gesso - Cortinados e estores elétricos - Caixilharia com rutura térmica e vidros duplos - Portões exteriores e portão da garagem automáticos - Pré-instalação para painéis solares - Pré-instalação para sistema de alarme e videovigilância - Abastecimento de água de poço para rega A propriedade encontra-se totalmente murada, garantindo máxima privacidade. Uma casa única, onde conforto, elegância e funcionalidade se encontram. Para mais informações ou para agendar uma visita, entre em contacto. A VIVER NAS ONDAS é uma imobiliária com 19 anos de experiência que também atua como INTERMEDIÁRIA de CRÉDITO, devidamente autorizada pelo Banco de Portugal (Reg. 3151). A nossa equipa é composta por profissionais apaixonados e dedicados, prontos para tornar os seus sonhos em realidade. Assumimos a responsabilidade de cuidar de todo o processo de financiamento, proporcionando-lhe tranquilidade e segurança. Estamos empenhados em encontrar as melhores soluções de crédito habitação disponíveis no mercado, e trabalhamos incansavelmente para alcançar esse objetivo. Cuidamos de todos os detalhes do processo, desde a análise das suas necessidades financeiras até a apresentação das opções de financiamento mais adequadas ao seu perfil. A nossa missão é oferecer um serviço de excelência, colocando os seus interesses em primeiro lugar. Trabalhamos com empenho e dedicação para tornar o processo de obtenção de crédito habitação mais simples e eficaz para si.
AMI: 7530
Ref. Externa: IP-1078
Id: 1199437
Inicie sessão para guardar este imóvel e aceder à sua lista de favoritos em qualquer dispositivo.
1.500.000 €
7 Quartos
5 WCs
Área bruta : 780 m²
Quinta na Maia, com sala de eventos e casa secular, num estado irrepreensível, com 4600 m2 no total. COMPRE CASA E VÁ DE FÉRIAS! | *OFERTA de uma VIAGEM para 2 pessoas num magnífico CRUZEIRO de 7 noites pelo Mediterrâneo, em regime de pensão completa. Esta oferta exclusiva está disponível apenas para imóveis selecionados. Viaje a partir de OUTUBRO de 2026. O cenário perfeito para o seu grande dia. Nesta magnífica quinta momentos especiais são transformados em memórias inesquecíveis. Cercada pela natureza, com paisagens encantadoras e uma infraestrutura completa, é o espaço ideal para casamentos, aniversários, batizados, eventos corporativos e celebrações exclusivas. Conta com: - Espaços amplos e versáteis - salões climatizados e áreas ao ar livre - Capela e jardim para cerimônias - Estacionamento privativo - Cozinha equipada para catering - Jardim - Piscina Cada detalhe é pensado com carinho para oferecer conforto, elegância e autenticidade. Seja um evento intimista ou uma grande celebração. Agende uma visita e deixe-se encantar. A VIVER NAS ONDAS é uma imobiliária com 19 anos de experiência que também atua como INTERMEDIÁRIA de CRÉDITO, devidamente autorizada pelo Banco de Portugal (Reg. 3151). A nossa equipa é composta por profissionais apaixonados e dedicados, prontos para tornar os seus sonhos em realidade. Assumimos a responsabilidade de cuidar de todo o processo de financiamento, caso necessite, proporcionando-lhe tranquilidade e segurança. Estamos empenhados em encontrar as melhores soluções de crédito habitação disponíveis no mercado, e trabalhamos incansavelmente para alcançar esse objetivo. Cuidamos de todos os detalhes do processo, desde a análise das suas necessidades financeiras até a apresentação das opções de financiamento mais adequadas ao seu perfil. A nossa missão é oferecer um serviço de excelência, colocando os seus interesses em primeiro lugar. Trabalhamos com empenho e dedicação para tornar o processo de obtenção de crédito habitação mais simples e eficaz para si
AMI: 7530
Ref. Externa: IP-1124
Id: 1489265
Inicie sessão para guardar este imóvel e aceder à sua lista de favoritos em qualquer dispositivo.
7 Quartos
Área bruta : 430 m²
Páteo de tipologia alfacinha, em bom estado de conservação, com obras de manutenção já realizadas em todas as fracções. O imóvel é composto por: 1 moradia independente, com logradouro privativo 6 apartamentos, integrados num páteo tradicional Todas as fracções encontram-se actualmente arrendadas, com contratos em vigor, garantindo rendimento imediato. Imóvel com elevado potencial para investimento, ideal para mercado de arrendamento tradicional ou Alojamento Local (AL), permitindo uma rentabilização segura e sustentável do capital. Localizado a apenas 400 metros das praias da Costa de Caparica, numa zona de forte procura turística e residencial. Situado no centro da vila da Costa de Caparica, beneficia de uma envolvente rica em comércio local, serviços, restauração e transportes, proporcionando grande comodidade e valorização contínua. Excelente oportunidade de investimento numa das zonas mais procuradas da Margem Sul. A VIVER NAS ONDAS é uma imobiliária com 19 anos de experiência que também atua como INTERMEDIÁRIA de CRÉDITO, devidamente autorizada pelo Banco de Portugal (Reg. 3151). A nossa equipa é composta por profissionais apaixonados e dedicados, prontos para tornar os seus sonhos em realidade. Assumimos a responsabilidade de cuidar de todo o processo de financiamento, caso necessite, proporcionando-lhe tranquilidade e segurança. Estamos empenhados em encontrar as melhores soluções de crédito habitação disponíveis no mercado, e trabalhamos incansavelmente para alcançar esse objetivo. Cuidamos de todos os detalhes do processo, desde a análise das suas necessidades financeiras até a apresentação das opções de financiamento mais adequadas ao seu perfil. A nossa missão é oferecer um serviço de excelência, colocando os seus interesses em primeiro lugar. Trabalhamos com empenho e dedicação para tornar o processo de obtenção de crédito habitação mais simples e eficaz para si.
AMI: 7530
Ref. Externa: PM-780
Id: 738107
Inicie sessão para guardar este imóvel e aceder à sua lista de favoritos em qualquer dispositivo.
2.500.000 €
6 Quartos
6 WCs
Área bruta : 1359 m²
Inserida numa zona tranquila e prestigiada, junto ao Belas Clube de Campo, esta imponente moradia distribui-se por cave, rés-do-chão e 1º andar, oferecendo um equilíbrio perfeito entre conforto, lazer e privacidade. Com amplos espaços interiores e exteriores, esta é a propriedade ideal para quem procura um estilo de vida exclusivo. Distribuição do Imóvel: Cave: - Garagem espaçosa - Ginásio totalmente equipado - Sauna, jacuzzi e balneários - Salão de festas - Lavabo - Rés-do-chão - Hall de entrada acolhedor - Sala de estar luminosa - Sala de refeições com ligação à cozinha - Cozinha ampla com despensa - Lavandaria - Quarto de empregada com casa de banho privativa - Sala de jogos com zona de bar - Alpendre e terraço perfeitos para convívios ao ar livre - Arrumos e lavabo social 1º Andar: - Hall de distribuição - 2 quartos - Suite - Mezanine - Sala com terraço - 2 quartos adicionais com varanda - Master suite com casa de banho privativa e terraço Área Exterior: - Piscina com balneários de apoio e bar - Campo de ténis e campo de squash - Jardim cuidado e áreas ajardinadas para relaxar - Espaços de lazer ideais para momentos em família ou com amigos Localização e Acessos A poucos minutos de Lisboa, Sintra, Oeiras e Cascais, com fácil acesso às principais vias (IC19, CREL e A16), esta moradia está também próxima de zonas comerciais, escolas de referência e do campo de golfe de Belas. A VIVER NAS ONDAS é uma imobiliária com 19 anos de experiência que também atua como INTERMEDIÁRIA de CRÉDITO, devidamente autorizada pelo Banco de Portugal (Reg. 3151). A nossa equipa é composta por profissionais apaixonados e dedicados, prontos para tornar os seus sonhos em realidade. Assumimos a responsabilidade de cuidar de todo o processo de financiamento, caso necessite, proporcionando-lhe tranquilidade e segurança. Estamos empenhados em encontrar as melhores soluções de crédito habitação disponíveis no mercado, e trabalhamos incansavelmente para alcançar esse objetivo. Cuidamos de todos os detalhes do processo, desde a análise das suas necessidades financeiras até a apresentação das opções de financiamento mais adequadas ao seu perfil. A nossa missão é oferecer um serviço de excelência, colocando os seus interesses em primeiro lugar. Trabalhamos com empenho e dedicação para tornar o processo de obtenção de crédito habitação mais simples e eficaz para si.
AMI: 7530
Ref. Externa: VO-69541
Id: 955476
Inicie sessão para guardar este imóvel e aceder à sua lista de favoritos em qualquer dispositivo.
1.950.000 €
6 Quartos
5 WCs
Área bruta : 243 m²
Este impressionante T6 Duplex representa o auge do conforto, espaço e elegância no coração de Lisboa. COMPRE CASA E VÁ DE FÉRIAS! | *OFERTA de uma VIAGEM para 2 pessoas num magnífico CRUZEIRO de 7 noites pelo Mediterrâneo, em regime de pensão completa. Esta oferta exclusiva está disponível apenas para imóveis selecionados. Viaje a partir de OUTUBRO de 2026. Com 242,52m² de área bruta privativa, seis quartos, múltiplas varandas e terraços, além de quatro suítes, esta é uma oportunidade única para famílias numerosas ou para quem procura um lar multifuncional, repleto de luz, privacidade e acabamentos de excelência. O primeiro piso do duplex recebe com um generoso hall de entrada (10,67m²), que conduz a uma sala de estar e jantar (46,58m²) ampla e luminosa, perfeita para momentos em família e para receber convidados, com acesso direto a uma varanda (3,62m²). A cozinha (12,72m²) está equipada com materiais premium, pensada para facilitar o dia a dia com estilo. Um prático espaço de arrumos (5,72m²) garante organização adicional. Neste piso, encontram-se ainda três quartos, sendo um deles uma suíte com closet (9,26m² + 5,78m²) e casa de banho privativa (4,65m²). Os outros dois quartos (10,70m² e 10,59m²) são servidos por duas casas de banho completas, garantindo privacidade e conforto a todos os residentes. Subindo ao piso superior por elegantes escadas internas (3,12m²), encontramos uma zona de circulação com 10,20m², que distribui os espaços de forma fluida. Neste piso, destaca-se uma segunda suíte (11,93m²) com terraço privado (1,56m²) e casa de banho elegante (5,12m²). Há ainda mais dois quartos espaçosos: um com 13,90m² e outro com 18,25m², ambos com acesso a terraços privados - proporcionando luz natural e uma ligação direta com o exterior. Um quarto adicional pode ser utilizado como escritório, zona de leitura ou quarto de hóspedes, conferindo versatilidade total ao espaço. Uma quarta casa de banho completa (4,23m²) apoia estes ambientes, mantendo a funcionalidade mesmo para famílias grandes. - 25m² de estacionamento, com espaço para dois veículos - Arrecadação de 8,83m² - ideal para arrumação adicional - Acabamentos de alto padrão com pavimentos em madeira nobre - Ar condicionado e domótica integrada - Vidros duplos e isolamento acústico/térmico - Varandas e terraços privados em múltiplas divisões Comodidades do Empreendimento: - Arquitetura contemporânea com integração perfeita na envolvente histórica; - Acabamentos de alta qualidade que privilegiam o conforto e a sofisticação; - Varandas espaçosas com vistas panorâmicas para o rio Tejo; - Jardim comum de uso exclusivo dos residentes; - Cozinhas totalmente equipadas; - Estacionamento privativo e parque para bicicletas; - Ginásio moderno; - Elevadores de última geração; - Pré-instalação para carregamento de veículos elétricos. Situado numa área central de Lisboa, este empreendimento combina a proximidade aos principais pontos de interesse da cidade com um ambiente sereno e exclusivo. A poucos minutos de distância encontram-se alguns dos ícones mais emblemáticos da capital portuguesa, como: - Lx Factory - Espaço criativo repleto de restaurantes, lojas e cultura; - Doca de Santo Amaro - Marina encantadora com uma oferta gastronómica diversificada; - Museu Nacional dos Coches - Uma joia histórica e cultural da cidade; - MAAT - Museu de Arte, Arquitetura e Tecnologia - Um dos mais inovadores centros culturais de Lisboa; - Centro Cultural de Belém - Palco de eventos culturais de renome; - Mosteiro dos Jerónimos e Torre de Belém - Monumentos icónicos do património português; - Parque Florestal de Monsanto - O pulmão verde da cidade para caminhadas e atividades ao ar livre. Se procura um apartamento que combine elegância, conveniência e um estilo de vida urbano sofisticado, este T6 Duplex é a escolha ideal. Entre em contacto e descubra a sua nova casa no coração de Lisboa. A VIVER NAS ONDAS é uma imobiliária com 19 anos de experiência que também atua como INTERMEDIÁRIA de CRÉDITO, devidamente autorizada pelo Banco de Portugal (Reg. 3151). A nossa equipa é composta por profissionais apaixonados e dedicados, prontos para tornar os seus sonhos em realidade. Assumimos a responsabilidade de cuidar de todo o processo de financiamento, proporcionando-lhe tranquilidade e segurança. Estamos empenhados em encontrar as melhores soluções de crédito habitação disponíveis no mercado, e trabalhamos incansavelmente para alcançar esse objetivo. Cuidamos de todos os detalhes do processo, desde a análise das suas necessidades financeiras até a apresentação das opções de financiamento mais adequadas ao seu perfil. A nossa missão é oferecer um serviço de excelência, colocando os seus interesses em primeiro lugar. Trabalhamos com empenho e dedicação para tornar o processo de obtenção de crédito habitação mais simples e eficaz para si.
AMI: 7530
Ref. Externa: IP-1105E3
Id: 1172456
Inicie sessão para guardar este imóvel e aceder à sua lista de favoritos em qualquer dispositivo.
6 Quartos
7 WCs
Área bruta : 802 m²
Apresentamos esta exclusiva moradia T6, localizada numa das zonas mais privilegiadas de Esposende, na emblemática Avenida Marginal, a poucos metros do centro da cidade. Com vistas deslumbrantes sobre o rio e o mar, esta propriedade combina elegância, conforto e funcionalidade em cada detalhe. Área e Composição: - Área bruta: 802 m² | Lote: 943 m² - 5 suítes, sendo 4 com varanda e 1 master suite com closet - Escritório e sótão multifuncional - Sala ampla e luminosa - Cozinha totalmente equipada e anexo independente com quarto, cozinha e WC - Salão de jogos, sauna seca, garrafeira e espaço para convívio exterior - Jardim interior e terraço com vista mar e rio - Garagem para 3 a 4 viaturas e estacionamento exterior para 4 carros Comodidades e Equipamentos Premium: - Piso radiante e aquecimento central em todas as divisões - Lareira com recuperador de calor - Aspiração central e estores elétricos com controlo central no 1º piso - Som ambiente em toda a casa - Sistema de alarme, vídeo porteiro e portas de segurança - Janelas e portas em PVC com vidro duplo (imitação madeira SCHÜCO) - Iluminação de presença em rodapés e iluminação indireta nos tetos em estuque trabalhado - Tectos em estuque, beirais em granito, soalho em madeira e mármore - Cozinha equipada: placa, forno, micro-ondas, exaustor, combinado e máquina de lavar loiça - Churrasqueira, forno a lenha, toldo elétrico e iluminação exterior com luminárias de chão Jardim com sistema de rega automatizado - Closet e roupeiros embutidos Localização Privilegiada: - A poucos metros do centro da cidade - 20 minutos do Aeroporto do Porto - 30 minutos do centro do Porto - Excelente envolvente natural, próxima da praia e do rio Classificação Energética: A - máxima eficiência e conforto Esta é uma moradia projetada para quem valoriza luxo, espaço e privacidade, perfeita como residência principal, segunda habitação de alto padrão ou investimento exclusivo. Cada detalhe foi pensado para oferecer o máximo conforto e bem-estar. Não perca a oportunidade de viver num imóvel único em Esposende. Agende já a sua visita! A VIVER NAS ONDAS é uma imobiliária com 19 anos de experiência que também atua como INTERMEDIÁRIA de CRÉDITO, devidamente autorizada pelo Banco de Portugal (Reg. 3151). A nossa equipa é composta por profissionais apaixonados e dedicados, prontos para tornar os seus sonhos em realidade. Assumimos a responsabilidade de cuidar de todo o processo de financiamento, proporcionando-lhe tranquilidade e segurança. Estamos empenhados em encontrar as melhores soluções de crédito habitação disponíveis no mercado, e trabalhamos incansavelmente para alcançar esse objetivo. Cuidamos de todos os detalhes do processo, desde a análise das suas necessidades financeiras até a apresentação das opções de financiamento mais adequadas ao seu perfil. A nossa missão é oferecer um serviço de excelência, colocando os seus interesses em primeiro lugar. Trabalhamos com empenho e dedicação para tornar o processo de obtenção de crédito habitação mais simples e eficaz para si
AMI: 7530
Ref. Externa: MG-093
Id: 1068331
Inicie sessão para guardar este imóvel e aceder à sua lista de favoritos em qualquer dispositivo.
6 Quartos
2 WCs
Área bruta : 145 m²
Oferta da escritura de compra e venda* No coração do Centro Histórico de Évora, a escassos passos de alguns dos seus mais emblemáticos pontos de interesse, encontra-se esta moradia T6 duplex totalmente remodelada, uma oportunidade sólida para quem procura investir num dos mercados mais estáveis e procurados do Alentejo. A proximidade ao Templo Romano, à Praça do Giraldo e às principais instituições de ensino e serviços garante uma procura permanente, seja por estudantes, profissionais em mobilidade ou turismo de curta e média duração. Atualmente com rendimento ativo, este imóvel encontra-se arrendado, permitindo retorno imediato. A sua configuração versátil possibilita diferentes modelos de exploração, desde arrendamento estudantil a Alojamento Local, ou uma solução mista, maximizando o potencial de rentabilidade. Características principais: - Moradia T6 em regime duplex, com área total de aproximadamente 145 m² - Seis quartos e duas casas de banho - Cozinha equipada - Terraço e varandas, valorizando os espaços exteriores - Totalmente remodelada, sem necessidade de investimento adicional - Sistema de controlo de acessos TESA HOTEL e videovigilância (CCTV) - Imóvel com elevada liquidez e forte atratividade no mercado Uma oportunidade diferenciadora para investidores que valorizam localização, segurança e flexibilidade de exploração, num dos centros históricos mais procurados do país. Marque já a sua visita. * Oferta válida sob a forma de cartão Dá (Grupo SONAE). A VIVER NAS ONDAS é uma imobiliária com 19 anos de experiência que também atua como INTERMEDIÁRIA de CRÉDITO, devidamente autorizada pelo Banco de Portugal (Reg. 3151). A nossa equipa é composta por profissionais apaixonados e dedicados, prontos para tornar os seus sonhos em realidade. Assumimos a responsabilidade de cuidar de todo o processo de financiamento, caso necessite, proporcionando-lhe tranquilidade e segurança. Estamos empenhados em encontrar as melhores soluções de crédito habitação disponíveis no mercado, e trabalhamos incansavelmente para alcançar esse objetivo. Cuidamos de todos os detalhes do processo, desde a análise das suas necessidades financeiras até a apresentação das opções de financiamento mais adequadas ao seu perfil. A nossa missão é oferecer um serviço de excelência, colocando os seus interesses em primeiro lugar. Trabalhamos com empenho e dedicação para tornar o processo de obtenção de crédito habitação mais simples e eficaz para si
AMI: 7530
Ref. Externa: OC-1072
Id: 1068339
Inicie sessão para guardar este imóvel e aceder à sua lista de favoritos em qualquer dispositivo.
1.200.000 €
6 Quartos
7 WCs
Área bruta : 611 m²
Procura uma casa que combine elegância, conforto e qualidade de vida? Esta magnífica moradia isolada, situada na prestigiada Quinta das Inglesinhas, Amora, com 562 m² de área privativa e lote de 1 020 m², é a resposta perfeita. COMPRE CASA E VÁ DE FÉRIAS! | *OFERTA de uma VIAGEM para 2 pessoas num magnífico CRUZEIRO de 7 noites pelo Mediterrâneo, em regime de pensão completa. Esta oferta exclusiva está disponível apenas para imóveis selecionados. Viaje a partir de OUTUBRO de 2026. Com áreas generosas, acabamentos de excelência e um espaço exterior pensado para momentos inesquecíveis, aqui encontra o equilíbrio ideal entre sofisticação e bem-estar. Principais destaques: Arquitetura e acabamentos premium: madeiras nobres, pedras naturais e detalhes de bom gosto em cada divisão. Espaços interiores amplos: quatro suites luminosas, master suite com closet, sala de estar e jantar de 51 m², cozinha totalmente equipada com lareira e copa. Conforto e tecnologia: ar condicionado, elevador e alarme. Área social extraordinária: cave com salão de lazer de 204 m², perfeita para convívio com família e amigos. Exterior de sonho: jardim envolvente, piscina com terraço, churrasqueira e forno a lenha, ideais para momentos de lazer e entretenimento. Garagem excecional: capacidade para 10 viaturas. Localização estratégica A apenas 5 minutos da A2 e da estação de comboios do Fogueteiro, com acesso rápido a Lisboa (20 minutos de barco até ao Cais do Sodré). Próxima de escolas, centros comerciais, praias e zonas verdes, esta moradia oferece qualidade de vida num ambiente tranquilo e familiar. A VIVER NAS ONDAS é uma imobiliária com 19 anos de experiência que também atua como INTERMEDIÁRIA de CRÉDITO, devidamente autorizada pelo Banco de Portugal (Reg. 3151). A nossa equipa é composta por profissionais apaixonados e dedicados, prontos para tornar os seus sonhos em realidade. Assumimos a responsabilidade de cuidar de todo o processo de financiamento, caso necessite, proporcionando-lhe tranquilidade e segurança. Estamos empenhados em encontrar as melhores soluções de crédito habitação disponíveis no mercado, e trabalhamos incansavelmente para alcançar esse objetivo. Cuidamos de todos os detalhes do processo, desde a análise das suas necessidades financeiras até a apresentação das opções de financiamento mais adequadas ao seu perfil. A nossa missão é oferecer um serviço de excelência, colocando os seus interesses em primeiro lugar. Trabalhamos com empenho e dedicação para tornar o processo de obtenção de crédito habitação mais simples e eficaz para si.
AMI: 7530
Ref. Externa: OC-856
Id: 1507464
Inicie sessão para guardar este imóvel e aceder à sua lista de favoritos em qualquer dispositivo.
2.700.000 €
5 Quartos
4 WCs
Área bruta : 403 m²
Distribuída por quatro pisos e com uma área bruta privativa de 403,18 m², esta moradia V5 distingue-se pela sua arquitetura contemporânea, acabamentos de excelência e espaços cuidadosamente pensados para proporcionar bem-estar, privacidade e funcionalidade. A entrada dá-se por um piso inferior com uma ampla garagem de 95,31 m², ideal para três viaturas, complementada por zona técnica, arrumos e lavandaria independentes. A moradia oferece múltiplas áreas exteriores privadas, incluindo jardins, pátios, varandas e dois terraços - um deles com jacuzzi para momentos de relaxamento com vista sobre a cidade e o Tejo. A zona social, no piso térreo, destaca-se pela sala de estar e jantar com 42,57 m², onde a luz natural entra em abundância, ligada a uma zona de estar exterior de 9,20 m² e um jardim com 29,80 m². A cozinha, com 18,55 m², é totalmente equipada e ideal para quem valoriza funcionalidade aliada ao design moderno. Nos pisos superiores, a moradia dispõe de quatro quartos, duas suítes e três casas de banho completas. A master suite, com 24,85 m², inclui uma elegante casa de banho privativa e acesso a varanda. O último piso oferece ainda um espaço lounge de 30,60 m² com acesso direto ao terraço de 14,47 m² e ao terraço/jacuzzi de 18,05 m² - perfeitos para convívio ou descanso, com total privacidade. Áreas principais: - Área total bruta privativa: 403,18 m² - Garagem: 95,31 m² - Cozinha: 18,55 m² - Sala de estar/jantar: 42,57 m² - Suíte principal: 24,85 m² - Lounge: 30,60 m² - Terraço com jacuzzi: 18,05 m² - Total de áreas exteriores: mais de 75 m² (jardins, pátios, varandas e terraços) - 5 quartos | 4 casas de banho | 3 lugares de estacionamento Por estarem inseridas numa zona classificada como histórica, as moradias beneficiam de isenção de IMI, proporcionando vantagens fiscais significativas para quem investe. Localizadas entre a Embaixada da Hungria e o icónico Hotel Pestana Palace, estas moradias situam-se numa zona de excelência, com fácil acesso a transportes públicos, proximidade a escolas internacionais, comércio, serviços e espaços culturais, tudo a poucos minutos do centro da cidade: - Docas de Santo Amaro - zona ribeirinha com marina, bares e restaurantes - Ponte 25 de Abril - vista panorâmica sobre o rio Tejo - LX Factory - centro criativo com lojas, livrarias, galerias e gastronomia - Museu do Oriente - arte e cultura com enfoque asiático - Jardim Avelar Brotero - espaço verde ideal para famílias - Estação Alcântara-Mar - com ligação direta ao Cais do Sodré e zona de Cascais - Hospital CUF Tejo - unidade de saúde moderna e de referência - Escolas e colégios internacionais a curta distância - A poucos minutos de Belém, com o Mosteiro dos Jerónimos, o MAAT e os famosos Pastéis de Belém Agende já a sua visita. A VIVER NAS ONDAS é uma imobiliária com 19 anos de experiência que também atua como INTERMEDIÁRIA de CRÉDITO, devidamente autorizada pelo Banco de Portugal (Reg. 3151). A nossa equipa é composta por profissionais apaixonados e dedicados, prontos para tornar os seus sonhos em realidade. Assumimos a responsabilidade de cuidar de todo o processo de financiamento, caso necessite, proporcionando-lhe tranquilidade e segurança. Estamos empenhados em encontrar as melhores soluções de crédito habitação disponíveis no mercado, e trabalhamos incansavelmente para alcançar esse objetivo. Cuidamos de todos os detalhes do processo, desde a análise das suas necessidades financeiras até a apresentação das opções de financiamento mais adequadas ao seu perfil. A nossa missão é oferecer um serviço de excelência, colocando os seus interesses em primeiro lugar. Trabalhamos com empenho e dedicação para tornar o processo de obtenção de crédito habitação mais simples e eficaz para si.
AMI: 7530
Ref. Externa: IP-1104A
Id: 1172453
Inicie sessão para guardar este imóvel e aceder à sua lista de favoritos em qualquer dispositivo.
1.990.000 €
5 Quartos
4 WCs
Área bruta : 1392 m²
Implantada num generoso terreno de 5.000 m², esta propriedade é ideal para quem valoriza espaço, bem-estar e momentos de lazer em família. Moradia de excelência com piscina em Nevogilde, Lousada. Descubra esta magnífica moradia, onde o conforto, a privacidade e a qualidade de construção se unem numa localização tranquila, a apenas 30 minutos do Porto. Destaques que fazem a diferença: Piscina de grandes dimensões (12m x 7m), perfeita para desfrutar nos dias de verão Ampla zona de lazer com churrasqueira e forno a lenha Anexo independente com salão de jogos Garagem para 6 viaturas Vidros duplos de elevado desempenho térmico e acústico Pré-instalação de aquecimento central Sistema de alarme Com excelente exposição solar, esta moradia beneficia de uma luminosidade natural ímpar ao longo de todo o dia. Localização estratégica: - A apenas 5 minutos do centro de Lousada - A 10 minutos de Penafiel e Paredes - Rápidos acessos à A4 e A42 - Próxima de comércio, serviços e zonas de lazer - Aqui encontra o equilíbrio perfeito entre a tranquilidade do campo e a proximidade à cidade, estando a cerca de 25 minutos do Porto e 30 minutos de Braga. Se procura uma casa espaçosa, versátil e pronta a habitar, esta é a oportunidade certa - seja para residência própria ou investimento. Venha conhecer e deixe-se surpreender. A sua nova vida começa aqui. A VIVER NAS ONDAS é uma imobiliária com 19 anos de experiência que atua também como INTERMEDIÁRIO DE CRÉDITO, devidamente autorizado pelo Banco de Portugal (Reg. 3151). A nossa equipa é formada por profissionais apaixonados e dedicados, prontos para realizar seus sonhos. Assumimos a responsabilidade de cuidar de todo o processo de financiamento, se necessário, proporcionando-lhe tranquilidade e segurança. Estamos empenhados em encontrar as melhores soluções de crédito à habitação disponíveis no mercado e trabalhamos incansavelmente para atingir esse objetivo. Cuidamos de todos os detalhes do processo, desde a análise das suas necessidades financeiras até a apresentação das opções de financiamento que melhor se adequam ao seu perfil. Nossa missão é oferecer um serviço de excelência, colocando seus interesses em primeiro lugar. Trabalhamos com empenho e dedicação para tornar o processo de obtenção de crédito habitação mais simples e eficaz para si.
AMI: 7530
Ref. Externa: MG-351
Id: 738190
Inicie sessão para guardar este imóvel e aceder à sua lista de favoritos em qualquer dispositivo.
2.500.000 €
5 Quartos
4 WCs
Área bruta : 346 m²
Esta moradia V5, com 346,12 m² de área bruta privativa, distribui-se por quatro pisos servidos por elevador privativo, e oferece uma combinação perfeita entre funcionalidade, sofisticação e bem-estar, em pleno centro de Lisboa. No piso de entrada, encontra uma garagem com 54,82 m², zonas técnicas, arrumos e uma prática lavandaria com luz natural. Um pátio interior oferece ventilação e luminosidade, criando uma transição harmoniosa entre os espaços de apoio e as áreas habitacionais. O piso térreo é dedicado à zona social: uma sala de estar e jantar com 38,95 m², com ligação a uma zona exterior de estar (9,20 m²) e dois jardins privados (10,35 m² + 29,50 m²), ideal para convívios ou momentos em família. A cozinha equipada (18,55 m²), moderna e funcional, é acompanhada por hall, casa de banho de serviço e circulação fluida entre espaços. O primeiro piso integra a zona privativa com dois quartos (12,20 m² e 11,40 m²), uma suíte com 19,30 m², casas de banho modernas e zonas de arrumos adicionais. Uma varanda privativa oferece um espaço tranquilo com vista sobre o jardim. No último piso, destaca-se uma segunda suíte (13,85 m²), um lounge amplo com 27,60 m² e acesso direto a dois terraços privados, um deles com jacuzzi (17,43 m²) - ideal para relaxar em total privacidade. Áreas principais: - Área total bruta privativa: 346,12 m² - Garagem: 54,82 m² - Cozinha: 18,55 m² - Sala de estar/jantar: 38,95 m² - Suíte principal: 19,30 m² - Lounge: 27,60 m² - Terraço com jacuzzi: 17,43 m² - Elevador privativo - Total de áreas exteriores: mais de 70 m² (jardins, pátios, varandas e terraços) - 5 quartos | 4 casas de banho | 3 lugares de estacionamento Esta moradia oferece a rara oportunidade de viver num espaço onde a arquitetura e o conforto coexistem com a privacidade e o estilo, ideal para famílias ou para quem procura um refúgio urbano com charme e exclusividade. Por estarem inseridas numa zona classificada como histórica, as moradias beneficiam de isenção de IMI, proporcionando vantagens fiscais significativas para quem investe. Localizadas entre a Embaixada da Hungria e o icónico Hotel Pestana Palace, estas moradias situam-se numa zona de excelência, com fácil acesso a transportes públicos, proximidade a escolas internacionais, comércio, serviços e espaços culturais, tudo a poucos minutos do centro da cidade: - Docas de Santo Amaro - zona ribeirinha com marina, bares e restaurantes - Ponte 25 de Abril - vista panorâmica sobre o rio Tejo - LX Factory - centro criativo com lojas, livrarias, galerias e gastronomia - Museu do Oriente - arte e cultura com enfoque asiático - Jardim Avelar Brotero - espaço verde ideal para famílias - Estação Alcântara-Mar - com ligação direta ao Cais do Sodré e zona de Cascais - Hospital CUF Tejo - unidade de saúde moderna e de referência - Escolas e colégios internacionais a curta distância - A poucos minutos de Belém, com o Mosteiro dos Jerónimos, o MAAT e os famosos Pastéis de Belém Agende já a sua visita. A VIVER NAS ONDAS é uma imobiliária com 19 anos de experiência que também atua como INTERMEDIÁRIA de CRÉDITO, devidamente autorizada pelo Banco de Portugal (Reg. 3151). A nossa equipa é composta por profissionais apaixonados e dedicados, prontos para tornar os seus sonhos em realidade. Assumimos a responsabilidade de cuidar de todo o processo de financiamento, caso necessite, proporcionando-lhe tranquilidade e segurança. Estamos empenhados em encontrar as melhores soluções de crédito habitação disponíveis no mercado, e trabalhamos incansavelmente para alcançar esse objetivo. Cuidamos de todos os detalhes do processo, desde a análise das suas necessidades financeiras até a apresentação das opções de financiamento mais adequadas ao seu perfil. A nossa missão é oferecer um serviço de excelência, colocando os seus interesses em primeiro lugar. Trabalhamos com empenho e dedicação para tornar o processo de obtenção de crédito habitação mais simples e eficaz para si
AMI: 7530
Ref. Externa: IP-1104B
Id: 1172452
Inicie sessão para guardar este imóvel e aceder à sua lista de favoritos em qualquer dispositivo.
5 Quartos
4 WCs
Área bruta : 1000 m²
Quinta com licença de alojamento local, em São Miguel, Lousada. Imóvel composto por 3 suites e 2 quartos. Com infraestrutura para construção de piscina. 6 ha de vinha, sendo 2 ha de vinha nova. Outras plantações: laranjas, figos, Kiwi, marmelos e maçãs. 5 lugares para caravanas, registado no Park4Night. Insere-se em zona muita tranquila de campo e rios. Localiza-se a: - A 3.500 metros do centro de Lousada e do Hospital - A 3.600 metros dos acessos à A42 e A11 - A 25 minutos do Porto e a 20 minutos do Aeroporto A VIVER NAS ONDAS é uma imobiliária com 19 anos de experiência que também atua como INTERMEDIÁRIA de CRÉDITO, devidamente autorizada pelo Banco de Portugal (Reg. 3151). A nossa equipa é composta por profissionais apaixonados e dedicados, prontos para tornar os seus sonhos em realidade. Assumimos a responsabilidade de cuidar de todo o processo de financiamento, caso necessite, proporcionando-lhe tranquilidade e segurança. Estamos empenhados em encontrar as melhores soluções de crédito habitação disponíveis no mercado, e trabalhamos incansavelmente para alcançar esse objetivo. Cuidamos de todos os detalhes do processo, desde a análise das suas necessidades financeiras até a apresentação das opções de financiamento mais adequadas ao seu perfil. A nossa missão é oferecer um serviço de excelência, colocando os seus interesses em primeiro lugar. Trabalhamos com empenho e dedicação para tornar o processo de obtenção de crédito habitação mais simples e eficaz para si.
AMI: 7530
Ref. Externa: MG-930
Id: 769119
Inicie sessão para guardar este imóvel e aceder à sua lista de favoritos em qualquer dispositivo.
1.270.000 €
5 Quartos
5 WCs
Área bruta : 520 m²
Este exclusivo apartamento T5, com quatro suítes, distingue-se pelas suas dimensões excecionais e por uma vivência sofisticada que alia conforto, funcionalidade e uma forte ligação ao exterior. COMPRE CASA E VÁ DE FÉRIAS! | *OFERTA de uma VIAGEM para 2 pessoas num magnífico CRUZEIRO de 7 noites pelo Mediterrâneo, em regime de pensão completa. Esta oferta exclusiva está disponível apenas para imóveis selecionados. Viaje a partir de OUTUBRO de 2026. Com 276 m² de área , o apartamento oferece espaços amplos e bem distribuídos, pensados para responder às exigências de uma vida familiar moderna. 178 m² de varandas e terraços, que prolongam a zona social e privada para o exterior, criando múltiplos ambientes de lazer, convívio e relaxamento, com vistas desafogadas sobre a envolvente verde. A zona social, luminosa e acolhedora, integra sala de estar e jantar, beneficiando de um recuperador elétrico, ideal para criar um ambiente confortável e elegante. A cozinha encontra-se totalmente equipada, com soluções funcionais e acabamentos de elevada qualidade. A climatização é assegurada por ar condicionado com instalação por conduta, garantindo conforto térmico em toda a habitação. O aquecimento de águas sanitárias é realizado através de sistema de bomba de calor, reforçando a eficiência energética do apartamento. A fração dispõe ainda de sistema de videoporteiro. O imóvel inclui uma garagem fechada com 66,2 m², equipada com portão automático, oferecendo ampla capacidade de estacionamento e arrumação. Inserido num edifício contemporâneo, junto ao Parque da Prelada, este apartamento pertence a um condomínio residencial privado com uma localização privilegiada no Porto e vistas desafogadas para o futuro Parque Urbano de Requesende. Num equilíbrio perfeito entre o pulsar da cidade e a tranquilidade da natureza, este projeto foi pensado para quem procura um estilo de vida sofisticado, equilibrado e em sintonia com o exterior. Um verdadeiro refúgio urbano, onde estabilidade, serenidade e qualidade de vida coexistem em harmonia. O condomínio disponibiliza um conjunto de comodidades exclusivas: Exterior - Piscina - Área lounge com solário Interior -Sala de estar - Ginásio - Balneários - Estacionamento e garagens fechadas A exclusividade do edifício reflete-se na atenção ao detalhe, na privacidade dos amplos halls de entrada e na qualidade das zonas comuns. Servido por quatro vãos de escadas e oito elevadores, garante acessos fluidos e confortáveis a todas as frações. Localização Com excelentes acessos à VCI e à Circunvalação, e proximidade a serviços, escolas, comércio e transportes públicos, este apartamento permite viver uma vida urbana ativa sem abdicar da serenidade de um ambiente residencial de excelência. Uma casa pensada para quem olha para o futuro. Ligue já e faça a sua reserva.
AMI: 7530
Ref. Externa: MF-IPR
Id: 1580676
Inicie sessão para guardar este imóvel e aceder à sua lista de favoritos em qualquer dispositivo.
2.500.000 €
5 Quartos
7 WCs
Área bruta : 302 m²
Moradia T5 em Estoi, Algarve com Projeto Aprovado para Hotel Rural - Luxo e Elevado Potencial de Investimento. Apresentamos esta elegante moradia T5 totalmente renovada, situada em Estoi, numa zona tranquila e privilegiada do Algarve. Inserida num lote de 1.750 m², combina conforto, sofisticação e uma oportunidade única de investimento turístico. A apenas 15 minutos do Aeroporto de Faro e das praias, beneficia de excelente acessibilidade, mantendo total privacidade e envolvente serena. A moradia destaca-se pelo design contemporâneo e acabamentos de elevada qualidade, oferecendo áreas amplas e bem distribuídas. Conta com 5 quartos luminosos, 7 casas de banho e uma zona social confortável com ligação direta ao exterior. No exterior, encontra uma agradável piscina privada, jardim cuidado e várias zonas de lazer, ideais para aproveitar o clima algarvio. Dispõe ainda de garagem com capacidade para vários veículos. Principais Características: - Moradia T5 totalmente renovada - 5 quartos | 7 casas de banho - Área útil: 285 m² | Área bruta: 301,5 m² - Terreno com 1.750 m² - Piscina privada e jardim - Garagem espaçosa Projeto Aprovado - Hotel Rural: - 49 quartos - Piscina exterior - Extensas áreas verdes - Circuito de manutenção - Bar e restaurante - Ginásio Uma solução completa que alia habitação de luxo a um projeto turístico pronto a desenvolver, numa localização altamente procurada. Ideal para residência, segunda habitação ou investimento com forte potencial de rentabilidade. Para mais informações ou agendamento de visita, entre em contacto. A VIVER NAS ONDAS é uma imobiliária com 19 anos de experiência que também atua como INTERMEDIÁRIA de CRÉDITO, devidamente autorizada pelo Banco de Portugal (Reg. 3151). A nossa equipa é composta por profissionais apaixonados e dedicados, prontos para tornar os seus sonhos em realidade. Assumimos a responsabilidade de cuidar de todo o processo de financiamento, proporcionando-lhe tranquilidade e segurança. Estamos empenhados em encontrar as melhores soluções de crédito habitação disponíveis no mercado, e trabalhamos incansavelmente para alcançar esse objetivo. Cuidamos de todos os detalhes do processo, desde a análise das suas necessidades financeiras até a apresentação das opções de financiamento mais adequadas ao seu perfil. A nossa missão é oferecer um serviço de excelência, colocando os seus interesses em primeiro lugar. Trabalhamos com empenho e dedicação para tornar o processo de obtenção de crédito habitação mais simples e eficaz para si.
AMI: 7530
Ref. Externa: IF-870
Id: 766004
Inicie sessão para guardar este imóvel e aceder à sua lista de favoritos em qualquer dispositivo.
2.500.000 €
5 Quartos
4 WCs
Área bruta : 346 m²
Com uma arquitetura contemporânea e um layout funcional, esta moradia V5 de 346,12 m² de área bruta privativa distribui-se por quatro pisos ligados por elevador privativo, oferecendo uma experiência residencial onde o conforto, a elegância e a privacidade se encontram em perfeita harmonia. No piso térreo, a moradia dispõe de uma garagem generosa com 54,82 m², zona técnica, arrumos, lavandaria independente e um pequeno pátio interior que assegura ventilação natural. O piso social convida a momentos de convívio e tranquilidade com uma ampla sala de estar e jantar (38,95 m²), em ligação direta a um jardim privativo de 28,90 m² e a uma zona exterior de estar. A cozinha equipada (18,55 m²) alia funcionalidade a um design cuidado. Neste piso, encontramos ainda uma casa de banho de apoio, hall e zonas de circulação amplas e bem iluminadas. A área privada da casa distribui-se por dois andares superiores. No primeiro, encontram-se dois quartos, uma suíte espaçosa com 24,85 m², duas casas de banho e varanda privada com vista para o jardim. O último piso oferece uma segunda suíte com terraço, uma casa de banho privativa e um lounge exclusivo com 27,60 m², ideal para relaxar ou receber visitas. A cereja no topo é o terraço com jacuzzi (17,43 m²), com privacidade e uma vista desafogada sobre a envolvente. Principais características da moradia: - 346,12 m² de área bruta privativa - 5 quartos (incluindo 2 suítes) - 4 casas de banho completas - Elevador privativo a todos os pisos - Garagem fechada para várias viaturas - 54,82 m² - Cozinha equipada com 18,55 m² - Sala de estar/jantar com 38,95 m² - Lounge panorâmico no último piso - 27,60 m² - Dois jardins privativos com áreas generosas - Jacuzzi exterior em terraço exclusivo - Zonas de arrumos e lavandaria dedicadas Ideal para quem procura um estilo de vida urbano com conforto familiar, esta moradia distingue-se pelos acabamentos de alta qualidade, áreas exteriores generosas e a integração de um elevador que liga todos os pisos, garantindo acessibilidade e comodidade no quotidiano. Por estarem inseridas numa zona classificada como histórica, as moradias beneficiam de isenção de IMI, proporcionando vantagens fiscais significativas para quem investe. Localizadas entre a Embaixada da Hungria e o icónico Hotel Pestana Palace, estas moradias situam-se numa zona de excelência, com fácil acesso a transportes públicos, proximidade a escolas internacionais, comércio, serviços e espaços culturais, tudo a poucos minutos do centro da cidade: - Docas de Santo Amaro - zona ribeirinha com marina, bares e restaurantes - Ponte 25 de Abril - vista panorâmica sobre o rio Tejo - LX Factory - centro criativo com lojas, livrarias, galerias e gastronomia - Museu do Oriente - arte e cultura com enfoque asiático - Jardim Avelar Brotero - espaço verde ideal para famílias - Estação Alcântara-Mar - com ligação direta ao Cais do Sodré e zona de Cascais - Hospital CUF Tejo - unidade de saúde moderna e de referência - Escolas e colégios internacionais a curta distância - A poucos minutos de Belém, com o Mosteiro dos Jerónimos, o MAAT e os famosos Pastéis de Belém Agende já a sua visita. A VIVER NAS ONDAS é uma imobiliária com 19 anos de experiência que também atua como INTERMEDIÁRIA de CRÉDITO, devidamente autorizada pelo Banco de Portugal (Reg. 3151). A nossa equipa é composta por profissionais apaixonados e dedicados, prontos para tornar os seus sonhos em realidade. Assumimos a responsabilidade de cuidar de todo o processo de financiamento, caso necessite, proporcionando-lhe tranquilidade e segurança. Estamos empenhados em encontrar as melhores soluções de crédito habitação disponíveis no mercado, e trabalhamos incansavelmente para alcançar esse objetivo. Cuidamos de todos os detalhes do processo, desde a análise das suas necessidades financeiras até a apresentação das opções de financiamento mais adequadas ao seu perfil. A nossa missão é oferecer um serviço de excelência, colocando os seus interesses em primeiro lugar. Trabalhamos com empenho e dedicação para tornar o processo de obtenção de crédito habitação mais simples e eficaz para si.
AMI: 7530
Ref. Externa: IP-1104D
Id: 1172441
Inicie sessão para guardar este imóvel e aceder à sua lista de favoritos em qualquer dispositivo.
5 Quartos
3 WCs
Área bruta : 246 m²
Apresentamos-lhe um incrível apartamento, com 5 quartos, incluindo uma suíte deslumbrante com casa de banho privativa. Este imóvel é um verdadeiro sonho tornado realidade para toda a sua família. Ao entrar nesta magnífica propriedade, será imediatamente envolvido por uma atmosfera de elegância e bom gosto. A espaçosa sala de estar e jantar, com acesso a uma encantadora varanda, é o espaço perfeito para relaxar e desfrutar de momentos especiais com os seus entes queridos. A cozinha, totalmente equipada e mobilada. A luz natural inunda cada canto deste apartamento, graças à sua impressionante exposição solar. Os acabamentos e os belos pavimentos de madeira proporcionam um toque de requinte e sofisticação, criando um ambiente de conforto. Além disso, esta propriedade passou por uma remodelação completa. Está localizado num edifício de 6 andares, com um elevador para facilitar o acesso. Para sua comodidade, inclui ainda uma garagem espaçosa para 2 carros, com espaço adicional para armazenamento, e um portão automático para facilitar o acesso. A localização deste apartamento é absolutamente privilegiada. A poucos passos de distância do centro histórico de Braga. Encontrará nas proximidades supermercados, farmácia, escolas desde o infantário até ao ensino secundário e excelentes opções de transportes públicos, incluindo uma estação de comboios. Além disso, a zona oferece uma variedade de serviços, como cabeleireiros, pastelarias, restaurantes além do privilégio de morar na região mais valorizada da cidade (Centro Histórico). Com acesso direto à autoestrada, estará apenas a 2 minutos do centro da cidade, 5 minutos do prestigiado Hospital de Braga, 7 minutos da conceituada Universidade do Minho e a 3 minutos do fantástico centro comercial Braga Parque. Não perca esta oportunidade única de adquirir um apartamento de sonho, com uma localização excecional e com todas as comodidades ao seu alcance. Marque já a sua visita e deixe-se encantar por esta verdadeira joia imobiliária. A VIVER NAS ONDAS é uma imobiliária com 19 anos de experiência que também atua como INTERMEDIÁRIA de CRÉDITO, devidamente autorizada pelo Banco de Portugal (Reg. 3151). A nossa equipa é composta por profissionais apaixonados e dedicados, prontos para tornar os seus sonhos em realidade. Assumimos a responsabilidade de cuidar de todo o processo de financiamento, caso necessite, proporcionando-lhe tranquilidade e segurança. Estamos empenhados em encontrar as melhores soluções de crédito habitação disponíveis no mercado, e trabalhamos incansavelmente para alcançar esse objetivo. Cuidamos de todos os detalhes do processo, desde a análise das suas necessidades financeiras até a apresentação das opções de financiamento mais adequadas ao seu perfil. A nossa missão é oferecer um serviço de excelência, colocando os seus interesses em primeiro lugar. Trabalhamos com empenho e dedicação para tornar o processo de obtenção de crédito habitação mais simples e eficaz para si.
AMI: 7530
Ref. Externa: HG-853
Id: 1067586
Inicie sessão para guardar este imóvel e aceder à sua lista de favoritos em qualquer dispositivo.
4 Quartos
Área bruta : 298 m²
Oferta da escritura de compra e venda* e gestão completa do processo de financiamento, com as melhores soluções do mercado. Moradia térrea individual T4 + escritório, semi-nova (2022), situada em São Mamede Este - Braga. Destaca-se pelo design moderno, excelentes materiais e elevado nível de conforto. A moradia organiza-se em dois ambientes distintos: ZONA SOCIAL - Hall de entrada com roupeiro - Sala ampla com acesso direto ao terraço - Cozinha mobilada e totalmente equipada (forno, placa, micro-ondas, exaustor e máquina de lavar louça), com ligação ao terraço, lavandaria e garagem - Lavandaria independente - Casa de banho de apoio - Amplo terraço coberto com churrasqueira - Escritório com acesso direto ao exterior ZONA PRIVADA - Hall dos quartos - Suite principal com closet e acesso direto ao jardim - Suite com roupeiro embutido e acesso ao jardim - Dois quartos com roupeiros embutidos e acesso direto ao jardim - Casa de banho de apoio GARAGEM - Garagem fechada para 2 viaturas lado a lado EQUIPAMENTOS E ACABAMENTOS - Aspiração central - Bomba de calor de 500 L - Video vigilância - Alarme - Video porteiro - Iluminação LED e sancas iluminadas - Estores elétricos - Tampos de cozinha em pedra Celestone - Ar- condicionado - Peines Solares 8 Unidades com bateria - Domotica A moradia possui excelente exposição solar durante todo o dia e um jardim espaçoso, ideal para famílias com animais ou para a futura construção de piscina. Construção moderna e minimalista, com materiais de elevada qualidade e soluções que privilegiam o conforto e o bem-estar. LOCALIZAÇÃO - Infantario , escolas públicas, privadas e internacionais a 6 minutos - Acessos à A3/A11 (Porto/Guimarães) a 7 minutos - Braga Parque a 5 minutos - Estação de comboios a 10 minutos - Aeroporto do Porto a 40 minutos - Universidade do Minho a 5 minutos - INL - International Iberian Nanotechnology Laboratory a 5 minutos *Oferta em cartão Dá (Grupo SONAE). A VIVER NAS ONDAS é uma imobiliária com 19 anos de experiência que também atua como INTERMEDIÁRIA de CRÉDITO, devidamente autorizada pelo Banco de Portugal (Reg. 3151). A nossa equipa é composta por profissionais apaixonados e dedicados, prontos para tornar os seus sonhos em realidade. Assumimos a responsabilidade de cuidar de todo o processo de financiamento, caso necessite, proporcionando-lhe tranquilidade e segurança. Estamos empenhados em encontrar as melhores soluções de crédito habitação disponíveis no mercado, e trabalhamos incansavelmente para alcançar esse objetivo. Cuidamos de todos os detalhes do processo, desde a análise das suas necessidades financeiras até a apresentação das opções de financiamento mais adequadas ao seu perfil. A nossa missão é oferecer um serviço de excelência, colocando os seus interesses em primeiro lugar. Trabalhamos com empenho e dedicação para tornar o processo de obtenção de crédito habitação mais simples e eficaz para si.
AMI: 7530
Ref. Externa: NG-602
Id: 741201
Inicie sessão para guardar este imóvel e aceder à sua lista de favoritos em qualquer dispositivo.
Inicie sessão para ocultar este imóvel das suas pesquisas e manter a sua lista de resultados organizada.
Viver Nas Ondas - Portugal
Consultor imobiliário em Viver Nas Ondas - Mediação Imobiliária, Lda - AMI: 7530
Compre créditos para poder destacar os seus imóveis! Desta forma eles são os primeiros a aparecer nas pesquisas e têm uma maior chance de serem vistos pelos utilizadores.
© Copyright 2023 | CASACERTA. All rights reserved
Guardar favoritos
Este imóvel foi guardados nos seus favoritos com sucesso.
Para poder guardar pesquisa deverá ter a sua sessão iniciada.
Caso não tenha uma conta, deverá criar uma.
A sua pesquisa foi guardada com sucesso!
Este site utiliza cookies. Ao navegar no site estará a consentir a sua utilização.
Para mais informações sobre os cookies pode consultar a
política de privacidade.