Lista
Comprar
Arrendar
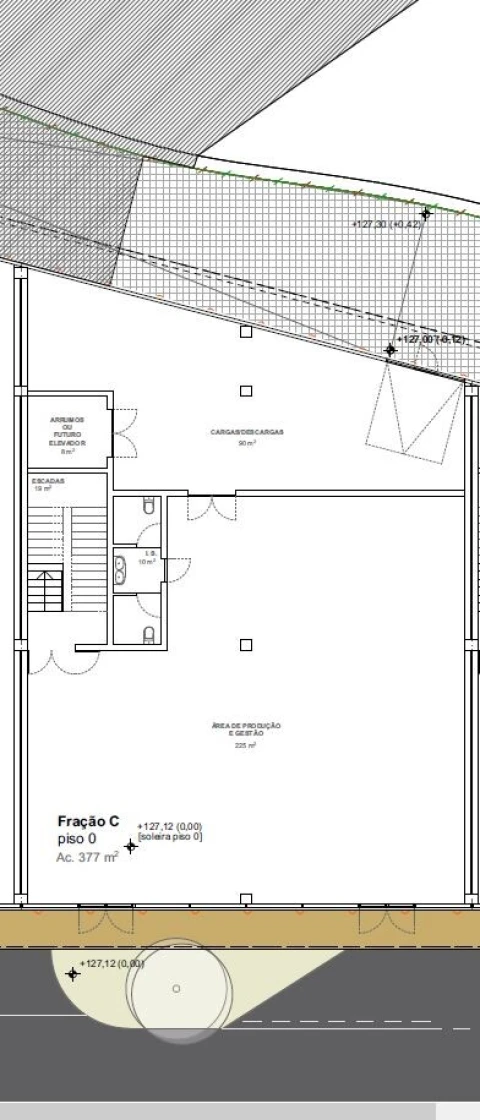
Área útil : 449 m²
Armazém para arrendamento em Creixomil, Guimarães | Frio Negativo e Positivo | 7 Estacionamentos, um deles c/ WallboxCom uma área total de 449,5 m², este espaço está pronto a satisfazer as necessidades operacionais mais exigentes, desde a logística à distribuição ou produção alimentar.Destaques do Espaço:- Infraestrutura de Frio de Ponta: Equipado com câmara de congelação (frio negativo) e câmara frigorífica (frio positivo), ambas com aproximadamente 12 m² e pé direito de 3,50m, ideais para o armazenamento de produtos sensíveis.- Área Ampla: Pé direito de 4 metros na área principal, garantindo facilidade de movimentação e armazenamento vertical.- Comodidades Adicionais: Inclui um escritório funcional com 12,25 m² e WC com 6,00 m².- Acessibilidade e Sustentabilidade: Desfrute de 7 lugares de estacionamento privativo, um dos quais já equipado com wallbox para carregamento de veículos elétricos.Valor de Arrendamento: 1.600 €/mês.Condições: 1 mês de renda + 2 meses de cauçãoReferência: ASG25233Porquê escolher a AS Imobiliária?Com mais de 16 anos no ramo imobiliário e milhares de famílias felizes, dispomos de 9 agências estrategicamente localizadas, para o servir com proximidade, corresponder à suas expectativas e ajudá-lo a adquirir a sua casa de sonho. Compromisso, Competência e Confiança são os nossos valores que entregamos aos nossos Clientes na hora de comprar, arrendar ou vender o seu imóvel.A nossa prioridade é a sua Felicidade!Na AS Imobiliária somos apaixonados por vender casas!Especialistas imobiliários em Vizela ; Guimarães ; Felgueiras ; Lousada ; Santo Tirso ; Barcelos ; São João da Madeira ; Porto ; Braga ; Trofa; Lisboa
AMI: 13249
Ref. Externa: ASG25233
Id: 1519093
Inicie sessão para guardar este imóvel e aceder à sua lista de favoritos em qualquer dispositivo.
3 WCs
Área útil : 500 m²
Excelente oportunidade para arrendamento de espaço versátil com 500 m² de área total, dividido em dois pisos, ideal para atividades empresariais, logísticas ou industriais. Principais características: Área administrativa devidamente estruturada Zona exterior coberta, perfeita para cargas, descargas ou armazenamento adicional Estacionamento privativo com capacidade para 4 automóveis e 1 camião Acessos frontal e posterior, garantindo elevada funcionalidade Portões seccionados Caixilharia em alumínio Revestimentos exteriores em chapa e pastilha, de baixa manutenção Localizado na freguesia de Fermentões, muito perto do centro de Guimarães, este imóvel destaca-se pela excelente acessibilidade e posição estratégica. Disponibilidade: a partir de 1 de fevereiro de 2026. Ideal para empresas que procuram um espaço amplo, funcional e bem localizado para planear a sua próxima fase de crescimento.
AMI: 7899
Ref. Externa: 2900
Id: 1517283
Inicie sessão para guardar este imóvel e aceder à sua lista de favoritos em qualquer dispositivo.
1 WCs
Área bruta : 1717 m²
Apresentamos uma oportunidade única de adquirir pavilhões industriais de excelência, localizados em Briteiros, Guimarães uma zona em plena expansão, com acessos privilegiados e vocacionada para grandes operações logísticas e industriais. Características principais: Pavilhões inseridos num loteamento empresarial totalmente novo, com infraestruturas modernas e pensadas para empresas de grande dimensão; Área útil por pavilhão: desde 1.317,5 m², com possibilidade de ampliação até 12540 m², de acordo com as necessidades da sua empresa; Área total do lote: 24.515 m²; Parqueamento generoso, com espaço para viaturas pesadas e manobras logísticas; Construção de alta qualidade, com soluções ajustáveis e personalizáveis à medida da atividade do cliente; Pé-direito elevado, acessos facilitados, ideal para logística, indústria ou armazenagem de grande escala. Localização Estratégica: Situado em Guimarães Briteiros, com acessos rápidos às principais vias (autoestradas e centros logísticos); Zona em forte crescimento empresarial, com grande potencial de valorização. Flexibilidade Total: Possibilidade de personalização total ao layout e às funcionalidades do pavilhão; Ideal para empresas em fase de expansão ou que procurem um centro logístico moderno e eficiente. Condições sob consulta. Excelente oportunidade para investidores ou empresas que valorizam localização, escalabilidade e qualidade construtiva.
AMI: 18810
Ref. Externa: DSPBRAGAJR524
Id: 1477971
Inicie sessão para guardar este imóvel e aceder à sua lista de favoritos em qualquer dispositivo.
1 WCs
Área bruta : 1317 m²
Apresentamos uma oportunidade única de adquirir pavilhões industriais de excelência, localizados em Briteiros, Guimarães uma zona em plena expansão, com acessos privilegiados e vocacionada para grandes operações logísticas e industriais. Características principais: Pavilhões inseridos num loteamento empresarial totalmente novo, com infraestruturas modernas e pensadas para empresas de grande dimensão; Área útil por pavilhão: desde 1.317,5 m², com possibilidade de ampliação até 12540 m², de acordo com as necessidades da sua empresa; Área total do lote: 24.515 m²; Parqueamento generoso, com espaço para viaturas pesadas e manobras logísticas; Construção de alta qualidade, com soluções ajustáveis e personalizáveis à medida da atividade do cliente; Pé-direito elevado, acessos facilitados, ideal para logística, indústria ou armazenagem de grande escala. Localização Estratégica: Situado em Guimarães Briteiros, com acessos rápidos às principais vias (autoestradas e centros logísticos); Zona em forte crescimento empresarial, com grande potencial de valorização. Flexibilidade Total: Possibilidade de personalização total ao layout e às funcionalidades do pavilhão; Ideal para empresas em fase de expansão ou que procurem um centro logístico moderno e eficiente. Condições sob consulta. Excelente oportunidade para investidores ou empresas que valorizam localização, escalabilidade e qualidade construtiva.
AMI: 18810
Ref. Externa: DSPBRAGAJR523
Id: 1477970
Inicie sessão para guardar este imóvel e aceder à sua lista de favoritos em qualquer dispositivo.
2.500 €
2 WCs
Área bruta : 750 m²
Ideal para expandir a sua empresa, Novas Empresas Exelente pavilhão para arrendamento Amplo Zona Industrial, Bons acessos, Venha visitar, Entrada a 01 Setembro, Mais Inf: (telefone)
AMI: 9730
Ref. Externa: 3963
Id: 1390025
Inicie sessão para guardar este imóvel e aceder à sua lista de favoritos em qualquer dispositivo.
2.500 €
Área bruta : 470 m²
Exelente armazém para arrendar; Bons acessos, construção nova Ideal para montar a sua empresa, ou mesmo expandir, Marque visita!
AMI: 9730
Ref. Externa: 4599
Id: 1368353
Inicie sessão para guardar este imóvel e aceder à sua lista de favoritos em qualquer dispositivo.
2.600 €
Área bruta : 570 m²
Armazém para Arrendar; Ideal para o seu negócio Arquitetura Moderna, Acesso á circular Urbana/Auto Estrada 100 m2 Mezanino; Marque visita!
AMI: 9730
Ref. Externa: 4242
Id: 1368347
Inicie sessão para guardar este imóvel e aceder à sua lista de favoritos em qualquer dispositivo.
1 WCs
Área útil : 100 m²
Armazém com 100 m2, wc privativo e boa luz natural... Disponível para armazém, comércio ou escritório... Contacte nos para mais informações...
AMI: 3971
Ref. Externa: E-891
Id: 1324649
Inicie sessão para guardar este imóvel e aceder à sua lista de favoritos em qualquer dispositivo.
Área bruta : 2434 m²
Arrendamento | Armazém de 2.434 m2 com escritório numa localização estratégica em GuimarãesCom uma generosa área total de 2.434 m², este armazém distingue-se pela sua excelente funcionalidade, versatilidade de uso e localização privilegiada. A localização estratégica é um dos seus grandes pontos fortes: situa-se a escassos minutos do centro histórico de Guimarães, com excelente acessibilidade às principais vias rodoviárias e autoestradas, facilitando a mobilidade de pessoas, mercadorias e equipamentos para dentro e fora da cidade.O armazém oferece uma estrutura sólida e preparada para responder às necessidades operacionais de uma empresa, com destaque para as infraestruturas de apoio integradas. Conta com um escritório independente, ideal para funções administrativas, reuniões ou apoio à gestão, e está equipado com duas casas de banho, proporcionando condições de conforto essenciais para o quotidiano laboral.Dispõe de licença para indústria e armazém, o que permite uma utilização imediata e versátil, adaptando-se a diversas atividades empresariais, desde produção a logística. Contacte-nos para mais informações.A dipe foi distinguida como uma das 10 melhores PME da Região de Braga em 2023 e do setor imobiliário em Portugal no ano de 2022.O reconhecimento atribuído pela SCORING resulta de uma avaliação levada a cabo por uma equipa de docentes universitários doutorados em gestão e com referência aos Certificados da BUREAU VERITAS e da ASSOFT e reforça a dipe como uma referência de confiança, solidez e futuro no setor Mediação Imobiliária.- A dipe é uma imobiliária sediada em Guimarães, com mais de 29 anos de experiência no mercado, e distingue-se pelo serviço de excelência no apoio e acompanhamento a proprietários, investidores e clientes compradores. Dispomos de uma equipa pluridisciplinar, com profissionais altamente qualificados em diferentes áreas, como Arquitectura, Design de Interiores, Gestão, Comunicação e Marketing, dedicados a criar as soluções ideais para as suas necessidades. O nosso serviço, personalizado e transversal, é completamente diferenciado, oferecendo um auxílio constante a todos os intervenientes do negócio, mesmo após a conclusão do mesmo. Dipe é hoje sinónimo de tradição, por todas as experiências e histórias que partilhamos com os nossos clientes ao longo de mais de 29 anos, mas também de inovação, fruto da ousadia de uma equipa que procura estar um passo à frente daquilo que o mercado dita.
AMI: 11491
Ref. Externa: 29.25
Id: 1313326
Inicie sessão para guardar este imóvel e aceder à sua lista de favoritos em qualquer dispositivo.
Área bruta : 750 m²
Pavilhão para Arrendamento NOVO Todo Ampla, rc zona Trabalho, 1º andar escritórios, lugar para estacionamento Ideal para Expandir a sua Empresa, Criar a sua Futura Empresa, Bons Acessos, Marque visita,
AMI: 9730
Ref. Externa: 3966
Id: 1292244
Inicie sessão para guardar este imóvel e aceder à sua lista de favoritos em qualquer dispositivo.
Área bruta : 1100 m²
Pavilhão para Arrendamento NOVO Todo Ampla, rc zona Trabalho, Balneários, Copa; 1º andar escritórios, lugar para estacionamento Ideal para expandir a sua Empresa, Criar a sua Empresa de Futuro, Bons acessos Marque visita,
AMI: 9730
Ref. Externa: 3967
Id: 1292243
Inicie sessão para guardar este imóvel e aceder à sua lista de favoritos em qualquer dispositivo.
Área bruta : 141 m²
Armazém, Arrendamento, TaipasArmazém com 1 piso; Estacionamento;Entrada para carrinhas;A 10 minutos de Guimarães;Marque connosco a sua visita!Você tem o sonho, nós temos a Chave!Atual Imobiliária prima de um acompanhamento transparente, permanente e personalizado, tendo como base a proximidade e a confiança de quem queira vender ou comprar qualquer tipo de imóvel.Dispõe de uma equipa de profissionais em constante formação, focada em perceber as suas necessidades e assumindo o compromisso de encontrar a melhor solução imobiliária para si.Com mais de 10 anos de experiência, a Atual Imobiliária garante a maior transparência e simplicidade na concretização de todos os processos do seu negócio.Os excelentes resultados que a nossa equipa de consultores tem vindo a alcançar ao longo destes anos, assenta na motivação diária de concretizar os sonhos e preferências dos nossos clientes, num mercado que reconhecemos como sendo severamente competitivo.Na Atual Imobiliária as necessidades e preferências dos nossos clientes estarão sempre em grande destaque, de forma a encontrarmos as melhores soluções para colmatar os seus objetivos. Para tal, apresentamos um acompanhamento altamente profissional, credível e experiente, que nos permite prestar todo o apoio no desenvolvimento de quaisquer decisões e também durante os trâmites do processo de compra, venda ou arrendamento.A nossa oferta prima pela diversidade e atualidade, para que encontre o imóvel à sua medida.Nascemos com a clara missão de satisfazer os clientes do mercado imobiliário, uma vez que exibimos um serviço de elevada qualidade, a preços bastante competitivos.A equipa da Atual Imobiliária dispõe de consultores extremamente experientes nesta área, cem por cento focados na concretização do melhor negócio para os seus clientes.Neste sentido, além da nossa carteira de imóveis bastante diversificada e geograficamente alargada, dispomos ainda de parcerias com diversas agências imobiliárias e entidades credoras, que garantem-nos as melhores taxas de mercado, fator que nos posiciona num patamar diferenciador dentro do atual mercado imobiliário.
AMI: 13850
Ref. Externa: 2506.055
Id: 1226653
Inicie sessão para guardar este imóvel e aceder à sua lista de favoritos em qualquer dispositivo.
1 WCs
Área útil : 132 m²
Descubra o potencial deste armazém totalmente equipado para arrendamento a longo prazo em Guimarães. Com uma área generosa de 132 metros quadrados e uma única casa de banho, este espaço versátil é ideal para negócios em busca de uma localização central e bem conectada. Localizado em Gondar, uma vila histórica e pacífica, este armazém está rodeado por 22 pontos de interesse de transporte público, garantindo uma ligação fácil às áreas circundantes. Se procura um espaço versátil e bem localizado para o seu negócio, este armazém em Gondar é a escolha ideal. Venha descobrir todas as potencialidades que este lugar especial tem para oferecer. Venha conhecer!! Para mais informações, contacte-nos!! Comprarcasa Guimarães Concretizamos os seus sonhos! Rede Imobiliária da APEMIP | Famagui - Mediação Imobiliária, Lda | APEMIP: 5130 AMI: 10736 Com o firme objetivo de satisfação do cliente a Comprarcasa Guimarães dispõe de 2 lojas para o atender: Pevidém e Guimarães. Tem ao seu dispor Consultores Imobiliários e um Departamento Processual especializados, com formação contínua, para lhe prestar o melhor atendimento e serviço, acompanhando-o em todo o processo da Mediação Imobiliária. Formamos uma Equipa que trabalha em prol do cliente e das suas necessidades. Este é um momento importante da sua vida, seja na compra, venda, trespasse ou arrendamento de qualquer imóvel e nós temos as pessoas, os meios e o conhecimento para o acompanhar! A Comprarcasa Guimarães está autorizada pelo Banco de Portugal para exercer funções de Intermediária de Crédito Vinculado. Assim dispomos de pessoas e meios para o ajudar na contratação segura do seu crédito à habitação. INTERMEDIÁRIO DE CRÉDITO REGISTADO NO BANCO DE PORTUGAL Nº 0000858. Defendendo o superior interesse dos seus clientes, levamos ao expoente máximo a frase que melhor nos caracteriza - A Imobiliária que cuida de Si!
AMI: 10736
Ref. Externa: 336/N/01867
Id: 1221262
Inicie sessão para guardar este imóvel e aceder à sua lista de favoritos em qualquer dispositivo.
Área bruta : 550 m²
Armazém localizado na Zona Industrial de Vila Nova de Sande.Área de 550 m2 com ampla zona exterior para estacionamento e excelentes acessos.No piso frontal superior com duas salas de escritório,no piso inferior com sala vestuário para funcionários e 3 WC.Todo Armazém Térreo com outro espaço nas traseiras.Situa-se:- Na Zona Industrial de Vila Nova de Sande a 5km da Autoestrada e 50km do Aeroporto Sá Carneiro. O meu nome é Orlando Silva , sou consultor imobiliário independente da Predimed Portugal. Acompanho o cliente em todo processo da sua compra e o processo de financiamento com a melhor proposta de financiamento aprovado em 48 horas"!Agende já a sua visita!!☎+351 [email protected] Imobiliária, Mediação Imobiliária, Lda.Avenida Brasil 43, 12º Andar, 1700-062 LisboaLicença AMI nº 22503Pessoa Coletiva nº 517 239 345Seguro Responsabilidade Civil: Nº de Apólice RC65379424 Fidelidade
AMI: 13558
Ref. Externa: 052756
Id: 1205712
Inicie sessão para guardar este imóvel e aceder à sua lista de favoritos em qualquer dispositivo.
Área bruta : 282 m²
Armazém, Arrendamento, TaipasArmazém com 2 pisos; Estacionamento;Entrada para carrinhas;A 10 minutos de Guimarães;Marque connosco a sua visita!Você tem o sonho, nós temos a Chave!Atual Imobiliária prima de um acompanhamento transparente, permanente e personalizado, tendo como base a proximidade e a confiança de quem queira vender ou comprar qualquer tipo de imóvel.Dispõe de uma equipa de profissionais em constante formação, focada em perceber as suas necessidades e assumindo o compromisso de encontrar a melhor solução imobiliária para si.Com mais de 10 anos de experiência, a Atual Imobiliária garante a maior transparência e simplicidade na concretização de todos os processos do seu negócio.Os excelentes resultados que a nossa equipa de consultores tem vindo a alcançar ao longo destes anos, assenta na motivação diária de concretizar os sonhos e preferências dos nossos clientes, num mercado que reconhecemos como sendo severamente competitivo.Na Atual Imobiliária as necessidades e preferências dos nossos clientes estarão sempre em grande destaque, de forma a encontrarmos as melhores soluções para colmatar os seus objetivos. Para tal, apresentamos um acompanhamento altamente profissional, credível e experiente, que nos permite prestar todo o apoio no desenvolvimento de quaisquer decisões e também durante os trâmites do processo de compra, venda ou arrendamento.A nossa oferta prima pela diversidade e atualidade, para que encontre o imóvel à sua medida.Nascemos com a clara missão de satisfazer os clientes do mercado imobiliário, uma vez que exibimos um serviço de elevada qualidade, a preços bastante competitivos.A equipa da Atual Imobiliária dispõe de consultores extremamente experientes nesta área, cem por cento focados na concretização do melhor negócio para os seus clientes.Neste sentido, além da nossa carteira de imóveis bastante diversificada e geograficamente alargada, dispomos ainda de parcerias com diversas agências imobiliárias e entidades credoras, que garantem-nos as melhores taxas de mercado, fator que nos posiciona num patamar diferenciador dentro do atual mercado imobiliário.
AMI: 13850
Ref. Externa: 2506.048
Id: 1199043
Inicie sessão para guardar este imóvel e aceder à sua lista de favoritos em qualquer dispositivo.
4.500 €
Área bruta : 1251 m²
Armazém situado numa das localizações mais centrais da cidade de Guimarães. O imóvel conta com uma área bruta de construção de 1251m2, inserido num terreno com 828m2. O espaço desenvolve-se em dois pisos, sendo ele bastante amplo no rés-do-chão, tendo uma parte de receção, balneários, uma copa e escritórios. O primeiro andar, dispõe de uma sala de espera, três salas de reuniões e os escritórios maiores. O armazém tem um elevador monte-cargas que facilita a elevação de cargas pesadas. O estacionamento tem capacidade para vários veículos de mercadorias através de dois acessos pelos portões automáticos. O imóvel tem ainda vários espaços para arrumos e ainda uma garagem fechada para vários automóveis. Se procura um espaço industrial ou comercial com uma localização estratégica e que proporcione um ambiente de tranquilidade em pleno centro urbano, esta é uma excelente oportunidade! O armazém maximiza a entrada de luz natural através de amplas janelas, complementadas por acabamentos premium e pavimentos nobres que lhe conferem um ambiente sofisticado e acolhedor. Esta é a escolha ideal para profissionais exigentes que valorizam um espaço perfeito para o desenvolvimento do seu negócio. A conectividade de excelência é um dos seus maiores trunfos: apenas a 2 minutos dos acessos à auto-estrada e ainda a 5 minutos do centro histórico da cidade de Guimarães. Trata-se de um armazém ideal para comércio, armazém ou outro tipo de serviço. A SUA CASA MORA AQUI !!!Compre o seu imóvel connosco.Predimed Imobiliária, Mediação Imobiliária, Lda.Avenida Brasil 43, 12º Andar, 1700-062 LisboaLicença AMI nº 22503Pessoa Coletiva nº 517 239 345Seguro Responsabilidade Civil: Nº de Apólice RC65379424 Fidelidade Características: Arrecadação;Estacionamento Ar-Livre;Estacionamento Coberto;Garagem;Parqueamento;Internet fibra;Carregamento de carros elétricos;Alarme;Ar Condicionado;Caldeira;Detector de Fumos;Detector de Incêndio;Detector de Intrusão;Divisórias Amovíveis;Elevador;Ligação Wi-Fi;Luzes de emergência;Portão Eléctrico;Áreas de Lazer Infantil;Auto-Estrada;Banco;Bombeiros;Campo;Centro Comercial;Centro da Cidade;Escola;Espaços Verdes;Estação Ferroviária;Estação Rodoviária;Farmácia;Ginásio;Hipermercado;Hospital;Orientação Solar;Piscinas;Polícia;Posto de Combustível;Praça Táxis;Transportes Públicos;Vista para Campo;Zona Comercial
AMI: 13558
Ref. Externa: 052140
Id: 1192775
Inicie sessão para guardar este imóvel e aceder à sua lista de favoritos em qualquer dispositivo.
7.500 €
Área bruta : 3254 m²
Arrendamento | Armazém de 3.254 m2 em Gondar, Guimarães.O imóvel é composto por um espaço de armazém com 2800 m2, acrescido de mais 500 m2 que se dividem por 7 gabinetes, 1 show-room equipados com ar-condicionado e sistema de som, 1 kitchenette e 1 WC.O armazém contempla ainda um monta cargas, alarme anti-intrusão e anti-incêndio.Com ótimas acessibilidades à Estrada Nacional 310 e proximidade à entrada da autoestrada, este é o imóvel ideal para implementar ou expandir o seu negócio na cidade de Guimarães.Contacte-nos para mais informações.-A dipe foi distinguida como uma das 10 melhores PME da Região de Braga em 2023 e do setor imobiliário em Portugal no ano de 2022.O reconhecimento atribuído pela SCORING resulta de uma avaliação levada a cabo por uma equipa de docentes universitários doutorados em gestão e com referência aos Certificados da BUREAU VERITAS e da ASSOFT e reforça a dipe como uma referência de confiança, solidez e futuro no setor Mediação Imobiliária.- A dipe é uma imobiliária sediada em Guimarães, com mais de 28 anos de experiência no mercado, e distingue-se pelo serviço de excelência no apoio e acompanhamento a proprietários, investidores e clientes compradores. Dispomos de uma equipa pluridisciplinar, com profissionais altamente qualificados em diferentes áreas, como Arquitectura, Design de Interiores, Gestão, Comunicação e Marketing, dedicados a criar as soluções ideais para as suas necessidades. O nosso serviço, personalizado e transversal, é completamente diferenciado, oferecendo um auxílio constante a todos os intervenientes do negócio, mesmo após a conclusão do mesmo. Dipe é hoje sinónimo de tradição, por todas as experiências e histórias que partilhamos com os nossos clientes ao longo de mais de 29 anos, mas também de inovação, fruto da ousadia de uma equipa que procura estar um passo à frente daquilo que o mercado dita.
AMI: 11491
Ref. Externa: 33.25
Id: 1127094
Inicie sessão para guardar este imóvel e aceder à sua lista de favoritos em qualquer dispositivo.
Área útil : 1019 m²
Pavilhão Industrial com 1.019 m2 em Guimarães | composto por Zona de Escritório, Armazém e 2 WCs. Possui Licença para Indústria.Possui licença para indústria.Pavilhão Industrial para arrendamento com 1.019 m2 Fermentões, GuimarãesImóvel composto por:- Zona de escritório;- 2 WCs;- Armazém.Possui licença para indústria.Situa-se:- A 5 minutos da entrada da auto estrada;Possibilidade de juntar a este armazém uma outra fração com área de 1.021 m2 e valor de 3.675,60€.Referência: ASV24101Por sermos intermediários de crédito devidamente autorizados pelo Banco de Portugal (Reg. 2736), fazemos a gestão de todo o seu processo de financiamento, sempre com as melhores soluções de mercado.Porquê escolher a AS Imobiliária?Com mais de 16 anos no ramo imobiliário e milhares de famílias felizes, dispomos de 8 agências estrategicamente localizadas, para o servir com proximidade, corresponder à suas expectativas e ajudá-lo a adquirir a sua casa de sonho. Compromisso, Competência e Confiança são os nossos valores que entregamos aos nossos Clientes na hora de comprar, arrendar ou vender o seu imóvel.A nossa prioridade é a sua Felicidade!Na AS Imobiliária somos apaixonados por vender casas!Especialistas imobiliários em Vizela ; Guimarães ; Taipas ; Felgueiras ; Lousada ; Santo Tirso ; Barcelos ; São João da Madeira ; Porto ; Braga
AMI: 13249
Ref. Externa: ASV24101
Id: 914577
Inicie sessão para guardar este imóvel e aceder à sua lista de favoritos em qualquer dispositivo.
Área útil : 1080 m²
Pavilhão Industrial com 1.080 m2 em Guimarães | composto por Zona de Escritório, Armazém e 2 WCs. Possui Licença para Indústria.Possui licença para indústria.Pavilhão Industrial para arrendamento com 1.080 m2 Fermentões, GuimarãesImóvel composto por 2 pisos com:- Zona de escritório;- 2 WCs;- Armazém.Possui licença para indústria.Situa-se:- A 5 minutos da entrada da auto estrada;Referência: ASV24099Por sermos intermediários de crédito devidamente autorizados pelo Banco de Portugal (Reg. 2736), fazemos a gestão de todo o seu processo de financiamento, sempre com as melhores soluções de mercado.Porquê escolher a AS Imobiliária?Com mais de 16 anos no ramo imobiliário e milhares de famílias felizes, dispomos de 8 agências estrategicamente localizadas, para o servir com proximidade, corresponder à suas expectativas e ajudá-lo a adquirir a sua casa de sonho. Compromisso, Competência e Confiança são os nossos valores que entregamos aos nossos Clientes na hora de comprar, arrendar ou vender o seu imóvel.A nossa prioridade é a sua Felicidade!Na AS Imobiliária somos apaixonados por vender casas!Especialistas imobiliários em Vizela ; Guimarães ; Taipas ; Felgueiras ; Lousada ; Santo Tirso ; Barcelos ; São João da Madeira ; Porto ; Braga
AMI: 13249
Ref. Externa: ASV24099
Id: 914573
Inicie sessão para guardar este imóvel e aceder à sua lista de favoritos em qualquer dispositivo.
3.000 €
1 WCs
Área bruta : 900 m²
Armazém com escritórios com cerca de 900 m2 de área útil, localizado em Urgeses, Guimarães. Este imóvel destaca-se pela sua proximidade às principais vias de distribuição viária e pela variedade de serviços e comércio a seu redor, incluindo os CTT, o que torna o espaço perfeito para a sua laboração. Com licença para serviços e comércio o imóvel é constituído por rés do chão e piso. Dispõe de : - divisão ampla; - escritórios; - casa de banho; - monta cargas. Urgezes, cuja ortografia é reclamada por alguns académicos como devendo ser Urgeses, é uma freguesia portuguesa do município de Guimarães Situada na zona sul de Guimarães, perto do alto da Penha, faz parte integrante da área urbana da cidade, ainda que tenha algumas características rurais em determinadas zonas, onde se pratica alguma agricultura de subsistência. Guimarães é uma cidade portuguesa situada no Distrito de Braga, região do Norte e sub-região do Ave (uma das sub-regiões mais industrializadas do país). É das mais importantes cidades históricas do país, sendo o seu centro histórico considerado Património Cultural da Humanidade, tornando-a definitivamente um dos maiores centros turísticos da região. As suas ruas e monumentos respiram história e encantam quem a visita. Possui diversos espaços culturais de referência na região e a nível nacional. Em Guimarães encontra comércio diverso…Comércio tradicional, grandes superfícies, serviços, bancos, farmácias, escolas públicas e privadas de jardins de infância, ensino primário, ensino básico e secundário e a Universidade do Minho.
AMI: 7899
Ref. Externa: 2756
Id: 874433
Inicie sessão para guardar este imóvel e aceder à sua lista de favoritos em qualquer dispositivo.
Este agente é especialista nesta zona:
Inicie sessão para ocultar este imóvel das suas pesquisas e manter a sua lista de resultados organizada.
Guardar favoritos
Este imóvel foi guardados nos seus favoritos com sucesso.
Para poder guardar pesquisa deverá ter a sua sessão iniciada.
Caso não tenha uma conta, deverá criar uma.
A sua pesquisa foi guardada com sucesso!
© Copyright 2023 | CASACERTA. All rights reserved
Este site utiliza cookies. Ao navegar no site estará a consentir a sua utilização.
Para mais informações sobre os cookies pode consultar a
política de privacidade.