Lista
Comprar
Arrendar
1.350 €
Área bruta : 190 m²
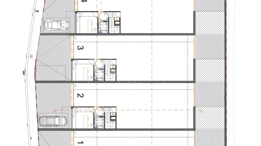
Armazém industrial em fase de construção no Parque Industrial da Gelfa. Excelente localização e bons acessos. Compostos por 2 pisos, tendo as seguintes áreas: Pavilhão 1 área do lote - 555,76-área de implantação 170 m2 - área de construção 200 m2 - valor: 1500€ Pavilhão 2 área do lote - 253,18- área de implantação 170 m2 - área de construção 200 m2 - valor: 1450€ Pavilhão 3 área do lote - 253,16- área de implantação 170 m2 - área de construção 200 m2 - valor: 1450€ Pavilhão 4 área do lote - 249,50 -área de implantação 166 m2 - área de construção 200 m2 - valor: 1400€ Pavilhão 5 área do lote - 368,40 -área de implantação 127 m2 - área de construção 190 m2 - valor: 1350€ Visite! MITOS E REALIDADES - Sociedade de Mediação Imobiliária, Lda. Licença AMI - 11024 Empresa do setor imobiliário que atua no mercado de Arrendamento e Venda de Imóveis. Com um padrão de seriedade na prestação de serviços imobiliários, procura realizar bons negócios com eficiência, proporcionando assim, tranquilidade aos seus clientes. A nossa equipa de colaboradores é formada por profissionais experientes, com vasto conhecimento para sugerir as melhores alternativas. Além disso, dispomos de um sistema totalmente informatizado, o que permite uma maior agilidade na pesquisa e adequação do perfil do imóvel às solicitações do cliente. Apoiada pelo profissionalismo e seriedade, a MITOS está colocada entre as maiores imobiliárias de Viana do Castelo. #mitos #mitosimobiliaria #imobiliária #vianadocastelo #realestate
AMI: 11024
Ref. Externa: F874
Id: 1070566
Inicie sessão para guardar este imóvel e aceder à sua lista de favoritos em qualquer dispositivo.
1.350 €
1 WCs
Área bruta : 127 m²
Pavilhões Industriais em fase de construção no Parque Industrial da Gelfa. Compostos por 2 pisos. Ótimo local para quem deseja fixar a sua empresa na zona de Caminha. * * Pavilhões disponíveis: Pavilhão 1 - área do lote - 555,76 - área de implantação 170 m2 - área de construção 200 m2 - arrendamento - 1500€ Pavilhão 2 - área do lote - 253,18 - área de implantação 170 m2 - área de construção 200 m2 - arrendamento - 1450€ Pavilhão 3 - área do lote - 253,16 - área de implantação 170 m2 - área de construção 200 m2 - arrenadamento - 1450€ Pavilhão 4 - área do lote - 249,50 - área de implantação 166 m2 - área de construção 200 m2 - arrendamento - 1400€ Pavilhão 5 - área do lote - 368,40 - área de implantação 127 m2 - área de construção 190 m2 - arrendamento - 1350€ * Está previsto a conclusão da construção em Março/Abril de 2025 * NOTA: A informação aqui prestada, ainda que precisa, requer confirmação antes do fecho do negócio e não pode ser utilizada de forma vinculativa. Insuavila Imobiliária
AMI: 11806
Ref. Externa: 2273
Id: 991854
Inicie sessão para guardar este imóvel e aceder à sua lista de favoritos em qualquer dispositivo.
1 WCs
Área bruta : 200 m²
Vianaazul - Armazém composto por 2 pisos, novo, em construção, c/ 200 m2, num lote de 249,50 m2. Localização ímpar, com otima acessibilidade para qualquer tipo de viaturas. Auto-Estradas próximas e com enorme visibilidade. Visite-o!!!!! Observação: Previsão para término dos pavilhões é Março/Abril de 2025. VIANAAZUL - CASTELVIA SOC MED IMOB LDA, nasceu em Maio de 1996, com origem na Habinorte, migrando em 2000 para a Vila Azul e tomando o nome definitivo para Vianaazul em 2005, até aos dias atuais. Neste já longo percurso - totalizando 27 anos em Maio de 2023 - foi adquirindo um Know How notável e granjeando um prestígio e profissionalismo sem paralelo. Com uma equipa de profissionais formados com elevadíssima qualidade esta empresa encontra-se preparada para responder com competência ao nível da mediação imobiliária, mediação de seguros e peritagens e avaliações imobiliárias. Aceite o nosso convite e visite a página Vianaazul. Vai encontrar uma panóplia de imóveis de elevado nível de qualidade.
AMI: 9310
Ref. Externa: 2174
Id: 991818
Inicie sessão para guardar este imóvel e aceder à sua lista de favoritos em qualquer dispositivo.
1 WCs
Área bruta : 200 m²
Vianaazul - Armazém composto por 2 pisos, novo, em construção, c/ 190 m2, num lote de 368,40 m2. Localização ímpar, com otima acessibilidade para qualquer tipo de viaturas. Auto-Estradas próximas e com enorme visibilidade. Visite-o!!!!! Observação: Previsão para término dos pavilhões é Março/Abril de 2025. VIANAAZUL - CASTELVIA SOC MED IMOB LDA, nasceu em Maio de 1996, com origem na Habinorte, migrando em 2000 para a Vila Azul e tomando o nome definitivo para Vianaazul em 2005, até aos dias atuais. Neste já longo percurso - totalizando 27 anos em Maio de 2023 - foi adquirindo um Know How notável e granjeando um prestígio e profissionalismo sem paralelo. Com uma equipa de profissionais formados com elevadíssima qualidade esta empresa encontra-se preparada para responder com competência ao nível da mediação imobiliária, mediação de seguros e peritagens e avaliações imobiliárias. Aceite o nosso convite e visite a página Vianaazul. Vai encontrar uma panóplia de imóveis de elevado nível de qualidade.
AMI: 9310
Ref. Externa: 2175
Id: 991819
Inicie sessão para guardar este imóvel e aceder à sua lista de favoritos em qualquer dispositivo.
1 WCs
Área bruta : 200 m²
Vianaazul - Armazém composto por 2 pisos, novo, em construção, c/ 200 m2, num lote de 253,16 m2. Localização ímpar, com otima acessibilidade para qualquer tipo de viaturas. Auto-Estradas próximas e com enorme visibilidade. Visite-o!!!!! Observação: Previsão para término dos pavilhões é Março/Abril de 2025. VIANAAZUL - CASTELVIA SOC MED IMOB LDA, nasceu em Maio de 1996, com origem na Habinorte, migrando em 2000 para a Vila Azul e tomando o nome definitivo para Vianaazul em 2005, até aos dias atuais. Neste já longo percurso - totalizando 27 anos em Maio de 2023 - foi adquirindo um Know How notável e granjeando um prestígio e profissionalismo sem paralelo. Com uma equipa de profissionais formados com elevadíssima qualidade esta empresa encontra-se preparada para responder com competência ao nível da mediação imobiliária, mediação de seguros e peritagens e avaliações imobiliárias. Aceite o nosso convite e visite a página Vianaazul. Vai encontrar uma panóplia de imóveis de elevado nível de qualidade.
AMI: 9310
Ref. Externa: 2173
Id: 991817
Inicie sessão para guardar este imóvel e aceder à sua lista de favoritos em qualquer dispositivo.
1 WCs
Área bruta : 200 m²
Vianaazul - Armazém composto por 2 pisos, novo, em construção, c/ 200 m2, num lote de 555,76 m2. Localização ímpar, com otima acessibilidade para qualquer tipo de viaturas. Auto-Estradas próximas e com enorme visibilidade. Visite-o!!!!! Observação: Previsão para término dos pavilhões é Março/Abril de 2025. VIANAAZUL - CASTELVIA SOC MED IMOB LDA, nasceu em Maio de 1996, com origem na Habinorte, migrando em 2000 para a Vila Azul e tomando o nome definitivo para Vianaazul em 2005, até aos dias atuais. Neste já longo percurso - totalizando 27 anos em Maio de 2023 - foi adquirindo um Know How notável e granjeando um prestígio e profissionalismo sem paralelo. Com uma equipa de profissionais formados com elevadíssima qualidade esta empresa encontra-se preparada para responder com competência ao nível da mediação imobiliária, mediação de seguros e peritagens e avaliações imobiliárias. Aceite o nosso convite e visite a página Vianaazul. Vai encontrar uma panóplia de imóveis de elevado nível de qualidade.
AMI: 9310
Ref. Externa: 2171
Id: 991815
Inicie sessão para guardar este imóvel e aceder à sua lista de favoritos em qualquer dispositivo.
1 WCs
Área bruta : 200 m²
Vianaazul - Armazém composto por 2 pisos, novo, em construção, c/ 200 m2, num lote de 253,18 m2. Localização ímpar, com otima acessibilidade para qualquer tipo de viaturas. Auto-Estradas próximas e com enorme visibilidade. Visite-o!!!!! Observação: Previsão para término dos pavilhões é Março/Abril de 2025. VIANAAZUL - CASTELVIA SOC MED IMOB LDA, nasceu em Maio de 1996, com origem na Habinorte, migrando em 2000 para a Vila Azul e tomando o nome definitivo para Vianaazul em 2005, até aos dias atuais. Neste já longo percurso - totalizando 27 anos em Maio de 2023 - foi adquirindo um Know How notável e granjeando um prestígio e profissionalismo sem paralelo. Com uma equipa de profissionais formados com elevadíssima qualidade esta empresa encontra-se preparada para responder com competência ao nível da mediação imobiliária, mediação de seguros e peritagens e avaliações imobiliárias. Aceite o nosso convite e visite a página Vianaazul. Vai encontrar uma panóplia de imóveis de elevado nível de qualidade.
AMI: 9310
Ref. Externa: 2172
Id: 991816
Inicie sessão para guardar este imóvel e aceder à sua lista de favoritos em qualquer dispositivo.
1.350 €
Área de terreno : 1680 m²
Pavilhões inseridos em terreno com 1.680m² de área total, em fase de construção, cujo prazo previsto para término dos mesmos, é entre Março/Abril de 2025. Os 5 pavilhões industriais situados na zona de Âncora, encontram-se disponíveis para arrendamento ou para venda. O valor do arrendamento a partir de 1.350,00€. O valor da venda a partir de 235 000,00€. Para mais informações, não hesite em contactar-nos.
AMI: 14941
Ref. Externa: V2334
Id: 989754
Inicie sessão para guardar este imóvel e aceder à sua lista de favoritos em qualquer dispositivo.
4.500 €
2 WCs
Área bruta : 3000 m²
Exclusivo Insuavila! Armazém com 2089m2, inserido em terreno com 3580m2. Ultimamente utilizado como armazém, comercio e distribuição alimentar. Espaço amplo com várias prateleiras preparadas para suportar paletes, 2 arcas frigorificas de grandes dimensões, zona de escritórios e sala de reuniões. De fácil acesso e com espaço amplo para estacionamento. 8 metros de pé-direito na parte mais alta e 7 metros na parte mais baixa, com acesso para camiões por 3 portões com 5 metros. Possibilidade de dividir o espaço em vários armazéns com dimensões mais reduzidas. Poderá ainda adquirir o terreno confinante com 2240m2, pelo valor de 160.000€, permitindo-lhe aumentar a zona de estacionamento ou criar outras construções, uma vez que o terreno está inserido no PDM, em zona de construção, com o índice de 50%, Rés do Chão + 1º andar. Se procura um espaço de grandes dimensões para fazer crescer a sua empresa ou se procura um bom investimento para rentabilizar, tem aqui uma excelente oportunidade! Visite! * * NOTA: A informação aqui prestada, ainda que precisa, requer confirmação antes do fecho do negócio e não pode ser utilizada de forma vinculativa. Insuavila Imobiliária Visite!
AMI: 11806
Ref. Externa: 2547
Id: 963856
Inicie sessão para guardar este imóvel e aceder à sua lista de favoritos em qualquer dispositivo.
Este agente é especialista nesta zona:
Inicie sessão para ocultar este imóvel das suas pesquisas e manter a sua lista de resultados organizada.
Guardar favoritos
Este imóvel foi guardados nos seus favoritos com sucesso.
Para poder guardar pesquisa deverá ter a sua sessão iniciada.
Caso não tenha uma conta, deverá criar uma.
A sua pesquisa foi guardada com sucesso!
© Copyright 2023 | CASACERTA. All rights reserved
Este site utiliza cookies. Ao navegar no site estará a consentir a sua utilização.
Para mais informações sobre os cookies pode consultar a
política de privacidade.