Área bruta : 190 m²

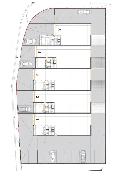
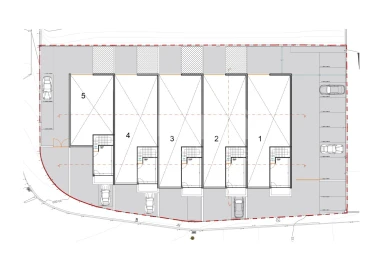
Armazém industrial em fase de construção no Parque Industrial da Gelfa. Excelente localização e bons acessos. Compostos por 2 pisos, tendo as seguintes áreas: Pavilhão 1 área do lote - 555,76-área de implantação 170 m2 - área de construção 200 m2 - valor: 1500€ Pavilhão 2 área do lote - 253,18- área de implantação 170 m2 - área de construção 200 m2 - valor: 1450€ Pavilhão 3 área do lote - 253,16- área de implantação 170 m2 - área de construção 200 m2 - valor: 1450€ Pavilhão 4 área do lote - 249,50 -área de implantação 166 m2 - área de construção 200 m2 - valor: 1400€ Pavilhão 5 área do lote - 368,40 -área de implantação 127 m2 - área de construção 190 m2 - valor: 1350€ Visite! MITOS E REALIDADES - Sociedade de Mediação Imobiliária, Lda. Licença AMI - 11024 Empresa do setor imobiliário que atua no mercado de Arrendamento e Venda de Imóveis. Com um padrão de seriedade na prestação de serviços imobiliários, procura realizar bons negócios com eficiência, proporcionando assim, tranquilidade aos seus clientes. A nossa equipa de colaboradores é formada por profissionais experientes, com vasto conhecimento para sugerir as melhores alternativas. Além disso, dispomos de um sistema totalmente informatizado, o que permite uma maior agilidade na pesquisa e adequação do perfil do imóvel às solicitações do cliente. Apoiada pelo profissionalismo e seriedade, a MITOS está colocada entre as maiores imobiliárias de Viana do Castelo. #mitos #mitosimobiliaria #imobiliária #vianadocastelo #realestate

AMI: 11024

Ref. Externa: F874

Id: 1070566

1 WCs

Área bruta : 127 m²

Pavilhões Industriais em fase de construção no Parque Industrial da Gelfa. Compostos por 2 pisos. Ótimo local para quem deseja fixar a sua empresa na zona de Caminha. * * Pavilhões disponíveis: Pavilhão 1 - área do lote - 555,76 - área de implantação 170 m2 - área de construção 200 m2 - arrendamento - 1500€ Pavilhão 2 - área do lote - 253,18 - área de implantação 170 m2 - área de construção 200 m2 - arrendamento - 1450€ Pavilhão 3 - área do lote - 253,16 - área de implantação 170 m2 - área de construção 200 m2 - arrenadamento - 1450€ Pavilhão 4 - área do lote - 249,50 - área de implantação 166 m2 - área de construção 200 m2 - arrendamento - 1400€ Pavilhão 5 - área do lote - 368,40 - área de implantação 127 m2 - área de construção 190 m2 - arrendamento - 1350€ * Está previsto a conclusão da construção em Março/Abril de 2025 * NOTA: A informação aqui prestada, ainda que precisa, requer confirmação antes do fecho do negócio e não pode ser utilizada de forma vinculativa. Insuavila Imobiliária

AMI: 11806

Ref. Externa: 2273

Id: 991854

Área de terreno : 1680 m²

Pavilhões inseridos em terreno com 1.680m² de área total, em fase de construção, cujo prazo previsto para término dos mesmos, é entre Março/Abril de 2025. Os 5 pavilhões industriais situados na zona de Âncora, encontram-se disponíveis para arrendamento ou para venda. O valor do arrendamento a partir de 1.350,00€. O valor da venda a partir de 235 000,00€. Para mais informações, não hesite em contactar-nos.

AMI: 14941

Ref. Externa: V2334

Id: 989754

Clicky