Lista
Comprar
Arrendar
2 Quartos
1 WCs
Área bruta : 100 m²
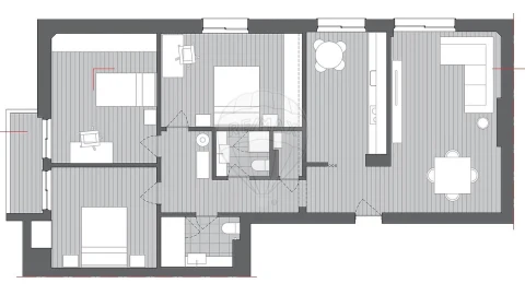
Espaçoso apartamento T2 com varanda para arrendamento em Alverca - Bom Sucesso. O apartamento foi totalmente reabilitado, com vista à modernização não só das infraestruturas (caixilharia, cozinha e WC), como também ao nível dos acabamentos, de modo a conferir-lhe uma imagem mais confortável e contemporânea. O pavimento é em soalho flutuante com acabamento em madeira natural (carvalho) na sala e quartos, ao passo que na cozinha e WC é em mosaicos de PVC com acabamento a imitar cimento afagado. As caixilharias são duplas em PVC com estores térmicos, oscilobatentes na sala e cozinha (R/C) e de correr nos quartos (varanda - 1º piso). A cozinha está equipada com: - Esquentador; - Placa de Fogão a gás; - Forno Eléctrico; - Exaustor; - Frigorífico; Pelos quartos é possível aceder a uma simpática e solarenga varanda. O Hall de Entrada e um dos quartos estão equipados com roupeiros. Ambos os quartos têm Ar Condicionado. Apesar de se tratar de um R/C alto, dado o desnível do terreno, os quartos e a varanda estão ao nível de um 1º andar. A pouco mais de 1km do Centro de Alverca, a zona (Bom Sucesso, Alverca) é bastante tranquila, com comércio e serviços de proximidade (Continente Bom Dia a 400m), Farmácia, Finanças, Transportes Públicos (autocarro à porta, estação de comboio a 1.900m). ÁREAS:- PLANTA Sala Comum - 18,00 m2 Cozinha - 20,00 m2 Despensa - 1,00 m2 Hall de Entrada com Roupeiro - 10,17 m2 Casa de Banho - 6,00 m2 Quarto 1 com Roupeiro - 11,40 m2 Quarto 2 - 14,10 m2 Varanda - Quartos - 5,30 m2 Área Útil medida - 86 m2 - CADERNETA PREDIAL Área Bruta Privativa - 88,00 m2 Área Bruta Dependente - 12,00 m2 Área Bruta Total - 100,00 m2 Entrada - 2 meses de renda e 2 de caução; Licença de utilização nº 73 de 1987 Contacte-nos para mais informações. Dispomos de vídeo, visita virtual 3D e, cumprindo todas as normas de segurança impostas, poderemos agendar uma visita por vídeochamada ou presencial. Nota: Imóvel angariado em regime de exclusividade, por isso partilhamos (50/50) o negócio com TODAS as agências imobiliárias! Licença de utilização: 73
AMI: 7183
Ref. Externa: KWPT-027020
Id: 1582432
Inicie sessão para guardar este imóvel e aceder à sua lista de favoritos em qualquer dispositivo.
5 Quartos
3 WCs
Área bruta : 317 m²
Localizada na Urbanização da Quinta dos Remédios, numa zona residencial tranquila e composta exclusivamente por moradias, esta moradia T5 para arrendamento oferece uma combinação rara de espaço, conforto e localização estratégica. Aqui vive-se com calma, sem perder a proximidade a Lisboa, Vila Franca de Xira e aos principais acessos rodoviários. A moradia é composta por 2 andares e cave, com uma distribuição funcional que privilegia a privacidade e o bem-estar familiar. A zona social destaca-se por: - Sala ampla com salamandra em ferro fundido de grande capacidade calorífica, com distribuição de calor para os quartos do piso superior; - Cozinha totalmente equipada, prática e funcional; - 2 quartos (que podem também ser utilizados como escritório, zona de refeições, etc.) - 1 WC. No piso superior, onde se localiza uma área mais privada, encontram-se 3 quartos, sendo um deles em suite, proporcionando maior conforto e independência e um WC. No total, a moradia dispõe de 3 casas de banho, incluindo a da suite, todas pensadas para responder às necessidades de uma família numerosa ou de quem valoriza espaço e funcionalidade. Para além da salamandra já referida, a moradia dispõe ainda de ar condicionado e aquecimento central com caldeira a gás natural, garantindo conforto térmico em todas as estações; A moradia ficará parcialmente mobilada, permitindo uma entrada imediata, mantendo margem para personalização. No exterior, a casa convida a usufruir dos seguintes espaços: - Garagem com capacidade para 3 viaturas; - Jardim privativo, com toldos de sombreamento, ideal para momentos ao ar livre; - 5 varandas, que asseguram excelente luminosidade natural e uma forte ligação ao exterior. A envolvente oferece comércio local, escolas e espaços verdes, reforçando o carácter prático e familiar da localização. Condições de arrendamento: 1 renda antecipada 2 rendas de caução Uma moradia pensada para aqueles que mais do que um arrendamento, procuram conforto, espaço e uma localização que acompanha o ritmo da vida, sem abdicar da tranquilidade. Licença de Utilização: Nº 77/14 Emitida pela Câmara Municipal de Vila Franca de Xira Licença de utilização: 77/14
AMI: 12518
Ref. Externa: KWPT-026400
Id: 1582429
Inicie sessão para guardar este imóvel e aceder à sua lista de favoritos em qualquer dispositivo.
2 Quartos
1 WCs
Área útil : 84 m²
Apresentamos este apartamento T2 para arrendamento,uma excelente opção para quem procura espaço, versatilidade e uma localizaçãocentral com bons acessos e serviços, beneficiando ainda de agradável vistario. Zona privada Dois quartos com acesso a varanda comum Casa de banho completa com banheira Zona social Sala ampla, com excelente luminosidade Possibilidade de criar uma área adicional, como escritório ou zona de trabalho Sala com marquise, acrescentando funcionalidade ao espaço Vista rio, que valoriza o ambiente e a vivência do imóvel Cozinha Cozinha remodelada Totalmente equipada com frigorífico, placa, forno, máquina de lavar roupa, micro-ondas e exaustor Despensa Mesa de cozinha branca com duas cadeiras e um banco Área de varanda aproveitada como extensão da cozinha, proporcionando maior espaço e praticidade Distribuição Hall de entrada espaçoso, com roupeiro embutido, ideal para arrumação adicional LocalizaçãoSituado na Avenida Professor Egas Moniz, na Póvoa de Santa Iria, oapartamento encontra-se numa zona com excelente oferta de comércio local,supermercados, serviços, escolas e restauração. Muito bem servida de transportespúblicos e com bons acessos rodoviários, permite deslocações rápidaspara Lisboa e arredores, combinando conveniência urbana com uma agradávelenvolvência e vista rio. CONDIÇOES: 2 RENDAS E 1 CAUÇÃO **ingles** We presentthis two-bedroom apartment for rent, an excellent option for thoseseeking space, versatility, and a central location with good access toservices, further enhanced by a pleasant river view. Private area Two bedrooms with access to a shared balcony Fully equipped bathroom with bathtub Living area Spacious living room with excellent natural light Possibility to create an additional area, such as a home office or workspace Living room with enclosed balcony (marquise), adding extra functionality River view, enhancing the overall living experience Kitchen Renovated kitchen Fully equipped with refrigerator, hob, oven, washing machine, microwave, and extractor fan Pantry White kitchen table with two chairs and one bench Balcony area integrated as an extension of the kitchen, providing additional space and practicality Layout Spacious entrance hall with built-in wardrobe, ideal for additional storage LocationLocated on Avenida Professor Egas Moniz, in Póvoa de Santa Iria, thisapartment benefits from a very convenient location, with a wide range oflocal shops, supermarkets, services, schools, and restaurants nearby.The area is well served by public transport and offers excellent roadaccess, allowing quick connections to Lisbon and surrounding areas, whilecombining urban convenience with a pleasant river view. ;ID RE/MAX: 123771269-2
AMI: 7772
Ref. Externa: 123771269-2
Id: 1582168
Inicie sessão para guardar este imóvel e aceder à sua lista de favoritos em qualquer dispositivo.
2 Quartos
1 WCs
Área bruta : 74 m²
Apartamento T2 para arrendamento, com 74 m² de área bruta, inserido em edifício em muito bom estado de conservação, em Vila Franca de Xira. Situado no 8.º andar, com dois elevadores, o apartamento destaca-se pela excelente luminosidade natural. Composição do imóvel: • Sala com 21 m² • Dois quartos com roupeiros (14 m² e 13 m²) • Casa de banho • Despensa • Cozinha equipada com placa de indução, forno, máquina de lavar roupa, exaustor e termoacumulador Localização: • Próximo das Piscinas Municipais • Perto do Intermarché • Bons acessos à A1, facilitando as deslocações para Lisboa e arredores Condições de arrendamento: • 2 meses de renda (mês de entrada + mês seguinte) • 2 meses de caução • Fiador • Comprovativos de capacidade financeira N.º de Autorização: 99 de 1976/02/19 Disponível para visitas. Licença de utilização: 99
AMI: 7183
Ref. Externa: KWPT-027128
Id: 1580436
Inicie sessão para guardar este imóvel e aceder à sua lista de favoritos em qualquer dispositivo.
1 Quartos
1 WCs
Área bruta : 64 m²
Apartamento T1 em Vila Franca de Xira, para arrendamento! Interior: - Localizado num 3º andar em prédio com elevador. Cozinha: - Equipada com forno, microondas, fogão, exaustor e esquentador; - Área de 9,80 m2. Sala: - Divisão ampla; - Área de 26,75 m2. Quarto: - Roupeiro embutido; - Área de 11,90 m2. Casa de Banho: - Equipada com banheira; - Área de 3,50 m2. Pontos de Interesse: - a menos de 1 minuto da Farmácia; - a 1 minuto do Hospital de Vila Franca de Xira; - a 1 minuto do Jardim de Infância de Povos; - a 2 minutos da Entrada da Autoestrada; - a 4 minutos da Piscina Municipal de Vila Franca de Xira; - a 5 minutos da Escola Dr. Vasco Moniz; - a 5 minutos da Estação de Comboios de Vila Franca de Xira. Autorização de utilização nº 118/08 de 02 de outubro de 2008, pela Câmara Municipal. Porquê comprar com a UNU Rede Imobiliária? Porque a UNU tem para lhe oferecer o melhor serviço no momento de vender, comprar ou arrendar casa! Integridade, credibilidade e profissionalismo As agências imobiliárias UNU pautam o seu trabalho por estas 3 premissas. Desta forma, asseguramos a todos os nossos clientes um serviço de excelência, altamente personalizado. Acreditamos que o momento de comprar casa tem de ser um momento prazeroso e por isso, estamos aqui para lhe oferecer o melhor serviço! Consultores Imobiliários profissionais e experientes A UNU Rede Imobiliária, acredita que é ao investir na formação dos seus consultores imobiliários que consegue prestar um serviço de excelência. Por isso, proporcionamos a melhor formação e os sistemas mais sofisticados no mercado para que os nossos consultores imobiliários se concentrem no que é mais importante: os nossos Clientes! Vasta carteira de imóveis As agências imobiliárias UNU têm a vantagem de ter uma visão única sobre o mercado imobiliário. Todos os dias novas oportunidades de negócio para vender, comprar ou arrendar casa são registadas no portal imobiliário UNU. Os nossos consultores imobiliários realizam diversos estudos de mercado todos os meses, com um conhecimento profundo do mercado imobiliário onde operam, para o/a poder aconselhar. Partilha para vender mais rápido Na UNU Rede Imobiliária trabalhamos em regime de partilha por isso, ao trabalhar connosco, conta com a garantia de que procuraremos em toda a oferta do mercado o seu imóvel ideal. 100% nacional A UNU é uma rede imobiliária 100% nacional que marca a diferença no atrativo mercado imobiliário em Portugal, e cuja posição no mercado é conquistada diariamente, pela sua diferenciação de serviço, compromisso com os clientes e cultura marcadamente nacional. UNU Rede Imobiliária O melhor serviço imobiliário para quem quer comprar casa, vender casa ou arrendar casa. unu.pt
AMI: 19143
Ref. Externa: UNU.I.1219.19143
Id: 1580252
Inicie sessão para guardar este imóvel e aceder à sua lista de favoritos em qualquer dispositivo.
3 Quartos
2 WCs
Área bruta : 97 m²
FAÇA CONNOSCO O MELHOR NEGÓCIO Disponível para arrendamento por 1 ano (contrato não renovável), este apartamento T3 é perfeito para famílias ou grupo de estudantes que procurem um espaço amplo, luminoso e bem localizado. Características principais: Tipologia: T3 com 2 casas de banho; Área bruta: 107 m²; Andar: 3º; Classe Energética: C; Cozinha semi - equipada e despensa; Vidros duplos, varanda e boa exposição solar; Roupeiro embutido. Zona calma e de fácil estacionamento. IIdeal para: Famílias à procura de conforto e tranquilidade; Estudantes (com possibilidade de partilha de quartos). Localização e acessos: Próximo de escolas, Intermarché, CTT, cafés e restaurantes; Transportes públicos e bons acessos à A1 e IC2; Apenas a 15 minutos de Lisboa. Condições de arrendamento: Renda mensal: 1.350 € Contrato: 1 ano (não renovável) Condições: 3 rendas (2 caução + 1 adiantada) Despesas não incluídas Apresentação de documentação comprovativa de rendimento Ajudamos com todo o processo! Entre em contacto connosco ou deixe-nos os seus dados e entraremos em contacto assim que possível! OR97980EW
AMI: 8989
Ref. Externa: OR97980EW
Id: 1580142
Inicie sessão para guardar este imóvel e aceder à sua lista de favoritos em qualquer dispositivo.
2 Quartos
Área bruta : 132 m²
Apartamento T2 para Arrendamento com estacionamento na Quinta da Piedade – 2.ª Fase | Póvoa de Santa IriaSituado na prestigiada 2.ª Fase da Quinta da Piedade, uma das zonas residenciais mais consolidadas e valorizadas da Póvoa de Santa Iria, a escassos minutos de Lisboa.Inserido numa urbanização de referência, o imóvel beneficia de uma localização excecional, rodeado por uma vasta oferta de comércio, serviços, escolas, ginásios, hipermercados, espaços verdes e jardins, incluindo uma zona de lazer com quinta pedagógica. Os transportes públicos encontram-se à porta, com autocarros na própria rua e a cerca de 1km da estação de comboios da Póvoa de Santa Iria, garantindo ligações rápidas e eficientes a Lisboa. Os acessos rodoviários são igualmente excelentes.O apartamento distingue-se pelas suas áreas generosas, excelente distribuição interior, aquecimento central, exposição solar privilegiada. Vidros duplos. A cozinha está totalmente equipada. 2 casas de banho, uma delas em suíte.Estacionamento e arrecadação no piso -1.Uma oportunidade rara de viver numa localização premium.Agende já a sua visita e descubra este espaço único.Para analisar o arrendamento, o proprietário pede:- 3 Últimos recibos de ordenado- último IRSDo Fiador os mesmos elementos, ou seja, os 3 últimos recibos de ordenado e o IRSÉ obrigatório fiador.No primeiro mês tem que fazer o pagamento de 2 mês + 1 mês de Caução (a ser devolvida no final do contrato caso o imóvel seja devolvido em bom estado)Contacte-nos para visitar.
AMI: 9412
Ref. Externa: 381511211
Id: 1577792
Inicie sessão para guardar este imóvel e aceder à sua lista de favoritos em qualquer dispositivo.
2 Quartos
2 WCs
Área útil : 75 m²
Se você está em busca de um novo lar que ofereça conforto, praticidade e localização privilegiada, este é o lugar ideal para você! Apresentamos este encantador apartamento T2 com garagem, situado na prestigiosa Quinta da Ómnia, em Alverca do Ribatejo. ? Características Principais ? ?️ 2 Quartos com Roupeiro Embutido: Um deles é uma suíte, proporcionando privacidade e comodidade para você e sua família. ? Sala com Varanda: Desfrute de momentos luminosos na sala com varanda, onde a luz natural se destaca, criando um ambiente acolhedor. ? Cozinha Equipada: A cozinha está completa com móveis planejados e equipada com micro-ondas, máquina de lavar roupa e louça, fogão, exaustor, forno e frigorífico. ? Estores Elétricos: Todos os cômodos estão equipados com estores elétricos, garantindo praticidade e controle de luminosidade. ? Garagem e Box: Além da garagem, este apartamento dispõe de uma box na garagem do prédio, oferecendo espaço adicional de armazenamento. ? Elevadores e Condomínio Organizado: O edifício conta com 2 elevadores para o seu conforto, além de um condomínio bem organizado. ? 4º Andar Tranquilo: Situado em um prédio tranquilo, este apartamento no 4º andar oferece uma vista agradável e uma atmosfera serena. ?️ Localização Privilegiada: Situado na cidade berço da aviação em Portugal, Alverca do Ribatejo, em um dos bairros mais prestigiados da cidade. ? Zona Envolvente Completa: Todos os serviços essenciais estão ao seu alcance, desde comércio, serviços, polícia e bombeiros até parques infantis, transportes públicos, supermercados, restaurantes, cafés, farmácias, bancos e mais. ? Acesso Fácil às Vias Principais: Apenas a 3 minutos de carro das entradas da A1, tanto no sentido Norte como no sentido Sul, e a 1 minuto da repartição das Finanças de Alverca. ? Condições de Arrendamento: 2 Rendas + 1 Caução Documentos de Identificação 3 Recibos de Vencimento IRS ? Exclusivo Casas na Hora: A CASAS NA HORA é uma marca especialista em negócios imobiliários e turísticos, oferecendo uma abordagem completa de 360º. Desde arrendamento tradicional e turístico até compra, venda e gestão de arrendamento, além de serviços adicionais como instalações, mudanças e certificação energética. ? Agende Sua Visita: Não perca a oportunidade de conhecer pessoalmente esse apartamento encantador. Entre em contato conosco e agende a sua visita! 933 201 996 Venha fazer deste apartamento o seu novo lar!
AMI: 17179
Ref. Externa: odivelas/A/00338
Id: 1576173
Inicie sessão para guardar este imóvel e aceder à sua lista de favoritos em qualquer dispositivo.
1 Quartos
Área bruta : 49 m²
Moradia T1 totalmente remodelada nas cachoeiras com um quarto , sala , cozinha e wc . Não perca esta oportunidade!
AMI: 23700
Ref. Externa: 66876-PRES60130
Id: 1575385
Inicie sessão para guardar este imóvel e aceder à sua lista de favoritos em qualquer dispositivo.
3 Quartos
0 WCs
Área útil : 83 m²
Apartamento T3 totalmente Remodelado e a estrear, localizado no centro do sobralinho. Ao nível do R/Chão, com 3 quartos, um deles em Suíte, com a cozinha semi equipada com Placa, Forno, Exaustor e Caldeira para aquecimento de àguas, e com uma boa exposição solar este apartamento apresenta-se como uma ótima solução para viver com a sua familía... A apenas 5 minutos da estação da CP de Alhandra e de Alverca e dos acessos à A1, marque já a sua visita... NOTA- O proprietário só analisa propostas de arrendamento mediante a apresentação do IRS e 3 últimos recibos de ordenado dos proponentes. Pagamento de 1 Renda + 2 Cauções no acto de assinatura do contrato. ___ Fully renovated and brand-new 3-bedroom apartment, located in the center of Sobralinho. Situated on the ground floor, it features 3 bedrooms, one of which is a suite, and a semi-equipped kitchen with hob, oven, extractor fan, and boiler for water heating. With excellent sun exposure, this apartment presents itself as an excellent solution for family living. Just 5 minutes from the Alhandra and Alverca CP train stations and with easy access to the A1 motorway, book your visit now. NOTE – The landlord will only consider rental applications upon presentation of the applicants’ IRS tax return and the last 3 payslips.Payment of 1 month’s rent + 2 security deposits is required at the time of contract signing. ___ Appartement T3 entièrement rénové et neuf, situé dans le centre de Sobralinho.Situé au rez-de-chaussée, il dispose de 3 chambres, dont une suite, ainsi que d’une cuisine semi-équipée avec plaque de cuisson, four, hotte aspirante et chaudière pour le chauffage de l’eau. Bénéficiant d’une bonne exposition solaire, cet appartement se présente comme une excellente solution pour vivre en famille. À seulement 5 minutes des gares CP d’Alhandra et d’Alverca, ainsi que des accès à l’autoroute A1, réservez votre visite dès maintenant. NOTE – Le propriétaire n’étudiera les propositions de location que sur présentation de la déclaration fiscale (IRS) et des 3 derniers bulletins de salaire des candidats.Paiement de 1 mois de loyer + 2 cautions au moment de la signature du contrat. ;ID RE/MAX: 123221026-911
AMI: 7772
Ref. Externa: 123221026-911
Id: 1567312
Inicie sessão para guardar este imóvel e aceder à sua lista de favoritos em qualquer dispositivo.
1 Quartos
1 WCs
Área útil : 69 m²
Apartamento T1 no Bom Retiro – 69,2 m² de área útil Bom apartamento T1 com 69,2 m² de área útil e 52,5m² de área bruta privativa, situado na zona do Bom Retiro, próximode comércio local, lojas, farmácias, restauração, jardim, escolas e transportespúblicos. O imóvel é composto por: Sala Cozinha equipada Casa de banho Quarto com marquise de 16 m² Localiza-se num 3.º andar sem elevador. Excelente opção para habitação própria ou investimento, numazona central e bem servida de serviços. ;ID RE/MAX: 120681159-275
AMI: 7772
Ref. Externa: 120681159-275
Id: 1567229
Inicie sessão para guardar este imóvel e aceder à sua lista de favoritos em qualquer dispositivo.
3 Quartos
2 WCs
Área útil : 102 m²
Viva no centro de tudo, com o Tejo aos seus pés. Este apartamento T3, totalmente remodelado, destaca-se pela sua localização premium e pela vista fantástica e direta sobre o Rio Tejo de todas as divisões. Destaques do Imóvel: *Totalmente renovado: Design moderno e pronto a habitar. *Espaço: 3 Quartos, 2 WC e despensa. *Cozinha: Totalmente equipada. *Conforto: Varandas fechadas que maximizam a área útil e a luminosidade. Localização Estratégica: Situado em zona central, está a poucos passos da Estação de Comboios, Aldi, Centro de Saúde, escolas e infantários. O equilíbrio perfeito entre a conveniência urbana e a tranquilidade da vista rio. Condições: Disponível para Arrendamento. Marque já a sua visita e garanta a sua nova casa! ----------------------------------------------------------------- Caso tenha intenções de vender a sua propriedade e adquirir outra, sinta-se à vontade para me contatar. Estou disponível para explicar todos os passos necessários para facilitar o processo. Estamos disponíveis para o ajudar a realizar sonhos, seja na compra ou na venda do seu imóvel. ;ID RE/MAX: 121981474-31
AMI: 7772
Ref. Externa: 121981474-31
Id: 1558197
Inicie sessão para guardar este imóvel e aceder à sua lista de favoritos em qualquer dispositivo.
1 Quartos
1 WCs
Área útil : 61 m²
Excelente Apartamento T1 para Arrendamento na Póvoa de Santa Iria – Localização Central e Conveniente Descubra o conforto e a praticidade de viver neste encantador apartamento T1, situado no coração da Póvoa de Santa Iria. Ideal para quem procura um lar acolhedor com fácil acesso a todas as comodidades essenciais. Características do Imóvel: * Quarto: Um quarto bem dimensionado, proporcionando um espaço privativo e confortável para descanso. * Cozinha: Funcional e equipada, com acesso a uma varanda que oferece um espaço adicional para lazer ou para desfrutar de uma refeição ao ar livre. * Sala de Estar: Uma sala luminosa e convidativa, perfeita para relaxar e receber visitas. * WC: Casa de banho completa e moderna. * Box (Cave): Beneficie de uma box privativa na cave, oferecendo um espaço seguro e conveniente para estacionamento e/ou arrumação extra. Localização Privilegiada: Este apartamento goza de uma localização central estratégica na Póvoa de Santa Iria, proporcionando um estilo de vida facilitado por: * Proximidade a Bens e Serviços: Desfrute da conveniência de ter ao seu alcance uma vasta gama de comércio local, serviços, restaurantes e cafés. * Excelente Acessibilidade: A poucos metros de distância encontra-se a estação de comboios, facilitando as suas deslocações para Lisboa e outras localidades. * Supermercados Próximos: Faça as suas compras de supermercado de forma rápida e cómoda, com várias opções a curta distância, nomeadamente o Aldi. Oportunidade de Arrendamento: Este imóvel representa uma excelente oportunidade para quem procura um apartamento T1 funcional, bem localizado e com a mais-valia de uma box privativa. Não perca esta oportunidade de viver no centro da Póvoa de Santa Iria com todas as comodidades ao seu alcance. Agende já a sua visita! ----------------------------------------------------------------- Caso tenha intenções de vender a sua propriedade e adquirir outra, sinta-se à vontade para me contatar. Estou disponível para explicar todos os passos necessários para facilitar o processo. Estamos disponíveis para o ajudar a realizar sonhos, seja na compra ou na venda do seu imóvel. ;ID RE/MAX: 121981474-30
AMI: 7772
Ref. Externa: 121981474-30
Id: 1558196
Inicie sessão para guardar este imóvel e aceder à sua lista de favoritos em qualquer dispositivo.
3 Quartos
2 WCs
Área útil : 88 m²
MORADIA T3 completamente remodelada, como nova, em Alverca do Ribatejo, no concelho de Vila Franca de Xira. OPEN HOUSE de apresentação do imóvel no próximo dia 17/01/2026, das 14:30 às 17:00. VISITAS APENAS NO OPEN HOUSE. É conveniente o agendamento de horário específico de visita para usufruir de um atendimento personalizado. Apresentação de propostas de arrendamento até ao dia 19/01/2026, às 20:00. Esta Moradia T3, recentemente remodelada, oferece um equilíbrio perfeito entre privacidade e conveniência.Ideal para quem busca conforto e acessibilidade, a proximidade a eixos rodoviários, comércio, serviços, desporto, cultura e lazer confere-lhe uma localização com qualidade de vida superior. CARACTERÍSTICAS DO IMÓVEL: - Tipo: Moradia T3; - Orientação Solar: Norte/Sul; - Pisos: dois; - Frentes: duas; - Ano de Construção: 1998; - Área Bruta Privativa: 80 m²; - Área Bruta Dependente: 34 m2. DISTRIBUIÇÃO: - Cozinha totalmente equipada, com placa, forno, exaustor, termo-acumulador, frigorífico, máquina de lavar louça e máquina de lavar roupa; - Três Quartos, dois deles com roupeiro; - Sala com vista magnífica sobre Alverca do Ribatejo e o Ro Tejo; - Despenseiro; - Duas Casas de Banho, uma delas com poliban. CARACTERÍSTICAS ADICIONAIS: - Caixilharia em PVC com vidro duplo, oscilo-batente; - Janelas com Estores eléctricos; - Ar Condicionado na Sala e na Suite com controlo remoto através de aplicação móvel; - Soalho flutuante no hall, quartos e sala e chão de mosaico de alta qualidade na cozinha e casas de banho; PROXIMIDADE: - A 15 minutos de automóvel de Lisboa, com fácil acesso à N10, A1, A9, 2ª Circular, CRIL e Ponte Vasco da Gama e muito próximo do Aeroporto Humberto Delgado e doParque das Nações; - A três minutos a pé do centro de Alverca do Ribatejo, do Mercado e de todo o tipo de comércio local, restauração e de serviços e a dois minutos de automóvel de grandes superfícies comerciais como o LIDL, PINGO DOCE, CONTINENTE, AUDI, AUCHAN e MERCADONA e do ALVERCA PARK e do SALINAS PARK. - Zona calma e tranquila, com estacionamento fácil. Não perca esta excelente oportunidade e dê a si próprio a possibilidade de conhecer este magnífico imóvel! CONDIÇÕES DO ARRENDAMENTO: -Não são permitidos animais de estimação; -Não será permitido o sub-arrendamento do imóvel ou de parte do imóvel; -As despesas com o fornecimento de água, luz, gás, internet, televisão serão darsponsabilidade do inquilino; -Pagamento de um mês de renda e um mês de caução. -Solicitamos a apresentação da seguinte documentação: -3 últimos recibos de vencimento; -Declaração de IRS do ano de 2024; -Declaração de efetividade ou Contrato de Trabalho. Casoseja necessário apresentar fiador(es), será requisitada a mesma documentação. Localização: https://maps.app.goo.gl/CfpH7sXo5a8dwrD37 Conhece alguém que precise de venderalgum imóvel? Eu tenho a solução! Se conhece alguém que esteja aconsiderar adquirir alguma casa mas necessita vender algum imóvel primeiro,estou disponível para ajudá-lo em cada passo do processo. Com a minhaexperiência no mercado imobiliário e um profundo entendimento das transaçõesimobiliárias, posso assegurar uma venda rápida e eficiente do imóvel inicial,permitindo-lhe garantir o investimento no imóvel seguinte. PORQUÊ ESCOLHER-ME COMO O SEU CONSULTOR IMOBILIÁRIO? - Especialização: históricocomprovado de promoção de imóveis e de vendas imobiliárias bem-sucedidas; - Dedicação: estoucomprometido em promover os imóveis dos meus clientes, garantindo um SERVIÇO DE EXCELÊNCIA, paraalcançar uma venda rápida e com os melhores resultados; - Serviço Personalizado: estratégiaspersonalizadas para atender ao que necessita e prazos específicos de vendaimobiliária, sem incómodo nem preocupações para o cliente. PRECISA DEFINANCIAMENTO? Além de ajudá-lo na venda do seu imóvel atual, tambémofereço apoio em todo o processo de financiamento. Tenho o apoio da MAXFINANCEe poderemos encontrar as melhores condições de crédito para que o seuinvestimento se torne uma realidade. Desde a escolha da melhor opção definanciamento até ao acompanhamento de todo o processo, estamos aqui paraassegurar que tudo corra da forma mais simples e eficiente possível. Permita-me gerir a promoção e vendado imóvel atual, enquanto o seu amigo/familiar se concentra em planear o seunovo lar, local de negócio ou investimento imobiliário. A excelência do SERVIÇOAO CLIENTE é a minha única prioridade. ;ID RE/MAX: 121981288-160
AMI: 7772
Ref. Externa: 121981288-160
Id: 1555574
Inicie sessão para guardar este imóvel e aceder à sua lista de favoritos em qualquer dispositivo.
3 Quartos
2 WCs
Área útil : 125 m²
Com 125 m² de área útil distribuídos de forma funcional, este T3 na Quinta da Flamenga, Vialonga, é uma solução prática para famílias que valorizam espaço, organização e acessos rápidos ao que é essencial no dia a dia. Com áreas generosas e em ótimo estado de conservação, 3 quartos, sendo um deles suite, sala com janela panorâmica, cozinha semi-equipada, wc completo de apoio aos quartos e zona social. O prédio tem elevador, o que torna o acesso mais cómodo para todas as idades. Com 154 m² de área total e um arrendamento mensal de 1300€, este imóvel oferece uma relação equilibrada entre conforto, funcionalidade e localização. Requisito: Agendamento de visitas possível, através de preenchimento de formulário. Para receber o formulário basta ligar-me ou solicitar por mensagem. ;ID RE/MAX: 121981260-244
AMI: 7772
Ref. Externa: 121981260-244
Id: 1552198
Inicie sessão para guardar este imóvel e aceder à sua lista de favoritos em qualquer dispositivo.
2 Quartos
1 WCs
Área útil : 60 m²
Arrendamento – T2 em Alverca Arrenda-se apartamento T2 em Alverca, bem localizado, com bons acessos e proximidade a comércio e serviços. Documentação necessária: • 3 últimos recibos de vencimento • Declaração de IRS • Declaração de efetividade (ou contrato de trabalho) • Fiadores (com a mesma documentação) Condições de arrendamento: • 2 cauções + 1 renda • Despesas a cargo do inquilino (água, luz, gás, internet, etc.) Sobre o imóvel: • Casa não equipada nem mobilada • Apenas com fogão e forno • Arrendada no estado em que se encontra, conforme fotografias Para mais informações ou agendamento de visita, entre em contacto. ;ID RE/MAX: 121981533-14
AMI: 7772
Ref. Externa: 121981533-14
Id: 1546564
Inicie sessão para guardar este imóvel e aceder à sua lista de favoritos em qualquer dispositivo.
4 Quartos
3 WCs
Área útil : 322 m²
Moradia T4 para Arrendamento: Apresentamos esta moradia geminada nova, situada numa zona tranquila e verdejante, a 10 minutos do Parque das nações. Uma propriedade que alia conforto, design contemporâneo e conveniência, localizada a apenas 17 minutos de carro do centro de Lisboa. Esta Moradia dispõe de 4 quartos amplos com roupeiro embutido (1 dos quais é uma suite com closet) A moradia encontra-se parcialmente mobilada, com mobília simples e eletrodomésticos incluídos, como máquina de lavar e secar roupa, permitindo uma mudança imediata. Principais Destaques • Localização privilegiada e conveniente: A apenas 3 minutos a pé de dois grandes supermercados, inserida num ambiente calmo, seguro e familiar. • Design moderno e acabamentos de qualidade: Espaços amplos, luminosos e bem distribuídos, com arquitetura contemporânea e acabamentos de elevada qualidade. • Excelente acessibilidade: Paragem de autocarro a poucos metros, com ligação direta à Estação do Oriente e ao Campo Grande. Fácil acesso a comboios, A1 Norte, CREL e ao centro de Lisboa. • Espaços exteriores e luz natural: Terraço amplo e soalheiro ao longo da moradia. Todos os quartos dispõem de varanda, garantindo excelente luminosidade natural. • Duas entradas independentes: Entrada principal direta para a zona social e acesso subterrâneo através da garagem, oferecendo maior comodidade e privacidade. Localização Ideal • 350 m de dois grandes supermercados • 550 m de outros dois supermercados • 350 m de seis linhas de autocarro • 800 m da estação de comboios • Próxima de bancos, escolas e todos os serviços essenciais Uma Oportunidade Única Ideal para quem procura uma moradia moderna, bem localizada, com excelentes acessibilidades, infraestrutura de qualidade e proximidade à cidade, sem abdicar de tranquilidade. Agende a sua visita e descubra a casa perfeita para si e para a sua família. *As visitas serão no dia 27/12, mediante agendamento* Condições para arrendamento: 3 cauções e 1 renda ;ID RE/MAX: 126701081-8
AMI: 7772
Ref. Externa: 126701081-8
Id: 1529576
Inicie sessão para guardar este imóvel e aceder à sua lista de favoritos em qualquer dispositivo.
3 Quartos
2 WCs
Área bruta : 143 m²
Apartamento T3 com boa exposição solar, inserido na conceituada Urbanização da Malvarosa, uma zona residencial de referência, servida por uma vasta oferta de comércio, serviços, escolas e espaços de lazer e desporto. Beneficia ainda de excelentes acessos rodoviários. O imóvel distingue-se pela boa qualidade de construção e dos equipamentos, proporcionando conforto e funcionalidade. A cozinha encontra-se totalmente equipada, dispondo de placa, forno, micro-ondas, combinado e exaustor. Destaca-se a ampla varanda com churrasqueira, ideal para momentos de lazer e convívio ao ar livre. Uma excelente opção para quem procura arrendar um apartamento com qualidade, localização privilegiada e boas áreas. Box para 2 carros. Licença de utilização: 32
AMI: 695
Ref. Externa: 13469
Id: 1456362
Inicie sessão para guardar este imóvel e aceder à sua lista de favoritos em qualquer dispositivo.
2 Quartos
2 WCs
Área bruta : 160 m²
Apartamento T2, com lugar de estacionamento, para arrendar em Vila Franca de Xira! Interior: - Localizado num 1º andar em prédio com elevador; - 144 m2 de área bruta privativa; - Lugar de estacionamento; - Arrecadação. Cozinha: - Equipada com forno, microondas, placa, exaustor, esquentador, máquina de lavar-loiça e máquina de lavar-roupa; - Área de 12,38 m2. Sala: - Divisão ampla, com muita luminosidade; - Área de 35,70 m2. Quartos: - Ambos com roupeiro embutido; - Um com 15,23 m2 e outro com 23,81 m2. Casas de Banho: - Uma delas equipada com banheira e toalheiros aquecidos; - Uma delas equipada com base de duche e toalheiros aquecidos. Pontos de Interesse: - a 1 minuto do Banco CTT; - a 1 minuto da Câmara Municipal de Vila Franca de Xira; - a 2 minutos da Loja do Munícipe; - a 2 minutos do Mercado Municipal de Vila Franca de Xira; - a 3 minutos do Agrupamento de Escolas Professor Reynaldo dos Santos; - a 4 minutos da Escola Básica Dr. Vasco Moniz; - a 9 minutos da Estação de Comboios de Vila Franca de Xira. Autorização de utilização nº 116 de 12 de Dezembro de 2011, pela Câmara Municipal. NOTA: entrada a 1 de Dezembro de 2025. Porquê comprar com a UNU Rede Imobiliária? Porque a UNU tem para lhe oferecer o melhor serviço no momento de vender, comprar ou arrendar casa! Integridade, credibilidade e profissionalismo As agências imobiliárias UNU pautam o seu trabalho por estas 3 premissas. Desta forma, asseguramos a todos os nossos clientes um serviço de excelência, altamente personalizado. Acreditamos que o momento de comprar casa tem de ser um momento prazeroso e por isso, estamos aqui para lhe oferecer o melhor serviço! Consultores Imobiliários profissionais e experientes A UNU Rede Imobiliária, acredita que é ao investir na formação dos seus consultores imobiliários que consegue prestar um serviço de excelência. Por isso, proporcionamos a melhor formação e os sistemas mais sofisticados no mercado para que os nossos consultores imobiliários se concentrem no que é mais importante: os nossos Clientes! Vasta carteira de imóveis As agências imobiliárias UNU têm a vantagem de ter uma visão única sobre o mercado imobiliário. Todos os dias novas oportunidades de negócio para vender, comprar ou arrendar casa são registadas no portal imobiliário UNU. Os nossos consultores imobiliários realizam diversos estudos de mercado todos os meses, com um conhecimento profundo do mercado imobiliário onde operam, para o/a poder aconselhar. Partilha para vender mais rápido Na UNU Rede Imobiliária trabalhamos em regime de partilha por isso, ao trabalhar connosco, conta com a garantia de que procuraremos em toda a oferta do mercado o seu imóvel ideal. 100% nacional A UNU é uma rede imobiliária 100% nacional que marca a diferença no atrativo mercado imobiliário em Portugal, e cuja posição no mercado é conquistada diariamente, pela sua diferenciação de serviço, compromisso com os clientes e cultura marcadamente nacional. UNU Rede Imobiliária O melhor serviço imobiliário para quem quer comprar casa, vender casa ou arrendar casa. unu.pt
AMI: 19143
Ref. Externa: UNU.I.1207.19143
Id: 1417931
Inicie sessão para guardar este imóvel e aceder à sua lista de favoritos em qualquer dispositivo.
2 Quartos
1 WCs
Área bruta : 222 m²
T2 para Arrendamento – Solar do Morgado, Póvoa de SantaIria Condomínio de excelência com piscina, ginásio, sauna e segurança 24h Descubra este fantástico apartamento T2 inserido noprestigiado e exclusivo condomínio fechado Solar dos Morgados, na Póvoade Santa Iria. Com áreas generosas , acabamentos modernos e uma vistadeslumbrante, esta é a casa ideal para quem procura conforto, espaço equalidade de vida num ambiente seguro e tranquilo. Características do imóvel: Área Total - 222m2 2 Quartos, sendo um em suite, ambos com vista para o rio; 2 Casas de banho modernas; Sala espaçosa com 50m², perfeita para criar zonas distintas de estar e jantar; Cozinha com 20m², equipada e com lavandaria independente; Terraço com 33m², com churrasqueira e vista direta para a piscina do condomínio; Box privada para 2 viaturas, com acesso direto ao interior do prédio. Ar condicionado em todas as divisões Condomínio: Condomínio fechado, com segurança e vigilância 24h; Piscina exterior; Ginásio equipado; Sauna de uso exclusivo dos residentes; Áreas comuns ajardinadas e bem cuidadas. Localização e acessos: Situado numa zona tranquila e residencial da Póvoa de SantaIria, com excelentes acessos a Lisboa: Acesso rápido à A1 e IC2; A poucos minutos da Estação de Comboios da Póvoa de Santa Iria, com ligação direta à Gare do Oriente (cerca de 20 minutos de viagem); Transportes públicos regulares nas proximidades; Próximo de escolas, supermercados, farmácias e todo o tipo de comércio e serviços. Ideal para quem valoriza segurança, conforto, qualidadede vida e a proximidade à cidade de Lisboa. Condições 2 rendas e 2 cauções Não perca estaoportunidade — agende já a sua visita! ;ID RE/MAX: 120261638-75
AMI: 7772
Ref. Externa: 120261638-75
Id: 1387935
Inicie sessão para guardar este imóvel e aceder à sua lista de favoritos em qualquer dispositivo.
Estes agentes são especialistas nesta zona:
Inicie sessão para ocultar este imóvel das suas pesquisas e manter a sua lista de resultados organizada.
Guardar favoritos
Este imóvel foi guardados nos seus favoritos com sucesso.
Para poder guardar pesquisa deverá ter a sua sessão iniciada.
Caso não tenha uma conta, deverá criar uma.
A sua pesquisa foi guardada com sucesso!
© Copyright 2023 | CASACERTA. All rights reserved
Este site utiliza cookies. Ao navegar no site estará a consentir a sua utilização.
Para mais informações sobre os cookies pode consultar a
política de privacidade.