Lista
Comprar
Arrendar
Área bruta : 212 m²
Escritório para arrendamento com 212 m2 de área bruta privativa, localizado no edifício Fabric, na Travessa Sá e Melo, na Maia, Porto. Inserido num edifício composto por vários espaços de trabalho modernos resultantes da conversão de uma antiga fábrica têxtil, o Fabric oferece um ambiente que une a criatividade e a tecnologia. O escritório é entregue em CAT-A, equipado com pavimento técnico sobreelevado, sistema de ar condicionado e conta com instalações sanitárias privativas, copa, terraço exterior, serviço de segurança e estacionamento (já incluído no valor da renda). Ao valor da renda acrescem ainda custos de condomínio e IVA. A sua localização beneficia de uma vasta gama de serviços nas imediações e de excelentes acessibilidades através da Via Norte, A4 e A41. Está a 5 minutos driving distance do centro da cidade da Maia, a 10 minutos do Aeroporto Francisco Sá Carneiro e a 15 minutos do centro do Porto. A Dils é uma das principais empresas de imobiliário na Europa, com sede em Milão, que lidera a transformação do setor através da inovação, digitalização e de uma forte visão centrada nas pessoas. Com uma equipa multidisciplinar e operações em Itália, Portugal, Espanha e Países Baixos, a Dils oferece serviços integrados em todos os segmentos incluindo escritórios, retalho, logística, hotelaria e residencial. Aliando conhecimento local a uma visão internacional, a Dils está a redefinir o papel dos consultores imobiliários, colocando a criatividade, a sustentabilidade e a tecnologia no centro de cada projeto. A empresa tem como compromisso gerar valor a longo prazo para clientes, comunidades e para o tecido urbano. Em Portugal, a Dils entrou no mercado em junho de 2024, através da aquisição da Castelhana. Atualmente, opera com uma equipa altamente experiente, liderada por Pedro Lancastre (CEO), Patrícia Barão (Partner, Área Residencial) e Fernando Ferreira (Partner, Área Comercial), com o objetivo de expandir a presença da marca e impulsionar a mudança nos segmentos residencial e comercial.
AMI: 3497
Ref. Externa: 36480
Id: 1682177
Inicie sessão para guardar este imóvel e aceder à sua lista de favoritos em qualquer dispositivo.
Área bruta : 15 m²
Gabinete para alugar na Venepor 250€ tudo incluído Local: Venepor (centro da Maia) em frente ao metro fórum Maia
AMI: 14839
Ref. Externa: gab_260203
Id: 1655578
Inicie sessão para guardar este imóvel e aceder à sua lista de favoritos em qualquer dispositivo.
Área bruta : 459 m²
Escritório para arrendamento com 459 m2 de área bruta privativa, localizado no edifício Fabric, na Travessa Sá e Melo, na Maia, Porto. Inserido num edifício composto por vários espaços de trabalho modernos resultantes da conversão de uma antiga fábrica têxtil, o Fabric oferece um ambiente que une a criatividade e a tecnologia. O escritório é entregue em CAT-A, equipado com pavimento técnico sobreelevado, sistema de ar condicionado e conta com instalações sanitárias privativas, copa, terraço exterior, serviço de segurança e estacionamento (já incluído no valor da renda). Ao valor da renda acrescem ainda custos de condomínio e IVA. A sua localização beneficia de uma vasta gama de serviços nas imediações e de excelentes acessibilidades através da Via Norte, A4 e A41. Está a 5 minutos driving distance do centro da cidade da Maia, a 10 minutos do Aeroporto Francisco Sá Carneiro e a 15 minutos do centro do Porto. A Dils é uma das principais empresas de imobiliário na Europa, com sede em Milão, que lidera a transformação do setor através da inovação, digitalização e de uma forte visão centrada nas pessoas. Com uma equipa multidisciplinar e operações em Itália, Portugal, Espanha e Países Baixos, a Dils oferece serviços integrados em todos os segmentos incluindo escritórios, retalho, logística, hotelaria e residencial. Aliando conhecimento local a uma visão internacional, a Dils está a redefinir o papel dos consultores imobiliários, colocando a criatividade, a sustentabilidade e a tecnologia no centro de cada projeto. A empresa tem como compromisso gerar valor a longo prazo para clientes, comunidades e para o tecido urbano. Em Portugal, a Dils entrou no mercado em junho de 2024, através da aquisição da Castelhana. Atualmente, opera com uma equipa altamente experiente, liderada por Pedro Lancastre (CEO), Patrícia Barão (Partner, Área Residencial) e Fernando Ferreira (Partner, Área Comercial), com o objetivo de expandir a presença da marca e impulsionar a mudança nos segmentos residencial e comercial.
AMI: 3497
Ref. Externa: 36479
Id: 1639014
Inicie sessão para guardar este imóvel e aceder à sua lista de favoritos em qualquer dispositivo.
Área bruta : 34 m²
Escritório para arrendamento com 34 m2 de área bruta privativa, localizado no edifício Fabric, na Travessa Sá e Melo, na Maia, Porto. Inserido num edifício composto por vários espaços de trabalho modernos resultantes da conversão de uma antiga fábrica têxtil, o Fabric oferece um ambiente que une a criatividade e a tecnologia. O escritório é entregue em CAT-A, equipado com pavimento técnico sobreelevado, sistema de ar condicionado e conta com instalações sanitárias privativas, copa, terraço exterior, serviço de segurança e estacionamento (já incluído no valor da renda). Ao valor da renda acrescem ainda custos de condomínio e IVA. A sua localização beneficia de uma vasta gama de serviços nas imediações e de excelentes acessibilidades através da Via Norte, A4 e A41. Está a 5 minutos driving distance do centro da cidade da Maia, a 10 minutos do Aeroporto Francisco Sá Carneiro e a 15 minutos do centro do Porto. A Dils é uma das principais empresas de imobiliário na Europa, com sede em Milão, que lidera a transformação do setor através da inovação, digitalização e de uma forte visão centrada nas pessoas. Com uma equipa multidisciplinar e operações em Itália, Portugal, Espanha e Países Baixos, a Dils oferece serviços integrados em todos os segmentos incluindo escritórios, retalho, logística, hotelaria e residencial. Aliando conhecimento local a uma visão internacional, a Dils está a redefinir o papel dos consultores imobiliários, colocando a criatividade, a sustentabilidade e a tecnologia no centro de cada projeto. A empresa tem como compromisso gerar valor a longo prazo para clientes, comunidades e para o tecido urbano. Em Portugal, a Dils entrou no mercado em junho de 2024, através da aquisição da Castelhana. Atualmente, opera com uma equipa altamente experiente, liderada por Pedro Lancastre (CEO), Patrícia Barão (Partner, Área Residencial) e Fernando Ferreira (Partner, Área Comercial), com o objetivo de expandir a presença da marca e impulsionar a mudança nos segmentos residencial e comercial.
AMI: 3497
Ref. Externa: 36481
Id: 1639013
Inicie sessão para guardar este imóvel e aceder à sua lista de favoritos em qualquer dispositivo.
Área bruta : 960 m²
Escritório para arrendamento com 960 m2 de área bruta privativa, localizado no edifício Fabric, na Travessa Sá e Melo, na Maia, Porto. Inserido num edifício composto por vários espaços de trabalho modernos resultantes da conversão de uma antiga fábrica têxtil, o Fabric oferece um ambiente que une a criatividade e a tecnologia. O escritório é entregue em CAT-A, equipado com pavimento técnico sobreelevado, sistema de ar condicionado e conta com instalações sanitárias privativas, copa, terraço exterior, serviço de segurança e estacionamento (já incluído no valor da renda). Ao valor da renda acrescem ainda custos de condomínio e IVA. A sua localização beneficia de uma vasta gama de serviços nas imediações e de excelentes acessibilidades através da Via Norte, A4 e A41. Está a 5 minutos driving distance do centro da cidade da Maia, a 10 minutos do Aeroporto Francisco Sá Carneiro e a 15 minutos do centro do Porto. A Dils é uma das principais empresas de imobiliário na Europa, com sede em Milão, que lidera a transformação do setor através da inovação, digitalização e de uma forte visão centrada nas pessoas. Com uma equipa multidisciplinar e operações em Itália, Portugal, Espanha e Países Baixos, a Dils oferece serviços integrados em todos os segmentos incluindo escritórios, retalho, logística, hotelaria e residencial. Aliando conhecimento local a uma visão internacional, a Dils está a redefinir o papel dos consultores imobiliários, colocando a criatividade, a sustentabilidade e a tecnologia no centro de cada projeto. A empresa tem como compromisso gerar valor a longo prazo para clientes, comunidades e para o tecido urbano. Em Portugal, a Dils entrou no mercado em junho de 2024, através da aquisição da Castelhana. Atualmente, opera com uma equipa altamente experiente, liderada por Pedro Lancastre (CEO), Patrícia Barão (Partner, Área Residencial) e Fernando Ferreira (Partner, Área Comercial), com o objetivo de expandir a presença da marca e impulsionar a mudança nos segmentos residencial e comercial.
AMI: 3497
Ref. Externa: 36478
Id: 1639012
Inicie sessão para guardar este imóvel e aceder à sua lista de favoritos em qualquer dispositivo.
Área útil : 681 m²
Escritórios Maia Centro, Junto ao Metro Ref interna 11794 Escritórios centro da Maia junto a estação do Metro com 681 m2 Características principais: prontos a ocupar, beneficiando de terem pavimento técnico, Ar condicionado, divisórias em vidro, teto falso, iluminação, rede elétrica e de dados), prontos a serem utilizados. Valor condomínio m2 / mês 0,70 EUR ( inclui segurança 24h, manutenção /limpeza de zonas comuns / wc`s e respetivos consumíveis). acesso a rede de transportes como o metro e autocarro junto a entrada do edifício, proximidade ao aeroporto e fácil acesso aos principais eixos rodoviários. . A ESCOLHA ACERTADA . A Escolha Acertada tendo como sócio - gerente Carlos Teixeira, com mais de 25 anos de experiência no mercado Imobiliário, dedica-se à compra, venda e arrendamento de Bens Imóveis. . Somos uma empresa devidamente Legalizada e com todos os requisitos legais assegurando a idoneidade a todos os nossos clientes, possuímos ainda um seguro de atividade protegendo assim todos os intervenientes de qualquer anomalia que possa surgir. . Abrangemos essencialmente os Concelhos do Porto, Matosinhos, Maia, Valongo, Gondomar e Vila do Conde . A Escolha Acertada tem como principio assegurar uma total clareza, transparência e satisfação aos seus intervenientes.
AMI: 5380
Ref. Externa: 11794
Id: 1413793
Inicie sessão para guardar este imóvel e aceder à sua lista de favoritos em qualquer dispositivo.
Área útil : 118 m²
Loja para arrendamento no centro da Maia – localização imbatível!Apresentamos esta excelente oportunidade de arrendamento no coração da cidade da Maia. Esta loja, com aproximadamente 120m², está situada numa zona extremamente central, ideal para comércio ou serviços.Com grande visibilidade e fácil acesso, encontra-se rodeada por todo o tipo de comodidades e infraestruturas: a poucos passos do metro, autocarros, bancos, serviços públicos, escolas e comércio local.A localização estratégica e o espaço amplo e versátil tornam este imóvel perfeito para concretizar o seu projeto de negócio, seja uma loja, clínica, gabinete, salão ou escritório.Principais vantagens: Área generosa e bem distribuída Grande montra para exposição Excelente luminosidade Acessos facilitados a transportes públicos Localização com elevado tráfego pedonal e automóvelNão perca esta oportunidade de estabelecer o seu negócio no centro da Maia!A Argumento Pertinente - Mediação Imobiliária esta implantada na Maia no norte de Portugal com os mais prestigiados profissionais. Prestamos serviços no ramo Imobiliário, facilitando a venda, aquisição, arrendamento ou outra necessidade. Sempre mantendo o profissionalismo, a nossa imobiliária segue em busca de novos desafios e está de portas abertas a novos clientes, amigos e para a realização de muitos sonhos!A nossa missão consiste em praticar um conceito de mediação imobiliária baseada na relação cliente empresa, consolidada pelo papel do consultor especialista e capaz de permitir a superação das expectativas de todos os intervenientes.Estamos vocacionados para a venda de casas, armazéns, escritórios, lojas e terrenos.Os nossos princípios de atuação é a competência, idoneidade, disponibilidade e confidencialidade.Forma de ação:Rigor e profissionalismoAngariação e mediação imobiliáriaEstudo do mercado e encontrar soluções adequadasAvaliações rigorosas Estudo pormenorizado.
AMI: 20740
Ref. Externa: CA5006A
Id: 1272593
Inicie sessão para guardar este imóvel e aceder à sua lista de favoritos em qualquer dispositivo.
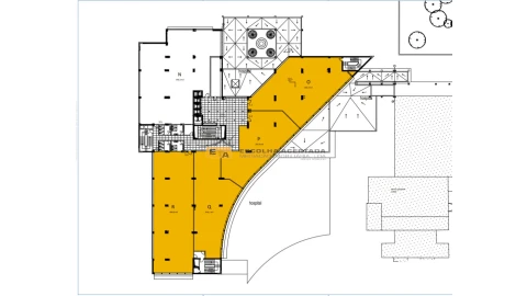
Área bruta : 445 m²
RO2571 Escritórios de excelência disponíveis para arrendamento no coração da Maia, junto à estação de metro 'Fórum Maia'. Ideal para empresas que procuram um ambiente profissional, funcional e bem localizado. Opções disponíveis: - 546,3 m² por €7.648/mês - 444 m² por €6.216/mês - 681,1 m² por €9.535/mês Todos os espaços incluem pavimento técnico, caixas de pavimento, ar condicionado, iluminação moderna, além de rede elétrica e de dados. Contacte-nos para mais informações e agendar uma visita! A Real Objectiva é uma empresa implantada no norte de Portugal, vocacionada para a venda e arrendamento de imóveis. Fruto dos seus 25 anos de trabalho, pautados pelo rigor e profissionalismo alcançou resultados reconhecidos pelo mercado em que se insere, atuando de forma transversal no mercado habitacional e no mercado industrial. Missão: Praticar um conceito de mediação imobiliária baseada na relação cliente/empresa consolidada pelo papel do consultor especialista e capaz de permitir a superação das expectativas de todos os intervenientes. Posicionamento: - Vendemos casas - Vendemos armazéns, escritórios, lojas e terrenos - Especialistas do mercado imobiliário Princípios de Atuação: - Competência - Confidencialidade - Idoneidade - Disponibilidade Modelos de Ação: - Rigor e profissionalismo - Especialistas na angariação e na mediação imobiliária - Estudamos o mercado e propomo-nos a encontrar soluções adequadas - Avaliações rigorosas e alvo de estudo pormenorizado - Cuidado extremo nas visitas
AMI: 3456
Ref. Externa: RO2571
Id: 1211796
Inicie sessão para guardar este imóvel e aceder à sua lista de favoritos em qualquer dispositivo.
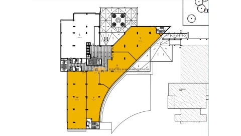
Área bruta : 682 m²
RO2571 Escritórios de excelência disponíveis para arrendamento no coração da Maia, junto à estação de metro 'Fórum Maia'. Ideal para empresas que procuram um ambiente profissional, funcional e bem localizado. Opções disponíveis: - 546,3 m² por €7.648/mês - 444 m² por €6.216/mês - 681,1 m² por €9.535/mês Todos os espaços incluem pavimento técnico, caixas de pavimento, ar condicionado, iluminação moderna, além de rede elétrica e de dados. Contacte-nos para mais informações e agendar uma visita! A Real Objectiva é uma empresa implantada no norte de Portugal, vocacionada para a venda e arrendamento de imóveis. Fruto dos seus 25 anos de trabalho, pautados pelo rigor e profissionalismo alcançou resultados reconhecidos pelo mercado em que se insere, atuando de forma transversal no mercado habitacional e no mercado industrial. Missão: Praticar um conceito de mediação imobiliária baseada na relação cliente/empresa consolidada pelo papel do consultor especialista e capaz de permitir a superação das expectativas de todos os intervenientes. Posicionamento: - Vendemos casas - Vendemos armazéns, escritórios, lojas e terrenos - Especialistas do mercado imobiliário Princípios de Atuação: - Competência - Confidencialidade - Idoneidade - Disponibilidade Modelos de Ação: - Rigor e profissionalismo - Especialistas na angariação e na mediação imobiliária - Estudamos o mercado e propomo-nos a encontrar soluções adequadas - Avaliações rigorosas e alvo de estudo pormenorizado - Cuidado extremo nas visitas
AMI: 3456
Ref. Externa: RO2571 (2)
Id: 1211797
Inicie sessão para guardar este imóvel e aceder à sua lista de favoritos em qualquer dispositivo.
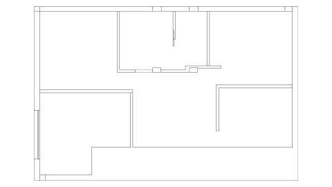
Área útil : 546 m²
Escritório com área útil de 546m2, pronto a ser utilizado, beneficiando de ter pavimento técnico, ar condicionado, divisórias em vidro, teto falso, iluminação , rede elétrica e de dados no pavimento, zonas técnicas e de lazer. Localizado no centro da cidade da Maia, beneficia da proximidade a todo tipo de serviços e comercio, proximidade ao aeroporto, e acessos aos principais eixos rodoviários, da área metropolitana do Porto. O condomínio inclui: Segurança 24h, manutenção /limpeza de zonas comuns / wcs e respectivos consumíveis). Agende já a sua visita.
AMI: 3102
Ref. Externa: 11-823
Id: 1200400
Inicie sessão para guardar este imóvel e aceder à sua lista de favoritos em qualquer dispositivo.
Área útil : 1441 m²
Escritório com área útil de 1441,00m2, pronto a ser utilizado, beneficiando de ter pavimento técnico, ar condicionado, divisórias em vidro, teto falso, iluminação , rede elétrica e de dados no pavimento, zonas técnicas e de lazer. Localizado no centro da cidade da Maia, beneficia da proximidade a todo tipo de serviços e comercio, proximidade ao aeroporto, e acessos aos principais eixos rodoviários, da área metropolitana do Porto. O condomínio inclui: Segurança 24h, manutenção /limpeza de zonas comuns / wcs e respectivos consumíveis). Agende já a sua visita.
AMI: 3102
Ref. Externa: 11-823B
Id: 1200363
Inicie sessão para guardar este imóvel e aceder à sua lista de favoritos em qualquer dispositivo.
Área útil : 444 m²
Escritório com área útil de 444,00m2, pronto a ser utilizado, beneficiando de ter pavimento técnico, ar condicionado, divisórias em vidro, teto falso, iluminação , rede elétrica e de dados no pavimento, zonas técnicas e de lazer. Localizado no centro da cidade da Maia, beneficia da proximidade a todo tipo de serviços e comercio, proximidade ao aeroporto, e acessos aos principais eixos rodoviários, da área metropolitana do Porto. O condomínio inclui: Segurança 24h, manutenção /limpeza de zonas comuns / wcs e respectivos consumíveis). Agende já a sua visita.
AMI: 3102
Ref. Externa: 11-823 A
Id: 1200362
Inicie sessão para guardar este imóvel e aceder à sua lista de favoritos em qualquer dispositivo.
1 WCs
Área útil : 60 m²
Escritorio para arrendar no Chantre cidade da Maia composto por 2 salas e WC Agua e Luz incluidos no preço
AMI: 7917
Ref. Externa: 807250212
Id: 1188249
Inicie sessão para guardar este imóvel e aceder à sua lista de favoritos em qualquer dispositivo.
Área bruta : 444 m²
Escritório localizado no Edifício-Pólo Serviços da Maia, junto à Camara Municipal da Maia. O projecto é uma referencia devido ás suas características e centralidade, com estação de metro/ rede de autocarros/Bus á entrada do edifício. Localizado bem no centro da cidade da Maia, beneficia da proximidade a todo tipo de serviços e comercio, proximidade ao aeroporto, e acessos aos principais eixos rodoviários, da área metropolitana do Porto. Localiza-se junto à Camara Municipal da Maia, e ao Forum da Maia, junto à estação de Metro cf já citado. Estão concentradas nesta área empresa de renome a nível nacional e internacional, entidades públicas e uma serie de PME´s de diversas actividades e sectores. Os escritórios a arrendar dispõem de algumas características a salientar: tecto falso, iluminação, rede eléctrica e de dados, pavimento técnico, caixas de pavimento, ar condicionado, gabinetes e salas de reuniões. Informação sobre os espaços disponíveis, valores de arrendamento e outras características: escritórios apenas disponíveis com as seguintes áreas: este de 444 m2 e um outro de 681m2 . - Valor arrendamento m2 / mês escritórios - 14€ / m2 - Valor estimado de condomínio m2 / mês - 0,70 € (inclui segurança 24h, manutenção /limpeza de zonas comuns / Wc´s e respectivos consumíveis). - O edifício possui um parque de estacionamento público, com avenças de estacionamento (avença de estacionamento público - 50€ mês) Caso necessite de mais alguma informação, ou agendamento de visita , estamos ao dispor. Refª. do Anúncio: IMO_669
AMI: 18786
Ref. Externa: IMO_669
Id: 800209
Inicie sessão para guardar este imóvel e aceder à sua lista de favoritos em qualquer dispositivo.
2 WCs
Área bruta : 456 m²
Identificação do imóvel: ZMPT554506Escritório situado na Rua de Terramonte, freguesia de cidade da Maia, Maia para arrendamento, apresentando-se como a solução ideal para a instalação de uma empresa.PRINCIPAIS CARACTERÍSTICAS:• Área total: 850m2• Integrado num parque empresarial com zonas verdes• Edifício com 2 pisos recebendo luz natural de nascente e poente.• Casa de banho com sanitário e lavatório.• Edifício em pedra renovado com aplicação de pavimento em soalho flutuante e paredes pintadas.• Teto com luz em todas as áreas• Ar condicionado• Usufrui da dinâmica gerada pela presença de vários industrias e escritórios na envolvente• Dispõe de áreas de estacionamento privadas à porta (6 lugares)APARTAMENTO T0:• Área total: 50m2• Integrado num parque empresarial com zonas verdes• Apartamento com luz natural de nascente e poente.• Casa de banho com sanitário, lavatório e banheira.• Cozinha de banho com sanitário e lavatório.• Sala com lareira e acesso a terraço.LOCALIZAÇÃO E ENVOLVENTE:• Situada numa antiga quinta, com zonas verdes e acesso direto ás margens do rio Leça• Na envolvente próxima, é possível encontrar supermercadosMATERIAIS E DETALHES TÉCNICOS:• Janela com caixilharia de pvc e vidro duplo• Pavimentos em soalho flutuante em todo o espaço, e cerâmico nas casas de banho.ELEMENTOS MATRICIAIS E LEGAIS:• Área bruta construção - 850,00 m2• Certificado energético - EPONTOS PRÓXIMOS E DISTÂNCIAS:• A 1400 m da A4• A 1500 m de estação de serviço / posto de combustível• A 250 m de paragem de autocarro STCP• A 650 m do supermercado Continente• A 1400 m do hipermercado Lidl• A 2,5 km do centro da Maia e sucursais de vários bancos - Millennium, Novo Banco, BPI, Santander• A 650 m do colégio CCG 2/3 de Rio Tinto (5 min. de carro)• A 1,4 km do Mosteiro Leça de BalioNota: para maior facilidade na identificação deste imóvel, por favor, refira o respetivo ID. Em caso de agendamento de visita, faça-se acompanhar de um documento de identificação.Muito obrigado! Palavras-chave Escritório Maia negócio arrendamento3 razões para comprar com a Zome+ acompanhamentoCom uma preparação e experiência única no mercado imobiliário, os consultores Zome põem toda a sua dedicação em dar-lhe o melhor acompanhamento, orientando-o com a máxima confiança, na direção certa das suas necessidades e ambições.Daqui para a frente, vamos criar uma relação próxima e escutar com atenção as suas expectativas, porque a nossa prioridade é a sua felicidade! Porque é importante que sinta que está acompanhado, e que estamos consigo sempre.+ simplesOs consultores Zome têm uma formação única no mercado, ancorada na partilha de experiência prática entre profissionais e fortalecida pelo conhecimento de neurociência aplicada que lhes permite simplificar e tornar mais eficaz a sua experiência imobiliária.Deixe para trás os pesadelos burocráticos porque na Zome encontra o apoio total de uma equipa experiente e multidisciplinar que lhe dá suporte prático em todos os aspetos fundamentais, para que a sua experiência imobiliária supere as expectativas.+ felizO nosso maior valor é entregar-lhe felicidade!Liberte-se de preocupações e ganhe o tempo de qualidade que necessita para se dedicar ao que lhe faz mais feliz.Agimos diariamente para trazer mais valor à sua vida com o aconselhamento fiável de que precisa para, juntos, conseguirmos atingir os melhores resultados.Com a Zome nunca vai estar perdido ou desacompanhado e encontrará algo que não tem preço: a sua máxima tranquilidade!É assim que se vai sentir ao longo de toda a experiência: Tranquilo, seguro, confortável e... FELIZ!Notas:1. Caso seja um consultor imobiliário, este imóvel está disponível para partilha de negócio. Não hesite em apresentar aos seus clientes compradores e fale connosco para agendar a sua visita.2. Para maior facilidade na identificação deste imóvel, por favor, refira o respetivo ID ZMPT ou o respetivo agente que lhe tenha enviado a sugestão.
AMI: 17432
Ref. Externa: ZMPT554506
Id: 470029
Inicie sessão para guardar este imóvel e aceder à sua lista de favoritos em qualquer dispositivo.
Área bruta : 444 m²
Escritórios disponíveis para arrendamento, no “ Edifício Pólo Serviços da Maia”!O projeto é uma referência devido á centralidade, acesso a rede de transportes (com estação de metro / rede de bus , junto á entrada do edifício) , proximidade ao aeroporto, e fácil acesso aos principais eixos rodoviários, da área metropolitana do Porto.Os escritórios estão prontos a ser utilizados, beneficiando de terem pavimento técnico, ar condicionado, divisórias em vidro , teto falso, iluminação , rede elétrica e de dados no pavimento, zonas técnicas e de lazer.·Áreas de escritórios disponíveis:- 873,60m2 no piso 0; - 1.441m2 no piso 3 (4 frações que estão interligadas);- 997,40m2 + 444 m2 no piso 4 (3 frações que estão interligadas+1 fração que está isolada).Total da áreas são de 3.756 m2.Condomínio inclui: segurança 24h, manutenção /limpeza de zonas comuns / wcs.MARQUE JÁ A SUA VISITA!Para mais informações e visitas:223720475/6 ou 916030716A Solução Casa é uma empresa do setor imobiliário que atua no mercado de Mediação e Vendas de Imóveis há mais de 25 anos.Com um padrão de seriedade na prestação de serviços imobiliários, procura realizar bons negócios com eficiência, proporcionando assim, tranquilidade aos seus clientes.Criada originalmente para vender imóveis residenciais, ao longo dos anos a Solução Casa tem ampliado a sua atuação para outros segmentos do mercado, incluindo imóveis comerciais, industriais e de lazer em todo o país.A nossa equipa de colaboradores é formada por profissionais experientes, com vasto conhecimento para sugerir as melhores alternativas. Além disso, dispomos de um sistema totalmente informatizado, o que permite uma maior agilidade na pesquisa e adequação do perfil do imóvel às solicitações do cliente.Apoiada pelo profissionalismo e seriedade, a Solução Casa está colocada entre as maiores imobiliárias do Porto - Vila Nova de Gaia. TODOS OS SERVIÇOS QUE DISPONIBILIZAMOS PARA GARANTIR UMA VENDA EFICAZ:- Aconselhamento Imobiliário;- Intermediação de Crédito: * Entidade autorizada pelo Banco de Portugal 001348; - Gabinete Jurídico;- Gabinete de Marketing e Publicidade.Prestamos um acompanhamento constante em todo o processo de compra ou venda do seu imóvel.MARQUE JÁ A SUA VISITA!
AMI: 7931
Ref. Externa: 7864
Id: 360021
Inicie sessão para guardar este imóvel e aceder à sua lista de favoritos em qualquer dispositivo.
Área útil : 444 m²
Escritórios centro da Maia junto a estação do Metro, Os escritórios estão inseridos no edifício situado em pleno Centro Cívico da Maia, prevê as seguintes valências: 2 Pisos de Estacionamento com Parque Publico; 1 Piso de Comércio; 6 Pisos de Serviços; Os 2 pisos abaixo do solo destinam-se a parque de estacionamento, com capacidade para 229 lugares e cada um possui a área de 4.245, 5m2; Características principais: prontos a ocupar, beneficiando de terem pavimento técnico, Ar condicionado, divisórias em vidro, teto falso, iluminação, rede elétrica e de dados), prontos a serem utilizados. Piso 0 - 873,60m2 Piso 3 - 1.441m2 Piso 4 - 997,40m2 e 444m2 Valor condomínio m2 / mês 0,70 EUR ( inclui segurança 24h, manutenção /limpeza de zonas comuns / wc`s e respetivos consumíveis). acesso a rede de transportes como o metro e autocarro junto a entrada do edifício, proximidade ao aeroporto e fácil acesso aos principais eixos rodoviários.
AMI: 5380
Ref. Externa: 10734
Id: 342368
Inicie sessão para guardar este imóvel e aceder à sua lista de favoritos em qualquer dispositivo.
Estes agentes são especialistas nesta zona:
Inicie sessão para ocultar este imóvel das suas pesquisas e manter a sua lista de resultados organizada.
© Copyright 2023 | CASACERTA. All rights reserved
Guardar favoritos
Este imóvel foi guardados nos seus favoritos com sucesso.
Para poder guardar pesquisa deverá ter a sua sessão iniciada.
Caso não tenha uma conta, deverá criar uma.
A sua pesquisa foi guardada com sucesso!
Este site utiliza cookies. Ao navegar no site estará a consentir a sua utilização.
Para mais informações sobre os cookies pode consultar a
política de privacidade.