Filtros
0 · 49 resultadosÁrea bruta : 36 m²
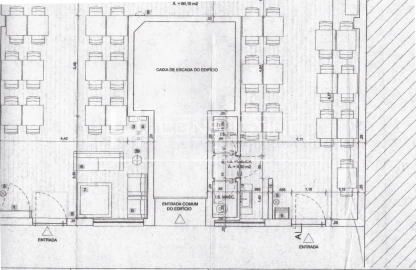
Loja em excelente estado de conservação, disponível para arrendamento no Centro Comercial das Palmeiras, em Oeiras. Localizada na praça principal, junto ao hall de entrada e no piso 0, esta loja destaca-se pela sua visibilidade excecional e pela forte circulação diária de pessoas, estando inserida na zona de maior movimento do shopping. Com 34 m² de área, o espaço é amplo e funcional, contando ainda com um gabinete independente e duas grandes montras, ideais para dar máxima exposição ao seu negócio e atrair clientes. Se procura um espaço comercial com localização estratégica, grande potencial de rentabilidade e excelente exposição, esta é a oportunidade certa para investir ou expandir o seu negócio. Agende já a sua visita e venha conhecer o potencial deste espaço comercial!
AMI: 9526
Ref. Externa: 6257/24-FS/TS (2)
Id: 1882795
Inicie sessão para guardar este imóvel e aceder à sua lista de favoritos em qualquer dispositivo.
1 WCs
Área bruta : 39 m²
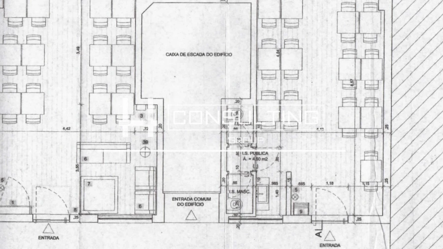
Espaço comercial para arrendar na Avenida Edmundo Lima Basto, em Nova Carnaxide. A 3 minutos do conhecido parque empresarial Parque Suécia e do inovador centro de negócios World Trade Center Lisboa. Localizado numa zona residencial tranquila, mas rodeada de empresas e infraestruturas de suporte, este imóvel encontra-se numa zona de bastante passagem, ao nível da rua, adequando-se a diversos tipos de atividades: de comércio, prestação de serviços, escritórios ou ateliers. Com montra e grade elétrica, classificação energética B-, dispõe de uma área total de 39 m² e área útil de 36,07 m², onde se inclui 1 casa de banho com uma pequena área de arrumos. ENVOLVENTE E ACESSIBILIDADES Muito próxima dos acessos à A5, CRIL e IC19, esta localização conta também com uma boa oferta de transportes públicos 'à porta', com ligações a Lisboa, Amadora, Algés, Queijas, Linda-a-Velha e, claro, ao centro de Carnaxide, através das redes Vimeca, Carris e Combus. Na proximidade, encontrará também toda uma panóplia de comércio e serviços: restauração, farmácias, supermercados, ginásios, hospital, escolas e espaços verdes. Informações Adicionais: 1. Licença de Utilização nº 253 de 24/06/2002. 2. Loja disponível para entrada imediata. 3. Duração do contrato: mínimo de 2 anos. 4. Condições de Arrendamento: pagamento de dois meses de renda + um mês de caução, a devolver no final do contrato, estando a loja nas mesmas condições do início do contrato. Para mais informações ou agendamento de visita, CONTATE-ME! Na Keller Williams Portugal acreditamos na partilha como forma de prestar o melhor serviço aos nossos clientes. Por isso, se é profissional do setor e tem um cliente comprador qualificado, contate-me! Partilhamos negócios com todas as imobiliárias e profissionais com licença AMI válida, em regime de 50% - 50%.
AMI: 12518
Ref. Externa: KWPT-031680
Id: 1882515
Inicie sessão para guardar este imóvel e aceder à sua lista de favoritos em qualquer dispositivo.
1 WCs
Área bruta : 39 m²
Espaço comercial para arrendar na Avenida Edmundo Lima Basto, em Nova Carnaxide. A 3 minutos do conhecido parque empresarial Parque Suécia e do inovador centro de negócios World Trade Center Lisboa. Localizado numa zona residencial tranquila, mas rodeada de empresas e infraestruturas de suporte, este imóvel encontra-se numa zona de bastante passagem, ao nível da rua, adequando-se a diversos tipos de atividades: de comércio, prestação de serviços, escritórios ou ateliers. Com montra e grade elétrica, classificação energética B-, dispõe de uma área total de 39 m² e área útil de 36,07 m², onde se inclui 1 casa de banho com uma pequena área de arrumos. ENVOLVENTE E ACESSIBILIDADES Muito próxima dos acessos à A5, CRIL e IC19, esta localização conta também com uma boa oferta de transportes públicos “à porta”, com ligações a Lisboa, Amadora, Algés, Queijas, Linda-a-Velha e, claro, ao centro de Carnaxide, através das redes Vimeca, Carris e Combus. Na proximidade, encontrará também toda uma panóplia de comércio e serviços: restauração, farmácias, supermercados, ginásios, hospital, escolas e espaços verdes. Informações Adicionais: 1. Licença de Utilização nº 253 de 24/06/2002. 2. Loja disponível para entrada imediata. 3. Duração do contrato: mínimo de 2 anos. 4. Condições de Arrendamento: pagamento de dois meses de renda + um mês de caução, a devolver no final do contrato, estando a loja nas mesmas condições do início do contrato. Para mais informações ou agendamento de visita, CONTATE-ME! Na Keller Williams Portugal acreditamos na partilha como forma de prestar o melhor serviço aos nossos clientes. Por isso, se é profissional do setor e tem um cliente comprador qualificado, contate-me! Partilhamos negócios com todas as imobiliárias e profissionais com licença AMI válida, em regime de 50% - 50%. Licença de utilização: 253/2002-06-24
AMI: 12518
Ref. Externa: KWPT-031680
Id: 1875475
Inicie sessão para guardar este imóvel e aceder à sua lista de favoritos em qualquer dispositivo.
Área bruta : 150 m²
Inserida no Taguspark, um dos principais polos empresariais e tecnológicos de Portugal, esta loja com 150 m² apresenta-se como uma excelente oportunidade para empresas que procuram localização estratégica, funcionalidade e enquadramento de prestígio. O espaço é versátil e encontra-se preparado para diversas atividades, como clínicas, escritórios, serviços especializados ou retalho. Dispõe de áreas privadas ideais para gabinetes ou consultórios, zonas técnicas para instalação de equipamentos ou servidores, pavimento técnico modular, preparação para copa, instalações sanitárias com acessibilidade, ar condicionado e serviços de apoio já assegurados. Beneficia ainda de estacionamento reservado, estacionamento gratuito no parque e acessos rápidos à A5 e IC19, garantindo excelente mobilidade. Envolvido por um ambiente empresarial dinâmico, com restauração, espaços verdes, serviços e proximidade ao Oeiras Golf, este ativo reúne todas as condições para o crescimento e afirmação de qualquer negócio. Uma oportunidade sólida para instalar ou expandir a sua empresa num dos locais mais valorizados de Oeiras. Para mais informações ou agendamento de visita, entre em contacto. Notas: (1) Ao valor acresce IVA à taxa legal em vigor de 23%; (2) Condomínio e serviços não incluídos no preço, entre em contacto para mais informação. (3) Informação verificada mas não vinculativa, não dispensa a consulta da equipa especializada. Licença nº 62 CM Oeiras (14‑fev‑2003) Licença de utilização: 64
AMI: 16720
Ref. Externa: KWPT-029571
Id: 1866296
Inicie sessão para guardar este imóvel e aceder à sua lista de favoritos em qualquer dispositivo.
2 WCs
Área útil : 155 m²
Localizada numa zona de prestigio em Miraflores, loja com 155 m2 e 3 lugares de estacionamento. Excelente localização. Oportunidade a não perder. Located in a prestigious area in Miraflores, shop with 155 m2 and 3 parking spaces. Excellent location. Opportunity not to be missed.
AMI: 8489
Ref. Externa: 4439
Id: 1791701
Inicie sessão para guardar este imóvel e aceder à sua lista de favoritos em qualquer dispositivo.
6 WCs
Área bruta : 200 m²
Espaço multifuncional em Linda a Velha, concelho de Oeiras para arrendamento. Destinado a serviços/escritório/comércio. 2 salas/espaços distintos: sala A com 126m2 sala B com 71m2. Área total: 197m2 Localizado na cave/piso-1, com wc. Muito bem localizado numa rua com bastante movimento em Linda-a-Velha. Estacionamento fácil, com parque de estacionamento junto ao imóvel. Trasportes publicos váriados e com algum fluxo diário. Bons acessos às vias rápidas e auto estrada. Venha conhecer, contacte-nos. Aguardamos por si.
AMI: 1283
Ref. Externa: NGI2026-0020
Id: 1788953
Inicie sessão para guardar este imóvel e aceder à sua lista de favoritos em qualquer dispositivo.
6 WCs
Área bruta : 71 m²
Espaço multifuncional em Linda a Velha, concelho de Oeiras para arrendamento. Destinado a serviços/escritório/comércio. 1 salas/espaço com 71m2 Localizado na cave/piso-1, com wc. Muito bem localizado numa rua com bastante movimento em Linda-a-Velha. Estacionamento fácil, com parque de estacionamento junto ao imóvel. Trasportes publicos váriados e com algum fluxo diário. Bons acessos às vias rápidas e auto estrada. Venha conhecer, contacte-nos. Aguardamos por si.
AMI: 1283
Ref. Externa: NGI2026-0020 (2) (2)
Id: 1788954
Inicie sessão para guardar este imóvel e aceder à sua lista de favoritos em qualquer dispositivo.
6 WCs
Área bruta : 126 m²
Espaço multifuncional em Linda a Velha, concelho de Oeiras para arrendamento. Destinado a serviços/escritório/comércio. 1 salasespaço com 126m2 Localizado na cave/piso-1. Muito bem localizado numa rua com bastante movimento em Linda-a-Velha. Estacionamento fácil, com parque de estacionamento junto ao imóvel. Trasportes publicos váriados e com algum fluxo diário. Bons acessos às vias rápidas e auto estrada. Venha conhecer, contacte-nos. Aguardamos por si.
AMI: 1283
Ref. Externa: NGI2026-0020 (2)
Id: 1788955
Inicie sessão para guardar este imóvel e aceder à sua lista de favoritos em qualquer dispositivo.
2 WCs
Área bruta : 84 m²
Loja, em plena Avenida D. João I, Oeiras, junto ao Tribunal Judicial (Palácio da Justiça) e à Escola Secundária Sebastião e Silva. Inserida num edifício de habitação e serviços, a fração localiza-se no R/C e conta com duas entradas independentes e, saída direta para a rua. Dispõe de uma área bruta privativa de 84,30 m² e 28,64 m² de área dependente, com frente envidraçada de 27 m², pé-direito de 3 metros e excelente luminosidade natural. Está equipada com ar condicionado, saída de fumos e oferece ainda a possibilidade de instalação de esplanada sem custos de licença camarária. Trata-se de um espaço versátil, ideal para comércio ou serviços, numa zona dinâmica e prestigiada de Oeiras, com proximidade a escolas, tribunal, comércio tradicional, serviços públicos, bancos, farmácias, ginásios, transportes (comboio e autocarros) e a poucos minutos da praia de Santo Amaro de Oeiras. Disponibilidade imediata
AMI: 22390
Ref. Externa: OSE25049.PC
Id: 1783893
Inicie sessão para guardar este imóvel e aceder à sua lista de favoritos em qualquer dispositivo.
1 WCs
Área bruta : 116 m²
Arrenda-se espaço comercial versátil situado na prestigiada Rua Marcelino Mesquita, inserido numa zona residencial e de serviços de grande dinamismo (Alto de Santa Catarina). A loja beneficia de uma localização privilegiada com vizinhança diversificada, incluindo o Centro de Escritórios de Linda-a-Velha, clínicas como a MediCatarina, pastelarias de referência como a Ana's Pastelaria e diversos serviços de estética e contabilidade. Dispõe de duas entradas independentes. Próximo dos principais acessos rodoviários (A5 e Marginal). Zona de fácil estacionamento na envolvente, facilitando o acesso a clientes. Ideal para escritórios ou consultórios, centro de estética, atelier ou showroom. Área: 116 m2 de área bruta privativa. Condições de Arrendamento: 2 rendas + 1 de caução Não perca a oportunidade de instalar o seu negócio numa das zonas mais movimentadas de Linda-a-Velha. Agende já a sua visita! ________________________________________________________________________________________ ______________________________________________________________________________________________ Commercial space for rent in Linda-a-Velha, a prestigious Rua Marcelino Mesquita, located in a dynamic residential and service area (Alto de Santa Catarina). The shop benefits from a privileged location with a diverse neighborhood, including the Linda-a-Velha Business Center, clinics such as MediCatarina, renowned pastry shops like Ana's Pastelaria, and various beauty and accounting services. It has two independent entrances. Close to the main road accesses (A5 and Marginal). Easy parking nearby, facilitating access for clients. Ideal for offices or consulting rooms, beauty center, studio or showroom. Area: 116 m2 of gross private area. Rental conditions: 2 rents + 1 deposit Don't miss the opportunity to establish your business in one of the busiest areas of Linda-a-Velha. Schedule your visit now!
AMI: 12233
Ref. Externa: UNU.I.1622.12233
Id: 1783495
Inicie sessão para guardar este imóvel e aceder à sua lista de favoritos em qualquer dispositivo.
Profissionais que conhecem esta zona a fundo — contacte-os para uma avaliação personalizada.
2 WCs
Área útil : 21 m²
Linda-a-Velha Escritórios inseridos em Centro Empresarial desde 21m2 e desde 350€ (despesas incluídas de luz, água e internet Sala 17m2 - 350€ Sala 21m2 - 450€ Sala 26m2 - 500€ Sala 27m2 - 520€ Sala 29m2 - 560€ Sala 30m2 - 550€ Sala 30m2 - 579€ Sala 57m2 - 1.100€ Acesso 24h/ dia Serviço de Recepção das 9h00 às 18h30 em dias úteis Serviço de Limpeza das salas 1x/ semana Internet Água e Luz Sistema de vigilância Espaço de Refeições com frigorífico, micro-ondas, mesa de refeições e lava loiça. Junto á Avenida D Pedro V, com transportes e todo o tipo de comércio à porta.
AMI: 16178
Ref. Externa: 160
Id: 1772080
Inicie sessão para guardar este imóvel e aceder à sua lista de favoritos em qualquer dispositivo.
2 WCs
Área bruta : 189 m²
Loja localizada no Empreendimento 'Quinta de Santo António', em Miraflores - Algés, com bons acessos, salientando-se nomeadamente a proximidade da CRIL e da AE 5, bem como da Avenida Marginal. A zona de Miraflores, além de zona residencial, é também um grande parque empresarial, com inúmeras empresas instaladas. 1 lugar de Estacionamento. Nota: No caso de Arrendamento, acresce o valor de Condomínio (136,58€). Contacte-nos já, para mais informações, RIOMAGIC!
AMI: 5494
Ref. Externa: 113.26
Id: 1751826
Inicie sessão para guardar este imóvel e aceder à sua lista de favoritos em qualquer dispositivo.
1 WCs
Área bruta : 78 m²
Situada numa localização de excelência em Algés, esta loja comercial beneficia de uma elevada visibilidade e acessibilidade, integrando-se na dinâmica zona de passagem entre a área nobre da localidade e o histórico Cinema 2000. A sua posição estratégica numa avenida central garante a proximidade a um diversificado leque de comércio e serviços, bem como a uma vasta rede de transportes públicos, assegurando ligações rápidas e eficientes a Lisboa e arredores. A estação de comboios de Algés encontra-se a escassos minutos, facilitando o acesso de clientes e colaboradores. O espaço interior, em formato open space, com 78 m2 apresenta um pé direito generoso, propício a acolher diversas tipologias de negócio. Duas amplas montras conferem ao imóvel uma luminosidade natural excecional e uma visibilidade de destaque para quem transita na via pública. Estas características, aliadas à área comercial de implantação, oferecem um potencial significativo para a criação de um ambiente de trabalho moderno e atrativo. Esta propriedade representa uma oportunidade de investimento particularmente interessante no mercado de arrendamento comercial. A contínua procura por espaços de negócio nesta zona de Algés, aliada às qualidades intrínsecas do imóvel, sugere um elevado potencial de rentabilidade a médio e longo prazo. Descubra o local ideal para concretizar os seus projetos empresariais. Entre em contacto connosco para agendar uma visita e explorar as vastas possibilidades que esta loja em Algés tem para oferecer ao seu futuro negócio.
AMI: 5222
Ref. Externa: LOJ 0273
Id: 1739523
Inicie sessão para guardar este imóvel e aceder à sua lista de favoritos em qualquer dispositivo.
1 WCs
Área bruta : 201 m²
Excelente oportunidade para instalar o seu negócio numa localização estratégica, no coração de Algés. Loja comercial com 210 m2 de área total e 175 m2 de área útil, distribuída por dois pisos (rés do chão e cave), com grande potencial de adaptação a diferentes tipos de atividade. O espaço encontra-se afeto exclusivamente a comércio e apresenta uma configuração versátil, podendo ser facilmente convertido em open space, conforme as necessidades do seu negócio. Características principais: Rés do chão com 43 m2 Cave ampla com 176 m2 Distribuição atual em 5 divisões (1 no rés do chão e 4 na cave) Mezzanine com sótão Zona de armazém/arquivo Montra com visibilidade para rua e zona pedonal 3 aparelhos de ar condicionado (1 no rés do chão e 2 na cave) Elevador interno (monta-cargas) Imóvel de 1976 Localizada numa zona de elevado fluxo pedonal, inserida no circuito comercial da baixa de Algés, com proximidade a transportes públicos (autocarros, elétrico e comboio), bem como a bancos, restauração e espaços culturais, como o emblemático Palácio dos Anjos, rodeado por áreas verdes de lazer. Nota: - Arrendamento efetuado sem equipamentos. - Não tem saída de fumos. Uma excelente oportunidade para desenvolver ou expandir o seu negócio numa zona consolidada e dinâmica. Marque já a sua visita!
AMI: 12689
Ref. Externa: LOJNS006.1
Id: 1736907
Inicie sessão para guardar este imóvel e aceder à sua lista de favoritos em qualquer dispositivo.
12.950 €
3 WCs
Área bruta : 1080 m²
Loja / Espaço Comercial em Open Space com Terraços, para Arrendamento, no Centro de Algés - Área Bruta Total: 1.080 m² - Área Bruta Coberta: 875 m² - Área Útil: 846 m² - Terraços: 190 m² - Piso: Térreo - Potência Elétrica Instalada: 132 kVA - Contrato: Arrendamento de longa duração Um espaço extraordinário em open space, ideal para comércio e/ou serviços, situado em pleno coração de Algés. Com grandes áreas, excelente visibilidade e total versatilidade, este imóvel oferece condições únicas para projetos de média ou grande dimensão. Características do Espaço: - Open space amplo e luminoso, com 875 m² de área bruta coberta. - 846 m² de área útil, permitindo máxima eficiência de layout. - 190 m² de terraços, acrescentando valor funcional e diferenciador ao espaço. - Todo o imóvel localizado ao nível do piso térreo, facilitando acessos, logística e circulação de clientes. - Potência elétrica instalada de 132 kVA, adequada a operações exigentes. Versatilidade e Configuração: - Possibilidade de autonomização das frações, permitindo adaptação a diferentes modelos de negócio ou ocupação faseada. - O espaço resulta da união de três frações independentes, com áreas de: - 327 m² - 197 m² - 353 m² de área bruta Localização Centro de Algés: - Zona central e consolidada, com elevado tráfego pedonal e rodoviário. - Excelente acessibilidade e proximidade a transportes públicos. - Envolvente comercial e de serviços muito ativa. Condições de Utilização: - Espaço indicado para retalho especializado, clínicas, escritórios, ginásios, showrooms, centros de formação ou serviços empresariais. - Atividades não permitidas: - Restauração - Cultos religiosos - Qualquer tipo de indústria Disponível apenas para contrato de arrendamento de longa duração. Agende já a sua visita e descubra este espaço único em Algés uma solução versátil e diferenciadora para negócios que valorizam localização, dimensão e flexibilidade. ---------- Alguma dúvida, não hesite em contactar-nos. NOTA: Fazemos parceria e partilha com todas as imobiliárias profissionais. ---- SOBRE A LT REAL ESTATE. Na LT Real Estate primamos pela DISCRIÇÃO, comprometemos-nos a trabalhar com EXCELÊNCIA e concedemos DISTINÇÃO. Fundada por Marisa Guedes e Bruno Queirós, a LT Real Estate foi criada com a intenção de consolidar-se como referência de excelência no seletíssimo Mercado de Residências Premium/Luxo e no sofisticado âmbito dos Investimentos. A exclusividade, celeridade e primor no atendimento são os alicerces mais preponderantes que fundamentam a essência da nossa marca. Na LT, a nossa dedicação é focada na sublime meta de criar relações duradouras e de máxima satisfação para o nosso cliente. 'A verdadeira essência do luxo revela-se em cada minucioso detalhe. Luxo não é um privilégio, é uma estratégia de negócios.' ---- ltrealestate.pt
AMI: 19915
Ref. Externa: BOT_2197
Id: 1683938
Inicie sessão para guardar este imóvel e aceder à sua lista de favoritos em qualquer dispositivo.
3 WCs
Área bruta : 77 m²
Apresentamos uma excelente oportunidade no coração de Linda-a-Velha. Este imóvel, com uma localização estratégica e décadas de atividade consolidada, é ideal para quem procura um espaço versátil para comércio ou serviços. Localização e Enquadramento Situado na Avenida 25 de Abril de 1974, o imóvel beneficia de uma visibilidade ímpar: Elevado Fluxo: Localizado numa das principais entradas de Linda-a-Velha, com milhares de viaturas a circular diariamente. Proximidade Estratégica: Junto a importantes centros de escritórios (como o Central Park), garantindo uma clientela corporativa constante. Acessos: Zona de fácil estacionamento e excelente rede de transportes. Características do Imóvel (Dados Técnicos) De acordo com a documentação oficial, este espaço (Fração Q) oferece: Área Útil: 76,00 Área Bruta Privativa: 68,60 m² de espaço útil. Área Bruta Dependente: 8,00 m². Configuração: Localizado no rés-do-chão, composto por uma divisão ampla e instalação sanitária. Afectação: Licenciado para Comércio. Edifício: Integrado num prédio de 6 pisos em regime de propriedade horizontal. Potencial de Negócio Com mais de 30 anos de história como um restaurante de referência na zona, o espaço está preparado para: Capacidade: 80 lugares (60 no interior e 20 na esplanada). Infraestrutura: Zonas distintas de confeção, lavagem, bar e áreas de armazenamento/frio, desenhadas para uma operação eficiente. Versatilidade: Embora com historial na restauração, a configuração ampla permite a adaptação a diversos conceitos de retalho ou serviços. Este é o imóvel ideal para quem procura segurança e centralidade num mercado dinâmico como o de Linda-a-Velha e Carnaxide. Acreditamos que a partilha é a forma de beneficiar todas as partes envolvidas, assim partilhamos qualquer transação no regime 50/50 com todas as agências que possuam Licença AMI válida. Para ter mais informações, contacte-nos através de e-mail, telefone/whattsapp ou nas plataformas digitais (nacionais e internacionais). A informação apresentada, embora precisa, está sujeita a confirmação e não vincula contratualmente. - Licença de utilização nº407 de 15 dedezembro de 1998 Keller Williams PT AMI 12518.
AMI: 12518
Ref. Externa: KWPT-027024
Id: 1673753
Inicie sessão para guardar este imóvel e aceder à sua lista de favoritos em qualquer dispositivo.
3 WCs
Área bruta : 76 m²
Apresentamos uma excelente oportunidade no coração de Linda-a-Velha. Este imóvel, com uma localização estratégica e décadas de atividade consolidada, é ideal para quem procura um espaço versátil para comércio ou serviços. Localização e Enquadramento Situado na Avenida 25 de Abril de 1974, o imóvel beneficia de uma visibilidade ímpar: Elevado Fluxo: Localizado numa das principais entradas de Linda-a-Velha, com milhares de viaturas a circular diariamente. Proximidade Estratégica: Junto a importantes centros de escritórios (como o Central Park), garantindo uma clientela corporativa constante. Acessos: Zona de fácil estacionamento e excelente rede de transportes. Características do Imóvel (Dados Técnicos) De acordo com a documentação oficial, este espaço (Fração Q) oferece: Área Útil: 76,00 Área Bruta Privativa: 68,60 m² de espaço útil. Área Bruta Dependente: 8,00 m². Configuração: Localizado no rés-do-chão, composto por uma divisão ampla e instalação sanitária. Afectação: Licenciado para Comércio. Edifício: Integrado num prédio de 6 pisos em regime de propriedade horizontal. Potencial de Negócio Com mais de 30 anos de história como um restaurante de referência na zona, o espaço está preparado para: Capacidade: 80 lugares (60 no interior e 20 na esplanada). Infraestrutura: Zonas distintas de confeção, lavagem, bar e áreas de armazenamento/frio, desenhadas para uma operação eficiente. Versatilidade: Embora com historial na restauração, a configuração ampla permite a adaptação a diversos conceitos de retalho ou serviços. Este é o imóvel ideal para quem procura segurança e centralidade num mercado dinâmico como o de Linda-a-Velha e Carnaxide. Acreditamos que a partilha é a forma de beneficiar todas as partes envolvidas, assim partilhamos qualquer transação no regime 50/50 com todas as agências que possuam Licença AMI válida. Para ter mais informações, contacte-nos através de e-mail, telefone/whattsapp ou nas plataformas digitais (nacionais e internacionais). A informação apresentada, embora precisa, está sujeita a confirmação e não vincula contratualmente. - Licença de utilização nº407 de 15 dedezembro de 1998 Keller Williams PT AMI 12518. Licença de utilização: nº407 de 15 dedezembro de 1998
AMI: 12518
Ref. Externa: KWPT-027024
Id: 1671752
Inicie sessão para guardar este imóvel e aceder à sua lista de favoritos em qualquer dispositivo.
1 WCs
Área bruta : 112 m²
Excelente oportunidade para quem procura visibilidade e conveniência em Oeiras! Com 112m², o espaço no Largo Henrique de Paiva Couceiro beneficia imenso do fluxo pedonal e da proximidade ao centro histórico. Este espaço cheio de luminosidade inclui, um gabinete, uma casa de banho, uma zona de copa e acesso a um lugar de estacionamento. Disponível para vários serviços, exceto restauração. Actualmente a funcionar como Oculista. O espaço será arrendado sem qualquer equipamento ou mobiliário. Licença de Utilização n. º 76/1999 emitida em 25/06/2020. Certificado energético: C Agende já a sua visita!
AMI: 4491
Ref. Externa: GT-4552-L
Id: 1669458
Inicie sessão para guardar este imóvel e aceder à sua lista de favoritos em qualquer dispositivo.
1 WCs
Área bruta : 91 m²
Espaço multifuncional em Linda a Velha, concelho de Oeiras para arrendamento. Destinado a serviços/escritório/comércio com 90m2 Localizado no rés-do-chão, com wc. Renda mesal: 1000€ inclui água e eletricidade. O valor do arrendamento inclui água e luz. Muito bem localizado numa rua com bastante movimento em Linda-a-Velha. Estacionamento fácil, com parque de estacionamento junto ao imóvel. Trasportes publicos váriados e com algum fluxo diário. Bons acessos às vias rápidas e auto estrada. Venha conhecer, contacte-nos. Aguardamos por si.
AMI: 1283
Ref. Externa: NGI2025-0032 (2) (2)
Id: 1637696
Inicie sessão para guardar este imóvel e aceder à sua lista de favoritos em qualquer dispositivo.
1 WCs
Área bruta : 161 m²
Espaço multifuncional em Linda a Velha, concelho de Oeiras para arrendamento. Destinado a serviços/escritório/comércio com 160m2 Localizado no 1º piso, com wc. Renda mesal: 1700€ e inclui água e luz. Muito bem localizado numa rua com bastante movimento em Linda-a-Velha. Estacionamento fácil, com parque de estacionamento junto ao imóvel. Trasportes publicos váriados e com algum fluxo diário. Bons acessos às vias rápidas e auto estrada. Venha conhecer, contacte-nos. Aguardamos por si.
AMI: 1283
Ref. Externa: NGI2025-0032 (2)
Id: 1637697
Inicie sessão para guardar este imóvel e aceder à sua lista de favoritos em qualquer dispositivo.
© Copyright 2023 | CASACERTA. All rights reserved
Guardar favoritos
Este imóvel foi guardados nos seus favoritos com sucesso.
Para poder guardar pesquisa deverá ter a sua sessão iniciada.
Caso não tenha uma conta, deverá criar uma.
A sua pesquisa foi guardada com sucesso!
Este site utiliza cookies. Ao navegar no site estará a consentir a sua utilização.
Para mais informações sobre os cookies pode consultar a
política de privacidade.