Filtros
0 · 3 resultadosÁrea útil : 15 m²
Parqueamento para arrendamento no Planalto, junto á Rotunda do Forcado.
AMI: 5950
Ref. Externa: PLA_2680
Id: 1419923
Inicie sessão para guardar este imóvel e aceder à sua lista de favoritos em qualquer dispositivo.
Área bruta : 274 m²
Armazém com 274 m2 para remodelar no centro histórico de Santarém. Com uma fachada charmosa é ideal bar, restaurante, loja ou armazém. Dispõe de uma recepção em madeira com mezzannine também em madeira e um espaço amplo. Situado em prédio histórico em remodelação dispõe de saída de fumos. Beneficia da proximidade de todo o comércio local.
AMI: 11798
Ref. Externa: pv0171
Id: 1015996
Inicie sessão para guardar este imóvel e aceder à sua lista de favoritos em qualquer dispositivo.
Profissionais que conhecem esta zona a fundo — contacte-os para uma avaliação personalizada.
Área bruta : 1504 m²
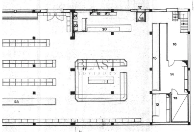
Localizado na Praceta Augusto Costa nº 1 a 4, no lado sul de Santarém, este conjunto de quatro frações situa-se na Urbanização do Sacapeito, uma área de expansão recente da cidade que combina habitação, comércio e serviços. A sua localização estratégica oferece fácil acesso ao centro da cidade e à via rápida, com boas ligações para a A1, Almeirim, Cartaxo e outras direções. A distribuição de cada uma das frações ocupa a sub cave de um edifício contíguo, oferecendo um espaço amplo e sem divisórias, com um pé-direito de aproximadamente 4,5 metros. Há também acesso direto pela via pública, com entrada para cargas e descargas e três saídas de emergência. Detalhe das Frações: Fração "A" nº 1 570 m²: Ampla área com cave adicional e pé-direito de 3 metros, acessível por escadas internas. Fração "A" nº 4 250 m²: Inclui área de escritórios, instalações sanitárias e arrumos. Área Bruta Total: 1.504 m², distribuída da seguinte forma: Fração A nº 1: 570 m² Fração A nº 2: 342 m² Fração A nº 3: 342 m² Fração A nº 4: 250 m² Este conjunto de frações oferece uma excelente visibilidade e flexibilidade, ideal para comércio e serviços, numa zona crescente de Santarém. A proximidade do centro da cidade e a facilidade de acesso à via rápida tornam este imóvel uma excelente opção para o seu negócio.
AMI: 23989
Ref. Externa: BLZ-123092.MA
Id: 914521
Inicie sessão para guardar este imóvel e aceder à sua lista de favoritos em qualquer dispositivo.
© Copyright 2023 | CASACERTA. All rights reserved
Guardar favoritos
Este imóvel foi guardados nos seus favoritos com sucesso.
Para poder guardar pesquisa deverá ter a sua sessão iniciada.
Caso não tenha uma conta, deverá criar uma.
A sua pesquisa foi guardada com sucesso!
Este site utiliza cookies. Ao navegar no site estará a consentir a sua utilização.
Para mais informações sobre os cookies pode consultar a
política de privacidade.