Filtros
0 · 272 resultados3 Quartos
2 WCs
Área útil : 121 m²
Empreendimento, constituído por 6 pisos (sub cave e cave) e 36 frações habitacionais, situado no centro de Oliveira de Azeméis. Acabamentos de excelente qualidade: - Fachada Sistema ETICS (6cm) - Bomba de calor (aquecimento de aguas); - Garagem box com portão elétrico para todas as frações; - Pré instalação de ar condicionado - Pré instalação de aspiração central - Eletrodomésticos (placa, forno, micro-ondas e exaustor); - Estores em alumínio térmico; - Vídeo Porteiro; - Sancas de luz; - Alarme - Pavimento flutuante; - Vidros Duplos; - Carpintaria Sucupira ou Carvalho; - Certificado energético A+ Acabamentos são escolhidos pelo cliente! Localização: - 400 m dos Bombeiros Voluntários de Oliveira de Azeméis - 600 m Intermarché - 1300m Continente - 1400 m Escola Secundária Soares Basto - 1500 m Biblioteca Municipal - 1600m Pavilhão Municipal de Oliveira de Azeméis - 1600m Parque Inclusivo de Oliveira de Azeméis - Transportes Públicos - Acessos A1 e A29 Para além deste imóvel, dispomos de mais imóveis que de certeza encaixam naquilo que pretende. Mais informações sobre este ou outro imóvel e marcações de visita, contacte-nos: Chave Nova Gaia Norte (Canidelo)
AMI: 7142
Ref. Externa: GN/01991
Id: 1808055
Inicie sessão para guardar este imóvel e aceder à sua lista de favoritos em qualquer dispositivo.
3 Quartos
2 WCs
Área útil : 152 m²
Apartamento T3 localizado no centro de Oliveira de Azeméis Empreendimento de 14 frações com uma localização privilegiada com todos os serviços da área de saúde, da educação, comércio e lazer nas proximidades. Apresenta fáceis acessos às vias principais como A1 e A32. MAPA DE ACABAMENTOS: Acabamentos Gerais - Pavimento flutuante marca Finsa AC5 nas áreas privativas; - Pavimento em material cerâmico de primeira nos wc`s; - Caixilharia em alumínio; - Vidros duplos com caixa de ar e corte térmico; - Ar condicionado; - Tetos rebaixados em pladur com focos embutidos; - Roupeiros embutidos; - Porta de entrada de segurança. Zonas Comuns - Pavimento em material cerâmico; - Vídeo porteiro. COZINHAS - Moveis em termolaminado; - Bancada em silestone; - Placa vitrocerâmica; - Forno elétrico; - Exaustor ; - Frigorifico combinado. Tratamos de toda o processo de financiamento e acompanhamento até ao ato da escritura. Para todas as informações que desejar, estamos ao seu inteiro dispor. Agende a sua visita! Chave Nova Feira
AMI: 7142
Ref. Externa: SMF/02618
Id: 1803208
Inicie sessão para guardar este imóvel e aceder à sua lista de favoritos em qualquer dispositivo.
1 Quartos
1 WCs
Área útil : 51 m²
Empreendimento, constituído por 6 pisos (sub cave e cave) e 36 frações habitacionais, situado no centro de Oliveira de Azeméis. Acabamentos de excelente qualidade: - Fachada Sistema ETICS (6cm) - Bomba de calor (aquecimento de aguas); - Garagem box com portão elétrico para todas as frações; - Pré instalação de ar condicionado - Pré instalação de aspiração central - Eletrodomésticos (placa, forno, micro-ondas e exaustor); - Estores em alumínio térmico; - Vídeo Porteiro; - Sancas de luz; - Alarme - Pavimento flutuante; - Vidros Duplos; - Carpintaria Sucupira ou Carvalho; - Certificado energético A+ Acabamentos são escolhidos pelo cliente! Localização: - 400 m dos Bombeiros Voluntários de Oliveira de Azeméis - 600 m Intermarché - 1300m Continente - 1400 m Escola Secundária Soares Basto - 1500 m Biblioteca Municipal - 1600m Pavilhão Municipal de Oliveira de Azeméis - 1600m Parque Inclusivo de Oliveira de Azeméis - Transportes Públicos - Acessos A1 e A29 Para além deste imóvel, dispomos de mais imóveis que de certeza encaixam naquilo que pretende. Mais informações sobre este ou outro imóvel e marcações de visita, contacte-nos: Chave Nova Gaia Norte (Canidelo)
AMI: 7142
Ref. Externa: GN/01982
Id: 1802995
Inicie sessão para guardar este imóvel e aceder à sua lista de favoritos em qualquer dispositivo.
3 Quartos
2 WCs
Área útil : 170 m²
Empreendimento, constituído por 6 pisos (sub cave e cave) e 36 frações habitacionais, situado no centro de Oliveira de Azeméis. Acabamentos de excelente qualidade: - Fachada Sistema ETICS (6cm) - Bomba de calor (aquecimento de aguas); - Garagem box com portão elétrico para todas as frações; - Pré instalação de ar condicionado - Pré instalação de aspiração central - Eletrodomésticos (placa, forno, micro-ondas e exaustor); - Estores em alumínio térmico; - Vídeo Porteiro; - Sancas de luz; - Alarme - Pavimento flutuante; - Vidros Duplos; - Carpintaria Sucupira ou Carvalho; - Certificado energético A+ Acabamentos são escolhidos pelo cliente! Localização: - 400 m dos Bombeiros Voluntários de Oliveira de Azeméis - 600 m Intermarché - 1300m Continente - 1400 m Escola Secundária Soares Basto - 1500 m Biblioteca Municipal - 1600m Pavilhão Municipal de Oliveira de Azeméis - 1600m Parque Inclusivo de Oliveira de Azeméis - Transportes Públicos - Acessos A1 e A29 Para além deste imóvel, dispomos de mais imóveis que de certeza encaixam naquilo que pretende. Mais informações sobre este ou outro imóvel e marcações de visita, contacte-nos: Chave Nova Gaia Norte (Canidelo)
AMI: 7142
Ref. Externa: GN/02002
Id: 1802994
Inicie sessão para guardar este imóvel e aceder à sua lista de favoritos em qualquer dispositivo.
3 Quartos
2 WCs
Área útil : 121 m²
Empreendimento, constituído por 6 pisos (sub cave e cave) e 36 frações habitacionais, situado no centro de Oliveira de Azeméis. Acabamentos de excelente qualidade: - Fachada Sistema ETICS (6cm) - Bomba de calor (aquecimento de aguas); - Garagem box com portão elétrico para todas as frações; - Pré instalação de ar condicionado - Pré instalação de aspiração central - Eletrodomésticos (placa, forno, micro-ondas e exaustor); - Estores em alumínio térmico; - Vídeo Porteiro; - Sancas de luz; - Alarme - Pavimento flutuante; - Vidros Duplos; - Carpintaria Sucupira ou Carvalho; - Certificado energético A+ Acabamentos são escolhidos pelo cliente! Localização: - 400 m dos Bombeiros Voluntários de Oliveira de Azeméis - 600 m Intermarché - 1300m Continente - 1400 m Escola Secundária Soares Basto - 1500 m Biblioteca Municipal - 1600m Pavilhão Municipal de Oliveira de Azeméis - 1600m Parque Inclusivo de Oliveira de Azeméis - Transportes Públicos - Acessos A1 e A29 Para além deste imóvel, dispomos de mais imóveis que de certeza encaixam naquilo que pretende. Mais informações sobre este ou outro imóvel e marcações de visita, contacte-nos: Chave Nova Gaia Norte (Canidelo)
AMI: 7142
Ref. Externa: GN/01999
Id: 1801264
Inicie sessão para guardar este imóvel e aceder à sua lista de favoritos em qualquer dispositivo.
1 Quartos
1 WCs
Área útil : 51 m²
Empreendimento, constituído por 6 pisos (sub cave e cave) e 36 frações habitacionais, situado no centro de Oliveira de Azeméis. Acabamentos de excelente qualidade: - Fachada Sistema ETICS (6cm) - Bomba de calor (aquecimento de aguas); - Garagem box com portão elétrico para todas as frações; - Pré instalação de ar condicionado - Pré instalação de aspiração central - Eletrodomésticos (placa, forno, micro-ondas e exaustor); - Estores em alumínio térmico; - Vídeo Porteiro; - Sancas de luz; - Alarme - Pavimento flutuante; - Vidros Duplos; - Carpintaria Sucupira ou Carvalho; - Certificado energético A+ Acabamentos são escolhidos pelo cliente! Localização: - 400 m dos Bombeiros Voluntários de Oliveira de Azeméis - 600 m Intermarché - 1300m Continente - 1400 m Escola Secundária Soares Basto - 1500 m Biblioteca Municipal - 1600m Pavilhão Municipal de Oliveira de Azeméis - 1600m Parque Inclusivo de Oliveira de Azeméis - Transportes Públicos - Acessos A1 e A29 Para além deste imóvel, dispomos de mais imóveis que de certeza encaixam naquilo que pretende. Mais informações sobre este ou outro imóvel e marcações de visita, contacte-nos: Chave Nova Gaia Norte (Canidelo)
AMI: 7142
Ref. Externa: GN/01986
Id: 1793711
Inicie sessão para guardar este imóvel e aceder à sua lista de favoritos em qualquer dispositivo.
3 Quartos
2 WCs
Área útil : 170 m²
Empreendimento, constituído por 6 pisos (sub cave e cave) e 36 frações habitacionais, situado no centro de Oliveira de Azeméis. Acabamentos de excelente qualidade: - Fachada Sistema ETICS (6cm) - Bomba de calor (aquecimento de aguas); - Garagem box com portão elétrico para todas as frações; - Pré instalação de ar condicionado - Pré instalação de aspiração central - Eletrodomésticos (placa, forno, micro-ondas e exaustor); - Estores em alumínio térmico; - Vídeo Porteiro; - Sancas de luz; - Alarme - Pavimento flutuante; - Vidros Duplos; - Carpintaria Sucupira ou Carvalho; - Certificado energético A+ Acabamentos são escolhidos pelo cliente! Localização: - 400 m dos Bombeiros Voluntários de Oliveira de Azeméis - 600 m Intermarché - 1300m Continente - 1400 m Escola Secundária Soares Basto - 1500 m Biblioteca Municipal - 1600m Pavilhão Municipal de Oliveira de Azeméis - 1600m Parque Inclusivo de Oliveira de Azeméis - Transportes Públicos - Acessos A1 e A29 Para além deste imóvel, dispomos de mais imóveis que de certeza encaixam naquilo que pretende. Mais informações sobre este ou outro imóvel e marcações de visita, contacte-nos: Chave Nova Gaia Norte (Canidelo)
AMI: 7142
Ref. Externa: GN/02000
Id: 1793709
Inicie sessão para guardar este imóvel e aceder à sua lista de favoritos em qualquer dispositivo.
1 Quartos
1 WCs
Área bruta : 103 m²
Apartamento T1+1 – Barrocas, Oliveira de Azeméis | Nova Construção | Conclusão prevista: 1º trimestre de 2028 Apresentamos este elegante apartamento T1+1 em fase de construção, localizado em Barrocas, uma zona residencial tranquila e em crescimento, ideal para quem procura conforto, qualidade e excelente acessibilidade. Dispomos de T1+1 no 1º andar - 195 000,00€ fração F e G Dispomos de T2 no 3º andar - 255 000,00€ fração R Dispomos de T2 no 5º andar - 265 000,00€ fração AA Este projeto destaca-se pela construção moderna, elevada eficiência energética e acabamentos de qualidade superior, pensados para proporcionar conforto, funcionalidade e bem-estar no dia a dia. A fração contará com lugar de garagem ou garagem fechada (consoante a tipologia da fração), caixilharia em alumínio térmico com vidro duplo, estores térmicos elétricos e ar-condicionado completo, garantindo conforto térmico em todas as estações do ano. No interior, o apartamento combina modernidade e elegância, com carpintaria lacada a branco, pavimentos em piso flutuante ou cerâmica (conforme seleção dentro do plafond), iluminação embutida com focos e sancas em pladur, criando um ambiente contemporâneo e acolhedor. A cozinha será totalmente equipada, com móveis de design atual, bancada em Silestone e eletrodomésticos encastrados da Teka, incluindo forno, micro-ondas, placa, exaustor, combinado e máquina de lavar loiça. A zona de lavandaria e águas quentes será servida por bomba de calor, assegurando eficiência energética. As casas de banho apresentam louças sanitárias Sanitana, torneiras UNIC, lavatórios Albus, bases de duche Strat e móveis de apoio, com possibilidade de personalização mediante plafond. (Não inclui resguardos nem espelhos.) O edifício será revestido com sistema térmico de capoto e cobertura em painel sandwich, garantindo excelente isolamento térmico e acústico. Uma excelente oportunidade para quem procura uma habitação nova, confortável e energeticamente eficiente, ou para quem deseja um investimento seguro num empreendimento com elevado potencial de valorização. Conclusão da obra prevista para o 2º semestre de 2028. Para mais informações ou agendamento de visita: Joaquim Oliveira ? 914 796 314 ✉️ [email protected] Antes de avançar para as características do imóvel permita-nos um breve esclarecimento: a localização que vê do imóvel é, na verdade, uma morada próxima do imóvel. Por uma questão de privacidade de dados (RGPD) não podemos divulgar a morada exata do imóvel. Gratos pela compreensão. Antes de avançar para as características do imóvel permita-nos um breve esclarecimento: a localização que vê do imóvel é, na verdade, uma morada próxima do imóvel. Por uma questão de privacidade de dados (RGPD) não podemos divulgar a morada exata do imóvel. Gratos pela compreensão. Antes de avançar para as características do imóvel permita-nos um breve esclarecimento: a localização que vê do imóvel é, na verdade, uma morada próxima do imóvel. Por uma questão de privacidade de dados (RGPD) não podemos divulgar a morada exata do imóvel. Gratos pela compreensão.
AMI: 17906
Ref. Externa: 1TC4204
Id: 1792300
Inicie sessão para guardar este imóvel e aceder à sua lista de favoritos em qualquer dispositivo.
1 WCs
Área bruta : 69 m²
Apartamento T0+1 – Barrocas, Oliveira de Azeméis | Nova Construção | Conclusão prevista: 1º trimestre de 2028 Apresentamos este elegante apartamento T0+1 em fase de construção, localizado em Barrocas, uma zona residencial tranquila e em crescimento, ideal para quem procura conforto, qualidade e excelente acessibilidade. Este projeto destaca-se pela construção moderna, elevada eficiência energética e acabamentos de qualidade superior, pensados para proporcionar conforto, funcionalidade e bem-estar no dia a dia. A fração contará com lugar de garagem ou garagem fechada (consoante a tipologia da fração), caixilharia em alumínio térmico com vidro duplo, estores térmicos elétricos e ar-condicionado completo, garantindo conforto térmico em todas as estações do ano. No interior, o apartamento combina modernidade e elegância, com carpintaria lacada a branco, pavimentos em piso flutuante ou cerâmica (conforme seleção dentro do plafond), iluminação embutida com focos e sancas em pladur, criando um ambiente contemporâneo e acolhedor. A cozinha será totalmente equipada, com móveis de design atual, bancada em Silestone e eletrodomésticos encastrados da Teka, incluindo forno, micro-ondas, placa, exaustor, combinado e máquina de lavar loiça. A zona de lavandaria e águas quentes será servida por bomba de calor, assegurando eficiência energética. As casas de banho apresentam louças sanitárias Sanitana, torneiras UNIC, lavatórios Albus, bases de duche Strat e móveis de apoio, com possibilidade de personalização mediante plafond. (Não inclui resguardos nem espelhos.) O edifício será revestido com sistema térmico de capoto e cobertura em painel sandwich, garantindo excelente isolamento térmico e acústico. Uma excelente oportunidade para quem procura uma habitação nova, confortável e energeticamente eficiente, ou para quem deseja um investimento seguro num empreendimento com elevado potencial de valorização. Conclusão da obra prevista para o 2º semestre de 2028. Para mais informações ou agendamento de visita: Joaquim Oliveira ? 914 796 314 ✉️ [email protected] Antes de avançar para as características do imóvel permita-nos um breve esclarecimento: a localização que vê do imóvel é, na verdade, uma morada próxima do imóvel. Por uma questão de privacidade de dados (RGPD) não podemos divulgar a morada exata do imóvel. Gratos pela compreensão. Antes de avançar para as características do imóvel permita-nos um breve esclarecimento: a localização que vê do imóvel é, na verdade, uma morada próxima do imóvel. Por uma questão de privacidade de dados (RGPD) não podemos divulgar a morada exata do imóvel. Gratos pela compreensão.
AMI: 17906
Ref. Externa: 1TC4203
Id: 1792295
Inicie sessão para guardar este imóvel e aceder à sua lista de favoritos em qualquer dispositivo.
2 Quartos
2 WCs
Área bruta : 128 m²
Apartamento T2 – Barrocas, Oliveira de Azeméis | Nova Construção | Conclusão prevista: 1º trimestre de 2028 Dispomos de T2 no 1º e 2º andar - 245 000,00€ fração H Dispomos de T2 no 3º andar - 255 000,00€ fração R Dispomos de T2 no 5º andar - 265 000,00€ fração AA Apresentamos este elegante apartamento T2 em fase de construção, localizado em Barrocas, uma zona residencial tranquila e em crescimento, ideal para quem procura conforto, qualidade e excelente acessibilidade. Este projeto destaca-se pela construção moderna, elevada eficiência energética e acabamentos de qualidade superior, pensados para proporcionar conforto, funcionalidade e bem-estar no dia a dia. A fração contará com lugar de garagem ou garagem fechada (consoante a tipologia da fração), caixilharia em alumínio térmico com vidro duplo, estores térmicos elétricos e ar-condicionado completo, garantindo conforto térmico em todas as estações do ano. No interior, o apartamento combina modernidade e elegância, com carpintaria lacada a branco, pavimentos em piso flutuante ou cerâmica (conforme seleção dentro do plafond), iluminação embutida com focos e sancas em pladur, criando um ambiente contemporâneo e acolhedor. A cozinha será totalmente equipada, com móveis de design atual, bancada em Silestone e eletrodomésticos encastrados da Teka, incluindo forno, micro-ondas, placa, exaustor, combinado e máquina de lavar loiça. A zona de lavandaria e águas quentes será servida por bomba de calor, assegurando eficiência energética. As casas de banho apresentam louças sanitárias Sanitana, torneiras UNIC, lavatórios Albus, bases de duche Strat e móveis de apoio, com possibilidade de personalização mediante plafond. (Não inclui resguardos nem espelhos.) O edifício será revestido com sistema térmico de capoto e cobertura em painel sandwich, garantindo excelente isolamento térmico e acústico. Uma excelente oportunidade para quem procura uma habitação nova, confortável e energeticamente eficiente, ou para quem deseja um investimento seguro num empreendimento com elevado potencial de valorização. Conclusão da obra prevista para o 2º semestre de 2028. Para mais informações ou agendamento de visita: Joaquim Oliveira ? 914 796 314 ✉️ [email protected] Antes de avançar para as características do imóvel permita-nos um breve esclarecimento: a localização que vê do imóvel é, na verdade, uma morada próxima do imóvel. Por uma questão de privacidade de dados (RGPD) não podemos divulgar a morada exata do imóvel. Gratos pela compreensão. Antes de avançar para as características do imóvel permita-nos um breve esclarecimento: a localização que vê do imóvel é, na verdade, uma morada próxima do imóvel. Por uma questão de privacidade de dados (RGPD) não podemos divulgar a morada exata do imóvel. Gratos pela compreensão. Antes de avançar para as características do imóvel permita-nos um breve esclarecimento: a localização que vê do imóvel é, na verdade, uma morada próxima do imóvel. Por uma questão de privacidade de dados (RGPD) não podemos divulgar a morada exata do imóvel. Gratos pela compreensão. Antes de avançar para as características do imóvel permita-nos um breve esclarecimento: a localização que vê do imóvel é, na verdade, uma morada próxima do imóvel. Por uma questão de privacidade de dados (RGPD) não podemos divulgar a morada exata do imóvel. Gratos pela compreensão.
AMI: 17906
Ref. Externa: 1TC4205
Id: 1792261
Inicie sessão para guardar este imóvel e aceder à sua lista de favoritos em qualquer dispositivo.
Profissionais que conhecem esta zona a fundo — contacte-os para uma avaliação personalizada.
2 Quartos
2 WCs
Área bruta : 139 m²
Apartamento T2+1 – Barrocas, Oliveira de Azeméis | Nova Construção | Conclusão prevista: 2º trimestre de 2028 Dispomos de T2+1 no 3º andar - 265 000,00€ fração P Dispomos de T2+1 no 5º andar - 270 000,00€ fração AB Apresentamos este elegante apartamento T2+1 em fase de construção, localizado em Barrocas, uma zona residencial tranquila e em crescimento, ideal para quem procura conforto, qualidade e excelente acessibilidade. Este projeto destaca-se pela construção moderna, elevada eficiência energética e acabamentos de qualidade superior, pensados para proporcionar conforto, funcionalidade e bem-estar no dia a dia. A fração contará com lugar de garagem ou garagem fechada (consoante a tipologia da fração), caixilharia em alumínio térmico com vidro duplo, estores térmicos elétricos e ar-condicionado completo, garantindo conforto térmico em todas as estações do ano. No interior, o apartamento combina modernidade e elegância, com carpintaria lacada a branco, pavimentos em piso flutuante ou cerâmica (conforme seleção dentro do plafond), iluminação embutida com focos e sancas em pladur, criando um ambiente contemporâneo e acolhedor. A cozinha será totalmente equipada, com móveis de design atual, bancada em Silestone e eletrodomésticos encastrados da Teka, incluindo forno, micro-ondas, placa, exaustor, combinado e máquina de lavar loiça. A zona de lavandaria e águas quentes será servida por bomba de calor, assegurando eficiência energética. As casas de banho apresentam louças sanitárias Sanitana, torneiras UNIC, lavatórios Albus, bases de duche Strat e móveis de apoio, com possibilidade de personalização mediante plafond. (Não inclui resguardos nem espelhos.) O edifício será revestido com sistema térmico de capoto e cobertura em painel sandwich, garantindo excelente isolamento térmico e acústico. Uma excelente oportunidade para quem procura uma habitação nova, confortável e energeticamente eficiente, ou para quem deseja um investimento seguro num empreendimento com elevado potencial de valorização. Conclusão da obra prevista para o 1º semestre de 2028. Para mais informações ou agendamento de visita: Joaquim Oliveira ? 914 796 314 ✉️ [email protected] Antes de avançar para as características do imóvel permita-nos um breve esclarecimento: a localização que vê do imóvel é, na verdade, uma morada próxima do imóvel. Por uma questão de privacidade de dados (RGPD) não podemos divulgar a morada exata do imóvel. Gratos pela compreensão. Antes de avançar para as características do imóvel permita-nos um breve esclarecimento: a localização que vê do imóvel é, na verdade, uma morada próxima do imóvel. Por uma questão de privacidade de dados (RGPD) não podemos divulgar a morada exata do imóvel. Gratos pela compreensão. Antes de avançar para as características do imóvel permita-nos um breve esclarecimento: a localização que vê do imóvel é, na verdade, uma morada próxima do imóvel. Por uma questão de privacidade de dados (RGPD) não podemos divulgar a morada exata do imóvel. Gratos pela compreensão. Antes de avançar para as características do imóvel permita-nos um breve esclarecimento: a localização que vê do imóvel é, na verdade, uma morada próxima do imóvel. Por uma questão de privacidade de dados (RGPD) não podemos divulgar a morada exata do imóvel. Gratos pela compreensão. Antes de avançar para as características do imóvel permita-nos um breve esclarecimento: a localização que vê do imóvel é, na verdade, uma morada próxima do imóvel. Por uma questão de privacidade de dados (RGPD) não podemos divulgar a morada exata do imóvel. Gratos pela compreensão.
AMI: 17906
Ref. Externa: 1TC4206
Id: 1792244
Inicie sessão para guardar este imóvel e aceder à sua lista de favoritos em qualquer dispositivo.
3 Quartos
2 WCs
Área bruta : 158 m²
Apartamento T3 – Barrocas, Oliveira de Azeméis | Nova Construção | Conclusão prevista: 1º trimestre de 2028 Apresentamos este elegante apartamento T3 em fase de construção, localizado em Barrocas, uma zona residencial tranquila e em crescimento, ideal para quem procura conforto, qualidade e excelente acessibilidade. Dispomos de T3 no 2º andar - 290 000,00€ fração M e fração N 285 000,00€ Dispomos de T3 no 3º andar - 280 000,00€ fração O e fração S 290 000,00€ Dispomos de T3 no 5º andar - 295 000,00€ fração AC Este projeto destaca-se pela construção moderna, elevada eficiência energética e acabamentos de qualidade superior, pensados para proporcionar conforto, funcionalidade e bem-estar no dia a dia. A fração contará com lugar de garagem ou garagem fechada (consoante a tipologia da fração), caixilharia em alumínio térmico com vidro duplo, estores térmicos elétricos e ar-condicionado completo, garantindo conforto térmico em todas as estações do ano. No interior, o apartamento combina modernidade e elegância, com carpintaria lacada a branco, pavimentos em piso flutuante ou cerâmica (conforme seleção dentro do plafond), iluminação embutida com focos e sancas em pladur, criando um ambiente contemporâneo e acolhedor. A cozinha será totalmente equipada, com móveis de design atual, bancada em Silestone e eletrodomésticos encastrados da Teka, incluindo forno, micro-ondas, placa, exaustor, combinado e máquina de lavar loiça. A zona de lavandaria e águas quentes será servida por bomba de calor, assegurando eficiência energética. As casas de banho apresentam louças sanitárias Sanitana, torneiras UNIC, lavatórios Albus, bases de duche Strat e móveis de apoio, com possibilidade de personalização mediante plafond. (Não inclui resguardos nem espelhos.) O edifício será revestido com sistema térmico de capoto e cobertura em painel sandwich, garantindo excelente isolamento térmico e acústico. Uma excelente oportunidade para quem procura uma habitação nova, confortável e energeticamente eficiente, ou para quem deseja um investimento seguro num empreendimento com elevado potencial de valorização. Conclusão da obra prevista para o 2º semestre de 2028. Para mais informações ou agendamento de visita: Joaquim Oliveira ? 914 796 314 ✉️ [email protected] Antes de avançar para as características do imóvel permita-nos um breve esclarecimento: a localização que vê do imóvel é, na verdade, uma morada próxima do imóvel. Por uma questão de privacidade de dados (RGPD) não podemos divulgar a morada exata do imóvel. Gratos pela compreensão.
AMI: 17906
Ref. Externa: 1TC4202
Id: 1792227
Inicie sessão para guardar este imóvel e aceder à sua lista de favoritos em qualquer dispositivo.
3 Quartos
2 WCs
Área útil : 117 m²
Excelente oportunidade de adquirir um belíssimo apartamento T3, localizado em Oliveira de Azeméis, Aveiro. Com uma área bruta de 117m2, este imóvel de construção datada de 2001 encontra-se em ótimo estado de conservação, pronto a habitar. Este acolhedor apartamento no rés-do-chão oferece um ambiente confortável e acolhedor, ideal para famílias. Composto por 3 quartos e 2 casas de banho, conta ainda com uma lareira para os dias mais frios de inverno. Inserido num empreendimento com elevadores, dispõe ainda de lugar de garagem interior, proporcionando comodidade e segurança aos seus moradores. A sua localização privilegiada na freguesia de O. Azeméis, Riba-Ul, Ul, Macinhata Seixa, Madail, oferece proximidade a diversos serviços e comércio local perto do Parque de La Salette Entre em contacto para mais informações Venha conhecer a sua nova casa Estou ao seu dispor Excellent opportunity to acquire a beautiful 3-bedroom apartment (T3) located in Oliveira de Azeméis, Aveiro. With a gross area of 117 m², this property, built in 2001, is in excellent condition and ready to move in. This cozy ground-floor apartment offers a comfortable and welcoming environment, ideal for families. It comprises 3 bedrooms and 2 bathrooms and also features a fireplace for the colder winter days. Situated in a development with elevators, it includes an indoor parking space, providing convenience and security for its residents. Its privileged location in the parish of O. Azeméis, Riba-Ul, Ul, Macinhata Seixa, Madail, offers proximity to various services and local shops near Parque de La Salette. Excellente opportunité d’acquérir un magnifique appartement T3 situé à Oliveira de Azeméis, Aveiro. Avec une surface brute de 117 m², ce bien, construit en 2001, est en excellent état et prêt à être habité. Ce chaleureux appartement au rez-de-chaussée offre un environnement confortable et accueillant, idéal pour les familles. Il se compose de 3 chambres et 2 salles de bain, et dispose également d’une cheminée pour les journées d’hiver les plus froides. Situé dans une résidence avec ascenseurs, il dispose d’une place de parking intérieure, offrant commodité et sécurité à ses habitants. Son emplacement privilégié dans la paroisse de O. Azeméis, Riba-Ul, Ul, Macinhata Seixa, Madail, permet un accès facile à divers services et commerces locaux à proximité du Parc de La Salette. Appelez pour plus d’informations.
AMI: 7772
Ref. Externa: A-29849
Id: 1785335
Inicie sessão para guardar este imóvel e aceder à sua lista de favoritos em qualquer dispositivo.
1 Quartos
1 WCs
Área bruta : 124 m²
Apresentamos uma oportunidade única com os magníficos apartamentos em Oliveira de Azeméis, localizados numa zona tranquila e a apenas 5 minutos a pé do centro da cidade. Esta oferta inclui diversas tipologias, desde T0+1 (convertível para T1+1), passando por espaçosos T2 até aos fantásticos T3 que contam com duas frentes. Este empreendimento distingue-se pela qualidade superior e sofisticação dos acabamentos premium utilizados ao longo das suas áreas comuns e privadas. Adicionalmente, todos os apartamentos incluem garagem fechada - um luxo raro nos dias de hoje! O projeto está sob a responsabilidade de um dos empreiteiros mais respeitados na região, garantindo assim segurança e fiabilidade no investimento. Para informações adicionais ou esclarecimentos não hesite em contactar João Pereira - Consultor Imobiliário pelo número 919396975.
AMI: 28027
Ref. Externa: 202.2026.T0_1/13987
Id: 1782998
Inicie sessão para guardar este imóvel e aceder à sua lista de favoritos em qualquer dispositivo.
2 Quartos
1 WCs
Área bruta : 115 m²
Apresentamos uma oportunidade única com os magníficos apartamentos em Oliveira de Azeméis, localizados numa zona tranquila e a apenas 5 minutos a pé do centro da cidade. Esta oferta inclui diversas tipologias, desde T0+1 (convertível para T1+1), passando por espaçosos T2 até aos fantásticos T3 que contam com duas frentes. Este empreendimento distingue-se pela qualidade superior e sofisticação dos acabamentos premium utilizados ao longo das suas áreas comuns e privadas. Adicionalmente, todos os apartamentos incluem garagem fechada - um luxo raro nos dias de hoje! O projeto está sob a responsabilidade de um dos empreiteiros mais respeitados na região, garantindo assim segurança e fiabilidade no investimento. Para informações adicionais ou esclarecimentos não hesite em contactar João Pereira - Consultor Imobiliário pelo número 919396975.
AMI: 28027
Ref. Externa: 202.2026.T2/13987
Id: 1782999
Inicie sessão para guardar este imóvel e aceder à sua lista de favoritos em qualquer dispositivo.
3 Quartos
2 WCs
Área bruta : 150 m²
Apresentamos uma oportunidade única com os magníficos apartamentos em Oliveira de Azeméis, localizados numa zona tranquila e a apenas 5 minutos a pé do centro da cidade. Esta oferta inclui diversas tipologias, desde T0+1 (convertível para T1+1), passando por espaçosos T2 até aos fantásticos T3 que contam com duas frentes. Este empreendimento distingue-se pela qualidade superior e sofisticação dos acabamentos premium utilizados ao longo das suas áreas comuns e privadas. Adicionalmente, todos os apartamentos incluem garagem fechada - um luxo raro nos dias de hoje! O projeto está sob a responsabilidade de um dos empreiteiros mais respeitados na região, garantindo assim segurança e fiabilidade no investimento. Para informações adicionais ou esclarecimentos não hesite em contactar João Pereira - Consultor Imobiliário pelo número 919396975.
AMI: 28027
Ref. Externa: 202.2026.T3/13987
Id: 1783000
Inicie sessão para guardar este imóvel e aceder à sua lista de favoritos em qualquer dispositivo.
3 Quartos
2 WCs
Área útil : 94 m²
Apartamento T3 em Oliveira de Azeméis com 110, 5m2 de espaço e conforto perfeito para transformar no seu novo lar! Hall acolhedor para boas-vindas calorosas; Sala ampla para momentos memoráveis em família ou amigos com lareira e varanda; Cozinha equipada e individual prática com despensa; 3 quartos com armários embutidos, incluindo uma suite, para o descanso que a família merece; 2 varandas charmosa para os momentos de relaxamento; Ótimo Lugar de garagem para sua comodidade; A poucos passos do encantador Parque La Salette, com tudo o que precisa ao seu alcance – comércio, serviços, escolas e transportes! Imagine dar o seu toque pessoal a este espaço e torná-lo único – o lar dos seus sonhos começa aqui! Não perca esta oportunidade – faça deste apartamento a sua nova história! POSSIBILIDADE DE FINANCIAMENTO A 100% PARA IDADES ATE AOS 35 ANOS!!!
AMI: 7142
Ref. Externa: SD/04434
Id: 1781875
Inicie sessão para guardar este imóvel e aceder à sua lista de favoritos em qualquer dispositivo.
3 Quartos
2 WCs
Área útil : 157 m²
Apresenta-se este apartamento localizado no 3.º Andar de um edifício residencial em Oliveira de Azeméis. O imóvel destaca-se pelas áreas amplas, boa luminosidade natural e acabamentos de qualidade, oferecendo conforto, funcionalidade e excelente aproveitamento de espaço. Descubra este fantástico apartamento T3, localizado em Oliveira de Azeméis, numa zona tranquila e residencial. O edifício apresenta boa manutenção e localiza-se numa área com excelente acessibilidade, a 200 metros da zona industrial, 50 metros de um supermercado e 50 metros de uma padaria, dispondo ainda de proximidade a escolas, comércio, serviços e principais vias rodoviárias. Com uma área bruta de 157 m2, este imóvel conta com 2 casas de banho, sendo perfeito para famílias que procuram conforto e qualidade de vida. Construído em 2009, este apartamento está em bom estado de conservação e oferece uma orientação solar privilegiada a norte, garantindo a entrada de luz natural em todas as divisões. O edifício dispõe de elevadores e lugar de garagem interior, proporcionando maior comodidade aos residentes. A sua localização central permite o acesso rápido a escolas, transportes públicos, supermercados, farmácias e hospitais, tornando o dia a dia mais prático e conveniente. Com uma classificação energética de classe C, este imóvel é a escolha ideal para quem procura um lar acolhedor numa zona com excelentes acessos e serviços. Não perca a oportunidade de adquirir este imóvel. Marque já a sua visita e comece uma nova etapa da sua vida neste confortável apartamento em Oliveira de Azeméis. Entre em contacto para mais informações We present this apartment located on the 3rd floor of a residential building in Oliveira de Azeméis. The property stands out for its spacious areas, abundant natural light, and quality finishes, offering comfort, functionality, and excellent use of space. Discover this fantastic 3-bedroom apartment in Oliveira de Azeméis, situated in a quiet, residential area. The building is well-maintained and located in a highly accessible zone, just 200 meters from the industrial area, 50 meters from a supermarket, and 50 meters from a bakery, with schools, shops, services, and main roads also nearby. With a gross area of 157 m², this property features 2 bathrooms, making it perfect for families seeking comfort and quality of life. Built in 2009, this apartment is in good condition and enjoys a privileged north-facing orientation, ensuring natural light in all rooms. The building includes elevators and an indoor garage space, providing residents with added convenience. Its central location allows quick access to schools, public transport, supermarkets, pharmacies, and hospitals, making daily life easier and more convenient. With an energy rating of Class C, this property is an ideal choice for those looking for a cozy home in an area with excellent access and services. Don’t miss the opportunity to acquire this property. Schedule your visit today and start a new chapter of your life in this comfortable apartment in Oliveira de Azeméis. Nous vous présentons cet appartement situé au 3ᵉ étage d’un immeuble résidentiel à Oliveira de Azeméis. Le bien se distingue par ses espaces généreux, sa bonne luminosité naturelle et ses finitions de qualité, offrant confort, fonctionnalité et un excellent agencement. Découvrez ce fantastique appartement de 3 chambres à Oliveira de Azeméis, dans un quartier calme et résidentiel. L’immeuble est bien entretenu et se situe dans une zone très accessible, à seulement 200 mètres de la zone industrielle, 50 mètres d’un supermarché et 50 mètres d’une boulangerie, avec des écoles, commerces, services et voies principales à proximité. Avec une surface brute de 157 m², ce bien dispose de 2 salles de bain, idéal pour les familles à la recherche de confort et de qualité de vie. Construit en 2009, cet appartement est en bon état et bénéficie d’une orientation nord privilégiée, assurant l’entrée de lumière naturelle dans toutes les pièces. L’immeuble dispose d’ascenseurs et d’une place de garage intérieure, offrant un confort supplémentaire aux résidents. Son emplacement central permet un accès rapide aux écoles, aux transports en commun, aux supermarchés, aux pharmacies et aux hôpitaux, rendant le quotidien plus pratique et agréable. Avec une classification énergétique de classe C, ce bien est le choix idéal pour ceux qui recherchent un logement chaleureux dans une zone avec d’excellentes infrastructures et services. Ne manquez pas l’opportunité d’acquérir ce bien. Prenez rendez-vous dès maintenant pour une visite et commencez une nouvelle étape de votre vie dans cet appartement confortable à Oliveira de Azeméis.
AMI: 7772
Ref. Externa: A-29848
Id: 1781364
Inicie sessão para guardar este imóvel e aceder à sua lista de favoritos em qualquer dispositivo.
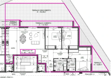
3 Quartos
2 WCs
Área útil : 152 m²
Apartamento T3 localizado no centro de Oliveira de Azeméis Empreendimento de 14 frações com uma localização privilegiada com todos os serviços da área de saúde, da educação, comércio e lazer nas proximidades. Apresenta fáceis acessos às vias principais como A1 e A32. MAPA DE ACABAMENTOS: Acabamentos Gerais - Pavimento flutuante marca Finsa AC5 nas áreas privativas; - Pavimento em material cerâmico de primeira nos wc`s; - Caixilharia em alumínio; - Vidros duplos com caixa de ar e corte térmico; - Ar condicionado; - Tetos rebaixados em pladur com focos embutidos; - Roupeiros embutidos; - Porta de entrada de segurança. Zonas Comuns - Pavimento em material cerâmico; - Vídeo porteiro. COZINHAS - Moveis em termolaminado; - Bancada em silestone; - Placa vitrocerâmica; - Forno elétrico; - Exaustor ; - Frigorifico combinado. Tratamos de toda o processo de financiamento e acompanhamento até ao ato da escritura. Para todas as informações que desejar, estamos ao seu inteiro dispor. Agende a sua visita! Chave Nova Feira
AMI: 7142
Ref. Externa: SMF/02615
Id: 1779184
Inicie sessão para guardar este imóvel e aceder à sua lista de favoritos em qualquer dispositivo.
1 Quartos
1 WCs
Área útil : 70 m²
Apartamento tipologia T1 inserido em zona residencial tranquila, mas próxima do centro Com uma área de 51 m2 distribuída entre a cozinha e sala em open space com área de estar e zona de refeições, quarto e casa de banho , benefícia ainda de um terraço com a área de 23.50m2 a que poderá aceder, tanto pela sala com pelo quarto. Este terraço é a forma ideal de aproveitar os dias de bom tempo com privacidade. Se pretende mudar de casa já em 2026, não hesite em contactar-me .Este imóvel é a resposta ao seu desejo. ACABAMENTOS: Casas de banho Pavimentos e parede em cerâmico retificado Tetos em gesso cartonado pintado Sanitas sanindusa com eficiência hídrica Misturadores Grohe Móvel de wc Carpintaria em lacados Sala e quartos Pavimento flutuante Tecos em betão à vista Carpintarias lacadas Cozinha Pavimento flutuante Tampos em pedra Móveis de cozinha lacados e eletrodomésticos Bosch Exterior do edifício Caixilharias em pvc Sistema de isolamento térmico Jardins NOTA- as fotografias são de um andar modelo da mesma construção e com acabamentos iguais- não corresponde ao im´ovel por se encontrara ainda em fase de acabamentos. Data de conclusão da obra - Setembro de 2026
AMI: 7387
Ref. Externa: 4/2026
Id: 1774419
Inicie sessão para guardar este imóvel e aceder à sua lista de favoritos em qualquer dispositivo.
© Copyright 2023 | CASACERTA. All rights reserved
Guardar favoritos
Este imóvel foi guardados nos seus favoritos com sucesso.
Para poder guardar pesquisa deverá ter a sua sessão iniciada.
Caso não tenha uma conta, deverá criar uma.
A sua pesquisa foi guardada com sucesso!
Este site utiliza cookies. Ao navegar no site estará a consentir a sua utilização.
Para mais informações sobre os cookies pode consultar a
política de privacidade.