Lista
Comprar
Arrendar
2 Quartos
2 WCs
Área bruta : 143 m²
Apartamento T2 com 107 m2, varanda de 37 m2 e 1 lugar de estacionamento, inserido num novo empreendimento a nascer no centro de Lagos. Composto por 24 apartamentos, 16 T2 e 8 T3; piscina comum na cobertura com vista mar; e estacionamentos em cave. Todos os apartamentos têm um dos quartos em suíte, salas espaçosas em open space, com cozinhas equipadas e eletrodomésticos marca Bosh ou similar, quartos com roupeiros embutidos, grandes terraços cobertos, piso radiante eléctrico, blackouts elétricos, ar condicionado Samsung e aspiração central. Próximo de zonas comerciais, centro da cidade e fáceis acessos a auto-estrada. Localiza-se a 5 minutos das praias D. Ana e Porto de Mós, dois campos de golfe nas imediações e a 50 minutos do Aeroporto de Faro. A Castelhana agora é Dils. Com mais de 25 anos de experiência no mercado imobiliário português, a Castelhana é agora Dils, uma empresa internacional com mais de 50 anos de história e presença em Itália, Países Baixos, Espanha e Portugal. Sob a marca Dils, continuamos a prestar serviços especializados de consultoria, compra, venda, arrendamento e desenvolvimento de imóveis residenciais. Estamos ao seu lado, com uma equipa dedicada nos nossos escritórios em Lisboa, Estoril, Comporta, Porto e Algarve, prontos para apoiar o seu próximo investimento. Quando o mundo muda, é hora de reescrever as regras. It's time to imagine your future space.
AMI: 3497
Ref. Externa: 20908
Id: 1696374
Inicie sessão para guardar este imóvel e aceder à sua lista de favoritos em qualquer dispositivo.
2 Quartos
3 WCs
Área útil : 104 m²
Estilo de Vida e Exclusividade na Meia Praia: Onde o Design encontra o Oceano Imagine acordar a poucos passos da areia dourada da Meia Praia. Este novo projeto em Lagos, agora na sua fase final de construção, foi desenhado para quem valoriza a amplitude e não abdica da proximidade ao mar. É o refúgio perfeito que combina a serenidade de um bairro reservado com a energia encantadora da Marina de Lagos e do centro histórico, situados a curta distância. Espaço Sem Compromissos Este apartamento T2+1 redefine o conceito de habitação moderna. Aqui, o espaço foi planeado para oferecer liberdade e funcionalidade: Rooftop Privativo: O seu próprio terraço no topo do edifício, um espaço de lazer com enorme potencial para instalação de um jacuzzi — o cenário perfeito para relaxar enquanto o sol se põe sobre o horizonte. Garagem Box e Arrecadação: Conveniência total com um lugar de estacionamento privativo em box para um carro e uma arrecadação independente, garantindo que o armazenamento nunca seja uma preocupação. Versatilidade T2+1: Além das duas suítes principais, dispõe de uma divisão extra flexível, pronta para se tornar no seu novo escritório ou num quarto adicional. Conforto de Luxo, Todo o Ano Esta não é apenas uma casa de férias; é um lar preparado para todas as estações, focado no bem-estar e na tecnologia: Piscina Aquecida Coberta: Um luxo disponível 365 dias por ano. Climatização Avançada: Conforto térmico absoluto com piso radiante elétrico em toda a casa e sistemas de ar condicionado de última geração. Cozinha de Alta Gama: Equipamento completo com a chancela de qualidade Bosch (ou similar). Eficiência e Sustentabilidade: Sistema de aquecimento de águas por bomba de calor para uma gestão energética inteligente. Exclusividade Garantida Inserido num edifício de apenas 8 frações, a privacidade é um dos pilares deste projeto. Com entrega prevista para o primeiro semestre de 2026, esta é a oportunidade de adquirir um imóvel "chave na mão" com acabamentos de nível superior. Muito mais do que um investimento imobiliário, este é o convite para um estilo de vida onde o conforto e a localização são a prioridade absoluta. Gostaria de conhecer as plantas detalhadas ou agendar uma visita à obra? Contacte-me para mais informações. #ref: 159274
AMI: 11220
Ref. Externa: 159274
Id: 1694895
Inicie sessão para guardar este imóvel e aceder à sua lista de favoritos em qualquer dispositivo.
2 Quartos
3 WCs
Área útil : 119 m²
O Seu Refúgio Exclusivo na Meia Praia, Lagos – Nova Construção Viva a poucos minutos a pé de uma das praias mais icónicas do Algarve. Este edifício boutique, em fase final de construção, oferece o equilíbrio raro entre arquitetura contemporânea, áreas generosas e uma localização imbatível. O Empreendimento • Exclusividade: Apenas 8 frações disponíveis. • Tipologia T2+1: Espaços fluidos com quarto/escritório adicional. • Áreas Generosas: Unidades com até 282 m² (habitação + varandas + terraço privativo na cobertura + box e arrecadação) • Conceito Chave na Mão: Entrega no 1º semestre de 2026 com acabamentos premium. Destaques de Conforto e Lazer • Piscina Aquecida e Coberta: Lazer garantido em qualquer estação do ano. • Rooftop Privativo: Espaço com potencial para Jacuzzi, zona de churrasqueira e o cenário ideal para o pôr-do-sol. • Jardins: Áreas verdes com sistema de irrigação automática. • Suítes: 2 quartos com casa de banho privativa para total independência. Equipamento e Alta Tecnologia • Cozinhas & WC: Totalmente equipados com marca Bosch (ou similar). • Climatização de Elite: Piso radiante elétrico em toda a casa e Ar Condicionado de última geração. • Eficiência Energética: Águas aquecidas por bomba de calor. • Garagem Box (28,5 m²): Espaço privativo para 2 carros, com ponto para colocação de tomada para carregamento de veículos elétricos. Localização Estratégica Situado num enclave de silêncio e proximidade ao mar, está a uma curta distância da Marina de Lagos e do centro histórico. Não compre apenas um apartamento, invista num estilo de vida. Agende a sua visita e garanta a sua fração. Contacte-me para detalhes e plantas. #ref: 159122
AMI: 11220
Ref. Externa: 159122
Id: 1694874
Inicie sessão para guardar este imóvel e aceder à sua lista de favoritos em qualquer dispositivo.
2 Quartos
3 WCs
Área útil : 119 m²
O horizonte da Meia Praia como extensão da sua sala Há um privilégio único em viver no segundo andar deste edifício: a sensação de que o oceano está sempre ao alcance do olhar. Em fase final de construção, este apartamento foi planeado para quem procura uma vida com mais luz, onde a arquitetura moderna se funde com a paisagem natural de Lagos. Situado a poucos metros da areia, este refúgio oferece o silêncio necessário para descansar, sem abdicar da proximidade da Marina e do pulsar do centro histórico. Amplitude e luz em cada detalhe Com uma área interior generosa de 119,2 metros quadrados, este T2+1 foi desenhado para proporcionar uma sensação de liberdade única: O seu Rooftop Exclusivo: No topo do edifício, terá um terraço privado que funciona como o seu miradouro particular. É o espaço perfeito para ver o sol desaparecer no horizonte ou para relaxar ao final do dia com total privacidade. Um layout que se adapta a si: Para além das duas suítes independentes, a divisão extra foi pensada para ser versátil, podendo tornar-se num escritório funcional ou num quarto de hóspedes acolhedor. Espaço para o que é importante: A conveniência de ter uma garagem box privativa para dois carros garante que o interior da sua casa seja apenas um lugar de harmonia e design, com espaço extra para todo o seu equipamento de lazer. Um lar desenhado para os 365 dias do ano Este projeto desafia a ideia de que uma casa de praia é apenas para o verão. Aqui, o bem-estar é garantido em qualquer estação: Conforto Térmico: O piso radiante em toda a habitação e o ar condicionado de última geração asseguram a temperatura ideal, enquanto a piscina coberta e aquecida do condomínio permite momentos de lazer mesmo em pleno inverno. Tecnologia e Qualidade: A cozinha está totalmente equipada com eletrodomésticos da marca Bosch (ou similar) e a eficiência energética é reforçada por sistemas de bomba de calor para o aquecimento de águas. Privacidade e Exclusividade Com apenas 8 frações no total, este edifício garante um ambiente calmo e reservado. A entrega está prevista para o primeiro semestre de 2026, sendo esta a oportunidade ideal para garantir um imóvel pronto a habitar com acabamentos de gama alta. Mais do que um investimento, este segundo andar é a promessa de um novo estilo de vida onde o mar é o protagonista constante. Está pronto para reservar o seu novo lar no Algarve? Entre em contacto para conhecer as plantas ou agendar a sua visita e assegure o seu lugar neste projeto único. #ref: 159349
AMI: 11220
Ref. Externa: 159349
Id: 1694867
Inicie sessão para guardar este imóvel e aceder à sua lista de favoritos em qualquer dispositivo.
2 Quartos
2 WCs
Área bruta : 67 m²
Exclusivo Apartamento T2 com Rooftop Privado e Vista Mar em Lagos Descubra este elegante apartamento T2, recentemente renovado, situado numa das localizações mais privilegiadas de Lagos, junto às históricas muralhas da cidade antiga. Uma propriedade que combina charme, conforto contemporâneo e vistas abertas sobre o centro histórico e o oceano Atlântico, oferecendo um estilo de vida verdadeiramente único no Algarve. A área social apresenta-se num moderno conceito open space, onde a sala de estar e a cozinha se integram harmoniosamente num ambiente luminoso, sofisticado e acolhedor. As amplas portas de vidro permitem uma abundante entrada de luz natural e proporcionam acesso direto a um agradável terraço, ideal para desfrutar de momentos de tranquilidade enquanto contempla a envolvente da cidade e o azul do mar. O apartamento dispõe de dois quartos confortáveis e duas elegantes casas de banho, todos situados no mesmo piso, oferecendo uma distribuição prática e funcional. A sua configuração torna esta propriedade perfeita tanto como residência permanente, casa de férias ou investimento imobiliário de elevado potencial. Um dos grandes destaques deste imóvel é o seu exclusivo terraço privado no rooftop, acessível através de uma escada a partir do terraço principal. Este espaço único oferece vistas panorâmicas absolutamente deslumbrantes sobre Lagos, a Meia Praia e o oceano, criando o cenário perfeito para relaxar ao final do dia, apanhar sol com total privacidade ou desfrutar de inesquecíveis jantares ao pôr do sol. A propriedade dispõe ainda de licença de Alojamento Local (AL) e apresenta um excelente histórico de rentabilidade, com uma faturação anual estimada entre 45.000€ e 50.000€, representando uma oportunidade particularmente atrativa para quem procura um investimento seguro e rentável no Algarve. A localização é, sem dúvida, um dos seus maiores trunfos. Situado a poucos minutos a pé do centro histórico de Lagos, o apartamento permite acesso fácil a restaurantes, bares, comércio local e todos os serviços essenciais. Em cerca de cinco minutos a pé encontra-se no coração da cidade, bem como em supermercados e no mercado municipal. A Marina de Lagos fica a aproximadamente dez minutos a pé, enquanto várias das praias mais emblemáticas da região se encontram a cerca de quinze minutos de distância. Nas imediações existe ainda abundante estacionamento gratuito, incluindo um amplo parque junto às muralhas da cidade. Esta é uma oportunidade rara de adquirir um imóvel com carácter, vistas privilegiadas e uma localização central, numa das cidades mais procuradas e valorizadas do Algarve. Para mais informações ou para agendar uma visita, terei todo o gosto em ajudá-lo. *Propriedade comercializada em regime de exclusividade. *Falo Francês, Português, Inglês e Espanhol. *Partilho comissão 50/50 com todas as agências. #ref: 835754
AMI: 11220
Ref. Externa: 835754
Id: 1694864
Inicie sessão para guardar este imóvel e aceder à sua lista de favoritos em qualquer dispositivo.
2 Quartos
3 WCs
Área útil : 119 m²
Onde o mar da Meia Praia se torna o seu jardim particular Imagine a sensação de acordar, caminhar poucos minutos e sentir a areia dourada da Meia Praia sob os pés. Este não é apenas mais um projeto imobiliário em Lagos; é um convite para abrandar o ritmo. Em fase final de construção, este edifício boutique foi desenhado para quem acredita que o luxo mora no espaço e no silêncio, com a encantadora Marina e o centro histórico de Lagos a volta. Espaço para criar memórias Esqueça os apartamentos apertados da cidade. Com uma área útil de 119,2 m², mais 13,2 m² de varanda, este T2+1 oferece a amplitude que a sua família merece. O grande destaque é o Rooftop Privativo: um terraço no topo do edifício, onde o final da tarde ganha outro sentido. Imagine-se a relaxar num jacuzzi ou a receber amigos para um jantar ao pôr-do-sol com o horizonte como cenário. No interior, as duas suítes garantem total privacidade, enquanto a divisão extra (+1) se adapta à sua vida — seja para aquele escritório que sempre planeou ou para um quarto de visitas acolhedor. Pensado também para a conveniência do dia a dia: terá uma garagem box privativa para dois carros e uma arrecadação independente, para que o interior da casa seja apenas um lugar de harmonia e design. Uma casa que o abraça todo o ano Muitas vezes, as casas de praia esquecem-se do inverno. Aqui, o conforto é uma prioridade constante. Poderá mergulhar na piscina coberta e aquecida em pleno janeiro ou sentir o conforto do piso radiante sob os pés nos dias mais frescos. A tecnologia está presente de forma invisível mas eficaz: desde o ar condicionado de última geração à cozinha totalmente equipada com eletrodomésticos Bosch (ou similares), até à eficiência sustentável da bomba de calor para o aquecimento de águas. Um refúgio para poucos Com apenas 8 frações, este é um projeto de baixa densidade onde a exclusividade não é uma palavra vã, mas sim uma garantia de privacidade. A entrega está prevista para o primeiro semestre de 2026, o que lhe dá o tempo ideal para planear esta nova etapa da sua vida num imóvel "chave na mão" com acabamentos de excelência. Mais do que um investimento seguro, este é o lugar onde o conforto encontra o oceano. Pronto a reservar sua casa de sonho no Algarve? Contacte-me e não perca esta grande oportunidade. #ref: 159294
AMI: 11220
Ref. Externa: 159294
Id: 1694849
Inicie sessão para guardar este imóvel e aceder à sua lista de favoritos em qualquer dispositivo.
2 Quartos
3 WCs
Área útil : 104 m²
A sua janela para o Atlântico: Onde o horizonte e o bem-estar se encontram Viver no segundo andar tem um encanto particular, especialmente quando a brisa da Meia Praia dita o ritmo dos seus dias. Este projeto, agora na sua fase final de acabamentos, foi pensado para quem procura um refúgio de luz onde o design moderno abraça a paisagem de forma natural. É o equilíbrio raro entre a calma de um bairro reservado e a proximidade da Marina de Lagos, tudo à distância de um breve passeio a pé. Um refúgio com espaço para tudo Com uma área interior de 104,45 metros quadrados, complementada por uma varanda de 10,6 metros quadrados, este T2+1 afasta-se do conceito de apartamentos apertados. Aqui, o espaço foi desenhado para acompanhar a sua vida: O seu Miradouro Privativo: No topo do edifício, terá à sua espera um rooftop exclusivo. É o cenário ideal para criar uma zona de lounge onde poderá ver o sol mergulhar no oceano em cada final de tarde, com total privacidade. Versatilidade e Conforto: Para além das duas suítes principais, a divisão adicional é o lugar perfeito para aquele escritório com luz natural ou para receber visitas com todo o conforto. Conveniência Prática: A pensar no dia a dia, o apartamento inclui uma garagem box privativa com espaço generoso para dois carros, oferecendo ainda margem para guardar o seu equipamento de lazer ou de praia com toda a segurança. Uma casa preparada para todas as estações Este imóvel foi projetado para que o luxo seja vivido o ano inteiro, e não apenas nas férias de verão: Invernos Acolhedores: Pode desfrutar do conforto do piso radiante em toda a casa ou dar um mergulho na piscina coberta e aquecida do edifício mesmo nos dias mais frios. Alta Tecnologia: A cozinha conta com a qualidade superior da marca Bosch (ou similar), enquanto a climatização de última geração e a bomba de calor garantem uma eficiência energética exemplar. A exclusividade de um segredo bem guardado Num edifício com apenas 8 unidades, a paz e a privacidade são aspetos fundamentais. Com entrega prevista para o primeiro semestre de 2026, esta é a oportunidade de garantir uma casa pronta a habitar, com acabamentos de gama alta e uma qualidade de construção que honra a vista que tem à sua frente. Mais do que um simples apartamento, este segundo andar é o palco onde a sua nova história começa, sempre com o azul do mar como pano de fundo. Está pronto para garantir o seu lugar neste refúgio no Algarve? Entre em contacto hoje mesmo para assegurar a sua fração. #ref: 159319
AMI: 11220
Ref. Externa: 159319
Id: 1694848
Inicie sessão para guardar este imóvel e aceder à sua lista de favoritos em qualquer dispositivo.
2 Quartos
3 WCs
Área útil : 119 m²
Onde o Azul do Mar da Meia Praia se torna o seu cenário diário Imagine a sensação de acordar, abrir as janelas e deixar que a brisa do Atlântico entre livremente. No segundo andar deste exclusivo edifício, a sua perspetiva muda: aqui, a proximidade da Meia Praia ganha a moldura do horizonte. Em fase final de construção, este não é apenas um apartamento em Lagos; é um convite para viver com os olhos postos no mar, mantendo a Marina e o centro histórico à distância de um curto e agradável passeio. Uma varanda para o horizonte Viver num segundo andar traz uma liberdade diferente. Com uma área útil de 119 m², este T2+1 foi desenhado para quem não quer escolher entre espaço e vista. O seu Rooftop Privativo: Como estamos no plano mais elevado, o seu terraço no topo do edifício torna-se o camarote perfeito. É o lugar onde o final de tarde ganha outra dimensão — imagine-se a relaxar num jacuzzi privativo, com o sol a esconder-se no mar e o horizonte a perder de vista. Amplitude Interior: Com 119,2 m² de área útil e uma varanda de 13,2 m², o espaço flui naturalmente. As duas suítes garantem o refúgio que procura, enquanto a divisão extra (+1) se molda aos seus planos — seja aquele escritório com luz natural ou um quarto de hóspedes acolhedor. Conveniência Total: Terá à disposição uma garagem box privativa para dois carros, onde também poderá guardar seus elementos de praia. Conforto que abraça as estações Este é um lar pensado para ser vivido intensamente, tanto nos veraõs radiantes como nos invernos tranquilos do Algarve. Poderá descer para um mergulho na piscina coberta e aquecida em pleno janeiro ou sentir o conforto térmico do piso radiante sob os pés nos dias mais frescos. A tecnologia e o design andam de mãos dadas: desde a cozinha de alta gama totalmente equipada com eletrodomésticos Bosch (ou similares) à eficiência sustentável da bomba de calor. Tudo foi planeado para que a sua única preocupação seja apreciar a vista. Apenas para 8 privilegiados A exclusividade aqui não é apenas um detalhe, é a estrutura do projeto. Num edifício de apenas 8 frações, a privacidade e o silêncio são garantidos. Com entrega prevista para o primeiro semestre de 2026, este é o momento ideal para garantir um imóvel "chave na mão" com acabamentos de excelência e uma localização irrepetível. Mais do que um investimento imobiliário, este segundo andar é o lugar onde o seu novo estilo de vida encontra a imensidão do oceano. Está pronto para ver o mar de outra perspetiva? Entre em contacto para conhecermos as plantas e agendarmos a sua visita. #ref: 159297
AMI: 11220
Ref. Externa: 159297
Id: 1694817
Inicie sessão para guardar este imóvel e aceder à sua lista de favoritos em qualquer dispositivo.
2 Quartos
3 WCs
Área útil : 104 m²
A sua varanda sobre o Atlântico: Onde o horizonte e o conforto se encontram Há algo de transformador em viver no segundo andar, especialmente quando o mar da Meia Praia está a apenas alguns passos. Nesta fase final de construção, este apartamento surge como um refúgio de luz, onde o design contemporâneo foi pensado para abraçar a paisagem. Aqui, vive-se o melhor de dois mundos: a tranquilidade de um refúgio exclusivo e a proximidade vibrante da Marina de Lagos. Espaço desenhado para a liberdade Com 104,2 metros quadrados de área interior e uma varanda de 13,2 metros quadrados que convida a brisa a entrar, este T2+1 não é apenas uma casa, é um palco para a sua nova vida: O seu Miradouro Privativo: No topo do edifício, terá acesso a um rooftop exclusivo. É o local ideal para uma zona de lounge, onde poderá ver o sol mergulhar no oceano em cada pôr de sol. Versatilidade Extra: As duas suítes oferecem o máximo conforto, enquanto a divisão adicional (+1) é o espaço perfeito para aquele escritório com que sempre sonhou ou para receber a família com total hospitalidade. Logística sem Esforço: A conveniência está presente até nos detalhes práticos. O apartamento dispõe de uma garagem box privativa com espaço generoso para dois carros onde poderá ter um extra para o seu equipamento de lazer ou de praia. Bem-estar sem olhar ao calendário Esqueça a sazonalidade. Este imóvel foi projetado para oferecer uma experiência de luxo 365 dias por ano: Invernos Acolhedores: Sinta o conforto térmico do piso radiante em toda a casa e desfrute de mergulhos relaxantes na piscina coberta e aquecida do condomínio. Tecnologia de Ponta: A cozinha está equipada com a excelência da marca Bosch (ou similar) e a climatização é garantida por sistemas de ar condicionado de última geração e bombas de calor de alta eficiência. Um segredo bem guardado em Lagos Inserido num edifício de apenas 8 unidades, aqui a privacidade é absoluta. Com a conclusão prevista para o primeiro semestre de 2026, esta é a oportunidade de garantir uma casa chave na mão com acabamentos de gama alta, onde a qualidade de construção é tão impressionante quanto a vista. Mais do que um apartamento, este segundo andar é o cenário onde a sua nova história começa, com o azul do mar como fundo. Está pronto para reservar o seu novo lar no Algarve? Entre em contacto hoje mesmo para assegurar a sua fração. #ref: 159315
AMI: 11220
Ref. Externa: 159315
Id: 1694809
Inicie sessão para guardar este imóvel e aceder à sua lista de favoritos em qualquer dispositivo.
2 Quartos
3 WCs
Área útil : 104 m²
O seu novo refúgio na Meia Praia: Design, espaço e o mar de Lagos à porta Este edifício, já na reta final de construção, foi pensado para quem não abdica de espaço nem da proximidade ao mar. Situado a poucos passos da icónica Meia Praia, este é o equilíbrio perfeito entre o silêncio de um bairro exclusivo e a conveniência de ter a Marina de Lagos e o centro histórico mesmo ali ao lado. Espaço para viver e respirar Com uma área total impressionante de 282 m², este T2+1 destaca-se pela amplitude que raramente se encontra em apartamentos novos. Aqui, os metros quadrados traduzem-se em conforto real: Terraço Privativo: Um rooftop no topo do edifício preparado para ser o seu espaço de relax, com potencial para instalar um jacuzzi e criar uma zona de lazer com vista para o pôr-do-sol. Garagem e Arrumação: Inclui uma garagem em box com espaço para um carro e uma arrecadação privativa, garantindo que a organização da casa nunca seja um problema. Versatilidade T2+1: Além das duas suítes principais, conta com um espaço adicional flexível, ideal para um escritório ou um terceiro quarto. Conforto em qualquer estação Esqueça a ideia de que as casas de praia são apenas para o verão. Este empreendimento foi projetado para oferecer bem-estar o ano inteiro: Piscina Aquecida e Coberta: Para nadar em qualquer mês do ano. Tecnologia de Climatização:Equipado com piso radiante elétrico em toda a habitação e ar condicionado de última geração. Cozinha de Chef: Totalmente equipada com eletrodomésticos Bosch (ou similar). Eficiência:Sistema de águas aquecidas por bomba de calor, maximizando a poupança energética. Exclusividade e Entrega Com apenas 8 frações no total, a privacidade é uma garantia. A entrega está prevista para o primeiro semestre de 2026, permitindo-lhe planear a sua mudança para uma casa "chave na mão" com acabamentos de gama alta. Mais do que um apartamento, este é um investimento num estilo de vida onde o conforto é a prioridade. Interessado em conhecer as plantas ou visitar a obra? Entre em contacto para agendarmos uma reunião. #ref: 159270
AMI: 11220
Ref. Externa: 159270
Id: 1694777
Inicie sessão para guardar este imóvel e aceder à sua lista de favoritos em qualquer dispositivo.
2 Quartos
2 WCs
Área bruta : 127 m²
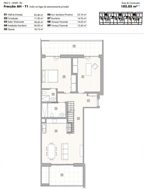
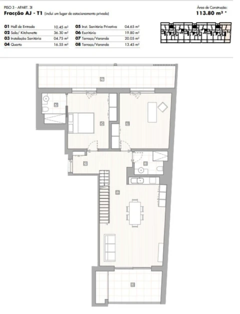
Este fantástico apartamento T2 situa-se no 1º piso deste empreendimento de luxo. O apartamento conta com dois quartos (um em suíte), uma casa de banho social, uma cozinha totalmente equipada com equipamentos Bosch, uma sala de boas dimensões. Todas as divisões do apartamento com ar condicionado.. . O apartamento em questão conta ainda com 1 lugar de estacionamento na garagem do condomínio.. . Empreendimento residencial de excelência localizado em Lagos, numa zona privilegiada e tranquila, a aproximadamente 800 metros da praia. Este projeto destaca-se pela sua arquitetura moderna, elevada qualidade de construção e atenção ao detalhe, proporcionando conforto e bem-estar.. . O empreendimento oferece apartamentos de tipologias T1, T2 e T3, concebidos para responder às diferentes necessidades de habitação, seja para residência permanente, casa de férias ou investimento.. . Entre as comodidades disponíveis, destaca-se a piscina comum do empreendimento, ideal para momentos de lazer e convívio. Alguns apartamentos beneficiam ainda de piscina privada e jacuzzi, proporcionando um ambiente exclusivo e maior privacidade aos seus residentes.. . A localização privilegiada permite fácil acesso às praias, comércio, restaurantes e serviços, combinando a tranquilidade de uma zona residencial com a proximidade ao melhor que Lagos tem para oferecer.. . A destacar no final das fotos existe uma tabela com as características e valores para cada apartamento.. . Agende já a sua visita.. . PISO 0:. - Fração E (T1) – 445.000€. - Fração K (T1) – 445.000€. - Fração G (T1) – 465.000€. - Fração H (T1) – 465.000€. - Fração J (T1) – 475.000€. - Fração N (T1) – 475.000€. - Fração P (T1) – 485.000€. - Fração O (T1) – 685.000€*. - Fração C (T2) – 655.000€. - Fração D (T2) – 665.000€. - Fração A (T2) – 665.000€*. - Fração L (T2) – 675.000€. - Fração B (T2) – 685.000€*. - Fração F (T2) – 735.000€*. - Fração I (T2) – 765.000€*. - Fração M (T2) – 785.000€. PISO 1:. - Fração AB (T1) – 465.000€ (RESERVADO). - Fração Y (T1) – 475.000€. - Fração AE (T1) – 475.000€. - Fração AA (T1) – 495.000€. - Fração AH (T1) – 495.000€*. - Fração AI (T1) – 525.000€. - Fração AJ (T2) – 575.000€*. - Fração AF (T2) – 675.000€*. - Fração AD (T2) – 675.000€. - Fração X (T2) – 675.000€. - Fração V (T2) – 675.000€*. - Fração T (T2) – 685.000€. - Fração AG (T2) – 685.000€. - Fração Z (T2) – 695.000€*. - Fração U (T2) – 695.000€*. - Fração AC (T2) – 715.000€*. PISO 2:. - Fração AS (T1) – 625.000€*. - Fração AN (T1) – 625.000€*. - Fração AM (T1) – 625.000€*. - Fração AP (T1) – 635.000€. - Fração AW (T1) – 685.000€*. - Fração AV (T1) – 725.000€ (RESERVADO). - Fração AL (T2) – 795.000€*. - Fração AU (T2) – 825.000€. - Fração AR (T2) – VENDIDO. - Fração AO (T2) – 925.000€*. - Fração AQ (T3) – 1.345.000€*. - Fração AT (T3) – 1.375.000€*. - Fração AK (T3) – 1.395.000€*. . *Disponível mediante confirmação
AMI: 21448
Ref. Externa: 00743_2026/12048
Id: 1694702
Inicie sessão para guardar este imóvel e aceder à sua lista de favoritos em qualquer dispositivo.
2 Quartos
2 WCs
Área bruta : 183 m²
Apartamento T2 em empreendimento de luxo. O apartamento conta com dois quartos, uma cozinha totalmente equipada com equipamentos Bosch, uma sala de boas dimensões. Todas as divisões do apartamento com ar condicionado. Varanda/terraço com 42,59 m2 e logradouro privado de 29,35 m2, garagem em box de 35,55 m2 com acesso direto do apartamento.. . Empreendimento residencial de excelência localizado em Lagos, numa zona privilegiada e tranquila, a aproximadamente 800 metros da praia. Este projeto destaca-se pela sua arquitetura moderna, elevada qualidade de construção e atenção ao detalhe, proporcionando conforto e bem-estar.. . O empreendimento oferece apartamentos de tipologias T1, T2 e T3, concebidos para responder às diferentes necessidades de habitação, seja para residência permanente, casa de férias ou investimento.. . Entre as comodidades disponíveis, destaca-se a piscina comum do empreendimento, ideal para momentos de lazer e convívio. Alguns apartamentos beneficiam ainda de piscina privada e jacuzzi, proporcionando um ambiente exclusivo e maior privacidade aos seus residentes.. . A localização privilegiada permite fácil acesso às praias, comércio, restaurantes e serviços, combinando a tranquilidade de uma zona residencial com a proximidade ao melhor que Lagos tem para oferecer.. . A destacar no final das fotos existe uma tabela com as características e valores para cada apartamento.. . Agende já a sua visita.. . .
AMI: 21448
Ref. Externa: 00742_2026/12048
Id: 1694700
Inicie sessão para guardar este imóvel e aceder à sua lista de favoritos em qualquer dispositivo.
2 Quartos
2 WCs
Área bruta : 242 m²
Este fantástico apartamento T2 conta com dois quartos, uma cozinha totalmente equipada com equipamentos Bosch, uma sala de boas dimensões. Todas as divisões com ar condicionado. . Varanda/terraço com 70,40 m2 e logradouro privado de 48,40 m2, garagem em box de 28,15 m2 com acesso direto do apartamento. Piscina privada de 18 m2.. . Empreendimento residencial de excelência localizado em Lagos, numa zona privilegiada e tranquila, a aproximadamente 800 metros da praia. Este projeto destaca-se pela sua arquitetura moderna, elevada qualidade de construção e atenção ao detalhe, proporcionando conforto e bem-estar.. . O empreendimento oferece apartamentos de tipologias T1, T2 e T3, concebidos para responder às diferentes necessidades de habitação, seja para residência permanente, casa de férias ou investimento.. . Entre as comodidades disponíveis, destaca-se a piscina comum do empreendimento, ideal para momentos de lazer e convívio. Alguns apartamentos beneficiam ainda de piscina privada e jacuzzi, proporcionando um ambiente exclusivo e maior privacidade aos seus residentes.. . A localização privilegiada permite fácil acesso às praias, comércio, restaurantes e serviços, combinando a tranquilidade de uma zona residencial com a proximidade ao melhor que Lagos tem para oferecer.. . A destacar no final das fotos existe uma tabela com as características e valores para cada apartamento.. . Agende já a sua visita.. . .
AMI: 21448
Ref. Externa: 00741_2026/12048
Id: 1694699
Inicie sessão para guardar este imóvel e aceder à sua lista de favoritos em qualquer dispositivo.
1 Quartos
1 WCs
Área bruta : 99 m²
Este fantástico apartamento T1 situa-se no 1º piso deste empreendimento de luxo. O apartamento conta com um quarto, uma cozinha totalmente equipada com equipamentos Bosch, uma sala de boas dimensões. Todas as divisões do apartamento com ar condicionado.. . O apartamento em questão conta ainda com 2 lugares de estacionamento na garagem do condomínio.. . Empreendimento residencial de excelência localizado em Lagos, numa zona privilegiada e tranquila, a aproximadamente 800 metros da praia. Este projeto destaca-se pela sua arquitetura moderna, elevada qualidade de construção e atenção ao detalhe, proporcionando conforto e bem-estar.. . O empreendimento oferece apartamentos de tipologias T1, T2 e T3, concebidos para responder às diferentes necessidades de habitação, seja para residência permanente, casa de férias ou investimento.. . Entre as comodidades disponíveis, destaca-se a piscina comum do empreendimento, ideal para momentos de lazer e convívio. Alguns apartamentos beneficiam ainda de piscina privada e jacuzzi, proporcionando um ambiente exclusivo e maior privacidade aos seus residentes.. . A localização privilegiada permite fácil acesso às praias, comércio, restaurantes e serviços, combinando a tranquilidade de uma zona residencial com a proximidade ao melhor que Lagos tem para oferecer.. . A destacar no final das fotos existe uma tabela com as características e valores para cada apartamento.. . Agende já a sua visita.. . PISO 0:. - Fração E (T1) – 445.000€. - Fração K (T1) – 445.000€. - Fração G (T1) – 465.000€. - Fração H (T1) – 465.000€. - Fração J (T1) – 475.000€. - Fração N (T1) – 475.000€. - Fração P (T1) – 485.000€. - Fração O (T1) – 685.000€*. - Fração C (T2) – 655.000€. - Fração D (T2) – 665.000€. - Fração A (T2) – 665.000€*. - Fração L (T2) – 675.000€. - Fração B (T2) – 685.000€*. - Fração F (T2) – 735.000€*. - Fração I (T2) – 765.000€*. - Fração M (T2) – 785.000€. PISO 1:. - Fração AB (T1) – 465.000€ (RESERVADO). - Fração Y (T1) – 475.000€. - Fração AE (T1) – 475.000€. - Fração AA (T1) – 495.000€. - Fração AH (T1) – 495.000€*. - Fração AI (T1) – 525.000€. - Fração AJ (T2) – 575.000€*. - Fração AF (T2) – 675.000€*. - Fração AD (T2) – 675.000€. - Fração X (T2) – 675.000€. - Fração V (T2) – 675.000€*. - Fração T (T2) – 685.000€. - Fração AG (T2) – 685.000€. - Fração Z (T2) – 695.000€*. - Fração U (T2) – 695.000€*. - Fração AC (T2) – 715.000€*. PISO 2:. - Fração AS (T1) – 625.000€*. - Fração AN (T1) – 625.000€*. - Fração AM (T1) – 625.000€*. - Fração AP (T1) – 635.000€. - Fração AW (T1) – 685.000€*. - Fração AV (T1) – 725.000€ (RESERVADO). - Fração AL (T2) – 795.000€*. - Fração AU (T2) – 825.000€. - Fração AR (T2) – VENDIDO. - Fração AO (T2) – 925.000€*. - Fração AQ (T3) – 1.345.000€*. - Fração AT (T3) – 1.375.000€*. - Fração AK (T3) – 1.395.000€*. . *Disponível mediante confirmação
AMI: 21448
Ref. Externa: 00740_2026/12048
Id: 1694701
Inicie sessão para guardar este imóvel e aceder à sua lista de favoritos em qualquer dispositivo.
1 Quartos
1 WCs
Área bruta : 143 m²
Este fantástico apartamento T1 situa-se no piso 0 deste empreendimento de luxo. O apartamento conta com um quarto, uma cozinha totalmente equipada com equipamentos Bosch, uma sala de boas dimensões. Todas as divisões do apartamento com ar condicionado. Varanda/terraço com 28,31 m2 e logradouro privado de 25,34 m2.. . O apartamento em questão conta ainda com garagem em box, com acesso direto do apartamento.. . Empreendimento residencial de excelência localizado em Lagos, numa zona privilegiada e tranquila, a aproximadamente 800 metros da praia. Este projeto destaca-se pela sua arquitetura moderna, elevada qualidade de construção e atenção ao detalhe, proporcionando conforto e bem-estar.. . O empreendimento oferece apartamentos de tipologias T1, T2 e T3, concebidos para responder às diferentes necessidades de habitação, seja para residência permanente, casa de férias ou investimento.. . Entre as comodidades disponíveis, destaca-se a piscina comum do empreendimento, ideal para momentos de lazer e convívio. Alguns apartamentos beneficiam ainda de piscina privada e jacuzzi, proporcionando um ambiente exclusivo e maior privacidade aos seus residentes.. . A localização privilegiada permite fácil acesso às praias, comércio, restaurantes e serviços, combinando a tranquilidade de uma zona residencial com a proximidade ao melhor que Lagos tem para oferecer.. . A destacar no final das fotos existe uma tabela com as características e valores para cada apartamento.. . Agende já a sua visita.. . .
AMI: 21448
Ref. Externa: 00738_2026/12048
Id: 1694698
Inicie sessão para guardar este imóvel e aceder à sua lista de favoritos em qualquer dispositivo.
3 Quartos
2 WCs
Área bruta : 162 m²
Apartamento Duplex Exclusivo no Último Andar em Lagos, Algarve, Portugal Descubra o equilíbrio perfeito entre conforto, elegância e funcionalidade. Os apartamentos duplex do último andar foram cuidadosamente projetados com amplas áreas de estar em plano aberto, proporcionando uma sensação de amplitude e modernidade. As áreas sociais conectam-se de forma harmoniosa às generosas varandas privativas, criando o ambiente ideal para relaxar ao ar livre ou receber amigos e familiares. Localizados a apenas 5 minutos da deslumbrante Praia de Porto de Mós e perto de escolas, supermercados, restaurantes, hospital e toda a oferta de comércio e serviços de Lagos, proporcionando o equilíbrio ideal entre a energia urbana e a serenidade do oceano. Características e Comodidades Design contemporâneo Ambientes integrados Varandas espaçosas para momentos únicos Conforto e exclusividade no topo do edifício Ar-condicionado Pavimento aquecido Estores elétricos Cozinha equipada Sistema solar Domótica Materiais de alta qualidade e excelentes isolamentos Fibra (internet) Ampla piscina exterior Ginásio Estacionamento privado interior Viva a experiência de morar em um espaço que eleva seu estilo de vida. Uma escolha ideal para residência, férias ou investimento com alta valorização assegurada. Com conclusão prevista para dezembro de 2028.
AMI: 15244
Ref. Externa: 2538 - 23AC3B
Id: 1694624
Inicie sessão para guardar este imóvel e aceder à sua lista de favoritos em qualquer dispositivo.
2 Quartos
2 WCs
Área bruta : 134 m²
Apartamento novo com piscina e garagem no cento de Lagos, Algarve, Portugal. Exclusividade, Design e Qualidade no Coração de Lagos. Dois empreendimentos únicos, compostos por 65 apartamentos de design contemporâneo, criados com materiais de excelência e atenção a cada detalhe. A apenas 5 minutos da deslumbrante Praia de Porto de Mós, estes projetos oferecem proximidade a escolas, supermercado, restaurantes, hospital e toda a oferta de comércio e serviços de Lagos, o equilíbrio perfeito entre a energia da cidade e a serenidade do oceano. Com conclusão prevista para dezembro de 2028, estes empreendimentos redefinem o conceito de habitação moderna. Mais do que um lugar para viver, são uma experiência de conforto, elegância e bem-estar em perfeita harmonia. Apartamentos modernos e luminosos com acabamentos premium e localização privilegiada. Características - Ar-Condicionado - Pavimento Aquecido - Estores Elétricos - Cozinha Equipada - Sistema Solar - Domótica - Materiais de Qualidade e Excelentes Isolamentos - Fibra (Internet) - Ampla Piscina Exterior - Ginásio - Estacionamento Privado Interior Onde cada detalhe transforma o dia a dia em inspiração. Ideal para residência, férias ou investimento.
AMI: 15244
Ref. Externa: 2538 - 22J1B
Id: 1694623
Inicie sessão para guardar este imóvel e aceder à sua lista de favoritos em qualquer dispositivo.
2 Quartos
2 WCs
Área bruta : 134 m²
Apartamento novo com piscina e garagem no cento de Lagos, Algarve, Portugal. Exclusividade, Design e Qualidade no Coração de Lagos. Dois empreendimentos únicos, compostos por 65 apartamentos de design contemporâneo, criados com materiais de excelência e atenção a cada detalhe. A apenas 5 minutos da deslumbrante Praia de Porto de Mós, estes projetos oferecem proximidade a escolas, supermercado, restaurantes, hospital e toda a oferta de comércio e serviços de Lagos, o equilíbrio perfeito entre a energia da cidade e a serenidade do oceano. Com conclusão prevista para dezembro de 2028, estes empreendimentos redefinem o conceito de habitação moderna. Mais do que um lugar para viver, são uma experiência de conforto, elegância e bem-estar em perfeita harmonia. Apartamentos modernos e luminosos com acabamentos premium e localização privilegiada. Características - Ar-Condicionado - Pavimento Aquecido - Estores Elétricos - Cozinha Equipada - Sistema Solar - Domótica - Materiais de Qualidade e Excelentes Isolamentos - Fibra (Internet) - Ampla Piscina Exterior - Ginásio - Estacionamento Privado Interior Onde cada detalhe transforma o dia a dia em inspiração. Ideal para residência, férias ou investimento.
AMI: 15244
Ref. Externa: 2538 - 22R2A
Id: 1694622
Inicie sessão para guardar este imóvel e aceder à sua lista de favoritos em qualquer dispositivo.
2 Quartos
2 WCs
Área bruta : 116 m²
Apartamento novo com piscina e garagem no cento de Lagos, Algarve, Portugal. Exclusividade, Design e Qualidade no Coração de Lagos. Dois empreendimentos únicos, compostos por 65 apartamentos de design contemporâneo, criados com materiais de excelência e atenção a cada detalhe. A apenas 5 minutos da deslumbrante Praia de Porto de Mós, estes projetos oferecem proximidade a escolas, supermercado, restaurantes, hospital e toda a oferta de comércio e serviços de Lagos, o equilíbrio perfeito entre a energia da cidade e a serenidade do oceano. Com conclusão prevista para dezembro de 2028, estes empreendimentos redefinem o conceito de habitação moderna. Mais do que um lugar para viver, são uma experiência de conforto, elegância e bem-estar em perfeita harmonia. Apartamentos modernos e luminosos com acabamentos premium e localização privilegiada. Características - Ar-Condicionado - Pavimento Aquecido - Estores Elétricos - Cozinha Equipada - Sistema Solar - Domótica - Materiais de Qualidade e Excelentes Isolamentos - Fibra (Internet) - Ampla Piscina Exterior - Ginásio - Estacionamento Privado Interior Onde cada detalhe transforma o dia a dia em inspiração. Ideal para residência, férias ou investimento.
AMI: 15244
Ref. Externa: 2538 - 22V2E
Id: 1694621
Inicie sessão para guardar este imóvel e aceder à sua lista de favoritos em qualquer dispositivo.
2 Quartos
2 WCs
Área bruta : 110 m²
Apartamento novo com piscina e garagem no cento de Lagos, Algarve, Portugal. Exclusividade, Design e Qualidade no Coração de Lagos. Dois empreendimentos únicos, compostos por 65 apartamentos de design contemporâneo, criados com materiais de excelência e atenção a cada detalhe. A apenas 5 minutos da deslumbrante Praia de Porto de Mós, estes projetos oferecem proximidade a escolas, supermercado, restaurantes, hospital e toda a oferta de comércio e serviços de Lagos, o equilíbrio perfeito entre a energia da cidade e a serenidade do oceano. Com conclusão prevista para dezembro de 2028, estes empreendimentos redefinem o conceito de habitação moderna. Mais do que um lugar para viver, são uma experiência de conforto, elegância e bem-estar em perfeita harmonia. Apartamentos modernos e luminosos com acabamentos premium e localização privilegiada. Características - Ar-Condicionado - Pavimento Aquecido - Estores Elétricos - Cozinha Equipada - Sistema Solar - Domótica - Materiais de Qualidade e Excelentes Isolamentos - Fibra (Internet) - Ampla Piscina Exterior - Ginásio - Estacionamento Privado Interior Onde cada detalhe transforma o dia a dia em inspiração. Ideal para residência, férias ou investimento.
AMI: 15244
Ref. Externa: 2538 - 22AH3G
Id: 1694620
Inicie sessão para guardar este imóvel e aceder à sua lista de favoritos em qualquer dispositivo.
Estes agentes são especialistas nesta zona:
Inicie sessão para ocultar este imóvel das suas pesquisas e manter a sua lista de resultados organizada.
© Copyright 2023 | CASACERTA. All rights reserved
Guardar favoritos
Este imóvel foi guardados nos seus favoritos com sucesso.
Para poder guardar pesquisa deverá ter a sua sessão iniciada.
Caso não tenha uma conta, deverá criar uma.
A sua pesquisa foi guardada com sucesso!
Este site utiliza cookies. Ao navegar no site estará a consentir a sua utilização.
Para mais informações sobre os cookies pode consultar a
política de privacidade.