Lista
Comprar
Arrendar
2 Quartos
2 WCs
Área bruta : 115 m²
Descubra este elegante apartamento T2, inserido num edifício moderno na prestigiada zona dos Barreiros, em São Martinho – uma das áreas mais valorizadas do Funchal. Com um design moderno e acabamentos de elevada qualidade, este imóvel oferece o equilíbrio perfeito entre conforto, funcionalidade e localização. A disposição é prática e bem pensada, começando pela cozinha totalmente equipada, que integra a zona de lavandaria e tem passagem direta para uma ampla sala de estar e de jantar, com acesso à varanda, onde poderá desfrutar de uma vista deslumbrante sobre a cidade e de agradáveis momentos ao ar livre. Na área mais privada encontra-se a suite com casa de banho privativa, um segundo quarto e uma casa de banho social. Principais características: • 1 lugar de estacionamento em garagem coberta • Arrecadação privativa no piso inferior • Estores elétricos e caixilharia com vidro duplo • Pré-instalação de ar condicionado • Materiais e equipamentos de elevada qualidade • Elevador e acessos adaptados A sua localização é simplesmente ideal: próxima de supermercados, escolas, farmácias, cafés e com acesso rápido à via rápida, garantindo uma excelente qualidade de vida e toda a comodidade do dia a dia. Se procura viver ou investir numa das zonas mais procuradas do Funchal, este apartamento é uma oportunidade imperdível. Partilhamos o imóvel com todas as agências AMI em regime de 50%-50% e acompanhamos todo o processo — desde a análise documental e apoio jurídico até ao seguimento técnico da obra. Para maior facilidade na identificação deste imóvel, refira o correspondente KWPT- KWPT-022888 2-bedroom apartment in Barreiros – Funchal Discover this elegant 2-bedroom apartment, located in a modern building in the prestigious Barreiros area of São Martinho – one of the most sought-after areas of Funchal. With a modern design and high-quality finishes, this property offers the perfect balance between comfort, functionality, and location. The layout is practical and well thought out, starting with the fully equipped kitchen, which integrates the laundry area and has direct access to a spacious living and dining room, with access to the balcony, where you can enjoy stunning views over the city and pleasant moments outdoors. In the more private area, you will find the suite with an en-suite bathroom, a second bedroom, and a guest bathroom. Main features: • 1 parking space in covered garage • Private storage room on the lower floor • Electric blinds and double-glazed windows • Pre-installation of air conditioning • High-quality materials and equipment • Elevator and adapted access Its location is simply ideal: close to supermarkets, schools, pharmacies, cafes and with quick access to the highway, guaranteeing an excellent quality of life and all the convenience of everyday life. If you are looking to live or invest in one of the most sought-after areas of Funchal, this apartment is an unmissable opportunity. We share the property with all AMI agencies on a 50%-50% basis and accompany the entire process — from document analysis and legal support to the technical follow-up of the work. For easier identification of this property, please refer to the corresponding KWPT- KWPT-022888
AMI: 13132
Ref. Externa: KWPT-022888
Id: 1558374
Inicie sessão para guardar este imóvel e aceder à sua lista de favoritos em qualquer dispositivo.
2 Quartos
2 WCs
Área útil : 110 m²
VENDO APARTAMENTO T2 NA CASA BRANCA, FUNCHAL.Vendo apartamento em excelente estado de conservação completamente novo, vista mar com acabamentos de qualidade superior, encontra-se inserido em condomínio privado, com elevador, 1 estacionamento em garagem coberta, com tomadas para carregar carros elétricos, arrecadação, lavandaria, suíte ampla com armários embutidos, portas lacadas a branco sala generosa, quarto dormir, casa de banho social, cozinha ampla com eletrodomésticos da ultima geração e 2 varandas com vista mar viradas a sul. . De salientar que o apartamento está virado a sul em uma das mais prestigiadas e procuradas zonas da cidade do Funchal, a Zona Hoteleira.A sua localização, com excelentes acessibilidades da acesso a todo o tipo de comércio, serviços e transportes públicos, situando-se a curta distância do centro da cidade do Funchal, praias, e nas proximidades, jardins públicos, ginásios, shopping e hotéis, restaurantes.PREÇO-475.000€ Não deixe esta oportunidade escapar AGENDE A SUA VISITA -Trato de todo o processo e apresento o melhor crédito bancário do mercado, ajudando a encontrar a melhor oferta junto das diversas instituições Bancárias, pois somos intermediários de crédito autorizados pelo Banco de Portugal.Conte com o meu empenho, a excelência e a minha ajuda.Confie no meu profissionalismo e na Predimed nas decisões mais importantes da sua vida.Para mais informações e marcação de visita, contacte-me:Mais InformaçõesFernando Ornelas+351 915407300Whatsapp [email protected] Imobiliária, Mediação Imobiliária, Lda.Avenida Brasil 43, 12º Andar, 1700-062 LisboaLicença AMI nº 22503Pessoa Coletiva nº 517 239 345Seguro Responsabilidade Civil: Nº de Apólice RC65379424 Fidelidade Características: Água Quente Solar;Alarme;Banheira;Bomba de calor;Cofre;Combinado;Cozinha equipada;Detector de Fumos;Detector de Gás;Detector de Incêndio;Divisórias Amovíveis;Elevador;Forno;Frigorífico;Gás Canalizado;Isolamento Térmico;Janelas duplas;Ligação Wi-Fi;Luzes de emergência;Máquina de Lavar Louça;Máquina de Lavar Roupa;Microondas;Piso Flutuante;Piso Radiante;Placa de Indução;Poliban;Porta Alta Segurança;Porta Blindada;Porta Corta Fogo;Portão Eléctrico;Pré-Instalação Alarme;Pré-Instalação Ar Condicionado;Pré-Instalação de Internet;Pré-Instalação de TV por Cabo;Roupeiros;Termoacumulador;Vídeo Porteiro;Vidros Duplos
AMI: 13558
Ref. Externa: 057543
Id: 1558308
Inicie sessão para guardar este imóvel e aceder à sua lista de favoritos em qualquer dispositivo.
2 Quartos
2 WCs
Área bruta : 129 m²
-------------------------------------- **** CRYPTO ACCEPTED **** ** LEGALISED BY NOTARY ** * find out more - contact us * -------------------------------------- Apartamento T2 - Edificio Alameda Formosa. Um dos mais prestigiados Edifícios da Zona da Ajuda. Excelente localização , perto de todos os serviços , bem como a paria Formosa, o Forum Shopping Center. Edificio de excelência e prestigio com áreas acima da media. Apartamento composto por : - Uma sala com cerca de 35m2 - Dois quartos ( um deles em suite e ar condicionado) - Cozinha equipada - Arrecadação dentro do Apartamento - Paineis solares - Varanda Não perca tempo, marque já a sua visita! Nuno Quaresma (+351) 966 555 816 chamada para rede móvel nacional
AMI: 10701
Ref. Externa: 11657-NQ
Id: 1556159
Inicie sessão para guardar este imóvel e aceder à sua lista de favoritos em qualquer dispositivo.
1 Quartos
1 WCs
Área bruta : 85 m²
Apartamento T1 nos Barreiros — Qualidade, Comodidade e Espaço Exterior Apresentamos este elegante apartamento T1, situado na zona dos Barreiros, uma localização privilegiada, tranquila e muito bem servida de transportes públicos. Nas imediações encontra uma variada oferta de comércio e serviços, garantindo praticidade no dia a dia. Inserido em prédio moderno com piscina comum, este imóvel oferece excelentes condições de lazer e convívio, num ambiente cuidado e seguro. Os acabamentos acima da média conferem sofisticação e conforto a cada divisão, evidenciando a atenção ao detalhe e a qualidade dos materiais utilizados. Um dos grandes destaques é a ampla varanda de 26 m², ideal para criar uma agradável área de descanso, refeições ao ar livre ou simplesmente desfrutar do clima ameno. Uma oportunidade ideal para habitação própria ou investimento, unindo localização, qualidade construtiva e excelentes condições de bem-estar. Agende a sua visita e venha conhecer este T1 único nos Barreiros.
AMI: 17708
Ref. Externa: 00561-NS-E
Id: 1555859
Inicie sessão para guardar este imóvel e aceder à sua lista de favoritos em qualquer dispositivo.
2 Quartos
2 WCs
Área útil : 174 m²
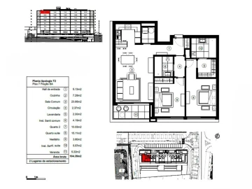
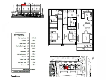
Apartamento T2 Contemporâneo com Varandas Amplas – Ajuda, Funchal Apresentamos este elegante apartamento T2, atualmente em fase de construção, localizado na prestigiada zona da Ajuda, uma das áreas mais valorizadas e desejadas do Funchal. Com um conceito arquitetónico moderno e acabamentos de elevada qualidade, este imóvel foi cuidadosamente projetado para oferecer conforto, funcionalidade e bem-estar. Os espaços interiores são generosos e cheios de luz natural, graças às amplas janelas que acompanham todo o design do apartamento. A zona social desenvolve-se em open space, onde a sala de estar se integra de forma harmoniosa com a cozinha contemporânea — um ambiente perfeito tanto para o dia a dia como para momentos de convívio. As varandas espaçosas convidam a desfrutar do exterior, proporcionando um refúgio tranquilo para relaxar e apreciar a envolvente residencial de excelência. A localização é, sem dúvida, um dos grandes atrativos deste apartamento. Viver na Ajuda é estar próximo de centros comerciais, restaurantes, praias e todos os serviços essenciais, beneficiando simultaneamente da tranquilidade, segurança e prestígio de uma das zonas mais nobres do Funchal. Ideal para residência própria ou investimento, este imóvel apresenta um forte potencial de valorização, especialmente por se encontrar em fase de construção — uma oportunidade única de garantir um apartamento de alto padrão numa das áreas mais promissoras da Madeira. Destaques do imóvel: Apartamento T2 em fase de construção Varandas amplas e excelente exposição solar Localização premium na Ajuda, Funchal Arquitetura moderna e acabamentos de qualidade superior Forte potencial de valorização e investimento Viva com conforto, modernidade e numa localização de excelência. ➡️ Agende já a sua visita e descubra o seu futuro lar num dos empreendimentos mais exclusivos do Funchal. #ref: 149208
AMI: 11220
Ref. Externa: 149208
Id: 1553972
Inicie sessão para guardar este imóvel e aceder à sua lista de favoritos em qualquer dispositivo.
1 Quartos
Área bruta : 71 m²
Apartamento T1 no Funchal - São MartinhoNovo Empreendimento em São Martinho com acabamentos de alta qualidade!O edifício oferece uma experiência de vida moderna e confortável.Conta com uma piscina comum no topo, um espaço perfeito para momentos de lazer e relaxamento, além de áreas verdes que trazem tranquilidade e harmonia ao ambiente.Conta ainda com lojas no rés-do-chão, tornando-o uma excelente opção para quem deseja viver em uma zona prática e bem servida de serviços.A localização é um dos maiores atrativos: a apenas 1 minuto a pé de serviços essenciais como o hospital, supermercados, padarias e muito mais. Aqui, a conveniência de ter tudo ao seu alcance faz parte do seu dia a dia, permitindo-lhe desfrutar de mais qualidade de vida, com acesso rápido e fácil a todas as comodidades urbanas.Estão disponíveis apartamentos de tipologias T1 e T2, ideais para quem procura praticidade, conforto e qualidade de vida.Com uma seleção de materiais sofisticados, os apartamentos são revestidos por azulejos e pinturas de primeira, criando uma atmosfera refinada e acolhedora.O piso em cerâmicas ou parquet de luxo combina estética com durabilidade, oferecendo um ambiente elegante e de fácil manutenção. Equipamentos e acabamentos de última geração asseguram máxima performance, eficiência energética e segurança.Este é o lar ideal para quem procura uma excelente localização, com tudo o que precisa ao seu alcance, sem abrir mão do conforto e da modernidade.Venha conhecer este novo Empreendimento, marque já sua visita!*A informação disponibilizada, embora precisa é meramente informativa, pelo que não pode ser considerada vinculativa, e poderá ser sujeita a alterações.* Somos intermediários de crédito bancário Certificados - Registados junto do Banco de Portugal com o número de registo 0003393 "*Ajudamos sempre a encontrar a melhor solução para o seu crédito habitação.. . Rápido, Eficaz e Seguro.
AMI: 9327
Ref. Externa: U32_T1T_P3
Id: 1552531
Inicie sessão para guardar este imóvel e aceder à sua lista de favoritos em qualquer dispositivo.
1 Quartos
Área bruta : 71 m²
Apartamento T1 no Funchal - São MartinhoNovo Empreendimento em São Martinho com acabamentos de alta qualidade!O edifício oferece uma experiência de vida moderna e confortável.Conta com uma piscina comum no topo, um espaço perfeito para momentos de lazer e relaxamento, além de áreas verdes que trazem tranquilidade e harmonia ao ambiente.Conta ainda com lojas no rés-do-chão, tornando-o uma excelente opção para quem deseja viver em uma zona prática e bem servida de serviços.A localização é um dos maiores atrativos: a apenas 1 minuto a pé de serviços essenciais como o hospital, supermercados, padarias e muito mais. Aqui, a conveniência de ter tudo ao seu alcance faz parte do seu dia a dia, permitindo-lhe desfrutar de mais qualidade de vida, com acesso rápido e fácil a todas as comodidades urbanas.Estão disponíveis apartamentos de tipologias T1 e T2, ideais para quem procura praticidade, conforto e qualidade de vida.Com uma seleção de materiais sofisticados, os apartamentos são revestidos por azulejos e pinturas de primeira, criando uma atmosfera refinada e acolhedora.O piso em cerâmicas ou parquet de luxo combina estética com durabilidade, oferecendo um ambiente elegante e de fácil manutenção. Equipamentos e acabamentos de última geração asseguram máxima performance, eficiência energética e segurança.Este é o lar ideal para quem procura uma excelente localização, com tudo o que precisa ao seu alcance, sem abrir mão do conforto e da modernidade.Venha conhecer este novo Empreendimento, marque já sua visita!*A informação disponibilizada, embora precisa é meramente informativa, pelo que não pode ser considerada vinculativa, e poderá ser sujeita a alterações.* Somos intermediários de crédito bancário Certificados - Registados junto do Banco de Portugal com o número de registo 0003393 "*Ajudamos sempre a encontrar a melhor solução para o seu crédito habitação.. . Rápido, Eficaz e Seguro.
AMI: 9327
Ref. Externa: U32_T1AO_P6
Id: 1552530
Inicie sessão para guardar este imóvel e aceder à sua lista de favoritos em qualquer dispositivo.
2 Quartos
2 WCs
Área bruta : 140 m²
Apartamento T2 num Edifício Exclusivo, 1º andar em condomínio fechado com Piscina. Apresentamos este Apartamento T2, com suíte, situado num local sossegado e uma das zonas mais exclusivas e procuradas do Funchal. - Dois quartos (um em suíte, com toda a privacidade que procura). - Sala ampla e luminosa, com varanda tipo Logradouro Privativo com 55,00 m² perfeito para refeições ao ar livre ou relaxar com vista parcial para o mar perfeita para receber família e amigos. - Cozinha equipada em Open-Space e funcional. - Localização privilegiada, a poucos passos do centro do Funchal ,super mercado, comércio, farmácia, restaurantes e serviços. - Inserido em condomínio de fechado, com todo o conforto e segurança.
AMI: 20706
Ref. Externa: 02A/2025
Id: 1552375
Inicie sessão para guardar este imóvel e aceder à sua lista de favoritos em qualquer dispositivo.
3 Quartos
Área bruta : 202 m²
PENTHOUSE T3 NO FUNCHAL, ILHA DA MADEIRANovo empreendimento com jardins e piscina localizado em na freguesia de São Martinho, no Funchal.Este projeto exclusivo é a escolha perfeita para aqueles que desejam combinar uma localização estratégica com vistas desobstruídas para o Oceano.Infraestrutura Exclusiva: Duas torres elegantes, cada uma com 5 unidades, totalizando apartamentos T1, T2 e T3.Design Contemporâneo: Uma fusão perfeita de elegância e funcionalidade, adaptada ao seu dia a dia.Interiores Luminosos: Projetados para maximizar a luz natural e proporcionar vistas deslumbrantes do oceano.Varandas e Terraços Espaçosos: Ideais para relaxar enquanto aprecia o horizonte atlântico.Conforto Superior: Pré-instalação de estores elétricos, isolamento térmico e acústico para seu bem-estar.Comodidades Exclusivas: Estacionamento coberto privativo, garantindo segurança e conforto com acesso direto ao edifício, além de áreas verdes cuidadosamente planejadas para relaxamento e conexão com a natureza.Data de Conclusão: A construção está prevista para ser concluída em 2026, oferecendo um lar perfeito para aqueles que buscam harmonia entre conforto, sofisticação e a beleza natural da Madeira.Viva onde a sofisticação encontra o conforto! Entre em contato connosco e garanta o seu lugar neste refúgio único. Não perca essa oportunidade de viver a magia da Madeira!* Somos intermediários de crédito bancário Certificados - Registados junto do Banco de Portugal com o número de registo 0003393 *Ajudamos sempre a encontrar a melhor solução para o seu crédito habitação.. . Rápido, Eficaz e Seguro.
AMI: 9327
Ref. Externa: AP_T3E_P2
Id: 1550908
Inicie sessão para guardar este imóvel e aceder à sua lista de favoritos em qualquer dispositivo.
3 Quartos
Área bruta : 258 m²
PENTHOUSE T3 NO FUNCHAL, ILHA DA MADEIRANovo empreendimento com jardins e piscina localizado em na freguesia de São Martinho, no Funchal.Este projeto exclusivo é a escolha perfeita para aqueles que desejam combinar uma localização estratégica com vistas desobstruídas para o Oceano.Infraestrutura Exclusiva: Duas torres elegantes, cada uma com 5 unidades, totalizando apartamentos T1, T2 e T3.Design Contemporâneo: Uma fusão perfeita de elegância e funcionalidade, adaptada ao seu dia a dia.Interiores Luminosos: Projetados para maximizar a luz natural e proporcionar vistas deslumbrantes do oceano.Varandas e Terraços Espaçosos: Ideais para relaxar enquanto aprecia o horizonte atlântico.Conforto Superior: Pré-instalação de estores elétricos, isolamento térmico e acústico para seu bem-estar.Comodidades Exclusivas: Estacionamento coberto privativo, garantindo segurança e conforto com acesso direto ao edifício, além de áreas verdes cuidadosamente planejadas para relaxamento e conexão com a natureza.Data de Conclusão: A construção está prevista para ser concluída em 2026, oferecendo um lar perfeito para aqueles que buscam harmonia entre conforto, sofisticação e a beleza natural da Madeira.Viva onde a sofisticação encontra o conforto! Entre em contato connosco e garanta o seu lugar neste refúgio único. Não perca essa oportunidade de viver a magia da Madeira!* Somos intermediários de crédito bancário Certificados - Registados junto do Banco de Portugal com o número de registo 0003393 *Ajudamos sempre a encontrar a melhor solução para o seu crédito habitação.. . Rápido, Eficaz e Seguro.
AMI: 9327
Ref. Externa: AP_T3J_P2
Id: 1550903
Inicie sessão para guardar este imóvel e aceder à sua lista de favoritos em qualquer dispositivo.
2 Quartos
3 WCs
Área bruta : 156 m²
Este Apartamento T2, situado no quinto piso do exclusivo Edifício Imperador, é a materialização do equilíbrio perfeito entre sofisticação, conforto e tecnologia. Um espaço cuidadosamente concebido para quem valoriza qualidade de vida, design contemporâneo e funcionalidade. Com dois quartos em suite, cada um com casa de banho privativa, e um lavabo social, este apartamento combina intimidade e elegância, oferecendo uma experiência residencial refinada. As áreas amplas e luminosas favorecem a fluidez entre os ambientes, criando uma atmosfera acolhedora e harmoniosa. A cozinha lacada da marca Santos, equipada com eletrodomésticos Miele e integrada com lavandaria, alia design intemporal à máxima praticidade, permitindo uma utilização funcional sem comprometer a estética. O apartamento incorpora tecnologia de última geração, com domótica Legrand Living Now, e insere-se num edifício nZEB A+, com soluções sustentáveis como ar condicionado por conduta, painéis fotovoltaicos e bomba de calor, assegurando conforto, eficiência energética e bem-estar em todos os momentos. O apartamento inclui dois lugares de estacionamento e arrecadação, garantindo conveniência e organização em perfeita harmonia com o estilo de vida contemporâneo. Integrado no empreendimento Imperador que oferece um conjunto exclusivo de amenidades premium, pensadas para proporcionar momentos de lazer e bem-estar: Rooftop com vista panorâmica para o mar e as montanhas, equipado com espreguiçadeiras e duche exterior. Jardim sereno, um verdadeiro refúgio de tranquilidade e contacto com a natureza. Piscina infinita, com área ampla e espreguiçadeiras confortáveis, perfeita para relaxar e desfrutar do sol. Solário, um espaço elegante e reservado para momentos de descanso e contemplação. Viver no Edifício Imperador é escolher um estilo de vida exclusivo, onde luxo discreto, conforto e sofisticação se encontram em cada detalhe. Contacte para informações detalhadas, plantas e condições de reserva deste Apartamento T2.
AMI: 23760
Ref. Externa: 25023-27-AW
Id: 1545129
Inicie sessão para guardar este imóvel e aceder à sua lista de favoritos em qualquer dispositivo.
1 Quartos
2 WCs
Área bruta : 103 m²
O Apartamento T1, no sétimo piso do exclusivo Edifício Imperador, é a expressão máxima de sofisticação, conforto e design contemporâneo, ideal para quem procura um espaço elegante, funcional e moderno. Este T1 dispõe de quarto em suite com casa de banho privativa, complementado por lavabo social, oferecendo privacidade e conforto em todos os momentos. As áreas amplas e luminosas criam um ambiente acolhedor e harmonioso, com sensação de amplitude. A cozinha lacada Santos, totalmente equipada com eletrodomésticos Miele, integra uma prática área de lavandaria, aliando design intemporal à máxima funcionalidade. O apartamento incorpora tecnologia avançada, através do sistema de domótica Legrand Living Now, e insere-se num edifício nZEB A+, com soluções sustentáveis como ar condicionado por conduta, painéis fotovoltaicos e bomba de calor, garantindo eficiência energética e conforto térmico. Inclui dois lugares de estacionamento e arrecadação, oferecendo conveniência e organização. O Edifício Imperador disponibiliza um conjunto de amenidades premium para momentos de lazer e relaxamento: Rooftop com Jacuzzi, espreguiçadeiras e duche exterior, com vista panorâmica para o mar e as montanhas. Jardim sereno, perfeito para tranquilidade e contacto com a natureza. Piscina infinita, com ampla área de lazer e espreguiçadeiras confortáveis. Solário, espaço elegante e reservado para desfrutar do sol com total privacidade. Viver no Edifício Imperador é optar por um estilo de vida exclusivo, onde o luxo discreto, conforto e sofisticação se refletem em cada detalhe. Contacte para mais informações, plantas e condições de reserva deste T1 exclusivo.
AMI: 23760
Ref. Externa: 25023-27-BD
Id: 1545130
Inicie sessão para guardar este imóvel e aceder à sua lista de favoritos em qualquer dispositivo.
2 Quartos
3 WCs
Área bruta : 157 m²
O Apartamento T2, situado no sétimo piso do exclusivo Edifício Imperador, é a materialização do equilíbrio perfeito entre sofisticação, conforto e tecnologia. Um espaço cuidadosamente concebido para quem valoriza qualidade de vida, design contemporâneo e funcionalidade. Com dois quartos em suite, cada um com casa de banho privativa, e um lavabo social, este apartamento combina intimidade e elegância, oferecendo uma experiência residencial refinada. As áreas amplas e luminosas favorecem a fluidez entre os ambientes, criando uma atmosfera acolhedora e harmoniosa. A cozinha lacada da marca Santos, equipada com eletrodomésticos Miele e integrada com lavandaria, alia design intemporal à máxima praticidade, permitindo uma utilização funcional sem comprometer a estética. O apartamento incorpora tecnologia de última geração, com domótica Legrand Living Now, e insere-se num edifício nZEB A+, com soluções sustentáveis como ar condicionado por conduta, painéis fotovoltaicos e bomba de calor, assegurando conforto, eficiência energética e bem-estar em todos os momentos. O apartamento inclui dois lugares de estacionamento e arrecadação, garantindo conveniência e organização em perfeita harmonia com o estilo de vida contemporâneo. Integrado no empreendimento Imperador que oferece um conjunto exclusivo de amenidades premium, pensadas para proporcionar momentos de lazer e bem-estar: Rooftop com vista panorâmica para o mar e as montanhas, equipado com espreguiçadeiras e duche exterior. Jardim sereno, um verdadeiro refúgio de tranquilidade e contacto com a natureza. Piscina infinita, com área ampla e espreguiçadeiras confortáveis, perfeita para relaxar e desfrutar do sol. Solário, um espaço elegante e reservado para momentos de descanso e contemplação. Viver no Edifício Imperador é escolher um estilo de vida exclusivo, onde luxo discreto, conforto e sofisticação se encontram em cada detalhe. Contacte para informações detalhadas, plantas e condições de reserva deste Apartamento T2.
AMI: 23760
Ref. Externa: 25023-27-BB
Id: 1545131
Inicie sessão para guardar este imóvel e aceder à sua lista de favoritos em qualquer dispositivo.
1.220.000 €
3 Quartos
4 WCs
Área bruta : 258 m²
O Apartamento T3, situado no piso térreo do exclusivo Edifício Imperador, é a materialização do equilíbrio perfeito entre sofisticação, conforto e tecnologia. Um espaço cuidadosamente concebido para quem valoriza qualidade de vida, design contemporâneo e funcionalidade. Com três quartos em suite, cada um com casa de banho privativa, e um lavabo social, este apartamento combina intimidade e elegância, oferecendo uma experiência residencial refinada. As áreas amplas e luminosas favorecem a fluidez entre os ambientes, criando uma atmosfera acolhedora e harmoniosa. A cozinha lacada da marca Santos, equipada com eletrodomésticos Miele e integrada com lavandaria, alia design intemporal à máxima praticidade, permitindo uma utilização funcional sem comprometer a estética. O apartamento incorpora tecnologia de última geração, com domótica Legrand Living Now, e insere-se num edifício nZEB A+, com soluções sustentáveis como ar condicionado por conduta, painéis fotovoltaicos e bomba de calor, assegurando conforto, eficiência energética e bem-estar em todos os momentos. O apartamento inclui três lugares de estacionamento e arrecadação, garantindo conveniência e organização em perfeita harmonia com o estilo de vida contemporâneo. Integrado no empreendimento Imperador que oferece um conjunto exclusivo de amenidades premium, pensadas para proporcionar momentos de lazer e bem-estar: Rooftop com vista panorâmica para o mar e as montanhas, equipado com espreguiçadeiras e duche exterior. Jardim sereno, um verdadeiro refúgio de tranquilidade e contacto com a natureza. Piscina infinita, com área ampla e espreguiçadeiras confortáveis, perfeita para relaxar e desfrutar do sol. Solário, um espaço elegante e reservado para momentos de descanso e contemplação. Viver no Edifício Imperador é escolher um estilo de vida exclusivo, onde luxo discreto, conforto e sofisticação se encontram em cada detalhe. Contacte para informações detalhadas, plantas e condições de reserva deste Apartamento T3.
AMI: 23760
Ref. Externa: 25023-27-AA
Id: 1545114
Inicie sessão para guardar este imóvel e aceder à sua lista de favoritos em qualquer dispositivo.
1 Quartos
2 WCs
Área bruta : 147 m²
O Apartamento T1, no piso térreo do exclusivo Edifício Imperador, é a expressão máxima de sofisticação, conforto e design contemporâneo, ideal para quem procura um espaço elegante, funcional e moderno. Este T1 dispõe de quarto em suite com casa de banho privativa, complementado por lavabo social, oferecendo privacidade e conforto em todos os momentos. As áreas amplas e luminosas criam um ambiente acolhedor e harmonioso, com sensação de amplitude. A cozinha lacada Santos, totalmente equipada com eletrodomésticos Miele, integra uma prática área de lavandaria, aliando design intemporal à máxima funcionalidade. O apartamento incorpora tecnologia avançada, através do sistema de domótica Legrand Living Now, e insere-se num edifício nZEB A+, com soluções sustentáveis como ar condicionado por conduta, painéis fotovoltaicos e bomba de calor, garantindo eficiência energética e conforto térmico. Inclui dois lugares de estacionamento e arrecadação, oferecendo conveniência e organização. O Edifício Imperador disponibiliza um conjunto de amenidades premium para momentos de lazer e relaxamento: Rooftop com Jacuzzi, espreguiçadeiras e duche exterior, com vista panorâmica para o mar e as montanhas. Jardim sereno, perfeito para tranquilidade e contacto com a natureza. Piscina infinita, com ampla área de lazer e espreguiçadeiras confortáveis. Solário, espaço elegante e reservado para desfrutar do sol com total privacidade. Viver no Edifício Imperador é optar por um estilo de vida exclusivo, onde o luxo discreto, conforto e sofisticação se refletem em cada detalhe. Contacte para mais informações, plantas e condições de reserva deste T1 exclusivo.
AMI: 23760
Ref. Externa: 25023-27-AB
Id: 1545115
Inicie sessão para guardar este imóvel e aceder à sua lista de favoritos em qualquer dispositivo.
1.220.000 €
3 Quartos
4 WCs
Área bruta : 258 m²
O Apartamento T3, situado no piso térreo do exclusivo Edifício Imperador, é a materialização do equilíbrio perfeito entre sofisticação, conforto e tecnologia. Um espaço cuidadosamente concebido para quem valoriza qualidade de vida, design contemporâneo e funcionalidade. Com três quartos em suite, cada um com casa de banho privativa, e um lavabo social, este apartamento combina intimidade e elegância, oferecendo uma experiência residencial refinada. As áreas amplas e luminosas favorecem a fluidez entre os ambientes, criando uma atmosfera acolhedora e harmoniosa. A cozinha lacada da marca Santos, equipada com eletrodomésticos Miele e integrada com lavandaria, alia design intemporal à máxima praticidade, permitindo uma utilização funcional sem comprometer a estética. O apartamento incorpora tecnologia de última geração, com domótica Legrand Living Now, e insere-se num edifício nZEB A+, com soluções sustentáveis como ar condicionado por conduta, painéis fotovoltaicos e bomba de calor, assegurando conforto, eficiência energética e bem-estar em todos os momentos. O apartamento inclui três lugares de estacionamento e arrecadação, garantindo conveniência e organização em perfeita harmonia com o estilo de vida contemporâneo. Integrado no empreendimento Imperador que oferece um conjunto exclusivo de amenidades premium, pensadas para proporcionar momentos de lazer e bem-estar: Rooftop com vista panorâmica para o mar e as montanhas, equipado com espreguiçadeiras e duche exterior. Jardim sereno, um verdadeiro refúgio de tranquilidade e contacto com a natureza. Piscina infinita, com área ampla e espreguiçadeiras confortáveis, perfeita para relaxar e desfrutar do sol. Solário, um espaço elegante e reservado para momentos de descanso e contemplação. Viver no Edifício Imperador é escolher um estilo de vida exclusivo, onde luxo discreto, conforto e sofisticação se encontram em cada detalhe. Contacte para informações detalhadas, plantas e condições de reserva deste Apartamento T3.
AMI: 23760
Ref. Externa: 25023-27-AC
Id: 1545116
Inicie sessão para guardar este imóvel e aceder à sua lista de favoritos em qualquer dispositivo.
2 Quartos
3 WCs
Área bruta : 157 m²
O Apartamento T2, situado no primeiro piso do exclusivo Edifício Imperador, é a materialização do equilíbrio perfeito entre sofisticação, conforto e tecnologia. Um espaço cuidadosamente concebido para quem valoriza qualidade de vida, design contemporâneo e funcionalidade. Com dois quartos em suite, cada um com casa de banho privativa, e um lavabo social, este apartamento combina intimidade e elegância, oferecendo uma experiência residencial refinada. As áreas amplas e luminosas favorecem a fluidez entre os ambientes, criando uma atmosfera acolhedora e harmoniosa. A cozinha lacada da marca Santos, equipada com eletrodomésticos Miele e integrada com lavandaria, alia design intemporal à máxima praticidade, permitindo uma utilização funcional sem comprometer a estética. O apartamento incorpora tecnologia de última geração, com domótica Legrand Living Now, e insere-se num edifício nZEB A+, com soluções sustentáveis como ar condicionado por conduta, painéis fotovoltaicos e bomba de calor, assegurando conforto, eficiência energética e bem-estar em todos os momentos. O apartamento inclui dois lugares de estacionamento e arrecadação, garantindo conveniência e organização em perfeita harmonia com o estilo de vida contemporâneo. Integrado no empreendimento Imperador que oferece um conjunto exclusivo de amenidades premium, pensadas para proporcionar momentos de lazer e bem-estar: Rooftop com vista panorâmica para o mar e as montanhas, equipado com espreguiçadeiras e duche exterior. Jardim sereno, um verdadeiro refúgio de tranquilidade e contacto com a natureza. Piscina infinita, com área ampla e espreguiçadeiras confortáveis, perfeita para relaxar e desfrutar do sol. Solário, um espaço elegante e reservado para momentos de descanso e contemplação. Viver no Edifício Imperador é escolher um estilo de vida exclusivo, onde luxo discreto, conforto e sofisticação se encontram em cada detalhe. Contacte para informações detalhadas, plantas e condições de reserva deste Apartamento T2.
AMI: 23760
Ref. Externa: 25023-27-AD
Id: 1545117
Inicie sessão para guardar este imóvel e aceder à sua lista de favoritos em qualquer dispositivo.
2 Quartos
3 WCs
Área bruta : 156 m²
Este Apartamento T2, situado no primeiro piso do exclusivo Edifício Imperador, é a materialização do equilíbrio perfeito entre sofisticação, conforto e tecnologia. Um espaço cuidadosamente concebido para quem valoriza qualidade de vida, design contemporâneo e funcionalidade. Com dois quartos em suite, cada um com casa de banho privativa, e um lavabo social, este apartamento combina intimidade e elegância, oferecendo uma experiência residencial refinada. As áreas amplas e luminosas favorecem a fluidez entre os ambientes, criando uma atmosfera acolhedora e harmoniosa. A cozinha lacada da marca Santos, equipada com eletrodomésticos Miele e integrada com lavandaria, alia design intemporal à máxima praticidade, permitindo uma utilização funcional sem comprometer a estética. O apartamento incorpora tecnologia de última geração, com domótica Legrand Living Now, e insere-se num edifício nZEB A+, com soluções sustentáveis como ar condicionado por conduta, painéis fotovoltaicos e bomba de calor, assegurando conforto, eficiência energética e bem-estar em todos os momentos. O apartamento inclui dois lugares de estacionamento e arrecadação, garantindo conveniência e organização em perfeita harmonia com o estilo de vida contemporâneo. Integrado no empreendimento Imperador que oferece um conjunto exclusivo de amenidades premium, pensadas para proporcionar momentos de lazer e bem-estar: Rooftop com vista panorâmica para o mar e as montanhas, equipado com espreguiçadeiras e duche exterior. Jardim sereno, um verdadeiro refúgio de tranquilidade e contacto com a natureza. Piscina infinita, com área ampla e espreguiçadeiras confortáveis, perfeita para relaxar e desfrutar do sol. Solário, um espaço elegante e reservado para momentos de descanso e contemplação. Viver no Edifício Imperador é escolher um estilo de vida exclusivo, onde luxo discreto, conforto e sofisticação se encontram em cada detalhe. Contacte para informações detalhadas, plantas e condições de reserva deste Apartamento T2.
AMI: 23760
Ref. Externa: 25023-27-AG
Id: 1545118
Inicie sessão para guardar este imóvel e aceder à sua lista de favoritos em qualquer dispositivo.
1 Quartos
2 WCs
Área bruta : 103 m²
O Apartamento T1, no segundo piso do exclusivo Edifício Imperador, é a expressão máxima de sofisticação, conforto e design contemporâneo, ideal para quem procura um espaço elegante, funcional e moderno. Este T1 dispõe de quarto em suite com casa de banho privativa, complementado por lavabo social, oferecendo privacidade e conforto em todos os momentos. As áreas amplas e luminosas criam um ambiente acolhedor e harmonioso, com sensação de amplitude. A cozinha lacada Santos, totalmente equipada com eletrodomésticos Miele, integra uma prática área de lavandaria, aliando design intemporal à máxima funcionalidade. O apartamento incorpora tecnologia avançada, através do sistema de domótica Legrand Living Now, e insere-se num edifício nZEB A+, com soluções sustentáveis como ar condicionado por conduta, painéis fotovoltaicos e bomba de calor, garantindo eficiência energética e conforto térmico. Inclui dois lugares de estacionamento e arrecadação, oferecendo conveniência e organização. O Edifício Imperador disponibiliza um conjunto de amenidades premium para momentos de lazer e relaxamento: Rooftop com Jacuzzi, espreguiçadeiras e duche exterior, com vista panorâmica para o mar e as montanhas. Jardim sereno, perfeito para tranquilidade e contacto com a natureza. Piscina infinita, com ampla área de lazer e espreguiçadeiras confortáveis. Solário, espaço elegante e reservado para desfrutar do sol com total privacidade. Viver no Edifício Imperador é optar por um estilo de vida exclusivo, onde o luxo discreto, conforto e sofisticação se refletem em cada detalhe. Contacte para mais informações, plantas e condições de reserva deste T1 exclusivo.
AMI: 23760
Ref. Externa: 25023-27-AI
Id: 1545119
Inicie sessão para guardar este imóvel e aceder à sua lista de favoritos em qualquer dispositivo.
1 Quartos
2 WCs
Área bruta : 103 m²
O Apartamento T1, no primeiro piso do exclusivo Edifício Imperador, é a expressão máxima de sofisticação, conforto e design contemporâneo, ideal para quem procura um espaço elegante, funcional e moderno. Este T1 dispõe de quarto em suite com casa de banho privativa, complementado por lavabo social, oferecendo privacidade e conforto em todos os momentos. As áreas amplas e luminosas criam um ambiente acolhedor e harmonioso, com sensação de amplitude. A cozinha lacada Santos, totalmente equipada com eletrodomésticos Miele, integra uma prática área de lavandaria, aliando design intemporal à máxima funcionalidade. O apartamento incorpora tecnologia avançada, através do sistema de domótica Legrand Living Now, e insere-se num edifício nZEB A+, com soluções sustentáveis como ar condicionado por conduta, painéis fotovoltaicos e bomba de calor, garantindo eficiência energética e conforto térmico. Inclui dois lugares de estacionamento e arrecadação, oferecendo conveniência e organização. O Edifício Imperador disponibiliza um conjunto de amenidades premium para momentos de lazer e relaxamento: Rooftop com Jacuzzi, espreguiçadeiras e duche exterior, com vista panorâmica para o mar e as montanhas. Jardim sereno, perfeito para tranquilidade e contacto com a natureza. Piscina infinita, com ampla área de lazer e espreguiçadeiras confortáveis. Solário, espaço elegante e reservado para desfrutar do sol com total privacidade. Viver no Edifício Imperador é optar por um estilo de vida exclusivo, onde o luxo discreto, conforto e sofisticação se refletem em cada detalhe. Contacte para mais informações, plantas e condições de reserva deste T1 exclusivo.
AMI: 23760
Ref. Externa: 25023-27-AE
Id: 1545120
Inicie sessão para guardar este imóvel e aceder à sua lista de favoritos em qualquer dispositivo.
Estes agentes são especialistas nesta zona:
Inicie sessão para ocultar este imóvel das suas pesquisas e manter a sua lista de resultados organizada.
Guardar favoritos
Este imóvel foi guardados nos seus favoritos com sucesso.
Para poder guardar pesquisa deverá ter a sua sessão iniciada.
Caso não tenha uma conta, deverá criar uma.
A sua pesquisa foi guardada com sucesso!
© Copyright 2023 | CASACERTA. All rights reserved
Este site utiliza cookies. Ao navegar no site estará a consentir a sua utilização.
Para mais informações sobre os cookies pode consultar a
política de privacidade.