Lista
Comprar
Arrendar
2 Quartos
Área útil : 75 m²
Apartamento T2 localizado na Figueirinha, inserido numa zona central e privilegiada de Oeiras, com orientação solar Sul/Norte, o que garante excelente luminosidade e um bom equilíbrio térmico ao longo do dia.Encontra-se próximo de comércio local, serviços, escolas, farmácia, transportes públicos e zonas de lazer, contando ainda com rápidos acessos à A5 e à Marginal. Destaca-se, igualmente, a proximidade ao Oeiras Parque, ao Parque dos Poetas e à Praia de Santo Amaro de Oeiras.O imóvel dispõe de uma área útil de 75 m², situa-se num 3.º andar sem elevador e beneficia ainda de uma excelente arrecadação.É composto por hall de entrada com 7 m², sala com 20 m² com aproveitamento da varanda em marquise, cozinha com 13 m² totalmente equipada com eletrodomésticos, dois quartos com 14 m² e 12 m², sendo que o quarto maior dispõe de roupeiro embutido e acesso comum a uma agradável varanda, e uma casa de banho completa com cabine de duche.Uma excelente oportunidade, quer para habitação própria, quer para investimento com potencial de rentabilidade.Para mais informações ou agendamento de visita, contactar Leonardo Oliveira através dos números 913 489 160 ou 218 032 694.
AMI: 9260
Ref. Externa: SM-2544
Id: 1761036
Inicie sessão para guardar este imóvel e aceder à sua lista de favoritos em qualquer dispositivo.
3 Quartos
2 WCs
Área bruta : 151 m²
Apartamento T3 com boas áreas, distribuição muito funcional e luminoso, dada a sua localização privilegiada no alto do monte do moinho com orientação Nascente, Norte, Sul. Espaçosa cozinha e sala ampla com varanda, zona privativa com segundo hall de distribuição para dois bons quartos e casa-de-banho completa. A partir do hall principal, que faz a distribuição para zona social, encontra-se corredor com casa-de-banho completa, despensa e um terceiro quarto com bonita vista para a Estrada das Biscoiteiras, junto à margem esquerda do Rio Jamor, e Igreja de Nossa Senhora da Rocha, onde começa o novo trilho e campos de Golf. Cozinha equipada, ar condicionado em todas as divisões, garantindo conforto durante todo o ano, cb com aquece toalhas. Imóvel inserido em edifício com boa construção e cuidados de manutenção, com dois elevadores e três fracções por piso, este apartamento encontra-se em bom estado de conservação. Garagem box de boas dimensões, com espaço para carro, mota/bicicletas e arrumação. Acesso exterior da garagem e à box, efectuado através de portões de comando eléctrico. Localizado em bairro tranquilo de Linda-a-Velha, com vista e acesso ao Parque Urbano do Jamor, onde poderá usufruir da natureza e percorrer o trilho e ciclovia desde Linda-a-Pastora até ao Passeio Maritimo de Algés. Com várias opções desportivas, nomeadamente campo de golf, courts de ténis, pista de canoagem, complexo de piscinas do Jamor com diversas actividades para crianças e adultos. A localização central permite usufruir de uma vasta oferta de serviços, comércio, escolas e transportes públicos a poucos minutos a pé. Junto a diversos colégios internacionais, escolas e infantários, bem como centros de saúde e hospitais públicos e privados. Boas acessibilidades às principais vias: A5, A16, A9, perto da estrada marginal e praias da Costa do Estoril e Sintra. Ideal para famílias que valorizam conforto e acessibilidade, sem prescindir da paisagem verdejante perto da cidade. Contacte para mais informações: TM +351 962 444 565
AMI: 16353
Ref. Externa: ITH4206
Id: 1761019
Inicie sessão para guardar este imóvel e aceder à sua lista de favoritos em qualquer dispositivo.
2 Quartos
1 WCs
Área bruta : 90 m²
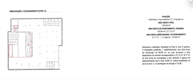
Apartamento T2 Oeiras com arrecadaçãoArea bruta privativa: 81m²Area bruta dependente: 10m²Sala: 22,87m²Cozinha: 11,40m² equipada com placa vitrocerâmica, forno e exauster.Despensa: 1,14m²Wc completo: 3,98m²2 Quartos de 12,92m² e 11,10m²Hall: 5,39m²Corredor: 2,56m²Varanda dos quartos: 6,08m²Arrecadação localizado na cv.2 frentes solaresjanelas em PVC com oscilo batentes, estores eléctricos2 frentes solaresEdificio com 2 elevadores com mecanismo novo.Coluna de agua nova
AMI: 17184
Ref. Externa: SF-SAFTI:007185
Id: 1757278
Inicie sessão para guardar este imóvel e aceder à sua lista de favoritos em qualquer dispositivo.
2 Quartos
2 WCs
Área bruta : 95 m²
Excelente Apartamento T2 Totalmente Remodelado. Sala com excelente área e varanda exterior com vista para zonas verdes; 2 quartos com varanda exterior e roupeiro. Cozinha com despensa. Arrecadação.Marque já a sua Visita!
AMI: 17184
Ref. Externa: SF-SAFTI:007470
Id: 1757277
Inicie sessão para guardar este imóvel e aceder à sua lista de favoritos em qualquer dispositivo.
2 Quartos
3 WCs
Área bruta : 126 m²
APARTAMENTO T2 DUPLEX EM CAXIAS COM VISTA SOBRE O RIO TEJOUm apartamento com história e uma vista de tirar o fôlego. Situado num edifício do século XIX, em Caxias, este T2 em duplex preserva o charme da arquitetura tradicional, oferecendo um cenário único sobre o rio Tejo. A poucos minutos de Lisboa e da linha de Cascais, a localização alia a proximidade da cidade à tranquilidade da zona ribeirinha, tornando-se uma opção ideal para quem procura equilíbrio entre trabalho e qualidade de vida. Distribuição e Características:No piso superior, a entrada conduz a uma ampla sala de estar e jantar, onde grandes janelas enquadram a magnífica paisagem fluvial. A cozinha espaçosa mantém um estilo clássico e funcional, e uma casa de banho social adornada com azulejos pintados à mão completa este nível.Descendo ao piso inferior, encontram-se duas suítes acolhedoras, desenhadas para garantir privacidade e conforto. As casas de banho destacam-se pelo pormenor dos azulejos artesanais, sendo que na suíte principal, estes recriam a fachada do próprio edifício. Comodidades e Espaços Adicionais:Os residentes deste condomínio beneficiam de áreas comuns ao ar livre, ideais para momentos de lazer, leitura ou simplesmente para apreciar o rio. O apartamento dispõe ainda de um lugar de garagem e de uma zona de arrecadação comum, proporcionando praticidade no dia a dia. Um apartamento que combina charme, história e uma vista deslumbrante. Agende já a sua visita e descubra esta oportunidade única em Caxias.
AMI: 10006
Ref. Externa: PE-123751329-56
Id: 1756742
Inicie sessão para guardar este imóvel e aceder à sua lista de favoritos em qualquer dispositivo.
2 Quartos
1 WCs
Área bruta : 95 m²
APARTAMENTO T2 / MARQUISE / VARANDA / PRÉDIO COM ELEVADORES / LINDA-A-VELHAApresentamos este excelente apartamento T2, com 95,50m² de área bruta, inserido num prédio com dois elevadores, localizado numa zona premium de Linda-a-Velha, na prestigiada Avenida Tomás Ribeiro.O imóvel destaca-se pelas divisões amplas, excelente luminosidade natural e janelas em todas as divisões, proporcionando conforto e funcionalidade no dia a dia.O APARTAMENTO: - Hall de Entrada: Bastante amplo e acolhedor, com excelente distribuição para as restantes divisões;- Sala: Sala muito espaçosa, ideal para dois ambientes (estar e jantar), com acesso direto à varanda;- Quartos: 2 Quartos amplos, ambos com ótima luz natural;- Cozinha: Funcional, com acesso à marquise, ideal para lavandaria;- Casa de Banho: Completa e bem distribuída;- Despensa: Espaço adicional de arrumação, muito prático.LOCALIZAÇÃO: Situado numa zona central e valorizada de Linda-a-Velha, o apartamento encontra-se rodeado por todo o tipo de comércio e serviços, incluindo supermercados, farmácias, restaurantes e bancos. Excelente oferta de transportes públicos, fácil acesso às principais vias rodoviárias, proximidade de escolas, hospitais e centros de saúde, tornando este imóvel ideal tanto para habitação própria como para investimento.ONDE A EXCELÊNCIA E O LUXO DEFINEM A ASSINATURA!
AMI: 10006
Ref. Externa: PE-123751691-37
Id: 1756658
Inicie sessão para guardar este imóvel e aceder à sua lista de favoritos em qualquer dispositivo.
4 Quartos
3 WCs
Área bruta : 164 m²
APARTAMENTO T4 DUPLEX / CONDOMÍNIO PRIVADO COM PISCINA / CRUZ QUEBRADA-DAFUNDOSituado na privilegiada zona de Cruz Quebrada-Dafundo, este apartamento em condomínio privado com piscina alia conforto, funcionalidade e excelente luminosidade. Pronto a habitar, é uma opção ideal para quem procura qualidade de vida a poucos minutos de Lisboa e Cascais.DESTAQUES DO IMÓVEL• Área bruta: 328m²• Tipologia: Duplex T4• Quatro quartos, sendo que dois têm varanda• Três casas de banho• Sala ampla com acesso direto ao terraço• Cozinha com ligação direta ao terraço• Arrecadação transformada em sala de jogos• Terraço de boa dimensão, ideal para refeições e convívio ao ar livre• Quatro lugares de garagem• Condomínio privado com jardim amplo e piscinaLOCALIZAÇÃOO apartamento beneficia de um enquadramento residencial muito procurado, marcado pela proximidade ao rio e pelos excelentes acessos a Lisboa e Cascais. A zona oferece ligação rápida à A5, à CRIL e à Estrada Marginal. Nas imediações encontra uma ampla oferta de comércio, serviços essenciais, restauração e diversas opções de ensino, tanto público como privado. A curta distância situa-se a estação de comboios da Cruz Quebrada, que garante uma ligação direta e cómoda a Lisboa. A envolvente é ainda enriquecida pelas zonas verdes do Parque Urbano do Jamor, pelo passeio ribeirinho e pela ciclovia junto ao Tejo, proporcionando um ambiente ideal para atividades ao ar livre e um estilo de vida equilibrado.______________________________________4-BEDROOM DUPLEX APARTMENT / PRIVATE CONDOMINIUM WITH SWIMMING POOL / CRUZ QUEBRADA-DAFUNDOLocated in the sought-after area of Cruz Quebrada-Dafundo, this apartment in a private condominium with a swimming pool offers comfort, functionality and excellent natural light. Move-in ready, it is an ideal option for those seeking quality of life just minutes from Lisbon and Cascais.PROPERTY HIGHLIGHTS• Gross area: 328m²• Typology: Duplex 4-bedroom apartment• Four bedrooms, two of which have a private balcony• Three bathrooms• Spacious living room with direct access to the terrace• Kitchen with direct access to the terrace• Storage room converted into a games room• Generous terrace, ideal for outdoor dining and socialising• Four parking spaces• Private condominium with large garden and swimming poolLOCATIONThe apartment enjoys a highly sought-after residential setting, characterised by its proximity to the river and excellent access to both Lisbon and Cascais. The area offers quick connections to the A5 motorway, the CRIL ring road and the coastal road. In the surrounding area you will find a wide range of shops, essential services, restaurants and various schooling options, both public and private. The Cruz Quebrada train station is located a short distance away, providing a direct and convenient link to Lisbon. The surroundings are further enhanced by the green spaces of the Jamor Urban Park, the riverside walkway and the cycle path along the Tagus, offering an ideal environment for outdoor activities and a balanced lifestyle.
AMI: 10006
Ref. Externa: PE-123751689-50
Id: 1756656
Inicie sessão para guardar este imóvel e aceder à sua lista de favoritos em qualquer dispositivo.
1.100.000 €
4 Quartos
3 WCs
Área bruta : 166 m²
APARTAMENTO T4 EM LINDA-A-VELHA / OEIRASDescubra este espaçoso e elegante apartamento T4 com mais de 247m² de área bruta, inserido num agradável condomínio residencial em Linda-a-Velha, Oeiras.O imóvel distingue-se pela sua generosa área, luminosidade natural e distribuição funcional. A zona social inclui uma ampla sala de estar e jantar com acesso direto a uma varanda espaçosa - ideal para momentos de lazer ou convívio. A cozinha é independente, encontra-se totalmente equipada e dispõe de uma prática despensa com lavandaria.Na zona privada, temos uma suíte, três quartos, uma casa de banho completa e uma WC social, garantindo o conforto de toda a família. O apartamento conta ainda com dois lugares de estacionamento privativos e uma arrecadação ampla, oferecendo espaço adicional de arrumação.O edifício dispõe de dois elevadores e de um agradável jardim comum, perfeito para momentos ao ar livre num ambiente tranquilo e familiar.Comodidades do Apartamento:• Cozinha totalmente equipada com despensa e lavandaria• Sala de estar e jantar com acesso à varanda• Uma suíte• Três quartos• Uma casa de banho completa• Uma WC social• Varanda ampla• Arrecadação espaçosa• Dois lugares de estacionamentoLocalização Privilegiada:Situado numa zona residencial calma e bem cuidada, este apartamento beneficia da proximidade a todo o tipo de comércio local, restaurantes, escolas e supermercados. A localização oferece excelentes acessos rodoviários, estando a poucos minutos da A5, A9 e da Avenida Marginal. Está também bem servido de transportes públicos, com várias paragens de autocarro nas redondezas que facilitam a ligação a diferentes pontos da cidade.
AMI: 10006
Ref. Externa: PE-123751689-2
Id: 1756650
Inicie sessão para guardar este imóvel e aceder à sua lista de favoritos em qualquer dispositivo.
3 Quartos
3 WCs
Área bruta : 101 m²
Apartamento T3 em Oeiras / Oportunidade com grande potencial de valorizaçãoApresentamos este apartamento T3 situado em Oeiras, uma das zonas mais valorizadas e procuradas da linha de Cascais, conhecida pela sua elevada qualidade de vida, proximidade ao mar e excelente ligação a Lisboa. Com uma área total de 117,39m², este imóvel oferece espaços amplos e um grande potencial de valorização. Inserido numa área residencial tranquila e bem servida, representa uma oportunidade interessante para quem procura transformar um imóvel numa casa à sua medida numa localização privilegiada.A envolvente destaca-se pela proximidade às praias da linha de Oeiras, aos espaços verdes e à agradável frente marítima, ideal para passeios ao ar livre, prática de desporto ou simplesmente para desfrutar de momentos de lazer junto ao mar. A zona oferece ainda uma excelente rede de serviços e comércio, com supermercados, escolas, farmácias, cafés, restaurantes e diversos equipamentos culturais e desportivos nas imediações, proporcionando uma grande comodidade no dia a dia. O apartamento dispõe de uma tipologia T3, com 117,39m² de área, áreas generosas e uma distribuição funcional dos espaços, oferecendo um grande potencial de renovação e valorização. A sala apresenta boas dimensões e boa entrada de luz natural, os três quartos permitem diferentes possibilidades de adaptação às necessidades de cada família e a cozinha e casa de banho oferecem a oportunidade de serem renovadas e modernizadas de acordo com o gosto do futuro proprietário. O imóvel necessita de obras de remodelação, o que permite criar um projeto à medida e transformar este espaço num apartamento contemporâneo e confortável, tirando o máximo partido das suas áreas e da sua localização. Viver em Oeiras significa beneficiar de um equilíbrio raro entre tranquilidade, proximidade ao mar e acessos rápidos a Lisboa, através da A5, Avenida Marginal e rede de transportes. A combinação entre qualidade de vida, serviços e localização estratégica torna este imóvel uma excelente oportunidade para habitação própria ou investimento.Contacte-me para mais informações ou para agendar uma visita.
AMI: 10006
Ref. Externa: PE-123751391-272
Id: 1756646
Inicie sessão para guardar este imóvel e aceder à sua lista de favoritos em qualquer dispositivo.
3 Quartos
2 WCs
Área bruta : 146 m²
Apresentamos-lhe este T3 Moderno com Varandas e Ótima Exposição Solar em Condomínio de Luxo - Horizon, OeirasDescubra este elegante apartamento T3 no exclusivo Condomínio Privado Horizon, um verdadeiro símbolo de qualidade e requinte, situado numa das zonas mais prestigiadas da linha de Oeiras.Este condomínio de luxo destaca-se pelo ambiente seguro e sofisticado, com amplos jardins, uma fabulosa piscina, sala de jogos, sala de festas, porteiro e segurança 24 horas.O apartamento foi totalmente renovado com materiais de alta qualidade e oferece uma excelente exposição solar, com a sala e a suíte orientadas a poente, proporcionando luz natural abundante e uma atmosfera acolhedora ao longo de todo o dia.A sala de estar, ampla e luminosa, conta com uma parede em cerâmica italiana de design contemporâneo, criando um elemento visual distinto e elegante. A partir da sala, acede-se a uma belíssima varanda com vista para o jardim e piscina - ideal para momentos de lazer ou convívio. Esta varanda foi amplificada com a remoção da floreira que ocupava toda a extensão em frente à suíte, acrescentando um espaço exterior muito útil e funcional, pouco comum neste tipo de tipologia.A cozinha moderna, totalmente equipada, possui ainda uma segunda varanda, prática e funcional.Os três quartos e as duas casas de banho contam com acabamentos de elevada qualidade, incluindo cerâmica italiana e portas de correr nas casas de banho - uma melhoria significativa em relação à configuração original do imóvel.A propriedade inclui dois lugares de estacionamento e duas arrecadações, garantindo o máximo de comodidade e organização.Um verdadeiro "Condomínio de Revista" que conjuga segurança, tranquilidade, áreas verdes e sofisticação - o melhor da vida moderna.Para mais informações ou para agendar uma visita a este imóvel exclusivo, entre em contacto connosco! We presents this Modern 3-Bedroom Flat with Balconies and Excellent Sun Exposure in the Luxury Horizon Condominium - OeirasDiscover this elegant three-bedroom flat in the exclusive Horizon Private Condominium - a true symbol of quality and refinement, located in one of the most prestigious areas of the Oeiras coastline.This luxury gated community stands out for its secure and sophisticated environment, featuring expansive gardens, a stunning swimming pool, games room, party room, concierge service, and 24-hour security.The flat has been fully renovated using high-quality materials and offers superb sun exposure, with both the living room and the master suite facing west - ensuring abundant natural light throughout the day and a warm, inviting atmosphere.The spacious and bright living room includes a striking feature wall clad in Italian ceramic, adding a distinctive and refined design touch. It opens onto a beautiful balcony overlooking the garden and pool - perfect for relaxing or entertaining. This balcony has been extended by removing a large planter that previously occupied the entire space in front of the suite, creating a surprisingly useful and practical additional outdoor area rarely found in similar units.The modern kitchen, fully equipped, also benefits from a second balcony, adding to its functionality.All three bedrooms and the two bathrooms are finished to a high standard, with elegant Italian ceramic tiles. The bathrooms have also been upgraded with sliding doors - a significant improvement from the original layout.The property includes two private parking spaces and two storage units, offering convenience and ample space.A true "Magazine-Worthy Condominium" that combines security, tranquillity, green spaces, and sophistication - the best of modern living.For more information or to schedule a visit to this exclusive property, contact us!
AMI: 10006
Ref. Externa: PE-123751128-441
Id: 1756630
Inicie sessão para guardar este imóvel e aceder à sua lista de favoritos em qualquer dispositivo.
2 Quartos
2 WCs
Área bruta : 108 m²
T2 Elegante com 109m² em Localização Premium junto ao RioDescubra este espaçoso apartamento T2, originalmente T3, situado na prestigiada Avenida dos Bombeiros Voluntários, no coração de Algés. Uma localização única que combina a calma de viver junto ao rio com a proximidade imediata a Lisboa e a todo o comércio, serviços e transportes da zona. Com 109m², o apartamento destaca-se pela luminosidade natural, distribuição funcional e sensação de amplitude. Características principais: - Sala de estar e jantar ampla, com excelente luz natural- Cozinha totalmente equipada- 2 quartos, incluindo uma suite confortável- 1 casa de banho completa + lavabo social- Ar-condicionadoBom estado geral, com possibilidade de personalizaçãoViva numa zona dinâmica com cafés, comércio e serviços à porta, enquanto desfruta de caminhadas junto ao rio e fácil acesso às principais vias de Lisboa e Oeiras. Um imóvel pensado para quem procura qualidade de vida, conforto e mobilidade sem comprometer a sofisticação.
AMI: 10006
Ref. Externa: PE-123751631-4
Id: 1756625
Inicie sessão para guardar este imóvel e aceder à sua lista de favoritos em qualquer dispositivo.
1.450.000 €
4 Quartos
3 WCs
Área bruta : 267 m²
Apartamento T4 com 165m², área exterior de 102m², 4 lugares de estacionamento e arrecadação, em novo condomínio privado a nascer no concelho de Oeiras, em Carnaxide.Aqui, os futuros proprietários vão poder desfrutar de uma variedade de amenities premium, como ginásio, piscinas, sauna, áreas de lazer, estacionamento subterrâneo com zonas de carregamento elétrico e um espaço exclusivo para cuidados de tosquia e banho de animais de estimação.Constituído por 61 apartamentos de tipologias T1 a T4, com áreas que vão de 50m² a 267m², o condomínio privado é uma excelente oportunidade para quem deseja viver ou investir num condomínio privado, com 4.600m² de jardins, rodeado de verde e com fácil acesso às principais vias de Lisboa.O condomínio destaca-se pelas áreas generosas dos apartamentos e das varandas, contando com uma arquitetura moderna e sustentável sobre um amplo manto verde, que privilegia a ligação e vivência com a natureza.Um marco de sustentabilidade e conforto, entre Lisboa e Oeiras, a está ladeada por natureza e áreas verdes, desfrutando de uma localização central e estratégica, que permite o acesso a qualquer parte de Lisboa em minutos.O condomínio foi pensado tendo em conta os rigorosos padrões da certificação LEED, que garantem desde logo uma construção sustentável e uma vida mais eco-consciente que permite reaproveitar 50% da água, reduzir em -75% os resíduos de construção, aumentar em +10% a economia energética e ter apartamentos com classificação energética A/A+.Situada em Carnaxide, no concelho de Oeiras, a está adjacente à A5, a autoestrada que liga Lisboa a Cascais, e à N117, via que liga Belém à 2a Circular, oferecendo conforto e conveniência em deslocações de curta e longa distância.Solicite já mais informações!A Castelhana é uma agência imobiliária portuguesa presente no mercado nacional há mais de 25 anos, especializada no mercado residencial prime e reconhecida pelo lançamento de alguns dos empreendimentos de maior notoriedade no panorama imobiliário nacional.Fundada em 1999, a Castelhana presta um serviço integral na mediação de negócios. Somos especialistas em investimento e na comercialização de imóveis.Em Lisboa, no Chiado, uma das zonas mais emblemáticas e tradicionais da capital. No Porto, estamos sediados na Foz Do Douro, um dos locais mais nobres da cidade e na região do Algarve junto à reconhecida Marina de Vilamoura.Ficamos à sua espera. Contamos com uma equipa disponível para lhe dar o melhor apoio no seu próximo investimento imobiliário.Contacte-nos!
AMI: 3497
Ref. Externa: CT-26596
Id: 1756468
Inicie sessão para guardar este imóvel e aceder à sua lista de favoritos em qualquer dispositivo.
3 Quartos
3 WCs
Área bruta : 124 m²
Apartamento T3 com 108m², varanda de 16m² e 2 lugares de estacionamento, em novo condomínio privado a nascer no concelho de Oeiras, em Carnaxide.Aqui, os futuros proprietários vão poder desfrutar de uma variedade de amenities premium, como ginásio, piscinas, sauna, áreas de lazer, estacionamento subterrâneo com zonas de carregamento elétrico e um espaço exclusivo para cuidados de tosquia e banho de animais de estimação.Constituído por 61 apartamentos de tipologias T1 a T4, com áreas que vão de 50m² a 267m², o condomínio privado é uma excelente oportunidade para quem deseja viver ou investir num condomínio privado, com 4.600m² de jardins, rodeado de verde e com fácil acesso às principais vias de Lisboa.O condomínio destaca-se pelas áreas generosas dos apartamentos e das varandas, contando com uma arquitetura moderna e sustentável sobre um amplo manto verde, que privilegia a ligação e vivência com a natureza.Um marco de sustentabilidade e conforto, entre Lisboa e Oeiras, a está ladeada por natureza e áreas verdes, desfrutando de uma localização central e estratégica, que permite o acesso a qualquer parte de Lisboa em minutos.O condomínio foi pensado tendo em conta os rigorosos padrões da certificação LEED, que garantem desde logo uma construção sustentável e uma vida mais eco-consciente que permite reaproveitar 50% da água, reduzir em -75% os resíduos de construção, aumentar em +10% a economia energética e ter apartamentos com classificação energética A/A+.Situada em Carnaxide, no concelho de Oeiras, a está adjacente à A5, a autoestrada que liga Lisboa a Cascais, e à N117, via que liga Belém à 2a Circular, oferecendo conforto e conveniência em deslocações de curta e longa distância.Solicite já mais informações!A Castelhana é uma agência imobiliária portuguesa presente no mercado nacional há mais de 25 anos, especializada no mercado residencial prime e reconhecida pelo lançamento de alguns dos empreendimentos de maior notoriedade no panorama imobiliário nacional.Fundada em 1999, a Castelhana presta um serviço integral na mediação de negócios. Somos especialistas em investimento e na comercialização de imóveis.Em Lisboa, no Chiado, uma das zonas mais emblemáticas e tradicionais da capital. No Porto, estamos sediados na Foz Do Douro, um dos locais mais nobres da cidade e na região do Algarve junto à reconhecida Marina de Vilamoura.Ficamos à sua espera. Contamos com uma equipa disponível para lhe dar o melhor apoio no seu próximo investimento imobiliário.Contacte-nos!
AMI: 3497
Ref. Externa: CT-26593
Id: 1756469
Inicie sessão para guardar este imóvel e aceder à sua lista de favoritos em qualquer dispositivo.
3 Quartos
3 WCs
Área bruta : 126 m²
Apartamento T3 com 115m², varanda de 11m², 2 lugares de estacionamento e arrecadação, em novo condomínio privado a nascer no concelho de Oeiras, em Carnaxide.Aqui, os futuros proprietários vão poder desfrutar de uma variedade de amenities premium, como ginásio, piscinas, sauna, áreas de lazer, estacionamento subterrâneo com zonas de carregamento elétrico e um espaço exclusivo para cuidados de tosquia e banho de animais de estimação.Constituído por 61 apartamentos de tipologias T1 a T4, com áreas que vão de 50m² a 267m², o condomínio privado é uma excelente oportunidade para quem deseja viver ou investir num condomínio privado, com 4.600m² de jardins, rodeado de verde e com fácil acesso às principais vias de Lisboa.O condomínio destaca-se pelas áreas generosas dos apartamentos e das varandas, contando com uma arquitetura moderna e sustentável sobre um amplo manto verde, que privilegia a ligação e vivência com a natureza.Um marco de sustentabilidade e conforto, entre Lisboa e Oeiras, a está ladeada por natureza e áreas verdes, desfrutando de uma localização central e estratégica, que permite o acesso a qualquer parte de Lisboa em minutos.O condomínio foi pensado tendo em conta os rigorosos padrões da certificação LEED, que garantem desde logo uma construção sustentável e uma vida mais eco-consciente que permite reaproveitar 50% da água, reduzir em -75% os resíduos de construção, aumentar em +10% a economia energética e ter apartamentos com classificação energética A/A+.Situada em Carnaxide, no concelho de Oeiras, a está adjacente à A5, a autoestrada que liga Lisboa a Cascais, e à N117, via que liga Belém à 2a Circular, oferecendo conforto e conveniência em deslocações de curta e longa distância.Solicite já mais informações!A Castelhana é uma agência imobiliária portuguesa presente no mercado nacional há mais de 25 anos, especializada no mercado residencial prime e reconhecida pelo lançamento de alguns dos empreendimentos de maior notoriedade no panorama imobiliário nacional.Fundada em 1999, a Castelhana presta um serviço integral na mediação de negócios. Somos especialistas em investimento e na comercialização de imóveis.Em Lisboa, no Chiado, uma das zonas mais emblemáticas e tradicionais da capital. No Porto, estamos sediados na Foz Do Douro, um dos locais mais nobres da cidade e na região do Algarve junto à reconhecida Marina de Vilamoura.Ficamos à sua espera. Contamos com uma equipa disponível para lhe dar o melhor apoio no seu próximo investimento imobiliário.Contacte-nos!
AMI: 3497
Ref. Externa: CT-26584
Id: 1756467
Inicie sessão para guardar este imóvel e aceder à sua lista de favoritos em qualquer dispositivo.
3 Quartos
3 WCs
Área bruta : 114 m²
Apartamento T3 com 102m², varanda de 12m² e 2 lugares de estacionamento, em novo condomínio privado a nascer no concelho de Oeiras, em Carnaxide.Aqui, os futuros proprietários vão poder desfrutar de uma variedade de amenities premium, como ginásio, piscinas, sauna, áreas de lazer, estacionamento subterrâneo com zonas de carregamento elétrico e um espaço exclusivo para cuidados de tosquia e banho de animais de estimação.Constituído por 61 apartamentos de tipologias T1 a T4, com áreas que vão de 50m² a 267m², o condomínio privado é uma excelente oportunidade para quem deseja viver ou investir num condomínio privado, com 4.600m² de jardins, rodeado de verde e com fácil acesso às principais vias de Lisboa.O condomínio destaca-se pelas áreas generosas dos apartamentos e das varandas, contando com uma arquitetura moderna e sustentável sobre um amplo manto verde, que privilegia a ligação e vivência com a natureza.Um marco de sustentabilidade e conforto, entre Lisboa e Oeiras, a está ladeada por natureza e áreas verdes, desfrutando de uma localização central e estratégica, que permite o acesso a qualquer parte de Lisboa em minutos.O condomínio foi pensado tendo em conta os rigorosos padrões da certificação LEED, que garantem desde logo uma construção sustentável e uma vida mais eco-consciente que permite reaproveitar 50% da água, reduzir em -75% os resíduos de construção, aumentar em +10% a economia energética e ter apartamentos com classificação energética A/A+.Situada em Carnaxide, no concelho de Oeiras, a está adjacente à A5, a autoestrada que liga Lisboa a Cascais, e à N117, via que liga Belém à 2a Circular, oferecendo conforto e conveniência em deslocações de curta e longa distância.Solicite já mais informações!A Castelhana é uma agência imobiliária portuguesa presente no mercado nacional há mais de 25 anos, especializada no mercado residencial prime e reconhecida pelo lançamento de alguns dos empreendimentos de maior notoriedade no panorama imobiliário nacional.Fundada em 1999, a Castelhana presta um serviço integral na mediação de negócios. Somos especialistas em investimento e na comercialização de imóveis.Em Lisboa, no Chiado, uma das zonas mais emblemáticas e tradicionais da capital. No Porto, estamos sediados na Foz Do Douro, um dos locais mais nobres da cidade e na região do Algarve junto à reconhecida Marina de Vilamoura.Ficamos à sua espera. Contamos com uma equipa disponível para lhe dar o melhor apoio no seu próximo investimento imobiliário.Contacte-nos!
AMI: 3497
Ref. Externa: CT-26590
Id: 1756466
Inicie sessão para guardar este imóvel e aceder à sua lista de favoritos em qualquer dispositivo.
1.600.000 €
4 Quartos
4 WCs
Área bruta : 262 m²
Apartamento T4 com 170m², área exterior de 92m², 4 lugares de estacionamento e arrecadação, em novo condomínio privado a nascer no concelho de Oeiras, em Carnaxide.Aqui, os futuros proprietários vão poder desfrutar de uma variedade de amenities premium, como ginásio, piscinas, sauna, áreas de lazer, estacionamento subterrâneo com zonas de carregamento elétrico e um espaço exclusivo para cuidados de tosquia e banho de animais de estimação.Constituído por 61 apartamentos de tipologias T1 a T4, com áreas que vão de 50m² a 267m², o condomínio privado é uma excelente oportunidade para quem deseja viver ou investir num condomínio privado, com 4.600m² de jardins, rodeado de verde e com fácil acesso às principais vias de Lisboa.O condomínio destaca-se pelas áreas generosas dos apartamentos e das varandas, contando com uma arquitetura moderna e sustentável sobre um amplo manto verde, que privilegia a ligação e vivência com a natureza.Um marco de sustentabilidade e conforto, entre Lisboa e Oeiras, a está ladeada por natureza e áreas verdes, desfrutando de uma localização central e estratégica, que permite o acesso a qualquer parte de Lisboa em minutos.O condomínio foi pensado tendo em conta os rigorosos padrões da certificação LEED, que garantem desde logo uma construção sustentável e uma vida mais eco-consciente que permite reaproveitar 50% da água, reduzir em -75% os resíduos de construção, aumentar em +10% a economia energética e ter apartamentos com classificação energética A/A+.Situada em Carnaxide, no concelho de Oeiras, a está adjacente à A5, a autoestrada que liga Lisboa a Cascais, e à N117, via que liga Belém à 2a Circular, oferecendo conforto e conveniência em deslocações de curta e longa distância.Solicite já mais informações!A Castelhana é uma agência imobiliária portuguesa presente no mercado nacional há mais de 25 anos, especializada no mercado residencial prime e reconhecida pelo lançamento de alguns dos empreendimentos de maior notoriedade no panorama imobiliário nacional.Fundada em 1999, a Castelhana presta um serviço integral na mediação de negócios. Somos especialistas em investimento e na comercialização de imóveis.Em Lisboa, no Chiado, uma das zonas mais emblemáticas e tradicionais da capital. No Porto, estamos sediados na Foz Do Douro, um dos locais mais nobres da cidade e na região do Algarve junto à reconhecida Marina de Vilamoura.Ficamos à sua espera. Contamos com uma equipa disponível para lhe dar o melhor apoio no seu próximo investimento imobiliário.Contacte-nos!
AMI: 3497
Ref. Externa: CT-26595
Id: 1756461
Inicie sessão para guardar este imóvel e aceder à sua lista de favoritos em qualquer dispositivo.
1.350.000 €
4 Quartos
4 WCs
Área bruta : 179 m²
Apartamento T4 com 142m², área exterior de 37m², 3 lugares de estacionamento e arrecadação, em novo condomínio privado a nascer no concelho de Oeiras, em Carnaxide.Aqui, os futuros proprietários vão poder desfrutar de uma variedade de amenities premium, como ginásio, piscinas, sauna, áreas de lazer, estacionamento subterrâneo com zonas de carregamento elétrico e um espaço exclusivo para cuidados de tosquia e banho de animais de estimação.Constituído por 61 apartamentos de tipologias T1 a T4, com áreas que vão de 50m² a 267m², o condomínio privado é uma excelente oportunidade para quem deseja viver ou investir num condomínio privado, com 4.600m² de jardins, rodeado de verde e com fácil acesso às principais vias de Lisboa.O condomínio destaca-se pelas áreas generosas dos apartamentos e das varandas, contando com uma arquitetura moderna e sustentável sobre um amplo manto verde, que privilegia a ligação e vivência com a natureza.Um marco de sustentabilidade e conforto, entre Lisboa e Oeiras, a está ladeada por natureza e áreas verdes, desfrutando de uma localização central e estratégica, que permite o acesso a qualquer parte de Lisboa em minutos.O condomínio foi pensado tendo em conta os rigorosos padrões da certificação LEED, que garantem desde logo uma construção sustentável e uma vida mais eco-consciente que permite reaproveitar 50% da água, reduzir em -75% os resíduos de construção, aumentar em +10% a economia energética e ter apartamentos com classificação energética A/A+.Situada em Carnaxide, no concelho de Oeiras, a está adjacente à A5, a autoestrada que liga Lisboa a Cascais, e à N117, via que liga Belém à 2a Circular, oferecendo conforto e conveniência em deslocações de curta e longa distância.Solicite já mais informações!A Castelhana é uma agência imobiliária portuguesa presente no mercado nacional há mais de 25 anos, especializada no mercado residencial prime e reconhecida pelo lançamento de alguns dos empreendimentos de maior notoriedade no panorama imobiliário nacional.Fundada em 1999, a Castelhana presta um serviço integral na mediação de negócios. Somos especialistas em investimento e na comercialização de imóveis.Em Lisboa, no Chiado, uma das zonas mais emblemáticas e tradicionais da capital. No Porto, estamos sediados na Foz Do Douro, um dos locais mais nobres da cidade e na região do Algarve junto à reconhecida Marina de Vilamoura.Ficamos à sua espera. Contamos com uma equipa disponível para lhe dar o melhor apoio no seu próximo investimento imobiliário.Contacte-nos!
AMI: 3497
Ref. Externa: CT-26597
Id: 1756459
Inicie sessão para guardar este imóvel e aceder à sua lista de favoritos em qualquer dispositivo.
2 Quartos
2 WCs
Área bruta : 116 m²
Apartamento T2 duplex com 101m², jardim de 15m², 2 lugar de estacionamento e arrecadação, em novo condomínio privado a nascer no concelho de Oeiras, em Carnaxide.Aqui, os futuros proprietários vão poder desfrutar de uma variedade de amenities premium, como ginásio, piscinas, sauna, áreas de lazer, estacionamento subterrâneo com zonas de carregamento elétrico e um espaço exclusivo para cuidados de tosquia e banho de animais de estimação.Constituído por 61 apartamentos de tipologias T1 a T4, com áreas que vão de 50m² a 267m², o condomínio privado é uma excelente oportunidade para quem deseja viver ou investir num condomínio privado, com 4.600m² de jardins, rodeado de verde e com fácil acesso às principais vias de Lisboa.O condomínio destaca-se pelas áreas generosas dos apartamentos e das varandas, contando com uma arquitetura moderna e sustentável sobre um amplo manto verde, que privilegia a ligação e vivência com a natureza.Um marco de sustentabilidade e conforto, entre Lisboa e Oeiras, a está ladeada por natureza e áreas verdes, desfrutando de uma localização central e estratégica, que permite o acesso a qualquer parte de Lisboa em minutos.O condomínio foi pensado tendo em conta os rigorosos padrões da certificação LEED, que garantem desde logo uma construção sustentável e uma vida mais eco-consciente que permite reaproveitar 50% da água, reduzir em -75% os resíduos de construção, aumentar em +10% a economia energética e ter apartamentos com classificação energética A/A+.Situada em Carnaxide, no concelho de Oeiras, a está adjacente à A5, a autoestrada que liga Lisboa a Cascais, e à N117, via que liga Belém à 2a Circular, oferecendo conforto e conveniência em deslocações de curta e longa distância.Solicite já mais informações!A Castelhana é uma agência imobiliária portuguesa presente no mercado nacional há mais de 25 anos, especializada no mercado residencial prime e reconhecida pelo lançamento de alguns dos empreendimentos de maior notoriedade no panorama imobiliário nacional.Fundada em 1999, a Castelhana presta um serviço integral na mediação de negócios. Somos especialistas em investimento e na comercialização de imóveis.Em Lisboa, no Chiado, uma das zonas mais emblemáticas e tradicionais da capital. No Porto, estamos sediados na Foz Do Douro, um dos locais mais nobres da cidade e na região do Algarve junto à reconhecida Marina de Vilamoura.Ficamos à sua espera. Contamos com uma equipa disponível para lhe dar o melhor apoio no seu próximo investimento imobiliário.Contacte-nos!
AMI: 3497
Ref. Externa: CT-26573
Id: 1756457
Inicie sessão para guardar este imóvel e aceder à sua lista de favoritos em qualquer dispositivo.
1 Quartos
1 WCs
Área bruta : 59 m²
Apartamento T1 com 48m², varanda de 11m², 1 lugar de estacionamento e arrecadação, em novo condomínio privado a nascer no concelho de Oeiras, em Carnaxide.Aqui, os futuros proprietários vão poder desfrutar de uma variedade de amenities premium, como ginásio, piscinas, sauna, áreas de lazer, estacionamento subterrâneo com zonas de carregamento elétrico e um espaço exclusivo para cuidados de tosquia e banho de animais de estimação.Constituído por 61 apartamentos de tipologias T1 a T4, com áreas que vão de 50m² a 267m², o condomínio privado é uma excelente oportunidade para quem deseja viver ou investir num condomínio privado, com 4.600m² de jardins, rodeado de verde e com fácil acesso às principais vias de Lisboa.O condomínio destaca-se pelas áreas generosas dos apartamentos e das varandas, contando com uma arquitetura moderna e sustentável sobre um amplo manto verde, que privilegia a ligação e vivência com a natureza.Um marco de sustentabilidade e conforto, entre Lisboa e Oeiras, a está ladeada por natureza e áreas verdes, desfrutando de uma localização central e estratégica, que permite o acesso a qualquer parte de Lisboa em minutos.O condomínio foi pensado tendo em conta os rigorosos padrões da certificação LEED, que garantem desde logo uma construção sustentável e uma vida mais eco-consciente que permite reaproveitar 50% da água, reduzir em -75% os resíduos de construção, aumentar em +10% a economia energética e ter apartamentos com classificação energética A/A+.Situada em Carnaxide, no concelho de Oeiras, a está adjacente à A5, a autoestrada que liga Lisboa a Cascais, e à N117, via que liga Belém à 2a Circular, oferecendo conforto e conveniência em deslocações de curta e longa distância.Solicite já mais informações!A Castelhana é uma agência imobiliária portuguesa presente no mercado nacional há mais de 25 anos, especializada no mercado residencial prime e reconhecida pelo lançamento de alguns dos empreendimentos de maior notoriedade no panorama imobiliário nacional.Fundada em 1999, a Castelhana presta um serviço integral na mediação de negócios. Somos especialistas em investimento e na comercialização de imóveis.Em Lisboa, no Chiado, uma das zonas mais emblemáticas e tradicionais da capital. No Porto, estamos sediados na Foz Do Douro, um dos locais mais nobres da cidade e na região do Algarve junto à reconhecida Marina de Vilamoura.Ficamos à sua espera. Contamos com uma equipa disponível para lhe dar o melhor apoio no seu próximo investimento imobiliário.Contacte-nos!
AMI: 3497
Ref. Externa: CT-26546
Id: 1756456
Inicie sessão para guardar este imóvel e aceder à sua lista de favoritos em qualquer dispositivo.
3 Quartos
3 WCs
Área bruta : 134 m²
Apartamento T3 com 107m², varanda de 27m² e 2 lugar de estacionamento, em novo condomínio privado a nascer no concelho de Oeiras, em Carnaxide.Aqui, os futuros proprietários vão poder desfrutar de uma variedade de amenities premium, como ginásio, piscinas, sauna, áreas de lazer, estacionamento subterrâneo com zonas de carregamento elétrico e um espaço exclusivo para cuidados de tosquia e banho de animais de estimação.Constituído por 61 apartamentos de tipologias T1 a T4, com áreas que vão de 50m² a 267m², o condomínio privado é uma excelente oportunidade para quem deseja viver ou investir num condomínio privado, com 4.600m² de jardins, rodeado de verde e com fácil acesso às principais vias de Lisboa.O condomínio destaca-se pelas áreas generosas dos apartamentos e das varandas, contando com uma arquitetura moderna e sustentável sobre um amplo manto verde, que privilegia a ligação e vivência com a natureza.Um marco de sustentabilidade e conforto, entre Lisboa e Oeiras, a está ladeada por natureza e áreas verdes, desfrutando de uma localização central e estratégica, que permite o acesso a qualquer parte de Lisboa em minutos.O condomínio foi pensado tendo em conta os rigorosos padrões da certificação LEED, que garantem desde logo uma construção sustentável e uma vida mais eco-consciente que permite reaproveitar 50% da água, reduzir em -75% os resíduos de construção, aumentar em +10% a economia energética e ter apartamentos com classificação energética A/A+.Situada em Carnaxide, no concelho de Oeiras, a está adjacente à A5, a autoestrada que liga Lisboa a Cascais, e à N117, via que liga Belém à 2a Circular, oferecendo conforto e conveniência em deslocações de curta e longa distância.Solicite já mais informações!A Castelhana é uma agência imobiliária portuguesa presente no mercado nacional há mais de 25 anos, especializada no mercado residencial prime e reconhecida pelo lançamento de alguns dos empreendimentos de maior notoriedade no panorama imobiliário nacional.Fundada em 1999, a Castelhana presta um serviço integral na mediação de negócios. Somos especialistas em investimento e na comercialização de imóveis.Em Lisboa, no Chiado, uma das zonas mais emblemáticas e tradicionais da capital. No Porto, estamos sediados na Foz Do Douro, um dos locais mais nobres da cidade e na região do Algarve junto à reconhecida Marina de Vilamoura.Ficamos à sua espera. Contamos com uma equipa disponível para lhe dar o melhor apoio no seu próximo investimento imobiliário.Contacte-nos!
AMI: 3497
Ref. Externa: CT-26580
Id: 1756422
Inicie sessão para guardar este imóvel e aceder à sua lista de favoritos em qualquer dispositivo.
Estes agentes são especialistas nesta zona:
Inicie sessão para ocultar este imóvel das suas pesquisas e manter a sua lista de resultados organizada.
© Copyright 2023 | CASACERTA. All rights reserved
Guardar favoritos
Este imóvel foi guardados nos seus favoritos com sucesso.
Para poder guardar pesquisa deverá ter a sua sessão iniciada.
Caso não tenha uma conta, deverá criar uma.
A sua pesquisa foi guardada com sucesso!
Este site utiliza cookies. Ao navegar no site estará a consentir a sua utilização.
Para mais informações sobre os cookies pode consultar a
política de privacidade.