Filtros
0 · 2 resultadosÁrea útil : 382 m²
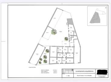
Antiga Padaria Industrial de Alfundão - para Recuperação.Localizada na zona urbana de Alfundão, concelho de Ferreira do Alentejo, esta propriedade oferece uma oportunidade única para investidores ou empreendedores que procuram um espaço versátil para atividades industriais. Construída em 1938, esta antiga padaria, desativada há vários anos, apresenta um vasto potencial de renovação e revitalização.Características Principais:Área Total: 1141,60m²Área Coberta: 734,80m²Área Descoberta: 406,80m²Divisões Variadas: O espaço inclui várias divisões que podem ser adaptadas para atender às necessidades específicas do novo proprietário.Antiga Padaria: espaço de produção.Casão: Espaço para facilitar o armazenamento ou a logística.Escritórios: Áreas de escritório disponíveis para a administração.Potencial Industrial: Ideal para atividades industriais, produção ou armazenamento.Garagem: Para estacionamento de veículos.Oportunidade de Renovação:Este imóvel oferece uma base sólida para uma renovação significativa. Com visão e investimento adequados, pode ser transformado em um centro industrial moderno e funcional, atendendo às exigências dos negócios.Potencial de Valorização:Com a procura por espaços industriais em ascensão, esta propriedade tem o potencial de se valorizar significativamente no mercado imobiliário, tornando-a uma atraente oportunidade de investimento de longo prazo.Não perca esta oportunidade de adquirir um espaço industrial único com uma história rica e um futuro promissor. Entre em contacto hoje para mais informações e para agendar uma visita.Predimed Beja - Ami: 22503
AMI: 22503
Ref. Externa: PD-055644
Id: 1753780
Inicie sessão para guardar este imóvel e aceder à sua lista de favoritos em qualquer dispositivo.
Profissionais que conhecem esta zona a fundo — contacte-os para uma avaliação personalizada.
Área bruta : 563 m²
Antiga Padaria Industrial de Alfundão - para Recuperação.Localizada na zona urbana de Alfundão, concelho de Ferreira do Alentejo, esta propriedade oferece uma oportunidade única para investidores ou empreendedores que procuram um espaço versátil para atividades industriais. Construída em 1938, esta antiga padaria, desativada há vários anos, apresenta um vasto potencial de renovação e revitalização.Características Principais:Área Total: 1141,60m2Área Coberta: 734,80m2Área Descoberta: 406,80m2 Divisões Variadas: O espaço inclui várias divisões que podem ser adaptadas para atender às necessidades específicas do novo proprietário.Antiga Padaria: espaço de produção.Casão: Espaço para facilitar o armazenamento ou a logística.Escritórios: Áreas de escritório disponíveis para a administração.Potencial Industrial: Ideal para atividades industriais, produção ou armazenamento.Garagem: Para estacionamento de veículos.Oportunidade de Renovação:Este imóvel oferece uma base sólida para uma renovação significativa. Com visão e investimento adequados, pode ser transformado em um centro industrial moderno e funcional, atendendo às exigências dos negócios.Potencial de Valorização:Com a procura por espaços industriais em ascensão, esta propriedade tem o potencial de se valorizar significativamente no mercado imobiliário, tornando-a uma atraente oportunidade de investimento de longo prazo.Não perca esta oportunidade de adquirir um espaço industrial único com uma história rica e um futuro promissor. Entre em contacto hoje para mais informações e para agendar uma visita.Ana Traquete - 962 303 528Predimed Beja - Ami:22503Predimed Imobiliária, Mediação Imobiliária, Lda.Avenida Brasil 43, 12º Andar, 1700-062 LisboaLicença AMI nº 22503Pessoa Coletiva nº 517 239 345Seguro Responsabilidade Civil: Nº de Apólice RC65379424 Fidelidade Características: Lareira;Poliban;Portão Manual;Escola;Espaços Verdes
AMI: 13558
Ref. Externa: 055644
Id: 1401041
Inicie sessão para guardar este imóvel e aceder à sua lista de favoritos em qualquer dispositivo.
© Copyright 2023 | CASACERTA. All rights reserved
Guardar favoritos
Este imóvel foi guardados nos seus favoritos com sucesso.
Para poder guardar pesquisa deverá ter a sua sessão iniciada.
Caso não tenha uma conta, deverá criar uma.
A sua pesquisa foi guardada com sucesso!
Este site utiliza cookies. Ao navegar no site estará a consentir a sua utilização.
Para mais informações sobre os cookies pode consultar a
política de privacidade.