Lista
Comprar
Arrendar
2 WCs
Área útil : 1106 m²
Espaço comercial e Armazém em Ferreira do Alentejo.Excelente oportunidade de investimento!Loja ampla com dois pisos, situada à entrada da vila numa localização estratégica, com excelentes acessibilidades, ótima visibilidade e inserida numa zona em pleno desenvolvimento.O edifício está implantado num terreno de 800,88m² apresentando uma área bruta de construção de 1200m² distribuída por 2 pisos, destaca-se pela sua dimensão, versatilidade e qualidade de construção.O piso inferior é composto por um amplo salão de exposição com 537m², armazém com 100m², escritório e por três instalações sanitárias.No piso superior encontra o segundo salão de exposição com 480m², com muita luz natural.Ferreira do Alentejo é uma vila alentejana em pleno crescimento, conhecida pela tranquilidade, qualidade de vida e pela sua proximidade a Beja e às principais vias de acesso do Baixo Alentejo. Nos últimos anos, tem vindo a atrair novos investimentos e a afirmar-se como um ponto de referência na região.Ideal para comércio, serviços ou outras atividades empresariais, este imóvel oferece uma excelente oportunidade de investimento numa zona com enorme potencial de valorização.Para mais informações ou marcação de visita, entre em contacto com:Ana Traquete
AMI: 22503
Ref. Externa: PD-057534
Id: 1753482
Inicie sessão para guardar este imóvel e aceder à sua lista de favoritos em qualquer dispositivo.
Área bruta : 1200 m²
Espaço comercial e Armazém em Ferreira do Alentejo.Excelente oportunidade de investimento!Loja ampla com dois pisos, situada à entrada da vila numa localização estratégica, com excelentes acessibilidades, ótima visibilidade e inserida numa zona em pleno desenvolvimento.O edifício está implantado num terreno de 800,88 m² apresentando uma área bruta de construção de 1200 m² distribuída por 2 pisos, destaca-se pela sua dimensão, versatilidade e qualidade de construção.O piso inferior é composto por um amplo salão de exposição com 537 m2, armazém com 100 m², escritório e por três instalações sanitárias.No piso superior encontra o segundo salão de exposição com 480 m2, com muita luz natural.Ferreira do Alentejo é uma vila alentejana em pleno crescimento, conhecida pela tranquilidade, qualidade de vida e pela sua proximidade a Beja e às principais vias de acesso do Baixo Alentejo. Nos últimos anos, tem vindo a atrair novos investimentos e a afirmar-se como um ponto de referência na região.Ideal para comércio, serviços ou outras atividades empresariais, este imóvel oferece uma excelente oportunidade de investimento numa zona com enorme potencial de valorização.Para mais informações ou marcação de visita, entre em contacto com:Ana Traquete 962 303 528Predimed Imobiliária, Mediação Imobiliária, Lda.Avenida Brasil 43, 12º Andar, 1700-062 LisboaLicença AMI nº 22503Pessoa Coletiva nº 517 239 345Seguro Responsabilidade Civil: Nº de Apólice RC65379424 Fidelidade Características: Árvores de Frutos;Banco;Bombeiros;Centro Comercial;Espaços Verdes;Orientação Solar
AMI: 13558
Ref. Externa: 057534
Id: 1555849
Inicie sessão para guardar este imóvel e aceder à sua lista de favoritos em qualquer dispositivo.
Área bruta : 142 m²
Vende-se Arrecadação proximo das Piscinas Municipais em Ferreira do Alentejo. Área 142 m2. Preço 50.000,00
AMI: 2899
Ref. Externa: 817.2022/12128
Id: 947896
Inicie sessão para guardar este imóvel e aceder à sua lista de favoritos em qualquer dispositivo.
Área bruta : 370 m²
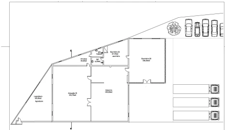
Armazém inserido em lote com 2564m2 situado no Parque de Empresas em Ferreira do Alentejo.No coração do Parque de Empresas de Ferreira do Alentejo, encontramos este espaço comercial ideal para empresas que procuram instalações que combinem eficácia logística com versatilidade e qualidade de espaços de trabalho.O armazém, a necessitar de algumas obras de reparação, está inserido num lote de 2564m², tem uma área de construção de 370m2 e é composto por espaçosos escritórios, amplo espaço de armazenamento, instalações sanitárias com zona de arrumos, logradouro nas traseiras, perfeito para operações de carga e descarga e amplo terreno na frente equipado com uma rampa para camiões. Este espaço exterior permite a expansão do armazém ou construção de um parque de estacionamento, aumentando a eficiência operacional do negócio.A fachada com vão envidraçado permite a criação de um espaço comercial com showroom ou escritórios. A sua localização, totalmente voltada para a EN 2, adiciona um valor incomparável, garantindo visibilidade e acesso fácil para clientes e fornecedores.O Parque de Empresas, onde se situa o armazém, está dotado de arruamentos e passeios, rede de águas, rede de esgotos, rede elétrica e fibra óptica. O armazém está totalmente vedado, com entrada e saída diretas, garantindo segurança e privacidade. A localização do armazém em Ferreira do Alentejo, porta de entrada do distrito de Beja e da região agrícola de Alqueva, é estratégica não apenas pelos acessos às autoestradas A26 e A2, mas também pela proximidade com Lisboa e o Porto de Sines. Este posicionamento, aliado às qualidades urbanísticas e ambientais da zona industrial, torna o imóvel ainda mais atraente para empresas que procuram crescimento e posicionamento estratégico no mercado. A combinação da infraestrutura local e do potencial do armazém, fazem deste imóvel uma oportunidade imperdível para investidores e empresários visionários.INVESTIR EM PORTUGAL PORQUE É:- O 3º melhor país do mundo e o 1º europeu para morar e trabalhar (“Expat Insider 2019” da Internations, isto é, trata-se de uma rede de 3 milhões de expatriados a trabalhar no estrangeiro);- “Novo Eldorado para os reformados europeus” (jornal francês Le Monde);- Um dos melhores destinos para reformados estrangeiros (revista e site norte-americano International Living);- Um dos melhores sistemas de saúde do mundo (inglesa BBC);- Um dos países mais seguros do mundo (Departamento de Estado dos EUA);- Um dos lugares mais atraentes da Europa para estudar no estrangeiro (“Topuniversities” da inglesa Quacquarelli Symonds).
AMI: 9412
Ref. Externa: 281601055
Id: 669780
Inicie sessão para guardar este imóvel e aceder à sua lista de favoritos em qualquer dispositivo.
Este agente é especialista nesta zona:
Inicie sessão para ocultar este imóvel das suas pesquisas e manter a sua lista de resultados organizada.
© Copyright 2023 | CASACERTA. All rights reserved
Guardar favoritos
Este imóvel foi guardados nos seus favoritos com sucesso.
Para poder guardar pesquisa deverá ter a sua sessão iniciada.
Caso não tenha uma conta, deverá criar uma.
A sua pesquisa foi guardada com sucesso!
Este site utiliza cookies. Ao navegar no site estará a consentir a sua utilização.
Para mais informações sobre os cookies pode consultar a
política de privacidade.