Lista
Comprar
Arrendar
2 WCs
Área bruta : 651 m²
Armazém com 651 m2 de área, inserido na Zona Industrial de Queimados, freguesia de Antas em Vila Nova de Famalicão. Localizado junto à variante de Vila Nova de Famalicão, a 1km do nó de acesso à A3 e A7 e a cerca de 2Km do centro da cidade, o armazém apresenta-se com excelente visibilidade para a Variante Nascente de Vila Nova de Famalicão. Venha conhecer...
AMI: 8366
Ref. Externa: 3482
Id: 1041772
Inicie sessão para guardar este imóvel e aceder à sua lista de favoritos em qualquer dispositivo.
Área bruta : 578 m²
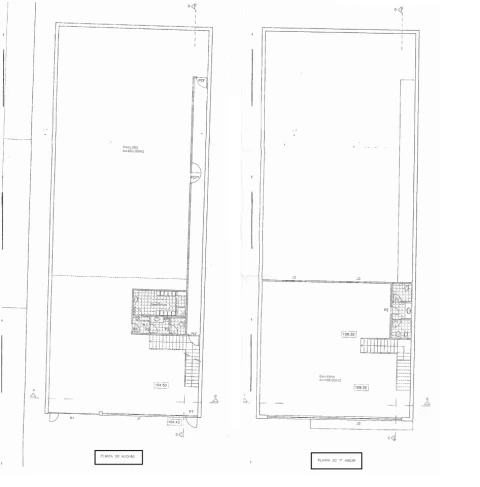
Pavilhão/Armazém em AntasLocalizado a 2 minutos da entrada da autoestrada A3/A7 e da variante Nascente de Vila Nova de Famalicão, este pavilhão beneficia de fáceis acessibilidades às principais vias de comunicação e centros urbanos de Famalicão, Santo Tirso, Porto, Braga, Guimarães, Povoa de Varzim, Vila Conde, Barcelos…A centralidade e proximidade às principais vias de acesso com ligação a Norte e a Sul do país, reforçam uma localização apetecível para o seu negócio.Possui 3 frentes e 2 entradas. Este Pavilhão detém uma área coberta de 578,0 m2 e descoberta/logradouro de 800,0m2. Encontra-se equipado com vários gabinetes com vistas para o exterior, salas de reuniões, Wc' s, cozinha, arrecadação entre outras utilidades. Ao nível do piso principal (r/chão) para além da “nave” principal, possui ainda 4 salas de apoio (gabinetes), uma ampla sala (arrumos) e cozinha. O piso superior, com entrada pelo hall de escadas, usufrui: sala de espera, escritório central, 3 gabinetes, sala reuniões, sala da administração, e arrumos com vista para a “nave” central do armazém. O logradouro comporta um amplo espaço exterior para estacionamento, movimentação de viaturas e cargas de grande porte para camiões TIR.Na sua envolvente próxima, existe um conjunto de serviços e comércio na proximidade, tais como: Banco, CTT, Restaurantes, Cafés, Centro Saúde e Hospital, Escolas, Supermercados, Oficinas Auto e Espaços Verdes (Parque Cidade), entre outros serviços. Esta será certamente uma grande oportunidade de negócio.Consulte-nos, para informações mais detalhadas.Aguardamos por si, agende a Sua visita.
AMI: 12847
Ref. Externa: 22VMPAV01
Id: 867741
Inicie sessão para guardar este imóvel e aceder à sua lista de favoritos em qualquer dispositivo.
Este agente é especialista nesta zona:
Inicie sessão para ocultar este imóvel das suas pesquisas e manter a sua lista de resultados organizada.
Guardar favoritos
Este imóvel foi guardados nos seus favoritos com sucesso.
Para poder guardar pesquisa deverá ter a sua sessão iniciada.
Caso não tenha uma conta, deverá criar uma.
A sua pesquisa foi guardada com sucesso!
© Copyright 2023 | CASACERTA. All rights reserved
Este site utiliza cookies. Ao navegar no site estará a consentir a sua utilização.
Para mais informações sobre os cookies pode consultar a
política de privacidade.