Lista
Comprar
Arrendar
1.500.000 €
2 WCs
Área bruta : 750 m²
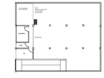
Armazém / Atividade industrial junto ao aeroporto com 750m2 Fração B de Armazém multifuncional em Zona Industrial consolidada, para Logística/Industria, com 750m2 em 1 piso, correspondendo ao 1o andar, em open Space, Pé-direito de 5m, 5 lugares estacionamento, e logradouro de 100m2 Número de Portões 1 de 4 × 4 m que permite o acesso de veículos pesados e camiões diretamente primeiro andar. Potência Instalada 41,4kW Descrição Integralmente remodelado, a Fração B deste armazém armazém ocupa o 1o piso de um edifício com três pisos (cave, rés-do-chão e 1.o andar) com todas as infra-estruturas essenciais instaladas e funcionais O Edifício em que se encontra inserido é, constituindo por duas frações. Fração B - constituída pelo 1.o andar com a área total de 750m2 ( valor de venda 1.500.000,00 ) Fração A - Constituída por cave e o rés-do-chão com a área total de 1750m2 ( também disponível pelo Valor de venda 3.000.000,00. (url) ) As frações são ambas independentes, com entrada e portões próprios, partilhando uma porta de homem de emergência que acede às escadas, permitindo a ligação a ambos os armazéns, e um logradouro de 100 m2 com 10 lugares de estacionamento. O armazém ( Fração B ) encontra-se em open space, o que permite adaptá-la a diversas operações: centro de peritagens, oficina, logística, last mile logístic, rent-a-car, armazenamento, arquivo, produção industrial ligeira, showroom, ou atividade comercial. Admite alterações ao layout, para serviços, individualização de escritórios ou zonas específicas, com possibilidade de estudo e intervenção do atual proprietário, se solicitada. A fração B é composta por: 1o Andar: 750 m2 em open space, com pé-direito de 5 m e abundante luz natural dado possuir janelas ao longo de duas fachadas Acessos e Circulação na Fração B Um Portão principal (4 × 4 m) para acesso ao 1o piso por rampa interior a veículos pesados e camiões para carga/descargaSaída de emergência: escada com porta de homem posterior partilhada 2 Instalações Sanitárias ( masculino / feminino )Logradouro de 100 m2 com 10 lugares de estacionamento (partilhado com a fração A ou seja, 5 estacionamentos por fração) Localização e Acessos Junto ao Aeroporto de Lisboa, Quinta do Figo Maduro - Sacavém / Prior-O-Velho, com ligações rápidas à A1, A12 Sul/Espanha /CRIL/IC17 e Eixo Norte-Sul, 2.a Circular e IC19. Envolvente consolidada de caráter industrial/logístico, com proximidade a serviços e transportes públicos. Este armazém multifuncional é ideal para armazéns, logística, last/mile logistic, Distribuição, Indústria ligeira, centros de peritagens, oficinas, distribuidores, centros de assistência técnica rent-a-cars, stands automóveis,, E-commerce e fulfillment, importação/exportação, e outras atividade que careçam de múltiplos acessos, áreas generosas e localização previligiada servida de todas as vias de comunicações ( Aérea - Aeroporto Internacional de Lisboa / Rodoviária - Grande Lisboa, Acessos Norte Sul, Espanha nas proximidades / Ferroviária - CP estação Oriente e Braço de Prata / marítima - Porto Marítimo de Lisboa ) permitindo reduzir custos logísticos e tempos de entrega e estar próximo dos clientes na Grande Lisboa ( 2,16 milhões de habitantes ) e AML área Metropolitana de Lisboa ( 3 milhões de habitantes ) Porquê investir neste Ativo? O mercado industrial e logístico em Portugal mantém uma representatividade reduzida no volume total de investimento (cerca de 5%), refletindo a escassez de oferta qualificada e a dificuldade em encontrar ativos adequados, e qualificados, como o presente. O setor industrial/logístico permanece no top 20 dos setores com melhores perspectivas para 2026. O nearshoring e o friendshoring são identificados como tendências estruturais que geram novas oportunidades. Os ativos logísticos e industriais desempenham um papel estratégico na resiliência económica. A logistica e distribuição figuram entre os setores críticos, e Portugal regista um crescimento de volume transacional num contexto em que a generalidade do mercado europeu também sofreu os efeitos da política tarifária dos EUA e da incerteza geopolítica. O capital está a fluir para a Europa. 'As melhores oportunidades de investimento não aparecem frequentemente. Quando surgem, os investidores esclarecidos agem rapidamente.' A sua decisão hoje irá definir o seu posicionamento nos próximos 20 anos. Empresas que garantirem agora espaços estratégicos em hubs logísticos diferenciados terão uma vantagem competitiva estrutural que a concorrência não conseguirá replicar. Aguardamos o seu contato
AMI: 24184
Ref. Externa: 1141390/26LA
Id: 1680516
Inicie sessão para guardar este imóvel e aceder à sua lista de favoritos em qualquer dispositivo.
5.600.000 €
5 WCs
Área bruta : 4830 m²
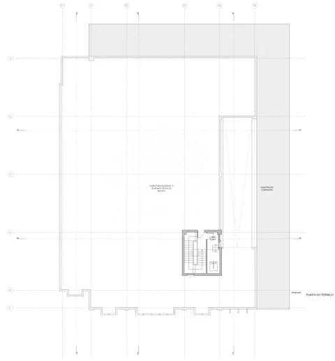
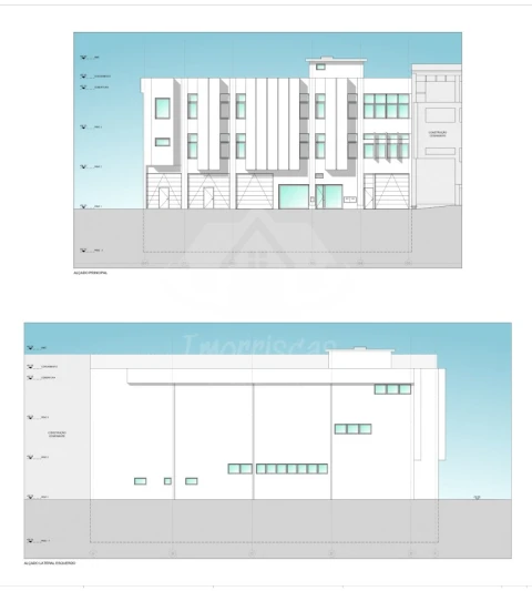
Edifício industrial/logístico objeto de remodelação total, com 5 pisos de 900 m2 cada (cave, rés-do-chão, 1.o piso, 2.o piso e terraço com licença para estacionamento de viaturas) e pé-direito de 4,5 m nos pisos interiores, tudo em em open space, disponível para uso imediato, ou otimização para a sua atividade específica. Todos pisos comunicam entre si, desde a cave até ao terraço através de escada escadas. Um elevador interliga a cave até ao 2.o piso. O interior está dotado de rampas para acesso automóvel a todos os pisos (cave, 1.o piso, 2.o piso e terraço). Circulação e acessos : 4 Portões (4 × 4 m) Automáticos Acesso direto ao rés-do-chão por 2 portões comPortão com acesso direto à cave. Portão com acesso a rampa interior que conduz ao 1.o piso. Rampas interiores (3) para automóveis: Rampa interior: após portão para acesso ao 1.o piso, Rampa interior: no primeiro piso para acesso ao 2.o piso, Rampa interior: no segundo piso para acesso aoTerraço. Elevador: Desde a Cave até 2.o piso e Escadas desde a Cave até ao Terraço, Montra no rés-do-chão (em instalação). Instalações Sanitárias no rés-do-chão:2 balneários individuais com chuveiros (masculino / feminino)1 WC comum. Na cave: 2 balneários individuais com chuveiros (masculino/feminino) Pisos: Cave (900 m2) Rés-do-chão (900 m2) 1.o piso + 2.o piso + Terraço (2.700 m2) Localização e Rede Comunicação Posicionamento Estratégico na Zona Industrial do Prior Velho (Loures), junto ao Aeroporto de Lisboa, em envolvente de caráter industrial/logístico . Rede Comunicação: Rede Aérea - Aeroporto Internacional de Lisboa Rede Rodoviária - A1, CRIL/IC17 e Eixo Norte-Sul, 2.a Circular e IC19. Rede Ferroviária - CP estação Oriente e Braço de Prata Rede Marítima - Porto de Lisboa Potencial utilização : Este armazém multifuncional é ideal para centros de peritagens, oficinas, distribuidores, centros de assistência técnica rent-a-cars, stands automóveis, armazéns, logísticos, last/mile logistic, small data center, e outras operações que careçam de acessos múltiplos, áreas generosas e localização premium servida de todas as vias de comunicações nas proximidades, incluindo o Aeroporto Internacional de Lisboa a meros 10 minutos. Porquê investir neste Ativo? O mercado industrial e logístico em Portugal mantém uma representatividade reduzida no volume total de investimento (cerca de 5%), refletindo a escassez de oferta qualificada e a dificuldade em encontrar ativos adequados, e qualificados, como o presente . O setor industrial/logístico permanece no top 20 dos setores com melhores perspectivas para 2026, O nearshoring e o friendshoring são identificados como tendências estruturais que geram novas oportunidades. Os ativos logísticos e industriais desempenham um papel estratégico na resiliência económica. A logistica e distribuição figuram entre os setores críticos, e Portugal regista um crescimento de volume transacional num contexto em que a generalidade do mercado europeu também sofreu os efeitos da política tarifária dos EUA e da incerteza geopolítica. O capital está a fluir para a Europa. 'As melhores oportunidades de investimento não aparecem frequentemente. Quando surgem, os investidores esclarecidos agem rapidamente.' A sua decisão hoje irá definir o seu posicionamento nos próximos 20 anos. Empresas que garantirem agora espaços estratégicos em hubs logísticos diferenciados terão uma vantagem competitiva estrutural que a concorrência não conseguirá replicar. Aguardamos o seu contato !
AMI: 24184
Ref. Externa: 1141387/26LA
Id: 1676652
Inicie sessão para guardar este imóvel e aceder à sua lista de favoritos em qualquer dispositivo.
5.600.000 €
4 WCs
Área bruta : 4830 m²
Armazém para Venda no Prior Velho Edifício de cinco pisos destinado a armazéns e atividades industriais (Tipologia 13). Não perca a chance de adquirir um armazém excepcional no Prior Velho, concelho de Loures. Com uma generosa área bruta privativa de 4.830 m², este imóvel oferece uma excelente oportunidade para quem deseja expandir ou iniciar um negócio em uma localização de destaque. Características do Armazém: - Área Bruta Privativa: 4.830 m² - Superfície Coberta: 1.035 m² - Cave: Com cinco câmaras frigoríficas e uma divisão equipada com máquinas. - Rés-do-chão: Uma divisão ampla e versátil com sanitários. - Primeiro Piso: Uma divisão ampla, WC e um escritório com mais uma sala - Segundo Piso: Uma divisão com frigorífico e WC, além de uma área que pode ser utilizada como escritório ou sala de reuniões. - Águas Furtadas: Espaço adicional com casa de banho. Infraestrutura de Acesso: - Acesso facilitado através de uma rampa de 4 m², ideal para operações logísticas. Localizado em Prior Velho, este armazém beneficia de uma posição estratégica, próximo a importantes vias de acesso e bem servido por transportes públicos, conferindo fácil ligação a Lisboa e arredores. A zona apresenta um ambiente dinâmico com um crescente número de empresas na área. Potencial de Negócio: Ideal para: - Armazéns de distribuição - Indústrias alimentícias ou farmacêuticas (aproveitando as câmaras frigoríficas) - Empresas de logística - Escritórios de apoio a atividades industriais Porque Investir em Prior Velho? - Proximidade a centros urbanos - Acessibilidade à rede rodoviária - Valorização contínua da área, impulsionando oportunidades de negócio Para mais informações ou para agendar uma visita, entre em contato connosco e descubra tudo o que este armazém pode oferecer ao seu negócio.
AMI: 12689
Ref. Externa: ARMMBB003
Id: 1634971
Inicie sessão para guardar este imóvel e aceder à sua lista de favoritos em qualquer dispositivo.
8.000.000 €
6 WCs
Área bruta : 8895 m²
Magnífico edifício de alta qualidade estrutural, inserido num terreno de 4.820m2, com uma implantação de 2.705m2 e um logradouro de 2.115m2 é composto por escritórios no piso 1 e 2 e armazém no piso térreo e cave, onde este último conta com um pé direito de 8,85 metros. Zona geográfica estratégica na melhor localização de Portugal, com os melhores acessos a qualquer zona do país a partir do Prior Velho, via A-1, A2, CRIL, CREL, A-8, A-12 e, acima de tudo, junto ao Aeroporto de Lisboa. Ao nível do piso térreo, além dos escritórios e acesso ao exterior, o edifício conta com acesso à cave, com três cais de descarga, instalações sanitárias, balneários, copa e elevadores. Com uma área total de 8.895 m2, descrição das áreas dos pisos distribuídas da seguinte maneira: - Cave: 2.705 m2; - Mezanino: 745 m2; - Piso 0: 2.677 m2; - Piso 1: 2.216 m2; - Piso 2: 552 m2; Um espaço perfeito e adequado às necessidades de armazenamento, montagem ou produção, especialmente em uma zona industrializada com grande potencial de desenvolvimento e investimento. *'' Informações disponibilizadas, não dispensam a sua consulta a um dos nossos consultores, nem pode ser considerada vinculativa.''*_ (url) Aguardamos o seu contacto Temos Parceria com uma empresa de Intermediação Financeira Solicite já uma análise
AMI: 15673
Ref. Externa: AP13.136
Id: 1630800
Inicie sessão para guardar este imóvel e aceder à sua lista de favoritos em qualquer dispositivo.
3.000.000 €
Área bruta : 1750 m²
Armazém com área bruta de 1.750 m², em remodelação total, localizado na Rua 1º de Maio no Prior Velho, Loures. O imóvel situa-se no rés-do-chão de um edifício com dois pisos, que constituem duas frações individuais. Conta com uma excelente localização, dado que está inserido em plena zona industrial do Prior Velho, ficando mesmo junto ao Aeroporto de Lisboa. Com excelentes acessos às principais vias rodoviárias para o centro e para fora de Lisboa, muito próximo da entrada para a 2.ª Circular, Ponte Vasco da Gama e A1 (nos dois sentidos). Existe a possibilidade de compra do edifício completo, perfazendo a área total de 2.500 m² e com o valor de 3.750.000 €. Gostava de apostar numa nova atividade ou eventualmente expandir a sua atual? Então não hesite em contatar-nos! A Imorriscas trabalha em parceria com agências de intermediação de crédito que o ajudarão a encontrar a solução mais vantajosa para concretizar os seus projetos. Este anúncio foi publicado por rotina informática, pelo que todos os dados carecem de confirmação junto da imobiliária.
AMI: 15959
Ref. Externa: PT2024-1554
Id: 1615398
Inicie sessão para guardar este imóvel e aceder à sua lista de favoritos em qualquer dispositivo.
5.600.000 €
9 WCs
Área bruta : 4830 m²
Armazém com 4 pisos e 4500 m², totalmente remodelado, localizado na rua de Nacala, na zona industrial do Prior Velho. Conta com uma excelente localização, dado que está inserido em plena zona industrial do Prior Velho, junto ao Aeroporto de Lisboa. Salienta-se que é um edifício constituído por 5 (cinco) pisos e com um pé direito aproximado 3,5 metros, sendo que cada piso conta com: CAVE: - Com 561,10 m² Destinada a armazém, com uma zona ampla, servida por rampa e acesso automóvel direto à rua. Acesso de escada interior e elevador. 1.º PISO: - Com 642,52 m² Com espaço amplo, servido por rampa, com 2 casas de banho triplas, masculino e feminino. Acesso de escada interior e elevador. 2.º PISO: - Com 556,04 m² Com espaço amplo, servido por rampa, com 2 casas de banho triplas, masculino e feminino. Acesso de escada interior e elevador. 3.º PISO: - Com 670,28 m² Com espaço amplo, servido por rampa. Acesso de escada interior e elevador. TERRAÇO: - Com 800,15 m² Totalmente amplo, destinado a estacionamento. Acesso de escada interior e elevador. Todos os pisos estão ligados entre si internamente por rampas para acesso automóvel e por escadas e elevador de acesso aos pisos. Encontrando-se junto ao aeroporto de Lisboa, conta com excelentes acessos às principais vias rodoviárias para o centro e para fora de Lisboa e muito próximo da entrada para a 2.ª Circular, Ponte Vasco da Gama e A1 (nos dois sentidos). Gostava de apostar numa nova atividade, ou eventualmente expandir a sua atual, e às portas de Lisboa? Então, não hesite em contactar-nos! Este anúncio foi publicado por rotina informática, pelo que todos os dados carecem de confirmação junto da imobiliária.
AMI: 15959
Ref. Externa: PT2023-1465
Id: 1615230
Inicie sessão para guardar este imóvel e aceder à sua lista de favoritos em qualquer dispositivo.
5.600.000 €
Área bruta : 4830 m²
Armazém junto ao Aeroporto Internacional de Lisboa, com facilidade de acessos aos principais eixos rodóviários. Armazém com superficie coberta 1.035m2 de área, e implantação de 1.039m2 de area. Armazém desenvolvido em diferentes areas, com espaços de Escritório e espaços de Armazenamento e Comercial. Marque já uma visita. Este anúncio foi efetuado por uma rotina informática, todos os dados carecem de validação com a equipa comercial. Este anúncio foi efetuado por uma rotina informática, todos os dados carecem de validação com a equipa comercial.
AMI: 15760
Ref. Externa: KWPT-027862
Id: 1608691
Inicie sessão para guardar este imóvel e aceder à sua lista de favoritos em qualquer dispositivo.
5.600.000 €
Área bruta : 4830 m²
Armazém Totalmente Remodelado, como novo Imóvel composto por cave mais 4 pisos, com uma área bruta total de 4.8300m² e uma área de implantação de 1.035m². Piso 1 - CAVE - Amplo Piso 2 - R/C - Uma divisão ampla, sanitários. Piso 3 - Primeiro -Uma Divisão ampla, Piso 4 - Segundo -Uma Divisões ampla Piso 5 - Uma Divisão ampla. Espaços amplos com acesso automóvel direto à rua, totalmente independente. Localização: O Coração da Logística Nacional Posição Estratégica Inigualável: Armazém situado no cluster logístico de Loures/Prior Velho/Sacavém, a localização mais crítica para distribuição na Área Metropolitana de Lisboa (AML), junto ao Aeroporto. Conectividade de Alto Nível: Acesso direto e imediato às infraestruturas rodoviárias essenciais para a distribuição nacional e internacional: A1 (Norte) A8 (Oeste) A12 (Sul via Ponte Vasco da Gama) CRIL / IC2 / Eixo Norte-Sul Proximidade ao Hub Aéreo: Apenas a 5 minutos do Aeroporto Humberto Delgado, crucial para operações que envolvam transporte aéreo de mercadorias Ideal para uso como armazém, estacionamento ou rent-a-car. Capacidade e Especificações Técnicas (Logística Big Box) Apresente a infraestrutura focando na rentabilidade operacional. Pé-Direito e Empilhamento: Pé-direito livre, ideal para empilhamento vertical de paletes e utilização de estruturas racks. Potencial de Investimento e Mercado Posicione o imóvel como um ativo de alto valor no mercado imobiliário industrial. Mercado Logístico: A procura por espaços premium de grande dimensão em Loures é consistentemente alta, garantindo a valorização do ativo. Uso Flexível: Ideal para grandes players de E-commerce, 3PL (Operadores Logísticos), Distribuição Farmacêutica ou Alimentar. A informação disponibilizada não dispensa a sua confirmação e não pode ser considerada vinculativa. Os imóveis estão sujeitos as confirmações de disponibilidade Marque já a sua visita! NOTAS: Para qualquer informação deste imóvel, por favor refira sempre a referência. Este imóvel está disponível para partilha (50-50%) com qualquer mediadora imobiliária - com licença AMI válida Porquê comprar com a Keller Williams? Nós gostamos de ajudar os compradores a encontrar o que realmente procuram! É por isso que trabalhamos com cada cliente individualmente, dedicando o tempo necessário para entender as suas necessidades e desejos. Quando escolhe a Keller Williams, obtém: Um agente imobiliário profissional e conhecedor do mercado Um aliado comprometido em negociar no seu interesse Os sistemas e ferramentas necessárias para agilizar a compra O apoio de uma empresa de confiança, Grupo KW Alfa
AMI: 23524
Ref. Externa: KWPT-027318
Id: 1587325
Inicie sessão para guardar este imóvel e aceder à sua lista de favoritos em qualquer dispositivo.
1.500.000 €
2 WCs
Área bruta : 750 m²
Armazém em remodelação com um total de 750 m², localizado na zona industrial do Prior Velho, Lisboa. Esta fracção B, que será vendida parcialmente, situase no 1º andar de um prédio com dois pisos (RC e 1.º andar), ambos com entradas independentes, oferecendo grande flexibilidade funcional para uso logístico, industrial ou de serviços. O espaço dispõe de acesso por rampa e conta com 3 divisões e duas casas de banho, ideal para áreas de carga/descarga, circulação de viaturas ou arrumos exteriores. Apresenta um pédireito de 5 metros. O imóvel está em remodelação e será vendido com obra concluída. Situado numa zona industrial estrategicamente posicionada à entrada de Lisboa, o imóvel beneficia de proximidade imediata ao Aeroporto Humberto Delgado (Lisboa Airport) facilitando operações de logística com transporte aéreo e criando valor adicional para atividades de distribuição e serviços relacionados ao aeroporto. A zona dispõe de acessos rodoviários excelentes, com ligações rápidas às principais autoestradas e vias estruturantes (incluindo A1, A12, IC17/CREL e Eixo NorteSul), assegurando fácil circulação de mercadorias para Lisboa, Grande Lisboa, Norte e Sul do país. Uma oportunidade única para investidores ou empresas que procuram um espaço funcional, com características técnicas superiores e localização estratégica num dos maiores polos industriais de Lisboa.
AMI: 20741
Ref. Externa: MN168
Id: 1583741
Inicie sessão para guardar este imóvel e aceder à sua lista de favoritos em qualquer dispositivo.
3.000.000 €
Área bruta : 1750 m²
Armazém em remodelação com um total de 1.750 m², localizado na zona industrial do Prior Velho, Lisboa. Esta fracção A, que será vendida parcialmente, situase no résdochão de um prédio com dois pisos (RC e 1.º andar), ambos com entradas independentes, oferecendo grande flexibilidade funcional para uso logístico, industrial ou de serviços. O espaço dispõe de acesso por rampa e conta com 3 divisões, duas casas de banho e um logradouro de 100 m², ideal para áreas de carga/descarga, circulação de viaturas ou arrumos exteriores. Apresenta um pédireito de 5 metros. O imóvel está em remodelação e será vendido com obra concluída. Situado numa zona industrial estrategicamente posicionada à entrada de Lisboa, o imóvel beneficia de proximidade imediata ao Aeroporto Humberto Delgado (Lisboa Airport) facilitando operações de logística com transporte aéreo e criando valor adicional para atividades de distribuição e serviços relacionados ao aeroporto. A zona dispõe de acessos rodoviários excelentes, com ligações rápidas às principais autoestradas e vias estruturantes (incluindo A1, A12, IC17/CREL e Eixo NorteSul), assegurando fácil circulação de mercadorias para Lisboa, Grande Lisboa, Norte e Sul do país. Uma oportunidade única para investidores ou empresas que procuram um espaço funcional, com características técnicas superiores e localização estratégica num dos maiores polos industriais de Lisboa.
AMI: 20741
Ref. Externa: MN167
Id: 1583740
Inicie sessão para guardar este imóvel e aceder à sua lista de favoritos em qualquer dispositivo.
5.600.000 €
4 WCs
Área bruta : 4830 m²
Armazém totalmente remodelado, composto por 5 pisos, localizado na Zona Industrial do Prior Velho, apresenta um pé-direito aproximado de 3,5 metros, perfazendo uma área total de 4.830 m², ideal para atividades logísticas, industriais ou de armazenamento de grande escala. Distribuição por Pisos: Cave 561,10 m²: Espaço amplo destinado a armazém, servido por rampa e com acesso automóvel direto à rua, além de ligação interna por escada e elevador. 1.º Piso 642,52 m²: Área ampla, servida por rampa, com 2 casas de banho triplas (masculino e feminino), acesso interno por escada e elevador. 2.º Piso 556,04 m²: Espaço amplo com rampa, 2 casas de banho triplas (masculino e feminino), escada interior e elevador. 3.º Piso 670,28 m²: Área ampla servida por rampa, com ligação interna por escada e elevador. Terraço 800,15 m²: Espaço totalmente amplo destinado a estacionamento, com acesso por escada e elevador. Todos os pisos estão internamente interligados por rampas para acesso automóvel, além de escadas e elevador que garantem total funcionalidade e facilidade de circulação. Localizado à entrada de Lisboa, beneficia de proximidade imediata ao Aeroporto de Lisboa, permitindo rápido acesso a transporte aéreo de carga ou deslocações corporativas. Dispõe de excelentes acessos rodoviários, incluindo ligação direta à A1, A12, CREL (A9) e Eixo Norte-Sul, garantindo fácil distribuição e transporte de mercadorias para todas as regiões do país. Um imóvel único para empresas que procuram um armazém moderno, funcional e estrategicamente localizado, pronto para operações logísticas e industriais de grande escala.
AMI: 20741
Ref. Externa: MN166
Id: 1583739
Inicie sessão para guardar este imóvel e aceder à sua lista de favoritos em qualquer dispositivo.
1.500.000 €
Área útil : 2550 m²
Venda de excelente armazém c/ parque privativo, em Sacavém / Prior VelhoArmazém com uma área bruta de 750m2.Rua mais próxima do aeroporto de Lisboainstalações de água e eletricidade novas.Edifício revestido a chapaTelhado novo em painel SanduícheLuz LedPiso revestido a EpoxiZona de escritório2 WC masculino e femininoJanelas térmicas novasPortões automáticos novosAfetação armazém e atividade IndustrialNão perca esta oportunidade de impulsionar o seu negócio, marque já a sua visita!...Na PREDIMED temos uma grande oferta de Armazéns (Logísticos ou Industriais) na Grande Lisboa. Se não encontra o espaço ideal para o seu negócio contacte-me...Predimed Imobiliária, Mediação Imobiliária, Lda.Avenida Brasil 43, 12º Andar, 1700-062 LisboaLicença AMI nº 22503Pessoa Coletiva nº 517 239 345Seguro Responsabilidade Civil: Nº de Apólice RC65379424 Fidelidade Características: Estacionamento Coberto;Terraço;Aeroporto;Auto-Estrada
AMI: 13558
Ref. Externa: 057589
Id: 1561071
Inicie sessão para guardar este imóvel e aceder à sua lista de favoritos em qualquer dispositivo.
3.000.000 €
Área útil : 2550 m²
Venda de excelente armazém c/ parque privativo, em Sacavém / Prior VelhoArmazém com uma área bruta de 1750m2.Rua mais próxima do aeroporto de Lisboainstalações de água e eletricidade novas.Edifício revestido a chapaTelhado novo em painel SanduícheLuz LedPiso revestido a EpoxiZona de escritório2 WC masculino e femininoJanelas térmicas novasPortões automáticos novosAfetação armazém e atividade IndustrialNão perca esta oportunidade de impulsionar o seu negócio, marque já a sua visita!...Na PREDIMED temos uma grande oferta de Armazéns (Logísticos ou Industriais) na Grande Lisboa. Se não encontra o espaço ideal para o seu negócio contacte-me...Predimed Imobiliária, Mediação Imobiliária, Lda.Avenida Brasil 43, 12º Andar, 1700-062 LisboaLicença AMI nº 22503Pessoa Coletiva nº 517 239 345Seguro Responsabilidade Civil: Nº de Apólice RC65379424 Fidelidade Características: Estacionamento Coberto;Terraço;Aeroporto;Auto-Estrada
AMI: 13558
Ref. Externa: 057590
Id: 1561061
Inicie sessão para guardar este imóvel e aceder à sua lista de favoritos em qualquer dispositivo.
1.400.000 €
Área útil : 800 m²
Excelente Localização. Armazém com disponibilidade imediata. Novo. Marque já a sua visita.Predimed Imobiliária, Mediação Imobiliária, Lda.Avenida Brasil 43, 12º Andar, 1700-062 LisboaLicença AMI nº 22503Pessoa Coletiva nº 517 239 345Seguro Responsabilidade Civil: Nº de Apólice RC65379424 Fidelidade
AMI: 13558
Ref. Externa: 057537
Id: 1555784
Inicie sessão para guardar este imóvel e aceder à sua lista de favoritos em qualquer dispositivo.
4.500.000 €
Área bruta : 2750 m²
Armazém Totalmente Remodelado, como novo Imóvel composto por 3pisos, com uma área bruta total de 2.500m² e uma área de implantação de 1.280m². Distribuição por pisos: Fracção A 1750 m2 Fracção B 750 m2 Espaços amplos com acesso automóvel direto à rua, totalmente independente. Podem ser vendidos junto ou separados, fracção A 3.000.000€ / fracção B 1.500.000€ Localização: O Coração da Logística Nacional Posição Estratégica Inigualável: Armazém situado no cluster logístico de Loures/Prior Velho/Sacavém, a localização mais crítica para distribuição na Área Metropolitana de Lisboa (AML). Conectividade de Alto Nível: Acesso direto e imediato às infraestruturas rodoviárias essenciais para a distribuição nacional e internacional: A1 (Norte) A8 (Oeste) A12 (Sul via Ponte Vasco da Gama) CRIL / IC2 / Eixo Norte-Sul Proximidade ao Hub Aéreo: Apenas a 5 minutos do Aeroporto Humberto Delgado, crucial para operações que envolvam transporte aéreo de mercadorias Ideal para uso como armazém, estacionamento ou rent-a-car. Capacidade e Especificações Técnicas (Logística Big Box) Apresente a infraestrutura focando na rentabilidade operacional. Pé-Direito e Empilhamento: Pé-direito livre, ideal para empilhamento vertical de paletes e utilização de estruturas racks. Potencial de Investimento e Mercado Posicione o imóvel como um ativo de alto valor no mercado imobiliário industrial. Mercado Logístico: A procura por espaços premium de grande dimensão em Loures é consistentemente alta, garantindo a valorização do ativo. Uso Flexível: Ideal para grandes players de E-commerce, 3PL (Operadores Logísticos), Distribuição Farmacêutica ou Alimentar. A informação disponibilizada não dispensa a sua confirmação e não pode ser considerada vinculativa. Os imóveis estão sujeitos as confirmações de disponibilidade Marque já a sua visita! NOTAS: Para qualquer informação deste imóvel, por favor refira sempre a referência. Este imóvel está disponível para partilha (50-50%) com qualquer mediadora imobiliária - com licença AMI válida Porquê comprar com a Keller Williams? Nós gostamos de ajudar os compradores a encontrar o que realmente procuram! É por isso que trabalhamos com cada cliente individualmente, dedicando o tempo necessário para entender as suas necessidades e desejos. Quando escolhe a Keller Williams, obtém: Um agente imobiliário profissional e conhecedor do mercado Um aliado comprometido em negociar no seu interesse Os sistemas e ferramentas necessárias para agilizar a compra O apoio de uma empresa de confiança, Grupo KW Alfa
AMI: 23524
Ref. Externa: KWPT-025666
Id: 1519046
Inicie sessão para guardar este imóvel e aceder à sua lista de favoritos em qualquer dispositivo.
1.350.000 €
Área útil : 684 m²
Está disponível para venda, Armazém com uma área de 684 m2, no Prior Velho em Lisboa, junto ao Aeroporto.Se procura um imóvel para o seu negócio, esta pode ser a solução.Temos várias opções de armazéns de acordo com o seu negócio. Não hesite em nos contatar.Predimed Imobiliária, Mediação Imobiliária, Lda.Avenida Brasil 43, 12º Andar, 1700-062 LisboaLicença AMI nº 22503Pessoa Coletiva nº 517 239 345Seguro Responsabilidade Civil: Nº de Apólice RC65379424 Fidelidade Características: Aeroporto;Auto-Estrada
AMI: 13558
Ref. Externa: 052533
Id: 1196608
Inicie sessão para guardar este imóvel e aceder à sua lista de favoritos em qualquer dispositivo.
8.000.000 €
10 WCs
Área bruta : 8895 m²
Edifício Multifuncional Industrial / Logistica / Serviços em construção - Oportunidade de investimento - O mercado de Indústria, e Logística, continua a apresentar uma tendência de crescimento e procura por parte dos investidores, com foco em projetos diferenciados e de qualidade, com soluções mais sustentáveis, como é o caso deste edifício. A produção, montagem, armazenamento e gestão de stock fora da Europa tem originado roturas, pelo que a preocupação em responder às necessidades locais tem sofrido um impacto relevante no sector logístico. Dada a sua localização específica e proximidade aos mercados nacionais e europeus, este edifício de elevada qualidade construtiva, e dimensão, é único neste sentido, por ter a capacidade de satisfazer todas estas necessidades, pois está literalmente ao lado do Aeroporto de Lisboa, está próximo do Porto Marítimo da cidade, e é servido pelos melhores acessos a qualquer zona do país a partir do Prior Velho, através da A-1, A2, CRIL, CREL, A-8, A-12. Reúne espaço para escritórios modernos no piso 1 e 2, destinados à gestão e otimização de toda a atividade, oferecendo serviços mais personalizados, tecnológicos e eficientes, com armazéns no piso térreo cujo acesso é efetuado através de três cais de carga/descarga, e na cave, com um pé direito de 8,5 m, sendo munido de elevadores monta-cargas e 2 de serviço bem como copa, wc's e balneários, vestiários e demais instalações de apoio à atividade, tudo no mesmo edifício, O edifício, cuja construção se encontra concluída a nível de estrutura e alvenarias, 36% pode agora ser totalmente adaptado às necessidades específicas do investidor, nomeadamente, indústria, serviços, armazenamento, logística e distribuição, data center, etc Área total construída de 8.895 m2 organizada por pisos: - Cave: 2.705,56 m2 Pé direito 8,85 m ( armazenamento cap. até 2.295 paletes, garagem, arrumos, serviços) - Mezzaninne: 745,08 m2; Pé direito 3,95 m( escritórios, suporte técnico, vestiários, balneários ) - Piso Térreo: 2.677,18 m2; Pé direito 3,80 m( cap. até 336 paletes, receção, átrio, g. direção, showroom, armazém, transferes, z. Técnica, produção montagem, comércio, expedição) - Piso 1: 2.215,69 m2; Pé direito 3 m ( cap. até 99 paletes, Lounge, Serviços financeiros, direção / Serv. Comerciais / investigação ) Piso 2: 551,92 m2; (Exposição e Marketing, formação e copa do Staff, atividades promocionais, roof top para eventos e conferências ). Total do Lote 4.820 m2 Implantação 2.705 m2 Cargas admitidas: Sobrecarga no piso 0 - 5,00 kN/m2 Sobrecarga no piso intermédio e piso 1 - 4,00 kN/m2 Sobrecarga nas coberturas - 3,00 kN/m2 Estacionamentos Em cave - 15 lugares ligeiros No exterior - 14 lugares ligeiros No exterior - 3 lugares pesados CE - Isento (de acordo nº2, art.18º, Dec Lei 101-D/2020) Não subestime esta oportunidade. A decisão a tomar não é apenas financeira é estrutural para o posicionamento de qualquer empresa nos próximos 20 anos, e constituirá uma vantagem competitiva única. Optar por um compromisso apenas a médio prazo seria perder uma rara vantagem competitiva sustentável a longo prazo que a aquisição deste imóvel configura, preenchendo todas as necessidades de que possam carecer. Contate-nos hoje mesmo para agendar visita ou solicitar qualquer outra informação que repute relevante.
AMI: 24184
Ref. Externa: 1141306/25LA
Id: 1148455
Inicie sessão para guardar este imóvel e aceder à sua lista de favoritos em qualquer dispositivo.
8.000.000 €
Área útil : 9475 m²
Edifício composto por Cave, Mezanine, Piso térreo, 1º e 2º Andares Área de implantação - 2.705,56 m2 Área de construção - 9.474,90 m2 Área do lote - 4.820m m2 Pé direito na Cave - 8,85 mts Pé direito na Mezanine - 3,95 mts Pé direito no Piso térreo - 3,80 mts Pé direito no 1 Andar - 3 mts Acesso a TIR Cais de carga e descarga O edifício ainda se encontra em construção, é vendido no estado em que se encontra Com licença de construção válida até 2026 Destino da construção: Indústria
AMI: 1563
Ref. Externa: ptm4437
Id: 1119168
Inicie sessão para guardar este imóvel e aceder à sua lista de favoritos em qualquer dispositivo.
4.500.000 €
Área útil : 2550 m²
Venda de excelente armazém c/ parque privativo, em Sacavém / Prior VelhoEM FASE FINAL DE REMODELAÇÃOArmazém com uma área bruta de 2550m2 dividida em dois pisos de entrada independente, rampa de acesso para viaturas para ambos os pisos.Rua mais próxima do aeroporto de Lisboainstalações de água e eletricidade novas.Edifício revestido a chapaTelhado novo em painel SanduícheLuz LedPiso revestido a EpoxiZona de escritório2 WC masculino e femininoJanelas térmicas novasPortões automáticos novosO Armazém tem 2 portões de entrada independentes.Afetação armazém e atividade IndustrialNão perca esta oportunidade de impulsionar o seu negócio, marque já a sua visita!...Na PREDIMED temos uma grande oferta de Armazéns (Logísticos ou Industriais) na Grande Lisboa. Se não encontra o espaço ideal para o seu negócio contacte-me...Predimed Imobiliária, Mediação Imobiliária, Lda.Avenida Brasil 43, 12º Andar, 1700-062 LisboaLicença AMI nº 22503Pessoa Coletiva nº 517 239 345Seguro Responsabilidade Civil: Nº de Apólice RC65379424 Fidelidade Características: Estacionamento Coberto;Terraço;Aeroporto;Auto-Estrada
AMI: 13558
Ref. Externa: 046990
Id: 841928
Inicie sessão para guardar este imóvel e aceder à sua lista de favoritos em qualquer dispositivo.
5.600.000 €
2 WCs
Área útil : 4830 m²
1 Armazém para venda no prior Velho com a área de 4.830 m2 Cave com 950 m2 R/c com 950 m2 1 Andar com 950 m2 2 Andar com 950 m2 Águas furtadas com 950 m2 Todos os pisos tem acesso por rampa Pé direito de 4 mts 2 Wc`s Não tem escritório
AMI: 1563
Ref. Externa: PTM4315
Id: 759760
Inicie sessão para guardar este imóvel e aceder à sua lista de favoritos em qualquer dispositivo.
Estes agentes são especialistas nesta zona:
Inicie sessão para ocultar este imóvel das suas pesquisas e manter a sua lista de resultados organizada.
© Copyright 2023 | CASACERTA. All rights reserved
Guardar favoritos
Este imóvel foi guardados nos seus favoritos com sucesso.
Para poder guardar pesquisa deverá ter a sua sessão iniciada.
Caso não tenha uma conta, deverá criar uma.
A sua pesquisa foi guardada com sucesso!
Este site utiliza cookies. Ao navegar no site estará a consentir a sua utilização.
Para mais informações sobre os cookies pode consultar a
política de privacidade.