Lista
Comprar
Arrendar
235.000 €
Área bruta : 190 m²
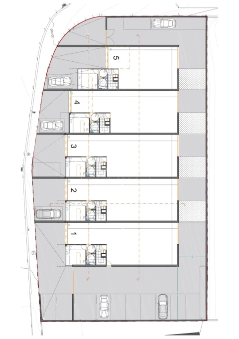
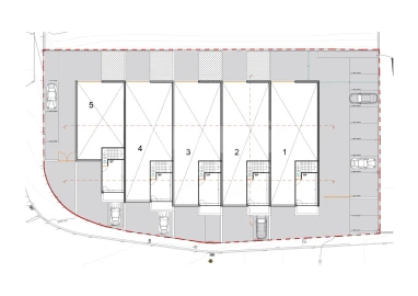
Armazém industrial em fase de construção no Parque Industrial da Gelfa. Excelente localização e bons acessos. Compostos por 2 pisos, tendo as seguintes áreas: Pavilhão 1 área do lote - 555,76-área de implantação 170 m2 - área de construção 200 m2 - valor: 275000€ Pavilhão 2 área do lote - 253,18- área de implantação 170 m2 - área de construção 200 m2 - valor: 250000€ Pavilhão 3 área do lote - 253,16- área de implantação 170 m2 - área de construção 200 m2 - valor: 250000€ Pavilhão 4 área do lote - 249,50 -área de implantação 166 m2 - área de construção 200 m2 - valor: 250000€ Pavilhão 5 área do lote - 368,40 -área de implantação 127 m2 - área de construção 190 m2 - valor: 235000€ Visite! MITOS E REALIDADES - Sociedade de Mediação Imobiliária, Lda. Licença AMI - 11024 Empresa do setor imobiliário que atua no mercado de Arrendamento e Venda de Imóveis. Com um padrão de seriedade na prestação de serviços imobiliários, procura realizar bons negócios com eficiência, proporcionando assim, tranquilidade aos seus clientes. A nossa equipa de colaboradores é formada por profissionais experientes, com vasto conhecimento para sugerir as melhores alternativas. Além disso, dispomos de um sistema totalmente informatizado, o que permite uma maior agilidade na pesquisa e adequação do perfil do imóvel às solicitações do cliente. Apoiada pelo profissionalismo e seriedade, a MITOS está colocada entre as maiores imobiliárias de Viana do Castelo. #mitos #mitosimobiliaria #imobiliária #vianadocastelo #realestate
AMI: 11024
Ref. Externa: F872
Id: 1632447
Inicie sessão para guardar este imóvel e aceder à sua lista de favoritos em qualquer dispositivo.
1.500 €
Área bruta : 200 m²
ARMAZEM. PARA ARRENDAR OU VENDER. Este Armazém, fica situado na zona industrial da Gelfa em Vila Praia de Ancora, à face da estrada nacional 13, que segue para norte em direção a Espanha, e para sul em direção a Viana do castelo e Porto. A zona industrial tem todas as infraestruturas necessárias para todo tipo de atividades, a pouca distancia, de zona de restauração, zona comercial e combustíveis. é Servida pela rede de transportes públicos urbana. Este armazém está inserido num empreendimento construído de raiz, com 5 armazéns, apresentam o expoente de qualidade e tecnologia na construção deste tipo de equipamentos. Preço sob, consulta Tabela. PAV1 ÁREA LOTE 555,79 ÁREA DE IMPLANTAÇÃO 170 ÁREA BRUTA DE CONSTRUÇÃO 200,00 VALOR DE RENDA 1500,00 PAV2 ÁREA LOTE 253,168 ÁREA DE IMPLANTAÇÃO 170 ÁREA BRUTA DE CONSTRUÇÃO 200,00 VALOR DE RENDA 1450,00 PAV3 ÁREA LOTE 253,16 ÁREA DE IMPLANTAÇÃO 170 ÁREA BRUTA DE CONSTRUÇÃO 200,00 VALOR DE RENDA 1450,00 PAV4 ÁREA LOTE 249,50 ÁREA DE IMPLANTAÇÃO 166 ÁREA BRUTA DE CONSTRUÇÃO 200,00 VALOR DE RENDA 1400,00 PAV5 ÁREA LOTE 368,40 ÁREA DE IMPLANTAÇÃO 127 ÁREA BRUTA DE CONSTRUÇÃO 190,00 VALOR DE RENDA 1350,00 VENHA VISITAR!
AMI: 24923
Ref. Externa: 401/N/00058
Id: 1107144
Inicie sessão para guardar este imóvel e aceder à sua lista de favoritos em qualquer dispositivo.
235.000 €
Área bruta : 190 m²
ARMAZÉM! comercial/indústria Este impressionante propriedade em Caminha (ANCORA) é ideal para investidores à procura de uma oportunidade única Para o seu próprio negocio, com uma boa Área, este armazém novo oferece um espaço amplo e versátil para qualquer tipo de negócio. Localizado numa zona estratégica, este armazém oferece fácil acesso a várias vias principais e está rodeado por uma paisagem envolvente deslumbrante. Não perca a oportunidade de adquirir este imóvel único. Marque já a sua visita!926746732
AMI: 24923
Ref. Externa: 401/N/00018
Id: 1055020
Inicie sessão para guardar este imóvel e aceder à sua lista de favoritos em qualquer dispositivo.
235.000 €
Área de terreno : 1680 m²
Pavilhões inseridos em terreno com 1.680m² de área total, em fase de construção, cujo prazo previsto para término dos mesmos, é entre Março/Abril de 2025. Os 5 pavilhões industriais situados na zona de Âncora, encontram-se disponíveis para arrendamento ou para venda. O valor do arrendamento a partir de 1.350,00€. O valor da venda a partir de 235 000,00€. Para mais informações, não hesite em contactar-nos.
AMI: 14941
Ref. Externa: V2334
Id: 992649
Inicie sessão para guardar este imóvel e aceder à sua lista de favoritos em qualquer dispositivo.
Sob consulta
Área útil : 217 m²
Pavilhões bem localizados, na zona industrial da Gelfa. Bons acessos. Preços desde 210.000,00€ SALGADOS IMOBILIÁRIA Praça da República, n.º 206, 4950-506 Monção 00351 961378460 | 00351 251656095 www.salgados.pt | [email protected] POR MOTIVOS DIVERSOS NÃO PUBLICAMOS TODOS OS IMÓVEIS NA INTERNET ENTRE EM CONTACTO CONNOSCO, CERTAMENTE TEMOS O IMÓVEL QUE PROCURA! Face a eventuais desacertos ou atualizações a informação publicada não dispensa confirmação posterior.
AMI: 7371
Ref. Externa: 23-0611
Id: 585105
Inicie sessão para guardar este imóvel e aceder à sua lista de favoritos em qualquer dispositivo.
Este agente é especialista nesta zona:
Inicie sessão para ocultar este imóvel das suas pesquisas e manter a sua lista de resultados organizada.
© Copyright 2023 | CASACERTA. All rights reserved
Guardar favoritos
Este imóvel foi guardados nos seus favoritos com sucesso.
Para poder guardar pesquisa deverá ter a sua sessão iniciada.
Caso não tenha uma conta, deverá criar uma.
A sua pesquisa foi guardada com sucesso!
Este site utiliza cookies. Ao navegar no site estará a consentir a sua utilização.
Para mais informações sobre os cookies pode consultar a
política de privacidade.