4 Quartos

4 WCs

Área bruta : 343 m²

Localizada em Espinho, Silvalde, esta moradia V4+1 insere-se numa zona residencial tranquila e valorizada, ideal para quem procura conforto, privacidade e qualidade de vida. A sua localização estratégica permite fáceis acessos a Espinho, Porto e Aveiro, bem como proximidade a escolas, comércio, serviços, transportes públicos e principais vias rodoviárias. A moradia apresenta espaços amplos, bem distribuídos e com excelente iluminação natural. Dispõe de quatro quartos, sendo um deles suite, além de um espaço adicional (+1) com potencial para escritório ou quarto de apoio. Conta ainda com quatro casas de banho, assegurando funcionalidade e conforto para toda a família. A propriedade dispõe de duas cozinhas totalmente equipadas, oferecendo versatilidade e adaptação a diferentes necessidades habitacionais. No exterior, a moradia beneficia de um agradável jardim com piscina, ideal para momentos de lazer e descanso. Dispõe ainda de um terraço com churrasqueira, perfeito para convívios ao ar livre e refeições em família ou com amigos. Complementa-se com lugar de garagem, garantindo comodidade e segurança. Uma excelente oportunidade para quem procura uma moradia completa, com excelentes áreas e localização privilegiada no concelho de Espinho. Entre em contacto. ONE house, ONE dream, ONE life (style).

AMI: 25142

Ref. Externa: ONE411702-20

Id: 1558271

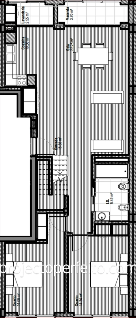
3 Quartos

Área bruta : 159 m²

Apartamento T3 para venda em empreendimento a construir em Silvalde com lugar de garagem para 2 carros e arrumos, à entrada de Espinho, junto ao Continente e ao Lidl, perto do centro da cidade.Acabamentos interiores:Sala, Entrada e QuartosParede – Pintura (cor a definir) sobre gesso acartonado hidrófugo, esp. 15mm;Teto – Pintura branca sobre gesso acartonado hidrófugo, esp. 13mm;Piso – Vinil em lâminas de 152x23, esp. 6,5mm;Armários – interior em melamina linho com portas em lacado branco.Cozinha:Parede – Pintura (cor a definir) sobre gesso acartonado hidrófugo, esp. 15mm;Teto – Pintura branca sobre gesso acartonado hidrófugo, esp. 13mm;Piso – Vinil em lâminas (cor a definir);Banca – Compósito resinoso de quartzo 10mm (cor a definir), pio modelo OKIO Line 100 Flat da Rodi, com torneira mono comando Sigma da Urbahn.Armários – Termolaminado (cor a definir), portas com dobradiças ocultas e gavetas com dispositivo “soft close”;Eletrodomésticos – Marca BALAY ou equivalente, placa, forno, micro-ondas, exaustor, frigorifico e máquina de lavar louça:• PACK BOSCH + 1.000€ • PACK SIEMENS + 2.000€ Sanitário social:Parede – Porcelanato ENERGY NATURAL 120x60cm;Piso – Cerâmica HABITAT LUNA NATURAL 60x60cm;Teto – Pintura branca sobre gesso acartonado hidrófugo, esp. 13mm;Armário – Madero ou equivalente, contraplacado marítimo folheado (padrão a definir), com gavetas, dispositivo “soft close”;Sanita – Linha A2 CIFIAL, suspensa com fixação oculta e sistema Rimflush, tampo com “slowclose” e “clipoff”;Duche – Base acrílica, com resguardo em vidro laminado alt. 2,00m, com conjunto de duche Ramon Soler Blautherm;Sanitário suite:Parede – Porcelanato ENERGY NATURAL 120x60cm; Piso – Cerâmica HABITAT LUNA NATURAL 60x60cm;Teto – Pintura branca sobre gesso acartonado hidrófugo, esp. 13mm;Armário – Madero ou equivalente, contraplacado marítimo folheado (padrão a definir), com gavetas, dispositivo “soft close”;Sanita – Linha A2 CIFIAL, suspensa com fixação oculta e sistema Rimflush, tampo com “slowclose” e “clipoff”; Bidé – Linha A2 CIFIAL, suspenso com fixação oculta, com mono comando Ramon Soler Titanium;Duche – Base acrílica, com resguardo em vidro laminado alt. 2,00m, com conjunto de duche Ramon Soler Blautherm.Inicio de obra: último trimestre de 2025, conclusão a 24 meses.Entre em contacto para mais informações sobre este projecto.

AMI: 8481

Ref. Externa: 3983-H

Id: 1556271

2 Quartos

Área bruta : 123 m²

Apartamento T2 com varanda a norte/poente e lugar de garagem para 1 carro para venda, localizado na cidade de Espinho, no mais recente empreendimento, onde irá usufruir de toda a tranquilidade que procura.​O empreendimento é constituído por 28 apartamentos de tipologias T1 a T4 duplex distribuídos por 3 blocos. Todas as frações possuem lugar de garagem e varandas para sul.Cada apartamento foi pensado cuidadosamente para proporcionar todo o conforto, sem esquecer a funcionalidade dos espaços. Os acabamentos de alta qualidade estão presentes em cada espaço, onde cada detalhe foi pensado ao pormenor para elevar a qualidade de vida da sua familia.No último piso apresentam-se fantásticos apartamentos duplex com generosos terraços com vista mar nos quais irá desfrutar de momento de prazer e convívio inesquecíveis. Mapa de AcabamentosExteriores:-- Fachadas ventiladas com revestimento em pedra mármore amaciada-- Caixilharias exteriores em alumínio com rutura térmica e vidros duplos-- Portadas exteriores corrediças em alumínio para controlo solar-- Guarda-corpos em vidro-- Pavimento das varandas e terraços em lajetas cerâmicas ​​Hall e Escadas:-- Paredes estanhadasPavimento em material cerâmico retificado-- Painel de parede em MDF folheado a madeira nobre nos halls ​​Garagem -- Pavimento acabamento betão-- Sistema de ventilação natural nas garagens-- Detetor de incêndio e monóxido de carbono na garagem-- Portão exterior motorizado ApartamentosGeral:-- Ar condicionado multi-split-- Bomba de calor-- Porta de segurança-- Gás canalizado-- TV e dados por cabo-- Vídeo porteiro a cores​​​​​​​-- Instalação elétrica para blackouts interiores​​​​​​​-- Teto falso com iluminação com focos LED ​Cozinha:​​​​​​​-- Armários interiores revestidos a melamina e acabamento exterior lacado Perfectsense®​​​​​​​-- Eletrodomésticos BOSCH ou similar (placa, exaustor, forno, micro-ondas, frigorífico e máquina de lavar louça)​​​​​​​-- Torneira monocomando da GROHE ou similar​​​​​​​-- Tampo e espaço entre móveis em Silestone ou similar  Sala e Quartos:​​​​​​​-- Pavimento flutuante vinílico com acabamento em carvalho ou similar​​​​​​​​​​​​​​-- Rodapés em MDF lacado branco​​​​​​​-- Portas e roupeiros lacados a branco​​​​​​​-- Paredes estanhadas ​Instalações sanitárias:​​​​​​​​​​​​​​-- Sanitários da Sanindusa ou similar​​​​​​​-- Móvel suspenso com lavatório​​​​​​​-- Torneiras monocomando da GROHE ou similar​​​​​​​-- Base de duche​​​​​​​-- Resguardos de duche em vidro temperado​​​​​​​-- Toalheiro aquecido (elétrico) no WC principal​​​​​​​-- Pavimento e paredes em material cerâmico retificado 120 x 60 cmEntre em contacto para mais informações e agende já a sua visita a este imóvel.

AMI: 8481

Ref. Externa: 4326-U

Id: 1526803

2 Quartos

Área bruta : 131 m²

Apartamento T2 com varanda a sul/poente e lugar de garagem para 1 carro para venda, localizado na cidade de Espinho, no mais recente empreendimento, onde irá usufruir de toda a tranquilidade que procura.​O empreendimento é constituído por 28 apartamentos de tipologias T1 a T4 duplex distribuídos por 3 blocos. Todas as frações possuem lugar de garagem e varandas para sul.Cada apartamento foi pensado cuidadosamente para proporcionar todo o conforto, sem esquecer a funcionalidade dos espaços. Os acabamentos de alta qualidade estão presentes em cada espaço, onde cada detalhe foi pensado ao pormenor para elevar a qualidade de vida da sua familia.No último piso apresentam-se fantásticos apartamentos duplex com generosos terraços com vista mar nos quais irá desfrutar de momento de prazer e convívio inesquecíveis. Mapa de AcabamentosExteriores:-- Fachadas ventiladas com revestimento em pedra mármore amaciada-- Caixilharias exteriores em alumínio com rutura térmica e vidros duplos-- Portadas exteriores corrediças em alumínio para controlo solar-- Guarda-corpos em vidro-- Pavimento das varandas e terraços em lajetas cerâmicas ​​Hall e Escadas:-- Paredes estanhadasPavimento em material cerâmico retificado-- Painel de parede em MDF folheado a madeira nobre nos halls ​​Garagem -- Pavimento acabamento betão-- Sistema de ventilação natural nas garagens-- Detetor de incêndio e monóxido de carbono na garagem-- Portão exterior motorizado ApartamentosGeral:-- Ar condicionado multi-split-- Bomba de calor-- Porta de segurança-- Gás canalizado-- TV e dados por cabo-- Vídeo porteiro a cores​​​​​​​-- Instalação elétrica para blackouts interiores​​​​​​​-- Teto falso com iluminação com focos LED ​Cozinha:​​​​​​​-- Armários interiores revestidos a melamina e acabamento exterior lacado Perfectsense®​​​​​​​-- Eletrodomésticos BOSCH ou similar (placa, exaustor, forno, micro-ondas, frigorífico e máquina de lavar louça)​​​​​​​-- Torneira monocomando da GROHE ou similar​​​​​​​-- Tampo e espaço entre móveis em Silestone ou similar  Sala e Quartos:​​​​​​​-- Pavimento flutuante vinílico com acabamento em carvalho ou similar​​​​​​​​​​​​​​-- Rodapés em MDF lacado branco​​​​​​​-- Portas e roupeiros lacados a branco​​​​​​​-- Paredes estanhadas ​Instalações sanitárias:​​​​​​​​​​​​​​-- Sanitários da Sanindusa ou similar​​​​​​​-- Móvel suspenso com lavatório​​​​​​​-- Torneiras monocomando da GROHE ou similar​​​​​​​-- Base de duche​​​​​​​-- Resguardos de duche em vidro temperado​​​​​​​-- Toalheiro aquecido (elétrico) no WC principal​​​​​​​-- Pavimento e paredes em material cerâmico retificado 120 x 60 cmEntre em contacto para mais informações e agende já a sua visita a este imóvel.

AMI: 8481

Ref. Externa: 4326-T

Id: 1526802

2 Quartos

Área bruta : 119 m²

Apartamento T2 com varanda a norte/poente e lugar de garagem para 1 carro para venda, localizado na cidade de Espinho, no mais recente empreendimento, onde irá usufruir de toda a tranquilidade que procura.​O empreendimento é constituído por 28 apartamentos de tipologias T1 a T4 duplex distribuídos por 3 blocos. Todas as frações possuem lugar de garagem e varandas para sul.Cada apartamento foi pensado cuidadosamente para proporcionar todo o conforto, sem esquecer a funcionalidade dos espaços. Os acabamentos de alta qualidade estão presentes em cada espaço, onde cada detalhe foi pensado ao pormenor para elevar a qualidade de vida da sua familia.No último piso apresentam-se fantásticos apartamentos duplex com generosos terraços com vista mar nos quais irá desfrutar de momento de prazer e convívio inesquecíveis. Mapa de AcabamentosExteriores:-- Fachadas ventiladas com revestimento em pedra mármore amaciada-- Caixilharias exteriores em alumínio com rutura térmica e vidros duplos-- Portadas exteriores corrediças em alumínio para controlo solar-- Guarda-corpos em vidro-- Pavimento das varandas e terraços em lajetas cerâmicas ​​Hall e Escadas:-- Paredes estanhadasPavimento em material cerâmico retificado-- Painel de parede em MDF folheado a madeira nobre nos halls ​​Garagem -- Pavimento acabamento betão-- Sistema de ventilação natural nas garagens-- Detetor de incêndio e monóxido de carbono na garagem-- Portão exterior motorizado ApartamentosGeral:-- Ar condicionado multi-split-- Bomba de calor-- Porta de segurança-- Gás canalizado-- TV e dados por cabo-- Vídeo porteiro a cores​​​​​​​-- Instalação elétrica para blackouts interiores​​​​​​​-- Teto falso com iluminação com focos LED ​Cozinha:​​​​​​​-- Armários interiores revestidos a melamina e acabamento exterior lacado Perfectsense®​​​​​​​-- Eletrodomésticos BOSCH ou similar (placa, exaustor, forno, micro-ondas, frigorífico e máquina de lavar louça)​​​​​​​-- Torneira monocomando da GROHE ou similar​​​​​​​-- Tampo e espaço entre móveis em Silestone ou similar  Sala e Quartos:​​​​​​​-- Pavimento flutuante vinílico com acabamento em carvalho ou similar​​​​​​​​​​​​​​-- Rodapés em MDF lacado branco​​​​​​​-- Portas e roupeiros lacados a branco​​​​​​​-- Paredes estanhadas ​Instalações sanitárias:​​​​​​​​​​​​​​-- Sanitários da Sanindusa ou similar​​​​​​​-- Móvel suspenso com lavatório​​​​​​​-- Torneiras monocomando da GROHE ou similar​​​​​​​-- Base de duche​​​​​​​-- Resguardos de duche em vidro temperado​​​​​​​-- Toalheiro aquecido (elétrico) no WC principal​​​​​​​-- Pavimento e paredes em material cerâmico retificado 120 x 60 cmEntre em contacto para mais informações e agende já a sua visita a este imóvel.

AMI: 8481

Ref. Externa: 4326-N

Id: 1526801

1 Quartos

Área bruta : 101 m²

Apartamento T1 com 89m2 e lugar de garagem para 1 carro para venda, localizado na cidade de Espinho, no mais recente empreendimento, onde irá usufruir de toda a tranquilidade que procura.​O empreendimento é constituído por 28 apartamentos de tipologias T1 a T4 duplex distribuídos por 3 blocos. Todas as frações possuem lugar de garagem e varandas para sul.Cada apartamento foi pensado cuidadosamente para proporcionar todo o conforto, sem esquecer a funcionalidade dos espaços. Os acabamentos de alta qualidade estão presentes em cada espaço, onde cada detalhe foi pensado ao pormenor para elevar a qualidade de vida da sua familia.No último piso apresentam-se fantásticos apartamentos duplex com generosos terraços com vista mar nos quais irá desfrutar de momento de prazer e convívio inesquecíveis. Mapa de AcabamentosExteriores:-- Fachadas ventiladas com revestimento em pedra mármore amaciada-- Caixilharias exteriores em alumínio com rutura térmica e vidros duplos-- Portadas exteriores corrediças em alumínio para controlo solar-- Guarda-corpos em vidro-- Pavimento das varandas e terraços em lajetas cerâmicas ​​Hall e Escadas:-- Paredes estanhadasPavimento em material cerâmico retificado-- Painel de parede em MDF folheado a madeira nobre nos halls ​​Garagem -- Pavimento acabamento betão-- Sistema de ventilação natural nas garagens-- Detetor de incêndio e monóxido de carbono na garagem-- Portão exterior motorizado ApartamentosGeral:-- Ar condicionado multi-split-- Bomba de calor-- Porta de segurança-- Gás canalizado-- TV e dados por cabo​​​​​​​-- Vídeo porteiro a cores​​​​​​​-- Instalação elétrica para blackouts interiores​​​​​​​-- Teto falso com iluminação com focos LED ​Cozinha:​​​​​​​-- Armários interiores revestidos a melamina e acabamento exterior lacado Perfectsense®​​​​​​​-- Eletrodomésticos BOSCH ou similar (placa, exaustor, forno, micro-ondas, frigorífico e máquina de lavar louça)​​​​​​​-- Torneira monocomando da GROHE ou similar​​​​​​​-- Tampo e espaço entre móveis em Silestone ou similar  Sala e Quartos:​​​​​​​-- Pavimento flutuante vinílico com acabamento em carvalho ou similar​​​​​​​​​​​​​​-- Rodapés em MDF lacado branco​​​​​​​-- Portas e roupeiros lacados a branco​​​​​​​-- Paredes estanhadas ​Instalações sanitárias:​​​​​​​​​​​​​​-- Sanitários da Sanindusa ou similar​​​​​​​-- Móvel suspenso com lavatório​​​​​​​-- Torneiras monocomando da GROHE ou similar​​​​​​​-- Base de duche​​​​​​​-- Resguardos de duche em vidro temperado​​​​​​​-- Toalheiro aquecido (elétrico) no WC principal​​​​​​​-- Pavimento e paredes em material cerâmico retificado 120 x 60 cmEntre em contacto para mais informações e agende já a sua visita a este imóvel.

AMI: 8481

Ref. Externa: 4326-G

Id: 1526800

2 Quartos

Área bruta : 132 m²

Apartamento T2 com varanda a sul/poente e lugar de garagem para 1 carro para venda, localizado na cidade de Espinho, no mais recente empreendimento, onde irá usufruir de toda a tranquilidade que procura.​O empreendimento é constituído por 28 apartamentos de tipologias T1 a T4 duplex distribuídos por 3 blocos. Todas as frações possuem lugar de garagem e varandas para sul.Cada apartamento foi pensado cuidadosamente para proporcionar todo o conforto, sem esquecer a funcionalidade dos espaços. Os acabamentos de alta qualidade estão presentes em cada espaço, onde cada detalhe foi pensado ao pormenor para elevar a qualidade de vida da sua familia.No último piso apresentam-se fantásticos apartamentos duplex com generosos terraços com vista mar nos quais irá desfrutar de momento de prazer e convívio inesquecíveis. Mapa de AcabamentosExteriores:-- Fachadas ventiladas com revestimento em pedra mármore amaciada-- Caixilharias exteriores em alumínio com rutura térmica e vidros duplos-- Portadas exteriores corrediças em alumínio para controlo solar-- Guarda-corpos em vidro-- Pavimento das varandas e terraços em lajetas cerâmicas ​​Hall e Escadas:-- Paredes estanhadasPavimento em material cerâmico retificado-- Painel de parede em MDF folheado a madeira nobre nos halls ​​Garagem -- Pavimento acabamento betão-- Sistema de ventilação natural nas garagens-- Detetor de incêndio e monóxido de carbono na garagem-- Portão exterior motorizado ApartamentosGeral:-- Ar condicionado multi-split-- Bomba de calor-- Porta de segurança-- Gás canalizado-- TV e dados por cabo​​​​​​​-- Vídeo porteiro a cores​​​​​​​-- Instalação elétrica para blackouts interiores​​​​​​​-- Teto falso com iluminação com focos LED ​Cozinha:​​​​​​​-- Armários interiores revestidos a melamina e acabamento exterior lacado Perfectsense®​​​​​​​-- Eletrodomésticos BOSCH ou similar (placa, exaustor, forno, micro-ondas, frigorífico e máquina de lavar louça)​​​​​​​-- Torneira monocomando da GROHE ou similar​​​​​​​-- Tampo e espaço entre móveis em Silestone ou similar  Sala e Quartos:​​​​​​​-- Pavimento flutuante vinílico com acabamento em carvalho ou similar​​​​​​​​​​​​​​-- Rodapés em MDF lacado branco​​​​​​​-- Portas e roupeiros lacados a branco​​​​​​​-- Paredes estanhadas ​Instalações sanitárias:​​​​​​​​​​​​​​-- Sanitários da Sanindusa ou similar​​​​​​​-- Móvel suspenso com lavatório​​​​​​​-- Torneiras monocomando da GROHE ou similar​​​​​​​-- Base de duche​​​​​​​-- Resguardos de duche em vidro temperado​​​​​​​-- Toalheiro aquecido (elétrico) no WC principal​​​​​​​-- Pavimento e paredes em material cerâmico retificado 120 x 60 cmEntre em contacto para mais informações e agende já a sua visita a este imóvel.

AMI: 8481

Ref. Externa: 4326-M

Id: 1526799

2 Quartos

Área bruta : 127 m²

Apartamento T2 com varanda a sul e lugar de garagem para 1 carro para venda, localizado na cidade de Espinho, no mais recente empreendimento, onde irá usufruir de toda a tranquilidade que procura.​O empreendimento é constituído por 28 apartamentos de tipologias T1 a T4 duplex distribuídos por 3 blocos. Todas as frações possuem lugar de garagem e varandas para sul.Cada apartamento foi pensado cuidadosamente para proporcionar todo o conforto, sem esquecer a funcionalidade dos espaços. Os acabamentos de alta qualidade estão presentes em cada espaço, onde cada detalhe foi pensado ao pormenor para elevar a qualidade de vida da sua familia.No último piso apresentam-se fantásticos apartamentos duplex com generosos terraços com vista mar nos quais irá desfrutar de momento de prazer e convívio inesquecíveis. Mapa de AcabamentosExteriores:-- Fachadas ventiladas com revestimento em pedra mármore amaciada-- Caixilharias exteriores em alumínio com rutura térmica e vidros duplos-- Portadas exteriores corrediças em alumínio para controlo solar-- Guarda-corpos em vidro-- Pavimento das varandas e terraços em lajetas cerâmicas ​​Hall e Escadas:-- Paredes estanhadasPavimento em material cerâmico retificado-- Painel de parede em MDF folheado a madeira nobre nos halls ​​Garagem -- Pavimento acabamento betão-- Sistema de ventilação natural nas garagens-- Detetor de incêndio e monóxido de carbono na garagem-- Portão exterior motorizado ApartamentosGeral:-- Ar condicionado multi-split-- Bomba de calor-- Porta de segurança-- Gás canalizado​​​​​​​-- TV e dados por cabo​​​​​​​-- Vídeo porteiro a cores​​​​​​​-- Instalação elétrica para blackouts interiores​​​​​​​-- Teto falso com iluminação com focos LED ​Cozinha:​​​​​​​-- Armários interiores revestidos a melamina e acabamento exterior lacado Perfectsense®​​​​​​​-- Eletrodomésticos BOSCH ou similar (placa, exaustor, forno, micro-ondas, frigorífico e máquina de lavar louça)​​​​​​​-- Torneira monocomando da GROHE ou similar​​​​​​​-- Tampo e espaço entre móveis em Silestone ou similar  Sala e Quartos:​​​​​​​-- Pavimento flutuante vinílico com acabamento em carvalho ou similar​​​​​​​​​​​​​​-- Rodapés em MDF lacado branco​​​​​​​-- Portas e roupeiros lacados a branco​​​​​​​-- Paredes estanhadas ​Instalações sanitárias:​​​​​​​​​​​​​​-- Sanitários da Sanindusa ou similar​​​​​​​-- Móvel suspenso com lavatório​​​​​​​-- Torneiras monocomando da GROHE ou similar​​​​​​​-- Base de duche​​​​​​​-- Resguardos de duche em vidro temperado​​​​​​​-- Toalheiro aquecido (elétrico) no WC principal​​​​​​​-- Pavimento e paredes em material cerâmico retificado 120 x 60 cmEntre em contacto para mais informações e agende já a sua visita a este imóvel.

AMI: 8481

Ref. Externa: 4326-F

Id: 1526798

3 Quartos

Área bruta : 118 m²

Apartamento T3 com varanda a sul e lugar de garagem para 1 carro para venda, localizado na cidade de Espinho, no mais recente empreendimento, onde irá usufruir de toda a tranquilidade que procura.​O empreendimento é constituído por 28 apartamentos de tipologias T1 a T4 duplex distribuídos por 3 blocos. Todas as frações possuem lugar de garagem e varandas para sul.Cada apartamento foi pensado cuidadosamente para proporcionar todo o conforto, sem esquecer a funcionalidade dos espaços. Os acabamentos de alta qualidade estão presentes em cada espaço, onde cada detalhe foi pensado ao pormenor para elevar a qualidade de vida da sua familia.No último piso apresentam-se fantásticos apartamentos duplex com generosos terraços com vista mar nos quais irá desfrutar de momento de prazer e convívio inesquecíveis. Mapa de AcabamentosExteriores:-- Fachadas ventiladas com revestimento em pedra mármore amaciada-- Caixilharias exteriores em alumínio com rutura térmica e vidros duplos-- Portadas exteriores corrediças em alumínio para controlo solar-- Guarda-corpos em vidro-- Pavimento das varandas e terraços em lajetas cerâmicas ​​Hall e Escadas:-- Paredes estanhadasPavimento em material cerâmico retificado-- Painel de parede em MDF folheado a madeira nobre nos halls ​​Garagem -- Pavimento acabamento betão-- Sistema de ventilação natural nas garagens-- Detetor de incêndio e monóxido de carbono na garagem-- Portão exterior motorizado ApartamentosGeral:-- Ar condicionado multi-split-- Bomba de calor-- Porta de segurança​​​​​​​-- Gás canalizado​​​​​​​-- TV e dados por cabo​​​​​​​-- Vídeo porteiro a cores​​​​​​​-- Instalação elétrica para blackouts interiores​​​​​​​-- Teto falso com iluminação com focos LED ​Cozinha:​​​​​​​-- Armários interiores revestidos a melamina e acabamento exterior lacado Perfectsense®​​​​​​​-- Eletrodomésticos BOSCH ou similar (placa, exaustor, forno, micro-ondas, frigorífico e máquina de lavar louça)​​​​​​​-- Torneira monocomando da GROHE ou similar​​​​​​​-- Tampo e espaço entre móveis em Silestone ou similar  Sala e Quartos:​​​​​​​-- Pavimento flutuante vinílico com acabamento em carvalho ou similar​​​​​​​​​​​​​​-- Rodapés em MDF lacado branco​​​​​​​-- Portas e roupeiros lacados a branco​​​​​​​-- Paredes estanhadas ​Instalações sanitárias:​​​​​​​​​​​​​​-- Sanitários da Sanindusa ou similar​​​​​​​-- Móvel suspenso com lavatório​​​​​​​-- Torneiras monocomando da GROHE ou similar​​​​​​​-- Base de duche​​​​​​​-- Resguardos de duche em vidro temperado​​​​​​​-- Toalheiro aquecido (elétrico) no WC principal​​​​​​​-- Pavimento e paredes em material cerâmico retificado 120 x 60 cmEntre em contacto para mais informações e agende já a sua visita a este imóvel.

AMI: 8481

Ref. Externa: 4326-E

Id: 1526797

2 Quartos

Área bruta : 216 m²

Apartamento T2 duplex, último andar com terraços de 28.91m2 e lugar de garagem para 2 carros para venda, localizado na cidade de Espinho, no mais recente empreendimento, onde irá usufruir de toda a tranquilidade que procura.​O empreendimento é constituído por 28 apartamentos de tipologias T1 a T4 duplex distribuídos por 3 blocos. Todas as frações possuem lugar de garagem e varandas para sul.Cada apartamento foi pensado cuidadosamente para proporcionar todo o conforto, sem esquecer a funcionalidade dos espaços. Os acabamentos de alta qualidade estão presentes em cada espaço, onde cada detalhe foi pensado ao pormenor para elevar a qualidade de vida da sua familia.No último piso apresentam-se fantásticos apartamentos duplex com generosos terraços com vista mar nos quais irá desfrutar de momento de prazer e convívio inesquecíveis. Mapa de AcabamentosExteriores:-- Fachadas ventiladas com revestimento em pedra mármore amaciada-- Caixilharias exteriores em alumínio com rutura térmica e vidros duplos-- Portadas exteriores corrediças em alumínio para controlo solar-- Guarda-corpos em vidro-- Pavimento das varandas e terraços em lajetas cerâmicas ​​Hall e Escadas:-- Paredes estanhadasPavimento em material cerâmico retificado-- Painel de parede em MDF folheado a madeira nobre nos halls ​​Garagem -- Pavimento acabamento betão-- Sistema de ventilação natural nas garagens​​​​​​​-- Detetor de incêndio e monóxido de carbono na garagem​​​​​​​-- Portão exterior motorizado ApartamentosGeral:-- Ar condicionado multi-split-- Bomba de calor​​​​​​​-- Porta de segurança​​​​​​​-- Gás canalizado​​​​​​​-- TV e dados por cabo​​​​​​​-- Vídeo porteiro a cores​​​​​​​-- Instalação elétrica para blackouts interiores​​​​​​​-- Teto falso com iluminação com focos LED ​Cozinha:​​​​​​​-- Armários interiores revestidos a melamina e acabamento exterior lacado Perfectsense®​​​​​​​-- Eletrodomésticos BOSCH ou similar (placa, exaustor, forno, micro-ondas, frigorífico e máquina de lavar louça)​​​​​​​-- Torneira monocomando da GROHE ou similar​​​​​​​-- Tampo e espaço entre móveis em Silestone ou similar  Sala e Quartos:​​​​​​​-- Pavimento flutuante vinílico com acabamento em carvalho ou similar​​​​​​​​​​​​​​-- Rodapés em MDF lacado branco​​​​​​​-- Portas e roupeiros lacados a branco​​​​​​​-- Paredes estanhadas ​Instalações sanitárias:​​​​​​​​​​​​​​-- Sanitários da Sanindusa ou similar​​​​​​​-- Móvel suspenso com lavatório​​​​​​​-- Torneiras monocomando da GROHE ou similar​​​​​​​-- Base de duche​​​​​​​-- Resguardos de duche em vidro temperado​​​​​​​-- Toalheiro aquecido (elétrico) no WC principal​​​​​​​-- Pavimento e paredes em material cerâmico retificado 120 x 60 cmEntre em contacto para mais informações e agende já a sua visita a este imóvel.

AMI: 8481

Ref. Externa: 4326-Y

Id: 1526794

2 Quartos

Área bruta : 219 m²

Apartamento T2 duplex, último andar com terraços de 28.91m2 e lugar de garagem para 2 carros e arrumo para venda, localizado na cidade de Espinho, no mais recente empreendimento, onde irá usufruir de toda a tranquilidade que procura.​O empreendimento é constituído por 28 apartamentos de tipologias T1 a T4 duplex distribuídos por 3 blocos. Todas as frações possuem lugar de garagem e varandas para sul.Cada apartamento foi pensado cuidadosamente para proporcionar todo o conforto, sem esquecer a funcionalidade dos espaços. Os acabamentos de alta qualidade estão presentes em cada espaço, onde cada detalhe foi pensado ao pormenor para elevar a qualidade de vida da sua familia.No último piso apresentam-se fantásticos apartamentos duplex com generosos terraços com vista mar nos quais irá desfrutar de momento de prazer e convívio inesquecíveis. Mapa de AcabamentosExteriores:-- Fachadas ventiladas com revestimento em pedra mármore amaciada-- Caixilharias exteriores em alumínio com rutura térmica e vidros duplos-- Portadas exteriores corrediças em alumínio para controlo solar-- Guarda-corpos em vidro-- Pavimento das varandas e terraços em lajetas cerâmicas ​​Hall e Escadas:-- Paredes estanhadasPavimento em material cerâmico retificado-- Painel de parede em MDF folheado a madeira nobre nos halls ​​Garagem -- Pavimento acabamento betão-- Sistema de ventilação natural nas garagens​​​​​​​-- Detetor de incêndio e monóxido de carbono na garagem​​​​​​​-- Portão exterior motorizado ApartamentosGeral:-- Ar condicionado multi-split-- Bomba de calor​​​​​​​-- Porta de segurança​​​​​​​-- Gás canalizado​​​​​​​-- TV e dados por cabo​​​​​​​-- Vídeo porteiro a cores​​​​​​​-- Instalação elétrica para blackouts interiores​​​​​​​-- Teto falso com iluminação com focos LED ​Cozinha:​​​​​​​-- Armários interiores revestidos a melamina e acabamento exterior lacado Perfectsense®​​​​​​​-- Eletrodomésticos BOSCH ou similar (placa, exaustor, forno, micro-ondas, frigorífico e máquina de lavar louça)​​​​​​​-- Torneira monocomando da GROHE ou similar​​​​​​​-- Tampo e espaço entre móveis em Silestone ou similar  Sala e Quartos:​​​​​​​-- Pavimento flutuante vinílico com acabamento em carvalho ou similar​​​​​​​​​​​​​​-- Rodapés em MDF lacado branco​​​​​​​-- Portas e roupeiros lacados a branco​​​​​​​-- Paredes estanhadas ​Instalações sanitárias:​​​​​​​​​​​​​​-- Sanitários da Sanindusa ou similar​​​​​​​-- Móvel suspenso com lavatório​​​​​​​-- Torneiras monocomando da GROHE ou similar​​​​​​​-- Base de duche​​​​​​​-- Resguardos de duche em vidro temperado​​​​​​​-- Toalheiro aquecido (elétrico) no WC principal​​​​​​​-- Pavimento e paredes em material cerâmico retificado 120 x 60 cmEntre em contacto para mais informações e agende já a sua visita a este imóvel.

AMI: 8481

Ref. Externa: 4326-X

Id: 1526793

3 Quartos

Área bruta : 120 m²

Apartamento T3 com varanda a sul e lugar de garagem para 1 carro para venda, localizado na cidade de Espinho, no mais recente empreendimento, onde irá usufruir de toda a tranquilidade que procura.​O empreendimento é constituído por 28 apartamentos de tipologias T1 a T4 duplex distribuídos por 3 blocos. Todas as frações possuem lugar de garagem e varandas para sul.Cada apartamento foi pensado cuidadosamente para proporcionar todo o conforto, sem esquecer a funcionalidade dos espaços. Os acabamentos de alta qualidade estão presentes em cada espaço, onde cada detalhe foi pensado ao pormenor para elevar a qualidade de vida da sua familia.No último piso apresentam-se fantásticos apartamentos duplex com generosos terraços com vista mar nos quais irá desfrutar de momento de prazer e convívio inesquecíveis. Mapa de AcabamentosExteriores:-- Fachadas ventiladas com revestimento em pedra mármore amaciada-- Caixilharias exteriores em alumínio com rutura térmica e vidros duplos-- Portadas exteriores corrediças em alumínio para controlo solar-- Guarda-corpos em vidro-- Pavimento das varandas e terraços em lajetas cerâmicas ​​Hall e Escadas:-- Paredes estanhadasPavimento em material cerâmico retificado-- Painel de parede em MDF folheado a madeira nobre nos halls ​​Garagem -- Pavimento acabamento betão-- Sistema de ventilação natural nas garagens-- Detetor de incêndio e monóxido de carbono na garagem-- Portão exterior motorizado ApartamentosGeral:-- Ar condicionado multi-split-- Bomba de calor​​​​​​​-- Porta de segurança​​​​​​​-- Gás canalizado​​​​​​​-- TV e dados por cabo​​​​​​​-- Vídeo porteiro a cores​​​​​​​-- Instalação elétrica para blackouts interiores​​​​​​​-- Teto falso com iluminação com focos LED ​Cozinha:​​​​​​​-- Armários interiores revestidos a melamina e acabamento exterior lacado Perfectsense®​​​​​​​-- Eletrodomésticos BOSCH ou similar (placa, exaustor, forno, micro-ondas, frigorífico e máquina de lavar louça)​​​​​​​-- Torneira monocomando da GROHE ou similar​​​​​​​-- Tampo e espaço entre móveis em Silestone ou similar  Sala e Quartos:​​​​​​​-- Pavimento flutuante vinílico com acabamento em carvalho ou similar​​​​​​​​​​​​​​-- Rodapés em MDF lacado branco​​​​​​​-- Portas e roupeiros lacados a branco​​​​​​​-- Paredes estanhadas ​Instalações sanitárias:​​​​​​​​​​​​​​-- Sanitários da Sanindusa ou similar​​​​​​​-- Móvel suspenso com lavatório​​​​​​​-- Torneiras monocomando da GROHE ou similar​​​​​​​-- Base de duche​​​​​​​-- Resguardos de duche em vidro temperado​​​​​​​-- Toalheiro aquecido (elétrico) no WC principal​​​​​​​-- Pavimento e paredes em material cerâmico retificado 120 x 60 cmEntre em contacto para mais informações e agende já a sua visita a este imóvel.

AMI: 8481

Ref. Externa: 4326-R

Id: 1526792

3 Quartos

Área bruta : 120 m²

Apartamento T3 com varanda a sul e lugar de garagem para 1 carro para venda, localizado na cidade de Espinho, no mais recente empreendimento, onde irá usufruir de toda a tranquilidade que procura.​O empreendimento é constituído por 28 apartamentos de tipologias T1 a T4 duplex distribuídos por 3 blocos. Todas as frações possuem lugar de garagem e varandas para sul.Cada apartamento foi pensado cuidadosamente para proporcionar todo o conforto, sem esquecer a funcionalidade dos espaços. Os acabamentos de alta qualidade estão presentes em cada espaço, onde cada detalhe foi pensado ao pormenor para elevar a qualidade de vida da sua familia.No último piso apresentam-se fantásticos apartamentos duplex com generosos terraços com vista mar nos quais irá desfrutar de momento de prazer e convívio inesquecíveis. Mapa de AcabamentosExteriores:-- Fachadas ventiladas com revestimento em pedra mármore amaciada-- Caixilharias exteriores em alumínio com rutura térmica e vidros duplos-- Portadas exteriores corrediças em alumínio para controlo solar-- Guarda-corpos em vidro-- Pavimento das varandas e terraços em lajetas cerâmicas ​​Hall e Escadas:-- Paredes estanhadasPavimento em material cerâmico retificado-- Painel de parede em MDF folheado a madeira nobre nos halls ​​Garagem -- Pavimento acabamento betão-- Sistema de ventilação natural nas garagens-- Detetor de incêndio e monóxido de carbono na garagem​​​​​​​-- Portão exterior motorizado ApartamentosGeral:-- Ar condicionado multi-split-- Bomba de calor​​​​​​​-- Porta de segurança​​​​​​​-- Gás canalizado​​​​​​​-- TV e dados por cabo​​​​​​​-- Vídeo porteiro a cores​​​​​​​-- Instalação elétrica para blackouts interiores​​​​​​​-- Teto falso com iluminação com focos LED ​Cozinha:​​​​​​​-- Armários interiores revestidos a melamina e acabamento exterior lacado Perfectsense®​​​​​​​-- Eletrodomésticos BOSCH ou similar (placa, exaustor, forno, micro-ondas, frigorífico e máquina de lavar louça)​​​​​​​-- Torneira monocomando da GROHE ou similar​​​​​​​-- Tampo e espaço entre móveis em Silestone ou similar  Sala e Quartos:​​​​​​​-- Pavimento flutuante vinílico com acabamento em carvalho ou similar​​​​​​​​​​​​​​-- Rodapés em MDF lacado branco​​​​​​​-- Portas e roupeiros lacados a branco​​​​​​​-- Paredes estanhadas ​Instalações sanitárias:​​​​​​​​​​​​​​-- Sanitários da Sanindusa ou similar​​​​​​​-- Móvel suspenso com lavatório​​​​​​​-- Torneiras monocomando da GROHE ou similar​​​​​​​-- Base de duche​​​​​​​-- Resguardos de duche em vidro temperado​​​​​​​-- Toalheiro aquecido (elétrico) no WC principal​​​​​​​-- Pavimento e paredes em material cerâmico retificado 120 x 60 cmEntre em contacto para mais informações e agende já a sua visita a este imóvel.

AMI: 8481

Ref. Externa: 4326-Q

Id: 1526791

3 Quartos

Área bruta : 115 m²

Apartamento T3 com varanda a sul e lugar de garagem para 1 carro para venda, localizado na cidade de Espinho, no mais recente empreendimento, onde irá usufruir de toda a tranquilidade que procura.​O empreendimento é constituído por 28 apartamentos de tipologias T1 a T4 duplex distribuídos por 3 blocos. Todas as frações possuem lugar de garagem e varandas para sul.Cada apartamento foi pensado cuidadosamente para proporcionar todo o conforto, sem esquecer a funcionalidade dos espaços. Os acabamentos de alta qualidade estão presentes em cada espaço, onde cada detalhe foi pensado ao pormenor para elevar a qualidade de vida da sua familia.No último piso apresentam-se fantásticos apartamentos duplex com generosos terraços com vista mar nos quais irá desfrutar de momento de prazer e convívio inesquecíveis. Mapa de AcabamentosExteriores:-- Fachadas ventiladas com revestimento em pedra mármore amaciada-- Caixilharias exteriores em alumínio com rutura térmica e vidros duplos-- Portadas exteriores corrediças em alumínio para controlo solar-- Guarda-corpos em vidro-- Pavimento das varandas e terraços em lajetas cerâmicas ​​Hall e Escadas:-- Paredes estanhadasPavimento em material cerâmico retificado-- Painel de parede em MDF folheado a madeira nobre nos halls ​​Garagem -- Pavimento acabamento betão-- Sistema de ventilação natural nas garagens​​​​​​​-- Detetor de incêndio e monóxido de carbono na garagem​​​​​​​-- Portão exterior motorizado ApartamentosGeral:-- Ar condicionado multi-split-- Bomba de calor​​​​​​​-- Porta de segurança​​​​​​​-- Gás canalizado​​​​​​​-- TV e dados por cabo​​​​​​​-- Vídeo porteiro a cores​​​​​​​-- Instalação elétrica para blackouts interiores​​​​​​​-- Teto falso com iluminação com focos LED ​Cozinha:​​​​​​​-- Armários interiores revestidos a melamina e acabamento exterior lacado Perfectsense®​​​​​​​-- Eletrodomésticos BOSCH ou similar (placa, exaustor, forno, micro-ondas, frigorífico e máquina de lavar louça)​​​​​​​-- Torneira monocomando da GROHE ou similar​​​​​​​-- Tampo e espaço entre móveis em Silestone ou similar  Sala e Quartos:​​​​​​​-- Pavimento flutuante vinílico com acabamento em carvalho ou similar​​​​​​​​​​​​​​-- Rodapés em MDF lacado branco​​​​​​​-- Portas e roupeiros lacados a branco​​​​​​​-- Paredes estanhadas ​Instalações sanitárias:​​​​​​​​​​​​​​-- Sanitários da Sanindusa ou similar​​​​​​​-- Móvel suspenso com lavatório​​​​​​​-- Torneiras monocomando da GROHE ou similar​​​​​​​-- Base de duche​​​​​​​-- Resguardos de duche em vidro temperado​​​​​​​-- Toalheiro aquecido (elétrico) no WC principal​​​​​​​-- Pavimento e paredes em material cerâmico retificado 120 x 60 cmEntre em contacto para mais informações e agende já a sua visita a este imóvel.

AMI: 8481

Ref. Externa: 4326-J

Id: 1526789

3 Quartos

Área bruta : 122 m²

Apartamento T3 com varanda a sul e lugar de garagem para 1 carro e arrumo para venda, localizado na cidade de Espinho, no mais recente empreendimento, onde irá usufruir de toda a tranquilidade que procura.​O empreendimento é constituído por 28 apartamentos de tipologias T1 a T4 duplex distribuídos por 3 blocos. Todas as frações possuem lugar de garagem e varandas para sul.Cada apartamento foi pensado cuidadosamente para proporcionar todo o conforto, sem esquecer a funcionalidade dos espaços. Os acabamentos de alta qualidade estão presentes em cada espaço, onde cada detalhe foi pensado ao pormenor para elevar a qualidade de vida da sua familia.No último piso apresentam-se fantásticos apartamentos duplex com generosos terraços com vista mar nos quais irá desfrutar de momento de prazer e convívio inesquecíveis. Mapa de AcabamentosExteriores:-- Fachadas ventiladas com revestimento em pedra mármore amaciada-- Caixilharias exteriores em alumínio com rutura térmica e vidros duplos-- Portadas exteriores corrediças em alumínio para controlo solar-- Guarda-corpos em vidro-- Pavimento das varandas e terraços em lajetas cerâmicas ​​Hall e Escadas:-- Paredes estanhadasPavimento em material cerâmico retificado​​​​​​​-- Painel de parede em MDF folheado a madeira nobre nos halls ​​Garagem ​​​​​​​-- Pavimento acabamento betão​​​​​​​-- Sistema de ventilação natural nas garagens​​​​​​​-- Detetor de incêndio e monóxido de carbono na garagem​​​​​​​-- Portão exterior motorizado ApartamentosGeral:-- Ar condicionado multi-split-- Bomba de calor​​​​​​​-- Porta de segurança​​​​​​​-- Gás canalizado​​​​​​​-- TV e dados por cabo​​​​​​​-- Vídeo porteiro a cores​​​​​​​-- Instalação elétrica para blackouts interiores​​​​​​​-- Teto falso com iluminação com focos LED ​Cozinha:​​​​​​​-- Armários interiores revestidos a melamina e acabamento exterior lacado Perfectsense®​​​​​​​-- Eletrodomésticos BOSCH ou similar (placa, exaustor, forno, micro-ondas, frigorífico e máquina de lavar louça)​​​​​​​-- Torneira monocomando da GROHE ou similar​​​​​​​-- Tampo e espaço entre móveis em Silestone ou similar  Sala e Quartos:​​​​​​​-- Pavimento flutuante vinílico com acabamento em carvalho ou similar​​​​​​​​​​​​​​-- Rodapés em MDF lacado branco​​​​​​​-- Portas e roupeiros lacados a branco​​​​​​​-- Paredes estanhadas ​Instalações sanitárias:​​​​​​​​​​​​​​-- Sanitários da Sanindusa ou similar​​​​​​​-- Móvel suspenso com lavatório​​​​​​​-- Torneiras monocomando da GROHE ou similar​​​​​​​-- Base de duche​​​​​​​-- Resguardos de duche em vidro temperado​​​​​​​-- Toalheiro aquecido (elétrico) no WC principal​​​​​​​-- Pavimento e paredes em material cerâmico retificado 120 x 60 cmEntre em contacto para mais informações e agende já a sua visita a este imóvel.

AMI: 8481

Ref. Externa: 4326-C

Id: 1526787

2 Quartos

Área bruta : 212 m²

Apartamento T2 duplex, último andar com terraços de 28.83m2 e lugar de garagem para 2 carros para venda, localizado na cidade de Espinho, no mais recente empreendimento, onde irá usufruir de toda a tranquilidade que procura.​O empreendimento é constituído por 28 apartamentos de tipologias T1 a T4 duplex distribuídos por 3 blocos. Todas as frações possuem lugar de garagem e varandas para sul.Cada apartamento foi pensado cuidadosamente para proporcionar todo o conforto, sem esquecer a funcionalidade dos espaços. Os acabamentos de alta qualidade estão presentes em cada espaço, onde cada detalhe foi pensado ao pormenor para elevar a qualidade de vida da sua familia.No último piso apresentam-se fantásticos apartamentos duplex com generosos terraços com vista mar nos quais irá desfrutar de momento de prazer e convívio inesquecíveis. Mapa de AcabamentosExteriores:-- Fachadas ventiladas com revestimento em pedra mármore amaciada-- Caixilharias exteriores em alumínio com rutura térmica e vidros duplos-- Portadas exteriores corrediças em alumínio para controlo solar-- Guarda-corpos em vidro-- Pavimento das varandas e terraços em lajetas cerâmicas ​​Hall e Escadas:-- Paredes estanhadasPavimento em material cerâmico retificado-- Painel de parede em MDF folheado a madeira nobre nos halls ​​Garagem ​​​​​​​-- Pavimento acabamento betão​​​​​​​-- Sistema de ventilação natural nas garagens​​​​​​​-- Detetor de incêndio e monóxido de carbono na garagem​​​​​​​-- Portão exterior motorizado ApartamentosGeral:-- Ar condicionado multi-split-- Bomba de calor​​​​​​​-- Porta de segurança​​​​​​​-- Gás canalizado​​​​​​​-- TV e dados por cabo​​​​​​​-- Vídeo porteiro a cores​​​​​​​-- Instalação elétrica para blackouts interiores​​​​​​​-- Teto falso com iluminação com focos LED ​Cozinha:​​​​​​​-- Armários interiores revestidos a melamina e acabamento exterior lacado Perfectsense®​​​​​​​-- Eletrodomésticos BOSCH ou similar (placa, exaustor, forno, micro-ondas, frigorífico e máquina de lavar louça)​​​​​​​-- Torneira monocomando da GROHE ou similar​​​​​​​-- Tampo e espaço entre móveis em Silestone ou similar  Sala e Quartos:​​​​​​​-- Pavimento flutuante vinílico com acabamento em carvalho ou similar​​​​​​​​​​​​​​-- Rodapés em MDF lacado branco​​​​​​​-- Portas e roupeiros lacados a branco​​​​​​​-- Paredes estanhadas ​Instalações sanitárias:​​​​​​​​​​​​​​-- Sanitários da Sanindusa ou similar​​​​​​​-- Móvel suspenso com lavatório​​​​​​​-- Torneiras monocomando da GROHE ou similar​​​​​​​-- Base de duche​​​​​​​-- Resguardos de duche em vidro temperado​​​​​​​-- Toalheiro aquecido (elétrico) no WC principal​​​​​​​-- Pavimento e paredes em material cerâmico retificado 120 x 60 cmEntre em contacto para mais informações e agende já a sua visita a este imóvel.

AMI: 8481

Ref. Externa: 4326-W

Id: 1526786

4 Quartos

Área bruta : 299 m²

Apartamento T4 duplex, último andar com terraços de 39.20m2 e lugar de garagem para 2 carros para venda, localizado na cidade de Espinho, no mais recente empreendimento, onde irá usufruir de toda a tranquilidade que procura.​O empreendimento é constituído por 28 apartamentos de tipologias T1 a T4 duplex distribuídos por 3 blocos. Todas as frações possuem lugar de garagem e varandas para sul.Cada apartamento foi pensado cuidadosamente para proporcionar todo o conforto, sem esquecer a funcionalidade dos espaços. Os acabamentos de alta qualidade estão presentes em cada espaço, onde cada detalhe foi pensado ao pormenor para elevar a qualidade de vida da sua familia.No último piso apresentam-se fantásticos apartamentos duplex com generosos terraços com vista mar nos quais irá desfrutar de momento de prazer e convívio inesquecíveis. Mapa de AcabamentosExteriores:-- Fachadas ventiladas com revestimento em pedra mármore amaciada-- Caixilharias exteriores em alumínio com rutura térmica e vidros duplos-- Portadas exteriores corrediças em alumínio para controlo solar-- Guarda-corpos em vidro-- Pavimento das varandas e terraços em lajetas cerâmicas ​​Hall e Escadas:-- Paredes estanhadasPavimento em material cerâmico retificado​​​​​​​-- Painel de parede em MDF folheado a madeira nobre nos halls ​​Garagem ​​​​​​​-- Pavimento acabamento betão​​​​​​​-- Sistema de ventilação natural nas garagens​​​​​​​-- Detetor de incêndio e monóxido de carbono na garagem​​​​​​​-- Portão exterior motorizado ApartamentosGeral:-- Ar condicionado multi-split-- Bomba de calor​​​​​​​-- Porta de segurança​​​​​​​-- Gás canalizado​​​​​​​-- TV e dados por cabo​​​​​​​-- Vídeo porteiro a cores​​​​​​​-- Instalação elétrica para blackouts interiores​​​​​​​-- Teto falso com iluminação com focos LED ​Cozinha:​​​​​​​-- Armários interiores revestidos a melamina e acabamento exterior lacado Perfectsense®​​​​​​​-- Eletrodomésticos BOSCH ou similar (placa, exaustor, forno, micro-ondas, frigorífico e máquina de lavar louça)​​​​​​​-- Torneira monocomando da GROHE ou similar​​​​​​​-- Tampo e espaço entre móveis em Silestone ou similar  Sala e Quartos:​​​​​​​-- Pavimento flutuante vinílico com acabamento em carvalho ou similar​​​​​​​​​​​​​​-- Rodapés em MDF lacado branco​​​​​​​-- Portas e roupeiros lacados a branco​​​​​​​-- Paredes estanhadas ​Instalações sanitárias:​​​​​​​​​​​​​​-- Sanitários da Sanindusa ou similar​​​​​​​-- Móvel suspenso com lavatório​​​​​​​-- Torneiras monocomando da GROHE ou similar​​​​​​​-- Base de duche​​​​​​​-- Resguardos de duche em vidro temperado​​​​​​​-- Toalheiro aquecido (elétrico) no WC principal​​​​​​​-- Pavimento e paredes em material cerâmico retificado 120 x 60 cmEntre em contacto para mais informações e agende já a sua visita a este imóvel.

AMI: 8481

Ref. Externa: 4326-V

Id: 1526785

3 Quartos

Área bruta : 118 m²

Apartamento T3 com varanda a sul e lugar de garagem para 1 carro para venda, localizado na cidade de Espinho, no mais recente empreendimento, onde irá usufruir de toda a tranquilidade que procura.​O empreendimento é constituído por 28 apartamentos de tipologias T1 a T4 duplex distribuídos por 3 blocos. Todas as frações possuem lugar de garagem e varandas para sul.Cada apartamento foi pensado cuidadosamente para proporcionar todo o conforto, sem esquecer a funcionalidade dos espaços. Os acabamentos de alta qualidade estão presentes em cada espaço, onde cada detalhe foi pensado ao pormenor para elevar a qualidade de vida da sua familia.No último piso apresentam-se fantásticos apartamentos duplex com generosos terraços com vista mar nos quais irá desfrutar de momento de prazer e convívio inesquecíveis. Mapa de AcabamentosExteriores:-- Fachadas ventiladas com revestimento em pedra mármore amaciada-- Caixilharias exteriores em alumínio com rutura térmica e vidros duplos-- Portadas exteriores corrediças em alumínio para controlo solar-- Guarda-corpos em vidro-- Pavimento das varandas e terraços em lajetas cerâmicas ​​Hall e Escadas:-- Paredes estanhadasPavimento em material cerâmico retificado​​​​​​​-- Painel de parede em MDF folheado a madeira nobre nos halls ​​Garagem ​​​​​​​-- Pavimento acabamento betão​​​​​​​-- Sistema de ventilação natural nas garagens​​​​​​​-- Detetor de incêndio e monóxido de carbono na garagem​​​​​​​-- Portão exterior motorizado ApartamentosGeral:-- Ar condicionado multi-split-- Bomba de calor​​​​​​​-- Porta de segurança​​​​​​​-- Gás canalizado​​​​​​​-- TV e dados por cabo​​​​​​​-- Vídeo porteiro a cores​​​​​​​-- Instalação elétrica para blackouts interiores​​​​​​​-- Teto falso com iluminação com focos LED ​Cozinha:​​​​​​​-- Armários interiores revestidos a melamina e acabamento exterior lacado Perfectsense®​​​​​​​-- Eletrodomésticos BOSCH ou similar (placa, exaustor, forno, micro-ondas, frigorífico e máquina de lavar louça)​​​​​​​-- Torneira monocomando da GROHE ou similar​​​​​​​-- Tampo e espaço entre móveis em Silestone ou similar  Sala e Quartos:​​​​​​​-- Pavimento flutuante vinílico com acabamento em carvalho ou similar​​​​​​​​​​​​​​-- Rodapés em MDF lacado branco​​​​​​​-- Portas e roupeiros lacados a branco​​​​​​​-- Paredes estanhadas ​Instalações sanitárias:​​​​​​​​​​​​​​-- Sanitários da Sanindusa ou similar​​​​​​​-- Móvel suspenso com lavatório​​​​​​​-- Torneiras monocomando da GROHE ou similar​​​​​​​-- Base de duche​​​​​​​-- Resguardos de duche em vidro temperado​​​​​​​-- Toalheiro aquecido (elétrico) no WC principal​​​​​​​-- Pavimento e paredes em material cerâmico retificado 120 x 60 cmEntre em contacto para mais informações e agende já a sua visita a este imóvel.

AMI: 8481

Ref. Externa: 4326-P

Id: 1526784

3 Quartos

Área bruta : 178 m²

Apartamento T3 com varanda a sul, 148m2 de área bruta e lugar de garagem para 2 carros para venda, localizado na cidade de Espinho, no mais recente empreendimento, onde irá usufruir de toda a tranquilidade que procura.​O empreendimento é constituído por 28 apartamentos de tipologias T1 a T4 duplex distribuídos por 3 blocos. Todas as frações possuem lugar de garagem e varandas para sul.Cada apartamento foi pensado cuidadosamente para proporcionar todo o conforto, sem esquecer a funcionalidade dos espaços. Os acabamentos de alta qualidade estão presentes em cada espaço, onde cada detalhe foi pensado ao pormenor para elevar a qualidade de vida da sua familia.No último piso apresentam-se fantásticos apartamentos duplex com generosos terraços com vista mar nos quais irá desfrutar de momento de prazer e convívio inesquecíveis. Mapa de AcabamentosExteriores:-- Fachadas ventiladas com revestimento em pedra mármore amaciada-- Caixilharias exteriores em alumínio com rutura térmica e vidros duplos-- Portadas exteriores corrediças em alumínio para controlo solar-- Guarda-corpos em vidro-- Pavimento das varandas e terraços em lajetas cerâmicas ​​Hall e Escadas:​​​​​​​-- Paredes estanhadasPavimento em material cerâmico retificado​​​​​​​-- Painel de parede em MDF folheado a madeira nobre nos halls ​​Garagem ​​​​​​​-- Pavimento acabamento betão​​​​​​​-- Sistema de ventilação natural nas garagens​​​​​​​-- Detetor de incêndio e monóxido de carbono na garagem​​​​​​​-- Portão exterior motorizado ApartamentosGeral:-- Ar condicionado multi-split-- Bomba de calor​​​​​​​-- Porta de segurança​​​​​​​-- Gás canalizado​​​​​​​-- TV e dados por cabo​​​​​​​-- Vídeo porteiro a cores​​​​​​​-- Instalação elétrica para blackouts interiores​​​​​​​-- Teto falso com iluminação com focos LED ​Cozinha:​​​​​​​-- Armários interiores revestidos a melamina e acabamento exterior lacado Perfectsense®​​​​​​​-- Eletrodomésticos BOSCH ou similar (placa, exaustor, forno, micro-ondas, frigorífico e máquina de lavar louça)​​​​​​​-- Torneira monocomando da GROHE ou similar​​​​​​​-- Tampo e espaço entre móveis em Silestone ou similar  Sala e Quartos:​​​​​​​-- Pavimento flutuante vinílico com acabamento em carvalho ou similar​​​​​​​​​​​​​​-- Rodapés em MDF lacado branco​​​​​​​-- Portas e roupeiros lacados a branco​​​​​​​-- Paredes estanhadas ​Instalações sanitárias:​​​​​​​​​​​​​​-- Sanitários da Sanindusa ou similar​​​​​​​-- Móvel suspenso com lavatório​​​​​​​-- Torneiras monocomando da GROHE ou similar​​​​​​​-- Base de duche​​​​​​​-- Resguardos de duche em vidro temperado​​​​​​​-- Toalheiro aquecido (elétrico) no WC principal​​​​​​​-- Pavimento e paredes em material cerâmico retificado 120 x 60 cmEntre em contacto para mais informações e agende já a sua visita a este imóvel.

AMI: 8481

Ref. Externa: 4326-O

Id: 1526783

3 Quartos

Área bruta : 119 m²

Apartamento T3 com varanda a sul e lugar de garagem para 1 carro para venda, localizado na cidade de Espinho, no mais recente empreendimento, onde irá usufruir de toda a tranquilidade que procura.​O empreendimento é constituído por 28 apartamentos de tipologias T1 a T4 duplex distribuídos por 3 blocos. Todas as frações possuem lugar de garagem e varandas para sul.Cada apartamento foi pensado cuidadosamente para proporcionar todo o conforto, sem esquecer a funcionalidade dos espaços. Os acabamentos de alta qualidade estão presentes em cada espaço, onde cada detalhe foi pensado ao pormenor para elevar a qualidade de vida da sua familia.No último piso apresentam-se fantásticos apartamentos duplex com generosos terraços com vista mar nos quais irá desfrutar de momento de prazer e convívio inesquecíveis. Mapa de AcabamentosExteriores:-- Fachadas ventiladas com revestimento em pedra mármore amaciada-- Caixilharias exteriores em alumínio com rutura térmica e vidros duplos-- Portadas exteriores corrediças em alumínio para controlo solar-- Guarda-corpos em vidro-- Pavimento das varandas e terraços em lajetas cerâmicas ​​Hall e Escadas:​​​​​​​-- Paredes estanhadasPavimento em material cerâmico retificado​​​​​​​-- Painel de parede em MDF folheado a madeira nobre nos halls ​​Garagem ​​​​​​​-- Pavimento acabamento betão​​​​​​​-- Sistema de ventilação natural nas garagens​​​​​​​-- Detetor de incêndio e monóxido de carbono na garagem​​​​​​​-- Portão exterior motorizado ApartamentosGeral:-- Ar condicionado multi-split-- Bomba de calor​​​​​​​-- Porta de segurança​​​​​​​-- Gás canalizado​​​​​​​-- TV e dados por cabo​​​​​​​-- Vídeo porteiro a cores​​​​​​​-- Instalação elétrica para blackouts interiores​​​​​​​-- Teto falso com iluminação com focos LED ​Cozinha:​​​​​​​-- Armários interiores revestidos a melamina e acabamento exterior lacado Perfectsense®​​​​​​​-- Eletrodomésticos BOSCH ou similar (placa, exaustor, forno, micro-ondas, frigorífico e máquina de lavar louça)​​​​​​​-- Torneira monocomando da GROHE ou similar​​​​​​​-- Tampo e espaço entre móveis em Silestone ou similar  Sala e Quartos:​​​​​​​-- Pavimento flutuante vinílico com acabamento em carvalho ou similar​​​​​​​​​​​​​​-- Rodapés em MDF lacado branco​​​​​​​-- Portas e roupeiros lacados a branco​​​​​​​-- Paredes estanhadas ​Instalações sanitárias:​​​​​​​​​​​​​​-- Sanitários da Sanindusa ou similar​​​​​​​-- Móvel suspenso com lavatório​​​​​​​-- Torneiras monocomando da GROHE ou similar​​​​​​​-- Base de duche​​​​​​​-- Resguardos de duche em vidro temperado​​​​​​​-- Toalheiro aquecido (elétrico) no WC principal​​​​​​​-- Pavimento e paredes em material cerâmico retificado 120 x 60 cmEntre em contacto para mais informações e agende já a sua visita a este imóvel.

AMI: 8481

Ref. Externa: 4326-I

Id: 1526782

Clicky