Lista
Comprar
Arrendar
3 Quartos
4 WCs
Área bruta : 300 m²
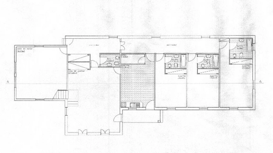
MORADIA INDIVIDUAL T3 - ARCOZELO - VILA VERDE Apresentamos esta moradia individual T3 de arquitetura moderna, inserida na freguesia de Arcozelo, Vila Verde, Atualmente em projeto, ideal para quem procura conforto, privacidade e a possibilidade de personalizar a sua futura casa. Distribuída por dois pisos (cave e rés-do-chão), esta moradia foi pensada para proporcionar funcionalidade e bem-estar no dia a dia. No rés-do-chão, encontra-se uma ampla e luminosa zona social, com sala de estar e sala de jantar generosas, cozinha moderna e funcional, totalmente equipada com placa, forno, exaustor e bomba de calor, tudo elétrico. A ligação ao exterior é feita através de varandas e acesso direto ao jardim privativo, onde se destaca a piscina incluída no preço — perfeita para momentos de lazer em família. A zona privada é composta por 3 suítes, todas com WC privativo, garantindo conforto e privacidade a todos os membros da família. A cave dispõe de garagem fechada para 2 viaturas, área técnica e espaço exterior adicional para estacionamento de mais uma viatura. ? Características principais: Moradia individual, com 3 frentes Tipologia T3 – 3 suítes Piscina incluída no preço Jardim privativo Garagem fechada para 2 carros + 1 lugar exterior Ar condicionado por ventiloconvectores Painéis solares Vidros duplos Pavimentos em vinílico ou flutuante Possibilidade de escolha de materiais e acabamentos por parte do comprador Imagens 3D meramente ilustrativas Uma excelente oportunidade para adquirir uma moradia nova, moderna e personalizável, numa zona tranquila e com bons acessos. Conheça este projeto! Tlm. 918 022 391 - Paula Barbosa Url. www.florestaimobiliaria.pt Ref. 013-4302 Comprar ou vender a casa é provavelmente a maior e mais importante investimento que algum dia irá fazer. É por isso que tantos clientes confiam em nós. Somos uma agência imobiliária de Braga, que se tem vindo a destacar no mercado imobiliário em Portugal graças ao seu profissionalismo, dedicação e inovação. Conhecemos o mercado imobiliário em Braga como poucos e queremos ajudar em tudo o que necessitar durante o processo. Trabalhamos com rigor, eficiência e transparência! Com um histórico comprovado e uma equipa eficaz, estamos comprometidos em criar experiências extraordinárias em cada etapa do caminho. - Estamos aqui para ajudar com conhecimento especializado em todos os momentos-chave da compra e venda da sua casa. - Estamos ao seu lado para orientar e ajudar a tomar decisões informadas. Temos várias opções de casas à venda no distrito de Braga. Desde apartamentos para comprar, moradias, terrenos, lojas, escritórios, entre outras soluções. Pode entrar em contacto por: \ Telefone: 253 254 081 (Chamada para a rede fixa nacional) \ Whatsapp: 918 022 389 \ Email: [email protected] Somos Intermediários de Crédito Bancário autorizados pelo Banco de Portugal, e podemos auxilia-lo(a) na gestão de todo o seu processo de financiamento. Desde 2007 a tratar dos seus projetos imobiliários com toda a transparência, rigor e eficiência. Quer comprar, arrendar ou vender casa no distrito de Braga através de uma agência imobiliária? Deixe connosco! Entre em contacto com a nossa agência imobiliária de Braga. floresta Imobiliária o caminho seguro para a sua casa Visite-nos na Rua do Taxa nº 5 em São Vitor Licença AMI 7630
AMI: 7630
Ref. Externa: 013-4302
Id: 1582347
Inicie sessão para guardar este imóvel e aceder à sua lista de favoritos em qualquer dispositivo.
3 Quartos
4 WCs
Área bruta : 300 m²
MORADIA INDIVIDUAL T3 - ARCOZELO - VILA VERDE Apresentamos esta moradia individual T3 de arquitetura moderna, inserida na freguesia de Arcozelo, Vila Verde, Atualmente em projeto, ideal para quem procura conforto, privacidade e a possibilidade de personalizar a sua futura casa. Distribuída por dois pisos (cave e rés-do-chão), esta moradia foi pensada para proporcionar funcionalidade e bem-estar no dia a dia. No rés-do-chão, encontra-se uma ampla e luminosa zona social, com sala de estar e sala de jantar generosas, cozinha moderna e funcional, totalmente equipada com placa, forno, exaustor e bomba de calor, tudo elétrico. A ligação ao exterior é feita através de varandas e acesso direto ao jardim privativo, onde se destaca a piscina incluída no preço — perfeita para momentos de lazer em família. A zona privada é composta por 3 suítes, todas com WC privativo, garantindo conforto e privacidade a todos os membros da família. A cave dispõe de garagem fechada para 2 viaturas, área técnica e espaço exterior adicional para estacionamento de mais uma viatura. ? Características principais: Moradia individual, com 3 frentes Tipologia T3 – 3 suítes Piscina incluída no preço Jardim privativo Garagem fechada para 2 carros + 1 lugar exterior Ar condicionado por ventiloconvectores Painéis solares Vidros duplos Pavimentos em vinílico ou flutuante Possibilidade de escolha de materiais e acabamentos por parte do comprador Imagens 3D meramente ilustrativas Uma excelente oportunidade para adquirir uma moradia nova, moderna e personalizável, numa zona tranquila e com bons acessos. Conheça este projeto! Tlm. 918 022 391 - Paula Barbosa Url. www.florestaimobiliaria.pt Ref. 013-4302 Comprar ou vender a casa é provavelmente a maior e mais importante investimento que algum dia irá fazer. É por isso que tantos clientes confiam em nós. Somos uma agência imobiliária de Braga, que se tem vindo a destacar no mercado imobiliário em Portugal graças ao seu profissionalismo, dedicação e inovação. Conhecemos o mercado imobiliário em Braga como poucos e queremos ajudar em tudo o que necessitar durante o processo. Trabalhamos com rigor, eficiência e transparência! Com um histórico comprovado e uma equipa eficaz, estamos comprometidos em criar experiências extraordinárias em cada etapa do caminho. - Estamos aqui para ajudar com conhecimento especializado em todos os momentos-chave da compra e venda da sua casa. - Estamos ao seu lado para orientar e ajudar a tomar decisões informadas. Temos várias opções de casas à venda no distrito de Braga. Desde apartamentos para comprar, moradias, terrenos, lojas, escritórios, entre outras soluções. Pode entrar em contacto por: \ Telefone: 253 254 081 (Chamada para a rede fixa nacional) \ Whatsapp: 918 022 389 \ Email: [email protected] Somos Intermediários de Crédito Bancário autorizados pelo Banco de Portugal, e podemos auxilia-lo(a) na gestão de todo o seu processo de financiamento. Desde 2007 a tratar dos seus projetos imobiliários com toda a transparência, rigor e eficiência. Quer comprar, arrendar ou vender casa no distrito de Braga através de uma agência imobiliária? Deixe connosco! Entre em contacto com a nossa agência imobiliária de Braga. floresta Imobiliária o caminho seguro para a sua casa Visite-nos na Rua do Taxa nº 5 em São Vitor Licença AMI 7630
AMI: 7630
Ref. Externa: 013-4302_A
Id: 1582316
Inicie sessão para guardar este imóvel e aceder à sua lista de favoritos em qualquer dispositivo.
4 Quartos
5 WCs
Área bruta : 410 m²
MAGNIFICA MORADIA T4+1 COM PISCINA E PRIVACIDADE TOTAL – A 15 MIN DE BRAGA E PONTE DE LIMA Localizada no coração do Minho, esta moradia magnificamente remodelada oferece tranquilidade, privacidade total e conforto moderno numa das regiões mais procuradas do Norte de Portugal. Rodeada pela natureza, mas próxima de duas das cidades históricas mais encantadoras do país, esta propriedade é o refúgio ideal para quem procura espaço, beleza e um estilo de vida descomplicado. Totalmente renovada em 2021 — incluindo estrutura, canalização e eletricidade — a moradia combina a arquitetura portuguesa intemporal com interiores contemporâneos e elegantes. Cada divisão foi concebida com um toque internacional, criando uma casa acolhedora, sofisticada e extremamente confortável. DESTAQUES DA MORADIA: ✅ * 310 m² de área habitacional Ambientes luminosos e cuidadosamente desenhados, perfeitos para o dia a dia e para receber convidados. ✅ * 4 suites + escritório dedicado Suítes espaçosas com lindas vistas para o jardim, cada uma oferecendo conforto e privacidade. ✅ * Cozinha moderna, totalmente equipada, com despensa Com ilha e bancadas em pedra natural, ideal para cozinhar, reunir e receber ✅ * Sala de estar e jantar em open space, com lareira Espaço banhado de luz, com uma ligação harmoniosa ao exterior ✅ * Garagem e área técnica com 122 m² Espaçoso, funcional e versátil, ideal para arrumação, oficina ou uso multifuncional. ✅ * Internet fibra, aquecimento central, painéis solares, janelas com vidro duplo ESPAÇO EXTERIOR O terreno de 1.913 m² é totalmente vedado e privado, com jardins maduros e vistas panorâmicas sobre a paisagem rural. O exterior inclui: ✔️. Piscina de 10 x 5 m ✔️. Jardins paisagísticos com árvores frutíferas e horta ✔️. Terraço e pátio soalheiros para refeições ao ar livre ✔️. Portão automático e videovigilância ✔️. Privacidade total sem isolamento Esta é uma casa projetada para manhãs longas e tranquilas, jantares de verão e uma conexão serena com a natureza. LOCALIZAÇAO Idealmente situada entre duas cidades históricas, a propriedade oferece uma combinação rara de calma rural e acessos práticos: - 15 min de Braga & Ponte de Lima - 40 min das praias de Viana do Castelo - 45 min do Aeroporto do Porto Um equilíbrio perfeito entre estilo de vida, conforto e conveniência. OPÇÃO CHAVE NA MÃO Para compradores que procuram uma mudança tranquila, a moradia pode ser adquirida totalmente mobilada e decorada. O interior foi cuidadosamente criado com uma estética internacional acolhedora, elevando toda a experiência de viver aqui, um achado raro no Norte de Portugal. • Valor da casa: €850.000 • Opção de compra Chave na Mão: €890.000 Não perca a oportunidade de adquirir uma moradia verdadeiramente única no Norte de Portugal! Um lugar para desacelerar, reconectar-se e saborear o ritmo da vida no Minho. Para mais informações ou uma visita privada, entre em contacto. Petra Van de Velde iad REAL ESTATE | AMI 11220 #ref: 697929
AMI: 11220
Ref. Externa: 697929
Id: 1389907
Inicie sessão para guardar este imóvel e aceder à sua lista de favoritos em qualquer dispositivo.
10 Quartos
6 WCs
Área bruta : 710 m²
No coração verdejante de Travassós (Vila Verde) encontra-se esta magnífica quinta com 18.000 m², composta por duas casas em pedra independentes, totalmente integradas na paisagem natural. Um refúgio de tranquilidade, tradição e conforto, perfeito para criar um projeto de Turismo Rural de excelência. O encanto da propriedade: - Área bruta de 450 m² distribuída em duas moradias - 15 divisões no total, incluindo 10 quartos e 6 casas de banho - 3 cozinhas equipadas - Ambientes amplos, luminosos e acolhedores - Aquecimento central, recuperador de calor e lareiras para conforto em todas as estações Distribuição das moradias: Moradia Principal (3 pisos): - Rés-do-chão: 3 quartos, 1 casa de banho, sala e cozinha - 1º andar: 4 quartos, 1 casa de banho, sala e cozinha - Cave: lavandaria e casa de banho Segunda Moradia (2 pisos): - Rés-do-chão: cozinha, sala, suite e 1 casa de banho - 1º andar: 3 quartos e 1 casa de banho Exterior que inspira: - Piscina privativa rodeada por um jardim exuberante - Duas churrasqueiras para momentos de convívio - Espigueiro tradicional e poço de água, preservando a identidade rural - Garagem fechada para dois veículos - Amplo terreno murado com árvores de fruto, proporcionando privacidade total Um refúgio versátil Com capacidade para acolher até 3 famílias em simultâneo, esta quinta é ideal para quem procura: - Criar um projeto de Turismo Rural ou Alojamento Local - Viver com conforto em plena harmonia com a natureza - Dispor de uma casa de férias familiar única e exclusiva Se procura uma propriedade distinta, que combina charme rústico, comodidades modernas e grande potencial turístico, esta quinta em Travassós é a escolha certa. Agende já a sua visita e descubra todo o potencial desta propriedade! Para mais informações, contacte: José Luis Pereira CasaFama Braga - 4MFORLIFE, Investmentos, Unipessoal, lda AMI 24719
AMI: 24719
Ref. Externa: CFB-770-43
Id: 1338868
Inicie sessão para guardar este imóvel e aceder à sua lista de favoritos em qualquer dispositivo.
4 Quartos
4 WCs
Área bruta : 520 m²
Moradia independente de arquitetura moderna, inserida num lote de 830 m2, com 520 m2 de área bruta de construção. Projetada para tirar partido da exposição solar a sul e do declive do terreno, oferece uma luminosidade excecional e vistas deslumbrantes sobre o vale e a serra. Principais características: 4 quartos (2 em suíte) 4 casas de banho Cozinha e sala em open space Escritório e áreas de apoio/arrumação Varandas e terraço Piscina e churrasqueira Jardim envolvente Garagem para 2 carros Conforto e eficiência: Piso radiante com bomba de calor Ar condicionado Isolamento térmico e acústico de qualidade Vídeo porteiro 12 painéis solares Localização: 5 min. do centro de Vila Verde (escolas, comércio, serviços e hospital) 15 min. de Braga 20 km de Ponte de Lima 45 min. do Aeroporto do Porto 1h de Espanha Moradia recente (2022), ideal para quem procura tranquilidade, contacto com a natureza e, ao mesmo tempo, proximidade a todas as comodidades.
AMI: 22660
Ref. Externa: 1340097/25BG
Id: 1338486
Inicie sessão para guardar este imóvel e aceder à sua lista de favoritos em qualquer dispositivo.
4 Quartos
Área bruta : 141 m²
Moradia T4 em Esqueiros.Rés-do-chão remodelado:- Cozinha totalmente equipada- Recuperador de calor- 1 Quarto- Sala- 1 Wc- Divisão para arrumos Piso superior:- Cozinha - Sala- 3 Quartos- 1 WcEspaço exterior:- Terreno com aprox. 470 m2- GaragemVila Verde é considerada atualmente um dos melhores concelhos de Braga, pela sua beleza natural, tranquilidade, proximidade de Braga e sobretudo por ser tão completo e independente. Contacte a sua Agência VIVAS Imobiliária, para saber mais. Somos uma equipa com mais de 20 anos de Know-how no setor, o que nos permite compreender as necessidades das famílias que acompanhamos neste processo importante das suas vidas.Estamos prontos para ajudá-lo a encontrar o seu lar!Dispomos de diversas ferramentas de Marketing e Comunicação, permitindo ir ao encontro de um maior número de potenciais clientes.Outros serviços que lhe podem interessar: Venda, Compra, Arrendamento, Avaliação de Imóveis, Gestão de Património, Gestão Processual, Realização de contratos (Compra e Venda, Arrendamento, entre outros), Aconselhamento e orientação na obtenção de Credito Habitação, Apoio nos serviços de contratação junto dos fornecedores, energia, gás, água e certificação energética, entre outros.Real City – Mediação Imobiliária, Lda. | AMI 8834
AMI: 8834
Ref. Externa: 01-3647
Id: 1299544
Inicie sessão para guardar este imóvel e aceder à sua lista de favoritos em qualquer dispositivo.
Área útil : 310 m²
Se está à procura de tranquilidade, espaço e uma excelente oportunidade de investimento, esta é a Quinta ideal para si! POR QUE ESCOLHER ESTA QUINTA? Localização Privilegiada Situada numa zona calma e residencial, com fácil acesso à EN308, esta quinta combina a serenidade do campo com a proximidade dos serviços essenciais. Ideal para quem procura paz sem abrir mão da conveniência. Amplo Espaço Verde Desfrute de 650m² de terreno com muito potencial para jardins, horta, lazer ou até mesmo expansão. Um verdadeiro refúgio em meio à natureza! Área Construída Generosa A quinta conta com 310m² de área construída, oferecendo versatilidade para adaptar ao seu gosto - seja para moradia própria, casa de férias ou projeto turístico. Qualidade e Potencial A estrutura existente garante base sólida para personalizações, renovações ou modernizações de acordo com o seu estilo de vida. Preço Atraente Uma excelente relação custo-benefício para quem deseja investir com inteligência. Transforme este espaço no lar que sempre sonhou. Ideal para famílias, empreendedores rurais ou quem deseja uma vida mais tranquila em contato com a natureza. ENTRE EM CONTATO HOJE MESMO Garanta a sua visita e venha conhecer de perto esta excelente oportunidade!
AMI: 22624
Ref. Externa: MAS_313
Id: 1293839
Inicie sessão para guardar este imóvel e aceder à sua lista de favoritos em qualquer dispositivo.
5 Quartos
4 WCs
Área bruta : 224 m²
Vende-se Moradia com 224m2 de área coberta e 605m2 de terreno, Marrancos, Vila Verde! Propriedade com dois andares moradia, T2 no rés do chão e T3 no 1º andar totalmente remodelados: T2 composto por cozinha mobilada e equipada; Sala; 2 suites; Garagem para 1 carros e lavandaria com portão automático; T3 com cozinha mobilada e equipada; Sala com recuperador de calos; 3 quartos; 2 casas de banho; Logradouro. Excelente localização em zona tranquila, próxima do acesso à estrada Braga - Ponte de Lima! ***Tratamos do seu crédito habitação, sem custos nem burocracias. A INOVA Imobiliária é intermediário de crédito autorizada pelo Banco de Portugal com o registo 934. Fazemos a gestão de todo o processo de financiamento, sempre com as melhores condições do mercado e sem qualquer custo associado. Venha Viver em Vila Verde! Inserido no seio de fantásticas paisagens verdes e banhado pelo Rio Homem e pelo Rio Cávado, Vila Verde é puro património natural. A localidade é passagem do Caminho de Santiago, palco de eventos emblemáticos como feiras e romarias. É uma terra marcada por monumentos históricos, excelente gastronomia minhota e cheia de vilaverdenses que preservam a todo o custo o artesanato português, como o linho e os Lenços de Namorados. Caracterizada pelos produtos da terra e as tradições locais, aqui vai descobrir o conforto de viver entre o campo e a cidade! A INOVA Imobiliária tem uma vasta carteira de imóveis em Vila Verde! Contacte já um dos nossos agentes e venha viver em Vila Verde! Se pretende vender ou comprar casa, confie-nos essa missão... INOVA IMOBILIÁRIA... MUITO + QUE VENDER CASAS!
AMI: 10088
Ref. Externa: 08564
Id: 1027637
Inicie sessão para guardar este imóvel e aceder à sua lista de favoritos em qualquer dispositivo.
10 Quartos
5 WCs
Área bruta : 900 m²
Venda de Quinta rural na freguesia de Travassos, Vila Verde. Ideal para turismo rural, em muito bom estado, com duas casas individuais, 10 quartos, fogão de sala, garagem 4 carros. Exterior com piscina, espigueiro, poço, mina, tanque de pedra, árvores de fruto, grandes jardins, bosque. Espaços cuidados. Fi-3363 Para visitar contate Munditroca Imobiliária
AMI: 7336
Ref. Externa: 3363
Id: 731443
Inicie sessão para guardar este imóvel e aceder à sua lista de favoritos em qualquer dispositivo.
10 Quartos
6 WCs
Área útil : 450 m²
Excelente quinta para eventos composta por: - 2 Moradias individuais - Sala com recuperador - Sala de estar/ jantar - 3 Cozinhas, 1 com lareira - 10 Quartos - 6 Casas de banho - Aquecimento central - 2 Garagens - 2 Churrasqueiras - Piscina - Poço - Mina - Tanque de pedra - Espigueiro - Jardim com vários tipos de árvores, incluindo de fruto - Área descoberta:18.000m2 - Área útil: 450m2 Ótima localização e bons acessos!
AMI: 13373
Ref. Externa: VVQT/10
Id: 290201
Inicie sessão para guardar este imóvel e aceder à sua lista de favoritos em qualquer dispositivo.
Área bruta : 523 m²
Quinta dos finais do Sec XIX, com brasão, arborizada com carvalhos e oliveiras, nascentes de agua, localizada numa encosta com uma vista fenomenal. Já com um pedido favorável da Câmara Municipal para a execução de um empreendimento turístico conforme foto editada na qual inclui, o restauro da residência principal e anexos, 21 Bangolws de Tipo T2, 25 Bungalows de Tipo T1, Restaurante Bar, Edifícios de Apoio, 2 Piscinas, Lago, 1 Motel de 16 quartos, Mini-golf e 1 Hotel de 60 quartos. Não existe a obrigatoriedade deste estudo...é livre de escolha e dar o fim que desejar. Conheça mais pormenores, contacta-nos.
AMI: 13880
Ref. Externa: GH1630
Id: 277684
Inicie sessão para guardar este imóvel e aceder à sua lista de favoritos em qualquer dispositivo.
Área bruta : 800 m²
Vende-se Propriedade com Moinho e 800m2 de Terreno em Arcozelo, Vila Verde! Excelente exposição solar; Bons acessos! ***Tratamos do seu crédito habitação, sem custos nem burocracias. A INOVA Imobiliária é intermediário de crédito autorizada pelo Banco de Portugal com o registo 934. Fazemos a gestão de todo o processo de financiamento, sempre com as melhores condições do mercado e sem qualquer custo associado. Razões para comprar com a INOVA O melhor acompanhamento Com uma vasta experiência no mercado imobiliário desde 2006, a INOVA é composta por uma equipa de profissionais jovens e dinâmicos, altamente qualificados, sempre disponíveis para ajudar os seus clientes, orientando-os com a máxima confiança na direção certa para as suas necessidades. E como é importante que sinta que está acompanhado, após o primeiro contacto vamos criar uma relação próxima de forma a perceber as suas expectativas e posteriormente a realização dos seus sonhos, porque é essa a nossa prioridade! Menos burocracias A INOVA Imobiliária dispõe de um serviço pós-venda, assegurado pelo nosso departamento processual, que para além de todo o acompanhamento burocrático no processo de compra e venda do seu imóvel, oferece também um serviço gratuito de aconselhamento e consultoria ao nível do financiamento bancário, uma vez que somos uma empresa licenciada pelo Banco de Portugal para prestar serviços de Intermediação de Crédito. Deixe para trás os pesadelos burocráticos porque connosco encontra o apoio fundamental para que a sua experiência imobiliária supere todas as expectativas. Satisfação dos nossos clientes A nossa missão é garantir a satisfação dos nossos clientes, cumprindo o objetivo de vender/comprar a sua casa, ao melhor preço, em tempo útil e sem problemas. Liberte-se de preocupações e ganhe o tempo que merece para se dedicar ao que realmente o faz feliz. Inovação, seriedade, honestidade, rigor, proatividade, profissionalismo e ambição são alguns dos principais valores, que fazem parte do ADN dos nossos profissionais e é com estes princípios que lhe vamos prestar o melhor serviço! Se pretende vender ou comprar casa, confie-nos essa missão... INOVA IMOBILIÁRIA... MUITO + QUE VENDER CASAS!
AMI: 10088
Ref. Externa: 04510
Id: 216848
Inicie sessão para guardar este imóvel e aceder à sua lista de favoritos em qualquer dispositivo.
Estes agentes são especialistas nesta zona:
Inicie sessão para ocultar este imóvel das suas pesquisas e manter a sua lista de resultados organizada.
Guardar favoritos
Este imóvel foi guardados nos seus favoritos com sucesso.
Para poder guardar pesquisa deverá ter a sua sessão iniciada.
Caso não tenha uma conta, deverá criar uma.
A sua pesquisa foi guardada com sucesso!
© Copyright 2023 | CASACERTA. All rights reserved
Este site utiliza cookies. Ao navegar no site estará a consentir a sua utilização.
Para mais informações sobre os cookies pode consultar a
política de privacidade.