Filtros
0 · 15 resultados670.000 €
3 Quartos
3 WCs
Área bruta : 250 m²
Procura viver perto de Braga? Temos a moradia ideal para si! Apresentamos esta magnífica moradia individual térrea T3, de arquitetura moderna e linhas contemporâneas, pensada para proporcionar o máximo conforto, funcionalidade e qualidade de vida. Situada na Vila de Prado, esta propriedade beneficia de uma localização privilegiada, numa zona calma e familiar, às portas da cidade de Braga. Com excelentes acessos e proximidade a todos os serviços essenciais, esta moradia oferece a combinação perfeita entre tranquilidade e conveniência. Encontra-se a poucos minutos de supermercados, escolas, farmácias, transportes públicos, zonas verdes e espaços de lazer, tornando-se ideal para famílias que valorizam conforto e praticidade no dia a dia. Localização estratégica: - A apenas 10 minutos do centro de Braga; - Próxima de comércio, serviços e escolas; - Zona residencial tranquila e segura; - Excelente exposição solar durante todo o dia. Esta fantástica moradia destaca-se pelos seus espaços amplos e luminosos, bem como pelo seu magnífico jardim exterior, perfeito para momentos de lazer e convívio em família. Existe ainda a possibilidade de construção de piscina, acrescentando ainda mais exclusividade e conforto ao imóvel. Esta moradia é composta por: - Hall de entrada acolhedor e luminoso; - Sala ampla de estar e jantar em open space, com excelente luz natural e ligação direta ao jardim; - Cozinha moderna, funcional e equipada com acabamentos de elevada qualidade; - WC de serviço; - Escritório; - Suíte principal com closet privativo e WC completo; - Dois quartos espaçosos com roupeiros embutidos; - WC completo de apoio aos quartos; - Lavandaria independente com acesso direto à garagem e ao interior da habitação; - Garagem fechada para 2 viaturas; - Churrasqueira exterior, perfeita para refeições ao ar livre; - Jardim amplo e privativo com excelente potencial de lazer. Uma oportunidade única para adquirir a casa dos seus sonhos, onde modernidade, conforto e tranquilidade se unem em perfeita harmonia. Entre em contacto com a nossa equipa de especialistas imobiliários e marque já a sua visita! WE BUILD YOUR DREAM.
AMI: 16628
Ref. Externa: HVB11079
Id: 1870535
Inicie sessão para guardar este imóvel e aceder à sua lista de favoritos em qualquer dispositivo.
1 Quartos
1 WCs
Área bruta : 54 m²
Identificação do imóvel: ZMPT588205Este imóvel distingue-se pela sua arquitetura contemporânea, funcionalidade e qualidade de acabamentos, sendo ideal tanto para habitação própria como para investimento.O apartamento é composto por uma zona social confortável, com ligação a uma agradável varanda, perfeita para momentos de lazer.A cozinha apresenta-se totalmente equipada com eletrodomésticos encastrados, forno, placa, exaustor, máquina de lavar loiça, frigorifico, na zona privada, dispõe ainda de um quarto com armários embutidos, garantindo organização e aproveitamento de espaço.Ao nível do conforto e eficiência, o imóvel está equipado com sistema de ventilação mecânica controlada (VMC), bomba de calor AQS, ar condicionado, caixilharia de elevada qualidade tipo Cortizo com vidros duplos térmicos, estores elétricos e pavimento flutuante vinílico, proporcionando isolamento e bem-estar ao longo de todo o ano.A segurança e tecnologia também não foram esquecidas, contando com porta de entrada de segurança e um painel solar.No exterior, o apartamento beneficia ainda de um lugar de garagem e uma box de arrumos individual, oferecendo espaço extra de armazenamento.Localizado em zona central da Vila de Prado, encontra-se rodeado de comércio, serviços, escolas, ginásios e piscinas, bem como a poucos minutos da praia fluvial.Destaca-se ainda pelos seus excelentes acessos à variante, facilitando a ligação a Braga e outras zonas envolventes.Marque já a sua visita.Imóvel em construção com conclusão prevista para final de 2027.Imagens 3D meramente ilustrativas3 razões para comprar com a Zome+ acompanhamentoCom uma preparação e experiência única no mercado imobiliário, os consultores Zome põem toda a sua dedicação em dar-lhe o melhor acompanhamento, orientando-o com a máxima confiança, na direção certa das suas necessidades e ambições.Daqui para a frente, vamos criar uma relação próxima e escutar com atenção as suas expectativas, porque a nossa prioridade é a sua felicidade! Porque é importante que sinta que está acompanhado, e que estamos consigo sempre.+ simplesOs consultores Zome têm uma formação única no mercado, ancorada na partilha de experiência prática entre profissionais e fortalecida pelo conhecimento de neurociência aplicada que lhes permite simplificar e tornar mais eficaz a sua experiência imobiliária.Deixe para trás os pesadelos burocráticos porque na Zome encontra o apoio total de uma equipa experiente e multidisciplinar que lhe dá suporte prático em todos os aspetos fundamentais, para que a sua experiência imobiliária supere as expectativas.+ felizO nosso maior valor é entregar-lhe felicidade!Liberte-se de preocupações e ganhe o tempo de qualidade que necessita para se dedicar ao que lhe faz mais feliz.Agimos diariamente para trazer mais valor à sua vida com o aconselhamento fiável de que precisa para, juntos, conseguirmos atingir os melhores resultados.Com a Zome nunca vai estar perdido ou desacompanhado e encontrará algo que não tem preço: a sua máxima tranquilidade!É assim que se vai sentir ao longo de toda a experiência: Tranquilo, seguro, confortável e... FELIZ!Notas:1. Caso seja um consultor imobiliário, este imóvel está disponível para partilha de negócio. Não hesite em apresentar aos seus clientes compradores e fale connosco para agendar a sua visita.2. Para maior facilidade na identificação deste imóvel, por favor, refira o respetivo ID ZMPT ou o respetivo agente que lhe tenha enviado a sugestão.
AMI: 17432
Ref. Externa: ZMPT588205
Id: 1827872
Inicie sessão para guardar este imóvel e aceder à sua lista de favoritos em qualquer dispositivo.
1 Quartos
1 WCs
Área bruta : 54 m²
Identificação do imóvel: ZMPT588206Este imóvel distingue-se pela sua arquitetura contemporânea, funcionalidade e qualidade de acabamentos, sendo ideal tanto para habitação própria como para investimento.O apartamento é composto por uma zona social confortável, com ligação a uma agradável varanda, perfeita para momentos de lazer.A cozinha apresenta-se totalmente equipada com eletrodomésticos encastrados, forno, placa, exaustor, máquina de lavar loiça, frigorifico, na zona privada, dispõe ainda de um quarto com armários embutidos, garantindo organização e aproveitamento de espaço.Ao nível do conforto e eficiência, o imóvel está equipado com sistema de ventilação mecânica controlada (VMC), bomba de calor AQS, ar condicionado, caixilharia de elevada qualidade tipo Cortizo com vidros duplos térmicos, estores elétricos e pavimento flutuante vinílico, proporcionando isolamento e bem-estar ao longo de todo o ano.A segurança e tecnologia também não foram esquecidas, contando com porta de entrada de segurança e um painel solar.No exterior, o apartamento beneficia ainda de um lugar de garagem e uma box de arrumos individual, oferecendo espaço extra de armazenamento.Localizado em zona central da Vila de Prado, encontra-se rodeado de comércio, serviços, escolas, ginásios e piscinas, bem como a poucos minutos da praia fluvial.Destaca-se ainda pelos seus excelentes acessos à variante, facilitando a ligação a Braga e outras zonas envolventes.Marque já a sua visita.Imóvel em construção com conclusão prevista para final de 2027.Imagens 3D meramente ilustrativas.3 razões para comprar com a Zome+ acompanhamentoCom uma preparação e experiência única no mercado imobiliário, os consultores Zome põem toda a sua dedicação em dar-lhe o melhor acompanhamento, orientando-o com a máxima confiança, na direção certa das suas necessidades e ambições.Daqui para a frente, vamos criar uma relação próxima e escutar com atenção as suas expectativas, porque a nossa prioridade é a sua felicidade! Porque é importante que sinta que está acompanhado, e que estamos consigo sempre.+ simplesOs consultores Zome têm uma formação única no mercado, ancorada na partilha de experiência prática entre profissionais e fortalecida pelo conhecimento de neurociência aplicada que lhes permite simplificar e tornar mais eficaz a sua experiência imobiliária.Deixe para trás os pesadelos burocráticos porque na Zome encontra o apoio total de uma equipa experiente e multidisciplinar que lhe dá suporte prático em todos os aspetos fundamentais, para que a sua experiência imobiliária supere as expectativas.+ felizO nosso maior valor é entregar-lhe felicidade!Liberte-se de preocupações e ganhe o tempo de qualidade que necessita para se dedicar ao que lhe faz mais feliz.Agimos diariamente para trazer mais valor à sua vida com o aconselhamento fiável de que precisa para, juntos, conseguirmos atingir os melhores resultados.Com a Zome nunca vai estar perdido ou desacompanhado e encontrará algo que não tem preço: a sua máxima tranquilidade!É assim que se vai sentir ao longo de toda a experiência: Tranquilo, seguro, confortável e... FELIZ!Notas:1. Caso seja um consultor imobiliário, este imóvel está disponível para partilha de negócio. Não hesite em apresentar aos seus clientes compradores e fale connosco para agendar a sua visita.2. Para maior facilidade na identificação deste imóvel, por favor, refira o respetivo ID ZMPT ou o respetivo agente que lhe tenha enviado a sugestão.
AMI: 17432
Ref. Externa: ZMPT588206
Id: 1827874
Inicie sessão para guardar este imóvel e aceder à sua lista de favoritos em qualquer dispositivo.
670.000 €
3 Quartos
3 WCs
Área bruta : 660 m²
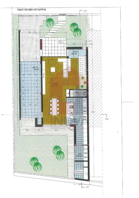
Vende-se Moradia Individual V3 NOVA com 225m² de área coberta, inserida em lote com 660m² de terreno na Vila de Prado, Vila Verde!Moradia Térrea com cozinha mobilada; Sala em open space; Wc de apoio; 3 quartos (1 suite com closet); Ar condicionado por splits; Pré instalação de painéis solares; Bomba de calor; Estores elétricos; Caixilharia com corte térmico e vidro duplo; Ventilação mecânica controlada; Tetos falsos com focos LED; Portas até ao teto; Garagem com portões automáticos; Churrasqueira.Bons acessos; Excelente exposição solar!- Tratamos do seu crédito habitação, sem custos nem burocracias.A INOVA Imobiliária é intermediário de crédito autorizada pelo Banco de Portugal com o registo 934. Fazemos a gestão de todo o processo de financiamento, sempre com as melhores condições do mercado e sem qualquer custo associado.Venha Viver em Vila Verde!Inserido no seio de fantásticas paisagens verdes e banhado pelo Rio Homem e pelo Rio Cávado, Vila Verde é puro património natural. A localidade é passagem do Caminho de Santiago, palco de eventos emblemáticos como feiras e romarias. É uma terra marcada por monumentos históricos, excelente gastronomia minhota e cheia de vilaverdenses que preservam a todo o custo o artesanato português, como o linho e os Lenços de Namorados.Caracterizada pelos produtos da terra e as tradições locais, aqui vai descobrir o conforto de viver entre o campo e a cidade!A INOVA Imobiliária tem uma vasta carteira de imóveis em Vila Verde!Contacte já um dos nossos agentes e venha viver em Vila Verde!Se pretende vender ou comprar casa, confie-nos essa missão...INOVA IMOBILIÁRIA... MUITO + QUE VENDER CASAS!
AMI: 10088
Ref. Externa: IV-08862
Id: 1800417
Inicie sessão para guardar este imóvel e aceder à sua lista de favoritos em qualquer dispositivo.
670.000 €
4 Quartos
3 WCs
Área útil : 200 m²
Vendida em Auto-construção.Seu Novo Lar rodeado da tranquilidade da natureza!- Moradia T3+1 Nova, Térrea- Garagem para dois carros- Localizada a 10minutos de Braga e Vila Verde...- Estores Elétricos, Ar Condicionado, PRÊ de Painéis solares e bomba de calor para Conforto Total...- 3 Wc´s sendo que um deles é suite, tudo isto para Sua Comodidade...- Soalho Flutuante e Portas Lacadas para Toque de Elegância...- Espaço Aberto (Open Space) para um Ambiente Moderno e Aconchegante...Para mais informações e agendamento de visita, entre em contato:com a Predimed Principal e agende uma visita.Predimed Principal: A Sua Parceira de Confiança no Mercado Imobiliário á mais de 20 anos!Na Predimed Principal, dedicamo-nos a encontrar o lar dos seus sonhos e a maximizar o valor do seu investimento. Com uma equipa experiente e altamente qualificada, oferecemos um serviço personalizado, desde a compra e venda de imóveis até arrendamentos e gestão de propriedades.- Porquê Escolher a Predimed Principal?- -Experiência Comprovada: - Anos de conhecimento no mercado imobiliário, ajudando clientes a realizar os seus sonhos.- -Atendimento Personalizado: - Ouvimos as suas necessidades e trabalhamos para encontrar a solução ideal.- -Diversidade de Imóveis: - Uma vasta gama de opções que vai desde apartamentos modernos a moradias familiares.- -Apoio Completo: - Acompanhamento em todas as etapas do processo, garantindo uma experiência tranquila e segura.Na Predimed Principal, a sua satisfação é a nossa prioridade. Entre em contato connosco e deixe-nos ajudá-lo a encontrar o imóvel perfeito! Agende visita, chame este espaço de o seu novo lar...
AMI: 22503
Ref. Externa: PD-059880
Id: 1799654
Inicie sessão para guardar este imóvel e aceder à sua lista de favoritos em qualquer dispositivo.
670.000 €
4 Quartos
3 WCs
Área bruta : 350 m²
Vendida em Auto-construção.Seu Novo Lar rodeado da tranquilidade da natureza! - Moradia T3+1 Nova, Térrea- Garagem para dois carros - Localizada a 10minutos de Braga e Vila Verde... - Estores Elétricos, Ar Condicionado, PRÊ de Painéis solares e bomba de calor para Conforto Total...- 3 Wc´s sendo que um deles é suite ,tudo isto para Sua Comodidade...- Soalho Flutuante e Portas Lacadas para Toque de Elegância..- Espaço Aberto (Open Space) para um Ambiente Moderno e Aconchegante...Para mais informações e agendamento de visita, entre em contato:com a Predimed Principal e agende uma visita.Predimed Principal: A Sua Parceira de Confiança no Mercado Imobiliário á mais de 20 anos! **Na Predimed Principal, dedicamo-nos a encontrar o lar dos seus sonhos e a maximizar o valor do seu investimento. Com uma equipa experiente e altamente qualificada, oferecemos um serviço personalizado, desde a compra e venda de imóveis até arrendamentos e gestão de propriedades.**Porquê Escolher a Predimed Principal? **- **Experiência Comprovada: ** Anos de conhecimento no mercado imobiliário, ajudando clientes a realizar os seus sonhos.- **Atendimento Personalizado: ** Ouvimos as suas necessidades e trabalhamos para encontrar a solução ideal.- **Diversidade de Imóveis: ** Uma vasta gama de opções que vai desde apartamentos modernos a moradias familiares.- **Apoio Completo: ** Acompanhamento em todas as etapas do processo, garantindo uma experiência tranquila e segura.Na Predimed Principal, a sua satisfação é a nossa prioridade. Entre em contato connosco e deixe-nos ajudá-lo a encontrar o imóvel perfeito!Agende visita, chame este espaço de o seu novo lar.. Predimed Imobiliária, Mediação Imobiliária, Lda.Avenida Brasil 43, 12º Andar, 1700-062 LisboaLicença AMI nº 22503Pessoa Coletiva nº 517 239 345Seguro Responsabilidade Civil: Nº de Apólice RC65379424 Fidelidade Características: Ar Condicionado;Bomba de calor;Gás Canalizado;Janelas duplas;Piso Flutuante;Pré-Instalação Painéis Solares;Roupeiros;Vídeo Porteiro;Vidros Duplos;Exaustor
AMI: 13558
Ref. Externa: 059880
Id: 1792257
Inicie sessão para guardar este imóvel e aceder à sua lista de favoritos em qualquer dispositivo.
670.000 €
3 Quartos
3 WCs
Área bruta : 200 m²
Moradia Nova Individual Térrea T3+1 em Vila de Prado Vila Verde Apresentamos esta moradia térrea em Auto construção de arquitetura moderna, localizada em Vila de Prado, ideal para quem procura conforto, eficiência e qualidade de construção. VANTAGENS FISCAIS: Em auto construção vai obter uma poupança de cerca de 26.000 em imposto de IS e em IMT. CARATERISTICAS PRINCIPAIS: -Tipologia: T3+1; -Moradia térrea; -Arquitetura contemporânea; -Excelente exposição solar; -Zona tranquila e de fácil acesso. ACABAMENTOS: Esta moradia destaca-se pelos materiais de qualidade e acabamentos modernos, com possibilidade de personalização em várias fases. ESTRUTURA E EXTERIORES: -Paredes exteriores em bloco térmico com isolamento acústico; -Cobertura com tela asfáltica e isolamento; -Caixilharia em alumínio de corte térmico e vidros duplos; -Estores elétricos em alumínio. INTERIORES: -Tetos falsos em pladur (hidrófugo em zonas húmidas); -Iluminação embutida (focos LED); -Carpintarias em madeira (à escolha do cliente); -Roupeiros embutidos com interior em melamina. COZINHA: -Cozinha Mobilada; -Móveis termolaminados; -Bancada em granito ou Silestone. PAVIMENTOS: -Pavimento flutuante nas áreas principais; -Cerâmicos em cozinha e casas de banho; -Varandas e acessos em cerâmica; -Acesso à garagem em pavê. EQUIPAMENTOS: -Bomba de calor; -VMC (ventilação mecânica controlada); -Pré-instalação de ar condicionado; -Pré-instalação de painéis solares; -Rede de gás canalizado; -Churrasqueira. Nota: As imagens 3D são meramente ilustrativas e os acabamentos poderão ser ajustados conforme fase da obra e preferências do cliente. Não perca esta oportunidade de adquirir uma moradia nova, moderna e eficiente. Venha conhecer e agende a sua visita na Basea Real Estate. AMI 26659. Apresentamos a BASEA Real Estate. Chegamos ao mercado com uma base sólida: transparência, confiança e dedicação. A BASEA Real Estate nasce com o propósito de oferecer um serviço imobiliário de excelência, apoiado por uma equipa com mais de 10 anos de experiência no setor. Com um acompanhamento próximo e personalizado, estamos prontos para o ajudar em todas as etapas da compra, venda ou arrendamento do seu imóvel sempre com profissionalismo e foco nos resultados. Acreditamos que cada casa tem uma história, e o nosso compromisso é ajudar a construir a sua. BASEA Real Estate A base certa para o seu futuro. Siga-nos para conhecer as nossas novidades, oportunidades exclusivas e dicas do mercado imobiliário.
AMI: 26659
Ref. Externa: BSE-0021
Id: 1786393
Inicie sessão para guardar este imóvel e aceder à sua lista de favoritos em qualquer dispositivo.
670.000 €
3 Quartos
3 WCs
Área útil : 225 m²
Vende-se Moradia Individual V3 NOVA com 225m2 de área coberta, inserida em lote com 660m2 de terreno na Vila de Prado, Vila Verde! Moradia Térrea com cozinha mobilada; Sala em open space; Wc de apoio; 3 quartos (1 suite com closet); Ar condicionado por splits; Pré instalação de painéis solares; Bomba de calor; Estores elétricos; Caixilharia com corte térmico e vidro duplo; Ventilação mecânica controlada; Tetos falsos com focos LED; Portas até ao teto; Garagem com portões automáticos; Churrasqueira. Bons acessos; Excelente exposição solar! ***Tratamos do seu crédito habitação, sem custos nem burocracias. A INOVA Imobiliária é intermediário de crédito autorizada pelo Banco de Portugal com o registo 934. Fazemos a gestão de todo o processo de financiamento, sempre com as melhores condições do mercado e sem qualquer custo associado. Venha Viver em Vila Verde! Inserido no seio de fantásticas paisagens verdes e banhado pelo Rio Homem e pelo Rio Cávado, Vila Verde é puro património natural. A localidade é passagem do Caminho de Santiago, palco de eventos emblemáticos como feiras e romarias. É uma terra marcada por monumentos históricos, excelente gastronomia minhota e cheia de vilaverdenses que preservam a todo o custo o artesanato português, como o linho e os Lenços de Namorados. Caracterizada pelos produtos da terra e as tradições locais, aqui vai descobrir o conforto de viver entre o campo e a cidade! A INOVA Imobiliária tem uma vasta carteira de imóveis em Vila Verde! Contacte já um dos nossos agentes e venha viver em Vila Verde! Se pretende vender ou comprar casa, confie-nos essa missão... INOVA IMOBILIÁRIA... MUITO + QUE VENDER CASAS!
AMI: 10088
Ref. Externa: 08862
Id: 1774878
Inicie sessão para guardar este imóvel e aceder à sua lista de favoritos em qualquer dispositivo.
Profissionais que conhecem esta zona a fundo — contacte-os para uma avaliação personalizada.
3 Quartos
2 WCs
Área útil : 132 m²
Apartamento T3 em Vila de Prado - Espaço, conforto e localização privilegiadaApresentamos este excelente apartamento T3, ideal para quem procura amplitude, conforto e tranquilidade, a apenas 10 minutos de Braga.O imóvel destaca-se pelos seus três quartos com armários embutidos, sendo um deles suíte, todos com acesso direto a uma varanda ampla e solarenga - perfeita para momentos de lazer.A sala espaçosa e luminosa oferece um ambiente acolhedor, ideal para convívio familiar.Conta ainda com ar condicionado na sala e na suíte, e pré-instalação nos restantes quartos.A cozinha está totalmente equipada com placa, forno, exaustor e termoacumulador, pronta a ser utilizada.O apartamento dispõe de dois WC completos e instalação de gás canalizado.No exterior, usufrua de uma garagem box com portão automático e ainda um lugar de estacionamento adicional.Características principais:3 quartos (1 suíte com dois armários embutidos)2 casas de banho completasCozinha equipadaSala ampla e luminosaVaranda espaçosaAr condicionado (na sala e suíte)Estores elétricosGás canalizadoGaragem fechada + lugar de estacionamentoVídeo porteiroZona calma e de fácil acessoA 10 minutos de BragaLocalização: Vila de Prado - perto de comércio, serviços e transportes.Perfeito para famílias que valorizam conforto, praticidade e qualidade de vida.
AMI: 22503
Ref. Externa: PD-056091
Id: 1724108
Inicie sessão para guardar este imóvel e aceder à sua lista de favoritos em qualquer dispositivo.
3 Quartos
2 WCs
Área bruta : 133 m²
Identificação do imóvel: ZMPT585463 Apartamento T3 Renovado, Vila de Prado, Vila VerdeConforto Moderno | Renovação Total | Excelente Exposição SolarApresentamos este magnífico Apartamento T3 totalmente renovado, localizado na Vila de Prado, junto ao centro da vila, uma zona tranquila, valorizada e com forte procura residencial.Com uma orientação solar nascente/poente, este imóvel beneficia de excelente luminosidade natural ao longo de todo o dia, proporcionando espaços acolhedores, equilibrados e energeticamente eficientes.A poucos minutos de Braga e com acesso rápido a todos os serviços essenciais, este apartamento combina localização estratégica, modernidade e qualidade de vida.Inserido em edifício com elevador, oferece total conforto e funcionalidade no quotidiano. Áreas- Área habitacional: 132,75 m²- Área dependente: 24,7 m² Renovação Total (Julho 2025)Este apartamento construído em 2012, foi alvo de uma renovação integral, incorporando materiais e soluções de elevada qualidade:- Pavimento vinílico novo em toda a habitação;- Rodapés e pintura integral recentes;- Casas de banho totalmente renovadas, com design moderno e torneiras Bruma;- Roupeiros novos com iluminação LED interior;- Ar condicionado embutido no teto da sala e A/C em toda a casa;- Iluminação LED em todas as divisões;- Sistema de domótica para controlo de iluminação e estores;- Estores elétricos novos;- Acabamentos modernos, funcionais e pensados ao detalhe, num conceito chave-na-mão que alia elegância e eficiência. Principais Características️ Zona Social- Hall de entrada acolhedor;- Sala ampla e confortável, com ar condicionado embutido no teto e excelente luz natural;- Cozinha mobilada e equipada com placa, forno, exaustor, micro-ondas e esquentador a gás natural;- Corredor de acesso à zona privativa com possibilidade de colocar uma porta de correr.️ Zona Privativa- Dois quartos espaçosos, ambos com roupeiros embutidos e varanda comum aos três quartos;- Casa de banho completa com base de chuveiro;- Suíte principal, com dois amplos roupeiros embutidos, casa de banho privativa com base de chuveiro, e acesso à varanda comum.? Atributos e Equipamentos- Vídeo porteiro;- Ar condicionado em toda a casa;- Excelente conforto térmico e acústico;- Domótica inteligente para controlo de iluminação e estores. Garagem- Garagem fechada e espaçosa, com portões automáticos, capacidade para dois carros de pequenas dimensões ou um de maiores dimensões, e espaço adicional para arrumos.Este apartamento distingue-se pela qualidade da renovação, harmonia dos espaços e equipamentos tecnológicos modernos, oferecendo uma experiência habitacional superior.Uma oportunidade única para quem procura um imóvel renovado com bom gosto, pronto a habitar e inserido numa localização tranquila e familiar, a escassos minutos da cidade de Braga.3 razões para comprar com a Zome+ acompanhamentoCom uma preparação e experiência única no mercado imobiliário, os consultores Zome põem toda a sua dedicação em dar-lhe o melhor acompanhamento, orientando-o com a máxima confiança, na direção certa das suas necessidades e ambições.Daqui para a frente, vamos criar uma relação próxima e escutar com atenção as suas expectativas, porque a nossa prioridade é a sua felicidade! Porque é importante que sinta que está acompanhado, e que estamos consigo sempre.+ simplesOs consultores Zome têm uma formação única no mercado, ancorada na partilha de experiência prática entre profissionais e fortalecida pelo conhecimento de neurociência aplicada que lhes permite simplificar e tornar mais eficaz a sua experiência imobiliária.Deixe para trás os pesadelos burocráticos porque na Zome encontra o apoio total de uma equipa experiente e multidisciplinar que lhe dá suporte prático em todos os aspetos fundamentais, para que a sua experiência imobiliária supere as expectativas.+ felizO nosso maior valor é entregar-lhe felicidade!Liberte-se de preocupações e ganhe o tempo de qualidade que necessita para se dedicar ao que lhe faz mais feliz.Agimos diariamente para trazer mais valor à sua vida com o aconselhamento fiável de que precisa para, juntos, conseguirmos atingir os melhores resultados.Com a Zome nunca vai estar perdido ou desacompanhado e encontrará algo que não tem preço: a sua máxima tranquilidade!É assim que se vai sentir ao longo de toda a experiência: Tranquilo, seguro, confortável e... FELIZ!Notas:1. Caso seja um consultor imobiliário, este imóvel está disponível para partilha de negócio. Não hesite em apresentar aos seus clientes compradores e fale connosco para agendar a sua visita.2. Para maior facilidade na identificação deste imóvel, por favor, refira o respetivo ID ZMPT ou o respetivo agente que lhe tenha enviado a sugestão.
AMI: 17432
Ref. Externa: ZMPT585463
Id: 1645745
Inicie sessão para guardar este imóvel e aceder à sua lista de favoritos em qualquer dispositivo.
320.000 €
3 Quartos
4 WCs
Área bruta : 400 m²
Identificação do imóvel: ZMPT584760 Moradia T3 Térrea com Anexo T1 – Vila de PradoExcelente oportunidade em Vila de Prado!- Moradia T3 térrea, ideal para quem procura conforto, funcionalidade e tranquilidade, a poucos minutos da cidade de Braga.- A habitação principal dispõe de ar condicionado, 2 casas de banho, sala acolhedora com salamandra para aquecimento, e uma distribuição prática, toda ao nível do rés do chão – perfeita para famílias ou para quem valoriza acessos fáceis.- No exterior, encontra um anexo totalmente transformado em T1, equipado com ar condicionado e 2 casas de banho, ideal para alojar familiares, receber visitas, arrendamento ou até como espaço de trabalho independente.- A propriedade conta ainda com garagem, portão automático, sistema de alarme e um poço com água para rega, garantindo segurança, comodidade e eficiência no dia a dia.- Inserida numa zona calma e residencial, mas com localização estratégica, encontra-se próxima de supermercados, escolas, praia fluvial, transportes públicos e com fáceis acessos à cidade de Braga.Uma moradia versátil, completa e com enorme potencial, tanto para habitação própria como para investimento.3 razões para comprar com a Zome+ acompanhamentoCom uma preparação e experiência única no mercado imobiliário, os consultores Zome põem toda a sua dedicação em dar-lhe o melhor acompanhamento, orientando-o com a máxima confiança, na direção certa das suas necessidades e ambições.Daqui para a frente, vamos criar uma relação próxima e escutar com atenção as suas expectativas, porque a nossa prioridade é a sua felicidade! Porque é importante que sinta que está acompanhado, e que estamos consigo sempre.+ simplesOs consultores Zome têm uma formação única no mercado, ancorada na partilha de experiência prática entre profissionais e fortalecida pelo conhecimento de neurociência aplicada que lhes permite simplificar e tornar mais eficaz a sua experiência imobiliária.Deixe para trás os pesadelos burocráticos porque na Zome encontra o apoio total de uma equipa experiente e multidisciplinar que lhe dá suporte prático em todos os aspetos fundamentais, para que a sua experiência imobiliária supere as expectativas.+ felizO nosso maior valor é entregar-lhe felicidade!Liberte-se de preocupações e ganhe o tempo de qualidade que necessita para se dedicar ao que lhe faz mais feliz.Agimos diariamente para trazer mais valor à sua vida com o aconselhamento fiável de que precisa para, juntos, conseguirmos atingir os melhores resultados.Com a Zome nunca vai estar perdido ou desacompanhado e encontrará algo que não tem preço: a sua máxima tranquilidade!É assim que se vai sentir ao longo de toda a experiência: Tranquilo, seguro, confortável e... FELIZ!Notas:1. Caso seja um consultor imobiliário, este imóvel está disponível para partilha de negócio. Não hesite em apresentar aos seus clientes compradores e fale connosco para agendar a sua visita.2. Para maior facilidade na identificação deste imóvel, por favor, refira o respetivo ID ZMPT ou o respetivo agente que lhe tenha enviado a sugestão.
AMI: 17432
Ref. Externa: ZMPT584760
Id: 1587702
Inicie sessão para guardar este imóvel e aceder à sua lista de favoritos em qualquer dispositivo.
380.000 €
4 Quartos
4 WCs
Área bruta : 367 m²
Magnífica moradia isolada situada em zona calma, na Freguesia de Lage, Vila Verde, Braga.Este imóvel com acabamentos de luxo, piscina exterior e jardim interior.Esta Moradia é composta por cave, r/chão e 1º piso. Na cave pode encontrar um jardim acolhedor, duas salas, 1 quarto de banho, bar e cozinha regional (com fogão a lenha) e acesso à piscina.O r/ch é composto por 1 cozinha, 1 quarto de banho, sala de estar e jantar,No 1º piso encontra 1 quarto de banho, 4 quartos sendo 1 deles suite.Localizada numa zona tranquila de moradias, perto de todos os comércios e serviços, a três minutos da Estrada Nacional e sete minutos da Autoestrada.Marque a sua visita Características: Características Exteriores - Barbeque; Jardim; Parqueamento; Piscina exterior; Terraço/Deck; Porta blindada; Video Porteiro; Características Interiores - Sotão; Hall de entrada; Lareira; Kitchenet; Electrodomésticos embutidos; Casa de Banho da Suite; Roupeiros; Lavandaria; Deck; Características Gerais - Despensa; Portão eléctrico; Orientação - Nascente; Norte; Sul; Poente; Outros Equipamentos - Serviço de internet; TV Por Cabo; Gás canalizado; Aquecimento central; Sistema de Segurança; Vistas - Vista jardim; Vista campo; Outras características - Garagem; Varanda; Cozinha Equipada; Arrecadação; Suite; Moradia;
AMI: 23524
Ref. Externa: 1202-2503
Id: 1431565
Inicie sessão para guardar este imóvel e aceder à sua lista de favoritos em qualquer dispositivo.
2 Quartos
2 WCs
Área bruta : 125 m²
Prado Riverside Residences Exclusividade no centro da Vila de Prado. Em pleno coração da Vila de Prado, nasce um empreendimento pensado para quem valoriza conforto, privacidade, elegância e qualidade de vida. Entre a orla marítima e o Parque Nacional da Peneda-Gerês, próximo da cidade de Barcelos, da Vila de Ponte de Lima e de Vila Verde, e localizado na periferia de Braga junto ao Estádio Municipal, à Cidade Desportiva do SC Braga, ao Centro Comercial Nova Arcada e ao Aeródromo Municipal o Prado Riverside Residences beneficia de uma excelente acessibilidade, quer pela nova variante, quer pela EN 201, onde está garantido o transporte público. Na margem do rio Cávado, junto a zonas de lazer e encantadores passadiços à beira-rio, este empreendimento representa a perfeita simbiose entre o homem e a natureza, proporcionando um estilo de vida em equilíbrio entre a tranquilidade do ambiente natural e a conveniência do centro da vila, onde se encontram os principais serviços e equipamentos públicos escolas, creches, piscinas municipais, GNR, CTT, centro de saúde, Santa Casa da Misericórdia, Cruz Vermelha, Espaço Cidadão, Junta de Freguesia, Clube Náutico, Grupo Desportivo, entre outros. Este elegante edifício, composto por apenas seis frações, foi pensado à medida de quem procura exclusividade. Integra duas Penthouses T3 Duplex, com rooftop que oferece vistas deslumbrantes sobre o centro da Vila de Prado, a cidade de Braga, o Santuário do Sameiro e o Mosteiro de Tibães, bem como quatro apartamentos T2 com áreas generosas, que podem atingir os 145 m². Cada fração foi cuidadosamente concebida para oferecer comodidade e funcionalidade, destacando-se pelos acabamentos de excelência, pela atenção ao detalhe e pela qualidade dos materiais utilizados na execução da estrutura, impermeabilizações e isolamentos acústicos e térmicos fatores que garantem durabilidade, conforto e baixos custos de manutenção ao longo do tempo. Os apartamentos dispõem de uma ampla sala e cozinha em open space com excelente relação interior/exterior, escritório no hall, WC de serviço, dois quartos (um deles com closet) e uma casa de banho de luxo. Possuem ainda áreas exteriores ajardinadas privativas a nascente e a poente, com churrasqueiras individuais ideais para convívios, momentos de lazer ao ar livre e contacto com a natureza, permitindo também a permanência de animais de estimação. A componente funcional é reforçada por uma garagem com lugares de estacionamento dotados de pré-instalação para wallbox de carregamento elétrico, box de arrumos privada, elevador e rampa acessível a veículos desportivos. Cada apartamento contará ainda com estores automáticos, sistema de ventilação mecânica controlada (VMC) de fluxos cruzados, instalação de ar condicionado com tecnologia inverter, bomba de calor para aquecimento de águas sanitárias, alarme, vídeo porteiro, portões automáticos, aspiração central e estores orientáveis na zona social. Está também prevista a pré-instalação de painéis fotovoltaicos comuns na cobertura, com o objetivo de reduzir os custos energéticos. Com uma arquitetura moderna, uma iluminação exterior concebida para valorizar o design e uma localização privilegiada, o Prado Riverside Residences oferece uma experiência de vida única o equilíbrio perfeito entre design contemporâneo, conforto e proximidade a tudo o que é essencial. Previsão de conclusão: final de 2026. Contacte-me e venha conhecer todos os detalhes deste magnífico projeto.
AMI: 17062
Ref. Externa: DSBCLCME253
Id: 1420004
Inicie sessão para guardar este imóvel e aceder à sua lista de favoritos em qualquer dispositivo.
2 Quartos
2 WCs
Área bruta : 145 m²
Prado Riverside Residences Exclusividade no centro da Vila de Prado. Em pleno coração da Vila de Prado, nasce um empreendimento pensado para quem valoriza conforto, privacidade, elegância e qualidade de vida. Entre a orla marítima e o Parque Nacional da Peneda-Gerês, próximo da cidade de Barcelos, da Vila de Ponte de Lima e de Vila Verde, e localizado na periferia de Braga junto ao Estádio Municipal, à Cidade Desportiva do SC Braga, ao Centro Comercial Nova Arcada e ao Aeródromo Municipal o Prado Riverside Residences beneficia de uma excelente acessibilidade, quer pela nova variante, quer pela EN 201, onde está garantido o transporte público. Na margem do rio Cávado, junto a zonas de lazer e encantadores passadiços à beira-rio, este empreendimento representa a perfeita simbiose entre o homem e a natureza, proporcionando um estilo de vida em equilíbrio entre a tranquilidade do ambiente natural e a conveniência do centro da vila, onde se encontram os principais serviços e equipamentos públicos escolas, creches, piscinas municipais, GNR, CTT, centro de saúde, Santa Casa da Misericórdia, Cruz Vermelha, Espaço Cidadão, Junta de Freguesia, Clube Náutico, Grupo Desportivo, entre outros. Este elegante edifício, composto por apenas seis frações, foi pensado à medida de quem procura exclusividade. Integra duas Penthouses T3 Duplex, com rooftop que oferece vistas deslumbrantes sobre o centro da Vila de Prado, a cidade de Braga, o Santuário do Sameiro e o Mosteiro de Tibães, bem como quatro apartamentos T2 com áreas generosas, que podem atingir os 145 m². Cada fração foi cuidadosamente concebida para oferecer comodidade e funcionalidade, destacando-se pelos acabamentos de excelência, pela atenção ao detalhe e pela qualidade dos materiais utilizados na execução da estrutura, impermeabilizações e isolamentos acústicos e térmicos fatores que garantem durabilidade, conforto e baixos custos de manutenção ao longo do tempo. Os apartamentos dispõem de uma ampla sala e cozinha em open space com excelente relação interior/exterior, escritório no hall, WC de serviço, dois quartos (um deles com closet) e uma casa de banho de luxo. Possuem ainda áreas exteriores ajardinadas privativas a nascente e a poente, com churrasqueiras individuais ideais para convívios, momentos de lazer ao ar livre e contacto com a natureza, permitindo também a permanência de animais de estimação. A componente funcional é reforçada por uma garagem com lugares de estacionamento dotados de pré-instalação para wallbox de carregamento elétrico, box de arrumos privada, elevador e rampa acessível a veículos desportivos. Cada apartamento contará ainda com estores automáticos, sistema de ventilação mecânica controlada (VMC) de fluxos cruzados, instalação de ar condicionado com tecnologia inverter, bomba de calor para aquecimento de águas sanitárias, alarme, vídeo porteiro, portões automáticos, aspiração central e estores orientáveis na zona social. Está também prevista a pré-instalação de painéis fotovoltaicos comuns na cobertura, com o objetivo de reduzir os custos energéticos. Com uma arquitetura moderna, uma iluminação exterior concebida para valorizar o design e uma localização privilegiada, o Prado Riverside Residences oferece uma experiência de vida única o equilíbrio perfeito entre design contemporâneo, conforto e proximidade a tudo o que é essencial. Previsão de conclusão: final de 2026. Contacte-me e venha conhecer todos os detalhes deste magnífico projeto.
AMI: 17062
Ref. Externa: DSBCLCME246
Id: 1420003
Inicie sessão para guardar este imóvel e aceder à sua lista de favoritos em qualquer dispositivo.
375.000 €
3 Quartos
3 WCs
Área bruta : 258 m²
?Moradias em construção com as seguintes caraterísticas : ❗Suite c/ Closet; ❗Quartos com roupeiros embutidos; ❗Cozinha mobilada; ❗Estores elétricos; ❗3 Casas de Banho; ❗Pré instalação recuperador de Calor; ❗Ar-condicionado completo; ❗Pré-instalação de aspiração central; ❗Pré-instalação para aquecimento central ❗ Lavandaria; ❗Bomba de calor de 300l; ❗Porta corta-fogo no acesso à garagem; ❗Garagem para dois carros Ótima localização, perto de escolas, piscina, supermercados ; farmácia e praia fluvial. Fica a 10 minutos de Braga e 15 minutos de Vila Verde a 5 minutos da entrada da Via Rápida Prado - Braga; Personalização dos acabamentos mediante o caderno de encargos. ?(As imagens apresentadas são de um imóvel modelo já concluído e vendido) Data conclusão construção: 18 a 24 meses após assinatura do CPCV Agende já a sua visita! Aviso: Este anúncio foi gerado por rotina informática, pelo que as informações nele contidas não são vinculativas e estão sujeitas a confirmação. ---------- ?Houses under construction with the following characteristics: ❗ Suite w / Closet; ❗ Rooms with built-in wardrobes; ❗ Furnished kitchen; ❗ Electric blinds; ❗ 3 Baths; ❗ Pre-installation of heat recovery; ❗ Full air conditioning; ❗Pre-installation of central vacuum; ❗Pre-installation of central heating ❗ Laundry; ❗ 300 l heat pump; ❗ Fire door in access to the garage; ❗Two car garage With possibility of choice of finishes! Great location, close to schools, swimming pool, supermarkets; pharmacy and river beach. It is 10 minutes from Braga and 15 minutes from Vila Verde, 5 minutes from the entrance to the Via Rapida Prado-Braga; Construction completion date: 18 to 24 months after signing the CPCV Schedule your visit!
AMI: 16317
Ref. Externa: 1179
Id: 225740
Inicie sessão para guardar este imóvel e aceder à sua lista de favoritos em qualquer dispositivo.
© Copyright 2023 | CASACERTA. All rights reserved
Guardar favoritos
Este imóvel foi guardados nos seus favoritos com sucesso.
Para poder guardar pesquisa deverá ter a sua sessão iniciada.
Caso não tenha uma conta, deverá criar uma.
A sua pesquisa foi guardada com sucesso!
Este site utiliza cookies. Ao navegar no site estará a consentir a sua utilização.
Para mais informações sobre os cookies pode consultar a
política de privacidade.