Lista
Comprar
Arrendar
3 Quartos
Área bruta : 211 m²
Moradia de Gaveto T3, Venda, Tagilde, VizelaPiso rés-do-chão:Garagem p/ um carro e arrumos:Hall de entrada;Hall de quartos;Suíte c/ varanda privativa;Dois quartos c/ varanda comum;WC completo.Piso -1:Cozinha mobiliada e equipada com placa, forno, exaustor, micro-ondas e máquina de lavar loiça;Conceito open space;Sala comum c/ acesso a zona exterior;Despensa;Lavandaria;WC de serviço;Jardim.Outras características:Ar condicionado nas divisões principais (quartos, sala);Vidros duplos;Estores elétricos;Iluminação exterior;Painéis solares c/ termoacumulador;Intercomunicador (dois pontos, hall de entrada e cozinha);WC’s c/ loiças suspensas;Portões automáticos (entrada e garagem);Jardim c/ relva natural e rega automática;Poço de água para uso exterior.Marque connosco a sua visita!Você tem o sonho, nós temos a Chave!Atual Imobiliária prima de um acompanhamento transparente, permanente e personalizado, tendo como base a proximidade e a confiança de quem queira vender ou comprar qualquer tipo de imóvel.Dispõe de uma equipa de profissionais em constante formação, focada em perceber as suas necessidades e assumindo o compromisso de encontrar a melhor solução imobiliária para si.Com mais de 10 anos de experiência, a Atual Imobiliária garante a maior transparência e simplicidade na concretização de todos os processos do seu negócio.Os excelentes resultados que a nossa equipa de consultores tem vindo a alcançar ao longo destes anos, assenta na motivação diária de concretizar os sonhos e preferências dos nossos clientes, num mercado que reconhecemos como sendo severamente competitivo.Na Atual Imobiliária as necessidades e preferências dos nossos clientes estarão sempre em grande destaque, de forma a encontrarmos as melhores soluções para colmatar os seus objetivos. Para tal, apresentamos um acompanhamento altamente profissional, credível e experiente, que nos permite prestar todo o apoio no desenvolvimento de quaisquer decisões e também durante os trâmites do processo de compra, venda ou arrendamento.A nossa oferta prima pela diversidade e atualidade, para que encontre o imóvel à sua medida.Nascemos com a clara missão de satisfazer os clientes do mercado imobiliário, uma vez que exibimos um serviço de elevada qualidade, a preços bastante competitivos.A equipa da Atual Imobiliária dispõe de consultores extremamente experientes nesta área, cem por cento focados na concretização do melhor negócio para os seus clientes.Neste sentido, além da nossa carteira de imóveis bastante diversificada e geograficamente alargada, dispomos ainda de parcerias com diversas agências imobiliárias e entidades credoras, que garantem-nos as melhores taxas de mercado, fator que nos posiciona num patamar diferenciador dentro do atual mercado imobiliário.
AMI: 13850
Ref. Externa: 2501.100
Id: 1368616
Inicie sessão para guardar este imóvel e aceder à sua lista de favoritos em qualquer dispositivo.
3 Quartos
Área bruta : 238 m²
Moradia Bifamiliar T2 + T1 Totalmente Renovada – Tagilde, VizelaExcelente oportunidade de investimento!Moradia bifamiliar em fase final de renovação, sendo que o valor apresentado é já com a obra totalmente concluída.Apresentamos esta moradia bifamiliar completamente renovada, localizada numa zona tranquila de Tagilde, Vizela.Moradia T1:- Sala e cozinha em open space- 1 quarto- 1 WCMoradia T2:- Sala e cozinha em open space- 2 quartos- 1 WCIdeal para investidores à procura de rentabilidade no mercado de arrendamento.Localização com bons acessos e proximidade de vários pontos de interesse, tais como:- Centro de Vizela- Termas de Vizela- Parque das Termas- Escolas e serviços- Comércio local e supermercados- A poucos minutos da EN106 e com fácil acesso à A11.Não perca esta oportunidade! Entre em contacto para mais informações ou marcação de visita.Referência: ASG25165Por sermos intermediários de crédito devidamente autorizados pelo Banco de Portugal (Reg. 2736) fazemos a gestão de todo o seu processo de financiamento, sempre com as melhores soluções de mercado.Porquê escolher a AS Imobiliária?Com mais de 16 anos no ramo imobiliário e milhares de famílias felizes, dispomos de 6 agências estrategicamente localizadas, para o servir com proximidade, corresponder à suas expectativas e ajudá-lo a adquirir a sua casa de sonho. Compromisso, Competência e Confiança são os nossos valores que entregamos aos nossos Clientes na hora de comprar, arrendar ou vender o seu imóvel.A nossa prioridade é a sua Felicidade!Especialistas imobiliários em Vizela ; Guimarães ; Felgueiras ; Lousada ; Santo Tirso ; Barcelos ; Porto ; Braga ; Trofa
AMI: 13249
Ref. Externa: ASG25165
Id: 1361990
Inicie sessão para guardar este imóvel e aceder à sua lista de favoritos em qualquer dispositivo.
3 Quartos
Área útil : 145 m²
Moradia Nova T3 Térrea – Arquitetura Moderna e Elevado Conforto | São Paio, VizelaDescubra esta moradia T3 de arquitetura contemporânea, situada na tranquila zona residencial de São Paio, pensada para oferecer máxima qualidade de vida e eficiência energética. Inserida num lote com zonas exteriores bem definidas, esta é a Fração B de um projeto bifamiliar exclusivo, com 145,30 m² de área interior útil e áreas exteriores que promovem conforto e funcionalidade.Distribuição e DivisõesEspaços Interiores (Tipologia T3 – 145,30 m²):- Garagem: 22,00 m²- Open Space Entrada + Sala de Estar + Sala de Jantar: 25,00 m²- Cozinha Mobilada: 8,30 m²- Espaço de Distribuição dos Quartos: 3,20 m²- WC Comum: 4,40 m²- Quarto 1: 10,50 m²- Quarto 2: 11,00 m²- Suíte: 10,85 m²- Closet da Suíte: 5,10 m²- WC Privativo da Suíte: 5,90 m²Espaços Exteriores:- Acesso Pedonal: 4,50 m²- Acesso Automóvel: 16,65 m²- Pátio de Apoio à Entrada e Garagem: 19,10 m²- Pátio de Apoio à Zona Social e Privada: 6,60 m²Materiais e Equipamentos- Estrutura em betão armado e lajes pré-esforçadas- Revestimento térmico ETICS ("capoto") de 8cm- Cobertura plana impermeabilizada, com isolamento térmico- Caixilharia com corte térmico, vidros duplos- Estores elétricos nos quartos- Portas interiores até ao teto, esmaltadas a branco, com puxadores em inox- Soalho flutuante AC6 nas zonas secas e cerâmica nas zonas húmidasConforto e Eficiência:- Ar condicionado por condutas na sala, cozinha e quartos- Bomba de calor- Sistema de ventilação mecânica controlada (VMC)- Aspiração central- Vídeo porteiro com imagem a cores- Infraestruturas de TV e telecomunicações (ITED)Exterior e Lazer:- Acessos pedonais e escadas em lajetas de granito "Azul de Galho"- Acessos automóvel em cubo de granito- Iluminação exterior instalada (não inclui candeeiros)LocalizaçãoLocalizada numa área residencial calma, com excelente exposição solar e acessos rápidos a serviços, escolas e comércio. A moradia é perfeita para quem procura qualidade de vida, modernidade e tranquilidade num só lugar.Ideal para:- Famílias que valorizam conforto, design e funcionalidade- Quem procura uma moradia nova num ambiente tranquiloPrazo previsto de conclusão: 6 mesesReferência: ASG25146Por sermos intermediários de crédito devidamente autorizados pelo Banco de Portugal (Reg. 2736), fazemos a gestão de todo o seu processo de financiamento, sempre com as melhores soluções de mercado.Porquê escolher a AS Imobiliária?Com mais de 16 anos no ramo imobiliário e milhares de famílias felizes, dispomos de 9 agências estrategicamente localizadas, para o servir com proximidade, corresponder à suas expectativas e ajudá-lo a adquirir a sua casa de sonho. Compromisso, Competência e Confiança são os nossos valores que entregamos aos nossos Clientes na hora de comprar, arrendar ou vender o seu imóvel.A nossa prioridade é a sua Felicidade!Na AS Imobiliária somos apaixonados por vender casas!Especialistas imobiliários em Vizela ; Guimarães ; Felgueiras ; Lousada ; Santo Tirso ; Barcelos ; São João da Madeira ; Porto ; Braga ; Trofa; Lisboa
AMI: 13249
Ref. Externa: ASG25146
Id: 1313338
Inicie sessão para guardar este imóvel e aceder à sua lista de favoritos em qualquer dispositivo.
4 Quartos
Área bruta : 315 m²
Moradia T4 com 3 Pisos – Excelente Estado de ConservaçãoMoradia unifamiliar T4, composta por cave, rés-do-chão e andar, localizada em zona residencial tranquila em São Paio, Vizela. Ideal para quem procura conforto, privacidade e qualidade de vida.Rés-do-chão:- Cozinha mobilada e equipada, com acesso direto à varanda- Sala ampla com recuperador de calor e acesso a duas varandas- 1 quarto- WC completo com base de duche- Hall de entrada com ar condicionado- Soalho vinílico- Pré-instalação de aquecimento central- Sistema de alarme instaladoAndar:- 3 quartos com boa área e excelente luminosidade natural (2 dos quartos com acesso a varanda)- 2 WC’s com banheira (um deles comum a dois quartos)Cave:- Garagem com capacidade para 4 carros- Lavandaria- Acesso direto ao exteriorExterior:- Jardim cuidado- Terreno com árvores de fruto- Furo de água- Revestimento exterior em capoto- Isolamento com lã de rocha no telhado- Caixilharia com vidros duplos- Equipado com 5 painéis solaresÁreas:- Área total do terreno: 580 m²- Área bruta de construção: 315 m²Pontos de Interesse Próximos:- A 5 minutos do centro de Vizela- A 10 minutos do centro de Guimarães- Próxima de escolas, farmácias e supermercados- Bons acessos à N106 e à autoestrada A11- Serviços de saúde, comércio e restauração nas imediações- Transportes públicos com paragem a curta distânciaVenha conhecer esta moradia onde conforto, espaço e eficiência energética se unem numa localização privilegiada. O lar perfeito para a sua família está à sua espera!Referência: ASG25135Por sermos intermediários de crédito devidamente autorizados pelo Banco de Portugal (Reg. 2736) fazemos a gestão de todo o seu processo de financiamento, sempre com as melhores soluções de mercado.Porquê escolher a AS Imobiliária?Com mais de 16 anos no ramo imobiliário e milhares de famílias felizes, dispomos de 6 agências estrategicamente localizadas, para o servir com proximidade, corresponder à suas expectativas e ajudá-lo a adquirir a sua casa de sonho. Compromisso, Competência e Confiança são os nossos valores que entregamos aos nossos Clientes na hora de comprar, arrendar ou vender o seu imóvel.A nossa prioridade é a sua Felicidade!Especialistas imobiliários em Vizela ; Guimarães ; Felgueiras ; Lousada ; Santo Tirso ; Barcelos ; Porto ; Braga ; Trofa
AMI: 13249
Ref. Externa: ASG25135
Id: 1299516
Inicie sessão para guardar este imóvel e aceder à sua lista de favoritos em qualquer dispositivo.
3 Quartos
Área bruta : 250 m²
Moradia em construção com 3 quartos, Excelente Localização S Paio, VizelaMoradias de 2 pisos com umas vistas desafogadas e uma exposição solar excelentes.Piso 0:- Cozinha;- Sala comum;- Casa de banho de serviço;- Hall;- Lavandaria;- Garagem;- Corredor;- Arrumos;- Instalação sanitária;- Varanda.Piso 1:- Suite;- Close;- Casa de banho suite;- 2 Quartos;- Casa de banho completa;- Hall;- Corredor;- 2 Varandas.Outras Características:- Teto falso em gesso cartonado pintado (Hidrófugo nas zonas húmidas);- Fachadas em bloco térmico, com isolamento térmico tipo ETICS (6cm);- Pavimentos flutuante vinílico;- Projetores de embutir LED;- Caixilharia em alumínio com vidro duplo com rutura térmica;- Estores elétricos em alumínio;- Portas interiores e rodapés folheados a madeira de Carvalho;- Portão automático;- Roupeiros com portas folheadas a madeira de Carvalho;- Móvel de Cozinha em termolaminado branco meio brilho. (semeletrodomésticos);- Equipamentos sanitários (até 3000.00€);- Bomba de Calor para AQS;- Ar condicionado. (Quartos + Sala).Situa-se:- S Paio;- 5 Minutos Vizela;- 5 Minutos Felgueiras;- a 20min. através de A4,A42 (40km) do Aeroporto Francisco Sá Carneiro.I-Móveis apresenta-se como a Imobiliária de referência na Zona Norte.Não hesite em confiar o seu sonho nas mãos de profissionais.
AMI: 15816
Ref. Externa: I-M1676
Id: 1164806
Inicie sessão para guardar este imóvel e aceder à sua lista de favoritos em qualquer dispositivo.
3 Quartos
Área bruta : 250 m²
Moradia em construção com 3 quartos, Excelente Localização S Paio, VizelaMoradias de 2 pisos com umas vistas desafogadas e uma exposição solar excelentes.Piso 0:- Cozinha;- Sala comum;- Casa de banho de serviço;- Hall;- Lavandaria;- Garagem;- Corredor;- Arrumos;- Instalação sanitária;- Varanda.Piso 1:- Suite;- Close;- Casa de banho suite;- 2 Quartos;- Casa de banho completa;- Hall;- Corredor;- 2 Varandas.Outras Características:- Teto falso em gesso cartonado pintado (Hidrófugo nas zonas húmidas);- Fachadas em bloco térmico, com isolamento térmico tipo ETICS (6cm);- Pavimentos flutuante vinílico;- Projetores de embutir LED;- Caixilharia em alumínio com vidro duplo com rutura térmica;- Estores elétricos em alumínio;- Portas interiores e rodapés folheados a madeira de Carvalho;- Portão automático;- Roupeiros com portas folheadas a madeira de Carvalho;- Móvel de Cozinha em termolaminado branco meio brilho. (semeletrodomésticos);- Equipamentos sanitários (até 3000.00€);- Bomba de Calor para AQS;- Ar condicionado. (Quartos + Sala).Situa-se:- S Paio;- 5 Minutos Vizela;- 5 Minutos Felgueiras;- a 20min. através de A4,A42 (40km) do Aeroporto Francisco Sá Carneiro.I-Móveis apresenta-se como a Imobiliária de referência na Zona Norte.Não hesite em confiar o seu sonho nas mãos de profissionais.
AMI: 15816
Ref. Externa: I-M1675
Id: 1164807
Inicie sessão para guardar este imóvel e aceder à sua lista de favoritos em qualquer dispositivo.
3 Quartos
4 WCs
Área bruta : 246 m²
Moradias T3, em Vizela! Duas moradias com amplas áreas e extenso jardim, localizadas, em São Paio Vizela, inseridas num espaço rural muito tranquilo, a cerca de 5 Km do centro de Vizela, junto à A11 ou IP 9, a cerca de 10 Km de Guimarães e 5 km de Felgueiras. Constituídas por 3 pisos, com uma ampla garagem, cozinha mobilada, sala com acesso a um jardim desafogado e três quartos no piso superior, sendo um deles uma master-suíte com closet e instalação sanitária. Equipadas com ar condicionado e bomba de calor para aquecimento das águas sanitárias. Lote 36: Área terreno: 181 m2 Implantação edifício: 82 m2 Área Jardim: 99 m2 Área Bruta: 246 m2 Área: Útil 173 m2 Área Garagem: 25 m2 MAPA DE ACABAMENTOS Tipo de edifício: Habitação Unifamiliar - T3 Localização: U.F.Tagilde e Vizela (S. Paio), Vizela. Tectos: - Tecto falso em gesso cartonado pintado. (Hidrófugo nas zonas húmidas). Paredes: - Parede exterior das fachadas em bloco térmico, com isolamento térmico tipo ETICS (6cm) pelo exterior. - Paredes interiores em tijolo cerâmico, rebocado. - Paredes das instalações sanitárias revestidas a cerâmico. (Até 15.00€/m2 e até ao tamanho 60x60) Pavimentos: - Zonas exteriores: - Terra vegetal - Interior da habitação: - Sala e quartos em pavimento flutuante vinílico. - Instalações sanitárias e cozinha em pavimento cerâmico. (Até 15.00€/m2 e até ao tamanho 60x60) Iluminação interior: - Projectores de embutir LED. Vãos exteriores: - Porta de entrada em alumínio. - Caixilharia em alumínio com vidro duplo com ruptura térmica. - Estores eléctricos em alumínio. - Portas interiores e rodapés folheados a madeira de Carvalho. Vãos Interiores: Mobiliário e equipamentos: - Portão automático. - Roupeiros com portas folheadas a madeira de Carvalho. - Móvel de cozinha em termolaminado branco meio brilho. (Sem electrodomésticos). Instalações sanitárias: - Equipamentos sanitários (Até 3000.00€) Instalações técnicas: - Bomba de Calor para AQS - Ar condicionado. (Quartos + Sala) As imagens e listagens apresentadas são de natureza indicativa, podendo sofrer modificações determinadas pelo promotor, decorrentes de alterações de projecto, execução da obra ou fornecedores, de disponibilidade de fornecimento ou termo de produção. As substituições, a acontecerem, serão sempre feitas respeitando os padrões de qualidade estabelecidos. ___________________________________________________________________________________________________- Comprar na FTImoveis é comprar com SEGURANÇA! Com 10 anos de história, no mercado imobiliário de V.N.Gaia. FTImoveis Imobiliária.
AMI: 25008
Ref. Externa: 0020FA
Id: 1158204
Inicie sessão para guardar este imóvel e aceder à sua lista de favoritos em qualquer dispositivo.
3 Quartos
4 WCs
Área bruta : 262 m²
Moradia T3 Nova em São Paio de Vizela. Imóvel com acabamentos modernos, composta por dois pisos que incluem: Hall, Open Space (sala ampla e cozinha), wc de serviço, lavandaria, dois arrumos, outro wc de serviço e garagem, e no piso superior dispõe de três quartos (um é master suite com closet), dois wcs e varandas. Prazo de conclusão previsto: 8 meses Comodidades e Acabamentos em destaque: - Bomba de Calor para AQS. - Ar condicionado. - Caixilharia em alumínio com vidro duplo com rutura térmica. - Estores elétricos em alumínio. - Portão automático. - Roupeiros com portas folheadas a madeira de Carvalho. - Móvel de cozinha em termolaminado branco meio brilho. - Porta de entrada em alumínio. - Portas interiores e rodapés folheados a madeira de Carvalho. - Projetores de embutir LED. - Parede exterior das fachadas em bloco térmico, com isolamento térmico tipo ETICS (6cm) pelo exterior. Localizado em São Paio de Vizela, em zona residencial do moradias, ideal para quem procura qualidade de vida aliada à proximidade de serviços essenciais. Com fácil acesso ao centro de Vizela e às principais vias rodoviárias da região. Nas redondezas, é possível encontrar escolas, comércio local, zonas verdes e espaços de lazer, tornando-a perfeita tanto para famílias como para quem procura investir num local com grande potencial de valorização. Conheça este projeto! Para mais informações, contacte-nos. CityCasas Unipessoal Lda. - Licença AMI 18846 Na CityCasas, acreditamos que encontrar a casa certa é muito mais do que uma transação, é um passo importante na construção do seu futuro. Por isso, oferecemos acompanhamento gratuito e totalmente personalizado com o compromisso de o guiar em cada decisão, com confiança, clareza e proximidade. Trabalhamos com parcerias sólidas e selecionadas junto de diversas entidades, para que tenha acesso às melhores oportunidades e condições do mercado, sem complicações e com total transparência. A nossa missão é simples: transformar cada cliente num parceiro de longa duração. Para nós, o momento da escritura não é o fim, mas o início de uma relação de confiança e tranquilidade. Queremos que se sinta seguro, valorizado e acompanhado, porque a sua satisfação é, para nós, a melhor forma de sucesso. Contacte-nos para agendar a sua visita ou solicitar mais informações. A nossa equipa experiente e dedicada está disponível todos os dias, pronta para o receber com o profissionalismo e a atenção que merece. CityCasas - Estamos sempre ao seu lado!
AMI: 18846
Ref. Externa: CAS_646
Id: 1145742
Inicie sessão para guardar este imóvel e aceder à sua lista de favoritos em qualquer dispositivo.
3 Quartos
4 WCs
Área bruta : 464 m²
Moradias novas em Vizela - Braga Marque visita com Rosa Dias Descrição: - 3 Quartos, sendo 1 Suíte; - Moradias sem a piscina incluída; - Sala e cozinha em open space; - Garagem para um carro mais um lugar de estacionamento; Marque a sua visita. 'CasaFama Famalicão e Póvoa de Varzim' Triplo-s, Investments, Unipessoal lda AMI 12339
AMI: 12339
Ref. Externa: CF-320-3348
Id: 1108065
Inicie sessão para guardar este imóvel e aceder à sua lista de favoritos em qualquer dispositivo.
3 Quartos
4 WCs
Área bruta : 464 m²
Moradias novas em Vizela - Braga Marque visita com Rosa Dias Descrição: - 3 Quartos, sendo 1 Suíte; - Moradias sem a piscina incluída; - Sala e cozinha em open space; - Garagem para um carro mais um lugar de estacionamento; Marque a sua visita. 'CasaFama Famalicão e Póvoa de Varzim' Triplo-s, Investments, Unipessoal lda AMI 12339
AMI: 12339
Ref. Externa: CF-320-3347
Id: 1108066
Inicie sessão para guardar este imóvel e aceder à sua lista de favoritos em qualquer dispositivo.
3 Quartos
2 WCs
Área útil : 188 m²
MORADIA INDEPENDENTE T3 - VIZELA António Rodrigues _9_6_1_3_1_6_8_5_9_ [email protected] Descrição do Imóvel : Moradia Unifamiliar T3 com Armazém em Tagilde, Vizela Construída em 2008, esta moradia é uma excelente opção para quem procura conforto e versatilidade. Interior da Moradia: 3 quartos amplos e bem iluminados. 2 casas de banho, garantindo praticidade para a família. Cozinha funcional e bem equipada. Sala espaçosa com lareira, ideal para momentos de convívio. Zona de arrumos prática para organização adicional. Armazém Independente: Conta com um escritório e uma casa de banho. Espaço amplo e adaptável, perfeito para armazenamento, negócios ou personalização conforme necessidade. Localização: A 5 km do centro de Vizela e da autoestrada A11. A 35 km de Braga e 59 km do Porto. Próximo a comércio e serviços, oferecendo conveniência no dia a dia. Área Total: 412 m², combinando espaço para habitação e exploração de um ambiente multifuncional. Destaques: Essa propriedade é ideal para famílias que buscam uma moradia prática, com um espaço adicional que pode ser utilizado de forma comercial ou criativa. Uma oportunidade única em uma localização estratégica no distrito de Braga. Venha conhecer! A RE/MAX + Grupo vantagem Existem para realizar os seus sonhos quer na compra como na venda do seu imóvel.
AMI: 7772
Ref. Externa: M-27860
Id: 944264
Inicie sessão para guardar este imóvel e aceder à sua lista de favoritos em qualquer dispositivo.
3 Quartos
Área bruta : 262 m²
Moradias T3, Venda, S. Paio, VizelaPiso 0:Hall de entrada;Lavandaria;Garagem;Sala comum;Cozinha;Corredor;2 Wc de serviço;Arrumos;Piso 1:Hall para os quartos;2 quartos;Wc completo;Suíte com closet;Wc Suite;Acabamentos;Cozinha mobilada;Armários embutidos;Vidros duplos com rutura térmica;Teto falso;Piso flutuante sala e quartos;Wc e cozinha pavimento cerâmico;Estores elétricos em alumínio;Bomba de calor para AQS;Ar condicionado Sala e quartos;Portão automático (garagem); Possibilidade de construção de piscina. Você tem o sonho, nós temos a Chave!Atual Imobiliária prima de um acompanhamento transparente, permanente e personalizado, tendo como base a proximidade e a confiança de quem queira vender ou comprar qualquer tipo de imóvel.Dispõe de uma equipa de profissionais em constante formação, focada em perceber as suas necessidades e assumindo o compromisso de encontrar a melhor solução imobiliária para si.Com mais de 10 anos de experiência, a Atual Imobiliária garante a maior transparência e simplicidade na concretização de todos os processos do seu negócio.Os excelentes resultados que a nossa equipa de consultores tem vindo a alcançar ao longo destes anos, assenta na motivação diária de concretizar os sonhos e preferências dos nossos clientes, num mercado que reconhecemos como sendo severamente competitivo.Na Atual Imobiliária as necessidades e preferências dos nossos clientes estarão sempre em grande destaque, de forma a encontrarmos as melhores soluções para colmatar os seus objetivos. Para tal, apresentamos um acompanhamento altamente profissional, credível e experiente, que nos permite prestar todo o apoio no desenvolvimento de quaisquer decisões e também durante os trâmites do processo de compra, venda ou arrendamento.A nossa oferta prima pela diversidade e atualidade, para que encontre o imóvel à sua medida.Nascemos com a clara missão de satisfazer os clientes do mercado imobiliário, uma vez que exibimos um serviço de elevada qualidade, a preços bastante competitivos.A equipa da Atual Imobiliária dispõe de consultores extremamente experientes nesta área, cem por cento focados na concretização do melhor negócio para os seus clientes.Neste sentido, além da nossa carteira de imóveis bastante diversificada e geograficamente alargada, dispomos ainda de parcerias com diversas agências imobiliárias e entidades credoras, que garantem-nos as melhores taxas de mercado, fator que nos posiciona num patamar diferenciador dentro do atual mercado imobiliário.
AMI: 13850
Ref. Externa: 2406.150
Id: 935708
Inicie sessão para guardar este imóvel e aceder à sua lista de favoritos em qualquer dispositivo.
3 Quartos
Área útil : 204 m²
Moradia geminada T3 com início de construção previsto para o último trimestre deste ano. Design moderno e acabamentos de alta qualidade, ideal para quem procura conforto e funcionalidade. 1º Piso: Hall de Entrada 2 Quartos com roupeiros embutidos bem iluminados Suite com Closet e acesso direto à varanda WC Completo equipado com materiais de alta qualidade, serve de apoio aos dois quartos. Rés do Chão: Sala em Open Space: Ampla e luminosa, em conceito aberto com a cozinha, criando um ambiente perfeito para o convívio. Cozinha Mobilada WC de Serviço, para uso diário dos residentes e visitantes. Despensa Zona Exterior: Jardim: Espaço verde, ideal para momentos de lazer e descontração. Possibilidade de Piscina: Espaço exterior preparado para instalação de uma piscina. WC de Apoio à Piscina Esta moradia geminada oferece uma excelente oportunidade para criar um lar à sua medida, num ambiente confortável e moderno. Aproveite esta oportunidade e acompanhe o processo de construção! 'Dê Asas à Sua Nova História' Uma equipa profissional um propósito Esta é uma equipa muito dinâmica que funciona como uma unidade muito eficiente. A grande capacidade de resposta e comunicação é a razão que leva os clientes a sentirem-se muito bem acompanhados ao longo dos seus processos de compra e venda. Experiência, competência e profissionalismo Todos os dias trabalhamos para somar, mas não a qualquer preço. Estamos do seu lado, representamos os seus interesses. Fazemo-lo com confiança e respeito. Processos claros e com transparência. Preocupamo-nos em prestar um serviço de excelência e inovador aos nossos clientes, quer estes pretendam vender comprar ou arrendar casa.
AMI: 20808
Ref. Externa: F2404.062
Id: 841271
Inicie sessão para guardar este imóvel e aceder à sua lista de favoritos em qualquer dispositivo.
3 Quartos
Área bruta : 262 m²
Moradia de dois pisos com Jardim, Garagem, 3 Quartos ( 1 Suíte com Closet ), Arrumos, Lavandaria, Ar Condicionado, Bomba de calor, Caixilharia em alumínio com vidro duplo com rutura térmica, Estores Elétricos e pavimento vinilico.Moradia Geminada T3 em São Paio de VizelaMoradia de dois pisos com jardim, localizada numa zona tranquila e de fácil acesso, permite aos moradores viverem num espaço agradável e seguro, proporcionando-lhes uma excelente qualidade de vida.Piso R/C:- Hall;- Lavandaria;- Sala Comum;- Cozinha;- Arrumos;- Wc;Piso 1:- Hall;- 2 Quartos;- Wc Completo;- Suite- Closet- Wc Suíte.Zona exterior:- Garagem;- Jardim.Outras características:- Bomba de calor para AQS;- Ar condicionado na sala e quartos;- Tetos falsos;- Sala e quartos em pavimento vinilico;- Focos embutidos;- Caixilharia em alumínio com vidro duplo com rutura térmica;- Estores elétricos;- Portão automático.Situa-se:- Perto de diversos comércios e serviços;- A 10 minutos da entrada da autoestrada;- A 20 minutos de Guimarães;- A 10 minutos do centro de Vizela.Referência: ASP23084Por sermos intermediários de crédito devidamente autorizados pelo Banco de Portugal (Reg. 2736) fazemos a gestão de todo o seu processo de financiamento, sempre com as melhores soluções de mercado.Porquê escolher a AS Imobiliária?Com mais de 16 anos no ramo imobiliário e milhares de famílias felizes, dispomos de 9 agências estrategicamente localizadas, para o servir com proximidade, corresponder à suas expectativas e ajudá-lo a adquirir a sua casa de sonho. Compromisso, Competência e Confiança são os nossos valores que entregamos aos nossos Clientes na hora de comprar, arrendar ou vender o seu imóvel.A nossa prioridade é a sua Felicidade!Especialistas imobiliários em Vizela ; Guimarães ; Taipas ; Felgueiras ; Lousada ; Santo Tirso ; Barcelos ; Porto ; Braga ;
AMI: 13249
Ref. Externa: ASP24084
Id: 833006
Inicie sessão para guardar este imóvel e aceder à sua lista de favoritos em qualquer dispositivo.
2 Quartos
Área bruta : 83 m²
Moradia para restauro T2, Venda, S. Paio, VizelaPossibilidade de construção de uma moradia individual ou moradia Bi-familiar T2+T2;O valor de venda anunciado refere-se ao estado atual em que se encontra (restauro total);Possibilidade de venda na modalidade "chave na mão" mediante orçamento.Piso 0:hall de entrada;Sala;Cozinha;Wc completo;Dois quartos;Estacionamento.Piso 1:Hall de entrada;Sala;Cozinha;Wc completo;Dois Quartos;Estacionamento.Outras Características:Localizada próxima do centro da cidade de Vizela;10 Minutos de Guimarães.Você tem o sonho, nós temos a Chave!Atual Imobiliária prima de um acompanhamento transparente, permanente e personalizado, tendo como base a proximidade e a confiança de quem queira vender ou comprar qualquer tipo de imóvel.Dispõe de uma equipa de profissionais em constante formação, focada em perceber as suas necessidades e assumindo o compromisso de encontrar a melhor solução imobiliária para si.Com mais de 10 anos de experiência, a Atual Imobiliária garante a maior transparência e simplicidade na concretização de todos os processos do seu negócio.Os excelentes resultados que a nossa equipa de consultores tem vindo a alcançar ao longo destes anos, assenta na motivação diária de concretizar os sonhos e preferências dos nossos clientes, num mercado que reconhecemos como sendo severamente competitivo.Na Atual Imobiliária as necessidades e preferências dos nossos clientes estarão sempre em grande destaque, de forma a encontrarmos as melhores soluções para colmatar os seus objetivos. Para tal, apresentamos um acompanhamento altamente profissional, credível e experiente, que nos permite prestar todo o apoio no desenvolvimento de quaisquer decisões e também durante os trâmites do processo de compra, venda ou arrendamento.A nossa oferta prima pela diversidade e atualidade, para que encontre o imóvel à sua medida.Nascemos com a clara missão de satisfazer os clientes do mercado imobiliário, uma vez que exibimos um serviço de elevada qualidade, a preços bastante competitivos.A equipa da Atual Imobiliária dispõe de consultores extremamente experientes nesta área, cem por cento focados na concretização do melhor negócio para os seus clientes.Neste sentido, além da nossa carteira de imóveis bastante diversificada e geograficamente alargada, dispomos ainda de parcerias com diversas agências imobiliárias e entidades credoras, que garantem-nos as melhores taxas de mercado, fator que nos posiciona num patamar diferenciador dentro do atual mercado imobiliário.
AMI: 13850
Ref. Externa: 2407.082
Id: 783944
Inicie sessão para guardar este imóvel e aceder à sua lista de favoritos em qualquer dispositivo.
10 Quartos
5 WCs
Área bruta : 565 m²
Um puro encanto esta Quinta Senhorial. Não faltam bons argumentos para transformar esta charmosa quinta em Hotel/ Resort ou até mesmo um local de eleição para grandes eventos, nunca descorando um local perfeito para viver. O mote da estadia no coração de Vizela, com dois pisos numa área de 532 m2, é um elogio ao bom gosto, cruzando o requinte conforto e a paisagem que podemos desfrutar nas zonas exteriores, a luz que imunda os 15 mil metros de natureza, o resultado é sublime. Composta por duas casas Senhoriais , um grande salão para eventos , piscina e 15 mil metros de beleza natural . Guimarães MHSE é uma cidade portuguesa situada no Distrito de Braga, região do Norte e sub-região do Ave (uma das sub-regiões mais industrializadas do país) e ainda à antiga província do Minho, com uma população de 54 097 habitantes, repartidos por uma malha urbana de 23,5 km², em 20 freguesias e com uma densidade populacional de 2 223,9 hab./km². É sede do município de Guimarães com 240,95 km² de área e 156 849 habitantes (2021), (em queda se comparada com a população de 158 088 habitantes no recenseamento de 2011), subdividido em 69 freguesias, (agrupadas em 48 novas freguesias com a reorganização administrativa das freguesias, mantendo as anteriores freguesias a 'sua identidade histórica, cultural e social, conforme estabelece a o artigo nº4 da Lei n.º 22/2012, de 30 de maio'). A maioria da população reside na cidade e na sua zona periférica. O município é limitado a norte pelo município de Póvoa de Lanhoso, a leste por Fafe, a sul por Felgueiras, Vizela e Santo Tirso, a oeste por Vila Nova de Famalicão e a noroeste por Braga. É uma cidade histórica, com um papel crucial na formação de Portugal, e que conta já com mais de um milénio desde a sua formação, altura em que era designada como Vimaranes. Podendo este topónimo ter tido origem em Vímara Peres, nos meados do século IX, quando fez deste local o seu principal centro governativo do condado Portucalense que tinha conquistado para o Reino das Astúrias e onde morreu. Guimarães é uma das mais importantes cidades históricas do país, estando o seu centro histórico inscrito na lista de Património Mundial da UNESCO desde 2001, o que a torna definitivamente num dos maiores centros turísticos da região. As suas ruas e monumentos respiram história e encantam quem a visita. Guimarães concilia da melhor forma a história e consequente manutenção do património com o dinamismo e empreendedorismo que caracterizam as cidades modernas, que se manifestou na nomeação para Capital Europeia da Cultura em 2021. Fatores que levaram Guimarães a ser eleita pelo New York Times como um dos 41 locais a visitar em 2011 e a considerá-la um dos emergentes pontos culturais da Península Ibérica. Foi ainda Cidade Europeia do Desporto (CED), em 2013. Nesta última, Guimarães foi distinguida como sendo a melhor CED de 2013. Guimarães é muitas vezes designada como 'Cidade Berço', devido ao facto de ter sido considerada o centro administrativo do Condado Portucalense por D. Henrique e por seu filho D. Afonso Henriques poder ter nascido nesta cidade e fundamentalmente pela importância histórica que a Batalha de São Mamede, travada na periferia da cidade em 24 de junho de 1128, teve para a formação da nacionalidade. Contudo, as necessidades da Reconquista e de proteção de territórios a sul levou esse mesmo centro para Coimbra em 1129. Categoria Energética: F
AMI: 20479
Ref. Externa: PRED-123
Id: 741645
Inicie sessão para guardar este imóvel e aceder à sua lista de favoritos em qualquer dispositivo.
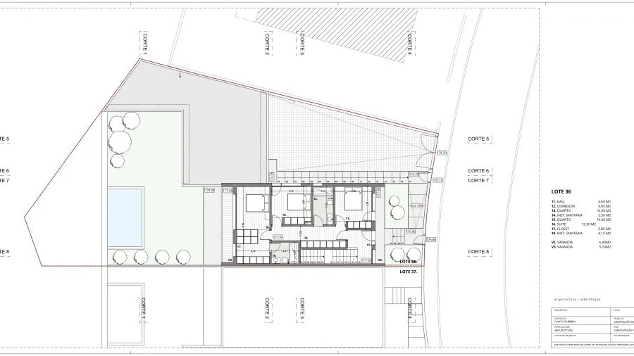
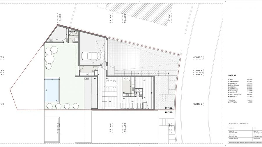
3 Quartos
Área bruta : 262 m²
Moradia Geminada T3 com uma área total de Construção de 262,40m2 e inserida num lote de 396,35m2.Moradia de 2 pisos com umas vistas desafogadas e uma exposição solar excelentes.Piso 0: - Cozinha; - Sala comum; - Casa de banho de serviço; - Hall; - Lavandaria; - Garagem; - Corredor; - Arrumos; - Instalação sanitária; - Varanda.Piso 1: - Suite; - Close; - Casa de banho suite; - 2 Quartos; - Casa de banho completa; - Hall; - Corredor; - 2 Varandas.Outras Características:- Teto falso em gesso cartonado pintado (Hidrófugo nas zonas húmidas);- Fachadas em bloco térmico, com isolamento térmico tipo ETICS (6cm);- Pavimentos flutuante vinílico;- Projetores de embutir LED;- Caixilharia em alumínio com vidro duplo com rutura térmica;- Estores elétricos em alumínio;- Portas interiores e rodapés folheados a madeira de Carvalho;- Portão automático;- Roupeiros com portas folheadas a madeira de Carvalho;- Móvel de Cozinha em termolaminado branco meio brilho. (sem eletrodomésticos);- Equipamentos sanitários (até 3000.00€);- Bomba de Calor para AQS;- Ar condicionado. (Quartos + Sala).O valor apresentado é sem piscina.NOTA: As imagens são meramente ilustrativas e as listagens apresentadas são de natureza indicativa, podendo sofrer modificações determinadas pelo promotor, decorrentes de alterações de projeto, execução da obra ou fornecedores, de disponibilidade de fornecimento ou termo de produção. As substituições, a acontecerem, serão sempre feitas respeitando os padrões de qualidade estabelecidos.Contacte-nos para visitar a sua nova casa.Somos Intermediários de Crédito registado junto do Banco de Portugal sob o nº 2436, agilizamos todo o processo de financiamento por si, sem qualquer custo e sem ter que se deslocar aos bancos, de forma imparcial e sempre recolhendo as melhores propostas de mercado.Porque visitar a Prestiti Imobiliária?A Prestiti Imobiliária está sediada em Guimarães á mais de 19 anos, na mais bela cidade portuguesa, quem caminha pelas ruas e passa pelos monumentos tem a sensação de respirar história, é por isso que foi tombada como Patrimônio Mundial da Unesco 2001, designada Capital Europeia da Cultura em 2012 e Cidade Europeia do Desporto em 2013, o que sem dúvida, torna Guimarães uma excelente escolha para quem pretende morar aqui, é muito fácil apaixonar-se pela a cidade e ter qualidade de vida.A Prestiti Imobiliária preocupa-se com a felicidade do cliente todos os dias do Ano.O cliente connosco tem um atendimento baseado na ética, seriedade, competência, eficácia e garantimos que da nossa parte existe segurança e responsabilidade em tudo em que nos comprometemos e pretendemos que nossa amizade dure para sempre.Paixão a Comercializar Imóveis!
AMI: 6575
Ref. Externa: 3146LT37
Id: 675177
Inicie sessão para guardar este imóvel e aceder à sua lista de favoritos em qualquer dispositivo.
3 Quartos
Área bruta : 273 m²
Moradia de LUXO com Jardim, Garagem, 3 Quartos ( 1 Suíte com Closet ), Arrumos, Lavandaria, Ar Condicionado, Bomba de calor, Caixilharia em alumínio com vidro duplo com rutura térmica, Estores Elétricos e pavimento vinilico.Moradia Geminada T3 em São Paio VizelaMoradia de dois pisos com jardim, localizada numa zona tranquila e de fácil acesso, permite aos moradores viverem num espaço agradável e seguro, proporcionando-lhes uma excelente qualidade de vida.Piso R/C:- Hall;- Lavandaria;- Sala Comum;- Cozinha;- Arrumos;- Wc;Piso 1:- Hall;- 2 Quartos;- Wc Completo;- Suite- Closet- Wc Suíte.Zona exterior:- Garagem;- Jardim.Outras características:- Bomba de calor para AQS;- Ar condicionado na sala e quartos;- Tetos falsos;- Sala e quartos em pavimento vinilico;- Focos embutidos;- Caixilharia em alumínio com vidro duplo com rutura térmica;- Estores elétricos;- Portão automático.Situa-se:- Perto de diversos comércios e serviços;- A 10 minutos da entrada da autoestrada;- A 20 minutos de Guimarães;- A 10 minutos do centro de Vizela.Referência: ASP24083Por sermos intermediários de crédito devidamente autorizados pelo Banco de Portugal (Reg. 2736) fazemos a gestão de todo o seu processo de financiamento, sempre com as melhores soluções de mercado.Porquê escolher a AS Imobiliária?Com mais de 16 anos no ramo imobiliário e milhares de famílias felizes, dispomos de 9 agências estrategicamente localizadas, para o servir com proximidade, corresponder à suas expectativas e ajudá-lo a adquirir a sua casa de sonho. Compromisso, Competência e Confiança são os nossos valores que entregamos aos nossos Clientes na hora de comprar, arrendar ou vender o seu imóvel.A nossa prioridade é a sua Felicidade!Especialistas imobiliários em Vizela ; Guimarães ; Taipas ; Felgueiras ; Lousada ; Santo Tirso ; Barcelos ; Porto ; Braga ;
AMI: 13249
Ref. Externa: ASP24083
Id: 664115
Inicie sessão para guardar este imóvel e aceder à sua lista de favoritos em qualquer dispositivo.
3 Quartos
Área bruta : 273 m²
Moradia Geminada T3 com uma área total de Construção de 273,30m2 e inserida num lote de 446,65m2.Moradia de 2 pisos com umas vistas desafogadas e uma exposição solar excelentes.Piso 0: - Cozinha; - Sala comum; - Casa de banho de serviço; - Hall; - Lavandaria; - Garagem; - Corredor; - Arrumos; - Instalação sanitária; - Varanda.Piso 1: - Suite; - Close; - Casa de banho suite; - 2 Quartos; - Casa de banho completa; - Hall; - Corredor; - 2 Varandas.Outras Características:- Teto falso em gesso cartonado pintado (Hidrófugo nas zonas húmidas);- Fachadas em bloco térmico, com isolamento térmico tipo ETICS (6cm);- Pavimentos flutuante vinílico;- Projetores de embutir LED;- Caixilharia em alumínio com vidro duplo com rutura térmica;- Estores elétricos em alumínio;- Portas interiores e rodapés folheados a madeira de Carvalho;- Portão automático;- Roupeiros com portas folheadas a madeira de Carvalho;- Móvel de Cozinha em termolaminado branco meio brilho. (sem eletrodomésticos);- Equipamentos sanitários (até 3000.00€);- Bomba de Calor para AQS;- Ar condicionado. (Quartos + Sala).O valor apresentado é sem piscina.NOTA: As imagens são meramente ilustrativas e as listagens apresentadas são de natureza indicativa, podendo sofrer modificações determinadas pelo promotor, decorrentes de alterações de projeto, execução da obra ou fornecedores, de disponibilidade de fornecimento ou termo de produção. As substituições, a acontecerem, serão sempre feitas respeitando os padrões de qualidade estabelecidos.Contacte-nos para visitar a sua nova casa.Somos Intermediários de Crédito registado junto do Banco de Portugal sob o nº 2436, agilizamos todo o processo de financiamento por si, sem qualquer custo e sem ter que se deslocar aos bancos, de forma imparcial e sempre recolhendo as melhores propostas de mercado.Porque visitar a Prestiti Imobiliária?A Prestiti Imobiliária está sediada em Guimarães á mais de 19 anos, na mais bela cidade portuguesa, quem caminha pelas ruas e passa pelos monumentos tem a sensação de respirar história, é por isso que foi tombada como Patrimônio Mundial da Unesco 2001, designada Capital Europeia da Cultura em 2012 e Cidade Europeia do Desporto em 2013, o que sem dúvida, torna Guimarães uma excelente escolha para quem pretende morar aqui, é muito fácil apaixonar-se pela a cidade e ter qualidade de vida.A Prestiti Imobiliária preocupa-se com a felicidade do cliente todos os dias do Ano.O cliente connosco tem um atendimento baseado na ética, seriedade, competência, eficácia e garantimos que da nossa parte existe segurança e responsabilidade em tudo em que nos comprometemos e pretendemos que nossa amizade dure para sempre.Paixão a Comercializar Imóveis!
AMI: 6575
Ref. Externa: 3146LT36
Id: 404218
Inicie sessão para guardar este imóvel e aceder à sua lista de favoritos em qualquer dispositivo.
Estes agentes são especialistas nesta zona:
Inicie sessão para ocultar este imóvel das suas pesquisas e manter a sua lista de resultados organizada.
Guardar favoritos
Este imóvel foi guardados nos seus favoritos com sucesso.
Para poder guardar pesquisa deverá ter a sua sessão iniciada.
Caso não tenha uma conta, deverá criar uma.
A sua pesquisa foi guardada com sucesso!
© Copyright 2023 | CASACERTA. All rights reserved
Este site utiliza cookies. Ao navegar no site estará a consentir a sua utilização.
Para mais informações sobre os cookies pode consultar a
política de privacidade.