Lista
Comprar
Arrendar
415.000 €
4 Quartos
3 WCs
Área bruta : 337 m²
Fabulosa moradia composta por três pisos, com excelente qualidade de construção, pensada para proporcionar conforto, funcionalidade e qualidade de vida. Numa localização muito aprazível, com ótimas áreas, vistas desafogadas e excelente luminosidade natural, encontra-se apenas a cerca de dez minutos do centro da Covilhã, com fácil acesso à EN18 e à A23. O rés do chão, dispõe de uma ampla e luminosa sala de estar com lareira a lenha com recuperador de calor, ideal para momentos de convívio. A cozinha, totalmente remodelada, destaca-se pelos seus pormenores personalizados e acabamentos harmoniosos, encontrando-se totalmente equipada com placa, forno, exaustor, micro-ondas, termoacumulador e garrafeira. Este piso inclui ainda escritório (ou quarto), WC de serviço com polibã e móvel de apoio, despensa, zona de circulação e hall de entrada com roupeiro embutido. No exterior, um terraço espaçoso, com acesso direto à cozinha e sala, encontra-se equipado com barbecue, convidando a desfrutar de agradáveis momentos ao ar livre. O primeiro piso corresponde à zona privada e é composto por hall de quartos, três amplos quartos, todos com varanda e roupeiros embutidos, sendo um deles suíte com closet e WC privativo com base de duche e móvel de apoio. Conta ainda com WC de serviço equipado com banheira e também com móvel de apoio. Na cave, encontra uma ampla garagem e uma zona técnica com arrumos, com uma área total de 127 m², com acesso direto ao terraço do piso inferior e ao jardim. A moradia disponibiliza ainda um surpreendente espaço exterior que conta com um anexo e um jardim com árvores de fruto e sebes. Dispõe de iluminação exterior e sistema de rega automática gota a gota, oferecendo também a possibilidade de instalar uma piscina, criando o cenário perfeito para os períodos de lazer e confraternização com amigos e família. Ao nível dos equipamentos e do desempenho térmico, dispõe de ar condicionado em todas as divisões, aquecimento central com caldeira a pellets, termoacumulador alimentado a pellets ou eletricidade, painéis fotovoltaicos para autoconsumo com potência instalada de 1,52 kW, portões de garagem automáticos, caixilharia em PVC oscilobatente com vidros duplos e isolamento exterior ETICS (capoto), garantindo uma elevada eficiência energética. Dispõe ainda de furo de água. Uma moradia completa, ideal para quem valoriza conforto, modernidade e qualidade de vida. Consulte-nos para mais informações e agende a sua visita! __________ Porquê comprar com a UNU Rede Imobiliária? Porque a UNU tem para lhe oferecer o melhor serviço no momento de vender, comprar ou arrendar casa! Integridade, credibilidade e profissionalismo As agências imobiliárias UNU pautam o seu trabalho por estas 3 premissas. Desta forma, asseguramos a todos os nossos clientes um serviço de excelência, altamente personalizado. Acreditamos que o momento de comprar casa tem de ser um momento prazeroso e por isso estamos aqui para lhe oferecer o melhor serviço! Consultores Imobiliários profissionais e experientes A UNU Rede Imobiliária, acredita que é ao investir na formação dos seus consultores imobiliários que consegue prestar um serviço de excelência. Por isso, proporcionamos a melhor formação e os sistemas mais sofisticados no mercado para que os nossos consultores imobiliários se concentrem no que é mais importante: os nossos Clientes! Vasta carteira de imóveis As agências imobiliárias UNU têm a vantagem de ter uma visão única sobre o mercado imobiliário. Todos os dias novas oportunidades de negócio para vender, comprar ou arrendar casa são registadas no portal imobiliário UNU. Os nossos consultores imobiliários realizam diversos estudos de mercado todos os meses, com um conhecimento profundo do mercado imobiliário onde operam, para o/a poder aconselhar. Partilha para vender mais rápido Na UNU Rede Imobiliária trabalhamos em regime de partilha. Por isso, ao trabalhar connosco, conta com a garantia de que procuraremos em toda a oferta do mercado o seu imóvel ideal. 100% nacional A UNU é uma rede imobiliária 100% nacional que marca a diferença no atrativo mercado imobiliário em Portugal, e cuja posição no mercado é conquistada diariamente, pela sua diferenciação de serviço, compromisso com os clientes e cultura marcadamente nacional. UNU Rede Imobiliária O melhor serviço imobiliário para quem quer vender, comprar ou arrendar casa. unu.pt
AMI: 12348
Ref. Externa: UNU.I.2203.12348
Id: 1584936
Inicie sessão para guardar este imóvel e aceder à sua lista de favoritos em qualquer dispositivo.
420.000 €
4 Quartos
3 WCs
Área bruta : 206 m²
Descubra o refúgio perfeito para a sua família neste conjunto exclusivo de seis moradias em banda, localizadas na prestigiada freguesia da Boidobra, no concelho da Covilhã. Com uma tipologia V3+1, estas habitações foram desenhadas para quem não abdica de conforto, versatilidade e qualidade de vida. Destaques do Imóvel: Área útil 198 m2 • Tipologia V3+1 espaçosas e um escritório adicional (+1), ideal para teletrabalho ou um quarto de hóspedes. • Design Contemporâneo: Arquitetura moderna. construção em ICF, sistema de ventilação VMC; com acabamentos de alta qualidade e excelente exposição solar. • Espaço Exterior: Áreas privativas ideais para momentos de lazer em família com vista para a Serra da Estrela, piscina. A Localização Estratégica: Morar na Boidobra é ter o privilégio de respirar o ar puro do interior num ambiente acolhedor, mantendo uma ligação rápida (menos de 5 minutos) a serviços essenciais: • Educação e Cultura: Proximidade à Universidade da Beira Interior (UBI) e a núcleos culturais como o Centro Interpretativo de Artes Tradicionais da Boidobra. • Natureza e Lazer: Acesso direto a trilhos de caminhada e ciclovias nos arredores da vila, além da curta distância para as estâncias da Serra. • Conveniência: A poucos minutos do principal polo comercial da cidade e de acessos rápidos à A23. Estas moradias representam uma oportunidade única de investimento ou habitação própria numa das zonas com maior procura e valorização da região. Venha conhecer o futuro lar da sua família. (Nota: Moradia em construção; as fotos apresentadas são de maquete e podem sofrer alteração em relação ao acabamento final da mesma) Prazo previsto de entrega: Dezembro 2026 Texto para imagem principal (mapas)
AMI: 10340
Ref. Externa: 1120031
Id: 1582375
Inicie sessão para guardar este imóvel e aceder à sua lista de favoritos em qualquer dispositivo.
420.000 €
4 Quartos
3 WCs
Área bruta : 206 m²
Descubra o refúgio perfeito para a sua família neste conjunto exclusivo de seis moradias em banda, localizadas na prestigiada freguesia da Boidobra, no concelho da Covilhã. Com uma tipologia V3+1, estas habitações foram desenhadas para quem não abdica de conforto, versatilidade e qualidade de vida. Destaques do Imóvel: Área útil: 198 m2 • Tipologia V3+1 espaçosas e um escritório adicional (+1), ideal para teletrabalho ou um quarto de hóspedes. • Design Contemporâneo: Arquitetura moderna. construção em ICF, sistema de ventilação VMC; com acabamentos de alta qualidade e excelente exposição solar. • Espaço Exterior: Áreas privativas ideais para momentos de lazer em família com vista para a Serra da Estrela, piscina. A Localização Estratégica: Morar na Boidobra é ter o privilégio de respirar o ar puro do interior num ambiente acolhedor, mantendo uma ligação rápida (menos de 5 minutos) a serviços essenciais: • Educação e Cultura: Proximidade à Universidade da Beira Interior (UBI) e a núcleos culturais como o Centro Interpretativo de Artes Tradicionais da Boidobra. • Natureza e Lazer: Acesso direto a trilhos de caminhada e ciclovias nos arredores da vila, além da curta distância para as estâncias da Serra. • Conveniência: A poucos minutos do principal polo comercial da cidade e de acessos rápidos à A23. Estas moradias representam uma oportunidade única de investimento ou habitação própria numa das zonas com maior procura e valorização da região. Venha conhecer o futuro lar da sua família. (Nota: Moradia em construção; as fotos apresentadas são de maquete e podem sofrer alteração em relação ao acabamento final da mesma) Prazo previsto de entrega: Dezembro 2026
AMI: 10340
Ref. Externa: 1120061
Id: 1582357
Inicie sessão para guardar este imóvel e aceder à sua lista de favoritos em qualquer dispositivo.
420.000 €
4 Quartos
3 WCs
Área bruta : 206 m²
Descubra o refúgio perfeito para a sua família neste conjunto exclusivo de seis moradias em banda, localizadas na prestigiada freguesia da Boidobra, no concelho da Covilhã. Com uma tipologia V3+1, estas habitações foram desenhadas para quem não abdica de conforto, versatilidade e qualidade de vida. Destaques do Imóvel: Área útil: 198 m2 • Tipologia V3+1 espaçosas e um escritório adicional (+1), ideal para teletrabalho ou um quarto de hóspedes. • Design Contemporâneo: Arquitetura moderna. construção em ICF, sistema de ventilação VMC; com acabamentos de alta qualidade e excelente exposição solar. • Espaço Exterior: Áreas privativas ideais para momentos de lazer em família com vista para a Serra da Estrela, piscina. A Localização Estratégica: Morar na Boidobra é ter o privilégio de respirar o ar puro do interior num ambiente acolhedor, mantendo uma ligação rápida (menos de 5 minutos) a serviços essenciais: • Educação e Cultura: Proximidade à Universidade da Beira Interior (UBI) e a núcleos culturais como o Centro Interpretativo de Artes Tradicionais da Boidobra. • Natureza e Lazer: Acesso direto a trilhos de caminhada e ciclovias nos arredores da vila, além da curta distância para as estâncias da Serra. • Conveniência: A poucos minutos do principal polo comercial da cidade e de acessos rápidos à A23. Estas moradias representam uma oportunidade única de investimento ou habitação própria numa das zonas com maior procura e valorização da região. Venha conhecer o futuro lar da sua família. (Nota: Moradia em construção; as fotos apresentadas são de maquete e podem sofrer alteração em relação ao acabamento final da mesma) Prazo previsto de entrega: Dezembro 2026
AMI: 10340
Ref. Externa: 1120021
Id: 1582356
Inicie sessão para guardar este imóvel e aceder à sua lista de favoritos em qualquer dispositivo.
420.000 €
4 Quartos
3 WCs
Área bruta : 206 m²
Descubra o refúgio perfeito para a sua família neste conjunto exclusivo de seis moradias em banda, localizadas na prestigiada freguesia da Boidobra, no concelho da Covilhã. Com uma tipologia V3+1, estas habitações foram desenhadas para quem não abdica de conforto, versatilidade e qualidade de vida. Destaques do Imóvel: Área útil 198 m2 • Tipologia V3+1 espaçosas e um escritório adicional (+1), ideal para teletrabalho ou um quarto de hóspedes. • Design Contemporâneo: Arquitetura moderna. construção em ICF, sistema de ventilação VMC; com acabamentos de alta qualidade e excelente exposição solar. • Espaço Exterior: Áreas privativas ideais para momentos de lazer em família com vista para a Serra da Estrela, piscina. A Localização Estratégica: Morar na Boidobra é ter o privilégio de respirar o ar puro do interior num ambiente acolhedor, mantendo uma ligação rápida (menos de 5 minutos) a serviços essenciais: • Educação e Cultura: Proximidade à Universidade da Beira Interior (UBI) e a núcleos culturais como o Centro Interpretativo de Artes Tradicionais da Boidobra. • Natureza e Lazer: Acesso direto a trilhos de caminhada e ciclovias nos arredores da vila, além da curta distância para as estâncias da Serra. • Conveniência: A poucos minutos do principal polo comercial da cidade e de acessos rápidos à A23. Estas moradias representam uma oportunidade única de investimento ou habitação própria numa das zonas com maior procura e valorização da região. Venha conhecer o futuro lar da sua família. (Nota: Moradia em construção; as fotos apresentadas são de maquete e podem sofrer alteração em relação ao acabamento final da mesma) Prazo previsto de entrega: Dezembro 2026
AMI: 10340
Ref. Externa: 1120041
Id: 1582332
Inicie sessão para guardar este imóvel e aceder à sua lista de favoritos em qualquer dispositivo.
420.000 €
4 Quartos
3 WCs
Área bruta : 206 m²
Descubra o refúgio perfeito para a sua família neste conjunto exclusivo de seis moradias em banda, localizadas na prestigiada freguesia da Boidobra, no concelho da Covilhã. Com uma tipologia V3+1, estas habitações foram desenhadas para quem não abdica de conforto, versatilidade e qualidade de vida. Destaques do Imóvel: Área útil: 198 m2 • Tipologia V3+1 espaçosas e um escritório adicional (+1), ideal para teletrabalho ou um quarto de hóspedes. • Design Contemporâneo: Arquitetura moderna. construção em ICF, sistema de ventilação VMC; com acabamentos de alta qualidade e excelente exposição solar. • Espaço Exterior: Áreas privativas ideais para momentos de lazer em família com vista para a Serra da Estrela, piscina. A Localização Estratégica: Morar na Boidobra é ter o privilégio de respirar o ar puro do interior num ambiente acolhedor, mantendo uma ligação rápida (menos de 5 minutos) a serviços essenciais: • Educação e Cultura: Proximidade à Universidade da Beira Interior (UBI) e a núcleos culturais como o Centro Interpretativo de Artes Tradicionais da Boidobra. • Natureza e Lazer: Acesso direto a trilhos de caminhada e ciclovias nos arredores da vila, além da curta distância para as estâncias da Serra. • Conveniência: A poucos minutos do principal polo comercial da cidade e de acessos rápidos à A23. Estas moradias representam uma oportunidade única de investimento ou habitação própria numa das zonas com maior procura e valorização da região. Venha conhecer o futuro lar da sua família. (Nota: Moradia em construção; as fotos apresentadas são de maquete e podem sofrer alteração em relação ao acabamento final da mesma) Prazo previsto de entrega: Dezembro 2026
AMI: 10340
Ref. Externa: 1120051
Id: 1582289
Inicie sessão para guardar este imóvel e aceder à sua lista de favoritos em qualquer dispositivo.
420.000 €
4 Quartos
3 WCs
Área bruta : 206 m²
Descubra o refúgio perfeito para a sua família neste conjunto exclusivo de seis moradias em banda, localizadas na prestigiada freguesia da Boidobra, no concelho da Covilhã. Com uma tipologia V3+1, estas habitações foram desenhadas para quem não abdica de conforto, versatilidade e qualidade de vida. Destaques do Imóvel: Área útil: 198 m2 • Tipologia V3+1 espaçosas e um escritório adicional (+1), ideal para teletrabalho ou um quarto de hóspedes. • Design Contemporâneo: Arquitetura moderna. construção em ICF, sistema de ventilação VMC; com acabamentos de alta qualidade e excelente exposição solar. • Espaço Exterior: Áreas privativas ideais para momentos de lazer em família com vista para a Serra da Estrela, piscina. A Localização Estratégica: Morar na Boidobra é ter o privilégio de respirar o ar puro do interior num ambiente acolhedor, mantendo uma ligação rápida (menos de 5 minutos) a serviços essenciais: • Educação e Cultura: Proximidade à Universidade da Beira Interior (UBI) e a núcleos culturais como o Centro Interpretativo de Artes Tradicionais da Boidobra. • Natureza e Lazer: Acesso direto a trilhos de caminhada e ciclovias nos arredores da vila, além da curta distância para as estâncias da Serra. • Conveniência: A poucos minutos do principal polo comercial da cidade e de acessos rápidos à A23. Estas moradias representam uma oportunidade única de investimento ou habitação própria numa das zonas com maior procura e valorização da região. Venha conhecer o futuro lar da sua família. (Nota: Moradia em construção; as fotos apresentadas são de maquete e podem sofrer alteração em relação ao acabamento final da mesma) Prazo previsto de entrega: Dezembro 2026
AMI: 10340
Ref. Externa: 1120071
Id: 1582290
Inicie sessão para guardar este imóvel e aceder à sua lista de favoritos em qualquer dispositivo.
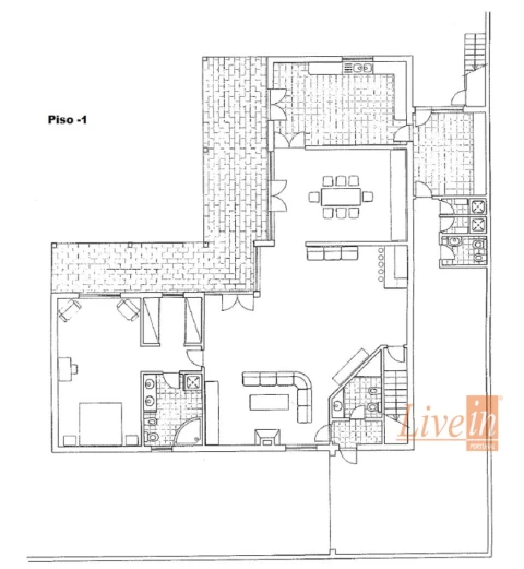
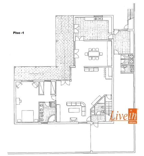
1.550.000 €
5 Quartos
5 WCs
Área bruta : 590 m²
Na Covilhã, o seu refúgio de sonho espera por si. Já se imaginou a viver numa moradia encantadora, numa zona muito calma, onde a harmonia, o conforto e o lazer se encontram na sua plenitude. Apresentamos esta moradia de dois pisos, com 590 m² de área bruta, inserida num terreno de 1949 m², situada na tranquila zona da Quinta do Sol, no concelho da Covilhã. Uma oportunidade para quem procura conforto, privacidade e qualidade de vida. Apresentamos uma oportunidade única de adquirir um imóvel que oferece tudo o que a sua família sempre desejou. A moradia contempla uma piscina convidativa e um campo de ténis, perfeitos para, nos dias de sol, conviver com a família e amigos num oásis de sonho privativo. O imóvel encontra-se inserido num ambiente calmo e rodeado de natureza, a 5 minutos do centro da Covilhã e a 20 minutos da Torre, na Serra da Estrela. Esta proximidade com a Serra da Estrela é garantia de uma vida ao ar livre, em longas caminhadas. Porque espera? Venha visitar esta que pode ser a sua morada de sonho. Troque o morar pelo viver. Composição do Imóvel Piso 0: Sala de jantar, sala de estar, cozinha, casa de banho, uma suíte, lavandaria, salão de jogos, salão de festas, garagem, alpendre semi-fechado em vidro temperado, zona de refeições exterior com churrasqueira, jardim, piscina e campo de ténis. Piso 1: Hall, dois quartos, uma suíte, uma casa de banho, uma sala e um escritório. Piso 2: Sótão em open space. Extras / Equipamentos Cozinha totalmente equipada. Aquecimento central a gasóleo. Recuperador de calor na lareira da sala. Alarme. Ar condicionado. Furo com aproveitamento das águas para a piscina e rega. Descrição das Redondezas Bons acessos rodoviários e proximidade com: Centro da cidade. Farmácias. Polícia. Escolas. Supermercados. *As informações apresentadas neste anúncio são de natureza meramente informativa não podendo ser consideradas vinculativas, não dispensa a consulta e confirmação das mesmas junto da mediadora. In Covilhã, Your Dream Retreat Awaits You. Have you ever imagined living in a charming home, in a very peaceful area where harmony, comfort, and leisure meet in perfect balance? We present this beautiful two-story villa with a gross area of 590 m², set on a 949 m² plot, located in the quiet Quinta do Sol area, in the municipality of Covilhã. An opportunity for those seeking comfort, privacy, and quality of life. This is a unique opportunity to acquire a property that offers everything your family has always dreamed of. The villa features an inviting swimming pool and a tennis court, perfect for enjoying sunny days with family and friends a true private oasis. The property is set in a calm, natural environment, just 5 minutes from the center of Covilhã and 20 minutes from Torre, in the Serra da Estrela mountain range. Its proximity to Serra da Estrela guarantees a lifestyle surrounded by nature, ideal for long walks and outdoor living. What are you waiting for? Come visit what could be your dream home. Trade living for truly experiencing life. Property Layout Ground Floor: Dining room, living room, kitchen, bathroom, one suite, laundry room, games room, party room, garage, semi-enclosed porch with tempered glass, outdoor dining area with barbecue, garden, swimming pool, and tennis court. First Floor: Hallway, two bedrooms, one suite, one bathroom, one living room, and one office. Second Floor: Open-space attic. Extras / Equipment Fully equipped kitchen. Central heating (diesel). Fireplace with heat recovery system. Alarm system. Air conditioning. Water borehole for pool and garden irrigation. Surroundings Excellent road access and close proximity to: City center. Pharmacies. Police station. Schools. Supermarkets. The information provided in this listing is for informational purposes only and cannot be considered binding. Verification and confirmation with the real estate agency are recommended.
AMI: 9871
Ref. Externa: 9839JF
Id: 1412932
Inicie sessão para guardar este imóvel e aceder à sua lista de favoritos em qualquer dispositivo.
150.000 €
1 WCs
Área bruta : 360 m²
Quinta com 2,5 Hectares – Boidobra, Covilhã Oportunidade única junto ao Rio Zêzere! Situada na freguesia da Boidobra, a poucos minutos da cidade da Covilhã, esta magnífica quinta com 2,5 hectares oferece o equilíbrio perfeito entre natureza, privacidade e proximidade urbana. A propriedade inclui uma casa em pedra de 3 pisos, com cerca de 120 m² por piso, atualmente em estado de ruína, ideal para reconstrução ou projeto turístico/rural. O edifício preserva o encanto rústico das construções tradicionais da Beira Interior, proporcionando uma base sólida para uma reabilitação de carácter autêntico. O terreno apresenta cultura arvense fértil, um poço com água abundante e excelentes acessos, permitindo uma utilização agrícola, recreativa ou de investimento turístico. A quinta está localizada próxima do Rio Zêzere, oferecendo um ambiente natural tranquilo, vistas deslumbrantes sobre a serra e o vale, e o conforto de estar a poucos minutos do centro da Covilhã, onde encontra todos os serviços e comodidades. Se procura um refúgio na natureza, um projeto de turismo rural ou simplesmente um investimento com grande potencial, esta quinta é uma oportunidade rara na região.
AMI: 3469
Ref. Externa: 14368
Id: 1408148
Inicie sessão para guardar este imóvel e aceder à sua lista de favoritos em qualquer dispositivo.
335.000 €
4 Quartos
3 WCs
Área bruta : 286 m²
Se procura uma moradia nova, moderna, com acabamentos de qualidade e possibilidade de personalização ao seu gosto esta é a oportunidade ideal para si! Apresentamos uma moradia geminada T4 em projeto aprovado, localizada numa zona residencial calma e soalheira da Covilhã, apenas a 5 minutos da zona baixa da cidade. Áreas do Imóvel: - Área do Lote: 349,60 m² - Área de Implantação: 110 m² - Área Bruta de Construção: 285,50 m² - Área Bruta Dependente (garagem, arrumos): 20 m² Distribuição Funcional: Rés-do-chão - Hall de entrada/circulação - Sala e cozinha em conceito open-space - 1 Quarto/escritório - Casa de banho completa - Arrumos Piso Superior - 3 Quartos com roupeiros embutidos (um deles em suíte) - Todos os quartos com acesso a varanda - Casa de banho de apoio Exterior: - Zonas de lazer na frente e traseiras da moradia - Espaços verdes ideais para refeições ao ar livre, jardim ou zona de descanso - Estacionamento com cobertura Equipamentos e Acabamentos de Qualidade: - Arquitetura moderna e funcional - Revestimento exterior com sistema de capoto para isolamento térmico - Caixilharia oscilo-batente com corte térmico e acústico - Sistema de AQS com bomba de calor - Painéis fotovoltaicos para produção de energia - Ar condicionado multi-split em todas as divisões - Possibilidade de escolher materiais e acabamentos ao seu gosto Vantagens da Compra em Projeto: - Personalização de interiores e acabamentos - Acompanhamento de todas as fases da obra - Pagamento faseado conforme evolução da construção - Garantia de qualidade e cumprimento do caderno de encargos Contacte-nos para conhecer: - O projeto em detalhe - O caderno de encargos - As opções de personalização disponíveis Não perca esta oportunidade única de construir a sua nova casa à medida, num local calmo, moderno e perto de tudo! __________ Porquê comprar com a UNU Rede Imobiliária? Porque a UNU tem para lhe oferecer o melhor serviço no momento de vender, comprar ou arrendar casa! Integridade, credibilidade e profissionalismo As agências imobiliárias UNU pautam o seu trabalho por estas 3 premissas. Desta forma, asseguramos a todos os nossos clientes um serviço de excelência, altamente personalizado. Acreditamos que o momento de comprar casa tem de ser um momento prazeroso e por isso estamos aqui para lhe oferecer o melhor serviço! Consultores Imobiliários profissionais e experientes A UNU Rede Imobiliária, acredita que é ao investir na formação dos seus consultores imobiliários que consegue prestar um serviço de excelência. Por isso, proporcionamos a melhor formação e os sistemas mais sofisticados no mercado para que os nossos consultores imobiliários se concentrem no que é mais importante: os nossos Clientes! Vasta carteira de imóveis As agências imobiliárias UNU têm a vantagem de ter uma visão única sobre o mercado imobiliário. Todos os dias novas oportunidades de negócio para vender, comprar ou arrendar casa são registadas no portal imobiliário UNU. Os nossos consultores imobiliários realizam diversos estudos de mercado todos os meses, com um conhecimento profundo do mercado imobiliário onde operam, para o/a poder aconselhar. Partilha para vender mais rápido Na UNU Rede Imobiliária trabalhamos em regime de partilha. Por isso, ao trabalhar connosco, conta com a garantia de que procuraremos em toda a oferta do mercado o seu imóvel ideal. 100% nacional A UNU é uma rede imobiliária 100% nacional que marca a diferença no atrativo mercado imobiliário em Portugal, e cuja posição no mercado é conquistada diariamente, pela sua diferenciação de serviço, compromisso com os clientes e cultura marcadamente nacional. UNU Rede Imobiliária O melhor serviço imobiliário para quem quer comprar, vender ou arrendar casa. unu.pt
AMI: 12348
Ref. Externa: UNU.I.2141.12348
Id: 1366664
Inicie sessão para guardar este imóvel e aceder à sua lista de favoritos em qualquer dispositivo.
335.000 €
4 Quartos
3 WCs
Área bruta : 286 m²
Se procura uma moradia nova, moderna, com acabamentos de qualidade e possibilidade de personalização ao seu gosto esta é a oportunidade ideal para si! Apresentamos uma moradia geminada T4 em projeto aprovado, localizada numa zona residencial calma e soalheira da Covilhã, apenas a 5 minutos da zona baixa da cidade. Áreas do Imóvel: - Área do Lote: 349,60 m² - Área de Implantação: 110 m² - Área Bruta de Construção: 285,50 m² - Área Bruta Dependente (garagem, arrumos): 20 m² Distribuição Funcional: Rés-do-chão - Hall de entrada/circulação - Sala e cozinha em conceito open-space - 1 Quarto/escritório - Casa de banho completa - Arrumos Piso Superior - 3 Quartos com roupeiros embutidos (um deles em suíte) - Todos os quartos com acesso a varanda - Casa de banho de apoio Exterior: - Zonas de lazer na frente e traseiras da moradia - Espaços verdes ideais para refeições ao ar livre, jardim ou zona de descanso - Estacionamento com cobertura Equipamentos e Acabamentos de Qualidade: - Arquitetura moderna e funcional - Revestimento exterior com sistema de capoto para isolamento térmico - Caixilharia oscilo-batente com corte térmico e acústico - Sistema de AQS com bomba de calor - Painéis fotovoltaicos para produção de energia - Ar condicionado multi-split em todas as divisões - Possibilidade de escolher materiais e acabamentos ao seu gosto Vantagens da Compra em Projeto: - Personalização de interiores e acabamentos - Acompanhamento de todas as fases da obra - Pagamento faseado conforme evolução da construção - Garantia de qualidade e cumprimento do caderno de encargos Contacte-nos para conhecer: - O projeto em detalhe - O caderno de encargos - As opções de personalização disponíveis Não perca esta oportunidade única de construir a sua nova casa à medida, num local calmo, moderno e perto de tudo! __________ Porquê comprar com a UNU Rede Imobiliária? Porque a UNU tem para lhe oferecer o melhor serviço no momento de vender, comprar ou arrendar casa! Integridade, credibilidade e profissionalismo As agências imobiliárias UNU pautam o seu trabalho por estas 3 premissas. Desta forma, asseguramos a todos os nossos clientes um serviço de excelência, altamente personalizado. Acreditamos que o momento de comprar casa tem de ser um momento prazeroso e por isso estamos aqui para lhe oferecer o melhor serviço! Consultores Imobiliários profissionais e experientes A UNU Rede Imobiliária, acredita que é ao investir na formação dos seus consultores imobiliários que consegue prestar um serviço de excelência. Por isso, proporcionamos a melhor formação e os sistemas mais sofisticados no mercado para que os nossos consultores imobiliários se concentrem no que é mais importante: os nossos Clientes! Vasta carteira de imóveis As agências imobiliárias UNU têm a vantagem de ter uma visão única sobre o mercado imobiliário. Todos os dias novas oportunidades de negócio para vender, comprar ou arrendar casa são registadas no portal imobiliário UNU. Os nossos consultores imobiliários realizam diversos estudos de mercado todos os meses, com um conhecimento profundo do mercado imobiliário onde operam, para o/a poder aconselhar. Partilha para vender mais rápido Na UNU Rede Imobiliária trabalhamos em regime de partilha. Por isso, ao trabalhar connosco, conta com a garantia de que procuraremos em toda a oferta do mercado o seu imóvel ideal. 100% nacional A UNU é uma rede imobiliária 100% nacional que marca a diferença no atrativo mercado imobiliário em Portugal, e cuja posição no mercado é conquistada diariamente, pela sua diferenciação de serviço, compromisso com os clientes e cultura marcadamente nacional. UNU Rede Imobiliária O melhor serviço imobiliário para quem quer comprar, vender ou arrendar casa. unu.pt
AMI: 12348
Ref. Externa: UNU.I.2142.12348
Id: 1366665
Inicie sessão para guardar este imóvel e aceder à sua lista de favoritos em qualquer dispositivo.
250.000 €
8 Quartos
3 WCs
Área bruta : 762 m²
Moradia Isolada T8 para reabilitar, na Covilhã. Moradia isolada com áreas surpreendentes, totalizando uma área bruta de construção de 762 m2, inserida num terreno com 1400 m2. A propriedade dispõe dum agradável jardim na parte frontal da moradia e de uma área de lazer com piscina nas traseiras, beneficiando duma excelente exposição solar e de vistas desafogadas para toda a Cova da Beira. A moradia distribui-se por três pisos correspondendo o último a um sótão habitável, já compartimentado, com janela e varanda, e o rés do chão a um espaço amplo destinado a garagem, armazém ou outro tipo de aproveitamento. Ótimo investimento! Consulte-nos para mais informações e marque a sua visita. __________ Porquê comprar com a UNU Rede Imobiliária? Porque a UNU tem para lhe oferecer o melhor serviço no momento de vender, comprar ou arrendar casa! Integridade, credibilidade e profissionalismo As agências imobiliárias UNU pautam o seu trabalho por estas 3 premissas. Desta forma, asseguramos a todos os nossos clientes um serviço de excelência, altamente personalizado. Acreditamos que o momento de comprar casa tem de ser um momento prazeroso e por isso estamos aqui para lhe oferecer o melhor serviço! Consultores Imobiliários profissionais e experientes A UNU Rede Imobiliária , acredita que é ao investir na formação dos seus consultores imobiliários que consegue prestar um serviço de excelência. Por isso, proporcionamos a melhor formação e os sistemas mais sofisticados no mercado para que os nossos consultores imobiliários se concentrem no que é mais importante: os nossos Clientes! Vasta carteira de imóveis As agências imobiliárias UNU têm a vantagem de ter uma visão única sobre o mercado imobiliário. Todos os dias novas oportunidades de negócio para vender, comprar ou arrendar casa são registadas no portal imobiliário UNU. Os nossos consultores imobiliários realizam diversos estudos de mercado todos os meses, com um conhecimento profundo do mercado imobiliário onde operam, para o/a poder aconselhar. Partilha para vender mais rápido Na UNU Rede Imobiliária trabalhamos em regime de partilha por isso, ao trabalhar connosco, conta com a garantia de que procuraremos em toda a oferta do mercado o seu imóvel ideal. 100% nacional A UNU é uma rede imobiliária 100% nacional que marca a diferença no atrativo mercado imobiliário em Portugal, e cuja posição no mercado é conquistada diariamente, pela sua diferenciação de serviço, compromisso com os clientes e cultura marcadamente nacional. UNU Rede Imobiliária O melhor serviço imobiliário para quem quer comprar casa, vender casa ou arrendar casa. unu.pt
AMI: 12348
Ref. Externa: UNU.I.1749.12348
Id: 1206396
Inicie sessão para guardar este imóvel e aceder à sua lista de favoritos em qualquer dispositivo.
450.000 €
5 Quartos
5 WCs
Área bruta : 409 m²
Comodidade, elegância e modernidade, são atributos desta fantástica moradia familiar localizada numa zona residencial privilegiada na zona baixa da Covilhã! Composto por uma espaçosa garagem para cinco viaturas na cave, rés-do chão e primeiro andar, destinados a habitação, e uma agradável zona exterior de lazer, o imóvel distingue-se pela utilização de materiais de construção de elevada qualidade e pela excelência dos acabamentos, nomeadamente ao nível da iluminação, da segurança, da comunicação e da climatização. Rés-do-chão composto por: - Hall de entrada; - Sala comum; - Cozinha mobilada e totalmente equipada; - Lavandaria; - Suite com closet; - Instalação sanitária. Primeiro andar composto por um quarto e três suites, distinguindo-se: - Uma suite com closet e acesso a varanda; - Duas suites com roupeiros embutidos, igualmente com varanda. Zona exterior e de lazer: - Jardim com relva natural; - Barbeque; - Zona de refeições. Ao nível do conforto térmico, a moradia apresenta estores térmicos elétricos e encontra-se equipada com ar condicionado em todas as divisões do primeiro andar, dispondo de pré-instalação no rés-do-chão. Inclui ainda um sistema de aquecimento de águas com recurso à lareira e a uma caldeira a pellets com depósito de 300 litros. Venha conhecer esta magnífica moradia e verifique como é possível ter qualidade de vida numa das zonas mais requisitadas da cidade. A sua casa de sonho é UNU!! Contacte-nos para mais informações e agende a sua visita. __________ Porquê comprar com a UNU Rede Imobiliária? Porque a UNU tem para lhe oferecer o melhor serviço no momento de vender, comprar ou arrendar casa! Integridade, credibilidade e profissionalismo As agências imobiliárias UNU pautam o seu trabalho por estas 3 premissas. Desta forma, asseguramos a todos os nossos clientes um serviço de excelência, altamente personalizado. Acreditamos que o momento de comprar casa tem de ser um momento prazeroso e por isso estamos aqui para lhe oferecer o melhor serviço! Consultores Imobiliários profissionais e experientes A UNU Rede Imobiliária, acredita que é ao investir na formação dos seus consultores imobiliários que consegue prestar um serviço de excelência. Por isso, proporcionamos a melhor formação e os sistemas mais sofisticados no mercado para que os nossos consultores imobiliários se concentrem no que é mais importante: os nossos Clientes! Vasta carteira de imóveis As agências imobiliárias UNU têm a vantagem de ter uma visão única sobre o mercado imobiliário. Todos os dias novas oportunidades de negócio para vender, comprar ou arrendar casa são registadas no portal imobiliário UNU. Os nossos consultores imobiliários realizam diversos estudos de mercado todos os meses, com um conhecimento profundo do mercado imobiliário onde operam, para o/a poder aconselhar. Partilha para vender mais rápido Na UNU Rede Imobiliária trabalhamos em regime de partilha. Por isso, ao trabalhar connosco, conta com a garantia de que procuraremos em toda a oferta do mercado o seu imóvel ideal. 100% nacional A UNU é uma rede imobiliária 100% nacional que marca a diferença no atrativo mercado imobiliário em Portugal, e cuja posição no mercado é conquistada diariamente, pela sua diferenciação de serviço, compromisso com os clientes e cultura marcadamente nacional. UNU Rede Imobiliária O melhor serviço imobiliário para quem quer comprar, vender ou arrendar casa. unu.p
AMI: 12348
Ref. Externa: UNU.I.1832.12348
Id: 1206394
Inicie sessão para guardar este imóvel e aceder à sua lista de favoritos em qualquer dispositivo.
235.000 €
2 Quartos
Área bruta : 256 m²
Esta moradia nova de tipologia T2, localizada na Freguesia da Boidobra, encontra-se em fase de acabamentos e oferece uma localização privilegiada junto ao Parque de merendas, escola primária, Junta de Freguesia, comércio e restauração.Com 3 pisos, a moradia dispõe de uma garagem no R/ch com acesso direto à habitação, no 1º piso encontra-se a cozinha, sala e casa de banho, enquanto no 2º piso existem 2 quartos com casa de banho.Equipada com ar condicionado e bomba de calor, esta habitação oferece todo o conforto necessário para uma vida moderna e funcional. A sua localização estratégica permite fácil acesso à A23, Nacional 18 e aos centros urbanos de Covilhã e Castelo Branco.Uma excelente oportunidade de investimento, negócio ou venda, esta moradia é ideal para quem procura qualidade de vida num ambiente tranquilo e com todas as comodidades ao seu alcance.Boidobra é uma vila portuguesa que é sede da Freguesia de Boidobra do Município de Covilhã, freguesia com 16,26 km² de área e 3167 habitantes (censo de 2021), tendo, assim, uma densidade populacional de 194,8 hab. /km².Com origens referenciadas ao século XII, a povoação de Boidobra foi elevada à categoria de vila em 20 de maio de 1993.ToponímiaA origem mais provável do nome Boidobra será o topónimo céltico Botóbriga, que, por sinal, terá sido o nome da localidade durante o período celtibero.Há uma teoria minoritária de que a origem do nome poderá antes ser o nome árabe "Abu ad-Dobra", que teria pertencido a um general mouro, cuja passagem pelo território que se viria a tornar em Boidobra é algo incerta, se não mesmo apócrifa.
AMI: 22553
Ref. Externa: VI107
Id: 885288
Inicie sessão para guardar este imóvel e aceder à sua lista de favoritos em qualquer dispositivo.
Este agente é especialista nesta zona:
Inicie sessão para ocultar este imóvel das suas pesquisas e manter a sua lista de resultados organizada.
Guardar favoritos
Este imóvel foi guardados nos seus favoritos com sucesso.
Para poder guardar pesquisa deverá ter a sua sessão iniciada.
Caso não tenha uma conta, deverá criar uma.
A sua pesquisa foi guardada com sucesso!
© Copyright 2023 | CASACERTA. All rights reserved
Este site utiliza cookies. Ao navegar no site estará a consentir a sua utilização.
Para mais informações sobre os cookies pode consultar a
política de privacidade.