Lista
Comprar
Arrendar
3 Quartos
2 WCs
Área útil : 79 m²
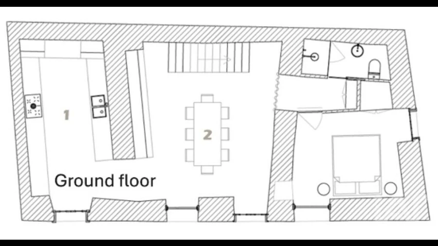
Moradia de 158 metros quadrados inserida num lote de 810 metros quadrados, constituída por dois pisos. No piso térreo: dois quartos com roupeiros em madeira embutidos e janelas grandes, uma casa de banho ampla com janela, cabine de duche espaçosa, lavatório com pedra de mármore e um móvel com muita arrumação. Tem ainda uma sala e cozinha amplas em open space, com muito boa entrada de luz. A porta da cozinha dá acesso a uma zona exterior composta por uma área de refeição com telheiro, churrasqueira e forno a lenha. Os dois pisos têm comunicação por um hall, com escadas de madeira de ótima qualidade com aproveitamento do vão de escada para zona de arrumações. No piso superior: um quarto com janela, uma casa de banho com base de duche e lavatório com móvel de arrumação. Neste piso, existe uma sala muito ampla com janela e aproveitamento de esconsos com portas em madeira, para mais uma área de arrumação. Todas as janelas da casa tem vidros duplos, portadas e caixilharia de boa qualidade. Na zona exterior: um lote de terreno com plantação de árvores de fruto e uma garagem fechada. A casa foi pensada para ser um retiro de férias, numa zona muito calma e sossegada, inserida na aldeia do Bravo, possui café e mercearia. Pode também ser casa de habitação uma vez que se encontra a 7 minutos da vila de Pedrógão Pequeno e Pedrógão Grande, onde dispões de mercado semanal, supermercados, centro de saúde, farmácias, escolas, todos os serviços públicos, hotéis, restaurantes e bares. Acesso à IC8 a 5 minutos, com direção a Sertã - Castelo Branco, ou Ansião - Pombal. Nesta vila pode ainda visitar a Barragem do Cabril, muito frequentada para a prática de pesca desportiva, pesca embarcada ou recreação. Se procura sossego e ar puro esta moradia é excelente para si. Marque já a sua visita!
AMI: 15950
Ref. Externa: AA324
Id: 1676818
Inicie sessão para guardar este imóvel e aceder à sua lista de favoritos em qualquer dispositivo.
2 Quartos
2 WCs
Área útil : 72 m²
? Moradia de Aldeia com Quintal e Vistas Panorâmicas Descubra o encanto desta acolhedora moradia situada no coração de Pedrógão Pequeno, perfeita para quem procura tranquilidade e qualidade de vida. No rés-do-chão, encontrará 2 divisões versáteis, ideais para sala de estar e cozinha, enquanto o primeiro andar oferece 4 divisões que podem ser adaptadas a quartos, escritório ou áreas de lazer. O exterior é um verdadeiro refúgio: quintal repleto de árvores de fruto, forno tradicional para momentos gastronómicos inesquecíveis e um terraço panorâmico com vistas deslumbrantes sobre a paisagem envolvente. Seja para casa de férias ou habitação permanente, esta propriedade oferece o equilíbrio perfeito entre conforto, autenticidade e natureza. ? Não perca a oportunidade — marque já a sua visita e apaixone-se por este pedaço de paraíso!
AMI: 12351
Ref. Externa: AB - 65916
Id: 1674482
Inicie sessão para guardar este imóvel e aceder à sua lista de favoritos em qualquer dispositivo.
3 Quartos
1 WCs
Área bruta : 126 m²
Duas Habitações em Pedrógão Pequeno Apresento-lhe este interessante conjunto imobiliário situado em Pedrógão Pequeno, freguesia da Sertã, concelho de Castelo Branco, composto por duas habitações distintas, ambas em construção tradicional de pedra, ideal para habitação própria, casa de férias ou investimento. - Habitação Principal Distribuída por 2 pisos, é onde se encontra a zona habitacional principal, composta por: - 3 quartos; - 1 casa de banho; - Cozinha funcional; - Sala de jantar; - Soalho em madeira em estado razoável de conservação; - Excelente exposição solar em todas as divisões; - Segunda Habitação: Habitação independente atualmente utilizada como garagem, com enorme potencial para ser transformada como segunda habitação para acolher hospedes com ou sem fim lucrativo ou também como: - Escritório; - Estúdio; - Espaço de apoio à habitação principal; Este segundo edifício dispõe ainda de um agradável terraço, ideal para momentos de lazer ao ar livre. Tem ainda: - Acessos e estacionamento; - Entrada pela fachada principal da habitação principal; - Acesso traseiro direto à segunda habitação/garagem; - Lugar de estacionamento adicional; - Infraestruturas: - Ligação a esgotos - Água da rede - Eletricidade Localização e acessos: Localizado em Pedrógão Pequeno, com rápidos acessos ao IC8, permitindo ligação facilitada a várias autoestradas da região, com deslocações cómodas para Coimbra, Castelo Branco, Leiria e Lisboa. Pedrógão Pequeno é uma vila histórica junto ao Rio Zêzere, reconhecida pelas praias fluviais, trilhos naturais e elevada qualidade de vida. Uma oportunidade única para quem procura duas habitações no mesmo conjunto, com versatilidade e grande potencial. Marque já a sua visita! #ref: 772114
AMI: 11220
Ref. Externa: 772114
Id: 1589378
Inicie sessão para guardar este imóvel e aceder à sua lista de favoritos em qualquer dispositivo.
2 Quartos
1 WCs
Área bruta : 48 m²
Propriedade urbana isolada para renovação ou reconstrução | Pedrógão Pequeno Situada numa localização tranquila e privada perto de Pedrógão Pequeno, esta propriedade isolada oferece uma oportunidade rara para uma renovação completa ou reconstrução no coração da natureza. Acessível através de uma pequena estrada florestal, o terreno tem quase 12 000 m², parcialmente coberto por pinheiros maduros, proporcionando privacidade, sombra e um ambiente verdadeiramente natural. A propriedade beneficia de um poço, tornando-a ideal para quem procura um estilo de vida fora da rede ou autossuficiente. Sem vizinhos próximos e parcialmente rodeada por floresta, este é um projeto perfeito para amantes da natureza, construtores ecológicos ou qualquer pessoa que pretenda criar um refúgio rural no centro de Portugal. Características principais: • Propriedade urbana isolada • Projeto de renovação ou reconstrução completa (sujeito a aprovação municipal) • Aproximadamente 12.000 m² de terreno • Parcialmente arborizado com pinheiros • Poço • Ambiente privado • Ideal para uma vida fora da rede • Localizado perto de Pedrógão Pequeno Uma oportunidade fantástica para criar uma casa sustentável, um refúgio de férias ou um projeto de investimento num ambiente natural tranquilo. #ref: 787038
AMI: 11220
Ref. Externa: 787038
Id: 1564724
Inicie sessão para guardar este imóvel e aceder à sua lista de favoritos em qualquer dispositivo.
Área bruta : 192 m²
Moradia em Pedra e terreno Localizado na aldeia do Bravo - Pedrógão pequeno temos esta moradia toda em pedra de xisto para recuperação total. Parcialmente remodelada com zonas onde o telhado está como novo , a moradia apresenta detalhes de uma renovação passada mas que agora pode ser concluída ao gosto do comprador. Assente num terreno com 3000 m2 com poço e uma nascente. O acesso faz-se a partir de estrada de alcatrão e descendo por um caminho vamos dar à parte superior da moradia , pela direita descemos para o nível inferior onde está a entrada da moradia , rodeada por uma linda e bem preservada eira toda em laje de xisto. Tanto a moradia como o terreno estão virados a nascente/sul , perfeito para quem procura um estilo de vida sustentável com energias renováveis, este imóvel é perfeito para uma habitação off-grid. #ref: 757028
AMI: 11220
Ref. Externa: 757028
Id: 1497302
Inicie sessão para guardar este imóvel e aceder à sua lista de favoritos em qualquer dispositivo.
1 Quartos
1 WCs
Área bruta : 70 m²
Casa de habitação com 2 pisos, em pedra de xisto, no centro da aldeia, com 35m2. Excelente preço!
AMI: 9234
Ref. Externa: 001-1555
Id: 1358315
Inicie sessão para guardar este imóvel e aceder à sua lista de favoritos em qualquer dispositivo.
1 Quartos
1 WCs
Área bruta : 48 m²
Quintinha constituída por terreno e um prédio urbano. O prédio urbano é uma casa de habitação em pedra para reconstruir. O terreno composto com terra para cultivo, oliveiras, videiras e algumas árvores de fruto. Possui também um poço e um tanque. Com viabilidade para construção. A água e electricidade da rede pública passam junto à casinha. Situa-se na aldeia do Casal dos Bufos que dista cerca de 2 Km da Vila de Pedrógão Pequeno, com bons acessos, uma zona calma e paradisíaca. Pedrógão Pequeno é uma pequena vila, com muito valor turístico, um local muito bonito, próximo da Barragem do Cabril, do Monte da Sr. ª da Confiança, uma vila onde se pode explorar o belo da natureza.. . Marque já a sua visita!.
AMI: 9234
Ref. Externa: 001-666
Id: 1351412
Inicie sessão para guardar este imóvel e aceder à sua lista de favoritos em qualquer dispositivo.
2 Quartos
3 WCs
Área bruta : 75 m²
Espaço rústico que inclui casa móvel e anexos, em terreno amplo de 1900 m² + terreno com 2020 m² composto por um grande olival, ideal para quem busca tranquilidade e contato com a natureza. A casa móvel é composta por 2 quartos, ambos com casa de banho privativa, um deles maior que o outro (foto onde se vê uma cama e um sofá) e cozinha. Tanto a cozinha como o quarto maior têm portas com acesso ao terraço de fora. As casas são de metal por fora e isoladas com madeira de pinho por dentro, mantendo assim uma temperatura amena em toda a altura do ano. Estruturas Adicionais: - Anexos Exteriores: Um dos anexos possui uma cozinha e casa de banho, tornando-o prático para recepções e atividades ao ar livre. - Horta: O terreno conta com uma horta, oliveiras e diversas árvores de fruto, proporcionando uma experiência única de vida no campo. - Garagem: Espaço coberto para estacionar o seu veículo. - Exterior: O espaço externo é pavimentado, garantindo fácil acesso à horta e ao olival, onde pode desfrutar da beleza das oliveiras e das árvores frutíferas. Nota - Os bungalows contam com água de um furo e eletricidade de rede, a água em casa é aquecida através de um cilindro elétrico e a cozinha de serviço dos anexos funciona com botija de gás.
AMI: 9234
Ref. Externa: 002-05
Id: 1346890
Inicie sessão para guardar este imóvel e aceder à sua lista de favoritos em qualquer dispositivo.
10 Quartos
1 WCs
Área bruta : 937 m²
Descubra esta magnífica mansão em xisto com paredes de pedra natural com cerca de 60 cm de espessura, uma verdadeira joia centenária localizada no centro da pitoresca aldeia de Bravo. Com áreas generosas e vários quartos, esta casa de dois andares oferece um espaço ideal para criar memórias inesquecíveis. O piso inferior possui um grande número de espaços de armazenamento e anexos, enquanto o piso superior é dedicado à área de estar, incluindo uma cozinha e casa de banho antigas, onde tetos de madeira, antiguidades encantadoras e portas tradicionais têm o seu charme especial. A casa tem uma varanda espaçosa e coberta com vista para o mercado e um grande terraço com um forno de pão direcionado para os anexos e jardim. Além das instalações de armazenamento, como por exemplo uma sala com gigantescas ânforas de azeite e uma adega, a cave possui um grande portão que permitia a passagem de carroças puxadas por cavalos ao longo de toda a extensão da propriedade. A propriedade destaca-se pelo seu vasto jardim repleto de árvores de fruto e oliveiras, proporcionando o cenário perfeito para aqueles que apreciam a natureza. Com um grande poço e várias áreas para remodelação, existe um imenso potencial para transformar este espaço num verdadeiro paraíso. As vistas deslumbrantes do Bravo tornam cada momento aqui ainda mais especial. Além disso, a propriedade inclui uma adega, bacias de água, antigos estábulos de xisto ideais para a criação de uma estufa, bem como vários armazéns - um deles com um grande terraço com vista para o jardim e as montanhas circundantes - e uma garagem, ideal para transformar em alojamento, receber amigos ou família ou criar um alojamento para férias. O jardim é um espetáculo por si só, com uma variedade de árvores de fruto (nogueiras, romãzeiras, macieiras, pereiras, pessegueiros, cerejeiras, tangerineiras, figueiras, videiras) e oliveiras que podem proporcionar uma colheita anual de 300-400 kg de azeitonas, resultando em 30-40 litros de azeite em anos bons. Esta propriedade, que outrora foi chamada de “o palácio”, tem uma rica história ligada a uma família influente na região. Ao lado da casa, há um café/minimercado e uma das fontes de água potável da aldeia. Embora necessite de algumas obras de restauração, a casa já teve acesso a água e eletricidade no passado, e a disponibilidade de fibra ótica na aldeia garante conectividade moderna. Com 937 m² de área bruta e 526 m² de área útil, esta é uma oportunidade única para quem procura uma casa com história e potencial. Venha descobrir este lugar encantador, crie a sua própria visão para esta joia e deixe-se envolver pela sua magia!
AMI: 9234
Ref. Externa: 001-2088
Id: 1341939
Inicie sessão para guardar este imóvel e aceder à sua lista de favoritos em qualquer dispositivo.
6 Quartos
Área útil : 176 m²
Esta magnífica moradia em Pedrógão Pequeno é uma oportunidade única para quem procura uma combinação perfeita entre o charme senhorial e o conforto moderno. Distribuída por dois pisos, a casa oferece uma ampla garagem com espaço para um carro e ainda um espaço exterior adicional para outro veículo. Além disso, a propriedade possui várias áreas de arrumos, que apresentam um potencial extraordinário para expansão, permitindo ampliar a casa e adaptá-la ao seu gosto e necessidades.
AMI: 12351
Ref. Externa: 51444
Id: 1022103
Inicie sessão para guardar este imóvel e aceder à sua lista de favoritos em qualquer dispositivo.
3 Quartos
Área útil : 48 m²
Moradia em pedra inserida na histórica vila de Pedrógão Pequeno. Embora a necessitar de algumas obras de reconstrução, possui um imenso potencial devido não só à sua localização como também pela sua construção e disposição. Ideal para habitação ou investimento.
AMI: 12351
Ref. Externa: 51434
Id: 1022101
Inicie sessão para guardar este imóvel e aceder à sua lista de favoritos em qualquer dispositivo.
4 Quartos
Área útil : 182 m²
Esta propriedade única em Pedrógão Pequeno oferece uma excelente oportunidade para quem deseja construir ou reconstruir a casa dos seus sonhos numa zona tranquila e soalheira. Com mais de 180 m² de área para reabilitação, a casa, atualmente geminada de um lado, pode ser transformada numa habitação independente, garantindo assim total privacidade e praticidade.
AMI: 12351
Ref. Externa: 52342
Id: 1022098
Inicie sessão para guardar este imóvel e aceder à sua lista de favoritos em qualquer dispositivo.
3 Quartos
Área útil : 78 m²
Moradia em pedra inserida na histórica vila de Pedrógão Pequeno. Embora a necessitar de algumas obras de reconstrução, possui um imenso potencial. Dispõe de páteo e forno.
AMI: 12351
Ref. Externa: 51439
Id: 1022097
Inicie sessão para guardar este imóvel e aceder à sua lista de favoritos em qualquer dispositivo.
6 Quartos
2 WCs
Área útil : 103 m²
Apresentamos uma propriedade encantadora, situada no centro de Portugal, em Pedrógão Pequeno, que representa uma oportunidade única para investidores que procuram uma fonte de rendimento estável e versátil. Esta propriedade não só oferece um potencial significativo de rendimento através do turismo, mas também pode ser utilizada como residência pessoal ou local de férias.
AMI: 12351
Ref. Externa: 58767
Id: 1020668
Inicie sessão para guardar este imóvel e aceder à sua lista de favoritos em qualquer dispositivo.
2 Quartos
Área útil : 84 m²
Quinta Encantadora em Bravo – Pedrógão Pequeno Imagine-se a viver no coração da natureza, rodeado por paisagens deslumbrantes e tranquilidade absoluta. Esta propriedade em Bravo, Pedrógão Pequeno, é o refúgio perfeito para quem procura paz e potencial ilimitado para transformar. Características da Propriedade Casa Principal: Área: 84m² distribuídos por 2 pisos. Piso Inferior: Antiga adega, com grande potencial para ser transformada em espaço funcional. 1º Piso: Cozinha, sala e 2 quartos, todos a necessitar de remodelação, prontos para serem personalizados ao seu gosto. Terreno: Área total: 12.500m², perfeito para agricultura, lazer ou projetos turísticos. Recursos hídricos: Poço e nascente com água abundante. Confinante com uma ribeira, proporcionando um ambiente idílico para passeios e momentos de relaxamento. Cultivo: Vinhas, oliveiras e várias árvores de fruto. Uma zona florestal com sobreiros, ideal para caminhadas ou para quem deseja gerir os seus próprios recursos de lenha. Ruína em pedra não registada: Um detalhe rústico e cheio de charme, com potencial para ser recuperado e integrado na propriedade. Potencial e Vantagens Exposição Solar: Ótima orientação, garantindo luz natural durante todo o dia. Expansão: A casa tem excelente potencial para ampliação, permitindo adaptar o espaço às suas necessidades e projetos. Oportunidade única: Seja para viver, investir ou criar um refúgio turístico, esta quinta oferece versatilidade e um cenário natural inigualável. Viver a Natureza Imagine caminhar por trilhos florestais, ouvir o som relaxante da ribeira e colher frutos diretamente do seu pomar. Um espaço onde tradição e modernidade podem coexistir em perfeita harmonia. Não perca esta oportunidade! Contacte-nos para mais informações ou para agendar uma visita e venha descobrir o potencial desta propriedade única. #ref: 133104
AMI: 11220
Ref. Externa: 133104
Id: 1013855
Inicie sessão para guardar este imóvel e aceder à sua lista de favoritos em qualquer dispositivo.
152.000 €
Área útil : 178 m²
Excelente quinta com casas em xisto, palheiro e moinho para recuperar, inserido numa área total de 31.250 metros quadrados, com vários castanheiros, árvores de fruto e oliveiras. Esta quinta confina com a Ribeira da Várzea, onde corre água todo o ano e onde é possível apreciar a beleza da natureza. A 10 minutos de Pedrógão Pequeno e da Barragem do Cabril, com uma excelente vista e ótima exposição solar. A 40 minutos da Cidade de Coimbra e de Castelo Branco, e a 2 horas de Lisboa e do Porto. Marque já a sua visita! NC - 'Excluído do SCE, ao abrigo da alínea g) do artigo 18º/2 do Decreto-Lei nº 110-D/2020, de 7 de dezembro'.
AMI: 15950
Ref. Externa: AS65
Id: 953871
Inicie sessão para guardar este imóvel e aceder à sua lista de favoritos em qualquer dispositivo.
3 Quartos
Área útil : 167 m²
Casa de aldeia no Centro de Portugal, perto de Pedrógão Pequeno Situada numa aldeia tranquila, apenas a uma curta distância de Pedrógão Pequeno, esta casa com três quartos é ideal para quem procura um retiro tranquilo com potencial para criar uma deslumbrante residência familiar. A propriedade inclui um salão acolhedor, uma cozinha bem dimensionada e vários quartos adicionais e áreas de armazenamento, oferecendo muito espaço para personalização e renovação. No exterior, o jardim é uma caraterística encantadora, completo com árvores de fruto e belas vistas sobre o campo ondulante. Quer pretenda relaxar num ambiente sereno ou explorar a natureza nas proximidades, esta propriedade oferece um estilo de vida tranquilo imerso na natureza. A localização é muito conveniente, com a encantadora cidade da Sertã apenas a 15 minutos de distância. A Sertã é uma movimentada cidade mercantil conhecida pela sua excelente gama de comodidades, incluindo supermercados, lojas, cafés, restaurantes e serviços médicos, bem como belos passeios à beira-rio e locais históricos como o Castelo da Sertã. Para além disso, Pedrógão Grande fica apenas a uma curta distância de carro da propriedade. Esta pitoresca cidade oferece outras comodidades, tais como lojas locais, restaurantes tradicionais portugueses e cafés. É também uma porta de entrada para a famosa Barragem do Cabril, proporcionando oportunidades para nadar, andar de caiaque e fazer caminhadas, perfeitas para os entusiastas do ar livre. Esta propriedade oferece a combinação ideal de tranquilidade de aldeia e fácil acesso a todas as conveniências das cidades vizinhas. Com algumas obras de renovação, poderá tornar-se numa encantadora casa de família numa das regiões mais pitorescas do Centro de Portugal. Não perca a oportunidade de a tornar sua! #ref: 126312
AMI: 11220
Ref. Externa: 126312
Id: 845229
Inicie sessão para guardar este imóvel e aceder à sua lista de favoritos em qualquer dispositivo.
3 Quartos
1 WCs
Área útil : 87 m²
Bonita moradia a poucos quilómetros da vila de Pedrógão Pequeno. A mesma é constituída por dois pisos, R/C e 1º andar .No R/C encontramos uma excelente cozinha nova (nunca usada) e sala em open space com lareira e acesso interior à garagem e ao primeiro piso. Subindo ao 1º andar, encontramos três quartos com áreas generosas e uma casa de banho com poliban. Para quem procura sossego esta é a casa indicada para férias, ou habitação permanente. Esta moradia encontra-se ainda perto dos mais variados serviços públicos e privados, bem como da Barragem do Cabril e das mais belas Praias Fluviais da região. Fica a cerca de 2h das das cidades de Lisboa e Porto e a cerca de 45 minutos da cidade de Coimbra. Venha visitar!
AMI: 12351
Ref. Externa: PC - 41392
Id: 766549
Inicie sessão para guardar este imóvel e aceder à sua lista de favoritos em qualquer dispositivo.
Área útil : 304 m²
Apresentamos um imóvel único no mercado imobiliário. Trata-se de uma fantástica propriedade composta por 4 números urbanos, sendo as áreas dos mesmos de 65 m², 34 m², 110 m² e 95 m², e de dois prédios rústicos, um de 4 788 m² e outro de 1 059 m², onde existem algumas árvores de fruto. Além dos vários prédios existentes nesta propriedade, existe ainda no local eletricidade, um furo e água da rede. Esta propriedade também prima pela sua localização, pois, além de estar num local com vistas de tirar o fôlego, de onde poderá ver água da barragem a cerca de 50 metros, está a 5 min da bela Vila de Pedrógão Pequeno, onde existem vários serviços públicos e privados e onde pode deleitar com a beleza da magnifica Barragem do Cabril. Esta é sem dúvida uma oportunidade única, para quem quer investir em turismo ou para famílias numerosas. Não perca mais tempo e venha conhecer!
AMI: 12351
Ref. Externa: PC - 39578
Id: 766545
Inicie sessão para guardar este imóvel e aceder à sua lista de favoritos em qualquer dispositivo.
600.000 €
9 Quartos
Área útil : 1380 m²
Quinta centenária localizada na rota da EN2, em pleno coração da vila de Pedrogão Pequeno, uma das localidades das “Aldeias Xisto”, situada numa das margens do rio Zêzere, mais propriamente perto da Barragem do Cabril. Pois bem, podíamos apresentar aqui um imóvel com histórias de reis e rainhas (embora as invasões francesas tivessem passado por cá), mas ficamos por uma casa de senhores e senhoras rodeados de vários criados internos, externos e caseiros. Um dos seus proprietários foi o primeiro dirigente da Filarmónica Aurora Pedroguense. Esta casa senhorial encontra-se implantada num excelente terreno com água própria de poço, atravessada ainda por um riacho. Terreno fértil, de cultivo, com variadíssimas árvores desde frutíferas ou simplesmente de embelezamento. No seu redor encontramos várias edificações que serviram outrora de cavalariça, casa do forno, galinheiros e anexos de apoio agrícola. Disposta por três fabulosos pisos, esta maravilhosa mansão senhorial distribui-se da seguinte forma: no rés-do-chão deparamo-nos com uma entrada a meio do edifício que nos dá logo visibilidade para as majestosas escadarias que nos levam para os pisos superiores, vedadas por um majestoso gradeamento de ferro e que fazem lembrar as prisões, acompanhadas por paredes com pinturas feitas à mão.
AMI: 12351
Ref. Externa: JF - 55468
Id: 766540
Inicie sessão para guardar este imóvel e aceder à sua lista de favoritos em qualquer dispositivo.
Este agente é especialista nesta zona:
Inicie sessão para ocultar este imóvel das suas pesquisas e manter a sua lista de resultados organizada.
© Copyright 2023 | CASACERTA. All rights reserved
Guardar favoritos
Este imóvel foi guardados nos seus favoritos com sucesso.
Para poder guardar pesquisa deverá ter a sua sessão iniciada.
Caso não tenha uma conta, deverá criar uma.
A sua pesquisa foi guardada com sucesso!
Este site utiliza cookies. Ao navegar no site estará a consentir a sua utilização.
Para mais informações sobre os cookies pode consultar a
política de privacidade.