Lista
Comprar
Arrendar
255.000 €
3 Quartos
3 WCs
Área bruta : 348 m²
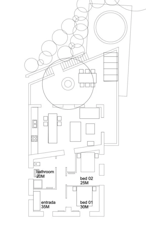
Fantástica Moradia tipo T3, em Serpins!!!!! Moradia isolada, composta por três pisos, com logradouro, anexo e terreno com 2890 m2. Excelente luminosidade e exposição solar, com vistas para a serra da Lousã. No exterior encontramos um jardim frontal, com acesso à habitação, bem como portão para entrada/saída de viaturas e acesso ás traseiras do imóvel. Está composta da seguinte forma: A Cave é composta por garagem ampla para diversas viaturas e w.c. de serviço. No R/CH é composta por Hall/Corredor, sala ampla com saída para recuperador de calor, 3 quartos com roupeiro, 2 w.c., arrumo/despensa e cozinha ampla com acesso às traseiras da habitação, onde encontramos um telheiro/anexo coberto. No sótão, com pé direito e apesar de amplo, já foi construída uma divisória que seria para um 4º quarto. Possui ainda, nas traseiras do imóvel um enorme terreno florestal. Localiza-se a cerca de 3 min. da estação do Metro Mondego. Está inserida em zona calma e muito sossegada, ideal para quem gosta da natureza. Não perca esta oportunidade. Marque já a sua visita!!!!!! Lic. 20114-AMI
AMI: 20114
Ref. Externa: HAB_201
Id: 1689728
Inicie sessão para guardar este imóvel e aceder à sua lista de favoritos em qualquer dispositivo.
2 Quartos
1 WCs
Área útil : 160 m²
MORADIA COM DOIS PISOS, COM OBRA DE RECUPERAÇÃO JÁ INICIADA EM CASAL DE ERMIO O imóvel é composto por rés-do-chão e primeiro andar. No piso térreo encontra-se em bruto e com possível instalação sanitária. O piso superior dispõe cozinha e sala Open Space e com casa de banho com duche. Uma moradia com pequeno terraço é perfeita para quem quer aproveitar o ar livre sem precisar de muito espaço ou manutenção. A intervenção já contempla trabalhos estruturais e com reparação de infraestruturas. Parte das paredes e pavimentos encontram-se em fase de renovação. Algumas áreas estão em bruto, permitindo adaptação do espaço conforme projeto. Moradia mobilada com cozinha completa.Imóvel equipado com mobiliário essencial, incluindo sofás, mesa de refeições e arrumação. Cozinha completa com frigorífico, forno, placa, micro-ondas, máquina de lavar roupa e salamandra. Pronta a habitar. A moradia possui acesso direto à via pública e beneficia de iluminação natural. Imóvel indicado para conclusão de obra e personalização interior. Agende já a sua visita e venha descobrir o potencial desta moradia. **English** TWO-STOREY HOUSE, WITH RENOVATION WORK ALREADY UNDERWAY IN CASAL DE ERMIO The property comprises a ground floor and first floor. The ground floor is unfinished and has the potential for bathroom installation. The upper floor has an open-plan kitchen and living room and a bathroom with shower. A house with a small terrace is perfect for those who want to enjoy the outdoors without needing a lot of space or maintenance. The renovation already includes structural work and infrastructure repairs. Part of the walls and floors are currently being renovated. Some areas are unfinished, allowing the space to be adapted according to the project. Furnished house with fully equipped kitchen. Property equipped with essential furniture, including sofas, dining table and storage. Fully equipped kitchen with refrigerator, oven, hob, microwave, washing machine and wood-burning stove. Ready to move in. The house has direct access to the public road and benefits from natural lighting. Property suitable for completion of works and interior customisation. Schedule your visit now and come and discover the potential of this house. **Français** MAISON À DEUX ÉTAGES, AVEC TRAVAUX DE RÉNOVATION DÉJÀ EN COURS À CASAL DE ERMIO. La propriété comprend un rez-de-chaussée et un premier étage. Le rez-de-chaussée est à l'état brut et peut accueillir des installations sanitaires. L'étage supérieur comprend une cuisine et un salon open space, ainsi qu'une salle de bains avec douche. Une maison avec un petit balcon est parfaite pour ceux qui veulent profiter du plein air sans avoir besoin de beaucoup d'espace ou d'entretien. Les travaux comprennent déjà des travaux structurels et la réparation des infrastructures. Une partie des murs et des sols est en cours de rénovation. Certaines zones sont à l'état brut, ce qui permet d'adapter l'espace en fonction du projet. Maison meublée avec cuisine équipée. Propriété équipée avec le mobilier essentiel, y compris canapés, table à manger et rangements. Cuisine équipée avec réfrigérateur, four, plaque de cuisson, micro-ondes, lave-linge et poêle à bois. Prête à emménager. La maison dispose d'un accès direct à la voie publique et bénéficie d'un éclairage naturel. Propriété idéale pour la finition des travaux et la personnalisation intérieure. Prenez rendez-vous dès maintenant pour visiter et découvrir le potentiel de cette maison. ;ID RE/MAX: 125721086-55
AMI: 7772
Ref. Externa: 125721086-55
Id: 1659199
Inicie sessão para guardar este imóvel e aceder à sua lista de favoritos em qualquer dispositivo.
495.000 €
8 Quartos
7 WCs
Área bruta : 305 m²
Casa Gaia – Exclusividade e Natureza em Estado Puro , Serpins, Lousã Entre montanhas, jardins maduros e paisagens de cortar a respiração, encontra-se a Casa Gaia – uma propriedade distinta que combina elegância, conforto contemporâneo e um enquadramento natural absolutamente único. Implantada num terreno com cerca de 1 hectare completamente vedado, esta moradia foi pensada para proporcionar privacidade, bem-estar e versatilidade, seja para residência familiar de prestígio, retiro de charme ou investimento turístico de elevado padrão. Com 8 quartos e 7 casas de banho, distribui-se de forma harmoniosa por espaços amplos, luminosos e cuidadosamente desenhados. Piso térreo Três requintadas suites (incluindo uma com closet), garagem, lavandaria com instalação sanitária adaptada, e uma elegante zona social em open space onde sala e cozinha convivem em perfeita fluidez. Os acessos independentes ao piso superior reforçam a funcionalidade e o potencial de exploração. Piso superior Três quartos adicionais, casa de banho completa, uma sala dedicada a yoga ou bem-estar, e ainda um apartamento autónomo com kitchenette, sala e suite — ideal para hóspedes ou gestão turística premium. Varandas e terraços envolvem grande parte das divisões, oferecendo vistas amplas sobre a natureza envolvente. Exterior – um cenário de revista Jardins exuberantes, árvores autóctones, de fruto e oliveiras, zonas pavimentadas, espaços de lazer cobertos, poço e politúnel. Um verdadeiro ambiente de quinta privada onde cada recanto convida a permanecer. Conforto e qualidade construtiva Materiais de excelência, isolamento térmico eficiente, vidros duplos, portadas, aquecimento central e painéis solares asseguram desempenho, sustentabilidade e comodidade durante todo o ano. Investimento seguro A propriedade possui licença de Alojamento Local ativa e toda a documentação rigorosamente atualizada, pronta para gerar rendimento desde o primeiro dia. ? A poucos passos das deslumbrantes Fragas do Cabril, numa das zonas naturais mais procuradas da região. Casa Gaia não é apenas uma casa. É um destino, um estilo de vida, um ativo de valor. ? Para informações detalhadas ou visita privada, entre em contacto.
AMI: 10172
Ref. Externa: 703
Id: 1647123
Inicie sessão para guardar este imóvel e aceder à sua lista de favoritos em qualquer dispositivo.
630.000 €
3 Quartos
Área bruta : 600 m²
Excelente propriedade! Em pleno sopé da Serra da Lousã! Apresentamos-lhe uma propriedade única a 20 minutos da cidade de Coimbra. Propriedade composta de terreno, 3 estufas de morangos/ hortícolas e Armazém Muito potencial para turismo rural/ ou projeto agrícola. Moradia recente composta de dois pisos. Rés do chão: - 1 cozinha com 20 m2, móveis em faia equipada com eletrodomésticos e lareira com recuperador de calor. - 1 salão com 30 m2 a dois níveis equipada com lareira e recuperador de calor. Ar condicionado. - 1 Wc completo, - 1 quarto com 12 m2 e 1 despensa 1.º andar: - 3 quartos com roupeiro e varandas - 1 deles com 15 m2 é suite. - WCs com áreas fora do comum. - Sótão com ótimo pé direito - Duas divisões com janela. - 1 escritório amplo. Muita arrumação. Grande garagem. Armazém de produtos agrícolas, com 120 m2. Tem 3 estufas com sistema de rega moderno. Rega Sustentável.
AMI: 5741
Ref. Externa: HAB_6586
Id: 1629589
Inicie sessão para guardar este imóvel e aceder à sua lista de favoritos em qualquer dispositivo.
3 Quartos
1 WCs
Área bruta : 180 m²
Identificação do imóvel: ZMPT585370Moradia T3 para venda na Lousã – Excelente oportunidade de investimentoMoradia T3 situada na Lousã, inserida em zona tranquila e com bons acessos, ideal para habitação própria ou investimento.O imóvel é composto por:• 3 quartos• Sala• Cozinha• 1 casa de banho• Garagem• Sótão• Cave• Terreno com potencial para jardim, horta ou espaço de lazerA moradia necessita de obras de remodelação, oferecendo assim a possibilidade de personalizar ao seu gosto e valorizar o investimento.Excelente oportunidade para quem procura um imóvel com potencial numa localização privilegiada, próxima de comércio, serviços e natureza.Para mais informações ou agendamento de visita, entre em contacto.Consigo sempre na procura de casa3 razões para comprar com a Zome:+ AcompanhamentoCom uma preparação e experiência única no mercado imobiliário, os consultores Zome põem toda a sua dedicação em dar-lhe o melhor acompanhamento, orientando-o com a máxima confiança, na direção certa das suas necessidades e ambições.Daqui para a frente, vamos criar uma relação próxima e escutar com atenção as suas expectativas, porque a nossa prioridade é a sua felicidade! Porque é importante que sinta que está acompanhado, e que estamos consigo sempre.+ SimplesOs consultores Zome têm uma formação única no mercado, ancorada na partilha de experiência prática entre profissionais e fortalecida pelo conhecimento de neurociência aplicada que lhes permite simplificar e tornar mais eficaz a sua experiência imobiliária.Deixe para trás os pesadelos burocráticos porque na Zome encontra o apoio total de uma equipa experiente e multidisciplinar que lhe dá suporte prático em todos os aspetos fundamentais, para que a sua experiência imobiliária supere as expectativas.+ FelizLiberte-se de preocupações e ganhe o tempo de qualidade que necessita para se dedicar ao que lhe faz mais feliz.Agimos diariamente para trazer mais valor à sua vida com o aconselhamento fiável de que precisa para, juntos, conseguirmos atingir os melhores resultados.Com a Zome nunca vai estar perdido ou desacompanhado e encontrará algo que não tem preço: a sua máxima tranquilidade!É assim que se vai sentir ao longo de toda a experiência: Tranquilo, seguro, confortável e... FELIZ!Notas:● Caso seja um consultor imobiliário , este imóvel está disponível para partilha de negócio . Não hesite em apresentar aos seus clientes compradores e fale connosco para agendar a sua visita.● Para maior facilidade na identificação deste imóvel, por favor, refira o respetivo ID ZMPT ou o respetivo agente que lhe tenha enviado a sugestão.
AMI: 11748
Ref. Externa: ZMPT585370
Id: 1625753
Inicie sessão para guardar este imóvel e aceder à sua lista de favoritos em qualquer dispositivo.
10 Quartos
9 WCs
Área bruta : 170 m²
Quinta Rústica à Venda — Covão, Zona da Lousã Uma propriedade singular, com enorme potencial familiar ou para turismo alojamento local, situada no tranquilo e pitoresco Covão, na serra da Lousã. Esta quinta rústica com carácter estende-se por mais de 2 hectares de terreno, onde a natureza e a serenidade se fundem num cenário idílico. Com uma localização privilegiada, oferece espaço, privacidade e possibilidades de rendimento ou vida em família. - Casa Principal Uma casa ampla e acolhedora, com 9 quartos, ideal para quem procura conforto e espaço. A sua configuração versátil permite adaptar os ambientes conforme desejado — quer para habitação familiar quer para exploração turística. - Casa de Apoio Uma construção complementar que pode servir como residência independente, escritório, espaço de staff ou alojamento extra. - Instalações Equestres A quinta dispõe de boxes para cavalos, perfeita para amantes da equitação ou para uso profissional, com áreas funcionais e acesso direto ao terreno envolvente. Cavalariças com boxes para seis cavalos, galinheiro, estábulo para caprinos/suinos. - Piscina Exterior Uma piscina convidativa, onde o descanso e a diversão se tornam parte do dia a dia, ideal para momentos em família ou para hóspedes em temporada. -Terreno e Natureza Os mais de 2 hectares de terreno oferecem vasto espaço verde, potencial para jardinagem, produção agrícola, zonas de lazer, e muitas possibilidades de desenvolvimento — desde horta biológica a pomares ou trilhos privados. - Potencial de Exploração Quer seja para transformar em um refúgio familiar com espaço para projetos pessoais, quer para desenvolver um alojamento local de charme, esta quinta representa uma oportunidade única numa das regiões mais bonitas do interior centro de Portugal. ? Localização No Covão — Lousã, com excelente acesso e envolvida pela natureza, mantendo proximidade com serviços e património cultural da região. A Quinta está preparada para Alojamento local. . Prestamos todo o apoio do início ao final do processo de compra. Para mais informações, contacte-me. Maria do Céu
AMI: 16772
Ref. Externa: KWPT-026393
Id: 1606823
Inicie sessão para guardar este imóvel e aceder à sua lista de favoritos em qualquer dispositivo.
255.000 €
3 Quartos
Área bruta : 348 m²
FAÇA CONNOSCO O MELHOR NEGÓCIO Moradia T3 em Serpins com amplo terreno e localização privilegiada Descubra esta fantástica moradia T3 situada em Serpins, inserida num generoso terreno de 2.800 m², ideal para quem procura espaço, privacidade e contacto com a natureza. A propriedade oferece um ambiente tranquilo, perfeito para viver ou para casa de férias, numa região conhecida pelas suas paisagens deslumbrantes e qualidade de vida. Principais características: Tipologia: T3, com áreas amplas e boa luminosidade natural. Terreno: 2.800 m², ideal para jardim, horta ou até piscina. Localização: Apenas 3 minutos da linha de metro, garantindo fácil acesso a serviços e deslocações. Ambiente natural: Próxima das famosas praias fluviais, incluindo a encantadora Cabril do Ceira, onde poderá desfrutar de águas cristalinas e cenários únicos. Esta moradia combina conforto, espaço e uma localização estratégica, perfeita para quem valoriza tranquilidade sem abdicar da proximidade a transportes e pontos de lazer. Tratamos do seu processo de crédito, sem burocracias apresentando as melhores soluções para cada cliente. Intermediário de crédito certificado pelo Banco de Portugal com o nº 0001802. Ajudamos com todo o processo! Entre em contacto connosco ou deixe-nos os seus dados e entraremos em contacto assim que possível! RR98604
AMI: 8989
Ref. Externa: RR98604
Id: 1580108
Inicie sessão para guardar este imóvel e aceder à sua lista de favoritos em qualquer dispositivo.
3 Quartos
Área bruta : 89 m²
Apartamento com excelente distribuição de espaços e ótimas condições de conforto, situado na Lousã. No piso principal, encontra-se uma cozinha funcional, uma casa de banho completa, um quarto com roupeiro embutido, varanda e vistas desafogadas para a serra, bem como uma sala acolhedora equipada com recuperador de calor e acesso a varanda. O imóvel dispõe ainda de um sótão pertencente à mesma fração, atualmente aproveitado, onde se encontram mais dois quartos com áreas de cerca de 24 m² e 14 m², ambos com roupeiros embutidos, além de uma casa de banho com luz natural, proporcionando espaço e conforto adicionais. No total, o apartamento conta com três quartos com roupeiros embutidos. Conta igualmente com garagem fechada, equipada com mezanino, eletricidade eprédio foi recentemente intervencionado, com colocação de banda armada, pintura das fachadas e revisão do telhado, assegurando maior durabilidade, conforto e valorização do imóvel. ponto de água, oferecendo excelente capacidade de arrumação. A garagem situa-se num logradouro comum com zona de churrasqueira para utilização dos condóminos. O prédio foi recentemente intervencionado, com colocação de banda armada, pintura das fachadas e revisão do telhado, assegurando maior durabilidade, conforto e valorização do imóvel. Uma excelente opção para quem procura espaço, funcionalidade e qualidade de vida. Com a ERA Universitária poderá ainda solicitar simulações bancárias para o seu Crédito Habitação. O departamento PoupaJÁ – Intermediação de Crédito acompanha todo o processo na obtenção das melhores soluções. A PoupaJá.pt é uma marca nacional registada pertencente à ERA Universitária Mediação Imobiliária, Lda., Intermediário de Crédito registado no Banco de Portugal com o nº 0001985.
AMI: 6031
Ref. Externa: 115250791
Id: 1571317
Inicie sessão para guardar este imóvel e aceder à sua lista de favoritos em qualquer dispositivo.
5 Quartos
4 WCs
Área bruta : 420 m²
Charmosa casa de campo independente com 5 quartos e anexo | Vistas deslumbrantes para a Serra da Lousã | Perto de Coimbra ✨ Ambiente rural na periferia de uma aldeia | ✨ Mais de 5 quartos | ✨ 4 casas de banho | ✨ Terreno de 4000m² | ✨ 313m2 + 102m2 anexo | Ano de Construção 1937 : Renovado: 2022 ✨ Destaques da Propriedade * Casa de campo de época lindamente restaurada com 5 quartos e características originais * Edifício separado de 102m² com potencial para casa de hóspedes com 3 quartos ou renda de aluguel, sujeito a aprovação de planejamento * Vistas panorâmicas espetaculares da Serra da Lousã e da paisagem rural circundante * Acomodações flexíveis em 3 andares – atualmente utilizadas como 5 quartos * Localização tranquila e privada no topo de uma colina, a apenas 5 minutos de Lousã e 20 minutos de Coimbra * Dois poços (aberto e fechado), horta cercada e árvores frutíferas adultas * Renovação completa: telhados novos, isolamento, sistemas de aquecimento, janelas com vidros triplos, instalações elétricas e hidráulicas novas * Aquecimento sustentável por meio de sistema de biomassa e energia solar térmica * Estacionamento privativo para mais de 4 carros Casa Principal (313m²) * Anterior a 1951, totalmente restaurada em 2022 com atenção aos detalhes e ao conforto * Cozinha e sala de jantar espaçosas com tetos abobadados e acesso direto ao pátio * Lavanderia * Ambientes com personalidade Quarto com piso e teto de madeira originais, enorme lareira a lenha e janelas envidraçadas do chão ao teto * 5 quartos de casal, todos com vista dupla ou tripla, incluindo: * Quarto principal com vista para a montanha * Quarto no térreo com teto abobadado e janelas com vista tripla que inundam o espaço com luz * Quarto de hóspedes convertido no último andar com banheiro privativo – ideal para visitantes ou adolescentes * 3 banheiros, incluindo um com banheira de pés de ferro antiga e armário para roupas de cama * Sacadas Julieta com vista dupla a partir do corredor do andar superior * Aquecimento de piso (térreo) e radiadores (andares superiores) por meio de sistema de armazenamento de biomassa * Anexo (102m²) * Estruturalmente restaurado com telhado, terraço e instalações novas (eletricidade, água e esgoto prontos para instalação) * Pronto para desenvolvimento interno – sujeito a aprovação de planejamento, ideal para: * Acomodação para hóspedes * Aluguel de temporada * Moradia multigeneracional * Terraço elevado com vista panorâmica para as montanhas * Características externas * Pátio murado pitoresco com estrutura de ferro sob medida e cozinha externa * Inclui um forno de pizza em forma de cúpula – perfeito para receber convidados * Dois poços: um aberto (junto ao jardim) e outro fechado (perto da casa) * Horta cercada * Árvores frutíferas adultas e mata nativa * Banheiro externo * Estacionamento para vários veículos ✨ Localização e Estilo de Vida * Situada no topo de uma colina tranquila, na periferia de uma vila tradicional * A apenas 5 minutos de Lousã – lojas, cafés, supermercados, academia, centro de saúde, futura linha de trem elétrico para Coimbra * A apenas 20 minutos de Coimbra, a capital cultural de Portugal * A 50 minutos da costa atlântica e das praias da Figueira da Foz * Rodeada pela natureza, trilhas para caminhadas, praias fluviais e festivais locais * Um estilo de vida tranquilo, porém conectado – perfeito para famílias, criativos ou para quem busca uma mudança de ritmo ✨ Reformas Recentes Incluem: * Telhados novos na casa principal e no anexo * Isolamento externo e novo reboco * Caldeira de biomassa com tanque de acumulação + aquecimento de piso/radiadores * Sistema de aquecimento solar de água * Completo Reinstalação elétrica e atualizações elétricas * Janelas basculantes com vidro triplo (na maioria dos casos) * Novo sistema séptico adequado para ambo. #ref: 784274
AMI: 11220
Ref. Externa: 784274
Id: 1552262
Inicie sessão para guardar este imóvel e aceder à sua lista de favoritos em qualquer dispositivo.
1 Quartos
1 WCs
Área bruta : 130 m²
Moradia em reconstrução no centro da Lousã Se procura um imóvel com grande potencial para remodelação e valorização, esta é a escolha perfeita! Situada na charmosa região da Lousã, esta moradia oferece a oportunidade de criar o lar dos seus sonhos ou um projeto de investimento com excelente retorno. Imagine remodelar esta moradia ao seu gosto, escolhendo cada detalhe para refletir o seu estilo e necessidades. Desde uma casa acolhedora e rústica até um espaço moderno e sofisticado, as possibilidades são infinitas! Características: * Dois pisos amplos para transformar conforme a sua visão * Possibilidade de criar espaços modernos e funcionais * Ambiente tranquilo, perfeito para desfrutar da natureza * Ideal para habitação própria, casa de férias ou alojamento local Viva em harmonia com a natureza e aproveite tudo o que a Lousã tem para oferecer - trilhos deslumbrantes, aldeias de xisto, excelente gastronomia e uma qualidade de vida incomparável. Não perca esta oportunidade! Vamos avançar com uma visita?
AMI: 19135
Ref. Externa: 1121130/25CB
Id: 1533891
Inicie sessão para guardar este imóvel e aceder à sua lista de favoritos em qualquer dispositivo.
3 Quartos
1 WCs
Área bruta : 200 m²
Moradia para Renovar com Terreno de 1100m² e Vista Deslumbrante para a Serra da Lousã Apresentamos uma excelente oportunidade na Lousã: uma moradia com enorme potencial, ideal para quem procura investir, renovar ou criar a casa dos seus sonhos num ambiente tranquilo, com vistas privilegiadas para a emblemática Serra da Lousã. A propriedade desenvolve-se em dois pisos. No primeiro andar, encontra três quartos com boa luminosidade, casa de banho, sala, cozinha e um terraço perfeito para desfrutar do ar livre e do cenário natural envolvente. No rés do chão, a moradia oferece uma garagem espaçosa para dois carros e duas amplas divisões que podem ser adaptadas a diversos usos arrumos, atelier, sala de jogos ou até uma segunda habitação, dependendo do projeto do novo proprietário. No exterior, destaca-se um terreno generoso com 1100 m², ideal para jardim, horta, piscina ou qualquer outro espaço de lazer que pretenda criar. Situada a apenas 3 minutos do centro da Lousã, esta moradia dispõe de excelentes acessibilidades, incluindo transporte rodoviário e ligação por metro, garantindo uma mobilidade prática e rápida no dia a dia. Se procura uma moradia com potencial, boa localização e vistas fantásticas, esta é uma oportunidade a não perder. ( algumas fotos são meramente ilustrativas)
AMI: 19135
Ref. Externa: 1121196/25CB
Id: 1529304
Inicie sessão para guardar este imóvel e aceder à sua lista de favoritos em qualquer dispositivo.
231.000 €
3 Quartos
2 WCs
Área bruta : 201 m²
Tipologia T3 duplex, com um piso de 201,02 m2 de área útil, fracção habitacional existente no concelho de Lousã, na periferia de uma zona urbana, em Serpins. A habitação é composta por 1 sala, 1 cozinha, 1 suite, 2 quartos, uma instalação sanitária e circulação no piso inferior e por espaços e instalação sanitária no andar superior. Tem envolvente exterior nas paredes orientadas a Nordeste, Sudeste e Sudoeste, pequena parte do pavimento e na cobertura. Tem envolvente interior com requisitos nas paredes em contacto com circulação comum, na cobertura sob espaço não útil e nas paredes em contacto com circulação comum. Tem envolvente interior sem requisitos nas paredes, pavimento e cobertura em contacto com fracções habitacionais do mesmo edifício. Com pavimentos em construção pesada com revestimento em cerâmico ou madeira colada, paredes rebocadas e pintadas, em gesso cartonado ou com revestimento cerâmico e tectos rebocados e pintados, a habitação tem uma inércia térmica média. Para produção de AQS possui um esquentador a gás natural. Para climatização a habitação dispõe deum recuperador de calor na sala. As caixilharias são metálicas sem corte térmico, com vidro duplo incolor, com protecções solares porpersianas exteriores plásticas de cor clara. Com uma localização privilegiada, inserida numa zona tranquila e próxima de transportes públicos como o Metro de Superfície, este apartamento é uma oportunidade para quem procura qualidade de vida.O valor inclui os móveis dos quartos, sala de estar e jantar e cozinha, estando pronto a habitar.Edifício com vistas lindíssimas para a serra e luz solar todo o dia.Marque a sua visita!
AMI: 18476
Ref. Externa: LSANS831
Id: 1527451
Inicie sessão para guardar este imóvel e aceder à sua lista de favoritos em qualquer dispositivo.
3 Quartos
2 WCs
Área bruta : 200 m²
Moradia com 200 metros quadrados de área bruta de construção, localizado a 5 minutos da vila da Lousã, numa simpática aldeia. A moradia dispõe de água, eletricidade e ligação a saneamento. Na aldeia, há fibra ótica. Muito próxima da vila da Lousã, conhecida pelo seu potencial natural e patrimonial, maioritariamente baseado na serra e em elementos identitários com as aldeias de xisto, ermidas e castelo. Zona muito atrativa, percursos pedestres refrescantes, praias fluviais, circuitos BTT, trail e downhill. Aproveite também os sons da natureza e vibre! Tem também na área a possibilidade de se deliciar com os sabores únicos da gastronomia da região. Grande oferta cultural, desportiva e de eventos, o que torna esta propriedade um excelente investimento! Moradia composta por rés-do-chão e primeiro andar, com paredes sólidas e telhado novo já com isolamento. O primeiro andar está já praticamente amplo, preparado para ser dividido em espaçosas divisões, tem casa de banho a necessitar de renovação e uma varanda. Está também previsto um acesso interior ao rés-do-chão já que o existente é exterior. O rés-do-chão está preparado para uma cozinha, sala, casa de banho e o acesso ao primeiro andar. Também poderá abdicar de alguma divisão e fazer garagem. Excelente opção para habitação permanente ou investimento. Escolas, comércio, centro de saúde e transportes públicos a 7 minutos de distância. De referir que a aldeia se localiza no sopé da serra, usufruindo assim de lindas vistas. Mesmo em frente à casa, há um antigo fontanário de água potável natural. Descrição predial: - 100 m2 de área total de terreno - 200 m2 de área bruta de construção Distâncias relevantes: - Cidade de Coimbra a 31 km - Cidade de Lisboa a 210 km - Cidade do Porto a 158 km - Vila da Lousã a 3,3 km #ref: 768454
AMI: 11220
Ref. Externa: 768454
Id: 1510302
Inicie sessão para guardar este imóvel e aceder à sua lista de favoritos em qualquer dispositivo.
3 Quartos
Área bruta : 180 m²
Moradia isolada com terreno, situada na Lousã, a poucos metros da estação do MetroBus.A necessitar de recuperação, esta propriedade representa uma excelente oportunidade, tanto para investimento como para habitação própria. Beneficia de uma ótima exposição solar e conta com um terreno com árvores de fruto, inserido numa área total de 1144 m².No primeiro andar, a moradia é composta por três quartos, uma cozinha, uma casa de banho e uma sala com acesso a varanda. No piso inferior, dispõe de uma garagem ampla e duas divisões adicionais, permitindo diversos aproveitamentos conforme as suas necessidades.A sua localização é um dos grandes destaques. Junto à estação do MetroBus, com fácil acesso a escolas, supermercados e a todos os serviços essenciais da vila da Lousã. Encontra-se ainda a apenas 25 minutos de Coimbra.Uma oportunidade única para quem procura tranquilidade, espaço exterior e um excelente potencial de valorização.
AMI: 4680
Ref. Externa: 1067/V3CBR
Id: 1507377
Inicie sessão para guardar este imóvel e aceder à sua lista de favoritos em qualquer dispositivo.
2 Quartos
Área bruta : 98 m²
Moradia Térrea Isolada na Lousã – Espaço, Potencial e Vista para a Serra Descubra esta moradia térrea isolada, inserida num generoso terreno de 700 m², ideal para quem procura conforto, privacidade e um espaço exterior convidativo, sem abdicar da proximidade a serviços e transportes. Com área de implantação de 123 m² e área útil de 90 m², a casa dispõe de: • 2 quartos, com possibilidade de criar suíte; • 2 casas de banho; • Sala e cozinha com excelente luz natural; • Sótão amplo com 84 m², com potencial para ligação interior, permitindo criar mais um quarto, casa de banho e sala adicional; • Garagem com 38 m²; • Churrasqueira e jardim; • Terraço no topo da casa, com uma vista deslumbrante para a Serra da Lousã. Localização privilegiada: a apenas 5 minutos a pé do novo metro e de um supermercado, garantindo toda a comodidade no dia a dia. Vantagem Exclusiva – Garantia ERA: esta moradia beneficia da Garantia ERA, um seguro exclusivo que protege o comprador durante 12 meses após a escritura, cobrindo reparações de equipamentos e sistemas da casa, assim como problemas estruturais como humidades, infiltrações ou fissuras. Mais segurança e tranquilidade na sua compra. Uma casa pronta a habitar, mas com espaço e potencial para crescer consigo e com a sua família.
AMI: 6031
Ref. Externa: 115250527
Id: 1507061
Inicie sessão para guardar este imóvel e aceder à sua lista de favoritos em qualquer dispositivo.
3 Quartos
1 WCs
Área bruta : 220 m²
Moradia isolada com terreno, situada na Lousã, a 500 metros da estação do metro . Moradia usada com uma área bruta de 180m2 e com uma área total do lote com 1144m2. Constituída por r/chão e 1º Andar. Entrada com acesso ao 1ºandar pelo exterior Para Habitação própria ou poderá ser uma excelente opção para investimento fazendo algumas remodelações , rentabilizando os dois pisos Pequeno jardim na parte da frente da moradia e terreno na parte de trás. No rés chão pode encontrar 2 divisões e garagem No 1º andar: Tem uma sala, cozinha e três quartos e uma casa de banho. Quanto à sua excelente localização geográfica , privilegia-se aqui o facto de estar junto ao metro ter rápido acesso direto a escolas, farmácias, padarias, supermercados, transportes públicos e a todos os pontos da cidade da Lousã e Coimbra Mais informações ou se pretender visitar contacte Marco Santa 9_6_8_1_8_2_5_6_2 Não perca essa oportunidade única!! Venha conhecer e ver presencialmente ,agende já a sua visita ! Tratamos da aprovação do crédito para financiamento do seu imóvel. Intermediação de crédito não é mais do que o ato de uma determinada entidade tratar de um processo de crédito pelo consumidor, ajudando-o a recolher toda a documentação necessária e tratando de tudo o que é necessário, para a obtenção do seu financiamento! Estamos aqui para ajudar, conte connosco para ajudar na obtenção do seu Lar ou no seu investimento imobiliário !!
AMI: 18301
Ref. Externa: V958MS
Id: 1468903
Inicie sessão para guardar este imóvel e aceder à sua lista de favoritos em qualquer dispositivo.
Sob consulta
1 Quartos
1 WCs
Área bruta : 72 m²
Imagine acordar com o ar puro da Serra da Lousã, tomar o pequeno-almoço no seu jardim privado e, em dois minutos, estar no centro da Lousã com acesso a todos os serviços. Esta é a proposta de valor desta moradia única, um projeto novo que combina na perfeição a tranquilidade do campo com a conveniência urbana. Localizada numa zona privilegiada, "às portas da vila da Lousã" mas em comunhão total com a natureza, esta moradia térrea T1+1, com uma área bruta privativa de 72 m2, está a nascer num lote de terreno de 510 m². Projetada a pensar no conforto e na sustentabilidade, a casa é construída integralmente em madeira, um material nobre que oferece um isolamento térmico e acústico superior, criando um ambiente acolhedor em todas as estações do ano. Sendo térrea, oferece uma vivência prática, fluida e acessível, ideal para quem procura conforto no dia a dia, sem barreiras. A tipologia T1+1 oferece versatilidade: um quarto principal confortável e um espaço adicional (+1) que pode ser o seu escritório, um quarto de hóspedes ou mesmo um closet. O interior flui de forma harmoniosa para o exterior, onde o terreno de 510 m² lhe dá total liberdade. Conte com um jardim para cultivar, relaxar ou brincar, um alpendre perfeito para refeições ao ar livre e um lugar de aparcamento. Esta é a oportunidade de ter o melhor de dois mundos: • A privacidade e a beleza da Serra da Lousã como pano de fundo. • A proximidade imediata ao centro da Lousã, com supermercados, escolas, restaurantes e serviços a poucos minutos de distância. Seja para habitação permanente, para refúgio de fim de semana ou para investimento, esta é uma propriedade com um carácter distinto e uma qualidade de vida ímpar. Destacamos: • Espaço Exterior: Jardim, Alpendre e Aparcamento • Localização: Lousã (Junto à Serra e próximo do centro) • Destaques: Eficiência energética, conforto térmico, acessibilidade (térrea). Ao escolher Um Consultor - KW Union obtém : - Um Consultor imobiliário com uma excelente formação do mercado - Visualização das casas com antecedência - Informação sobre novas casas no mercado - Informação sobre outras casas vendidas e por que valores - Apresentação das melhores soluções financeiras para aquisição do imóvel - Apoio no processo de financiamento (se requerido) - Presença na avaliação do imóvel - Apoio na marcação da escritura - Se é um consultor imobiliário, não hesite em contactar-me, a KW UNION COIMBRA orgulha-se de partilhar negócios 50-50 com todas as imobiliárias no mercado. - Se é profissional do sector e tem um cliente comprador qualificado, contacte-me e agende a sua visita. - Para maior facilidade na identificação deste imóvel, por favor, refira o respetivo ID. Em caso de agendamento de visita, faça-se acompanhar de um documento de identificação. Muito obrigado!
AMI: 16772
Ref. Externa: KWPT-023763
Id: 1449753
Inicie sessão para guardar este imóvel e aceder à sua lista de favoritos em qualquer dispositivo.
2 Quartos
2 WCs
Área bruta : 136 m²
Apresentamos-lhe esta moradia de dois pisos localizada em Vale de Maceira, concelho da Lousã. O imóvel encontra-se habitável e com potencial para remodelação e adaptação ao gosto do novo proprietário. Distribuição dos espaços Rés do chão: - Cozinha; - 1 Divisão; - 1 Casa de banho completa; - 1 Casa de banho adaptada a balneário. 1.º piso: - 1 Sala; - 2 Quartos; - 1 Divisão extra. Nota: Cilindro para aquecimento de águas e Botija de gás para o forno. A propriedade oferece uma boa base estrutural e várias possibilidades de reorganização dos espaços interiores, podendo ser ajustada a diferentes necessidades — seja como habitação permanente, casa de férias ou investimento para arrendamento. Ao escolher Um Consultor - KW Union obtém : - Um Consultor imobiliário com uma excelente formação do mercado - Visualização das casas com antecedência - Informação sobre novas casas no mercado - Informação sobre outras casas vendidas e por que valores - Apresentação das melhores soluções financeiras para aquisição do imóvel - Apoio no processo de financiamento (se requerido) - Presença na avaliação do imóvel - Apoio na marcação da escritura - Se é um consultor imobiliário, não hesite em contactar-me, a KW UNION COIMBRA orgulha-se de partilhar negócios 50-50 com todas as imobiliárias no mercado. - Se é profissional do sector e tem um cliente comprador qualificado, contacte-me e agende a sua visita. - Para maior facilidade na identificação deste imóvel, por favor, refira o respetivo ID. Em caso de agendamento de visita, faça-se acompanhar de um documento de identificação. Muito obrigado!
AMI: 16772
Ref. Externa: KWPT-022715
Id: 1432055
Inicie sessão para guardar este imóvel e aceder à sua lista de favoritos em qualquer dispositivo.
950.000 €
8 Quartos
3 WCs
Área bruta : 430 m²
Se procura um refúgio tranquilo, rodeado de natureza, esta moradia em Serpins, Lousã, é a oportunidade perfeita. Inserida numa aldeia serena, a apenas 1 minuto da encantadora praia fluvial do Rio Ceira, esta propriedade oferece a combinação ideal entre conforto, privacidade e beleza natural. Com uma vista deslumbrante para a Serra da Lousã, um dos maiores tesouros naturais do Centro de Portugal, esta casa foi originalmente construída em 1941 e renovada com extremo bom gosto e materiais de elevada qualidade em 2003. O resultado é uma propriedade única, ideal tanto como residência permanente, casa de férias ou mesmo projeto de turismo rural. TRABALHOS DE MELHORIA em Curso: - Instalação de nova lona na piscina - Pintura dos muros exteriores - Reparação do telheiro na zona de estacionamento Estes melhoramentos visam garantir ainda mais conforto, estética e valorização ao imóvel. CARACTERÍSTICAS PRINCIPAIS: - Área Total do Lote: 4.130 m² - Área Construída Total: 430 m² - Casa Principal: 290 m² >> 2 cozinhas, 2 salas, 3 quartos, 2 WCs, Sala de Bilhar, Garagem - Zona de quartos: 140 m² >> 5 quartos, 1 WC TOTAL de 8 Quartos 3 Casas de Banho + 1 Exterior 2 Cozinhas totalmente equipadas + Barbecue exterior - Piso radiante em toda a casa (tijoleira e madeira) - 2 Lareiras - Vidros duplos e isolamento térmico - Portões automáticos e garagem - Piscina com lona de proteção (em substituição) - Campo de ténis - Sala de bilhar - Sistema de rega automática - Árvores de fruto e jardim bem cuidado - Privacidade total DETALHES DE PRESTÍGIO: - Azulejos Sant’Anna e Viúva Lamego nos WCs e cozinhas - Candeeiros artesanais de Lisboa - Elementos de construção com grande atenção ao detalhe, interiores e exteriores LOCALIZAÇÃO Privilegiada: Praia Fluvial do Ceira: 1 min (a pé) Lousã: 10 min Coimbra: 30 min Figueira da Foz (praia): 1 h Esta propriedade é mais do que uma casa – é uma experiência de vida. Perfeita para quem procura tranquilidade, natureza, conforto e a possibilidade de investir num espaço com enorme potencial para alojamento local ou turismo rural. Viva com qualidade, viva com natureza – na Serra da Lousã. PARTILHAMOS comissão 50%-50% com todas as imobiliárias com licença AMI, criando as melhores oportunidades de venda! APROVAMOS o seu financiamento através dos nossos parceiros de intermediação de crédito.
AMI: 21960
Ref. Externa: KWPT-015071
Id: 1426805
Inicie sessão para guardar este imóvel e aceder à sua lista de favoritos em qualquer dispositivo.
3 Quartos
Área bruta : 95 m²
Moradia isolada com dois pisos, com a área bruta de 95 m2, para recuperar. No rés-do-chão possui lojas (arrumos). No 1º andar encontramos dois quartos, sala, w.c. e alpendre. O imóvel encontra-se por recuperar, sendo que a cobertura foi substituída há pouco tempo. Tem ainda anexo para recuperar nas traseiras. Localiza-se na zona do Porto da Pedra, a cerca de 10 min. da Lousã e perto da estação de metro mondego do Padrão. Se procura casa para recuperar, este imóvel será o ideal. Não perca esta oportunidade. Marque já a sua visita!!!! Lic. 20114-AMI
AMI: 20114
Ref. Externa: HAB_189
Id: 1419671
Inicie sessão para guardar este imóvel e aceder à sua lista de favoritos em qualquer dispositivo.
Estes agentes são especialistas nesta zona:
Inicie sessão para ocultar este imóvel das suas pesquisas e manter a sua lista de resultados organizada.
© Copyright 2023 | CASACERTA. All rights reserved
Guardar favoritos
Este imóvel foi guardados nos seus favoritos com sucesso.
Para poder guardar pesquisa deverá ter a sua sessão iniciada.
Caso não tenha uma conta, deverá criar uma.
A sua pesquisa foi guardada com sucesso!
Este site utiliza cookies. Ao navegar no site estará a consentir a sua utilização.
Para mais informações sobre os cookies pode consultar a
política de privacidade.