Lista
Comprar
Arrendar
2 Quartos
Área bruta : 120 m²
No coração de Borba, no Alentejo, encontra esta moradia em banda T2 com logradouro e anexo, uma excelente oportunidade para quem procura habitação pronta a habitar, com potencial de valorização através de uma simples reorganização interior.A casa desenvolve-se em dois pisos:- Rés do chão com quarto e casa de banho renovada, com duche;-1.º andar com cozinha recente, quarto e sala comum.O imóvel encontra-se em bom estado de conservação geral, permitindo ocupação imediata, sem necessidade de obras.Apesar de funcional, a atual organização dos espaços é pouco convencional — com o quarto no piso térreo e a cozinha no piso superior — motivo pelo qual é apresentado um projeto de reformulação interior que explora todo o potencial arquitetónico e habitacional da moradia.Foi elaborado novo estudo, que propõe a reconversão em T3, otimizando a vivência da casa:No rés do chão, surge a área social — sala ampla com cozinha aberta e ilha, com acesso direto ao logradouro;No 1.º andar, distribuem-se três quartos e uma segunda casa de banho com duche, garantindo maior conforto e funcionalidade.O anúncio integra:Plantas do existente e do projeto de alterações.Plantas 3D humanizadas, ilustrando de forma clara a nova proposta de utilização.Situada em zona central e tranquila de Borba, a escassos minutos de comércio, serviços e acessos, esta moradia combina autenticidade alentejana com potencial de modernização, sendo ideal para residência permanente, casa de fim de semana ou investimento para arrendamento.Numa altura em que a oferta de habitação em Borba é limitada, esta é uma oportunidade rara para adquirir um imóvel com carácter, localização privilegiada e margem de valorização real.No coração do Alentejo, Borba oferece a serenidade de viver com tempo e espaço — e a conveniência de estar ligada ao país e à Europa pela A6, tornando cada dia mais simples, leve e pleno. ÁREAS:ÁREA DE CONSTRUÇÃO: 120.00m2 - ÁREA ÚTIL: 87.90m2- ÁREA DESCOBERTA: 27.20m2INVESTIR EM PORTUGAL PORQUE É:- O 3º melhor país do mundo e o 1º europeu para morar e trabalhar (“Expat Insider 2019” da Internations, isto é, trata-se de uma rede de 3 milhões de expatriados a trabalhar no estrangeiro);- “Novo Eldorado para os reformados europeus” (jornal francês Le Monde);- Um dos melhores destinos para reformados estrangeiros (revista e site norte-americano International Living);- Um dos melhores sistemas de saúde do mundo (inglesa BBC);- Um dos países mais seguros do mundo (Departamento de Estado dos EUA);- Um dos lugares mais atraentes da Europa para estudar no estrangeiro (“Topuniversities” da inglesa Quacquarelli Symonds).
AMI: 9412
Ref. Externa: 281571069
Id: 1469745
Inicie sessão para guardar este imóvel e aceder à sua lista de favoritos em qualquer dispositivo.
1 Quartos
2 WCs
Área bruta : 143 m²
Situado no rés-do-chão de um edifício de três pisos, este apartamento T1 encontra-se em pleno centro histórico de Borba, beneficiando de uma localização privilegiada com excelente acesso a comércio local, serviços essenciais, escolas e transportes públicos, o equilíbrio ideal entre o ritmo tranquilo do Alentejo e a conveniência urbana. O imóvel é composto por duas salas interligadas, perfeitas para criar ambientes distintos de estar e refeições, um quarto, cozinha funcional, dois arrumos e duas casas de banho, oferecendo uma disposição prática e versátil que se adapta tanto a quem procura habitação permanente como a quem pretende investir. INVESTIR EM BORBA Borba é uma vila rica em história e tradição, conhecida pelos mármores e pelo seu património cultural, inserida numa região com grande procura turística e crescente valorização imobiliária. A proximidade a Évora (Património Mundial da UNESCO), Vila Viçosa e Estremoz torna esta localização estratégica para quem procura um imóvel no Alentejo Central, com excelentes acessos à A6 e a menos de 2 horas de Lisboa. O custo de vida acessível, o ambiente seguro e a qualidade de vida típica do Alentejo fazem de Borba um local cada vez mais procurado para residência permanente, investimento em arrendamento ou alojamento local. Uma oportunidade única de investimento no coração de Borba ideal para viver, arrendar ou valorizar a médio prazo. Contacte-nos para mais informações ou para agendar a sua visita.
AMI: 8303
Ref. Externa: 318/M/03719
Id: 1449812
Inicie sessão para guardar este imóvel e aceder à sua lista de favoritos em qualquer dispositivo.
2 Quartos
1 WCs
Área bruta : 94 m²
Apartamento T2 | Edifício Centenário | Centro de Borba | Oportunidade de Investimento Localizado na Rua D. António Melo e Castro, nº 5 Esq., este apartamento T2 insere-se num edifício centenário no coração de Borba, Évora. O imóvel carece de algumas melhorias e em determinadas zonas o telhado encontra-se comprometido, mas destaca-se pelo enorme potencial de valorização numa das ruas mais típicas e autênticas da cidade. A oportunidade perfeita para quem procura investir numa recuperação e dar uma nova vida a um apartamento com caráter, preservando a identidade arquitetónica de Borba. CARACTERÍSTICAS DO IMÓVEL - Apartamento T2 em edifício centenário - Situado no centro histórico de Borba - Imóvel com necessidade de obras de recuperação - Telhado com zonas comprometidas - Grande potencial de valorização após reabilitação VIVER E INVESTIR EM BORBA | ÉVORA - Cidade reconhecida internacionalmente pelo mármore, com forte identidade cultural e histórica - Excelente localização no eixo Évora Estremoz Vila Viçosa - Proximidade a serviços, comércio, escolas, farmácias e restaurantes típicos - A poucos minutos de Vila Viçosa (10 km) e Estremoz (15 km) - Cerca de 50 minutos de Évora e a 1h30 de Lisboa - Investimento seguro e atrativo, com potencial de valorização em turismo e habitação Este apartamento no centro de Borba é uma oportunidade rara de adquirir um imóvel histórico com grande margem de valorização. Ideal para quem procura investir em reabilitação no coração do Alentejo. Para mais informações ou agendamento de visita, fale connosco.
AMI: 8303
Ref. Externa: 318/M/03655
Id: 1338887
Inicie sessão para guardar este imóvel e aceder à sua lista de favoritos em qualquer dispositivo.
1 Quartos
1 WCs
Área bruta : 68 m²
Moradia T1 para Reabilitação Total | Rés do Chão | 68 m² | Localização Central em Borba Situada na Rua D. António Melo e Castro, nº 9 Esq., esta moradia T1 localiza-se no rés do chão de um prédio no coração de Borba. Com uma área bruta de 68 m², apresenta-se como uma excelente oportunidade para quem procura um projeto de reabilitação com elevado potencial de valorização. Por recuperar, o imóvel oferece a possibilidade de personalizar e transformar o espaço, seja para habitação própria, arrendamento de longa duração ou alojamento local. CARACTERÍSTICAS DO IMÓVEL - Moradia T1 em rés do chão - Área bruta de 68 m² - Imóvel devoluto e totalmente para recuperar - Localização central e pedonal, junto a serviços, comércio e transportes - Potencial para diferentes finalidades: habitação permanente, investimento ou turismo INVESTIR NO CENTRO DE BORBA | ÉVORA - Borba é uma cidade histórica, conhecida pelo seu mármore e património cultural - Localização estratégica no triângulo BorbaVila ViçosaEstremoz - A poucos minutos da A6 e a cerca de 30 minutos da fronteira com Espanha - Forte aposta na reabilitação urbana e valorização do centro histórico - Crescente atratividade para turismo de interior e mercado de arrendamento local - Custo acessível de entrada, com potencial de retorno elevado após reabilitação Se procura um imóvel para recuperar com excelente localização e valor futuro, esta pode ser a oportunidade ideal. Para mais informações ou agendamento de visita, entre em contacto connosco.
AMI: 8303
Ref. Externa: 318/M/03645
Id: 1301931
Inicie sessão para guardar este imóvel e aceder à sua lista de favoritos em qualquer dispositivo.
1 Quartos
1 WCs
Área bruta : 66 m²
Moradia T1 para Reabilitação Total | Rés do Chão | 66 m² | Localização Central em Borba Localizada na Rua Treze de Janeiro, nº92, esta moradia T1 no rés do chão de um prédio no centro de Borba representa uma excelente oportunidade de investimento em plena cidade alentejana. Com 66 m² de área bruta, o imóvel encontra-se em estado devoluto e necessita de reabilitação total, oferecendo flexibilidade para personalização total do espaço. CARACTERÍSTICAS DO IMÓVEL - Moradia T1 em rés do chão - Área bruta de 66 m² - Imóvel devoluto, com necessidade de obras totais - Potencial para habitação própria, arrendamento ou alojamento local - Localização central, a poucos minutos a pé de comércio, serviços e transportes INVESTIR NO CENTRO DE BORBA | ÉVORA - Borba é uma cidade alentejana com forte identidade histórica e cultural - Potencial de valorização associado à reabilitação urbana - Excelente localização no triângulo BorbaVila ViçosaEstremoz - Forte tradição no setor da pedra ornamental e atratividade turística crescente - Proximidade à A6, a 40 minutos de Évora e 25 minutos da fronteira com Espanha - Ideal para quem procura investir em habitação acessível, numa zona em desenvolvimento e com procura ativa Quer esteja à procura de um projeto pessoal ou de uma oportunidade de reabilitação para rendimento, este imóvel oferece a base ideal para começar. Entre em contacto para mais informações ou visita ao local.
AMI: 8303
Ref. Externa: 318/M/03644
Id: 1301932
Inicie sessão para guardar este imóvel e aceder à sua lista de favoritos em qualquer dispositivo.
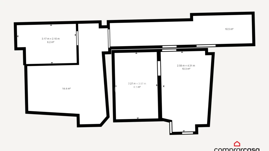
2 Quartos
Área bruta : 133 m²
DUO 24 – Duas fracções complementares, uma única oportunidade de investimento.Apresentamos-lhe o DUO 24, um conjunto de duas fracções autónomas localizadas num mesmo edifício no centro de Borba, com potencial elevado de rentabilidade e projectos de remodelação já estudados.Cada fracção possui proprietário distinto, mas estão a ser promovidas em conjunto por se tratar de unidades perfeitamente complementares, tanto para habitação como para arrendamento turístico, local ou de longa duração. O que está incluído:Fracção A – Rés-do-chão: Área ampla com potencial para conversão em T1 acolhedor com acesso directo à rua.Fracção B – 1.º Andar: Já com divisões funcionais, com projecto de transformação em T1 moderno e luminoso. Projectos e Visualização:Inclui plantas do estado actual e propostas de remodelação (em 2D e 3D renderizado). Obras Isentas de Controlo Prévio.Soluções pensadas para optimizar o espaço e criar dois apartamentos T1 prontos a rentabilizar/habitar.Potencial para exploração em AL (Alojamento Local), renda fixa, ou até uso misto (habitação + escritório).Poderão ser projectadas outras soluções, incluindo junção das duas fracções, para uma única habitação. Investimento flexível:Vende-se em conjunto, com condições comerciais especiais, ou em separado.Preço Fracção A: 51.000€Preço Fracção B: 66.000€Condições especiais para aquisição em conjunto. Localização estratégica:Situado no centro de Borba, com fácil acesso a serviços, comércio, escolas e zonas turísticas.Zona em crescente valorização, ideal para quem procura retorno seguro e versátil. Documentação disponível:Certificados energéticos de ambas as fracçõesPlantas do ExistentePropostas de arquitectura com simulações 3DApoio técnico e comercial ao investidor Bónus para investidores:Este imóvel pode ser adquirido individualmente ou em conjunto.A aquisição das duas fracções permite criar um edifício completo com duas unidades T1 autónomas – uma oportunidade rara em Borba, com condições comerciais vantajosas na compra conjunta.DUO 24 – Onde dois pisos contam uma história de rentabilidade. Áreas:FRACÇÃO A – ÁREA DE CONSTRUÇÃO= 73.70m2 – ÁREA ÚTIL= 49.30m2FRACÇÃO B – ÁREA DE CONSTRUÇÃO= 59.95m2 – ÁREA ÚTIL= 46.90m2INVESTIR EM PORTUGAL PORQUE É:- O 3º melhor país do mundo e o 1º europeu para morar e trabalhar (“Expat Insider 2019” da Internations, isto é, trata-se de uma rede de 3 milhões de expatriados a trabalhar no estrangeiro);- “Novo Eldorado para os reformados europeus” (jornal francês Le Monde);- Um dos melhores destinos para reformados estrangeiros (revista e site norte-americano International Living);- Um dos melhores sistemas de saúde do mundo (inglesa BBC);- Um dos países mais seguros do mundo (Departamento de Estado dos EUA);- Um dos lugares mais atraentes da Europa para estudar no estrangeiro (“Topuniversities” da inglesa Quacquarelli Symonds).
AMI: 9412
Ref. Externa: 281571066
Id: 1252237
Inicie sessão para guardar este imóvel e aceder à sua lista de favoritos em qualquer dispositivo.
6 Quartos
1 WCs
Área bruta : 172 m²
Casa secular para recuperação total.Em Borba, terra de vinhos e sabores, apresentamos este imóvel de Rc e 1ª andar.Imovel pode ter diversas finalidades, seja para habitação permanente ou para férias, quem sabe fazer dele um Hostel ou alojamento local.Área total de 172m2.O imóvel tem entrada por duas ruas.Ao nivel do RC encontramos:- grandioso hall de entrada,- 1 WC- corredor- 3 quartos- cozinha com chaminé antigaAo nivel do 1º andar contamos com:- 2 arrecadações- 3 quartos- 2 salas de estar- corredorPredimed Imobiliária, Mediação Imobiliária, Lda.Avenida Brasil 43, 12º Andar, 1700-062 LisboaLicença AMI nº 22503Pessoa Coletiva nº 517 239 345Seguro Responsabilidade Civil: Nº de Apólice RC65379424 Fidelidade Características: Áreas de Lazer Infantil;Auto-Estrada;Banco;Bombeiros;Escola;Farmácia;Hipermercado;Mercado;Orientação Solar;Piscinas;Posto de Combustível;Praça Táxis;Transportes Públicos;Zona Histórica
AMI: 13558
Ref. Externa: 052688
Id: 1199724
Inicie sessão para guardar este imóvel e aceder à sua lista de favoritos em qualquer dispositivo.
4 Quartos
2 WCs
Área útil : 197 m²
Moradia T4 de Luxo no Centro de Borba – Conforto, Elegância e Localização Privilegiada Se procura a combinação perfeita entre conforto moderno, elegância e localização central, esta moradia é para si! Situada no coração da cidade de Borba, esta propriedade de linhas contemporâneas oferece espaços amplos, excelente exposição solar e acabamentos premium que fazem toda a diferença. Composição da Moradia: ✔️ 4 Quartos generosos, todos equipados com ar condicionado e roupeiros embutidos, proporcionando funcionalidade e conforto térmico em todas as estações. ✔️ A suíte principal dispõe de uma casa de banho privativa com cabine de hidromassagem, perfeita para momentos de relaxamento. ✔️ Sala de estar espaçosa, com ar condicionado e recuperador de calor, ideal para convívios em família ou para simplesmente desfrutar do conforto da sua casa. ✔️ Cozinha moderna e totalmente equipada, com acesso direto a uma despensa, oferecendo toda a organização e praticidade que o seu dia a dia precisa. Conforto e Eficiência: Janelas e portas exteriores em alumínio termolacado com corte térmico, garantindo elevado desempenho térmico e acústico, além de maior segurança e durabilidade. Excelente luz natural em todas as divisões, criando ambientes agradáveis e acolhedores durante todo o dia. Localização de Excelência: Localizada numa zona central e tranquila de Borba, esta moradia coloca-o a poucos passos de: Supermercados. Escolas. Farmácias Restaurantes Serviços públicos Viva com qualidade, perto de tudo, num ambiente seguro e cheio de charme. Ideal para famílias exigentes, ou como investimento sólido no mercado imobiliário da região. Não perca esta oportunidade! Contacte-nos já para mais informações ou para agendar a sua visita! VAMOS CONHECER ????? Distâncias: A 5 min a pé do centro da cidade (serviços e comércio) A 5 minutos de carro do supermercado "Pingo Doce" A 5 minutos de carro da autoestrada A6 A 15 minutos de carro de Estremoz. A 25 minutos de carro de Elvas. A 35 min de carro de Espanha/Badajoz A 45 minutos de carro de Évora. A 1h30 min de Lisboa #ref: 140901
AMI: 11220
Ref. Externa: 140901
Id: 1193178
Inicie sessão para guardar este imóvel e aceder à sua lista de favoritos em qualquer dispositivo.
1 Quartos
1 WCs
Área útil : 34 m²
Este apartamento está localizado no coração da cidade de Borba, proporcionando uma excelente oportunidade para quem procura praticidade, conforto e proximidade de todos os serviços e comércios locais. Neste apartamento temos ainda 1 quarto com ar condicionado, cozinha e casa de banho com banheira. No terraço têm vista para a cidade. Além disso, a localização é um grande atrativo, com fácil acesso a escolas, supermercados, bancos e restaurantes, tudo a poucos minutos a pé. Não perca esta oportunidade de viver no centro de Borba, onde o conforto e a tranquilidade estão ao seu dispor. Características da propriedade 1 quarto 1 cozinha 1 casa de banho com banheira Terraço Distâncias: A 5 min a pé do centro da cidade (serviços e comércio) A 5 minutos de carro do supermercado "Pingo Doce" A 5 minutos de carro da autoestrada A6 A 15 minutos de carro de Estremoz. A 25 minutos de carro de Elvas. A 35 min de carro de Espanha/Badajoz A 45 minutos de carro de Évora. A 1h30 min de Lisboa #ref: 132682
AMI: 11220
Ref. Externa: 132682
Id: 979695
Inicie sessão para guardar este imóvel e aceder à sua lista de favoritos em qualquer dispositivo.
20 Quartos
Área bruta : 510 m²
CARACTERIZAÇÃO DO IMÓVEL:Charmosa Casa Senhorial do Séc. XVII, de 3 pisos, localizada na Rua dos Terreiros Nº3, em Borba. Enorme potencial, na vertente habitacional, comercial e/ou turística.As casas senhoriais, genericamente, representavam o poder de uma família e da sua hierarquia no contexto da sociedade em que se enquadravam. Caracterizam-se por tipologias com espaços amplos e pés-direitos generosos, com recurso a materiais de acabamentos de elevada qualidade e nobreza, característicos da área onde se inseriam. No Alentejo, destacam-se elementos de ornamentação com cantarias de mármores e granitos da região, painéis de azulejos pintados à mão, utilizados no revestimento/decoração de fachadas, escadarias e outros apontamentos interiores.Esta moradia não é excepção. Mantém toda a dignidade e nobreza da época, contudo, a necessitar de obras de restauro/recuperação, ou eventualmente, adaptação a novas funções. Localiza-se numa das ruas mais emblemáticas da cidade, envolvida por moradias de traça semelhante, de frente para um tranquilo jardim público, podendo com facilidade circular a pé, pela simpática e acolhedora cidade de Borba.Disponibilizam-se mais à frente no anúncio plantas do imóvel existente, bem como, sugestão de transformação em hotel de charme, com capacidade alojamento para 20 pessoas. As obras a realizar seriam unicamente interiores. Pode em simultâneo realizar um excelente e garantido investimento e devolver toda a nobreza e notoriedade a este edifício. DETALHES DO IMÓVEL:O imóvel é composto por:- 11 divisões, 1 w/c e 1 alpendre no rés-do-chão;- 11 divisões no 1ºandar, 1 cozinha com lareira alentejana, 1 w/c e um terraço;- 7 divisões com 2ºandar;- Pré-instalação de lareira e/ou salamandra;- Jardim com algumas árvores de fruto.No rés-do-chão são disponibilizados 2 espaços distintos com possibilidade de utilização comercial.- Certificado Energético: F ENVOLVENTE/LOCALIZAÇÃO:Com localização privilegiada, o imóvel oferece ao seu redor uma completa panóplia ao nível cultural, restauração, comércio e serviços. Rápido e fácil acesso aos grandes meios urbanos e aldeias típicas alentejanas.Destaca-se:- 1.30h do centro de Lisboa (via A6)- 30`` de Évora- 20`` de Espanha - Badajoz- 1 minuto do centro da cidade de Borba (comércio/serviços e escolas)- Passeios/trilhos ecológicos pela serra/planície; BTT- Desportos náuticos - Alqueva a 35``- Transporte escolar- Restauração típica alentejana/Enoturismo INVESTIR EM PORTUGAL PORQUE É:- O 3º melhor país do mundo e o 1º europeu para morar e trabalhar (“Expat Insider 2019” da Internations, isto é, trata-se de uma rede de 3 milhões de expatriados a trabalhar no estrangeiro);- “Novo Eldorado para os reformados europeus” (jornal francês Le Monde);- Um dos melhores destinos para reformados estrangeiros (revista e site norte-americano International Living);- Um dos melhores sistemas de saúde do mundo (inglesa BBC);- Um dos países mais seguros do mundo (Departamento de Estado dos EUA);- Um dos lugares mais atraentes da Europa para estudar no estrangeiro (“Topuniversities” da inglesa Quacquarelli Symonds). ÁREAS:ÁREA BRUTA: 510,00m2 - ÁREA ÚTIL: 445,10m2 - ÁREA DESCOBERTA: 230,00m2
AMI: 9412
Ref. Externa: 281571016
Id: 279172
Inicie sessão para guardar este imóvel e aceder à sua lista de favoritos em qualquer dispositivo.
Este agente é especialista nesta zona:
Inicie sessão para ocultar este imóvel das suas pesquisas e manter a sua lista de resultados organizada.
Guardar favoritos
Este imóvel foi guardados nos seus favoritos com sucesso.
Para poder guardar pesquisa deverá ter a sua sessão iniciada.
Caso não tenha uma conta, deverá criar uma.
A sua pesquisa foi guardada com sucesso!
© Copyright 2023 | CASACERTA. All rights reserved
Este site utiliza cookies. Ao navegar no site estará a consentir a sua utilização.
Para mais informações sobre os cookies pode consultar a
política de privacidade.