Lista
Comprar
Arrendar
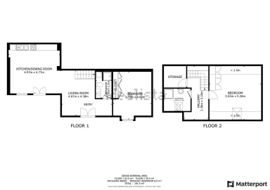
115.000 €
3 Quartos
1 WCs
Área bruta : 120 m²
-------------------------------------- **** CRYPTO ACCEPTED **** ** LEGALISED BY NOTARY ** * find out more - contact us * -------------------------------------- Gostava de transformar uma casa tradicional madeirense num espaço totalmente ao seu gosto? Esta moradia para renovar pode ser o projeto certo para si! Situada no Caminho do Lombo do Doutor Calheta, esta propriedade encontra-se numa zona residencial tranquila e rural, a exatamente 405 metros de altitude, com clima ameno durante todo o ano. A apenas 7 minutos de carro da Praia da Calheta, de supermercados, escolas, centro da vila e todo o tipo de serviços essenciais, oferece também rápido acesso a pontos de interesse como a PR6 Levada das 25 Fontes, a 20 minutos, e está a 39 minutos do Funchal e a 47 minutos do aeroporto da Madeira. A zona é calma, rodeada por natureza e ideal para quem valoriza privacidade e simplicidade. A moradia é composta por dois pisos, com 4 divisões no piso superior e 3 no piso inferior, além de uma pequena casa de banho. Está inserida num lote de 209m², com uma área bruta de construção de 120m², e inclui ainda dois terrenos adicionais: um com 294m² onde se encontra um palheiro com potencial para ser transformado em estúdio, arrumos e estacionamento, e outros 2 lotes com área total de 155m², totalizando 634m² de terreno. A construção é tradicional em pedra, possui um forno antigo, vista parcial de mar e vista montanha. O ACESSO É DIFICIL ATÉ À CASA, o que pode ser um desafio para os condutores menos experientes, mas que permite a circulação de viaturas, incluindo um Canter. Esta propriedade é ideal para quem procura uma primeira habitação, uma casa de férias ou uma segunda residência na Madeira, valorizando a autenticidade da construção e o potencial de personalização num ambiente calmo. Não perca a oportunidade de dar nova vida a esta moradia! Entre em contacto para mais informações ou agende a sua visita. Daniel Santos +351 968 552 708
AMI: 10701
Ref. Externa: 11607-DS
Id: 1277612
Inicie sessão para guardar este imóvel e aceder à sua lista de favoritos em qualquer dispositivo.
135.000 €
4 Quartos
1 WCs
Área bruta : 80 m²
Moradia antiga T4, em pedra e de estilo madeirense, inserida em lote de 1118 m2 em zona calma nos Prazeres, Calheta, com orientação a Sul e Oeste. Precisa de obras de recuperação total, pelo que não se encontra habitável. A propriedade com 80 m2 de área bruta, fica junto a uma estrada secundária, e está inserida em terreno plano numa área de edificação dispersa, o que lhe dá a possibilidade de construir uma piscina, jardins, uma horta, bem como, outras zonas de lazer. Localiza-se aproximadamente a 5 minutos da Quinta Pedagógica dos Prazeres, assim como, da vila da Calheta onde encontrará supermercado, lojas, serviços públicos, marina e, é claro, a praia de areia amarela onde poderá refrescar-se, nadar e desfrutar da calma e do azul profundo do Atlântico. Ótima oportunidade de investimento. Marque já a sua visita!
AMI: 14104
Ref. Externa: PGRD_8493
Id: 739176
Inicie sessão para guardar este imóvel e aceder à sua lista de favoritos em qualquer dispositivo.
210.000 €
2 Quartos
1 WCs
Área bruta : 204 m²
Descrição******************************************************************************. . (VENDE) MORADIA T2, CALHETA, MADEIRA, PORTUGAL - 210 000.00€ *************************. . Moradia T2 inserida em lote de 204 m2 . Altitude de 418 metros . Esta propriedade fica na vereda mas tem um lugar de estacionamento na estrada. Zona sossegada . Nota: . . O imóvel não dispõe de ficha técnica, pelo que não é possível comunicar a área útil do imóvel. . Fotos com contorno são meramente ilustrativas **************************************************************************************.
AMI: 9156
Ref. Externa: 1098-137/12426
Id: 1039533
Inicie sessão para guardar este imóvel e aceder à sua lista de favoritos em qualquer dispositivo.
250.000 €
2 Quartos
1 WCs
Área bruta : 144 m²
-------------------------------------- **** CRYPTO ACCEPTED **** ** LEGALISED BY NOTARY ** * find out more - contact us * -------------------------------------- Moradia T2 Acolhedora nos Prazeres: O Seu Refúgio Perfeito! Esta é a oportunidade que esperava! Está a chegar ao mercado esta moradia T2 verdadeiramente simpática, situada na tranquila freguesia dos Prazeres, na Calheta, e que aguarda por uma nova história. Perfeita Para Si.. Ideal para um casal, uma pequena família ou até para quem procura uma casa de férias. Excelente potencial para ser adaptada ou renovada para alojamento local (AL) ou outro projeto ao seu gosto. Esta acolhedora Moradia T2 tem o potencial de ser o seu novo lar, oferecendo a paz e a qualidade de vida da costa sudoeste da Madeira. Localização e Charme.. Situada nos Prazeres, é uma zona conhecida pela sua tranquilidade e vistas deslumbrantes. A simplicidade e o charme desta moradia T2 tornam-na uma OPORTUNIDADE a não perder! Seja rápido(a)! Venha começar a escrever a sua nova história. Valentina Jardim (+351) 924702313 [email protected] Chamada para a rede móvel nacional
AMI: 10701
Ref. Externa: 11798-VJ
Id: 1517464
Inicie sessão para guardar este imóvel e aceder à sua lista de favoritos em qualquer dispositivo.
369.000 €
3 Quartos
2 WCs
Área útil : 100 m²
Apresentamos esta moradia típica madeirense, totalmente remodelada, localizada em Lombo do Brasil, uma das zonas mais valorizadas e procuradas da ilha da Madeira. A propriedade combina o charme da arquitetura tradicional com o conforto e eficiência da remodelação moderna, oferecendo uma casa pronta a habitar e com elevado potencial de personalização exterior. Com um terreno de 378 m² e área de construção de 100 m², dispõe de três quartos, incluindo uma suíte, e dois quartos de banho, distribuídos de forma funcional e acolhedora. Todos os espaços foram cuidadosamente renovados, incluindo pavimentos, tetos e instalações elétricas modernas, garantindo máxima segurança e conforto. A moradia conta com canalizações novas de águas brancas e residuais, isolamento térmico eficiente, preparação para carregamento de carro elétrico e painéis solares, além de cozinha embutida totalmente equipada, pronta para uso imediato. O espaço exterior oferece múltiplas possibilidades de personalização, incluindo terraço, jardim, jacuzzi ou pequena piscina, em perfeita harmonia com a tranquilidade da vizinhança e vistas panorâmicas sobre a natureza envolvente. Não perca a oportunidade de adquirir esta propriedade única. Contacte-nos hoje para mais informações e agendar a sua visita.
AMI: 9318
Ref. Externa: C0216-03222
Id: 1402457
Inicie sessão para guardar este imóvel e aceder à sua lista de favoritos em qualquer dispositivo.
380.000 €
1 Quartos
1 WCs
Área bruta : 72 m²
RESERVADO---Este sofisticado apartamento oferece um ambiente moderno e funcional, pensado para o conforto dos seus moradores. O apartamento tem 1 lugar de estacionamento e 1 arrecadação. O apartamento decorado e Mobilado a cozinha está equipada com eletrodomésticos, incluindo frigorífico combinado, placa de indução, exaustor, forno, micro-ondas, máquina de lavar louça, e máquina de lavar e secar roupa. No seu interior, conta com uma despensa, uma mais-valia no que diz respeito à funcionalidade e arrumação. Para momentos de lazer e convívio, o apartamento dispõe de uma zona de Lazer com jardim e Piscina um espaço ideal para relaxamento e bem-estar ao ar livre em qualquer época do ano.
AMI: 20706
Ref. Externa: 52A/2025
Id: 1432877
Inicie sessão para guardar este imóvel e aceder à sua lista de favoritos em qualquer dispositivo.
380.000 €
1 Quartos
1 WCs
Área bruta : 78 m²
Descubra este magnífico apartamento T1, totalmente mobilado e decorado, localizado no prestigiado condomínio na Calheta. Um espaço que combina conforto, elegância e vistas deslumbrantes sobre o mar e a serra. Este apartamento de uma vista deslumbrante, ideal para relaxar em total privacidade. Inclui ainda 1 lugar de estacionamento e 1 arrecadação. A cozinha está totalmente equipada com eletrodomésticos modernos: frigorífico combinado, placa de indução, exaustor, forno, micro-ondas, máquina de lavar loiça, e máquina de lavar e secar roupa. Destaques: Totalmente mobilado e decorado Piscina Estacionamento e arrecadação incluídos Cozinha equipada com eletrodomésticos de qualidade Acabamentos modernos e excelente exposição solar Localização privilegiada na Calheta Uma oportunidade única para viver com requinte, conforto e tranquilidade num dos locais mais procurados da Madeira. Agende já a sua visita!
AMI: 18543
Ref. Externa: DR498
Id: 1433425
Inicie sessão para guardar este imóvel e aceder à sua lista de favoritos em qualquer dispositivo.
380.000 €
1 Quartos
1 WCs
Área bruta : 78 m²
T1 na Calheta. O apartamento é vendido completamente mobilado e decorado. Tem 1 lugar de estacionamento e 1 arrecadação. A cozinha está equipada com eletrodomésticos, incluindo frigorífico combinado, placa de indução, exaustor, forno, micro-ondas, máquina de lavar louça, e máquina de lavar e secar roupa. No seu interior, conta com uma despensa, uma mais-valia no que diz respeito à funcionalidade e arrumação. Contacte-nos para mais informações.
AMI: 21607
Ref. Externa: ACP1
Id: 1438645
Inicie sessão para guardar este imóvel e aceder à sua lista de favoritos em qualquer dispositivo.
380.000 €
1 Quartos
1 WCs
Área bruta : 78 m²
Excelente apartamento T1, com deslumbrante vista mar, com localização privilegiada, a poucos minutos da Praia da Calheta e do mar e a apenas 45/50 minutos do Funchal. O apartamento é vendido totalmente mobilado e decorado, pronto a habitar. Possui: - Sala comum, com varanda. - Cozinha totalmente equipada com frigorífico combinado, placa de indução, exaustor, forno, micro-ondas, máquina de lavar loiça e máquina de lavar e secar roupa. - 1 despensa, uma mais-valia em termos de arrumação e funcionalidade. - 1 quarto de dormir, 1 WC. - 1 lugar de estacionamento e 1 arrecadação. O imóvel é perfeito para residência permanente, casa de férias ou investimento para arrendamento turístico.
AMI: 6315
Ref. Externa: 1725
Id: 1439501
Inicie sessão para guardar este imóvel e aceder à sua lista de favoritos em qualquer dispositivo.
390.000 €
2 Quartos
3 WCs
Área bruta : 129 m²
Esta magnífica moradia recentemente renovada, situada no Lombo da Atouguia, na Calheta uma zona tranquila, soalheira e conhecida pelas suas vistas amplas e pelo pôr do sol único. A casa destaca-se pelos acessos fáceis, pela excelente exposição solar e pelos acabamentos de alta qualidade que lhe conferem conforto, modernidade e durabilidade. No interior, encontra dois quartos em suite, oferecendo total privacidade e comodidade, e uma casa de banho adicional no piso inferior, prática para visitas ou para o dia a dia. Dispõe ainda de um terceiro espaço, demasiado pequeno para quarto de hóspedes, mas perfeito para criar o que realmente faz falta: um closet funcional, uma pequena biblioteca, um espaço de treino ou até um escritório privado. A cozinha em kitchenette integra-se harmoniosamente na sala ampla, onde a luz natural entra generosamente e onde poderá desfrutar de uma vista aberta sobre a paisagem um cenário ideal para relaxar, receber amigos ou simplesmente apreciar o pôr do sol ao final do dia. No exterior, encontra um anexo versátil, que poderá utilizar como garagem ou transformar num mezanino para escritório, atelier ou estúdio, oferecendo possibilidades ajustadas ao seu estilo de vida. Se procura uma moradia pronta a habitar, moderna, prática e com uma vista que inspira todos os dias, esta propriedade na Calheta é uma oportunidade rara.
AMI: 23760
Ref. Externa: 25018-07
Id: 1515568
Inicie sessão para guardar este imóvel e aceder à sua lista de favoritos em qualquer dispositivo.
429.000 €
2 Quartos
Área bruta : 286 m²
**Moradia Tradicional Madeirense com Vista Maravilhosa em Calheta**Descubra esta encantadora moradia independente, uma verdadeira joia da arquitetura madeirense, localizada no concelho de Calheta. Com uma estrutura em pedra e uma piscina privada, esta casa oferece um refúgio perfeito para quem busca tranquilidade e beleza natural. A vista deslumbrante sobre o vale da Calheta e o mar transforma cada momento em um espetáculo de cores e luz.Com uma excelente exposição solar, a moradia é composta por uma cozinha ampla e totalmente equipada, uma sala em open space que convida ao convívio, e dois confortáveis quartos. A casa conta ainda com duas casas de banho e uma zona de circulação bem iluminada. O espaço exterior é um verdadeiro paraíso, com um alpendre, jardim e churrasqueira, ideal para desfrutar de momentos inesquecíveis com família e amigos.Localizada a apenas 5 minutos do centro da vila, a moradia possui fácil acesso a serviços como restaurantes, farmácia, supermercado e serviços de saúde. Além disso, a propriedade já possui licença oficial para alojamento turístico (AL), tornando-se uma excelente oportunidade de investimento. Há potencial para aumentar mais um quarto de dormir com balcão no piso superior, aumentando ainda mais o valor da propriedade.Com 286 m² de área bruta e 86 m² úteis, esta moradia é totalmente mobilada e pronta para habitar. Não perca a chance de viver ou investir neste espaço único, onde a tradição madeirense se encontra com o conforto moderno. Venha conhecer e se encantar!
AMI: 9327
Ref. Externa: 02843
Id: 599828
Inicie sessão para guardar este imóvel e aceder à sua lista de favoritos em qualquer dispositivo.
450.000 €
1 Quartos
2 WCs
Área útil : 81 m²
Descubra o estilo de vida premium na Calheta Hills com este apartamento T1 totalmente mobilado e decorado, onde o luxo encontra o conforto absoluto. Interiores Modernos & Funcionais : - Suíte climatizada com roupeiros embutidos - Sala de estar ampla e luminosa - Sistema de Domótica instalado. - Cozinha aberta totalmente equipada com eletrodomésticos Bosch (incluindo máquina de lavar roupa) Experiência Única de Lazer: - Acesso exclusivo a piscina infinita com vista deslumbrante sobre o oceano - Área bruta de 81,00m² otimizada para aproveitar cada espaço Localização Privilegiada: - Situado perto da encantadora Vila da Calheta - Proximidade a praias de areia dourada, marina e restaurantes gourmet - Inclui 1 lugar de estacionamento + arrecadação Este não é apenas um apartamento - é um refúgio privado onde cada detalhe foi pensado para oferecer o melhor da vida na Madeira. Oportunidade Única para Investidores ou quem Procura uma Segunda Habitação de Luxo, possibilidade de requerer Licença de Arrendamento de curto prazo. Agende Já a Sua Visita e Deixe-se Encantar por Este Estilo de Vida Incomparável!
AMI: 11389
Ref. Externa: 1738
Id: 1406832
Inicie sessão para guardar este imóvel e aceder à sua lista de favoritos em qualquer dispositivo.
460.000 €
2 Quartos
2 WCs
Área bruta : 221 m²
Aninhado no cenário idílico da Calheta, na Madeira, o Calheta Luxor redefine a vida de luxo moderna com o seu desenvolvimento exclusivo de 24 apartamentos de 2 e 3 quartos meticulosamente projetados. Estrategicamente situada numa localização privilegiada com vistas deslumbrantes sobre o mar, esta propriedade convida-o a desfrutar de uma sofisticação inigualável. Vida elevada e design excepcional Desde os seus detalhes arquitetónicos marcantes ao seu compromisso com a sustentabilidade, a Calheta Luxor oferece um estilo de vida que combina perfeitamente a estética com a praticidade. Cada apartamento possui layouts amplos, acabamentos refinados e varandas privativas que emolduram a beleza natural da ilha. Compromisso com a sustentabilidade e o conforto Construído com uma abordagem inovadora, o Calheta Luxor possui painéis fotovoltaicos e solares pré-instalados, uma certificação de eficiência energética com classificação A e pontos de carregamento de veículos elétricos domésticos. Esses recursos sustentáveis garantem um modo de vida mais eficiente em termos de energia e ambientalmente consciente. Comodidades incomparáveis Os residentes irão desfrutar de: Uma piscina aquecida com bomba de calor, situada em meio a uma vegetação exuberante. Duas vagas de estacionamento seguras por unidade, alojadas em camarotes privativos com portas automáticas. Espaços de armazenamento adaptados às suas necessidades. O empreendimento é cuidadosamente equipado com elevadores para acessibilidade sem esforço, garantindo uma experiência de vida que prioriza conveniência e conforto. O luxo encontra a praticidade Os projetos de conceito aberto do Calheta Luxor abrangem espaços sofisticados e cozinhas totalmente equipadas. Cada aspecto do empreendimento reflete uma atenção cuidadosa aos detalhes, desde o uso de materiais premium até a incorporação de acabamentos superiores que incorporam elegância. O estilo de vida dos seus sonhos espera por você Quer esteja à procura de um retiro tranquilo, uma residência familiar ou um investimento imobiliário, o Calheta Luxor oferece uma oportunidade inigualável para elevar o seu estilo de vida. Porquê escolher a Calheta Luxor? Localização privilegiada com vista panorâmica para o mar. Layouts de apartamentos generosos e varandas. Integração de sustentabilidade e design de alta qualidade. Proximidade de atrações e comodidades locais. Não perca Experimente o auge do luxo na Madeira. Contacte-nos hoje para reservar a sua unidade e começar a sua jornada rumo a uma vida extraordinária na Calheta Luxor.
AMI: 11097
Ref. Externa: #1421 T2
Id: 1012822
Inicie sessão para guardar este imóvel e aceder à sua lista de favoritos em qualquer dispositivo.
550.000 €
3 Quartos
Área bruta : 1090 m²
Moradia para recupera na Calheta inserida num lote de 1.500 m2 + armazém com um total de industrial para diversos usos.Excelente localização em zona muito procurada e valorizada com excelentes acesso.GRANDE OPORTUNIDADE de investimento.* Somos intermediários de crédito bancário Certificados - Registados junto do Banco de Portugal com o número de registo 0003393 "*Ajudamos sempre a encontrar a melhor solução para o seu crédito habitação.. . Rápido, Eficaz e Seguro.
AMI: 9327
Ref. Externa: 02840
Id: 547495
Inicie sessão para guardar este imóvel e aceder à sua lista de favoritos em qualquer dispositivo.
550.000 €
2 Quartos
Área bruta : 99 m²
Apartamento T2 – CalhetaBem-vindo ao Calheta Hills - uma joia em construção que em breve será o seu refúgio à beira-mar na bela Calheta. Este empreendimento impressionante oferece a oportunidade de viver em um local privilegiado com vistas deslumbrantes e uma qualidade de vida inigualável.Este apartamento em construção é um testemunho da harmonia entre o design moderno e a natureza deslumbrante que o rodeia. A vista mar definitiva que você desfrutará diariamente é simplesmente espetacular. Imagine acordar todas as manhãs com o brilho do sol refletindo nas águas cristalinas do oceano Atlântico, enquanto desfruta do seu café na varanda espaçosa.Este apartamento oferece áreas generosas, proporcionando um ambiente amplo e confortável para a sua vida cotidiana. Os espaços foram cuidadosamente projetados para garantir uma fluidez perfeita entre as áreas de estar, jantar e cozinha. A luz natural inunda o interior, criando uma atmosfera acolhedora e convidativa em todos os espaços.A cozinha, moderna e funcional, é um local onde pode liberar seu chef interior enquanto contemplam a vista panorâmica. Os acabamentos de alta qualidade e os materiais cuidadosamente escolhidos garantem um ambiente de luxo e conforto.Além disso, o Calheta Hills oferece uma gama de comodidades e serviços para aprimorar sua experiência de vida. Você poderá relaxar na piscina com borda infinita, desfrutar das áreas de lazer ao ar livre.Esta é a oportunidade de adquirir um pedaço do paraíso na Calheta antes que seja tarde demais. Não perca a chance de fazer parte deste empreendimento exclusivo e viver a vida que você sempre sonhou. Agende uma visita hoje mesmo para conhecer pessoalmente o Calheta Hills e experimentar a magia deste local incomparável. Seu novo lar à beira-mar espera por si!Marque a sua visita! Oportunidade única!Sinta-se acompanhado pelos profissionais certos!
AMI: 21671
Ref. Externa: DSF68_2
Id: 778417
Inicie sessão para guardar este imóvel e aceder à sua lista de favoritos em qualquer dispositivo.
550.000 €
2 Quartos
Área bruta : 221 m²
Descubra o novo empreendimento residencial na Calheta, um local privilegiado para quem procura conforto, modernidade e uma qualidade de vida superior. Este edifício de habitação multifamiliar, em fase de construção desde maio deste ano e com conclusão prevista para 2026, oferece uma oportunidade única de adquirir um dos exclusivos apartamentos T2 com características excepcionais.Situado a uma cota de 246 metros, na pitoresca freguesia e concelho da Calheta, este empreendimento integra-se harmoniosamente na paisagem, proporcionando vistas deslumbrantes e um ambiente tranquilo. Nas redondezas, poderá desfrutar de uma vasta gama de comodidades, incluindo restaurantes, cafés, centro de saúde, mini-mercado, fármacia, bancos, que conferem praticidade ao seu dia a dia.Este apartamento T2, localizado no rés-do-chão do Bloco A, possui uma área de 115,60 m² e uma varanda de 65,05 m², onde pode relaxar e apreciar a magnífica vista sobre Calheta. Inclui também um lugar de estacionamento.Este edifício oferece ainda uma série de comodidades exclusivas para os seus residentes. A piscina comum é o local perfeito para refrescar-se nos dias mais quentes, enquanto a zona de solário proporciona um espaço ideal para relaxar e aproveitar o sol.Este é o momento de investir na sua felicidade e no seu futuro, num dos locais mais desejados da ilha. Faça parte deste projeto inovador e transforme este apartamento no seu novo lar.
AMI: 15427
Ref. Externa: Q2379
Id: 788881
Inicie sessão para guardar este imóvel e aceder à sua lista de favoritos em qualquer dispositivo.
570.000 €
2 Quartos
Área bruta : 142 m²
Descubra o novo empreendimento residencial na Calheta, um local privilegiado para quem procura conforto, modernidade e uma qualidade de vida superior. Este edifício de habitação multifamiliar, em fase de construção desde maio deste ano e com conclusão prevista para 2026, oferece uma oportunidade única de adquirir um dos exclusivos apartamentos T2 com características excepcionais.Situado a uma cota de 246 metros, na pitoresca freguesia e concelho da Calheta, este empreendimento integra-se harmoniosamente na paisagem, proporcionando vistas deslumbrantes e um ambiente tranquilo. Nas redondezas, poderá desfrutar de uma vasta gama de comodidades, incluindo restaurantes, cafés, centro de saúde, mini-mercado, fármacia, bancos, que conferem praticidade ao seu dia a dia.Este apartamento T2, localizado no primeiro andar do Bloco A, possui uma área de 115,60 m² e uma varanda de 27,10 m², onde pode relaxar e apreciar a magnífica vista sobre Calheta. Inclui também um lugar de estacionamento.Este edifício oferece ainda uma série de comodidades exclusivas para os seus residentes. A piscina comum é o local perfeito para refrescar-se nos dias mais quentes, enquanto a zona de solário proporciona um espaço ideal para relaxar e aproveitar o sol.Este é o momento de investir na sua felicidade e no seu futuro, num dos locais mais desejados da ilha. Faça parte deste projeto inovador e transforme este apartamento no seu novo lar.
AMI: 15427
Ref. Externa: Q2382
Id: 788889
Inicie sessão para guardar este imóvel e aceder à sua lista de favoritos em qualquer dispositivo.
590.000 €
2 Quartos
Área bruta : 252 m²
Descubra o novo empreendimento residencial na Calheta, um local privilegiado para quem procura conforto, modernidade e uma qualidade de vida superior. Este edifício de habitação multifamiliar, em fase de construção desde maio deste ano e com conclusão prevista para 2026, oferece uma oportunidade única de adquirir um dos exclusivos apartamentos T2 com características excepcionais.Situado a uma cota de 246 metros, na pitoresca freguesia e concelho da Calheta, este empreendimento integra-se harmoniosamente na paisagem, proporcionando vistas deslumbrantes e um ambiente tranquilo. Nas redondezas, poderá desfrutar de uma vasta gama de comodidades, incluindo restaurantes, cafés, centro de saúde, mini-mercado, fármacia, bancos, que conferem praticidade ao seu dia a dia.Este apartamento T2, situado no rés-do-chão do Bloco B (bloco da frente), oferece uma área generosa de 122,95 m² e destaca-se pela sua varanda de 77,25 m², onde pode relaxar e desfrutar da magnífica vista sobre a Calheta. Com apenas quatro apartamentos no bloco, o imóvel é muito tranquilo. Inclui ainda um lugar de estacionamento, garantindo total comodidade e segurança.Este edifício oferece ainda uma série de comodidades exclusivas para os seus residentes. A piscina comum é o local perfeito para refrescar-se nos dias mais quentes, enquanto a zona de solário proporciona um espaço ideal para relaxar e aproveitar o sol.Este é o momento de investir na sua felicidade e no seu futuro, num dos locais mais desejados da ilha. Faça parte deste projeto inovador e transforme este apartamento no seu novo lar.
AMI: 15427
Ref. Externa: Q2377
Id: 788874
Inicie sessão para guardar este imóvel e aceder à sua lista de favoritos em qualquer dispositivo.
590.000 €
2 Quartos
Área bruta : 220 m²
Descubra o novo empreendimento residencial na Calheta, um local privilegiado para quem procura conforto, modernidade e uma qualidade de vida superior. Este edifício de habitação multifamiliar, em fase de construção desde maio deste ano e com conclusão prevista para 2026, oferece uma oportunidade única de adquirir um dos exclusivos apartamentos T2 com características excepcionais.Situado a uma cota de 246 metros, na pitoresca freguesia e concelho da Calheta, este empreendimento integra-se harmoniosamente na paisagem, proporcionando vistas deslumbrantes e um ambiente tranquilo. Nas redondezas, poderá desfrutar de uma vasta gama de comodidades, incluindo restaurantes, cafés, centro de saúde, mini-mercado, fármacia, bancos, que conferem praticidade ao seu dia a dia.Este apartamento T2, situado no primeiro andar do Bloco B (bloco da frente), oferece uma área generosa de 122,95 m² e destaca-se pela sua varanda de 27,10 m², onde pode relaxar e desfrutar da magnífica vista sobre a Calheta. Com apenas quatro apartamentos no bloco, o imóvel é muito tranquilo. Inclui ainda um lugar de estacionamento, garantindo total comodidade e segurança.Este edifício oferece ainda uma série de comodidades exclusivas para os seus residentes. A piscina comum é o local perfeito para refrescar-se nos dias mais quentes, enquanto a zona de solário proporciona um espaço ideal para relaxar e aproveitar o sol.Este é o momento de investir na sua felicidade e no seu futuro, num dos locais mais desejados da ilha. Faça parte deste projeto inovador e transforme este apartamento no seu novo lar.
AMI: 15427
Ref. Externa: Q2376
Id: 788876
Inicie sessão para guardar este imóvel e aceder à sua lista de favoritos em qualquer dispositivo.
590.000 €
2 Quartos
Área bruta : 170 m²
Descubra o novo empreendimento residencial na Calheta, um local privilegiado para quem procura conforto, modernidade e uma qualidade de vida superior. Este edifício de habitação multifamiliar, em fase de construção desde maio deste ano e com conclusão prevista para 2026, oferece uma oportunidade única de adquirir um dos exclusivos apartamentos T2 com características excepcionais.Situado a uma cota de 246 metros, na pitoresca freguesia e concelho da Calheta, este empreendimento integra-se harmoniosamente na paisagem, proporcionando vistas deslumbrantes e um ambiente tranquilo. Nas redondezas, poderá desfrutar de uma vasta gama de comodidades, incluindo restaurantes, cafés, centro de saúde, mini-mercado, fármacia, bancos, que conferem praticidade ao seu dia a dia.Este apartamento T2, localizado no segundo andar do Bloco A, possui uma área de 115,60 m² e uma varanda de 27,10 m², onde pode relaxar e apreciar a magnífica vista sobre Calheta. Inclui também um lugar de estacionamento.Este edifício oferece ainda uma série de comodidades exclusivas para os seus residentes. A piscina comum é o local perfeito para refrescar-se nos dias mais quentes, enquanto a zona de solário proporciona um espaço ideal para relaxar e aproveitar o sol.Este é o momento de investir na sua felicidade e no seu futuro, num dos locais mais desejados da ilha. Faça parte deste projeto inovador e transforme este apartamento no seu novo lar.
AMI: 15427
Ref. Externa: Q2385
Id: 788885
Inicie sessão para guardar este imóvel e aceder à sua lista de favoritos em qualquer dispositivo.
Estes agentes são especialistas nesta zona:
Inicie sessão para ocultar este imóvel das suas pesquisas e manter a sua lista de resultados organizada.
Guardar favoritos
Este imóvel foi guardados nos seus favoritos com sucesso.
Para poder guardar pesquisa deverá ter a sua sessão iniciada.
Caso não tenha uma conta, deverá criar uma.
A sua pesquisa foi guardada com sucesso!
© Copyright 2023 | CASACERTA. All rights reserved
Este site utiliza cookies. Ao navegar no site estará a consentir a sua utilização.
Para mais informações sobre os cookies pode consultar a
política de privacidade.